戸建フルリフォームなら「増改築.com®」TOP施工事例東京都練馬区>M様 ガレージハウスへのリフォーム&リノベーション

練馬区谷原M様 ガレージハウスへのリフォーム&リノベーション

戸建てフルリフォーム 竣工写真
戸建てフルリフォーム 竣工 ベランダ
戸建てフルリフォーム_竣工キッチン
戸建てフルリフォーム_竣工ベランダ補強
戸建てフルリフォーム_竣工LDK
戸建てフルリフォーム_竣工洋室
戸建てフルリフォーム_竣工エレベータ
建物概要
名前 M様
場所 東京都練馬区
築年数 築40年
構造種別 木造戸建
家族構成 大人2人
対象面積 29.7坪
工期 3ヶ月
価格 1700万

お客様のご要望

①将来を見据えてホームエレベータの設置

②1階の半分はガレージに

③1階の残り半分はユーティリティースペース

④2階が主に生活空間にしたい。

⑤2階に大きなサンルーフを設置したい。

プランニングのポイント

ガレージ部分と部屋の

練馬区M様邸 戸建てリノベーション施工事例テーマカテゴリー

 

  • 中古住宅+リフォーム
  • 内外部スケルトンリフォーム

打合せから完成まで

1 着工前

1-1 打合せ

現在施工中。完成は秋となります。

 

練馬区 M様邸

築年数 40年以上

建坪  31坪

ご家族 ご夫婦+犬1匹

 

今回スケルトンリフォームをさせて頂きます練馬区M様邸。M様から頂いたご要望は

①将来を見据えてホームエレベータの設置

②1階の半分はガレージに

③1階の残り半分はユーティリティースペース

④2階が主に生活空間にしたい。

⑤2階に大きなサンルーフを設置したい。

 

上記、ご要望を頂き見積・プランを

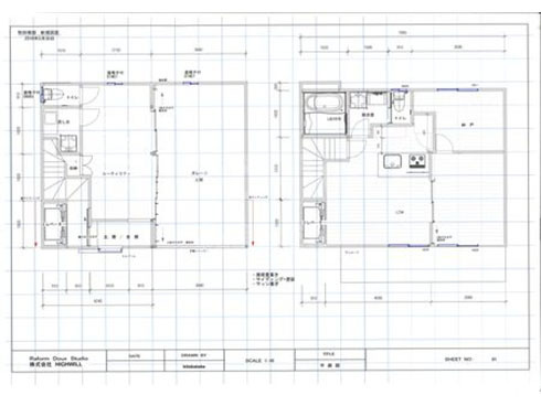
1-2 提案
≪ 新規平面図 ≫
≪ イメージパース ≫
練馬区M様邸_イメージパース

外構の色はイメージとなります。

≪ イメージパース ≫
練馬区M様邸_イメージパース

ガレージにはシャッターとを設置します。

≪ イメージパース ≫
練馬区M様邸_イメージパース
≪ イメージパース ≫
練馬区M様邸_イメージパース

2階のLDKイメージです。間仕切り戸を設置して、用途によって空間を使い別けます。

≪ イメージパース ≫
練馬区M様邸_イメージパース

2階寝室です。

≪ イメージパース ≫
練馬区M様邸_イメージパース

1階を上から見たイメージです。

≪ イメージパース ≫
練馬区M様邸_イメージパース

2階を上から見たイメージです。

≪ 既存建物 ≫
練馬区M様邸_施工前
≪ 既存建物 ≫
練馬区M様邸_施工前
≪ 既存浴室 ≫
練馬区M様邸_施工前

既存浴室は在来タイルです。段差が有り、冬はとても寒くなり危険です。

≪ 既存トイレ ≫
練馬区M様邸_施工前

既存トイレは汽車便です。

≪ 既存キッチン ≫
練馬区M様邸_施工前

既存キッチンです。ブロックキッチンでFF式の給湯が付いています。

≪ 既存1階 ≫
練馬区M様邸_施工前

1階にキッチン・お風呂・トイレ・リビングダイニング・和室があります。

≪ 既存1階 ≫
練馬区M様邸_施工前
≪ 既存階段 ≫
練馬区M様邸_施工前

2階に上がる階段はとても急勾配です。

≪ 既存2階 ≫
練馬区M様邸_施工前

2階洋室には北側斜線に掛る為天井に勾配が付いています。

≪ 既存2階 ≫
練馬区M様邸_施工前

リフォーム後は2階が主に生活空間になります。

≪ 既存2階 ≫
練馬区M様邸_施工前
≪ 既存2階 ≫
練馬区M様邸_施工前

2 着工

2-1 解体

練馬区谷原M様邸

解体作業をさせて頂いております。M様邸は1階半分がガレージになるので家の前面部分も極力広いスペースをガレージへ流れる様広い土間を取っていきます。

練馬区M様邸_解体

内部解体の前に家廻りの植栽を撤去していきます。

練馬区M様邸_解体
練馬区M様邸_解体
練馬区M様邸_解体

外回りの撤去だけでも廃材は多く出ます。

練馬区M様邸_解体
練馬区M様邸_解体

家の廻りの撤去が終わり内部解体を開始していきます。

練馬区M様邸_解体

M様邸は既存建物がもともと平屋で昔御神楽のリフォーム工事しているとお聞きしていました。解体をして構造をみると上に乗っけているのが良く解ります。

練馬区M様邸_解体
練馬区M様邸_解体
練馬区M様邸_解体

戸建てまるごとリフォームの場合、解体作業は全て手作業でおこなっていきます。

練馬区M様邸_解体
練馬区M様邸_解体
2-2 補強

練馬区M様邸、大工工事の作業をさせて頂いてます。

2-3 木工事
練馬区M様邸_木工事
練馬区M様邸_木工事
練馬区M様邸_木工事
練馬区M様邸_木工事
練馬区M様邸_木工事
練馬区M様邸_木工事
練馬区M様邸_木工事

大工工事と同時に大まかに配線作業もしていきます。

練馬区M様邸_木工事
2-4 耐震工事
2-5 断熱工事

下地の構造、断熱材が終わるとボードを貼っていきます。

練馬区M様邸_断熱工事
練馬区M様邸_断熱工事
練馬区M様邸_断熱工事
練馬区M様邸_断熱工事

ボードの作業が進んでくると工事もお返しになってきます。

2-6 外壁工事

今月末お引渡予定なので、大工工事はほぼ終了しました。外壁も出来上がってきています。

練馬区M様邸_外壁工事
練馬区M様邸_外壁工事
2-7 内装工事 

内装もボードまで仕上がりました。

練馬区M様邸_内装工事
練馬区M様邸_内装工事
練馬区M様邸_内装工事
練馬区M様邸_内装工事

M様邸はホームエレベーター設置させて頂きました。

練馬区M様邸_内装工事
練馬区M様邸_内装工事

M様邸は残り表装工事になります。

3 竣工

練馬区M様邸

9月末にお引渡しをさせて頂きました。

戸建てスケルトンリフォーム_竣工ベランダ
練馬区M様邸_竣工

お客様のご要望でした2階LDKに大きめのサンルーム

練馬区M様邸_竣工

1階は玄関とユーティリティールームとガレージです。

練馬区M様邸_竣工

2階LDKの対面キッチンです。

練馬区M様邸_竣工
練馬区M様邸_竣工

2階奥にはウォークインスペースです。

練馬区M様邸_竣工

ホームエレベーターです。

ハイウィルスタッフ

担当者より

K様は建築士の資格を持っていて現場に何度も足を運んで頂き、断熱や構造の下地などを大工・現場監督と共に確認して頂いた中で、断熱材の厚み等打合せをしながら進めさせて頂きました。かなり気密性の高い建物へ生まれ変わりました。その他、内装もショールムに足を運んで頂きまして有難うございました。

この事例と似たテーマカテゴリーを見る

全国のフルリフォーム・リノベーション『ピックアップ事例』※プロの詳細解説付きレポート

HEAT20-G2/耐震等級3
新耐震基準の性能向上リノベーション
築30年ハウスメーカー軽量鉄骨
断熱改修&リノベーション
 
中古住宅を新築以上の耐震性能と断熱性能へ!
耐震等級3フルリフォーム
地下付き木造2階建て
自然素材をつかった性能向上リノベーション&フルリフォーム

東京都文京区 K様邸

長屋を切り離して1つの構造体へフルリフォーム&リノベーション
隣家との距離がない!
部屋から外壁を張り替えるフルリノベーション
中古住宅を耐震等級3へ!
中古住宅リノベーション
 
基礎がない??
築60年の古屋をジャッキアップで基礎新設フルリノベーション

東京都渋谷区 O様邸

戸建てリノベーション・リフォームに関するお問合せはこちら

増改築.comの一戸建てリフォーム専用ホームページに
お越しいただき、誠に有難うございます。
 
増改築.comメンバーは技術集団となり、
他社のような営業マンがおりません。
技術者が直接ご相談にのり問題解決を行います。
 
従いまして、
お客様の方である程度のご要望が整理されました段階、
お悩みが工事内容のどのようなところにあるのか?
ご予算がどの程度絞る必要があるのか?
など明確になった段階でのご相談をお願いしております。
お問合せ・ご相談はお電話・メールにて受け付けております。
メールの場合は以下のフォームに必要事項をご記入の上、
「送信する」ボタンをクリックをお願いします。

代表稲葉高志

戸建てリノベーションの専属スタッフが担当致します。
一戸建て家のリフォームに関することを
お気軽にお問合せください

よくあるご質問
  • 他社に要望を伝えたところできないといわれたのですが・・・
  • 他社で予算オーバーとなってしまい要望が叶わないのですが・・・
  • サービスについて詳しく聞きたいのですが・・・

どのようなお悩みのご相談でも結構です。

あなたの大切なお住まいに関するご相談をお待ちしております。

営業マンはおりませんので、しつこい営業等も一切ございません。

設計会社(建築家様)・同業の建築会社様のご相談につきましては、プランと共にご指定のIw値及びUa値等の性能値の目安もお願い申し上げます。

2026年の大型補助金が確定したことで現在大変込み合っております。

耐震性能と断熱性能を向上させるフルリフォームには6か月~7か月の工期がかかります。

補助金獲得には年内に報告を挙げる必要があることから、お早目にご相談をお願いいたします。(6月着工までが目安

ご提案までに大変お時間がかかっております。ご了承のほどお願い申し上げます。

(5月までの着工枠が埋まりました)・・・2026/03/01更新

※すでにプランをお持ちのお施主様・設計資料をお持ちのお施主様は内容をフォームで送信後、フォーム下のメールアドレスに資料をお送りください。対応がスムーズです。

必須

(例:増改築太郎)

必須

(例:contact@high-will.co.jp)

(例:03-5615-2826)

必須

(例:東京都荒川区西日暮里2-35-1)

(例:築40年)

(例:25坪・100㎡など)

(例:2000万程度など)

  • ※再建築不可のリフォームでは金融機関が限られます。事前審査をお勧めいたします。

    (例:2024年3月くらいに完成希望など)

    必須

    できるだけ具体的にお知らせくださいませ。既存設計資料、リフォーム後のイメージ図等をお持ちであれば下記のメールアドレスより添付をお願いします。

    ※次の画面がでるまで、4~5秒かかりますので、
    続けて2回押さないようにお願いいたします。

    ※次の画面が出るまで、4〜5秒かかりますので、
    続けて2回押さないようにお願いいたします。

    図面や写真等を送信いただく場合、また入力がうまくいかない場合は、上記内容をご確認のうえ、下記メールアドレスまでご連絡ください。

    お電話でのお問合せはこちら

    0120-246-991

    営業時間:10:00~17:00(土日祝日を除く)

    ★YouTube「増改築.comチャンネル」チャンネル登録して新動画解説をいち早くGET!!★
    「増改築.comリノベ診断」であなたに一番ふさわしいフルリフォームを診断!!(動画解説付き)
    ★Facebookページにいいね!を押して最新コンテンツ情報をいち早くGET!!★
    パソコン|モバイル
    ページトップに戻る