このエントリーをはてなブックマークに追加

戸建てフルリフォームなら「増改築.com®」TOP施工事例都道府県で探す東京都練馬区>M様 本格風水リノベーション&フルリフォーム

プロの三元玄空風水師が家全体を風水設計した

本格風水フルリフォーム&フルリノベーション事例(実例)

 

M様は、お店を経営されており、お店の設計をプロの風水師に設計をされた経緯があり、今回ご自宅のフルリノベーションの計画も同様に店舗を設計提案された「楳山天心」先生にご相談されました。

本来、風水師が我々のような施工会社へ紹介をすることはレアなケースではあります。今回も当初は、大手不動産系のリフォーム会社への契約段階までお話が進んでおりましたが、風水的なプランが、施工会社では難易度が高い工事となること。また、屋根を解体して屋上バルコニーテラスを設置されたいご要望や、耐震等級を3で設計して欲しいという強いご要望もあったため、大手リフォーム会社では難しいと判断された経緯があり、M様が楳山先生へ「工事が出来る施工会社はいないか」という相談をされたそうです。

「増改築.com」運営会社のハイウィルの4代目代表が「楳山天心」先生の主催する「立命塾」で学んだ弟子(門下生)であったことから、

楳山天心先生より代表稲葉へ相談が入りました。本格的な中国風水の領域にはいるため、知識が全くないと、なぜこのような間取りになるのかが理解できない部分も多々あり、一般的な施工会社では難しいところもあります。

その点、弊社では風水師との共有もスムーズであるため、M様にも大変お喜びいただく事が出来た現場となりました。

建物概要
名前 M様
場所 東京都練馬区
築年数 築35年
構造種別 木造一戸建て
家族構成 大人2人 子供2人
対象面積 21.2坪
リフォーム部位 *******/*********************
工期 6ヶ月
価格 2200万(風水鑑定料別途)

お客様のご要望

今回のリフォームで、M様からのご要望は以下4の点です。

  • 風水プランに合わせてリフォームをしたい。
  • 屋上にテラスを造りたい。
  • 耐震性能を上げたい(耐震等級3
  • 基礎補強にしたい。

プランナー 北畠より ~プランニングのポイント~

M様のご両親ご所有の店舗兼アパートを今回お住まいとして、フルリノベーション。M様は風水を基にリフォームプランを検討されており、お会いした時には大まかなゾーニングが出来ておりましたので、一度プランを図面に起こし、かつ耐震等級3での構造計算も加味し、風水師の先生にチェックをして頂いて修正しながらご提案をさせて頂きました。

練馬区M様邸 戸建てリノベーション施工事例テーマカテゴリー

 

  • 耐震等級3相当(上部構造評点1.5以上)リフォーム(性能向上リノベーション)
  • 中古住宅+リフォーム
  • 屋根を屋上へリフォーム
  • 本格風水リノベーション
  • 内部スケルトンリフォーム

打ち合わせから着工、完成までの詳細施工事例紹介

1 着工前

1-1 現場調査・打合せ
戸建スケルトンリフォーム 既存

1FはM様のご両親が経営されていた美容室、二階はアパートとなっていました。

戸建スケルトンリフォーム 既存

西武池袋線「練馬」駅徒歩3分、道路付けも良く大変好立地なロケーションです。

本格的な風水リノベーションでは、着工日や入居日もすべて指定された日に施工になるため、工程が通常のリノベーションとは変わってきます。M様のケースも同様です。ご家族の居室の配置はもちろん、キッチンや水周りの配置や向きまで指定されます。外部からの映りとして、今回は玄関の扉の向きを変える「坐向変換」の工事がありますので、風水上は最大のポイントになります。また二階の屋根は解体し屋上バルコニーテラスとなりますので、構造の荷重計算が必須となります。

戸建スケルトンリフォーム 既存

数年間空き家であった2階のアパート

戸建スケルトンリフォーム 既存

敷地に入ると中庭があり古い小屋も残っていました。

2階はアパートとして使用されておりましたが、長く空き家となっている状態でした。今回は、内部スケルトンリフォームとなり、室内を躯体の状態まで解体、その後間取り変更、構造補強の流れとなります。

背後1階の店舗中央を階段が配置されており、二階のアパートが2世帯で分けられている間取りです。

戸建スケルトンリフォーム 既存

一階の中央に配置されていた階段。こちらは撤去となります。

戸建スケルトンリフォーム 既存

2階のアパート部分



1-2 東京都練馬区M様邸 戸建 本格風水リノベーションプラン

  間取りの変更プラン  

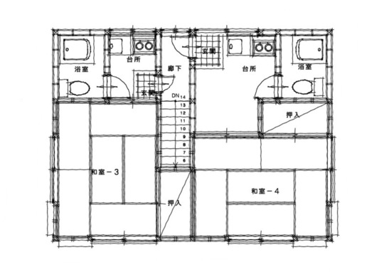
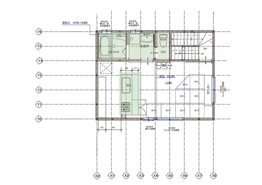
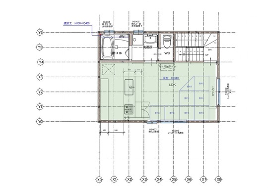
戸建スケルトンリフォーム 既存図面

1階 既存平面図(現況は店舗スペース)

戸建スケルトンリフォーム 既存図面

2階 既存平面図

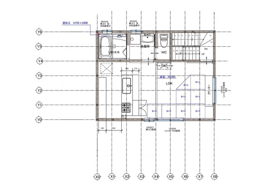
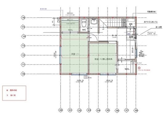
1階 新規平面図

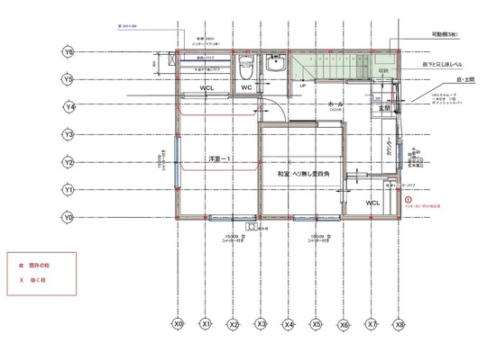
2階 新規平面図

 屋上庭園

2 風水師・楳山天心先生による風水レイアウト設計
(文章=楳山天心)

代表稲葉高志

楳山天心(うめやまてんしん) プロフィール

三元玄空風水師/化殺風水師/陰陽道運命鑑定師範 『三元玄術研究社日本分會』首席研究員/(社)国際・風水協会 副理事長/立命塾 塾長

東京水産大学(現東京海洋大学)環境工学科在学中より、「居住環境の運気」に関心を持ち、風水学や家相学の研究に取り組む。卒業後、陰陽道研究の第一人者で運命学の大家故遠藤尚里氏に師事して、四柱推命学、風水学、家相学、易学(周易、断易)、手相、人相、九星気学等を学び、遠藤氏が塾頭を務めた陰陽塾最後の免許皆伝者となる。多くの占術に精通しているが、特に、風水学に最も力を入れており、風水鑑定の実践経験と実績では、日本で右に出るものはいないと言われている。

現在、某中国大手家電メーカー等の風水顧問はじめ、風水鑑定件数は、ゆうに5,000件を越える。出張風水鑑定はもちろん、市民大学などの風水セミナーや、お台場や浅草での風水鑑定会などを積極的にこなしている。また、談氏三元玄空地理の第四代伝人である劉育才老師が顧問を務める『三元玄術研究社日本分會』の首席研究員として、日夜実践と実証、考究を積み重ね、風水学の真髄の探究に勤しむ傍ら、(社)国際・風水協会の副理事長として真の風水鑑定士育成、立命塾塾長として真の運命鑑定士育成にも努めている。

あわせて、執筆活動も行い風水の知識を体系的にまとめ分かりやすく伝える事に日々、熱意を持って取り組んでいる。

2-1 練馬区M様邸設計の経緯と風水的考察

7月に風水フルリノベーションにて竣工したM様邸を取り上げさせていただきます。
M様はかれこれ10年前からのお客様で、東京都内にて医療機器販売の店舗を経営されています。201012月に、2008年から店舗の売り上げが落ちてきたということで、風水鑑定のご依頼をいただき、出張鑑定させていただきました。

住居の良し悪しは「陽宅三要の玄関・寝室・コンロ」のあり方でほぼ決定する

住居の良し悪しを大きく左右するポイントは3つあり『陽宅三要門房灶(ようたくさんようもんぼうそう』と言われます。門は玄関、房は一般住宅なら寝室や子供部屋、店舗なら接客室やスタッフ室、灶はガスコンロやストーブを指します。三要の中で最も重要なのは、三要のうち最初の門、即ち玄関です。玄関こそ屋内の氣の分布を決定する場で、「氣口」と言います、M様の店舗(以降M店)の場合、この玄関には20年周期の第8運(2004年~2023年)現在、最も衰えている氣である七赤金星が進入していました。

 七赤金星には破軍という別名があります。第7運(1984年~2003年)は七赤金星が九星を司令する最旺の氣で、玄関に七赤金星が進入すれば、七赤金星の吉面である財運、金運が高まりますが、次の第8運に入ると失令して最も衰え、別名の破軍の持つ凶面である破財、盗難、トラブルなどの現象が出てきます。取り分けリーマンショックのあった2008年前後から、その現象が露わで、M店もはっきりと売り上げの数字に表れていました。

最高峰の風水工事「坐向変換工事」

この風水的対策は、玄関に第8運最旺の氣である八白土星が進入するようにすることですが、そのためには、玄関の向きを変える坐向変換工事を行います。この坐向変換工事は最高峰の風水工法で、今回のM邸においても行っております。ただ玄関向きを振ればよいというものではなく、玄空大卦擇日法による吉日時となる一刻(二時間)以内に工事を開始し、最旺の八白土星が進入する向きに定めなければなりません。M店の場合は、201138日巳刻(9時~11時)に、約10度玄関向きを振る工事を行いました。

 玄関向きを変えることにより、店舗内の氣の分布も変わる為、レイアウトはじめ応接テーブルの位置も変更アドバイスをしました。

 M様は几帳面な方で、毎月の来客数と売り上げを記録され、私にもご報告をいただいたのですが、月によって波はあるものの、工事前に比べて確実に伸びているとのことで、こうしたお客様の喜びこそ、風水師冥利に尽きます。この風水工事については、拙著「陽宅風水術実用大全(東洋書院)」にて詳述させていただいています。

店舗に引き続きご自宅リノベーションの依頼をいただく

そうした実績もあって、今回のご自宅リノベーションも、風水鑑定のご依頼を頂戴しました。ご依頼をいただいたのは20189月でした。「まだ施工会社が決まっていなければ、当方にリフォーム会社社長の弟子がいますので、ご紹介します。」とお伝えしましたが、すでに施工会社を大手不動産会社に決めておられました。

 施工会社がすでに決まっている場合は、現地調査をさせていただいた後、施主様と施工会社の担当者と私の三者ミーティングにて、風水鑑定に基づいたラフなレイアウト図面を作成します。

 その後施工会社に図面化してもらい、施主様のご希望を最優先としながら、動線上、そして風水上必要な修正を何度となく行い、ファイナル図面を完成させます。

 今回も9月初めに現地調査を行ってから、施主様、前大手不動産担当者との三者ミーティングを行いました。私が脱サラして本格的に風水鑑定を始めた20年前は、施工関係者との名刺交換の段階から、好意的でない雰囲気を感じることが多く、中には露骨に嫌な顔をされる場合もありました。しかし昨今は、ほとんどそうした嫌な思いをすることはなく、日本でもかなり風水が社会的に認知されてきたことを感じます。今回の担当者も、M様がとても風水を信じていることを理解されていることもあり、和やかに顔合わせをすることができました。

先ずは現地調査

出張風水鑑定の折には、最寄り駅から遠くない限り、徒歩で周囲環境を確認しながら、約束時間の30分くらい前には着くようにしていますが、すでにM様は待っておられました。しばらくして施工会社の担当者も来られ、挨拶をしてから、M様に先導いただき、先ずは建物周辺を、次に屋内一階、そして二階へと現況の確認をしました。

 1985年にM様のご両親が、一階は店舗、二階二室はアパートの賃貸物件として新築し、すでに借主は退去されていました。

 現状における一階の玄関は東面にありました。通常は45度単位の八方位を基準としますが、八方位では東向きでした。しかし本格的な中国風水では、八方位を三等分した15度単位の二十四方位で細かく鑑定します。羅盤にて測定すると二十四方位では辛うじて乙向きでした。

 この物件は東南の角地にあるため、玄関の設置は東面と南面の二通りが可能です。玄関は、前方が開けているほうが生氣を呼び込みやすく吉です。南面は幅2m道路で人と二輪車しか通れず開けていません。また南面は標識のポールと電信柱を直立させるための斜めの支線があり、玄関面としては見栄えも悪いです。一方東面は4m道路で、さらに遊歩道もあり、南面より開かれていて見栄えも良いです。

 よって、現況と同じく、東面に玄関を設けることとしました。ただし、風水的にクリアしなければならない重要課題があります。それは前述したように、乙向きでもかなり二十四方位の辰との境界線に近く、木造と言えども、基礎部分には帯磁する鋼材が使用されていますし、電磁場を生じる電気配線によっても、玄関付近の磁場が変化し、玄関向きが二十四方位の乙と辰の境界線に乗ってしまう可能性がありました。乙と辰の境界線は八方位の東と東南の境界線となり、もし境界線に乗る場合は「大空亡」と言って、屋内の氣の分布が定まらず、大変不安定となり、住人の財運、夫婦関係、親子関係、健康運を著しく悪化させることとなってしまいます。

現地調査後に施主様、施工会社担当者、私の三者ミーティングでラフな風水レイアウト図面作成

現地調査を40分ほどで終え、最寄り駅近くの駅ビル内にある喫茶店に場所を移して、施工会社が作成した図面をたたき台として、打ち合わせをしました。

 先ず風水師としてきっぱりと、玄関工事を行う際、私が立ち合い、羅盤測定させてもらいます。そしてもし境界線に近い(境界線から3度以内)場合は、数度玄関の向きを振って、はっきりと乙向きになるようにすることが必要です!」と提言致しました。施主のM様は店舗にてすでに経験済みでしたので、理解されているご様子でしたが、施工会社の担当者はそれを聞いて一瞬固まってしまったようで、しばしの沈黙がありました。「そうですか・・・、当社でそうした工事が可能か、持ち寄って前向きに検討します。」とのお返事でしたが、そうした要望は通常ありえないので無理もありませんが、風水設計においては、建物の建築年月と玄関向きにより決定する氣の分布図(正式には宅運盤または飛星チャートと言う)により、間取りを決定していくため、先ずはあいまいでない玄関向きであることが最重要なのです!

 その後、乙向きの宅運盤を基に、寝室、子供部屋、LD、水回り、階段などのラフなレイアウトを決め、それを基に施工会社に図面にしてもらうこととし、その日は解散致しました。

施工会社を『増改築.com』運営ハイウィル社に変更

しばらくしてM様から、「前に先生のお弟子さんで工務店の社長さんがいると言われていましたが、ご紹介いただけますか?」という電話をいただきました。聞くところによると、施工会社から当初の予算よりかなりオーバーしそうだと言われたそうです。それだけでなく、風水を最優先してのレイアウトがスムースに進まないようでした。

 そこで、ハイウィルの稲葉社長に連絡し、日時を決め、当日現地にてM様立ち合いのもと、私も帯同して現地調査を行いました。当日は社長のほか、部長も来られ、現地調査後、前と同じ喫茶店にて、三者ミーティングを行い、帰社後に見積書を作成してM様に提出することになりました。

 その結果、M様は先の施工会社との契約は解除し、ハイウィルに施工を移行することとなりました。違約金を払ってまでハイウィルを選んでいただいたわけですが、社長が風水をよく理解していることはもちろん、他社にない耐震工法の技術を持っているということが決め手だったようです。

★ラフ図面を元に基本設計図作成

 現地調査後の三者ミーティングにて作成したラフ図面を元に、ハイウィルが製図し、M様のご希望も反映した図面をメールに添付して楳山へ送信、楳山は風水の観点から修正内容を図面に書き込んで返信するというやり取りを数度行い、ようやく基本設計図が完成しました。

 

 それでは間取りごとに、風水の観点からひとつひとつ説明します。

宅運盤(氣の分布図)をもとにした風水設計

風水設計をするために絶対に必要なのが、氣の分布図である宅運盤(飛星チャートともいう)です。下図がM様邸の宅運盤ですが、

・建物完成の年月日

・建物の坐向(ざこう、玄関向きの反対が坐)

により決定します。

 

詳細は避けますが風水では、どちらも巨大惑星である木星と土星の20年ごとの会合(かいごう、太陽を中心に一直線上になること)を基準とした20年周期を重視します。20年をひとつの運として、一運から九運まで九つの運、計180年が大きな周期となりますが、つい最近の会合は2004年で、今は第八運にあり、2024年になると第九運に入り、2044年からは第一運に戻ります。そしてそれぞれの運期は、その数字に合わせた九星(一白水星、二黒土星、・・・八白土星、九紫火星)が最も旺盛となります。

 宅運盤は、建物完成年月がどの九運か、そして建物の坐向は何かで決定しますが、本格的風水では建物の坐向を八方位ではなく二十四方位にて定めるため、9(運)×24(方位)=216通りもあるのです。これだけでも、本格的な風水はいかに厳密かを感じていただけるでしょう。

 M様邸の場合は、216通りのうちのひとつ、第八運の辛坐乙向です。

宅運盤の数字は九星を意味し、九星には吉凶がある

九星には右表のように、吉凶があります。

なお、

1=一白水星 2=二黒土星 3=三碧木星 

4=四緑木星 5=五黄土星 6=六白金星

7=七赤金星 8=八白土星 9=九紫火星

です。

 右表の吉凶は、20年周期で何運かにより、吉も凶に、逆に凶も吉になることがありますが、第8運(2004年~2023年)はこの表のとおりです。特に8が最大吉で、2024年からの第9運では、9が最大吉となります。

 

 それでは各階の間取りごとに見てみましょう。

2-2 間取りごとの風水分析

1階

M様より、LDKを2階にしたいというご要望があったため、主寝室、子供部屋は1階に設けることとなりました。

(1)玄関 34 吉

先ずは最も重要な、氣口(きこう、氣の入り口)である玄関についてです。現地調査で前述しましたが、東と南東の八方位境界線にかなり近い乙向きでしたので、5度東側に玄関を振る坐向変換工事を行うことにしました。 

これにより、しっかりと建物向きを乙向き(辛坐乙向、「かのとざおつこう」と読む※)にすることができます。良い「氣」のことを「生氣」と呼ぶことからわかるように、氣は生きています。屋内の氣の分布図は、建物の向き、すなわち玄関の向きで決定しますが、向きがあいまいだと屋内の氣もあいまいとなり、大変不安定で、そこで暮らす住人の生活も不安定になります。玄関向きがはっきりと明確なら、屋内の氣の分布も明確となり、風水上、吉の氣は有効活用、凶の氣は避けたり抑制したりする風水対策を自信をもってご提案でき、住人の健康面、家族関係、経済基盤を高めることがきるのです。

 

風水住宅の設計をするうえで、最も重要なのが玄関で、吉の氣が進入するか否かで良し悪しの半分が決定すると言っても過言ではありません。M様邸の場合は、玄関に吉の4(四緑木星)が進入します。4(四緑木星)には、文筆、試験合格という意味があり、中高生のお子様がおられるM様には適しています。

(2)フリースペース 34

玄関の横にフリースペースを設けました。まだお子様が学生さんでしたので、サービスでカウンターを造り付け、当面は学習スペースとなる予定です。

 34の組み合わせは学力向上、試験合格の意味を持ちますが、34のスペースにするために、南東に収納部屋を設け、大凶の組み合わせである25をこの部屋に閉じ込めることにしました。もしこの部屋がないと、フリースペースは大凶の25になってしまいます。

 まさに氣は生きており、どのような間取りにするかで、各部屋やスペースに宿る氣エネルギーは全く変わってきてしまうのです。

 

 いかに長時間在所する部屋やスペースを吉にするか、そしてどうしても必ず生じてしまう凶の組み合わせを、収納部屋やトイレなどに閉じ込めるか、ここが風水師の腕の見せ所であり、風水の妙味なのです!

(3)洋室 88 大吉

1階の洋室は、坐星、向星とも第八運最大吉の8(八白)の組み合わせで、財運、健康運、人間関係運など運氣全般を高めてくれます。

(4)トイレ 52

屋内の氣の分布には、どうしても必ず2、5、7が絡む凶の組み合わせも生じます。こうした凶の組み合わせとなる場は、(2)で説明しましたように、人が長時間居ることのないトイレや収納部屋に閉じ込めてしまいます。

 

 M様邸の1階トイレも、そうしました。取り分けトイレは、排泄物と共に氣も流れる場所で、かえって凶の氣を流してくれるので凶中に吉を帯びる妙味があるのです。

(5)階段 79

1階と2階をつなぎ、上がり下がりする階段室は、上がり下がりする度に向星を刺激する為、向星が凶星にならないように配慮します。M邸の場合向星は吉星の9(九紫火星)ゆえ、問題ありません。

2階

(6)LDK 

ご家族が集まる一家団欒の場であるLDKも大事です。太極(家の中心)がLD、すなわちリビングかダイニングに来るのを吉とし、一家の中心であるご主人を中心に、家族が和合しやすい環境となりますが、M邸はこの条件を満たしています。

 また坐星と向星も吉であるのを良しとしますが、61の吉星の組み合わせで、絶えず笑いがあふれる食卓と居間になるでしょう。

 部屋の出入り口の向星も吉星であることが望ましいのですが、さらに階段からの入り口の向星も吉星の9(九紫火星)です。吉星であると、部屋の出入り口を通るたびに、吉運をいただくことができます。

(7)キッチン 

キッチンは、飲食物を作る場ゆえ、おろそかにできません。最も重要なのは、陽宅三要のひとつで、火を扱うコンロです。このコンロの位置である坐星、コンロの前に立つ人が受ける向星とも、吉星であることを必要とします。

 よくよく図をごらんいただきたいのですが、システムキッチンのコンロ側は壁から15cmほど離しました。もし壁に付くペニンシュラ型ですと、坐星が6向星が8となります。どちらも吉星なのですが、6は六白金星で、火により火剋金と剋され、例えると金が火により溶かされてしまうのです。6には主人、頭などの意味があり、このままではご主人の運氣を大きく損なうこととなります。特に頭の病、認知症や禿などになりやすいとされ、凶です。

 

 そこで壁から15cm離し、アイランド型にしました。これによりコンロの坐星は4(四緑木星)、向星は8(八白土星)の大吉の組み合わせになりました。特に向星は第八運最旺で、火生土と生じてくれて、財運金運を高めてくれるでしょう。

※なお、15㎝空けた隙間には、15㎝幅のスリムワゴンを挿入することも可能です。

風水リフォーム後キッチン

(8)洗面室、トイレ 52

1階のトイレで説明しましたが、排泄物とともに凶の氣も流してくれるトイレは52の組み合わせも、かえって吉です。

 洗面室も52ですが、長時間滞在する場ではないですし、やはり流し場でもあるため、問題ありません。

(9)浴室 97

一日の疲れと汚れを取り、リフレッシュする場である浴室も、ないがしろにできません。M邸の場合は97の組み合わせで、坐星は吉ですが、向星が7(七赤金星)で凶です。しかしバスタブにはお湯を貯めるため、金生水と七赤金星の凶意を鎮めてくれるので、問題ありません。

以上、風水師・楳山天心先生にご寄稿いただき練馬区M様邸の風水的考察を解説させていただきました。

風水レイアウトが決まるといよいよ工事開始です。

3 着工

3-1 足場・解体

解体は手壊し作業

練馬区練馬のM様の本格風水リノベーションでは、内部スケルトンリフォームとなります。解体は外壁を基本的には残す形で、室内を躯体状態まで手壊しにて解体していきます。

M様の現場は立地条件に恵まれており、道路付けもよく、超都心の再建築不可等の戸建てリノベーションを数多く手掛ける弊社にとっては、大変ありがたいロケーションとなりました。

練馬駅徒歩3分の好立地かつ道路付けが良く解体はスムーズに進行しました。

サッシ開口部分はカッターを入れ外壁解体を一部施工します。

解体通常は棟解体をしませんが、今回の本格風水リノベーションでは、屋上バルコニーテラスを新設することから、棟までの解体を行っております。

主要構造体のみが残り、外壁はサッシ部分のみくり抜かれている状態。通常との違いは屋上設置の為、屋根が解体されていることです。

内部スケルトンリフォームのポイントはいかに窓移設を少なくするか

外壁までを剥離解体する「内外部スケルトンリフォーム」と、内部だけを躯体残しにする「内部スケルトンリフォーム」では、やはり費用が変わってきます。それは、外壁の手壊しによる剥離費用とその廃材の処分費用、さらには、外壁の補強費用がかかるからです。しかし、「内部スケルトンリフォーム」を選択したケースであっても注意したいのは、プランニングの段階で間取り変更をした際に、窓の移動をどれだけ少なくできるかということです。窓サッシは、スケルトンリフォームされるお施主様の半数以上が断熱サッシへ変更をされます。そのサッシの設置位置が現在のサッシの位置と大幅に変わってくるようなプランになってしまうと、大幅に費用が変わってきてしまいます。どういうことかと言いますと、既存のサッシを解体し、サッシを新たに新設するサッシ交換工事と、既存のサッシを解体し、新たな窓の位置が変わる場合、既存の解体したサッシ部分へは、窓の設置がなくなりますので、外壁の補修が必要になります。さらにサッシを新設をする位置へは新たな外壁解体が必要になるからです。つまり、補修と解体が移動した箇所だけ増えるということです。わかりやすくいうならば、解体した旧サッシ部分と新たなサッシを設置するための解体で外壁が虫食い状態に穴だらけになるような状態となるわけです。その為、サッシの移動が多くなるようなプランのケースでは、内外部スケルトンリフォームで提案するケースもあります。どちらのリフォームも間取り変更ができますが、コストを検討する際には、重要なポイントとなってきます。

3-2 基礎

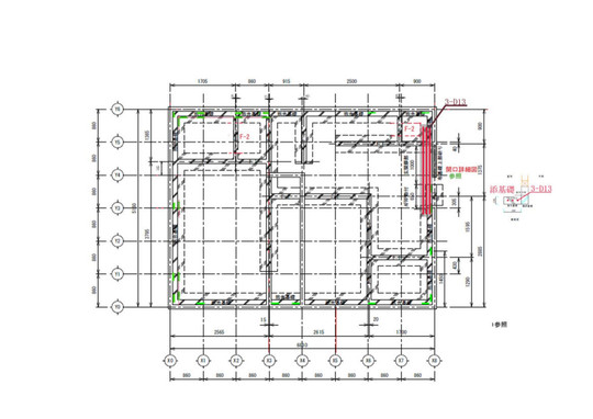
東京都練馬区練馬のM様邸の基礎は、抱き基礎(抱え基礎・添え基礎)を採用しました。

耐震等級3の構造設計を行う場合は、旧耐震の基礎は、基礎補強が必ず必要になります。M様邸は、旧耐震基準の建物になるため。基礎は布基礎の無筋となっておりますので、鉄筋コンクリート基礎による基礎補強が必要になるのです。

多くのリフォーム会社はこの基礎補強をしません。理由は費用が原価ベースで高くなることと、正しい基礎補強のガイドラインを知らないことが挙げられますが、旧耐震基準の建物を耐震等級3水準まで性能向上する際は、基礎補強が100%必要だと言っても過言ではないでしょう。

基礎補強なくして、耐震等級3の性能は担保出来ないのです。

現場にて既存の基礎に対して300㎜のベースを作り配筋する指示をします。

M様邸は配筋の方法を基礎伏図で指示します。

立ち上がり基礎へは千鳥状に配筋をしていきます。D13を200mm間隔で配筋していきます。

既存基礎への差し筋はエポキシ樹脂を注入してしっかりと緊結します。

ハンマードリルで等間隔に孔を開けしっかりと孔を清掃後、エポ注入。

新規に間仕切り壁となる壁、土台の下には新たな布基礎が制作されます。立ち上がり基礎への縦筋

添え基礎となる範囲へは、ベース基礎幅300㎜となります。

コンクリート打設時には、特許工法となるアラミド繊維を事前に埋め込みのちの工程で耐力壁と緊結ウニ備えます。

建物全体の許容応力度計算を実施後に、基礎補強の配置計画が立てられます。

既存は布基礎に店舗のため土間コンクリートが引かれていました。添え基礎補強部はハツリ工事をしてベース基礎と立ち上がり基礎を制作しています。

耐力壁と基礎とほ繋ぐホールダウン金物ですがここではホールダウン金物の3倍の引っ張り力に耐えるアラミド繊維で緊結に備えます。

抱き基礎(抱え基礎・添え基礎)補強が完成しました。

M様邸は、本格的な風水リノベーションとなります。玄関の向きを羅盤で測定し、ご家族にとっての最適な方位を決定する「坐向変換」工事がありました。その為、玄関の向きが数度変わることを把握し、構造計算を行いました。羅盤測定時には、鉄の補強材を使用すると針が乱れてしまうことから、基礎配筋のみ鉄筋を使用したものの、構造材の補強については、鉄製の補強ではなく、ステンレス製の補強材で統一しました。

ベタ基礎って?

布基礎が立ち上がりとフーチングで持たせる基礎に対して、ベタ基礎は、立上りだけでなく、底板一面も耐圧盤を設け、立ち上がりと底面が一体化された鉄筋コンクリートになっている基礎をいいます。

建物の荷重を底板全体の面で受け止めるため、ベタ基礎は不同沈下を起こさない。といわれますが、それは良好な地盤での話です。

基礎の下の地盤面の地耐力が均一でない場合は、不同沈下が起こる可能性が充分あるのです。

耐震の世界では、重い瓦屋根は外して、軽いものに変えましょうと言われておりますが、それ自体は間違っていませんが、この理屈でいくと。屋根の瓦を外して、基礎はベタ基礎にしても、地盤に与える荷重は、瓦屋根以上の荷重がベタ基礎の荷重により地盤面にかかることになります。

地盤が軟弱な場合、布基礎を採用した方が有利な場合も出てきます。

戸建てフルリフォームやリノベーションで、基礎補強をする際は、このような知識のある会社に相談することが必要です。

3-3 屋上テラス

二階の解体された屋根は木造に最も相性の良い柔構造に対応した専用の金属防水工法を採用します。金属防水用の防水下地を製作していきます。

M様の戸建て風水リノベーションでは、斜線制限に基づき設計されており塔屋の高さや手すりの高さを制限の範囲で制作します。

M様邸の風水リノベーションは外壁を剥離しない、内部のみを躯体残しにする内部スケルトンリフォームになります。屋上ルーフバルコニーを制作する際は、構造計算で屋上荷重を計算し、その補強計画に基づき耐震補強を施工します。

斜線制限により屋上ではなく屋根となる範囲が出てきましたので、屋上下地と屋根下地を図面に基づき制作していきます。

一階の下屋だったスペースが全て屋上ルーフバルコニーテラスとなります。木造に最も相性の良い柔構造に対応した専用の金属防水工法を採用します。金属防水用の防水下地を製作していきます。

M様邸の風水戸建てフルリノベーションでは木造屋上ルーフバルコニーに斜線制限が入りました。ルーフバルコニー部は水勾配をしっかりとらなければなりません。その為、大工工事の防水下地が重要になります。

屋上バルコニー手すり設置部と屋根となる部分の下地

屋上ルーフバルコニーテラス水勾配を所定の勾配で造り排水の水路となる溝の制作を行います。

防水下地→金属防水までが完成しました。

M様の風水戸建てフルリノベーションの屋上ルーフバルコニーでは斜線制限に沿い塔屋を配置しました。

塔屋の屋根へはすぐさまルーフィング工事をおこない施工中の雨に備えます。

屋上ルーフバルコニーテラスの下地の水勾配に沿って金属の防水が施工されています。

立ち上がりに笠木を設置する工事が次工程となります。

立ち上がりはYKKのフェンスを採用。

仕上げのデッキ材は張り込まれました。木造2階屋の屋根を解体して屋上ルーフバルコニーが完成しました。

塔屋から屋上のロケーションは、立地が良いこともあり最高の眺めとなりました。M様にもお喜び頂けました。

3-4 木工事

基礎が終わり大工工事へと移行します。構造躯体の強度を担保するためのメイン工事となります。

内部解体、基礎補強が終わると、木構造の補強に入っていきます。まずは窓サッシが新規で設置される位置へ窓枠を制作していきます。

既存の窓解体と新規窓設置位置がずれる場合は内部スケルトンリフォームであっても写真のように外部を大胆に解体することとなります。

二階床下地組は強床構造とし24㎜の構造用合板を一階の梁に直接固定し水平荷重に対抗します。

窓サッシの窓台、窓マグサを制作

間取りが大幅に変わる為、多くの柱は新たな柱となります。

2階屋根は無くなり、ルーフバルコニーテラスとなるため、金属防水下地を木工事では施工します。

剛床工事後に金物補強をします。

二階は強床工法とし水平耐力を満たす施工で対応させていただきました。

戸建リフォーム 補強工事

羅盤測定時に磁石の針が乱れないよう、補強は鉄の金物ではなく壁倍率2.7倍のステンレスブレスを採用しました。



 

戸建リフォーム 補強工事

耐震等級3での耐力壁配置計画となっています。

戸建リフォーム 補強工事

間口3尺高さ9尺間口で壁倍率2.7倍のステンレスブレスを配置し、偏心率を考慮し必要箇所へは内部、外部に構造用合板を配置しバランスをとります。

戸建リフォーム 補強工事

既存の筋交いを構造計算の耐力に加算することなく、構造計画を立案しております。

戸建リフォーム 補強工事
戸建リフォーム 補強工事
戸建リフォーム 補強工事

練馬区練馬M様邸の風水リノベーションでは、布基礎の新設部分が多いことから、新たに基礎配筋が施工されています。
耐震等級3での構造設計となっておりますので、耐力壁と基礎は緊結が必要になります。基礎補強の際に、添え基礎補強をした箇所へはアラミド繊維による緊結工法を採用、新たに布基礎が設置される箇所へはホールダウン金物を配置し、基礎との緊結をはかります。

3-5 断熱工事

練馬区練馬で施工された、本格風水設計に基づく戸建てリノベーションでの断熱材は、高性能グラスウールを採用。
 熱伝導率 0.038 W/(m・K)の製品を使用し外周面の断熱工事を施工しています。断熱等性能等級4で計画しております。

ハイウィルの断熱改修では、高性能グラスウールのほかに、自然素材での断熱改修をご要望されるお施主様へはセルロースファイバー充填での断熱も行っております。

戸建リフォーム 断熱工事

グラスウールの施工はある意味一番難しい工事かもしれません。それは隙間なく充填できなければそれはすべての断熱が無になってしまうといってもよい状況となってしまうからです。

戸建リフォーム 断熱工事

断熱及び防露性能を満たすために、断熱・防湿・気密層のラインは途切れることなく、連続性を保てるように施工する事が基本となります。

戸建リフォーム 断熱工事

壁と屋根となる部分の断熱性能は変わります。屋根はさらに断熱性能の高い仕様となります。

戸建リフォーム 断熱工事

一階の耐力壁となる部分は、ステンレスブレース補強に加え室内にも構造用合板を張っています。

戸建リフォーム 断熱工事

隙間なく充填されているかを塞ぐ前に入念にチェックをしていきます。

戸建リフォーム 断熱工事

土台から桁まで隙間なくあることで気流止めがいらなくなるのもスケルトンリフォームならでは。部分リフォームでの断熱改修は圧縮グラスウールなどでの気流止め処理が必須となります。

 

3-6 外壁工事
戸建リフォーム 外壁工事

K外壁を解体しない内部スケルトンリフォームとなります。一階部の外壁はサイディングが上張りされていたため、サイディング部のみ剥離を行いました。外壁の状態が悪くないことから、上張りが可能と判断しました。

戸建リフォーム 外壁工事

一階防水シートを全体に張り終えたら、金属サイディングの下地となる胴縁工事を施工していきます。

戸建リフォーム 外壁工事

天井外壁の状態が悪いと不陸が出てまっすぐに張れないといった問題が発生することがありますので、上張りをを選択される場合は外壁の状態を見極める事は重要になります。

戸建リフォーム 外壁工事

断熱材入りの横張りタイプの金属サイディングを採用。胴縁に固定して貼り付けていきます。

戸建リフォーム 外壁工事

メーカー商品の入れ替え時期が重なり、M様邸風水リノベーションでは最新の商品で施工させていただきました。

戸建リフォーム 外壁工事

天井窓周りは雨仕舞の最も弱点となる箇所となりますので、防水シート処理も入念に行いサイディング張り後にもしっかりと処理をしていきます。

戸建リフォーム 外壁工事

M様邸の本格風水リノベーションでは、外壁の色も風水師のアドバイスに基づき、色決めされております。

3-7 造作工事

構造部の構造補強が終わると、造作工事に入ります。

戸建スケルトンリフォーム 内装仕上げ

内壁ボード張りとクロスの下地工事

戸建スケルトンリフォーム 内装仕上 げ

二階のキッチンはわかりにくいのですが、実は隙間が空いているのです。ここが風水上のポイントとなっています。

戸建スケルトンリフォーム 内装仕上げ

パテ処理が完了しました。

戸建スケルトンリフォーム 内装仕上げ

壁紙の工事が入ると現場も一気に佳境に入っていきます。

戸建スケルトンリフォーム 内装仕上げ

内装工事が完了しました。

戸建スケルトンリフォーム 内装仕上げ

壁紙を張り終えたら、紙巻き器や照明機器、ハンガーパイプなどを設置していきます。

練馬区練馬の本格風水戸建てリノベーションでは、水周りや熱源機の位置、向き、どこの壁に接しているか、そして色見等をすべてご家族の鑑定からアドバイスを受けられ施工させていただきました。巷でいう風水の玄関は何色にした方が良いといった単純なものではなく、四柱推命等から導き出された命式も参照にアドバイスを受けられておりました。

4 竣工

約6か月の工事を経て、いよいよ竣工です。本格風水リノベーションで、どのような外観やデザインになったのかを見てみましょう。
築35年戸建住宅が屋上ルーフバルコニーテラス付きで耐震等級3に生まれ変わりました。


  =外観==  

戸建スケルトンリフォーム 竣工

玄関ドアは写真だと解り難いですが、風水上5度傾いて設置しています。

1階LDKと和室の掃き出しには、都心の佇まいの中でしっかりと採光が入ります。断熱性能の高いサッシを使用しております。

片流れ屋根の上には太陽光が設置されます。

掃き出し窓の上にあるFIX窓はロフトへも採光が届く様に設置ましました。


  == 1F  廊下・洗面==  

玄関脇に造りました収納です。中は階段勾配の下のスペースを利用しています。

▲ 洗面化粧台はLIXILオフトです。


  == 1F 和室・洋室 ==  

引違の扉の向こうは少し大きめのウォークインクローセットです。

駅の近くなので人通りがあるので1階の窓は全て腰窓です

和室は縁なしの畳を納めさせて頂きました。すっきりとした空間です。

Before

既存は和室がメインの造りでした。

壁は土壁で解体が通常より手間が掛かります。

 


  == 階 段 ==  

Before

既存階段はかなりの急階段でした。新規階段はゆったりめに造りご提案させて頂きました。


  == 2F LDK==  

キッチンは風水上、コンロ側を壁から150離しています。

ナスラックのシステムキッチンベルフラワー 2400サイズ

キッチンと同じシリーズで揃えました。ナスラック ベルフラワー


  == 1F 水まわり ==  

Before

既存キッチン

既存浴室

既存洗面室

既存トイレ

キッチン

ナスラック ベルフラワー

浴室

LIXIL アライズ

洗面室

LIXIL オフト

トイレ

ハイウィルオリジナルトイレ



  == ルーフバルコニーテラス ==  

Before

施工前普通の寄棟の屋根でした。

屋上テラス、床材をオプションのブラウンに致しました。

棟屋は北側斜線ギリギリの位置で設置しました。塔屋の斜線にかかる部部の手すりが既製品では巻き込みができないため、オーダーで制作を行い設置しております。

5 担当者より(ハイウィル株式会社・大谷)

M様は会社を経営されておられる経営者様で、数年前より社屋の間取り等を風水師の楳山天心先生に鑑定して頂き、工事も実際にされておられました。今回はご自宅のフルリノベーションとのことで、再度楳山先生へ風水鑑定を依頼しておられました。弊社にMさまからのご相談があったのは、M様が大手リフォーム会社でご契約寸前のところでの急遽のご相談となりました。風水提案を進める中で、大きな間取り変更はもちろん、玄関の向きを5度ほど変える「坐向変換」があったこと、屋上ルーフバルコニーの設置があったこと。さらには「耐震等級3」グレードでの耐震性能をご要望されたことから、相談されていた大手リフォーム会社では対応が不可能と判断されたそうです。幸いにも一階がご両親が営まれていた美容室であったため、内部がスケルトン状態であったことから、現場調査の段階で、間取りの整合性は取れました。これらの間取りから屋上バルコニーテラスの荷重を計算し、耐震補強をするわけですが、問題が全く無かったわけではありません。本格風水でのリノベーションから、羅盤測定をするお部屋周りの耐力壁の補強金物に鉄を使用できない(針が狂ってしまい鑑定が出来ない)ことからステンレス金物を使用しての補強計画となりました。現場での工事中の測定においても、足場が測定の邪魔になってしまうなど弊害が出てくることもあり、恐らくこのような風水リノベーションを理解できる施工会社でなければ工事は難しいのだと思います。弊社ハイウィルでは、4代目代表稲葉が、楳山先生のもとで、立命塾の卒業生で運命学全体(四柱推命・易学・風水)を学んだ弟子でもあった為、柔軟に対応が可能でした。早速ではないですが、M様の工事現場は、公開後メディアからも好評頂き、リフォームで屋上バルコニーを設置する工法について、お施主様とラジオ出演させていただくなど大変好評いただいた事例でもあります。

M様、この度はご依頼をいただき、誠にありがとうございました。

6 三元玄空風水師より(楳山天心)

風水設計で最も重要なのは、陽宅三要の玄関、ルーム(寝室と子供部屋とリビング)、コンロで、吉星の組み合わせとなるよう考慮します。しかし風水以上に重要なのは、人の氣すなわち住む方の気持ちで、動線が良く、住み心地の良いレイアウトでなくてはなりません。なまじ風水の知識があると、吉凶を優先して、とても動線の悪い、住む方の希望があまり反映されず、晴れやかな気持ちでお住まいになれなくなってしまっては本末転倒です。

 そこで当方では、先ず施主様はじめご家族様のご希望を最優先し、さらに動線も重視したうえで、陽宅三要を中心に生氣の宿る風水住宅となるよう、時間をかけて設計し、建築させていただいております。

 M様邸の場合は、玄関、寝室、子供部屋、リビング、コンロ全てを吉星とすることができ、生氣宿る風水住宅とすることができました。

 風水住宅を完成したら終わりではなく、ご入居する日時もとても大切で、専門的には擇日(たくじつ)と言いますが、施主様はじめご家族にとっての吉日時を調べ、吉日時にご入居されることをご提案させていただいております。

 M様ご家族も吉日時に無事ご入居いただきました。

 

 M様ご家族のご健勝を確信するとともに、祈願させていただきます。

全国のフルリフォーム・リノベーション『ピックアップ事例』※プロの詳細解説付きレポート

HEAT20-G2/耐震等級3
新耐震基準の性能向上リノベーション
築30年ハウスメーカー軽量鉄骨
断熱改修&リノベーション
 
中古住宅を新築以上の耐震性能と断熱性能へ!
耐震等級3フルリフォーム
地下付き木造2階建て
自然素材をつかった性能向上リノベーション&フルリフォーム

東京都文京区 K様邸

長屋を切り離して1つの構造体へフルリフォーム&リノベーション
隣家との距離がない!
部屋から外壁を張り替えるフルリノベーション
中古住宅を耐震等級3へ!
中古住宅リノベーション
 
基礎がない??
築60年の古屋をジャッキアップで基礎新設フルリノベーション

東京都渋谷区 O様邸

戸建てリノベーション・リフォームに関するお問合せはこちら

増改築.comの一戸建てリフォーム専用ホームページに
お越しいただき、誠に有難うございます。
 
増改築.comメンバーは技術集団となり、
他社のような営業マンがおりません。
技術者が直接ご相談にのり問題解決を行います。
 
従いまして、
お客様の方である程度のご要望が整理されました段階、
お悩みが工事内容のどのようなところにあるのか?
ご予算がどの程度絞る必要があるのか?
など明確になった段階でのご相談をお願いしております。
お問合せ・ご相談はお電話・メールにて受け付けております。
メールの場合は以下のフォームに必要事項をご記入の上、
「送信する」ボタンをクリックをお願いします。

代表稲葉高志

戸建てリノベーションの専属スタッフが担当致します。
一戸建て家のリフォームに関することを
お気軽にお問合せください

よくあるご質問
  • 他社に要望を伝えたところできないといわれたのですが・・・
  • 他社で予算オーバーとなってしまい要望が叶わないのですが・・・
  • サービスについて詳しく聞きたいのですが・・・

どのようなお悩みのご相談でも結構です。

あなたの大切なお住まいに関するご相談をお待ちしております。

営業マンはおりませんので、しつこい営業等も一切ございません。

設計会社(建築家様)・同業の建築会社様のご相談につきましては、プランと共にご指定のIw値及びUa値等の性能値の目安もお願い申し上げます。

2026年の大型補助金が確定したことで現在大変込み合っております。

耐震性能と断熱性能を向上させるフルリフォームには6か月~7か月の工期がかかります。

補助金獲得には年内に報告を挙げる必要があることから、お早目にご相談をお願いいたします。(6月着工までが目安

ご提案までに大変お時間がかかっております。ご了承のほどお願い申し上げます。

(5月までの着工枠が埋まりました)・・・2026/03/01更新

※すでにプランをお持ちのお施主様・設計資料をお持ちのお施主様は内容をフォームで送信後、フォーム下のメールアドレスに資料をお送りください。対応がスムーズです。

必須

(例:増改築太郎)

必須

(例:contact@high-will.co.jp)

(例:03-5615-2826)

必須

(例:東京都荒川区西日暮里2-35-1)

(例:築40年)

(例:25坪・100㎡など)

(例:2000万程度など)

  • ※再建築不可のリフォームでは金融機関が限られます。事前審査をお勧めいたします。

    (例:2024年3月くらいに完成希望など)

    必須

    できるだけ具体的にお知らせくださいませ。既存設計資料、リフォーム後のイメージ図等をお持ちであれば下記のメールアドレスより添付をお願いします。

    ※次の画面がでるまで、4~5秒かかりますので、
    続けて2回押さないようにお願いいたします。

    ※次の画面が出るまで、4〜5秒かかりますので、
    続けて2回押さないようにお願いいたします。

    図面や写真等を送信いただく場合、また入力がうまくいかない場合は、上記内容をご確認のうえ、下記メールアドレスまでご連絡ください。

    お電話でのお問合せはこちら

    0120-246-991

    営業時間:10:00~17:00(土日祝日を除く)

    ★YouTube「増改築.comチャンネル」チャンネル登録して新動画解説をいち早くGET!!★
    「増改築.comリノベ診断」であなたに一番ふさわしいフルリフォームを診断!!(動画解説付き)
    ★Facebookページにいいね!を押して最新コンテンツ情報をいち早くGET!!★
    パソコン|モバイル
    ページトップに戻る