戸建てフルリフォームなら「増改築.com®」TOP施工事例都道府県で探す東京都江東区> 二世帯住宅リフォーム(完全分離型)施工事例

 
東京都大田区 再建築不可

二世帯住宅リフォーム(部分共有型)+屋上ルーフバルコニー施工事例

大田区 戸建てリノベ 施工事例

 

大田区仲六郷での再建築不可の建物にお住いのO様の施工事例。町域内の雑色駅より徒歩圏内の建物です。雑色駅は六郷地域の拠点として、駅の東西両側に長く伸びた比較的大きな商店街があり、駅周辺は低層の建物が多いエリアです。O様からのご依頼は、

◆「子世帯夫婦」と「お母様+ワンちゃん」がお互い最低限のプライバシーは確保出来るような2世帯住宅を希望されておられました。

→玄関入りすぐ「2階(夫婦主寝室)への階段」と「廊下(母主寝室&シェア空間)側」へ別れるような間取りをイメージされておりました。

現状、建物にしっかりとした基礎がない事をご不安視されておられましたので、しっかりとした基礎補強が必要とアドバイスをさせていただきました。家外周4面の内、2面が隣家と近く、作業時十分なスペースが取れないため一部は裏打ち工法となりました。

二世帯リフォームをご希望とのことでプライバシーにも配慮しセルロースファイバーによる断熱材を充填し防音対策も。

◆部屋構成としてイメージされておられたのが、

・1階:母の主寝室+シェア空間(ゆくゆく子供部屋?)+ミニキッチンスペース(メインキッチンで作った料理を温め直すレベル)

・2階:私達夫婦の主寝室+LDK+ベランダ・屋上:BBQが出来るようなスペース

◆その他要望

・子供が小学生になる頃位には、子供部屋が必要になる事が予想される

・風呂、洗面所は1階を希望風呂については、現状「0.75坪タイプ」の為、最低限一回り大きい「1坪タイプ」を設置したい

・トイレは1階と2階1つずつの、合計2つ希望

・キッチンは設置スペースの都合がつけば、ビルトイン食洗機を設置したい

・母の主寝室は和室希望。また仏壇を置くスペースが欲しい

・玄関に「コート掛け」や「クローゼット」のような物があれば便利

・基本的にフローリング材、壁紙、天井材にはこだわらない風呂、トイレ、キッチンも現状メーカーにこだわり無し

 

このような具体的なご要望を頂きました。

 

建物概要
名前 O様
場所 東京都大田区
築年数

40築年

構造種別 木造一戸建て
家族構成 大人3人/子供1人/犬1匹
対象面積 22.5坪
リフォーム部位 基礎補強/間取変更/断熱サッシ取替/外壁リノベーション/セルロースファイバー/耐震等級3/外構/屋上庭園
工期 6ヶ月
価格

2300万(税別)※外構込

お客様のご要望

今回の東京都大田区O様二世帯住宅リフォームでのご要望は以下の6点です。

  • 基礎は補修ではなく基礎補強をして構造評点(Iw値)1.5を超える耐震改修
  • 外壁までを剥がすフルリノベーション工事
  • 基礎は補修ではなく補強をして欲しい
  • 断熱材はセルロースファイバーを採用したい
  • 屋根を解体して屋上ルーフバルコニーを設置したい。
  • 2世帯住宅の為、防音にも気を遣いたい
  • 外構もお願いしたい

Iw値とは?

1981年以前の旧耐震基準で建てられた木造家屋では、2000年の品確法で定められた『耐震等級』という耐震指標保有水平力、耐震等級によって耐震力を測れないため、Iw値という指標で耐震力を測ります。「Iw値=家の保有耐力/耐震のために必要な耐力」によって数値化されます。1.0をクリアすることで震度6強の地震に対して倒壊、または崩壊する可能性が低いとされており、国の耐震改修の最低基準値となっている指標であります。

プランナー 北畠より 
~二世帯住宅リフォームプランニングのポイント~

お母様が暮らしているご実家に、家族が増えた息子さんご夫婦との同居を機に部分共有型のリフォームのご要望を頂きました。1階が親世帯と共有の浴室/洗面スペースです。2階が子世帯スペースになります。

一番O様邸で大変だったのは、屋上に上がる階段位置でした。本来なら、1階から2階、2階から屋上の階段を同じ位置に出来れば居室スペースを少しでも多く確保できるのですが、1階から2階の階段位置から屋上に上がる階段を設置してしまうと、屋上棟屋が北側斜線に引っかかってしまい設置が出来なかったのです。弊社に何度も足を運んで頂き、今の位置に決める事が出来ました。1階から2階に上ったら直ぐに屋上の階段があるので、子世帯の空間を通らずに屋上に上がる事ができます。

都会ならではの、限られた空間に2世帯の生活空間をご提案出来て嬉しく思います。

 

大田区T様邸 戸建てリノベーション施工事例テーマカテゴリー

 

  • 耐震等級3相当(上部構造評点1.5以上)リフォーム(性能向上リノベーション)
  • HEAT20-G1リフォーム
  • 再建築不可リフォーム
  • 二世帯住宅リフォーム
  • 屋根を屋上リフォーム
  • セルロースファイバー仕様
  • 裏打ち工法
  • 内外部スケルトンリフォーム

打ち合わせから着工、完成までの詳細施工事例紹介

1 二世帯住宅リフォーム着工前

1-1 現場調査・打合せ
大田区 再建築不可 リフォーム

建物までのロケーション

大田区 再建築不可 リノベ

建物までのロケーション

再建築不可のため、接道条件を満たしておらず新築を予定したが断念されたO様。再建築不可のケースではGoogleマップでも対象が見つからないことが多く現地で路地を入り建物を見つけます。


大田区 再建築不可 リノベーション

既存外観

大田区 戸建てリノベ 既存玄関

1階玄関外観

大田区O様は二階の屋根を解体して屋上にしたいとご要望がありました。斜線のチェックが必要になります。外壁は既存の外壁に上張りをサイディングでされている状態でした。


既存1階

 

 

大田区O様の1階部分は、現在O様がおひとりでお住まい中でございました。

大田区 戸建てフルリフォーム 既存キッチン

既存LDK

大田区 戸建てフルリフォーム 既存和室

既存1階和室
 


築60年2階部

二階は一階の和室と違い、人が住んでいたこともあり、一階ほどの痛みはありませんでした。若干の傾きを体感レベルで把握できたことから、解体後にはジャッキアップによる補正、もしくは屋起こしが必要な旨をお伝えしました。

大田区 戸建てリノベーション 2階洋室

2階和室

大田区 戸建てリノベーション 既存洋室

2階既存和室です。


1-2 東京都大田区O様邸 二世帯住宅リフォームプラン

  間取りの変更プラン  

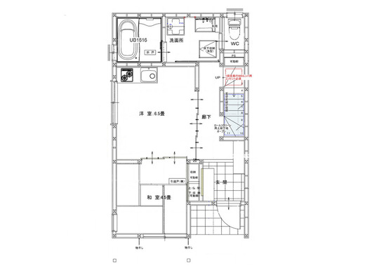
大田区 1階既存図面 木造戸建

1階 二世帯住宅リフォーム前の既存平面図

大田区 2階既存図面 木造戸建

2階 二世帯住宅リフォーム前の既存平面図

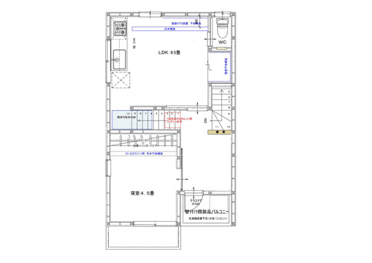
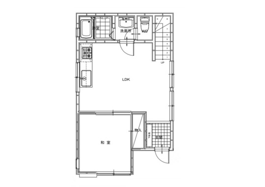
大田区 新規平面図 木造戸建

1階 二世帯住宅リフォームプラン平面図

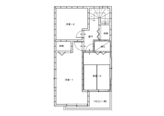
大田区 戸建フルリフォーム 新規2階図面

2階 二世帯住宅リフォームプラン平面図

江東区 フルリフォーム

屋上 二世帯住宅リフォームプラン平面図

江東区 戸建フルリフォーム

二世帯住宅リフォームプラン立面図

既存住宅は、ほとんど1階での生活動線で母様とわんちゃんで暮らされてました。

息子さんのご家族が増えご実家に戻られるのを機に、1階を親世帯・2階を子世帯の部分共有型の二世帯フルリフォームをされたいとご要望を頂きました。

2 二世帯住宅リフォーム着工

2-1 解体・撤去

解体は手壊し作業になります。O様の耐震補強計画では、上部構造評点(Iw値)を国の最低基準の1.5倍以上をご要望されておられました。内部だけでなく外壁までを解体する躯体残しのスケルトンリフォームとなります。1.5倍以上の数値を計画する場合は、基礎は鉄筋コンクリート基礎でなければなりません。築60年の建物は無筋基礎のため鉄筋コンクリート基礎補強が絶対条件となり、かつ内部からの補強だけにとどまらず、外部からの補強も必要となります。解体後は、非破壊段階での構造計算が、そのまま計画として成り立つのか、既存の状態と当てはめ入念に躯体チェックをしていきます

大田区 解体作業 戸建てリノベ

躯体の状態まで内壁から解体を進めます。

大田区 二世帯リノベ 解体

この段階では階段を残しておきます。

大田区 二世帯フルリフォーム 解体

この段階では間取り変更による柱を抜く箇所等の解体は進めず、あくまでも既存の構造体を躯体状態まですることを目的として解体を進めていきます。

大田区 二世帯戸建てリフォーム 解体

O様邸は二世帯住宅リフォームとなることから、大幅に間取りが変更されます。

大田区 戸建て二世帯 解体

完全分離型の2世帯住宅リフォームは、間取りが大きく変わるケースが多くO様も例外ではありません。基礎の位置も間取り変更に合わせて変えなくてはなりません。

大田区 戸建フルリフォーム 解体

解体時に既存の釘等までを処理することが次工程の木工事の際に工事が進めやすくなりますので、大工が作業しやすい環境を作るためにこのような処理も進めていきます。

大田区 二世帯リフォーム 解体

1階部の解体体が終了しました。一部基礎がないところもあります。

大田区 二世帯戸建フルリフォーム 解体

建物の調査を進め、解体前に行った構造計算等が、現状の構造躯体でそのまま補強が可能か否かの判断をしていきます。

大田区 二世帯フルリノベ 解体

基礎らしい基礎がなく束石で支えられている状況です。

大事な構造部のすべてが目視可能となるスケルトンリフォーム

内壁だけでなく外壁までを解体するフルスケルトンリフォームの最大のメリットはこのように重要な主要構造部のすべての状態が目視でわかることになります。フルリノベーション後は、これらの構造上の弱点をすべて修正し補強することで新築と同水準、もくしくはそれ以上の建物性能をもつ構造躯体へ甦らせることが可能となります。

2-2 基礎補強工事
大田区 基礎伏せ図 戸建てスケルトンリフォーム

基礎伏図

構造上のチェックが終わると、O様の二世帯住宅リフォーム(完全分離型)では、基礎補強工事へと移行していきます。

他社の提案では基礎は補修をすれば大丈夫との提案を頂いていたようですが、O様の建物は、築60年を経過した建物であり旧耐震基準の建物であることから基礎に鉄筋が入っていない「無筋基礎」になることから、弊社では立ち上がりを抱き合わせ基礎(添え基礎)補強かつベース部分も補強するベタ基礎補強にて提案させていただきました。

大田区 戸建てリノベ 基礎詳細

既存の布基礎に立ち上がり部を抱き合わせなければいけないので注意が必要です。

大田区 二世帯戸建リノベ 基礎詳細

アンカーサイズM12にて既存無筋コンクリートへ打ち太さD13の鉄筋をピッチ200㎜にて千鳥上に配筋していきます。

大田区 戸建てリノベ 基礎詳細

大田区 二世帯リノベ 基礎断面

ベース部分

大田区 二世帯フルリノベーション 基礎補強

基礎無筋基礎部分への配筋をおこないます。

大田区 基礎補強 二世帯リノベ

配筋工事が完了しました。

大田区 基礎配筋 二世帯リノベ

ベース部分にも配筋を施工

大田区 戸建てフルリフォーム 基礎補強

立ち上がり部分に補強を行わずにベース基礎のみで補強と言っている会社を見かけますが立ち上がりへの補強がないと補強にはなりませんので注意が必要です。

ベタ基礎って?

布基礎が立ち上がりとフーチングで持たせる基礎に対して、ベタ基礎は、立上りだけでなく、底板一面も耐圧盤を設け、立ち上がりと底面が一体化された鉄筋コンクリートになっている基礎をいいます。

建物の荷重を底板全体の面で受け止めるため、ベタ基礎は不同沈下を起こさない。といわれますが、それは良好な地盤での話です。

基礎の下の地盤面の地耐力が均一でない場合は、不同沈下が起こる可能性が充分あるのです。

耐震の世界では、重い瓦屋根は外して、軽いものに変えましょうと言われておりますが、それ自体は間違っていませんが、この理屈でいくと。屋根の瓦を外して、基礎はベタ基礎にしても、地盤に与える荷重は、瓦屋根以上の荷重がベタ基礎の荷重により地盤面にかかることになります。

地盤が軟弱な場合、布基礎を採用した方が有利な場合も出てきます。

戸建てフルリフォームやリノベーションで、基礎補強をする際は、このような知識のある会社に相談することが必要です。

2-3 木工事
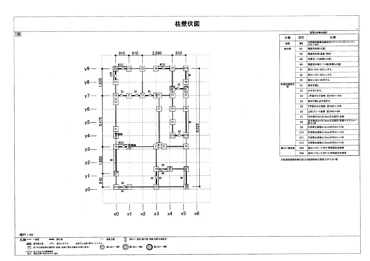
大田区 フルリノベ 1階柱壁伏図

1階 柱壁伏図

大田区 2階柱壁伏図 戸建
2階 柱壁伏図
大田区 1階床伏図 二世帯リノベ

1階 床伏図

大田区 小屋伏 戸建てリノベーション
2階床/1階小屋伏図 
大田区 2階小屋伏図 二世帯リノベ

2階 小屋伏図

大田区 二階母屋伏図 二世帯リノベ
2階 母屋伏図 

基礎補強工事が終わり大工工事へと移行します。構造躯体の強度を担保するためのメイン工事となります。この段階より間取り変更を想定した解体が始まります。いわゆる躯体の組み換えです。大田区O様邸の二世帯住宅リフォームでは大幅な間取り変更が必要となり、既存の端を抜き梁を架けたり補強個所が多く、大工工事の段階でこれらの解体を進めていきます。

大田区 大工工事 戸建てフルリフォーム

仮の筋交いで補強を入れながら、木工事をスタートしてきます。

大田区 戸建てリノベーション 構造

二階にも補強を入れながら仮筋交いを入れ倒壊を防止します。

ルーフバルコニー化する屋根も解体前に仮筋交いを入れ補強をいれます。

大田区 戸建リノベ 梁補強

尺梁を入れていきます。作業は2名で行います。

大田区 二世帯フルリノベーション 剛床

二階床は水平耐力を担保するために、剛床工法しました。
➡剛床の詳しい解説はこちら

大田区 構造用金物 二世帯リノベ

桁と梁を耐震金物で固定します。

大田区 戸建てリノベ 構造

2階の剛床が完了しているのがわかります。指示通りに金物補強を入れていきます。

大田区 梁補強 二世帯リノベ

スケルトンになった1階部。外壁を解体するまえに構造補強の中心となる部分については完了しました。

2-4 断熱工事

東京都大田区再建築不可というロケーションでのリノベーションですが、補強工程が終わると断熱改修へと移行します。断熱材は、セルロースファイバーを採用。
グラスウール断熱と比較し、吸音効果と調湿効果を望める素材となり、施工後にその快適性は体感できる断熱材です。

O様も、充填後には、中での作業音が外に漏れにくくなり、お施主様もビックリされておりました。

大田区 断熱工事 二世帯リノベ

1階LDK部へのセルロースファイバー断熱充填(壁への充填)

大田区 セルロースファイバー

一階天井へもセルロースファイバーを充填。

大田区 断熱 セルロースファイバー

手で触ってもパンパンに膨らんでいるのがわかるほど充填していきます。

大田区 断熱工事 セルロースファイバー

天井、壁の充填が完了しました。

二階天井は300㎜の充填を行い断熱層を設けました。

二階居室への充填

二階の天井、壁の充填が完了

外面に面する外周面が魔法瓶のように囲われるようにセルロースファイバーが充填されています。パンパンの状態です。

東京都 セルロースファイバー 断熱

1階の外周面の内壁面への充填が終わりました。

大田区 リフォーム セルロースファイバー

1階居室への充填

大田区 リノベーション セルロースファイバー

1階の天井、壁の充填が完了

セルロースファイバー 大田区

弊社では約70%のお施主様がセルロースファイバーを採用されております。

2-5 屋根工事

O様は屋根はベランダルーフバルコニーへとリフォームされたいご要望でしたので、斜線制限内でプランニングしております。

大田区 既存屋根 戸建スケルトンリフォーム

既存屋

大田区 スケルトンリフォーム 既存屋根

この状態から斜線を逃げてバルコニーを作ります

大田区 戸建リフォーム 屋上

屋上ルーフバルコニーの防水層は金属防水となりますので下地を補強しておきます。

大田区 二世帯リフォーム 屋上

金属防水下地が完了しました。

大田区 二世帯リフォーム 屋上庭園

屋上ルーフバルコニー部分への金属防水工事

大田区 スケルトンリフォーム 屋根工事

斜線がかかる屋根面はガルバリウム鋼板へ葺き替えします。

大田区 二世帯リフォーム 棟屋

あとはベランダの仕上げ工事のみです。

屋上庭園 東京 リフォーム

完了

2-6 外壁工事
大田区 戸建スケルトン 外壁工事

外壁面には、壁倍率2.5倍の構造用合板を全面に張っていきます。

東京都 二世帯リノベ 外壁

防湿と薄いシートを貼り通気胴縁を打っていきます。

大田区 戸建リノベーション サイディング

サイディングを貼っていきます。

大田区 外壁 戸建フルリフォーム

目地コーキングを打ち完了となります。

2-7 内装仕上げ工事

構造部の構造補強が終わると、造作工事に入ります。

大田区 内装仕上げ フルスケルトン
大田区 内装仕上げ フルリノベーション
 二世帯リノベ 内装仕上げ 大田区
二世帯リノベーション 内装仕上げ 東京
戸建てフルリフォーム 大田区 内装仕上げ
大田区 内装仕上 リフォーム

3 竣工

約6カ月の工事を経て、いよいよ竣工です。
O様邸の様子をご紹介します。


  =外観==  

大田区 戸建てリノベーション 外観竣工

外壁はサイディング仕上げ

外観竣工 戸建てフルリフォーム 大田区

屋上は新規に設置


  == 1F エントランス・玄関 ==  

大田区 戸建てリノベーション 玄関竣工

玄関収納はPanasonicベリティス

大田区 戸建てフルリフォーム 玄関

玄関は共有スペースになります。


  == 2F LDK ==  

メインのLDKは2階になります。

階段を上ってすぐにワンフロアでLDKを設置しました。

大田区 戸建てリノベーション キッチン竣工
大田区 戸建てフルリフォーム LDK竣工
大田区 二世帯フルリノベーション LDK
Before
大田区 戸建てリノベーション 既存台所

既存のLDKは1階にありました。

キッチンはブロックキッチンを使用されており、O様邸は天井高が1階2階とも2160と木造戸建てでは少し低めの設定です。出来る限り今回のリフォームで天井高を取れるように施工をさせて頂きました。(一部天井に梁が出来ます)


  == 階段 ==  

大田区 戸建てリノベーション 新規階段

 2階へ上がる階段です。1段目が開いているのはルンバの設置位置です。

Before
大田区 戸建てリノベーション 階段下空間

 1階から2階へ上がる階段裏は極力空間として利用

大田区 戸建てフルリフォーム 屋上階段

 2階から棟屋へ上る階段です。少し勾配があります。

 


  == 1F 洋室 ==  

大田区 戸建てリノベーション 親世帯キッチン

 1階親世帯のキッチンです。

大田区 戸建てフルリフォーム 竣工和室

 1階親世帯 和室です。

大田区 戸建てリノベーション 和室

 1階親世帯和室は既存も同じ位置にありました。


  == 水まわり ==  

Before

大田区 戸建てリノベーション 既存キッチン

既存キッチン

大田区 戸建てリノベーション 既存浴室

既存浴室

大田区 戸建てリノベーション 既存洗面

既存洗面室

大田区 戸建てリノベーション 既存トイレ

既存トイレ

大田区 戸建てリノベーション 2階LDKキッチン

 新規2階キッチンは トクラスBb2100mmです。

大田区 戸建てフルリフォーム 1階キッチン

 1階新規キッチンはトクラスBb1500mmです。

大田区 二世帯リノベーション 浴室

 1階ユニットバスはLIXILアライズ1616サイズです。

大田区 二世帯リフォーム トイレ

 1階トイレは再利用です。

江東区 戸建てリノベーション 洗面化粧台竣工

 1階洗面化粧台はLIXILピアラ750サイズです。


  == 2F 洋室 ==  

大田区 既存2階和室 フルリノベ
Before
大田区 戸建てリノベーション 既存洋室
大田区 戸建てリノベ 既存洋室
大田区 戸建てリノベーション 竣工クローゼット

二階子世帯 クローゼット扉は付けず天井に下地を入れカーテンやブラインドで納めます。

大田区 戸建てフルリフォーム 竣工洋室

二階子世帯 洋室

大田区 戸建てリノベーション 竣工ホール

二階子供世帯 ホールです。

大田区 戸建てフルリフォーム 竣工棟屋への階段

2階から棟屋への階段です。


4 担当者より(ハイウィル株式会社 取締役専務 稲葉悟)

限られたスペースでの二世帯リフォームのため、プラン段階でかなり苦労しました。その後、構造計画の中では基礎補強がマストとなりましたので、O様には基礎補強後に、外周面の壁補強をすることが前提でIw値1.5(国の耐震推奨基準は1.0)を超える計画を提出させていただきました。

また、O様のエリアは準防火エリアとなりますので、使用するサッシや玄関ドアはすべて防火タイプとさせていただきました。建物が仕上がる中で、何度も仕様に関する相談を随時対応させていただきました。大変お喜びいただきまして施工冥利につきます。

O様、この度はご依頼をいただき、誠にありがとうございました。

全国のフルリフォーム・リノベーション『ピックアップ事例』※プロの詳細解説付きレポート

HEAT20-G2/耐震等級3
新耐震基準の性能向上リノベーション
築30年ハウスメーカー軽量鉄骨
断熱改修&リノベーション
 
中古住宅を新築以上の耐震性能と断熱性能へ!
耐震等級3フルリフォーム
地下付き木造2階建て
自然素材をつかった性能向上リノベーション&フルリフォーム

東京都文京区 K様邸

長屋を切り離して1つの構造体へフルリフォーム&リノベーション
隣家との距離がない!
部屋から外壁を張り替えるフルリノベーション
中古住宅を耐震等級3へ!
中古住宅リノベーション
 
基礎がない??
築60年の古屋をジャッキアップで基礎新設フルリノベーション

東京都渋谷区 O様邸

戸建てリノベーション・リフォームに関するお問合せはこちら

増改築.comの一戸建てリフォーム専用ホームページに
お越しいただき、誠に有難うございます。
 
増改築.comメンバーは技術集団となり、
他社のような営業マンがおりません。
技術者が直接ご相談にのり問題解決を行います。
 
従いまして、
お客様の方である程度のご要望が整理されました段階、
お悩みが工事内容のどのようなところにあるのか?
ご予算がどの程度絞る必要があるのか?
など明確になった段階でのご相談をお願いしております。
お問合せ・ご相談はお電話・メールにて受け付けております。
メールの場合は以下のフォームに必要事項をご記入の上、
「送信する」ボタンをクリックをお願いします。

代表稲葉高志

戸建てリノベーションの専属スタッフが担当致します。
一戸建て家のリフォームに関することを
お気軽にお問合せください

よくあるご質問
  • 他社に要望を伝えたところできないといわれたのですが・・・
  • 他社で予算オーバーとなってしまい要望が叶わないのですが・・・
  • サービスについて詳しく聞きたいのですが・・・

どのようなお悩みのご相談でも結構です。

あなたの大切なお住まいに関するご相談をお待ちしております。

営業マンはおりませんので、しつこい営業等も一切ございません。

設計会社(建築家様)・同業の建築会社様のご相談につきましては、プランと共にご指定のIw値及びUa値等の性能値の目安もお願い申し上げます。

2026年の大型補助金が確定したことで現在大変込み合っております。

耐震性能と断熱性能を向上させるフルリフォームには6か月~7か月の工期がかかります。

補助金獲得には年内に報告を挙げる必要があることから、お早目にご相談をお願いいたします。(6月着工までが目安

ご提案までに大変お時間がかかっております。ご了承のほどお願い申し上げます。

(5月までの着工枠が埋まりました)・・・2026/03/01更新

※すでにプランをお持ちのお施主様・設計資料をお持ちのお施主様は内容をフォームで送信後、フォーム下のメールアドレスに資料をお送りください。対応がスムーズです。

必須

(例:増改築太郎)

必須

(例:contact@high-will.co.jp)

(例:03-5615-2826)

必須

(例:東京都荒川区西日暮里2-35-1)

(例:築40年)

(例:25坪・100㎡など)

(例:2000万程度など)

  • ※再建築不可のリフォームでは金融機関が限られます。事前審査をお勧めいたします。

    (例:2024年3月くらいに完成希望など)

    必須

    できるだけ具体的にお知らせくださいませ。既存設計資料、リフォーム後のイメージ図等をお持ちであれば下記のメールアドレスより添付をお願いします。

    ※次の画面がでるまで、4~5秒かかりますので、
    続けて2回押さないようにお願いいたします。

    ※次の画面が出るまで、4〜5秒かかりますので、
    続けて2回押さないようにお願いいたします。

    図面や写真等を送信いただく場合、また入力がうまくいかない場合は、上記内容をご確認のうえ、下記メールアドレスまでご連絡ください。

    お電話でのお問合せはこちら

    0120-246-991

    営業時間:10:00~17:00(土日祝日を除く)

    ★YouTube「増改築.comチャンネル」チャンネル登録して新動画解説をいち早くGET!!★
    「増改築.comリノベ診断」であなたに一番ふさわしいフルリフォームを診断!!(動画解説付き)
    ★Facebookページにいいね!を押して最新コンテンツ情報をいち早くGET!!★
    パソコン|モバイル
    ページトップに戻る