戸建フルリフォームなら「増改築.com®」TOP施工事例東京都品川区>H様 一戸建ての寮をスケルトンフルリフォーム

東京都品川区 H様邸一戸建て家の寮をスケルトンフルリフォーム

品川区H様邸_TOP
品川区H様邸_竣工
品川区H様邸_竣工
品川区H様邸_竣工
品川区H様邸_竣工
品川区H様邸_竣工
品川区H様邸_竣工
建物概要
名前 H様
場所 東京都品川区
築年数 築60年
構造種別 木造戸建
家族構成 大人7人
対象面積 29.5坪
工期 3ヶ月
価格 1411万

お客様のご要望

・制震ダンパーを使用して構造をしっかり。

・建物の前面はキレイにしたいのでサッシ・玄関扉は交換

・1階の間取りがごちゃごちゃしてるのでスッキリしたい。

・各居室にミニキッチンと収納を新設したい

・1階2階にシャワーブースとトイレを1箇所ずつ

・外壁塗装工事

・出来れば隣の部屋の音を緩和する様にして貰いたい。

プランニングのポイント

・既存外壁は剥がさないので、外壁の補修をした箇所が解り難いジョリパットでパターンを付けて塗装しました。

・防音に関してはボード・下地を二重張りし各間仕切りに断熱材を入れ境界壁を天井裏まで上げました。

・制振ダンパーの設置

・間取りの整理

品川区H様邸 戸建てリノベーション施工事例テーマカテゴリー

 

  • アパートリフォーム
  • 内部スケルトンリフォーム+サッシ交換

打合せから完成まで

1 着工前

1-1 打合せ

今回は、弊社の木造改築専属の監督の協力業者チームでもある防犯設備会社様からのご依頼。東京都品川区の防犯設備会社さまの寮の改築です。築60年の木造の建物で会社の寮(7世帯)の一軒家の寮のフルリフォームです。

 

一軒家の寮のフルリフォームのきっかけは、ちょこちょこリフォームしてお金を掛けても、根本的な補強ができなかったり、あまり変わり映えしないということで、きちっと制震構造を含めて、一軒家の寮のフルリフォームをしたいとのご依頼。

同じ建築業者でありますので、ご予算を始めにお伝え頂いておりましたので、H様には今回の一軒家の寮のフルリフォームに関して『ここだけは絶対はずせない優先順位』をヒヤリングさせて頂きまして、補強計画を含めた見積・プランをご提案させて頂きました。

 

築60年経過しておることと何度か簡易のリフォームをされているため、現地で採寸をし現状の間取りを押さえ、既存の状態での図面を作成し、提案後の図面も合わせて、提出させていただきました。このように、築年数が相当経過している建物での注意点として、改装程度であれば、あらかたの骨組が予想できますが、骨組を変えるような今回の一軒家の寮のフルリフォームのような場合、どのような仕掛けをして組まれたのが予想しかできない状態となり、内部を解体してみて初めて判明する欠陥などがあるケースがあります。新築当時の図面があれば、既存の間取りをみて、予想をすることはできますが、築60年以上もたつと、一軒家のフルリフォームも一階ではなく、数回にわたり施工されている場合もあります。

このような場合、あくまで、提案として、ご要望をまとめたプランを提出させていただくのですが、解体後スケルトン状態(躯体の状態)にした際に、そのプランがそのまま施工できるのか、できない部分がでてくるのか、などが判明します。

1-2 提案
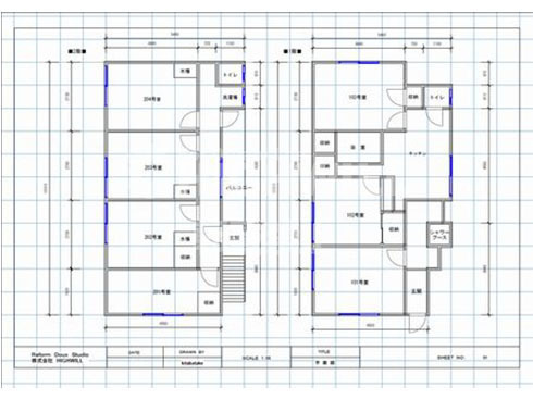
■ 既存図面 ■
品川区H様邸_既存平面図
■ 新規図面 ■
品川区H様邸_新規平面図
既存の一軒家の寮のフルリフォーム前の寮の外観
品川区H様邸_施工前

図面をみておわかりのように、奥に長い建物となっています。また寮とのことで、社員の方が生活される場所になりますが、実需での住まいではありません。会社の経費となる寮のフルリフォームのため、予算もございます。

非常にやりやすいのは、相手もプロであることですが、予算を明確に指定していただけるのは、施工する側にとっても要点を押さえたメリハリをつけた施工ができます。

我々のような技術会社にとって一番やりにくいのは、要望が統一されていない中でお客様が相見積もりをされる場合です。数社に相見積もりを依頼した際に、要望が統一されていない場合金額が変わってきてしまいますし、要望が統一されていた場合でも、どこまで工事を予測して積算しているかなどで価格が大幅に変わってきてしまいます。

初期で予測しかかる予算をあらかじめ見積もりで見ておくと当然高くなります。(現場調査の精度が高いほど初期の金額が高くなります)

現場調査の精度が低い営業マンや監督が積算すれば、初期では拾っていなかった工事が、ふたを開けてみたら追加になっていくということになります。

 

このあたり、今回のケースではお客様が建築業者であったことからここまでやると、このくらいはかかってしまうからここはやらないで、ここに費用を充てたいといった予算感と優先順位が明確であったため、打ち合わせの数は、一般のお客様よりもかなり少ない一軒家のフルリフォームとなりました。

H様の会社の寮は、前面は、見た目の問題でキレイにするのは最優先なのでサッシ(窓) 玄関扉は交換したい。前面を綺麗に見せる為に一面だけキレイに塗装するか何か貼るかして欲しい。という要望をいただいていました。

品川区H様邸_施工前

既存1階は何度もリフォームをしているので間取りがデコボコしてしまっているので、今回一軒家の寮のフルリフォームの際構造を再度見直し、間取りも整理されたものにして有効的に空間を使いたい。というご要望をいただきました。

品川区H様邸_施工前

長年、寮を維持していく中で、お風呂をいきなり新設したりと、間取りに、かなり無理のあるリフォームをされていたのがわかります。

品川区H様邸_施工前
品川区H様邸_施工前

2階は今と同じ部屋数を確保しながら、新たにシャワーブースとトイレを設置したい。という要望をいただきました。

品川区H様邸_施工前

2階ベランダは既存を残して、2階に住む寮のスタッフの方用の洗濯機置き場を新規で設置です。

品川区H様邸_施工前

築60年の為、壁は土壁となっています。土壁になると解体の際の処分費用があがります。通常のボードを解体以上に手間と残材量が通常の1.5倍程度は掛ります。

2 着工

2-1 解体
品川区H様邸_解体

築60年経過した品川区H様の一軒家の寮のフルリフォームの解体工事は木舞い壁(木舞で作った下地を漆喰で仕上げた壁)となっておりましたので残材(産業廃棄物)が築30年程度の建物よりかかってきます。予算との兼ね合いから、既存外壁とサッシは1部既存のままの一軒家の寮のフルリフォームです。もちろん手壊しによる解体となります。解体作業は、集中的に入り約7日間程の工程となりました。

品川区H様邸_解体

都心部の密集地では当たり前の光景になりますが、都心の改築で一番業者泣かせなのが、廃棄の際のトラック。本来であれば、解体時に、廃棄物をまとめて4トントラックなどを呼んで廃棄すれば効率が良いのですが、このように密集地域では4トンが入ることができません。2トントラックで何度もピストン輸送となります。2トンが入らないような場所は2トンショートのトラックのケースもあります。あおりを立てて立米数を大目に(違反にならないように)運んでもらいます。

品川区H様邸_解体

このように、小出しで解体作業をしては、搬出、また解体をしては搬出といった形で、何回か別けて産業廃棄物業者を依頼します。

品川区H様邸_解体

基本プランは内部フルスケルトンになります。

品川区H様邸_解体

何度か手を加えているため、この段階になると、どのように前回下地を組んでいたのかなどが判明してきます。

品川区H様邸_解体

あらかた解体できた段階で、一階の天井、2階の床下地を解体し、内部の躯体残し(フルスケルトン)の状態にします。

品川区H様邸_解体

2階の床下地を解体し、骨組(フルスケルトン)の状態になりました。

品川区H様邸_解体

解体時の最後の廃棄物を搬出します。あとは建築していく際に発生する発生材の処分をする際にまた呼ぶことになります。

品川区H様邸_解体

解体後は清掃をし、基礎工事(ここではベタ基礎)が着手出来る様に準備を同時に進めていきます。ハイウィルでは一軒家のフルリフォームの場合この段階で、お客様へ現場にきていただき再度、プラン通りに工事ができるのか?こちらが予測していた以外の状態がないかなどを一緒にチェックをしていただきます。

品川区H様邸_解体

何度か手を加えながら維持されてきた築60年経過の木造の寮が内部は躯体のみになりました。

品川区H様邸_解体

構造に問題がないかをチェックしていきます。

品川区H様邸_解体

野地板は痛んでいないか、雨漏りの跡があればどこから水が流れているのかなどすべてがわかります。

品川区H様邸_解体

何度か手を加えて間取り変更などをしている場合、1階と2階の柱や梁のかけ方なども図面と違っている箇所があったりします。このようなものがないかをチェックしていきます。もちろん劣化の度合いもわかります。

品川区H様邸_解体

今回一軒家の寮のフルリフォームでの解体において判明した致命的に構造が痛んでいた所は1階のシャワーブースがあった箇所です。土台も柱も下地はスカスカになっており、ほぼ構造体としての機能を果たしていない状況です。これらは、当然木工事の段階でやり直しとなります。

品川区H様邸_解体

かなり危ない状態であることがわかります。

品川区H様邸_解体

シャワーブースの前も水周りであったことがわかります。シャワーブースを設置した際に、下地をしっかりとやり直してやるべきなのですが、そのままの状態でユニットを設置されてしまっているのがわかります。

2-2 補強

手壊しによる解体が完了し、いよいよ基礎工事の工程に入っていきます。

品川区H様邸_基礎補強

鋤取りを終えたら基礎配筋です。フォールアンカー工法により既存の布基礎にアンカーを緊結します。

品川区H様邸_基礎補強

コンクリートを打設し、周囲の布基礎と底面のコンクリートを緊結させ荷重を面で対抗できるベタ基礎へと変更していきます。この段階で、新たな土台が設置されるところへはベタと一体化できるあらたな型枠で新しい布を作っていきます。

品川区H様邸_基礎補強

FLラインは既存の高さを守るため基礎の厚み分、嵩が上がってきます。

品川区H様邸_基礎補強
品川区H様邸_基礎補強

ベタ基礎をすると痛んでた土台がはっきりと解ります。柱は浮いてしまっています。基礎から上の土台、柱の腐食部分は次の工程の木工事で大工が全て組みなおす工程となります。

品川区H様邸_基礎補強

水周りの木部が一番怖いとよく聞かれると思いますが、この写真を見れば一目瞭然ですね。ユニットバスになって久しいですが、在来浴室のメンテナンスをまめにしていないと脱衣所と浴室の間仕切りの土台から腐っていきます。そこで放置していると柱へと腐食が進行していきます。

2-3 木工事
品川区H様邸_木工事

解体が終わり、品川区のH様の社員寮の、一軒家の寮のフルリフォームは、いよいよ木工事へと進行していきます。解体の際にも書きましたが、こちらの寮、材木を置くスペースが無いので、材木を現場の中へ搬入しての作業となります。

品川区H様邸_木工事
品川区H様邸_木工事

一階部の構造材は痛みが激しい箇所が多く、新築並に新規で入れ替える部分が多い現場となりました。

品川区H様邸_木工事

今回、品川区H様邸は寮なので、通常のユニットバスでは無く1階はLIXIL BQ-0817 のユニットタイプです。BQ-0817という商品は、実はかなり業者泣かせの商品でして、基本新築・ゼネコン物件用の商品になり、キュービックタイプの完成した状態で、搬入されてきます。そのため木工事開始と同時に、すぐに搬入をしておかないと、壁や柱が邪魔してはいりません。リフォームの際は、何につけても搬入経路はかなり重要となるのですがキュービックタイプのBQ-0817は写真のようなそのままの形で搬入をされるため。思いの外、納品に大変だった商品です。大工も総出で手伝っての搬入となりました。2階はシャワーユニットなので、納品はもう少し先になります。

品川区H様邸_木工事

あとは、養生をして傷がつかないように現場で保管します。

解体のところでも触れましたが、最も構造体の痛みの激しかった箇所はもともとの寮で仕様をしていた既存シャワーブース(在来)があった場所となります。幸いなことに、この構造体の上の2階部分がベランダだったため、居室となっていないことで、2階の荷重負荷が通常の状態よりも掛っていなかったため築年数はかなり古い建物にもかかわらず、傾いたりしていることはありませんでした。

品川区H様邸_木工事

地盤の影響もありますが、建物の形が長方形の層二階となっており出隅入隅が無く、バランスがとれてるという点も幸いしていました。ここを補強を兼ねて、新規で構造体を組み上げていきます。一軒家のフルリフォームではここが最も大事なところになってきます。

品川区H様邸_木工事

赤で囲っている箇所が問題のシャワーブースが設置されていた箇所。

品川区H様邸_木工事

腐って中がスカスカだった柱・土台は、今回の一軒家フルリフォームで全て新規に入れ替えました。

品川区H様邸_木工事

必要箇所に筋交いをいれ、構造用合板で補強します。

品川区H様邸_木工事

既存1階は、長年の間に、何回もリフォームをしてしまっていて構造の仕掛けが複雑になっていましたが、今回の一軒家の寮のフルリフォームにおいて再度フルスケルトン状態で、構造をスッキリ整えて、2階へと移動します。2階は既存間仕切りとそこまで変動する箇所がないレイアウトとなります。

品川区H様邸_木工事

構造材が足りない箇所がやはりありますので、これらを補い補強は加えていきます。

床・壁の下地が完成するタイミングでフローリング材と居室ドアの枠が納品されるように段取ります。

2-5 断熱工事
品川区H様邸_断熱工事

床はスタイロホーム 壁・天井はアクリアです。

品川区H様邸_断熱工事

品川区H様の一軒家の寮のフルリフォームでは、もう一つ重要なポイントがありました。これは寮ならでは問題でもあります。

それは夜勤などがあるなかで、さまざな時間帯で生活をするため、なるべく隣室の音が漏れない様にして欲しい。という要望がございました。

ただ、予算が有るのでその中で工夫をして頂きたいと予めご要望を頂いておりました。

 

遮音工事もさまざまなノウハウがありますが、専門的な遮音工事を施工する予算はありません。予め決められた予算内でどこまで遮音効果を高められるかになります。

そこで、大工と打合せをして

・ 各部屋の間仕切りを天井裏まで延ばして界壁を施工

・ 各部屋間仕切りに断熱材を充填する。

・ 各部屋間仕切りに断熱材を入れたら、ボードは2重貼りにする。

という施工法でいくことに決定させていただきました。

品川区H様邸_断熱工事

天井裏の音漏れを界壁を作ることで緩和する

品川区H様邸_断熱工事

遮音ボードや遮音シートなどを全面に貼る予算が他の工事でまわらない状況(寮の為、設備機器が多くなるため住設費用に予算がかかる)であったため、予算に対して、効果が高い方法となる断熱材とボード2重張り施工を提案

品川区H様邸_断熱工事

大工がボードを貼りだしたら、木工事は終わりが見えてきます。

品川区H様邸_断熱工事
品川区H様邸_断熱工事
品川区H様邸_断熱工事

木工事は仕上こそ簡単でありますが、やはり構造部分が一軒家のフルリフォームでは、最も重要な工事の主題になってきます。ボードを張る前の作業、ボートという蓋をしてしまうと見えない部分の仕掛けが最も重要になります。

 

構造材も新築ではないため、プレカットで納品されることは、お神楽でもない限りありませんので、基本は手刻みによる木組みとなります。そのため、大手で新築をしている専門の大工や、マンションなどで内装を中心とする軽鉄、ボード施工を中心とした内装大工では一戸建てスケルトンリフォームを請け負うことは難しいといえます。

 

継手と仕口を熟知した棟梁と呼ばれる大工。差し金を使って階段を設計し作れる大工でないと難しい工事であることがお分かりいただけると思います。ハウスメーカーのリフォームも我々のような下請けがすべて請負工事しております。水周りのリフォームや外壁塗装などさまざまなリフォームはありますが、構造に手を加える一軒家のフルリフォームに関しては、これらの経験が豊富な業者へ大切な住まいの相談をされることをお勧めいたします。

2-4 耐震工事

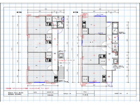
今回の品川区H様所有の社宅での一軒家の寮のフルリフォームでは、H様より現場調査の時点で建物が築年数が古く地震が心配なので躯体残しのフルスケルトンにした際、制震ダンパーを設置して欲しいとのご要望を頂いておりました。

品川区H様邸_耐震工事

制震ダンパーの補強計画の構造計算書が仕上がりH様邸は 1階に4基 2階2基 制震ダンパーを設置することが決まりました。

品川区H様邸_耐震工事
品川区H様邸_耐震工事

2階の2基中の1基の設置です。図面上【33】-【25】の部分です。

品川区H様邸_耐震工事

2階の2基中のもう一箇所の制震ダンパーです。図面上【9】-【13】の位置です。

品川区H様邸_耐震工事

図面上一階部分の4基中の一基です。【37】-【38】

品川区H様邸_耐震工事

おなじく1階の図面上【19】-【22】の設置例です。

品川区H様邸_耐震工事

1階の図面上【16】-【18】の設置です。

品川区H様邸_耐震工事

1階、4基目最後の設置です。図面上【3】-【4】です。こちらで制震装置を壁内に設置が可能となりました。このあとは内装工事へと移行していきます。

2-6 外壁工事

大工工事が終わり、外装工事と内装工事が同時に始まっていきます。

H様の一戸建て社宅(寮)の一軒家の寮のフルリフォームでは、通りに面した前面部の一面のみはイメージを替えたいと当初よりご要望を頂いてました。

ご要望に沿って前面1階・2階のサッシ・玄関扉は新規に交換するプランで進行しております。

サッシを新規に交換してしまうと既存の窓より大きめにカッターを入れて入れ替えるため、サッシ新規に交換し仕上げを塗装にすると、外壁塗装仕上とする場合、新規壁と既存壁との境目が解ってしまいます。H様は前面だけは道路に面しているので、極力境目を目立たない様にしたいとおっしゃっていたので、前面1面をジョリパッドによる左官仕上げ、他3面を塗装で仕上げさせて頂く提案をさせて頂きました。

品川区H様邸_外壁工事
品川区H様邸_外壁工事

新規窓の養生を行い、左官下地を施工していきます。

品川区H様邸_外壁工事
品川区H様邸_外壁工事

既存の霧除けが前面まで巻き込む施工をしておりましたので、板金巻いたうえに左官で納めていきます。

品川区H様邸_外壁工事

下地のシーラーを塗っていきます。

品川区H様邸_外壁工事
品川区H様邸_外壁工事
品川区H様邸_外壁工事
2-7 内装工事 
品川区H様邸_内装工事

室内では同時進行で、内装職人がパテで下地作業を進めていきます。部分リフォームとは違い、一軒家のフルリフォームなので下地のボードも全て新規なので新築の仕上がりとまったく同じです。

品川区H様邸_内装工事
品川区H様邸_内装工事
品川区H様邸_内装工事

下地処理が終わるとクロスが貼られていきます。

品川区H様邸_内装工事
品川区H様邸_内装工事

内装と外装に目途がたちました。

まもなく完了へ向けて追い込みです。

品川区H様邸_内装工事

品川区H様邸(寮)一軒家の寮のフルリフォームも終盤になってきました。外壁塗装が終われば足場撤去です。外壁の前面のジョリパッド打合せです。

品川区H様邸_内装工事
品川区H様邸_内装工事

まず色とパターンの確認をします。

品川区H様邸_内装工事

確認が終わると、3人体制で上から一気に施工していきます。1人目は、左官塗料を途中で切らさない様渡していく2人目は、渡された左官塗料を壁に左官塗装していく3人目は、左官塗装されたジョリパットに模様をコテで付けていく3人体制で施工しているのは、乾いてしまいつなぎ目が出来てしまうのを避けるためです。

品川区H様邸_内装工事

弊社の左官工事部隊3名チームで施工にあたりました。

品川区H様邸_内装工事
品川区H様邸_内装工事

休むことなく一気に上から3人で仕上いきます。

品川区H様邸_内装工事

3名中の1人がパターンをつけて降りてきます。

品川区H様邸_内装工事
品川区H様邸_内装工事

前面道路部分1面のジョリパッド仕上げ塗りは、3人体制で午前中に終了しました。

品川区H様邸_内装工事

その他の面はコストの関係から塗装で仕上げています。塗装も全体的に黒の仕上げにし段・手摺などはアクセントとして新規玄関扉に合わせて青の2色で仕上げました。

品川区H様邸_内装工事

ベランダ部分です。

3 竣工

品川区 H様寮の一軒家の寮のフルリフォーム

5月30日から着工をさせて頂きました一戸建ての社員寮の内部補強を兼ねた一軒家の寮のフルリフォーム工事現場も工期3ヶ月 8月31日にお引渡をさせて頂きました。

築50年の木造戸建て(寮)■ 既存外観 ■
品川区H様邸_施工前
■ 竣工後外観 ■
品川区H様邸_竣工
< 101号室 >
品川区H様邸_竣工
< 102号室 >
品川区H様邸_竣工
< 103号室 >
品川区H様邸_竣工
< 1階 浴室 >
品川区H様邸_竣工
< 1階トイレ >
品川区H様邸_竣工
< 1階洗面 >
品川区H様邸_竣工
< 1階洗濯パン >
品川区H様邸_竣工
< 2階 階段・下駄箱 >
品川区H様邸_竣工
品川区H様邸_竣工
品川区H様邸_竣工
< 2階 廊下 >
品川区H様邸_竣工
< 201号室 >
品川区H様邸_竣工
< 202号室 >
品川区H様邸_竣工
< 203号室 >
品川区H様邸_竣工
< 204号室 >
品川区H様邸_竣工
< 2階シャワーブース >
品川区H様邸_竣工
< 2階トイレ >
品川区H様邸_竣工
< 2階 洗濯パン >
品川区H様邸_竣工

社宅へ入られる社員の方々にも大変喜んでいただきました。

3 竣工

3-1 外壁 Before → After
品川区H様邸_施工前

サービス提供前

 

品川区H様邸_竣工
3-2 キッチン Before → After
品川区H様邸_施工前

サービス提供前

既存キッチンは共有スペースに1台あり、各お部屋小さな流しが付いていました。

施工後は各居室にミニ冷蔵庫付キッチンを設置致しました。

品川区H様邸_竣工
3-5 トイレ Before → After
品川区H様邸_施工前

サービス提供前

既存トイレは汽車便でした。新規トイレは洋式トイレです。紙巻器3つは住んでる方各自でトイレットペーパーを管理する為の物です。1階と2階にトイレは1台ずつです。

品川区H様邸_竣工
3-6 リビング Before → After
品川区H様邸_施工前

サービス提供前

 

品川区H様邸_竣工

担当者より

H様の会社の寮のスケルトンリフォームをさせて頂きました。H様は、ご予算とご要望が初訪から明確にお伝え頂けたのでプランご提案からご契約、着工、竣工まではとてもスピーディーでした。今回、寮という事で木造で出来るだけ予算内での防音を考えての納まりにさせていただきました。築60年の木造造りの家が、構造から見直し蘇りました。皆さんで大切に暮らして頂ければ幸いです。H様有難うございました。

この事例と似たテーマカテゴリーを見る

全国のフルリフォーム・リノベーション『ピックアップ事例』※プロの詳細解説付きレポート

HEAT20-G2/耐震等級3
新耐震基準の性能向上リノベーション
築30年ハウスメーカー軽量鉄骨
断熱改修&リノベーション
 
中古住宅を新築以上の耐震性能と断熱性能へ!
耐震等級3フルリフォーム
地下付き木造2階建て
自然素材をつかった性能向上リノベーション&フルリフォーム

東京都文京区 K様邸

長屋を切り離して1つの構造体へフルリフォーム&リノベーション
隣家との距離がない!
部屋から外壁を張り替えるフルリノベーション
中古住宅を耐震等級3へ!
中古住宅リノベーション
 
基礎がない??
築60年の古屋をジャッキアップで基礎新設フルリノベーション

東京都渋谷区 O様邸

戸建てリノベーション・リフォームに関するお問合せはこちら

増改築.comの一戸建てリフォーム専用ホームページに
お越しいただき、誠に有難うございます。
 
増改築.comメンバーは技術集団となり、
他社のような営業マンがおりません。
技術者が直接ご相談にのり問題解決を行います。
 
従いまして、
お客様の方である程度のご要望が整理されました段階、
お悩みが工事内容のどのようなところにあるのか?
ご予算がどの程度絞る必要があるのか?
など明確になった段階でのご相談をお願いしております。
お問合せ・ご相談はお電話・メールにて受け付けております。
メールの場合は以下のフォームに必要事項をご記入の上、
「送信する」ボタンをクリックをお願いします。

代表稲葉高志

戸建てリノベーションの専属スタッフが担当致します。
一戸建て家のリフォームに関することを
お気軽にお問合せください

よくあるご質問
  • 他社に要望を伝えたところできないといわれたのですが・・・
  • 他社で予算オーバーとなってしまい要望が叶わないのですが・・・
  • サービスについて詳しく聞きたいのですが・・・

どのようなお悩みのご相談でも結構です。

あなたの大切なお住まいに関するご相談をお待ちしております。

営業マンはおりませんので、しつこい営業等も一切ございません。

設計会社(建築家様)・同業の建築会社様のご相談につきましては、プランと共にご指定のIw値及びUa値等の性能値の目安もお願い申し上げます。

2026年の大型補助金が確定したことで現在大変込み合っております。

耐震性能と断熱性能を向上させるフルリフォームには6か月~7か月の工期がかかります。

補助金獲得には年内に報告を挙げる必要があることから、お早目にご相談をお願いいたします。(6月着工までが目安

ご提案までに大変お時間がかかっております。ご了承のほどお願い申し上げます。

(5月までの着工枠が埋まりました)・・・2026/03/01更新

※すでにプランをお持ちのお施主様・設計資料をお持ちのお施主様は内容をフォームで送信後、フォーム下のメールアドレスに資料をお送りください。対応がスムーズです。

必須

(例:増改築太郎)

必須

(例:contact@high-will.co.jp)

(例:03-5615-2826)

必須

(例:東京都荒川区西日暮里2-35-1)

(例:築40年)

(例:25坪・100㎡など)

(例:2000万程度など)

  • ※再建築不可のリフォームでは金融機関が限られます。事前審査をお勧めいたします。

    (例:2024年3月くらいに完成希望など)

    必須

    できるだけ具体的にお知らせくださいませ。既存設計資料、リフォーム後のイメージ図等をお持ちであれば下記のメールアドレスより添付をお願いします。

    ※次の画面がでるまで、4~5秒かかりますので、
    続けて2回押さないようにお願いいたします。

    ※次の画面が出るまで、4〜5秒かかりますので、
    続けて2回押さないようにお願いいたします。

    図面や写真等を送信いただく場合、また入力がうまくいかない場合は、上記内容をご確認のうえ、下記メールアドレスまでご連絡ください。

    お電話でのお問合せはこちら

    0120-246-991

    営業時間:10:00~17:00(土日祝日を除く)

    ★YouTube「増改築.comチャンネル」チャンネル登録して新動画解説をいち早くGET!!★
    「増改築.comリノベ診断」であなたに一番ふさわしいフルリフォームを診断!!(動画解説付き)
    ★Facebookページにいいね!を押して最新コンテンツ情報をいち早くGET!!★
    パソコン|モバイル
    ページトップに戻る