このエントリーをはてなブックマークに追加

戸建てフルリフォームなら「増改築.com®」TOP施工事例都道府県で探す東京都>品川区>M様 裏打ち工法のフルリフォーム&フルリノベーション

 
耐震等級3 裏打ち工法 減築

品川区M様 【耐震等級3相当】性能戸建てフルリフォーム&リノベーション事例

 

M様ご夫婦は、分譲マンションにお住まいでしたが奥様のご両親のご実家が空き家になっていたことから、ご実家をリノベーションして移り住み、現在のマンションを賃貸にするプランのお施主様です。弊社にご相談頂く前に、大手ハウスメーカー数社で、新築、リフォームでのご提案を受けておられました。すべての素材をご自身で決めたいという強いご要望があり、出来る事がどうしても限られてしまうことから弊社にご相談を頂きました。3か月間弊社プランナーとお打合せを重ね工事をスタートさせていただきました。弊社においても新築プランを提案させていただきましたが、費用コストの問題でリノベーションを採用致しました。工事中の仮住まいのご負担が無い事から、着工後の工事の中でゆっくりと仕様を決めていきたいご意向がありましたので、工程を調整しながら工事をさせていただきました。M様のご要望として、建物が若干傾きがあるため補正してほしい、ご両親がお住まいになられていた際に増築をしておりその増築部を減築したいとのご要望、築年数が50年経過しているため、基礎補強をして欲しい。新築プランで提案されていた「耐震等級3」性能をリフォームでクリアしたい。現状が湿気が多いため、夏涼しく、冬暖かい建物で快適に過ごしたいというご要望でした。

建物概要
名前 M様
場所 東京都品川区荏原
築年数 築50年
構造種別 木造一戸建て
家族構成 大人2人
対象面積 17.7坪
リフォーム部位 フルリノベーション/減築/耐震等級3/ロフト/外壁裏打ち工法/埋炭/ジャッキアップ/セルロースファイバー
工期 6ヶ月
価格 2700万

お客様のご要望

今回のリフォームで、M様からのご要望は以下の8点です。

  • 親世代が昔増築した箇所を減築したい。
  • 炭素埋設(炭埋・埋炭)をして、床下には敷炭をしたい
  • 耐震等級3へリフォームしたい。
  • 基礎補強したい。
  • 出来ればロフトを造りたい
  • 家の傾きを直したい
  • 断熱材はセルロースファイバーを入れたい
  • 足場が入らない外壁面の外壁も張り替えたい

プランナー 北畠より ~プランニングのポイント~

M様のご両親様が住まわれていた建物で、何年かは空家になっていた物件です。今回、スケルトンリフォームをしてM様ご夫婦お二人で住まわれる為、極力廊下を無くし1階・2階とも目一杯居室の空間にさせて頂きました。当初より、出来るならロフトを設置したいとご要望を頂いておりました。既存屋根の形状は変えないので、可能な範囲でロフトを造らさせて頂きました。2階の天井はロフトを設置するので屋根勾配形の天井で納めさせて頂いております。梁も、そのまま活かして塗装仕上げです。

 

 

品川区M様邸 戸建てリノベーション施工事例テーマカテゴリー

 

  • 耐震等級3相当(上部構造評点1.5以上)リフォーム(性能向上リノベーション)
  • 裏打ち工法
  • 減築リフォーム
  • セルロースファイバー仕様
  • 炭埋
  • 内部スケルトンリフォーム+サッシ交換

打ち合わせから着工、完成までの詳細施工事例紹介

1 着工前

1-1 現場調査・打合せ

1階は道路ギリギリまで増築してあります。

M様の奥様のご両親が50年前に建てられ玄関部分を増築しており、セットバックをしたいとご要望がありました。写真の2階から突き出している一階部分がその該当箇所となります。

 

増築箇所です。リフォーム後は無くなります。

玄関脇に設置されていた給湯器も増築部分となっており移設が必要になります。

私道に越境して増築をしてしまったため、測量を入れてどこまで減築しなければならないのかを決定する必要があります。解体後に測量士による測量をして、リノベーションとなります。セットバックをしたくない、セットバックをしてしまうと希望する間取りにならないのでリフォームを選択するというお施主様は多いのですが、越境をしている場合は、建築基準法第2条第15号の「大規模の模様替」においても是正が必要です。

減築部のライン上となる想定の玄関部分。玄関ドアを開けたポーチ部分が減築対象のラインと想定しプランを作成しました。M様邸の既存の建物は柱が多いのですが、リノベーションプランは柱の本数がリノベーション後に減る想定となるために構造計算で軸組補強の方法を検討する必要があります。

玄関ポーチ部は減築し私道へと復旧となります。

1階には浴室・脱衣室・トイレを配置し寝室のみとなります。


既存1階部分

寝室となる既存洋室

既存


既存2階部分

既存和室は洋間にリフォームされておりました。2階はロフトを制作し、間取りもリノベーション後に柱がないLDKとなるため、架ける梁の背などの計算が必要になります。

二階も一部減築になります。

2階の奥の1面は隣家との距離がなく、足場がはいりません。外壁は屋内から外壁を解体する裏打ち工法で外壁を新設します。


1-2 東京都品川区M様邸 戸建リノベーションプラン

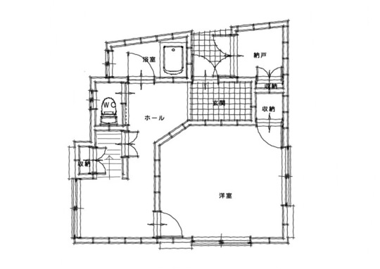
  間取りの変更プラン  

1階 既存平面図

2階 既存平面図

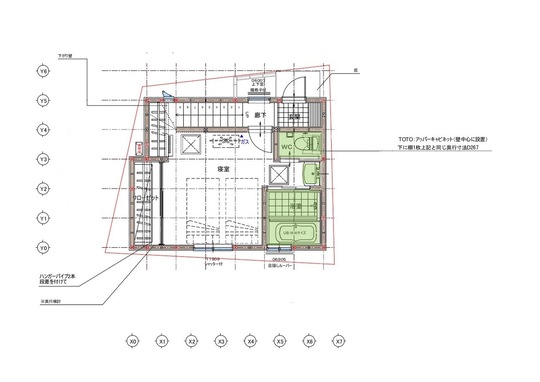
1階 新規平面図

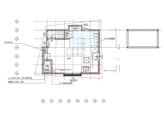
2階 新規平面図

既存建物は、昔ご両親様が増築をしており、私道を越境して建っていました。今回、リフォームをするに当たり増築した箇所は減築をしたプランでご提案をさせて頂きました。

2 着工

2-1 足場・解体

M様の戸建てフルリノベーションは、内部を躯体残しにする内部スケルトンリフォームがベースになっておりますので、内部を躯体状態まで解体していきますが、M様のケースでは、私道を越境して建てられた部分の減築がありましたので玄関部の切り離しから施工していきました。解体後に構造体のチェックを入念に行っていきますが、6センチ程度の傾きがあることが判明しました。また、M様の奥様の先代のご両親がコンクリートを打っておりましたが、無筋の状態であることから防湿目的で施工されたことがわかりました。

私道に越境して増築されてしまった玄関部分の切り離しから開始していきます。。

解体してレベル測定をすると建物の傾きが判明しました。基礎工事の前にジャッキアップによう傾き補正が必要になりました。

M様邸の外壁の仕上げは、ガルバリウム鋼板を上張りとなっておりますが、写真奥の外周面は、隣家との距離がなく内部から外壁を解体し、内部から外壁材を張る「裏打ち工法」となりました。

既存の躯体の傷み具合をチェックし次工程のジャッキアップに備えていきます。

主無の基礎周りは無筋基礎となっており添え基礎補強による基礎補強を提案させていただきました。

先代が土間コンクリートを打っておりましたが、配筋はされておりませんでしたので、添え基礎時には、ベース部分までカッターを入れ縁を切り配筋、差し筋をした上で基礎補強します。

解体の

主要すべての柱のレベルを調査し、傾きがどの程度かをチェックしていきます。

2-2 ジャッキアップ工事

躯体傾きレベルのチェック

解体後にレベルを計測したところ、建物傾きが判明しました。お施主様にも現場にてご確認いただき、ジャッキアップによる傾き補正を提案させていただきました。

すべての柱にレーザーを当て何㎜傾いているかを墨出ししていきます。

躯体をジャッキに架ける方法を選んだため、既存の構造体が抜けないように仕口等をチェックしていきます。

各ポイントごとにジャッキを当てていきます。

通し柱の傾きは桁に柱を固定しジャッキアップをしました。

サポートをかけながらジャッキを均等にいれていきます。

一人がジャッキを操作し、もう一人は柱をサポート、その他のメンバーは建物が上がる為、動きをチェックします。

基礎から上部の構造体が引き上げられるため、外部の土台基礎部分のモルタルに亀裂が入ります。

土台上から建物全体が浮き上がった状態となります。

ジャッキアップ後3.5寸角を仮で埋め木します

45㎜の土台を上げました

ジャッキアップには明確な施工法の規定がない

今回の建物は、地盤沈下ではなく、構造体の歪みから最大60㎜の傾きとなっていました。60㎜の傾きでは生活されていて気付かれる方はほぼおりません。解体後のレベル出しで判明します。またフルリフォームでのジャッキアップは土台上げ工法がほとんどですが、内部をスケルトン(躯体残し)にされている状態でジャッキアップを掛けるため、外部からではなく内部の構造体にジャッキを当て構造体ごと持ち上げる工法が多いです。土台が腐食していて土台にジャッキが入らないケースもあります。スケルトンリフォームでは内部が解体されているため荷重も通常の土台上げ工法よりかからないため上げやすいメリットがあります。床のない状態で施工できるため費用も通常の方法よりも安価にできることもその理由の一つになります。ただ土台上げ工法について明確な納まりを定めた法律や規定がなく、これらの工事は施工会社のノウハウや技術に頼られることになります。築50年を超える木造になりますと60㎜程度は傾いている建物は実際に建物を見てきて相当数あります。梁が垂れているケースが多いので、梁や桁を緊結しジャッキを当てて持ち上げる方法で提案をさせていただきました。

 

2-3 炭素埋設工事(炭埋)

スケルトンリフォームだからできる炭埋

炭素埋設法とは、読んで字の如く、炭(炭素質)を埋設し地磁場を好転させる方法という意味になります。その方法が、地面に穴をあけ、そこに人工マンガン電池(炭素質)をつくることで、その土地の磁場を改良するというものです。いわゆる天然乾電池作りなのです。

地面に穴を掘ることで、その周辺の電位構成に変化を与え、更に、炭素質(出来るだけ細かい粉末の方が効果が早いのですが)を埋設することで安定的な誘電効果を図るという方法です.電子が逃げていく酸化電圧の土地を炭を埋めることで、電子が逃げにくくし、電子が集まり還元作用が起こる土地に改良しようということですね。電子が集まるところの多くは地磁気も高く、マイナスイオンも多いのが一般的です。

方法として、直径1メートル深さ1メートルに炭素質を500ℓの炭を埋設するという大変シンプルなものです。

M様は先代が土間コンクリートを打設していましたので炭埋作業は土間のハツリからスタートします。

直径1.3m、深さ1.3mの穴を手掘りして、炭を500ℓ埋設します。

50ℓずつ炭を10回にわけていれていきます。この際、塩と水で踏み固めながら均していきます。

奥様も立ち会われ、作業の一部始終を録画されておられました。

新築の炭埋は水の支給が頂けないケースがありタンクが必要になることがありますが、リフォームのケースでは水道をお借りできるためスムーズです。

500ℓを埋設後は掘り起こした残土を埋め戻します。

増改築.comでは、スケルトン状態にするリフォームがメインのご相談となりますので、埋設炭素をご希望されるお施主様の施工をさせていただいております。ご自分でDIYされるお施主様へは、埋設用の炭の販売もさせて頂いております。

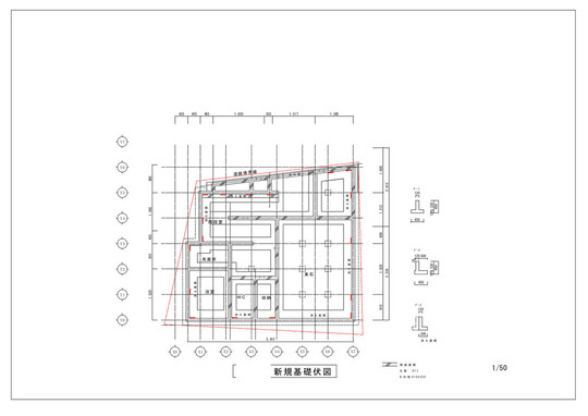
2-4 基礎補強(抱かせ基礎・添え基礎)

基礎伏図

M様邸は傾きの補正がありましたので、ジャッキアップで傾き補正後に、基礎補強工事となりました。M様は「耐震等級3」での耐震構造となりますので、構造計算を行い、基礎補強の計画を立案します。M様邸は抱かせ基礎(添え基礎・増し基礎)による基礎補強工事となります。

添え基礎補強をする既存布部分と新たな間仕切り壁には新たに布基礎を新設

増改築.comでは旧耐震の建物のフルリフォーム時には基礎補強は必須とさせていただいております。

添え基礎となる基礎部分も、新設基礎も主筋D13の配筋にあばら筋D10で200mm間隔で配筋していきます。

新設基礎のベースは450㎜

砕石外周の既存の布基礎へは内側からの添え基礎補強、間仕切り部へは布基礎を新設。

主筋はD13の鉄筋で配筋をおこないます。

今回のM様邸では特許工法を採用し基礎中にアラミド繊維を埋め込みます。土台との緊結に使用します。

配筋後にコンクリート打設します。

ジャッキアップして隙間があいている部分についてもこの時に型枠を裏張りしてコンクリートを打設します。

写真のように既存の基礎に対して抱かせる形で基礎補強が完了しました。ジャッキアップによる隙間も一体化されます。

ベタ基礎って?

布基礎が立ち上がりとフーチングで持たせる基礎に対して、ベタ基礎は、立上りだけでなく、底板一面も耐圧盤を設け、立ち上がりと底面が一体化された鉄筋コンクリートになっている基礎をいいます。

建物の荷重を底板全体の面で受け止めるため、ベタ基礎は不同沈下を起こさない。といわれますが、それは良好な地盤での話です。

基礎の下の地盤面の地耐力が均一でない場合は、不同沈下が起こる可能性が充分あるのです。

耐震の世界では、重い瓦屋根は外して、軽いものに変えましょうと言われておりますが、それ自体は間違っていませんが、この理屈でいくと。屋根の瓦を外して、基礎はベタ基礎にしても、地盤に与える荷重は、瓦屋根以上の荷重がベタ基礎の荷重により地盤面にかかることになります。

地盤が軟弱な場合、布基礎を採用した方が有利な場合も出てきます。

戸建てフルリフォームやリノベーションで、基礎補強をする際は、このような知識のある会社に相談することが必要です。

2-5 木工事

二階床・梁伏図

二階小屋伏図

基礎が終わり大工工事へと移行します。東京都品川区M様邸の戸建てリノベーションでは。旧耐震基準の建物を「耐震等級3」のグレードで構造計算をして補強計画を立てております。構造躯体の強度を担保するためのメイン工事となります。

構造図に基づき施工をしていきます。二階の床は強床仕様となり水平耐力を満たします。

既存躯体と新設する床梁を組む際には継手は刻み作業が必要になります。

大梁と床梁、床梁と構造用合板は金物でしっかりと緊結固定します。

ほぼ新しい木材での施工になってきますが、旧構造材への補強は、力が作用するのかを見極め細心の注意を払いながら補強をしていきます。

柱頭二階はLDKのみの大空間、かつロフト空間となる為、柱がほぼない空間となります。構造計算の上に軸組が決定します。

2階は平天井とロフト部分の勾配天井で天井の組み方が変わってきます。

屋根組と兼用して斜めにかけられた登り梁は 勾配天井にしたときに、梁を見せたくない場合などで採することが多い納め方のひとつです。

断熱材と構造計算上必須とされた耐力壁設置後の状態です。

2-6 高機能調湿床下敷炭配置

M様は湿気っぽい1階を何とかしたいとのご要望がお打合せ段階からございましたので、断熱材を調湿効果の高いセルロースファイバーを採用しました。さらに床下へは高機能床下調湿敷炭を配置しました。

鋤取高機能調湿床下敷炭は45cmサイズを隙間なく配置します。1階のユニットバス設置部以外にすべて配置しました。

敷炭を配置後、外気に面する1階床の断熱はMAG社の床トップ120を採用し隙間なく設置。

床下の湿気対策には、防湿シートを敷き込み、その上に敷炭を配置する提案をしております。ベタ基礎にして炭塗装をさせていただきその上から敷炭をすることもございます。

2-7 耐震補強工事(耐震等級3)

耐震等級3壁が少ない空間にもかかわらず耐震等級3グレードになるのは壁倍率が6.3倍だから

旧耐震基準の建物を新築での最高基準である「耐震等級3」グレードまで引き上げるためには、基礎補強は必須であるとお話ししました。しかしそれだけでは、M様のご希望する間取りでリノベーションをしてしまうと壁量計算をした際に耐力が不足し、耐震等級3での施工は難しい現実がありました。そこで基礎と土台と耐力壁を一体化することで壁倍率が6.3倍まで引き上げることができる特許工法を採用しました。

補強計画に基づき必要箇所には構造用合板を張り補強ガゼットを設置していきます。

二階の勾配天井での補強

添え基礎補強時に埋め込んだアラミド繊維を縦方向に使用し補強ガゼットと緊結します。

2アラミド繊維を縦方向に使用し補強ガゼットと緊結することで引っ張り耐力9kNに耐えるためホールダウン金物の倍以上の抜け対策になります。

基礎から耐力壁、配置計画によっては二階の耐力壁までを一体化させる工法です。

通し柱部分の耐力壁。基礎から土台、耐力壁まで一体化の計画となりました。

一階と二階の連結にはジョイントがあるため、基礎、土台、耐力壁が二階の桁まで一体化されました。

通し柱部分へのガゼット補強工事も2階までの通しでの補強緊結となりました。

2-8 断熱工事

品川区のM様の戸建てリノベーションでの断熱材は、セルロースファイバーを採用。
吸音効果と調湿効果の高い断熱材を使用したいとのご要望がありました為、新聞紙を原材料としたエコ素材でありながら「断熱」「防音」「防燃」「防虫」「防湿」の効果を併せ持つセルロースファイバーはまさに理想的な素材となりました。

M様邸の戸建てフルリノベーションでは断熱材はセルロースファイバーを採用しました。セルロースファイバー充填後は、耐震等級3での補強計画に基づき、必要箇所へは内壁に構造用合板張りの上、補強ガゼットでの補強となります。

土台から桁まで隙間なく充填するセルロースファイバーは、断熱工事を最も難しくする隙間の問題が発生しないため最高の断熱材と言えます。

2階は勾配天井となりますので屋根勾配に合わせてセルロースファイバー充填を行いました

ダクト周り、コンセント、スイッチ周りは先行して設置をしてからの充填となりますので電気配線計画などは先行して決定している必要があります。

断熱サッシ+セルロースファイバー充填後、現場での大工作業中にお施主様が来られましたが、「音がまったく聞こえなかった為、誰も居ないかと思いました」と言われました。

一階、二階の天井へのセルロースファイバー充填

2階外周面へのセルロースファイバー充填が終わりました。

充填後のチェック

2-9 外壁工事

品川区M様邸は、玄関側面の2面を上張りによるサイディング仕上げ、玄関より向かい奥面と手前面は外壁解体後に、サイディングを新設です。

玄関奥となる外壁面は足場が入らず、室内から外壁を解体し、部屋内からサイディングを施工する裏打ち工法での施工となりました。

側面の上張り施工

既存モルタルの上に防湿シートを張り通気胴縁を打ちサイディングを張っていきます。



 

裏打ち工法の奥以外の3面は、16㎜の窯業サイディングを張りました。

裏打ち工法部分は室内より外壁を解体します。この際接近している隣家へ外壁が飛散しないようシートで保護します。

裏打ち部分は450㎜ピッチで間柱を建て、金物を設置、内側より外壁を張っていきます。

一階、二階には一か所ずつ窓があり施工の難易度が上がりますが設置可能な離隔距離であったため設置が可能となりました。

裏打ち部のみサイディングが変わります。準耐火45分仕様

減築後の外観が完成しました。

3 竣工

工事竣工です。


  =外観==  

玄関には庇と袖壁を新たに設置しました。

屋根形状はそのままです。外壁の仕上げはサイディングです。


  == 1F  主寝室==  

1階主寝室の扉は鏡面仕上げの美しいナスラックの建具です。

▲ こちらはあえて扉を付けないオープン収納です。階段勾配下も極力空間にしました。


  == 2F LDK ==  

キッチンはタカラスタンダードレミュ L型

2階は廊下を造らず、ワンフロアLDKです。

階段上に可能な範囲で収納を設置致しました。上部がロフトになるので天井高が少し低くなっております。

2階LDK内に洗濯機パンと洗面化粧台を設置しました。

Before

既存建物は1階リビングは壁面がパネルで仕上げられてました。

2階は2部屋あり、和室仕上げでした。


  == 1F・2F 水まわり ==  

Before

既存キッチン

既存浴室

既存洗面室

既存トイレ

キッチン

タカラスタンダード レミュー

浴室

TOTOサザナ

洗面室

TOTOオクターブ

トイレ

TOTO ネオレスト

TOTO ネオレスト


  == 2F ロフト ==  

2階LDKに3畳程のロフトを設置しました。梁はクロスなどでは巻かず、そのまま塗装のみで納めさせて頂いてます。

 

屋根勾配形の天井仕上げです。

梁は現しで納めさせて頂きました。白い壁面にアクセントとなり温かみがでました。


4 担当者より(ハイウィル株式会社・大谷)

減築工事・ジャッキアップ傾き補正・基礎補強・耐震等級3・一面足場が入らない立地であったことからの外壁の裏打ち工法、さらにはセルロースファイバー充填、炭素埋設と、スケルトンリフォームだから出来た工事とハイスペックな仕様となりました。まず敷地目一杯に建てられていたことから、基礎補強は、室内側からのアプローチとなりました。室内からのアプローチになると室内の構造体との絡みが出てくるため、耐震補強計画の難易度が増します。さらに裏打ち工法を採用したことから、先に外壁を工事してからセルロースファイバー断熱を充填するなど工程が、通常の流れとは変わって参ります。そのため通常よりも工期が長く設定させていただきましたが、施主様にもお任せいただくことができましたので、結果として、安心できる構造体、かつ高断熱な建物へと大幅な性能向上が実現しました。

 

 

K様、この度はご依頼をいただき、誠にありがとうございました。

全国のフルリフォーム・リノベーション『ピックアップ事例』※プロの詳細解説付きレポート

HEAT20-G2/耐震等級3
新耐震基準の性能向上リノベーション
築30年ハウスメーカー軽量鉄骨
断熱改修&リノベーション
 
中古住宅を新築以上の耐震性能と断熱性能へ!
耐震等級3フルリフォーム
地下付き木造2階建て
自然素材をつかった性能向上リノベーション&フルリフォーム

東京都文京区 K様邸

長屋を切り離して1つの構造体へフルリフォーム&リノベーション
隣家との距離がない!
部屋から外壁を張り替えるフルリノベーション
中古住宅を耐震等級3へ!
中古住宅リノベーション
 
基礎がない??
築60年の古屋をジャッキアップで基礎新設フルリノベーション

東京都渋谷区 O様邸

戸建てリノベーション・リフォームに関するお問合せはこちら

増改築.comの一戸建てリフォーム専用ホームページに
お越しいただき、誠に有難うございます。
 
増改築.comメンバーは技術集団となり、
他社のような営業マンがおりません。
技術者が直接ご相談にのり問題解決を行います。
 
従いまして、
お客様の方である程度のご要望が整理されました段階、
お悩みが工事内容のどのようなところにあるのか?
ご予算がどの程度絞る必要があるのか?
など明確になった段階でのご相談をお願いしております。
お問合せ・ご相談はお電話・メールにて受け付けております。
メールの場合は以下のフォームに必要事項をご記入の上、
「送信する」ボタンをクリックをお願いします。

代表稲葉高志

戸建てリノベーションの専属スタッフが担当致します。
一戸建て家のリフォームに関することを
お気軽にお問合せください

よくあるご質問
  • 他社に要望を伝えたところできないといわれたのですが・・・
  • 他社で予算オーバーとなってしまい要望が叶わないのですが・・・
  • サービスについて詳しく聞きたいのですが・・・

どのようなお悩みのご相談でも結構です。

あなたの大切なお住まいに関するご相談をお待ちしております。

営業マンはおりませんので、しつこい営業等も一切ございません。

設計会社(建築家様)・同業の建築会社様のご相談につきましては、プランと共にご指定のIw値及びUa値等の性能値の目安もお願い申し上げます。

2026年の大型補助金が確定したことで現在大変込み合っております。

耐震性能と断熱性能を向上させるフルリフォームには6か月~7か月の工期がかかります。

補助金獲得には年内に報告を挙げる必要があることから、お早目にご相談をお願いいたします。(6月着工までが目安

ご提案までに大変お時間がかかっております。ご了承のほどお願い申し上げます。

(5月までの着工枠が埋まりました)・・・2026/03/01更新

※すでにプランをお持ちのお施主様・設計資料をお持ちのお施主様は内容をフォームで送信後、フォーム下のメールアドレスに資料をお送りください。対応がスムーズです。

必須

(例:増改築太郎)

必須

(例:contact@high-will.co.jp)

(例:03-5615-2826)

必須

(例:東京都荒川区西日暮里2-35-1)

(例:築40年)

(例:25坪・100㎡など)

(例:2000万程度など)

  • ※再建築不可のリフォームでは金融機関が限られます。事前審査をお勧めいたします。

    (例:2024年3月くらいに完成希望など)

    必須

    できるだけ具体的にお知らせくださいませ。既存設計資料、リフォーム後のイメージ図等をお持ちであれば下記のメールアドレスより添付をお願いします。

    ※次の画面がでるまで、4~5秒かかりますので、
    続けて2回押さないようにお願いいたします。

    ※次の画面が出るまで、4〜5秒かかりますので、
    続けて2回押さないようにお願いいたします。

    図面や写真等を送信いただく場合、また入力がうまくいかない場合は、上記内容をご確認のうえ、下記メールアドレスまでご連絡ください。

    お電話でのお問合せはこちら

    0120-246-991

    営業時間:10:00~17:00(土日祝日を除く)

    ★YouTube「増改築.comチャンネル」チャンネル登録して新動画解説をいち早くGET!!★
    「増改築.comリノベ診断」であなたに一番ふさわしいフルリフォームを診断!!(動画解説付き)
    ★Facebookページにいいね!を押して最新コンテンツ情報をいち早くGET!!★
    パソコン|モバイル
    ページトップに戻る