戸建フルリフォームなら「増改築.com®」TOP > 施工事例 > 都道府県で探す > 東京都新宿区 > 施工事例 S様 ビルトインガレージ住宅を基準の1.5倍の構造評点へ耐震補強!

都心に多い!半地下の車庫(中二階)木造住宅の弱点となる耐震性を劇的に向上させた!

ビルトインガレージ(半地下)住宅のフルリフォーム(耐震補強)事例

ビルトインガレージ住宅を
基準の1.5倍の構造評点へ耐震補強!

都心に多く存在する半地下車庫(ビルトインガレージ)の木造住宅。近年では狭小3階建が多いですが、半地下の車庫がついている二階建て(中二階)の建物も多く存在します。このタイプの建物は耐震性に問題があるケースが多く今回も特別な工法を使ってリノベーションしました。詳しく解説していきます。

今回の戸建てリノベーション事例は東京都新宿区のS様。20年前に半地下車庫付き住宅を中古で購入後、大きなリフォームをすることはなくご使用されておられました。東日本大震災後に耐震診断を受けたところあまりに評点が低く不安になりこの度耐震改修を最優先した戸建てリノベーションを検討されたのがきっかけです。複数のリフォーム会社へご相談されておりましたが、半地下RC車庫+木造2階建ては耐震工事が出来ないとの回答だったとのことでした。上部構造評点で1.5を超える提案をする会社がない中で戸建て性能向上リノベーション実績が豊富なハイウィルへご相談されたのが最初の出会いでした。

駐車場の家賃が3万を超える、都心エリアでのインナーガレージの需要は確かに高く人気があります。しかしながら、耐震面では不安が残ります。半地下車庫は、地下部分がRC構造になっており、その上に木造が乗る構造になり混構造になってきます。この場合、半地下RC車庫の真上にのみ、そのまま木造2階建てが乗っているケースの場合は耐震改修での構造計算が可能となります。車庫にそのまま二階が乗っていないケースでは平面的な混構造となってしまうため、耐震改修での構造計算できないケースとなります。半地下2階建て住宅は、構造計算上は3階(3層)扱いとなりますので注意が必要です。

建物概要
名前 S様
場所 東京都新宿区
築年数 築30年
構造種別 RC半地下+木造一戸建て(在来工法)
家族構成 大人2人 子供2人
対象面積 26.3坪
リフォーム部位 基礎補強/間取り変更/断熱サッシ/セルロースファイバー/耐震補強/
工期 5ヶ月
価格 2450万(税別)

お客様のご要望

今回の戸建てリノベーション&フルリフォームで、S様からのご要望は以下の5点です。

  • 半地下車庫(インナーガレージ)の建物の耐震補強計画を立てて欲しい。
  • 上部構造評点1.5以上で設計をお願いしたい
  • 断熱材は防音の悩みからセルロースファイバーで施工をお願いしたい。
  • 予算は2000万程度で納められないでしょうか。
  • 建物の出をなくしキレイな総二階にしたい

プランナー 北畠より ~プランニングのポイント~

S様邸のご要望は、1階を扉で間仕切れる大きめLDKにし、2階は既存2部屋を3部屋にされたいとご要望でした。(既存図面は新築当初2階は3部屋だったのをリフォームし2部屋にしています)S様の今回のリフォーム工事に当たり、優先順位は耐震性能を上げる事、防音対策でした。間取りは既存間取りを余り変えずに、構造にコストを掛けたプランになっております。

 

新宿区S様邸 戸建てリノベーション施工事例テーマカテゴリー

 

  • 耐震等級3相当リフォーム
  • ビルトインガレージ
  • セルロースファイバー仕様
  • 混構造リフォーム
  • 内外部スケルトンリフォーム

打ち合わせから着工、完成までの詳細施工事例紹介

1 戸建てリノベーション着工前(ビフォー)

1-1 現場調査・打合せ

ビルトインガレージ付き半地下二階建ての住宅です。

半地下ガレージ部分

半地下ガレージの問題点は、ガレージ車庫部分に横方向の壁【横方向の耐力壁】がないことにあります。その上に、1階2階の建物が乗っているということ。ここを部屋して壁を設けることで耐震補強は可能ですが、あくまで車庫として使用し、耐震性能を基準値の1.5倍、新築での最高耐震等級である耐震等級3相当にする耐震補強計画を立てなければいけないところがポイントとなります。

地上より半分車庫が埋まっているのが特徴です。

1階は中2階程度高さより玄関となります。

半地下はコンクリート構造(RC)車庫の真上にのみ、そのまま木造2階建てが乗っているケースの場合は、耐震改修での構造計算が可能となります。車庫にそのまま二階が乗っていない(1階2階部がオーバーハング等している)ケースでは平面的な混構造となってしまうため、耐震改修での構造計算できないケースとなります。

半地下2階建て住宅は、構造計算上は3階(3層)扱いとなりますので注意が必要です。

中二階程度の高さまで階段を上り玄関となります。

既存の玄関ホール部分


既存LDKのキッチン

既存1階部分(構造計算上は2階)

半地下ビルトインガレージ(車庫)の特徴は、1階部が中二階程度の高さになっていることです。構造上はこの部分は2階として計算をしなければなりません。窓は少ないもののガラスが単板となっており、防音したいご要望もいただきました。

既存LDK


 

 

 

既存2階部分(構造計算上は3階)

中二階部は屋根の勾配なりギリギリまで天井高をとっておりロフトがありました。

既存ロフト部


既存半地下への階段部分

半地下へ下りる階段室ですが、半地下に入るところからはカビが生えています。湿気もあり断熱処理が必要なことがわかります。

階段を下りるに従いジメジメとしてきます。

地上から地下に入る部分。外部に面する壁よりカビが生えています。


既存半地下部分

半地下には浴室あります。

地下に埋まっている脱衣所はすでにカビが生えている状態です。

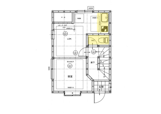
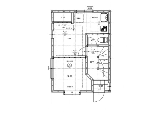
1-2 東京都新宿区S様邸 戸建リノベーションプラン

間取り変更のプラン

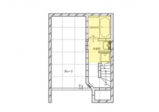
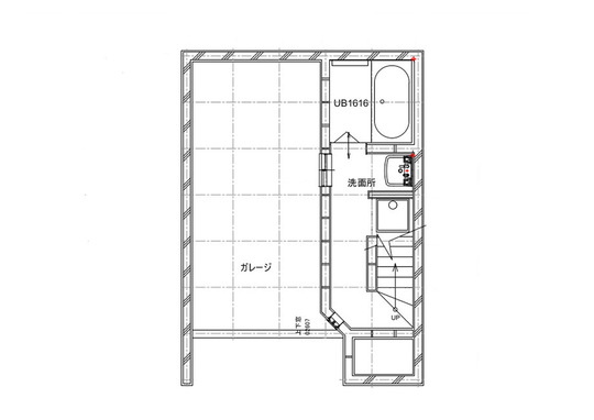
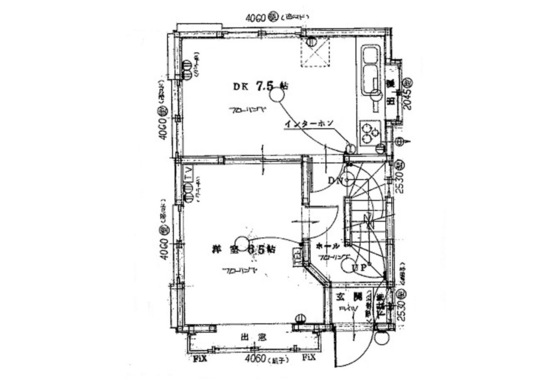
既存半地下+ガレージ

既存1階平面図

既存2階平面図

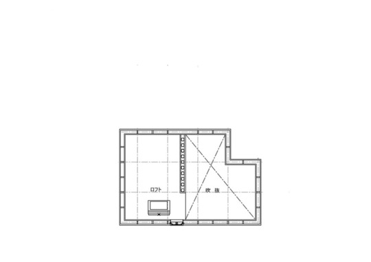
既存ロフト平面図

新規半地下+ガレージ

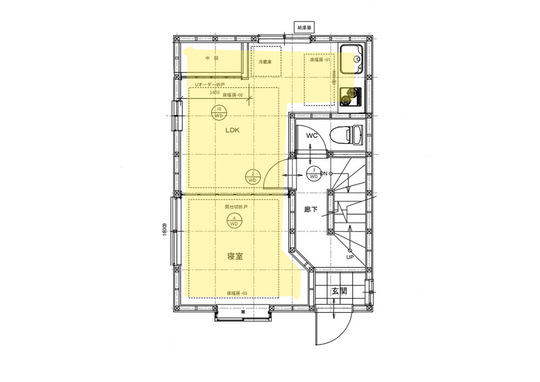
新規1階平面図

新規2階平面図

新規ロフト平面図

新宿区戸建てスケルトン 外観イメージパース

外観イメージパース

新宿区戸建てスケルトン LDKイメージパース

1階LDKイメージパース

新宿区戸建てスケルトン イメージパース

LDKイメージパース(間仕切扉を閉めた時)

新宿区戸建てスケルトン イメージパース

2階洋室イメージパース

新宿区戸建てスケルトン 勾配天井のある部屋のイメージパース

2階洋室イメージパース 勾配天井のある部屋

2階洋室 ロフトのある部屋

 

S様の耐震・防音等 構造性能を上げる半地下ビルトインガレージ戸建てのフルリフォーム&フルリノベーション工事はこうしてはじまりました。

2 戸建てリノベーション着工

2-1 足場・解体

解体は手壊し作業(人力解体)

新宿区のS様の半地下ビルトインガレージフルリフォームでは、構造評点を国の基準値(1.0)の1.5倍以上の評点1.5以上でのご要望から、内部のみからの補強では耐力が足りず、外壁からの耐力補強が必須となりました。そのため、内部のみのスケルトン解体ではなく、外壁までを解体する内外部スケルトンリフォームとなります。その為、完全な躯体(スケルトン)残しのフルリフォームとなります。

フルリフォームやフルリノベーションで最も大変工程の一つが、この解体工事となります。

そもそも内外部スケルトンリフォームのような躯体残しのリフォームでは、新築のような機械壊しが出来ないことから、解体職人による手壊し作業(人力解体)となります。それもリノベーション後の間取りを検討し、抜く柱や抜けない柱など細心の注意を払いながらの解体となります。躯体残しの解体の際は、ロケーションやフルリフォームの内容によって、解体を2回に分けることがあります。今回はガレージ部の構造計算がありますので、現状のビルトインガレージ部分を裸にしてから精密な構造計画を立てるために時間を要します。その為に、内部のみを先行して解体し、補強計画を立案後に外部を解体する計画としました。

主要構造体のみを残す解体が終わりました。先行して内部解体が完了です。

内部スケルトン解体、窓の腰の状態です。

内部のスケルトン解体が終わることで、既存の躯体の構造部が見えてきます。

引き続き半地下部の壁を剥がします。

既存半地下の浴室部分の解体を進めます。

時間は経過していますが、構造計画と構造計算に1カ月以上かかりましたが、この段階で次の工程へと進めます。補強計画が固まったので外壁を剥離します。

半地下部分のコンクリートが裸になりました。

主要構造体のみが残り、完全なスケルトン(躯体)となりました。

解体後の躯体チェック

内部の解体が終わった段階で、計画前の既存建物の本当の姿が見えてきます。非破壊法での補強計画では、リアルな補強計画は立てられませんので、この段階で補強計画前の既存建物の痛みや予想と違っている部分がないかを入念にチェックしていきます。

S様邸は築20年強と新耐震基準で建てられた建物ですが、やはりいろいろな問題が出てきました。使える躯体と使えない躯体を選別してく作業となります。

今回のメインテーマとなるガレージ部の補強ですが、補強するにあたり既存の構造体がどうなっているのかを検証していきます。

中古住宅を購入されたS様ですが、足らが抜かれている箇所がありました。柱を抜いた後の補強が全くされてらずこの状態で2階部を背負っていたことを考えるととても怖いです。やはり中古住宅を購入される際には注意が必要です。

浴室部の土台周りは予想通り腐食していました。築20年とはいえ半地下の建物はこのような湿気、雨仕舞対策は必須であることがわかります。

大事な構造部のすべてが目視可能となるスケルトンリフォーム

内部の天井・壁・床だけでなく外壁まで解体しスケルトン状態(躯体残し)にする戸建てリノベーションの最大のメリットはこのような重要な主要構造部のすべての状態が目視でわかることになります。非破壊で耐震補強計画を立てるよりもより精度の高い補強計画が立てられます。今回のビルトインガレージの耐震補強では、通常の耐震補強工事だけでは、構造評点を1.5以上にすることができませんでしたので、全面解体とさせていただきました。フルリノベーション後は、これらの構造上の弱点をすべて修正し補強することで新築と同水準、もくしくはそれ以上の建物性能をもつ構造躯体へ甦らせることが可能となります。

2-2 基礎

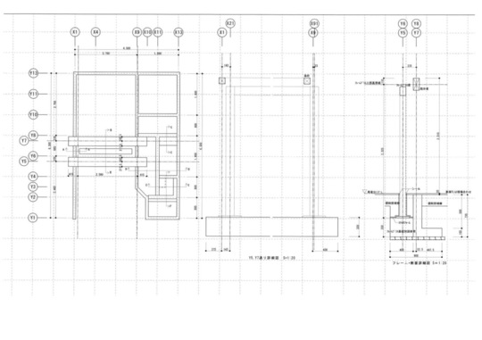
構造上のチェックが終わると、今回のメインとなるガレージ部分の基礎工事へと移行します。今回はガレージの横方向の耐力を確保するために、フレーム補強をする計画となりました。S様は正式な構造計算書をご要望されておられたことから、通常の鉄梁補強なども補強方法としては有効ですが、混構造となりますので、ガイドラインがない事から数値化が難しくなります。そのため耐震補強での数値を国が明確化している大臣認定の補強金物のみの使用に限定されます。つまり選択肢が限定されるということです。S様は数社に同じご要望を相談され、どの会社もできないと回答したのはこの解決法がないから、もしくはノウハウがないかのどちらかだと思います。

フレームを入れる部分の柱脚部は50センチ以上掘り補強をします。

柱脚部に合わせて配筋をしてフレームの脚部が固定される基礎を作ります。

配筋は計画通りであるか、コンクリートを打設前にチェックをしていきます。

フレームをただ設置すればよいのであれば、工事としては楽ですが、大臣認定のフレームの設置条件通りに計画をします。

ガレージ部補強における下準備となる配筋が完了しました。

半地下部の新規間仕切りが立ち上がる箇所へは基礎を新設するため立上り配筋をします。

ベース(底面)部分のコンクリート打設が完了しました。

立上り部のコンクリート打設までが完了(二回打ち)

S様邸では、新耐震基準の建物であることから、、本来であれば基礎補強はマスト事項ではありませんでした。しかし、鉄筋を有していないコンクリート無筋基礎であることが判明し、基礎補強が必要でした。ガレージ部の補強の前提として、フレーム補強の指示として、フレームとなる横方向に鉄筋コンクリート基礎が必須あったことから、50㎝以上根切をして配筋、コンクリート打ちとなりました。、建物の重さとのバランスもかかわってきます。足元だけ固めていても屋根を含めた建物とのバランスが悪いと大地震が起きた際にせん断力が働き、ホールダウン金物が抜けるような事態になるケースもあるからです。今回のフレームも国で認められている商品となり、施工の手順が決められています。手順通りに施工をしなければ、全く意味のない耐震補強となってしましますので、大規模な戸建てリノベーションをされる際には、木造を熟知し、実績が豊富な会社へ相談することをお勧めする理由でもあります。

2-3 インナーガレージの耐震補強(YKKAP社フレームプラス採用)

東京都新宿区のS様のご要望のメインとなる工事です。都内では数多いビルトインガレージ。敷地内に車庫スペースが取れず、建物の中に車庫が埋め込まれている建物です。

タイプもさまざまですが、一階が車庫で3階建てのもの、半地下に車庫がありその上に二階屋が建っているものなどです。

今回のS様の建物は後者の半地下のビルトインガレージ2階建て住宅でした。

既存の半地下ビルトインガレージ住宅

今回Sさまは、数社に耐震を相談してダメだったとのことですが、理由は先述しているとおりですが、難易度が高いからです。地下部が駐車場でRC造となり、その上に、1階2階が乗っている建物は、基本的な構造計算上の1階と2階の耐力は1.5倍にして計画する必要があります。しかも建物の荷重が最もかかるガレージ部の耐力を強くする必要があるわけです。本来横方向の耐力壁を取れるところが開口部となって大きな空洞になっている為、耐震的には大きな弱点となります。S様は上部構造評点1.5以上での計画をご要望されておられましたので、ハードルはかなり高いといえます。

このようなケースで『増改築.com』運営会社であるハイウィル株式会社では、今回のビルトインガレージ住宅の耐震補強計画を立案するにあたり、正式な報告書の作成に当たり、構造計算においては日本建築防災協会の認定を受けている補強金物のみを使用する必要があります。世の中にはたくさんの補強材や金物がありますが、耐震設計においては、大臣認定及び日本建築防災協会の認定を受けていない商品や部材は採用できませんので、注意が必要です。弊社においてもまざまな方法を模索しました。

ポイントとなるのは

車を入れられる状態で、空洞部分に横方向の耐力を出すこと。

になります。

車を入れられる状態にする必要から、横方向に壁となる補強部材は使用できません。そうなると真っ先に考えるのが仕口ダンパーになります。仕口で柱と梁に固定する方法があります。しかしながら、大臣認定を取得している仕口ダンパーかつ、耐力計算をして評点1.5を出せるものは存在しませんでした。

そのため、弊社が過去に日本初で新商品の施工をした経験のあるYKKAP社の『フレームプラスG2』よりヒントを得て、構造計算をスタートしました。本来フレームプラスは窓に設置する商品ですが、窓を耐力壁と見なすことができる製品であることから、空洞となるガレージでの利用を検討しました。

YKKAP社の『フレームプラス」とは?

写真は『フレームプラスG2』

弊社ハイウィルで日本初施工となった『フレームプラスG2』事例

耐震改修をする上で弱点となるのが、サッシとなります。窓などの開口部は、耐震計画上壁とみなすことはできませんので、単純に窓が多ければ多いほど耐力は落ちます。YKKAP社の 「フレームプラス」は、窓周りをフレームで補強することで、耐力壁と見なすことができる商品です。「フレームプラス」は耐震補強設計後に利用できる製品となり、「フレームプラス」を用いた耐震補強設計・施工管理は、YKK APの技術認定講習を修了した認定設計者および認定施工管理者が行うのがルールとなっています。

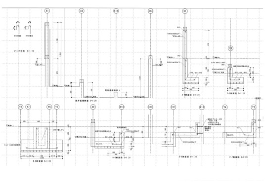
配筋図

一階内部を先行して解体し、構造専門スタッフによる既存の構造体のチェックをしていきます。その際今回耐力壁として採用した「プレームプラス」をどのように納めるかを調査します。

「フレームプラス」は完全受注生産となるため2か月程度の納期がかかります。事前に寸法を出しフルオーダーしたものが現場に搬入されます。

築30年の建物で新耐震基準に建てられた建物であるものの、地下が無筋であることが判明し、基礎補強をしました。

フレームプラスを地中に埋めコンクリートで連結させるため埋め込み高さも入念にチェックします。

金既存の状態で、車がギリギリ収まる状態の間口の為、フレームを内側に設置してしまうと車と干渉してしまいます。一部を室内に埋め込み、計画しました。

室内側の半地下部分の基礎補強が完了

フレームプラス柱脚部の設置(コンクリート打設前)

フレームプラスの設置が完了

埋め込み深さを確認します。

室内側に一部埋め込み設置をしています。

400㎜以上地中に埋めて設置しています。

鉄骨での補強など技術的には工法はありますが、正式な耐震改修での報告書を作成するケースでは、鉄梁で補強をしてしまいますと混構造となり耐力とみなされないため、今回大臣認定製品である「フレームプラス」を採用し構造計算しています。

車庫スペースがフレームで補強されました。この白い部分が構造計算上の耐力壁とみなされるため、実際には空洞となっているガレージに横方向の耐力壁が設置された状態となります。

1階(中二階)も水平耐力の計算に当たり、剛床工法で施工しています。

地上面は構造評点を1.5以上にするために外壁も解体し構造用合板を全面張りし耐力を上げています。

コンクリート打設前にスタイロフォームで養生をして、フレームプラスの柱脚部をコンクリートで連結します。

車庫内の室内部は木部をモルタルで塗ります。

外壁面もモルタルを塗ります。

完成です。車庫内は外壁と同じサイディングを張り、半地下車庫のビルトインガレージ住宅がフルリフォームにより上部構造評点1.5を超える性能向上が図れました。

2-4 木工事

基礎が終わり大工工事へと移行します。構造躯体の強度を担保するためのメイン工事となります。

お施主さま、現場監督、大工、プランナーと現状の状態を踏まえた打ち合わせを開始します。

マ二階床は強床工法とし水平耐力を持たせる設計としました。受け材で金物補強をしていきます。

耐力が不足している箇所へは梁補強をします。

白一部リフォームの跡が見えたことで、柱の立つ位置のバランスが悪いところがありました。この部分も再度新たな間取りにあう形で柱を新設していきます。

外周面の壁下地を構造用合板で張っていきます。

剛床工法は根太レス工法ともいわれ新築で多く採用されている工法です。リフォームでは既存の躯体と新たな構造体を組み合わせる際に手刻みが必要となりますので技量が問われます。

既存の構造体を活かす部分への補強は必須となります。

横架材への金物補強

既存の構造躯体と新たな構造材とをくみ上げていくのが戸建てフルリフォームでの大工の技量の問われるところになってきます。

使える構造躯体は多くはなく、しかしながら新築ではありませんので、頑丈な構造体をくみ上げていく作業となります。

ベランダの下地施工していきます。

S様邸では、外部は構造用合板全面張りとなり、内部への耐力壁は構造用合板を張りました。壁倍率5倍での補強となります。

新宿区S様邸のビルトインガレージ住宅のフルリフォームでは、半地下補強に加え、一階部、二階部の補強も必要です。
その為、室内の内壁の指定箇所、そして外部においてはすべて壁倍率2.5倍の構造用合板を張り、外周面との両面張りで壁倍率5倍での構造計算となりました。

2-5 断熱工事

新宿区S様の戸建てビルトインガレージ住宅フルリフォームでの断熱材は、セルロースファイバーを採用。
極力『防音』対策をしたいというご要望から、新聞紙を原材料としたエコ素材でありながら「断熱」「防音」「防燃」「防虫」「防湿」の効果を併せ持つセルロースファイバーはまさに理想的な素材を採用。

S様邸のビルトインガレージフルリフォームでは断熱材はセルロースファイバーを採用しました。セルロースファイバー充填後は、構造計画に従い、室内の内壁は構造用合板張りとし耐力壁となります。

一階、二階の天井へのセルロースファイバー充填

天井へのセルロースファイバー充填が終わりました。

不織布を張りセルロースファイバーを充填

2-6 屋根工事

屋根の野地板は増し打ちとしました。その後ルーフィングを張っていきます。

勾配が斜線に沿って急勾配となっていることから鋼板葺きはヨコ葺きとしました。

二階にはトップライトをご要望されたため、雨仕舞を入念にチェック後鋼板葺きをします。

斜線に沿って急こう配の屋根。

2-7 造作工事

構造部の構造補強が終わると、造作工事に入ります。

構造用合板+ボード(外周面はセルロースファイバー充填)

1階に天井部へもセルロースを充填し、耐力壁部分へは石膏ボードではなく構造用合板をはります。

給排水の立ち上げ

3 戸建てリノベーション竣工(アフター)

約5か月の工事を経て、いよいよ竣工です。
コロナ禍で打ち合わせは、メールやお電話などがメインとなりましたが無事この日を迎えることが出来ました。
S様邸の様子をご紹介します。


  =外観==  

玄関周りが狭いとのご要望もありましたので、外構工事をして階段の勾配も変更しました。

壁内に埋め込まれたYKKAP社の「フレームプラス」。柱脚部はコンクリートに埋まっておりスタイロフォームで養生をしています。


  == 1F LDK ==  

開放的なLDK

二階はロフトを設置しました。

Before

既存建物は単板ガラスかつ断熱材もスカスカの状態でした。


  == 半地下・1F 水まわり ==  

新宿区戸建てスケルトンリフォーム 半地下水回り
半地下水回り
新宿区戸建てスケルトンリフォーム 1階水回り
1階水回り

Before

既存キッチン

既存浴室

既存洗面室

既存トイレ

キッチン

LIXIL ティオ

浴室

TOTO サザナ

洗面室

TOTO オクターブ

トイレ

TOTOハイウィルオリジナルトイレ


4 担当者より
(「増改築.com®」本部ハイウィル株式会社 大谷正浩)

S様、この度は弊社をご利用頂きましてありがとうございました。S様の一番のご要望は耐震でした。しかもビルトインガレージのある建物で耐震をメインにしたい、とのことで大手を含め複数の会社に依頼をしたところ、どの会社も評点1.5以上で計画ができなかった、とのことで弊社にご依頼をいただきました。弊社の回答は「1.5大丈夫です!」それに対し、本当に大丈夫なのですか?という疑問を抱かれたことは無理もないことだと思います。大手を含む数社からできないと言われてきたのですから。弊社の改修工事において耐震工事を得意としており、難易度の高い耐震改修工事を何棟も施工してきました。半地下のビルトインガレージ住宅は構造計算上は3層扱いとなります。また正式な計算書が必要であれば、弊社では公的に認められた大臣認定の金物商品を使う事を義務付けております。費用はかかりますがこの現場の耐震にはYKKapのフレームプラスを2基設置するしかありませんでした。また、既存建物は音が筒抜けになる、とのことでしたので、セルロールファイバーも採用となりました。費用はかかりましたが、耐震等の問題が解決できたことにより、お喜び頂いたことは、私共も大変嬉しく、特にやりがいのある現場でした。お引渡しの日には、内装のセンスも褒められ、「ハイウィルさんは本当に施工技術もインテリアセンスのレベルも高い会社なんですね」と大変ありがたいお言葉をいただきました。これ以上のお褒めの言葉は無く、スタッフ一同感動をしております。

S様、この度はご依頼をいただき、誠にありがとうございました。

全国のフルリフォーム・リノベーション『ピックアップ事例』※プロの詳細解説付きレポート

HEAT20-G2/耐震等級3
新耐震基準の性能向上リノベーション
築30年ハウスメーカー軽量鉄骨
断熱改修&リノベーション
 
中古住宅を新築以上の耐震性能と断熱性能へ!
耐震等級3フルリフォーム
地下付き木造2階建て
自然素材をつかった性能向上リノベーション&フルリフォーム

東京都文京区 K様邸

長屋を切り離して1つの構造体へフルリフォーム&リノベーション
隣家との距離がない!
部屋から外壁を張り替えるフルリノベーション
中古住宅を耐震等級3へ!
中古住宅リノベーション
 
基礎がない??
築60年の古屋をジャッキアップで基礎新設フルリノベーション

東京都渋谷区 O様邸

戸建てリノベーション・リフォームに関するお問合せはこちら

増改築.comの一戸建てリフォーム専用ホームページに
お越しいただき、誠に有難うございます。
 
増改築.comメンバーは技術集団となり、
他社のような営業マンがおりません。
技術者が直接ご相談にのり問題解決を行います。
 
従いまして、
お客様の方である程度のご要望が整理されました段階、
お悩みが工事内容のどのようなところにあるのか?
ご予算がどの程度絞る必要があるのか?
など明確になった段階でのご相談をお願いしております。
お問合せ・ご相談はお電話・メールにて受け付けております。
メールの場合は以下のフォームに必要事項をご記入の上、
「送信する」ボタンをクリックをお願いします。

代表稲葉高志

戸建てリノベーションの専属スタッフが担当致します。
一戸建て家のリフォームに関することを
お気軽にお問合せください

よくあるご質問
  • 他社に要望を伝えたところできないといわれたのですが・・・
  • 他社で予算オーバーとなってしまい要望が叶わないのですが・・・
  • サービスについて詳しく聞きたいのですが・・・

どのようなお悩みのご相談でも結構です。

あなたの大切なお住まいに関するご相談をお待ちしております。

営業マンはおりませんので、しつこい営業等も一切ございません。

設計会社(建築家様)・同業の建築会社様のご相談につきましては、プランと共にご指定のIw値及びUa値等の性能値の目安もお願い申し上げます。

2026年の大型補助金が確定したことで現在大変込み合っております。

耐震性能と断熱性能を向上させるフルリフォームには6か月~7か月の工期がかかります。

補助金獲得には年内に報告を挙げる必要があることから、お早目にご相談をお願いいたします。(6月着工までが目安

ご提案までに大変お時間がかかっております。ご了承のほどお願い申し上げます。

(5月までの着工枠が埋まりました)・・・2026/03/01更新

※すでにプランをお持ちのお施主様・設計資料をお持ちのお施主様は内容をフォームで送信後、フォーム下のメールアドレスに資料をお送りください。対応がスムーズです。

必須

(例:増改築太郎)

必須

(例:contact@high-will.co.jp)

(例:03-5615-2826)

必須

(例:東京都荒川区西日暮里2-35-1)

(例:築40年)

(例:25坪・100㎡など)

(例:2000万程度など)

  • ※再建築不可のリフォームでは金融機関が限られます。事前審査をお勧めいたします。

    (例:2024年3月くらいに完成希望など)

    必須

    できるだけ具体的にお知らせくださいませ。既存設計資料、リフォーム後のイメージ図等をお持ちであれば下記のメールアドレスより添付をお願いします。

    ※次の画面がでるまで、4~5秒かかりますので、
    続けて2回押さないようにお願いいたします。

    ※次の画面が出るまで、4〜5秒かかりますので、
    続けて2回押さないようにお願いいたします。

    図面や写真等を送信いただく場合、また入力がうまくいかない場合は、上記内容をご確認のうえ、下記メールアドレスまでご連絡ください。

    お電話でのお問合せはこちら

    0120-246-991

    営業時間:10:00~17:00(土日祝日を除く)

    ★YouTube「増改築.comチャンネル」チャンネル登録して新動画解説をいち早くGET!!★
    「増改築.comリノベ診断」であなたに一番ふさわしいフルリフォームを診断!!(動画解説付き)
    ★Facebookページにいいね!を押して最新コンテンツ情報をいち早くGET!!★
    パソコン|モバイル
    ページトップに戻る