戸建てフルリフォームなら「増改築.com®」TOP施工事例都道府県で探す東京都新宿> 狭小住宅10坪フルリフォーム施工事例 構造評点1.5以上(補助金利用)

 

狭小住宅10坪フルリフォーム施工事例 構造評点1.5以上(補助金利用)

江東区K様邸 竣工外観

 

テーマ:中古を買って、耐震等級3、狭小住宅

種類:内外部スケルトン

 

新宿の好立地エリアで中古住宅を長期間お探しされておられたS様、S様も不動産会社にお勤めで弊社のことは良くご存じの方でした。築50年の木造2階建て11.2坪の建物を仲介をさせていただきました。ワンストップで購入からリノベーションまでを対応させていただきました。
建物の内見をさせていただき耐震構造を含めた内外スケルトンを1300万程度で収めたいとのご希望でした。予算をオーバーしてしまう事もあり新宿区の耐震改修補助金を提案させていただきました。補助金の利用のケースでは、スケルトンリフォームでは役所とのやり取りも、通常の単純な耐震補強工事と比較し、複雑化しますので工期が長引くケースがあります。S様は既に家をお持ちでいたので、工期に余裕が取れることから補助金採用の方向でお話が進みました。

建物概要
名前 S様
場所 東京都新宿区
築年数

築52年

構造種別 木造一戸建て
家族構成 大人2人
対象面積 11.2坪
リフォーム部位 基礎補強/間取変更/断熱サッシ取替/外壁リノベーション/耐震等級3/外構
工期 6ヶ月
価格

1450万(税別)※新宿区耐震補助金申請事務手数料込

お客様のご要望

今回の東京都新宿S様フルリノベーションでのご要望は以下の4点です。

  • 基礎は補修ではなく基礎補強をして構造評点(Iw値)1.5を超える耐震改修
  • 外壁までを剥がすフルリノベーション工事
  • 基礎は補修ではなく補強をして欲しい
  • 外構もお願いしたい

Iw値とは?

1981年以前の旧耐震基準で建てられた木造家屋では、2000年の品確法で定められた『耐震等級』という耐震指標保有水平力、耐震等級によって耐震力を測れないため、Iw値という指標で耐震力を測ります。「Iw値=家の保有耐力/耐震のために必要な耐力」によって数値化されます。1.0をクリアすることで震度6強の地震に対して倒壊、または崩壊する可能性が低いとされており、国の耐震改修の最低基準値となっている指標であります。

プランナー 北畠より 
~10坪狭小住宅リフォーム間取りのポイント~

新宿区の中古物件をご購入されてフルリノベーションのご要望を頂きました。

S様の間取りのご要望は1階に浴室・洗面所+1部屋洋室と2階にキッチンと洋室1部屋でした。

限られた空間なので、極力廊下を少なくして階段の位置を考慮しながらプランをさせて頂きました。

 

新宿区S様邸 戸建てリノベーション施工事例テーマカテゴリー

 

  • 耐震等級3相当リフォーム
  • 狭小住宅リフォーム
  • 中古住宅購入+リフォーム(購入からリフォームまでワンストップサービス)
  • 内外部スケルトンリフォーム

打ち合わせから着工、完成までの詳細施工事例紹介

1 狭小住宅リフォーム着工前

1-1 現場調査・打合せ
江東区 戸建てリノベーション 既存外観

既存外観

江東区 戸建てフルリフォーム 既存外観

既存外観

外構も老朽化しているので外構工事も踏まえ、外壁・内壁をすべて解体して大幅な間取り変更をされたいとご要望があり、早速現地にお伺いいたしました。


江東区 戸建てリノベーション 既存玄関

既存玄関

江東区戸建てフルリノベーション 既存廊下

1階既存廊下

一部傾きがありましたので、スケルトン後にジャッキアップにて調整が必要と判断しました。


既存1階

1階の水周り付近は床がフカフカ

しており下地や土台が腐食していることが想定されますのでこの辺りも説明させていただきました。主要構造部にまで腐食が進行していないことを願うばかりですが、このあたりのリスクもしっかりと説明させていただきます。

江東区 戸建てリノベーション 既存居間

既存LDK

江東区 戸建てリノベーション既存和室

既存1階浴室
 


築60年2階部

二階は人が住んでいたこともあり、一階ほどの痛みはありませんでした。1回ほどではありませんが若干の傾きを体感レベルで把握できたことから、解体後にはジャッキアップによる補正、もしくは屋起こしが必要な旨をお伝えしました。

2階和室

2階既存和室です。


1-2 東京都新宿区S様邸 狭小住宅リフォームプラン

  間取りの変更プラン  

文京区 戸建フルリフォーム

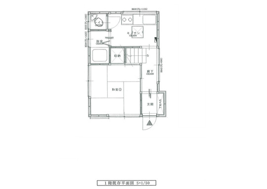
1階 狭小住宅リフォーム前の既存平面図

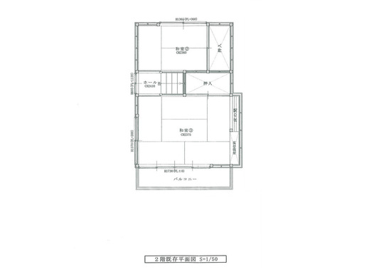
文京区 戸建フルリフォーム

2階 狭小住宅リフォーム前の既存平面図

新宿区 フルリノベーション 新規1階図面

1階 狭小住宅リフォームプラン平面図

新宿区 戸建フルリフォーム

2階 狭小住宅リフォームプラン平面図

北畠よりプランニングポイント

既存建物は水周りがとても小さかったので、新規水周りは既存より使用し易い大きさにプランをさせて頂きました。

 

 

2 狭小住宅リフォーム着工

2-1 解体・撤去

新宿区の狭小住宅リフォームのS様邸は手壊しでの人力解体になります。S様の耐震補強計画では、上部構造評点(Iw値)を国の最低基準の1.5倍以上をご要望されておられました。耐力を大幅に向上させるためには内部だけでなく外壁までを解体する躯体残しのスケルトンリフォームとなります。S様の建物は旧耐震基準の建物のため、基準の1.5倍以上の数値を計画する場合は、基礎補強が絶対条件となり、かつ内部からの補強だけにとどまらず、外部からの補強も必要となります。解体後は、非破壊段階での構造計算が、そのまま計画として成り立つのか、既存の構造体の状態を調査して入念に躯体チェックをしていきます

躯体の状態まで内壁を剥離していきます。

内部解体➡サッシ解体➡外壁解体と解体も順序が決まっております。

内部の解体が完了すると次はサッシを解体していきます。

文京区 戸建フルリフォーム

二階の構造体は、腐食等はなく状態は良いと言えます。

文京区 戸建フルリフォーム

建物の調査を進め、解体前に行った構造計算等が、現状の構造躯体でそのまま補強が可能か否かの判断をしていきます。第三者を入れての検査も行います。

1階キッチン部分も土台が朽ち果てており通し柱の根元の腐食が進行していました。

文京区 戸建フルリフォーム

内部の解体が完了するといよいよ外壁を解体していきます。気がかりなのは一階部の構造躯体の傷み具合です。現場調査時に水周り周辺は腐食をよそうしておりましたので、この辺りを注意しつつ解体を進めていきます。

文京区 戸建フルリフォーム

1階部の解体体が終了しました。やはり腐食が進んでおります。

土台は指が入るほど腐食が進行していました。

文京区 戸建フルリフォーム

二階の外壁も注意深く解体を進めていきます。

文京区 戸建フルリフォーム

1階浴室部分は土台が朽ち果てており柱まで腐食が進行していました。

1階玄関部分は玄関ポーチと土台の高さを考慮されておらず雨水がそのまま土台と触れてしまう高さとなっており柱まで腐食が進んでいる状況でした。

大事な構造部のすべてが目視可能となるスケルトンリフォーム

S様邸では建物の傾きがありスケルトンリフォームを提案させていただきました。内壁だけでなく外壁までを解体するフルスケルトンリフォームの最大のメリットはこのように重要な主要構造部のすべての状態が目視でわかることになります。実際に一階の最も重要な構造材である通し柱が3本も腐食しており二階の荷重を背負えない状況となっていました。フルリノベーション後は、これらの構造上の弱点をすべて修正し補強することで新築と同水準、もくしくはそれ以上の建物性能をもつ構造躯体へ甦らせることが可能となります。

2-2 基礎補強工事

 

第三者の構造計算担当者と大工、監督との現況の構造のチェックが終わると、S様の狭小住宅リフォームは、基礎補強工事へと移行していきます。

他社の提案では基礎は補修をすれば大丈夫との提案を頂いていたとのことですが、築60年の旧耐震基準の建物であり、基礎に鉄筋が入っていない「無筋基礎」になることから、弊社では抱き合わせ基礎(添え基礎)補強での補強を提案させていただきました。

文京区一戸建スケルトンリフォーム 基礎工事

既存の布基礎の高さをチェック

文京区一戸建スケルトンリフォーム 基礎工事

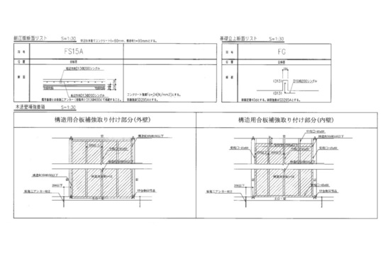
アンカーサイズM12にて既存無筋コンクリートへ打ち太さD13の鉄筋をピッチ200㎜にて千鳥上に配筋していきます。

文京区一戸建スケルトンリフォーム 基礎工事

既存基礎の内側に、補強計画に基づき、配筋をあと施工アンカーにて施工していきます。

文京区一戸建スケルトンリフォーム 基礎工事

柱を設置する箇所へは、抱き合わせ基礎の配筋時に耐震用金物と耐震金物を緊結させることでコンクリート打設後に、基礎、土台、柱を連結一体化させることで抜け防止をします。大事な工程となります。

文京区一戸建スケルトンリフォーム 基礎工事

新たに基礎が必要な個所へは鉄筋コンクリート基礎を新設します。

文京区一戸建スケルトンリフォーム 基礎工事

コンクリートが打設されました。

文京区一戸建スケルトンリフォーム 基礎工事

型枠を外していきます。

文京区一戸建スケルトンリフォーム 基礎工事

枠が外されました。抱き合わせ基礎補強が完成です。既存基礎に抱き合うように増し打ちされているのがわかります。

ポイント

S様邸では、当初はベタ基礎での補強をご要望でしたが、我々が提案したのは、抱き合わせ基礎補強でした。

その理由は、ベタ基礎は建物全体と同程度の荷重となりますので、建物の重さとのバランスもかかわってきます。足元だけ固めていても屋根を含めた建物とのバランスが悪いと大地震が起きた際にせん断力が働き、ホールダウン金物が抜けるような事態になるケースもあるからです。大手を含め多くのリフォーム会社が、基礎補強をしない現実がありますが、無筋基礎の状態の建物に基礎補強をしないのは、フルリフォームやリノベーションではありえないと弊社は考えております。基礎補強なしでいくら耐震といったところで、その計画は絵に描いた餅となるのです。

大規模な戸建てリノベーションをされる際には、木造を熟知し、実績が豊富な会社へ相談することをお勧めする理由でもあります。

ベタ基礎って?

布基礎が立ち上がりとフーチングで持たせる基礎に対して、ベタ基礎は、立上りだけでなく、底板一面も耐圧盤を設け、立ち上がりと底面が一体化された鉄筋コンクリートになっている基礎をいいます。

建物の荷重を底板全体の面で受け止めるため、ベタ基礎は不同沈下を起こさない。といわれますが、それは良好な地盤での話です。

基礎の下の地盤面の地耐力が均一でない場合は、不同沈下が起こる可能性が充分あるのです。

耐震の世界では、重い瓦屋根は外して、軽いものに変えましょうと言われておりますが、それ自体は間違っていませんが、この理屈でいくと。屋根の瓦を外して、基礎はベタ基礎にしても、地盤に与える荷重は、瓦屋根以上の荷重がベタ基礎の荷重により地盤面にかかることになります。

地盤が軟弱な場合、布基礎を採用した方が有利な場合も出てきます。

戸建てフルリフォームやリノベーションで、基礎補強をする際は、このような知識のある会社に相談することが必要です。

2-3 木工事
江東区 戸建てリフォーム 金物位置

1階 金物仕様及び柱位置

江東区 戸建てリノベーション 柱位置
2階 金物仕様及び柱位置
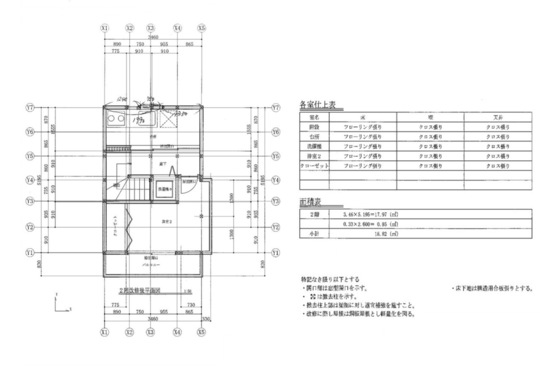
江東区 戸建てリノベーション1階補強図

1階 補強後平面図

江東区 戸建てリノベーション2階補強図
2階 補強後平面図

基礎補強工事が終わりメインとなる大工工事へと移行します。間取り変更による躯体の組み換えがメインとなります。使えない構造躯体はこの段階で差し替えです。新宿区S様邸の狭小住宅リフォームでは構造体の腐食が著しく、既存の柱を抜き、差し替えや梁を架けたり補強個所が多い現場となります。

仮の筋交いで補強を入れながら、使えない躯体を抜いていきます。

二階にも補強を入れながら仮筋交いを入れ倒壊を防止します。

基礎と土台の抜け防止を徹底的に行います。

柱と梁の仕口へは構造用金物を配置します。

ほとんどの構造材が新たに入れ直しとなりました。

二階床は水平耐力を担保するために、剛床工法しました。
➡剛床の詳しい解説はこちら
ほぼ新しい構造体となっているのがわかります。

1階の構造補強が完成しました。指示通りに金物補強を入れていきます。

2階の床は24㎜の構造用合板で補強をします。

2-4 断熱工事

東京都新宿区のS様の戸建て狭小住宅リノベーションでの断熱材は、高性能グラスウールを充填しました。
グラスウール断熱のポイントは、隙間なく充填することです。コンセント回りや筋交い部分などは特に隙間が出来ないように注意を払い充填していきます。床断熱はフェノバボード60㎜を採用し床暖房のいらない構造としました。

1階LDK部へのグラスウール断熱充填(壁への充填)

グラスウール断熱のポイントは隙間なく充填することです。少しの隙間があればそこが弱点となり建物全体

手で触ってもパンパンに膨らんでいるのがわかるほど充填していきます。

天井、壁の充填が完了しました。

2-5 屋根工事

S様は屋根は瓦棒葺きでしたので、撤去後に既存の野地板に増し打ちをして新たな仕上げ材を葺いていきます。

野地板増し打ち

ルーフィング張り完了

GL鋼板張り仕上げ

完了

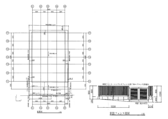
2-6 外壁・外構工事

新設フェンス図面

3 狭小住宅リフォーム竣工

約6カ月の工事を経て、いよいよ竣工です。
S様邸の様子をご紹介します。


  =外観==  

江東区 戸建てリノベーション 外観竣工

外壁はサイディング仕上げ

江東区 戸建てフルリフォーム 外観竣工

外壁はサイディング仕上げ


  == 1F エントランス・玄関 ==  

江東区 戸建てリノベーション 玄関竣工

玄関はトステムの断熱ドアを使用。

江東区 戸建てフルリフォーム 玄関竣工

玄関の位置は既存と同じ位置になります。


  == 2F キッチン ==  

キッチンは2階に持っていきました。階段上ってすぐのフロアに設置しました。

江東区 戸建てリノベーション LDK竣工

キッチンはLIXILシエラ I型1650サイズ

江東区 戸建てフルリフォーム LDK
江東区 まるごとリフォーム LDK
Before
江東区 戸建てリノベーション 既存台所

既存建物は昔ながらのブロックキッチンを使用し、1階にありました。


  == 階段 ==  

江東区 戸建てリノベーション 新規階段

 階段は既存より勾配を緩くして設置しています。

Before
江東区 戸建てリノベーション 既存台所

既存階段は昔ながらの急勾配の階段でした。

 


  == 1F 洋室 ==  

江東区 戸建てリノベーション 1階寝室

 1階親世帯寝室です。

江東区 戸建てフルリフォーム 竣工寝室

 1階親世帯 寝室の収納スペースです。

江東区 戸建てリノベーション 和室

 1階親世帯 収納は階段下スペースになります。


  == 水まわり ==  

Before

江東区 戸建てリノベーション 既存キッチン

既存キッチン

江東区 戸建てリノベーション 既存浴室

既存浴室

江東区 戸建てリノベーション 既存洗面

既存トイレ

After

江東区 戸建てリノベーション 既存キッチン

新規キッチン:LIXILシエラ1650

江東区 戸建てリノベーション 既存浴室

新規浴室:LIXILアライズ1216

江東区 戸建てリノベーション 既存洗面

新規トイレ:オリジナルトイレ


  == 2F 洋室 ==  

江東区 戸建てリノベーション 既存2階
Before
江東区 戸建てフルリフォーム 既存2階
江東区 戸建てリノベーション 竣工子世帯

二階洋室

江東区 戸建てフルリフォーム 竣工洋室

二階洋室 収納


  == 外構 ==  

築52年新宿区S様のリノベーションでは、外構工事もお手伝いさせていただきました。


4 担当者より(ハイウィル株式会社 取締役専務 稲葉悟)

新宿の好立地エリアで中古住宅を長期間お探しされておられたS様、S様も不動産会社にお勤めで弊社のことは良くご存じの方でした。今回10坪程度の狭小住宅の仲介と共にワンストップでリノベーションまで対応させていただきました。
建物の内見をさせていただき耐震構造を含めた内外スケルトンを1300万程度で収めたいとのご希望でした。予算をオーバーしてしまう事もあり新宿区の耐震改修補助金とブロック工事の補助を提案させていただきました。補助金の利用のケースでは、スケルトンリフォームでは役所とのやり取りも、通常の単純な耐震補強工事と比較し、複雑化しますので工期が長引くケースがあります。S様は既に家をお持ちでいたので、工期に余裕が取れることから補助金採用の方向でお話が進みました。

S様、この度はご依頼をいただき、誠にありがとうございました。

東京都の他のリフォーム事例を見る

全国のフルリフォーム・リノベーション『ピックアップ事例』※プロの詳細解説付きレポート

HEAT20-G2/耐震等級3
新耐震基準の性能向上リノベーション
築30年ハウスメーカー軽量鉄骨
断熱改修&リノベーション
 
中古住宅を新築以上の耐震性能と断熱性能へ!
耐震等級3フルリフォーム
地下付き木造2階建て
自然素材をつかった性能向上リノベーション&フルリフォーム

東京都文京区 K様邸

長屋を切り離して1つの構造体へフルリフォーム&リノベーション
隣家との距離がない!
部屋から外壁を張り替えるフルリノベーション
中古住宅を耐震等級3へ!
中古住宅リノベーション
 
基礎がない??
築60年の古屋をジャッキアップで基礎新設フルリノベーション

東京都渋谷区 O様邸

戸建てリノベーション・リフォームに関するお問合せはこちら

増改築.comの一戸建てリフォーム専用ホームページに
お越しいただき、誠に有難うございます。
 
増改築.comメンバーは技術集団となり、
他社のような営業マンがおりません。
技術者が直接ご相談にのり問題解決を行います。
 
従いまして、
お客様の方である程度のご要望が整理されました段階、
お悩みが工事内容のどのようなところにあるのか?
ご予算がどの程度絞る必要があるのか?
など明確になった段階でのご相談をお願いしております。
お問合せ・ご相談はお電話・メールにて受け付けております。
メールの場合は以下のフォームに必要事項をご記入の上、
「送信する」ボタンをクリックをお願いします。

代表稲葉高志

戸建てリノベーションの専属スタッフが担当致します。
一戸建て家のリフォームに関することを
お気軽にお問合せください

よくあるご質問
  • 他社に要望を伝えたところできないといわれたのですが・・・
  • 他社で予算オーバーとなってしまい要望が叶わないのですが・・・
  • サービスについて詳しく聞きたいのですが・・・

どのようなお悩みのご相談でも結構です。

あなたの大切なお住まいに関するご相談をお待ちしております。

営業マンはおりませんので、しつこい営業等も一切ございません。

設計会社(建築家様)・同業の建築会社様のご相談につきましては、プランと共にご指定のIw値及びUa値等の性能値の目安もお願い申し上げます。

2026年の大型補助金が確定したことで現在大変込み合っております。

耐震性能と断熱性能を向上させるフルリフォームには6か月~7か月の工期がかかります。

補助金獲得には年内に報告を挙げる必要があることから、お早目にご相談をお願いいたします。(6月着工までが目安

ご提案までに大変お時間がかかっております。ご了承のほどお願い申し上げます。

(5月までの着工枠が埋まりました)・・・2026/03/01更新

※すでにプランをお持ちのお施主様・設計資料をお持ちのお施主様は内容をフォームで送信後、フォーム下のメールアドレスに資料をお送りください。対応がスムーズです。

必須

(例:増改築太郎)

必須

(例:contact@high-will.co.jp)

(例:03-5615-2826)

必須

(例:東京都荒川区西日暮里2-35-1)

(例:築40年)

(例:25坪・100㎡など)

(例:2000万程度など)

  • ※再建築不可のリフォームでは金融機関が限られます。事前審査をお勧めいたします。

    (例:2024年3月くらいに完成希望など)

    必須

    できるだけ具体的にお知らせくださいませ。既存設計資料、リフォーム後のイメージ図等をお持ちであれば下記のメールアドレスより添付をお願いします。

    ※次の画面がでるまで、4~5秒かかりますので、
    続けて2回押さないようにお願いいたします。

    ※次の画面が出るまで、4〜5秒かかりますので、
    続けて2回押さないようにお願いいたします。

    図面や写真等を送信いただく場合、また入力がうまくいかない場合は、上記内容をご確認のうえ、下記メールアドレスまでご連絡ください。

    お電話でのお問合せはこちら

    0120-246-991

    営業時間:10:00~17:00(土日祝日を除く)

    ★YouTube「増改築.comチャンネル」チャンネル登録して新動画解説をいち早くGET!!★
    「増改築.comリノベ診断」であなたに一番ふさわしいフルリフォームを診断!!(動画解説付き)
    ★Facebookページにいいね!を押して最新コンテンツ情報をいち早くGET!!★
    パソコン|モバイル
    ページトップに戻る