戸建フルリフォームなら「増改築.com®」TOP > 施工事例 > 都道府県で探す > 東京都新宿 > 施工事例 築70年再建築不可性能向上リノベーション事例紹介

再建築不可でも新築以上の耐震性能と断熱性能に生まれ変わる!

築70年再建築不可性能向上リノベーション事例紹介

東京都新宿区 U様邸

築70年、しかも再建築不可という厳しい条件下にある木造在来工法の住宅を、いかにして現代的な間取りと安心できる性能へと再生させるか。U様ご夫婦が抱いていた不安──「本当に耐震性能を上げられるのか」「間取りを理想通りに作り変えられるのか」──に対し、どのように検証を重ねて設計・施工へ落とし込んでいくのか、そのプロセスを具体的に解説することで皆さまも自身のリノベーションに臨む際の視点を得られるはずです。

 

建物概要
名前 U様
場所 東京都新宿区
築年数 築60年以上
構造種別 木造一戸建て
家族構成 大人2人 子供2人
対象面積 22坪
リフォーム部位 基礎補強/間取り変更/断熱サッシ/耐震補強/外壁/屋根
工期 8ヶ月
価格 2500万

お客様のご要望

今回のリフォームで、U様からのご要望は以下の5点です。

  • 地震が不安なので耐震補強はしっかりとやりたい
  • 断熱材にはこだわりたい。
  • 補助金があるなら活用したい
  • 間取りは変えたい。
  • 2階ベランダをうまく活用したい。

プランナー 北畠より ~プランニングのポイント~

U様ご夫婦は、リビングを広くして家族団らんを楽しみつつ、将来を見据えた収納力を確保したいというご要望をお持ちでした。そこで、耐力壁配置と小屋裏収納の位置を慎重に検討し、1階にファミリークローゼットを配置して家事効率を上げる間取りを提案しました。玄関から室内へ最短ルートで荷物を収納できる動線は、日々の暮らしをぐっとラクにしてくれます。

建物の歴史を感じさせる古材や梁がところどころに残っており、それを意匠的に活かすことで、新築にはない味わいを演出しました。一方で、断熱材や耐震補強部分は壁の内部に隠し、見た目はすっきりとモダンに。こうした「新旧ミックス」のスタイルは、リノベーションならではの魅力です。インテリアカラーも、元の木材と調和するよう自然色ベースでまとめ、アクセントとして差し色を入れながら空間にメリハリをつけました。小屋裏収納があることで収納やプライベート空間のバリエーションが広がるでしょう。ファミリークローゼットは洋服だけでなく、掃除機や季節家電などの収納にも重宝します。目的に応じて収納棚の高さを変えるなど、使い方を工夫すればさらに便利さが増すはずです。

耐震・断熱が強化されたとはいえ、住宅は生き物のように変化していきます。壁や天井のクロス、床材などの内装は10~15年単位でリフレッシュを検討すると快適性を保ちやすいです。また、設備機器(キッチン・バス・トイレ)は更新サイクルを考慮し、点検と交換予算を見込んでおくと安心です。施主様ご自身でDIY感覚で直せる部分を増やしていくのも、リノベーション後の家をさらに愛着ある空間に育てるポイントといえます。

再建築不可物件というハンデがありながらも、U様邸は性能向上リノベーションによって「安全・快適・デザイン性」を見事に両立させました。狭小地や密集地であっても、発想を柔軟にし、信頼できる施工会社と協力すれば、ここまで住み心地を高められる可能性があるのです。プランナーとしては、今後もご家族のライフステージに合わせて小さな改修を重ねながら、末永くこの住まいを楽しんでいただけることを願っています。

 
 

新宿区U様邸 戸建てリノベーション施工事例テーマカテゴリー

  • 再建築不可リフォーム
  • 耐震等級3相当(上部構造評点1.5以上)リフォーム(性能向上リノベーション)
  • HEAT20-G2リフォーム(性能向上リノベーション)
  • 補助金活用リフォーム

打ち合わせから着工、完成までの詳細施工事例紹介

1 戸建てリノベーション着工前

1-1 現場調査・打合せ

調査結果を踏まえた打合せでは、U様の要望と不安を丁寧にヒアリングします。今回の大きなテーマは「再建築不可の敷地で、築70年の家を本当に快適な住まいにできるのか?」という疑問です。施主様の声としては、次のような要望・懸念があげられました。

  1. 耐震性能の確保:大地震に備え、旧耐震から現行基準以上へ補強したい。とくに子どもと3人で暮らすうえで安全は妥協したくない。
  2. 断熱性能の向上:冬の底冷えや夏の暑さを軽減したい。再建築不可とはいえ、なるべく新築レベルの断熱性を目指したい。
  3. 小屋裏収納やファミリークローゼットの設置:22坪という限られた床面積の中で収納力と遊び心を両立させたい。
  4. 解体や外壁工事の制約:両隣が密接し足場が組めないため、どのように施工を進めるのか不安。近隣への騒音・振動なども含めトラブルを避けたい。
  5. 工期と費用:8ヶ月程度の工期を想定しているが、想定外の補強や改修が出てくるのではないか。予算内で収まるかどうかも含めて心配がある。

私たちは、これらの要望と懸念をもとに、まず耐震診断と構造計算を正確に行ったうえで補強の必要量を洗い出し、その上で断熱改修や間取り変更の可能性を検討することを提案しました。また、小屋裏収納やファミリークローゼットのような収納スペースの計画は、構造補強や換気計画と密接に関わります。天井裏や壁内の断熱材・配線配管をどうレイアウトするかも含め、後述のプラン検討で具体案をお示しする運びとなります。

さらに、足場を架けられない両側面での解体作業については、「手壊し解体」や「小型機械の分割使用」など、近隣迷惑を最小限に抑える方法を検討しました。費用と工期は増える可能性がありますが、それを上回るリスク回避と安全性向上を優先すべきとの見解で、U様も納得されています。今後の打合せでは、この基本方針を軸に、最終的な設計プランと施工スケジュールを細かく詰めていくことになりました。

東京都新宿区U様邸 既存
東京都新宿区U様邸 既存玄関
東京都新宿区U様邸 既存サッシ
東京都新宿区U様邸 既存 
東京都新宿区U様邸 既存
東京都新宿区U様邸 既存
東京都新宿区U様邸 既存浴室
東京都新宿区U様邸 既存洗面
東京都新宿区U様邸 既存階段

1-2 東京都新宿区U様邸 戸建リノベーションプラン

まずは性能向上の二大要素、「耐震」と「断熱」を柱とした基本方針を定めました。旧耐震基準下の住宅を現行耐震基準以上のレベルに引き上げるには、柱と梁の接合部補強、耐力壁の追加、基礎補強を中心に検討します。ただし、再建築不可・密集地であるため、基礎の外周を大きく掘り下げる工事が難しい場合には、ピンポイントで増し基礎を行い、土台周りを一体化させる「刺し筋」による補強を組み合わせる方式を想定しています。

断熱面では、U様の強い要望でもある「夏冬の温度差を軽減したい」「結露を防ぎたい」という目的を重視し、外壁・床・天井にわたって省エネ基準相当の断熱材を施工するプランを用意しました。とくに外壁部は隣地と非常に近接しているため、内側から高性能グラスウールやウレタンボードを補強し、壁内部の結露対策として気密シートや透湿防水シートを併用します。足場を組めない外壁面については、内側からの断熱改修をメインとしつつ、既存外壁を再利用するか、新たに軽量サイディングを取り付けるかを検討中です。床下にはミラネクストラムダなどの押出法ポリスチレンフォーム系断熱材を採用する案が有力で、合わせて気密シートを敷き込むことで床下からの冷気侵入を封じ込めます。

換気計画も大切なポイントです。小屋裏収納スペースを大きく確保すると、どうしても通気が悪くなりがちなので、24時間換気システムの配管ルートを事前に仕込んだり、適切に換気口を設ける設計を取り入れます。こうした細かい配慮が、後々のカビ・湿気トラブルを防ぐうえで欠かせません。

 

U様邸は22坪という限られた面積ながら、家族3人が十分に暮らせる空間をめざします。既存の間取りは部屋数が多いものの狭く、動線が不便で収納不足という課題がありました。そこで、耐力壁を残しつつ使わない壁を撤去し、LDKを一体的に広めに確保する案を提案。加えて水回りを集中配置して配管ルートをまとめることで、音の問題や漏水リスクも管理しやすくします。

U様が希望する小屋裏収納は、2階の天井を一部勾配天井とし、その上部を小屋裏収納として活用できるように計画しました。ここには簡易的なはしごや階段を設け、子どもの遊び場やゲスト用の寝室、書斎など多目的に使えるようにします。断熱や換気をしっかりと施すことで、夏場に極端に暑くなりすぎないよう配慮が必要です。

また、ファミリークローゼットに関しては1階の玄関そばに広めの空間を設け、家族全員のコートや靴をまとめて収納できるようにする案を盛り込みました。限られた床面積でも、動線を工夫しながら大容量の収納を確保することで、リビングや個室の散らかりを抑え、家事効率を向上させる狙いです。断熱改修の都合で壁厚が増す部分があるため、そのスペースを活用して造作の収納棚やカウンターをつくり、デッドスペースを極力少なくするプランとしています。

施工上の最大のハードルである「足場を架けられない両側面」については、2章以降で詳述する「手壊し解体」と「一面ずつ順番に施工する段取り」を採用。解体時には近隣協力を得ながら、狭い敷地での養生・廃材搬出・資材搬入を徹底管理する予定です。こうした特殊な環境下での工事は工期8ヶ月という長期スパンになりますが、完成後は耐震・断熱性能と居住性を同時に満たす住まいを実現する見込みです。

今回のリノベーションプランは、U様の「再建築不可・築70年という最悪の条件でも満足できる家は作れるはずだ」という思いが起点となっています。私たちがこれまで培ってきたノウハウを存分に活かし、構造補強から間取りづくり、設備計画、デザインまでを総合的に組み立てることで、「性能向上と理想の暮らし」を両立させる道筋が見えてきたのです。

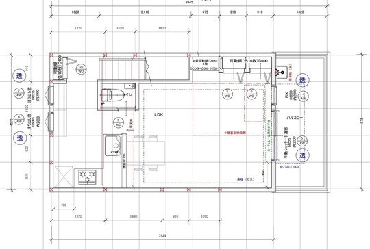
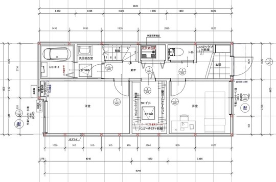
  間取りの変更プラン  

東京都新宿区U様邸 新規図面

1階 戸建てリノベーション後プラン

東京都新宿区U様邸 新規図面

2階 戸建てリノベーション後プラン

U様の再建築不可戸建てのフルリフォーム&フルリノベーション工事はこうしてはじまりました。

2 戸建てリノベーション着工

2-1 足場・解体

解体は手壊し作業

U様邸のリノベーションは、再建築不可物件の制約に加え、築60年以上経過した建物の老朽化を踏まえた非常に繊細な作業からスタートしました。特に解体作業においては、両側に足場が設置できない狭小な環境下で行われ、外部を残して内部をすべて取り除く「スケルトン解体」が採用されました。

解体は「手壊し」という手法を用いて行われ、機械ではなく職人が手作業で慎重に解体を進めます。築60年超の建物は、長年の経年劣化で外装も内部も老朽化しており、特に水回りや梁、柱の状態に注意を払いました。スケルトン解体では、建物の骨組みは維持し、外壁や屋根、床、天井などを丁寧に撤去していきます。これは、U様邸が狭小地に立地し、両側に建物が隣接していたため、重機を使用せず、人力解体が最適な選択肢でした。

内部解体では、まず床や間仕切り壁を取り除き、次に天井板や内装材を剥がしました。木造住宅特有の古い材料や接合部分は、湿気や劣化によって脆弱になっている箇所もありましたが、解体を通じて、構造体にダメージがないよう特に慎重に進めました。また、築年数が古い建物は、建築当時の材料や技術が現代の基準とは異なるため、解体中には材料の状態を確認し、再利用可能な部分と取り替えが必要な部分を見極める必要がありました。

解体作業は、特に骨組みを傷つけないことが重要でした。U様邸は古い木造住宅であり、特に梁や柱の状態を確認しながらの作業が求められました。スケルトン状態にすることで、建物の全体構造があらわになり、今後の耐震補強や間取り変更のための基盤が整いました。

また、解体の際には再利用可能な資材の選別にも配慮し、環境負荷を抑えるため、木材や金属などのリサイクル可能な資源を適切に処理しました。この手法により、資源の無駄を減らし、持続可能なリノベーションを実現しました。

U様邸の解体工事は、現代の暮らしに合った間取りや耐震性の確保のための第一歩となり、このスケルトン解体を経て、安心して住める新しい空間へと生まれ変わる準備が整いました。

東京都新宿区U様邸 解体
東京都新宿区U様邸 解体
東京都新宿区U様邸 解体
東京都新宿区U様邸 解体
東京都新宿区U様邸 解体
東京都新宿区U様邸 解体

解体後の躯体チェック

U様邸の解体が終わり、仮補強が完了すると、次に行うのは躯体の状態チェックです。築60年以上経過している建物では、構造の老朽化や劣化が避けられず、このチェックはリノベーションの安全性と耐久性を確保するために最も重要なプロセスの一つです。

1. 構造の安定化
解体後、まず躯体の安定性を確認しました。長年の劣化や損傷によって建物が不安定になっていたため、仮の筋交いを入れたり、支え材を追加して建物が倒壊しないように対策を施しました。この仮補強作業により、次の検査工程へ進む準備が整います。

2. 検査の内容
専門家による躯体の状態検査では、以下のポイントが詳細にチェックされました:

  • 木材の腐食や虫害:特に湿気やシロアリによる損傷が確認されることが多く、該当部分の交換や補修が必要です。
  • 構造材の劣化:梁や柱の亀裂や変形など、長期的な使用によるダメージの有無を調査し、必要に応じて補強を行います。
  • 基礎のひび割れや沈下:基礎が建物全体の安定性を支えるため、微細なひび割れや不均等な沈下の有無を確認しました。
  • 壁や床、天井の内部構造:内部の見えない箇所も特別な機器で調査し、劣化や欠損を見つけます。

3. チェックの結果と対応策
躯体の検査結果として、U様邸では、特に木材の腐食や虫害の進行が見られ、老朽化した構造材の交換や補修が必要であることが分かりました。また、基礎部分にもいくつかのひび割れが確認され、補強が求められました。このため、構造の補強計画がリノベーション全体において最優先事項とされ、特に耐震性能の向上を目指した対策が進められることになりました。

4. リノベーションの影響
この躯体チェックは、U様邸のリノベーションの方針を決定する上で非常に重要なプロセスです。耐震性を向上させるための計画や、現代的な生活に対応するための間取り変更は、この検査結果を基に進められました。特に、U様からの要望であったロフトの設置やベランダの活用なども、躯体の状態に合わせて具体的な設計が可能となりました。

このように、躯体チェックは単なる診断ではなく、リノベーション計画全体を左右する基礎的な工程であり、U様邸を安全で快適な住まいへと生まれ変わらせるための重要なステップとなりました。

東京都新宿区U様邸 解体
東京都新宿区U様邸 解体
東京都新宿区U様邸 解体

大事な構造部のすべてが目視可能となるスケルトンリフォーム

内部の天井・壁・床だけでなく外壁まで解体しスケルトン状態(躯体残し)にする戸建てリノベーションの最大のメリットはこのような重要な主要構造部のすべての状態が目視でわかることになります。

フルリノベーション後は、これらの構造上の弱点をすべて修正し補強することで新築と同水準、もくしくはそれ以上の建物性能をもつ構造躯体へ甦らせることが可能となります。

2-2 基礎

構造上のチェックが終わると、フルスケルトンリフォームでは、基礎工事へと移行していきます。

U様邸のリノベーションにおける基礎補強工事は、耐震性能の向上を重視した重要な工程でした。築60年以上経過した家屋の基礎は、当時の基準や施工技術では耐震性が不足しており、特に無筋基礎であったため、地震に対する耐久性が懸念されました。このため、現代の耐震基準に合わせて補強を行い、特に耐震等級3相当の性能を目指しました。

1. 基礎調査と問題点 解体後の基礎の状態を調査したところ、基礎高が低く、また鉄筋が入っていない無筋基礎であることが確認されました。このような基礎は、現代の耐震基準では安全性に問題があり、特に地震の際の揺れに耐える力が不足しているため、ベタ基礎に変更することが決定されました。さらに、再建築不可物件であることから、基礎補強を含めた耐震性の強化は不可欠な要素でした。

2. 基礎補強の手法:べた基礎への変更 U様邸では、無筋基礎から鉄筋コンクリートによるべた基礎への変更を行いました。べた基礎とは、建物全体の下に鉄筋を敷き詰めた上でコンクリートを打設し、建物を支持する方式です。この工法は、地震時に発生する地盤の変動や揺れを建物全体で均等に受け止め、安定性を保つことができます。また、ベタ基礎は面全体で荷重を分散するため、地盤沈下のリスクも低減できます。

3. 施工プロセス 施工のプロセスはまず、基礎の周辺を掘削し、既存の無筋基礎の一部を撤去。次に、べた基礎用に地面を平坦に整地し、その上に砕石を敷き詰め、ランマーで転圧して固めます。その後、防湿シートを敷き、鉄筋の配筋を行います。鉄筋は建物の荷重や引き抜き力に耐えられるよう、適切な間隔で配置し、強度を確保。さらに、既存基礎との一体化を図るため、ケミカルアンカーを使用して鉄筋を接合しました。

鉄筋が配置された後、コンクリートを打設し、基礎全体が強固に固められます。このコンクリート打設の段階では、施工精度が建物全体の耐震性能に大きく影響するため、均一に流し込み、強度を確保することが重要です。

4. 耐震等級3相当の補強 U様邸では、耐震等級3相当の補強を目指して施工が進められました。耐震等級3とは、消防署や病院など、災害時に稼働し続けることが求められる建物に求められる基準です。一般住宅においてこの等級を達成するためには、基礎だけでなく、建物全体の構造補強も重要です。U様邸の基礎補強により、地震発生時に建物の揺れを最小限に抑え、倒壊のリスクを大幅に低減させることができました。

5. 地盤の安定性と防湿対策 ベタ基礎を施工する際には、地盤の安定性も非常に重要です。U様邸では、地盤の調査を事前に行い、砕石と鉄筋を用いた基礎補強によって地盤を強化しました。さらに、防湿シートを設置し、湿気の上昇を防止する対策も講じられました。これにより、建物の床下に湿気が溜まり、建材が劣化するリスクを抑え、長期的に健康な住環境を保つことができます。

6. 結果とまとめ 基礎補強工事の完了により、U様邸は地震に強い安全な住まいに生まれ変わりました。鉄筋コンクリートによるべた基礎の導入と、耐震等級3相当の補強により、建物全体の安定性が向上し、再建築不可という制約がありながらも、現代の耐震基準をクリアする安全な住まいが実現しました。

この基礎補強工事は、U様邸のリノベーションの中でも特に重要な工程であり、家族が安心して長く住み続けられる住環境の基盤を築くためのものです。築60年以上経過した建物であっても、適切な基礎補強を行うことで、現代の耐震基準に対応し、地震や災害に備えた安全な住まいを提供することができました。

東京都新宿区U様邸 基礎工時
東京都新宿区U様邸 基礎工時
東京都新宿区U様邸 基礎工時
東京都新宿区U様邸 基礎工時
東京都新宿区U様邸 基礎工時
東京都新宿区U様邸 基礎工事
ベタ基礎について

ベタ基礎って?

布基礎が立ち上がりとフーチングで持たせる基礎に対して、ベタ基礎は、立上りだけでなく、底板一面も耐圧盤を設け、立ち上がりと底面が一体化された鉄筋コンクリートになっている基礎をいいます。

建物の荷重を底板全体の面で受け止めるため、ベタ基礎は不同沈下を起こさない。といわれますが、それは良好な地盤での話です。

基礎の下の地盤面の地耐力が均一でない場合は、不同沈下が起こる可能性が充分あるのです。

 

耐震の世界では、重い瓦屋根は外して、軽いものに変えましょうと言われておりますが、それ自体は間違っていませんが、この理屈でいくと。屋根の瓦を外して、基礎はベタ基礎にしても、地盤に与える荷重は、瓦屋根以上の荷重がベタ基礎の荷重により地盤面にかかることになります。

地盤が軟弱な場合、布基礎を採用した方が有利な場合も出てきます。

そもそも正しい基礎補強方法を知らず、基礎補補修程度しか行わないリフォーム会社が多くを占めている現状ですが、

戸建て一軒家のリノベーションで、基礎補強をする際は、このような知識のある会社に相談することが必要です。

2-3 木工事

U様邸のリノベーションにおける木工事は、間取りの変更と耐震補強が中心となりました。特に、築60年以上の再建築不可物件という制約があったため、現行の法律や構造的な要件を満たしつつ、最大限に空間を活かす工夫が求められました。

1. 構造体の組み換えと耐震補強

間取り変更に伴い、内部の構造体を一部解体し、再配置を行いました。これは、現代の生活スタイルに適した空間を作り出すためです。特に家族の希望であったロフトやファミリークローゼットを取り入れるため、設計上の工夫が求められました。これらの変更により、限られたスペースを有効に活用し、収納や機能性を向上させています。

耐震補強としては、各接合部に剛床工法を採用し、さらに柱頭・柱脚に金物補強を行いました。剛床工法は、従来の根太工法に代わり、梁に直接24mm以上の構造用合板を貼り付けることで、床全体の剛性を高める工法です。これにより、横方向の揺れに対する耐力が向上し、地震時の耐久性が増します。特に大きなスパンを持つ空間では、水平剛性が重要となるため、この工法が有効です。

剛床工法は、木材の特性を活かしながらも、しっかりとした耐力を確保できる優れた工法です。梁に直接構造用合板を貼り付けることで、床全体が一体となり、揺れや変形に強い構造を実現しました。この方法により、耐震等級3相当の強度を確保し、家族の安心を支える住まいを提供しています。

2. 金物補強

さらに、耐震性能を強化するために、柱頭柱脚金物の使用が重要なポイントとなりました。U様邸の柱や梁の接合部には、専用の金物が使用され、地震時の引き抜きや倒壊を防ぐ役割を果たしています。金物補強は、特に柱と梁、柱と基礎の接合部分において重要で、木造建築の強度を高めるために欠かせません。N値計算に基づいた最適な金物を使用し、建物全体のバランスを保ちながら耐震性能を向上させました。

金物補強は、耐震等級を高めるだけでなく、耐力壁の強度を最大限に発揮させるためにも欠かせない要素です。古い建物の場合、接合部の強度が弱いため、現代の基準に合わせた金物の使用が推奨されます。U様邸では、金物の使用により、建物の揺れや変形に対する耐久性が大幅に向上しました。

3. 家族の希望を反映した空間設計

U様邸のリノベーションでは、家族の希望を反映した機能的な空間設計も重要なテーマでした。特に、ロフトやファミリークローゼットといった、収納スペースや新しい居住空間の確保が求められました。限られた面積の中で、無駄のない配置を行いながら、居住性を高めるために、ロフトを2階に設置し、空間の広がりを持たせました。

また、ファミリークローゼットを配置することで、収納スペースを確保し、日常生活の利便性を向上させました。こうした空間の工夫により、限られた面積の中でも快適に暮らせる住まいが実現しました。

4. 再建築不可物件での施工の工夫

再建築不可物件という制約があるため、法律や構造的な制限をクリアする必要がありました。特に、外部に足場を設置できない状況での作業は非常に難しく、施工には細心の注意が払われました。このような制約の中でも、家族の希望を反映し、空間を最大限に活かす設計と施工が行われました。

例えば、既存の基礎や構造体を活かしつつ、強度を確保するための補強工事が行われました。新築のような柔軟な設計変更が難しい中でも、現代の暮らしに合った機能的な間取りを実現するために、設計段階での綿密なプランニングが不可欠でした。

5. まとめ

U様邸の木工事では、間取り変更と耐震補強が中心となり、家族の希望を反映した機能的な住まいを実現しました。剛床工法や金物補強により、耐震等級3相当の強度を確保し、地震に強い安全な住まいを提供しています。また、限られた空間を有効に活用し、ロフトやファミリークローゼットを設置することで、現代の生活に合った快適な住環境を提供しました。再建築不可物件という制約をクリアしつつ、家族が安心して長く暮らせる住まいに仕上げた点が、このリノベーションの大きな成果です。

東京都新宿区U様邸 木工事
東京都新宿区U様邸 木工事
東京都新宿区U様邸 木工事
東京都新宿区U様邸 木工事
東京都新宿区U様邸 木工事
東京都新宿区U様邸 木工事
2-4 断熱工事

U様邸の断熱工事においては、最新の断熱材と施工技術が活用されました。このプロジェクトでは、住まいの快適性やエネルギー効率の向上を目指し、床、壁、天井それぞれに適切な断熱材が選定され、しっかりと施工されました。

1階床には75㎜のラムダ断熱材が採用され、床下からの冷気を防ぐ役割を果たしています。ラムダは高い断熱性能で知られており、限られたスペースでも効果を発揮できるため、冷えを防ぎ、室内の温度を安定させるのに貢献しています。

また、壁には120㎜の高性能グラスウールが充填されました。グラスウールは、その構造により空気の流れを抑え、断熱効果を発揮します。120㎜という厚さは、一般的な住宅の基準よりも高く、夏場の熱や冬場の寒さを遮断し、快適な室内環境を維持します。これにより、熱が外部から侵入しにくく、逆に室内の温熱が外へ逃げにくくなります。

さらに、天井部分には250㎜の高性能グラスウールが使用されました。特に天井部分は、外部からの直射日光や冷気の影響を強く受けやすい場所であるため、厚みのある断熱材が必須です。これにより、夏の暑さや冬の寒さを遮断し、室内の温度を年間を通じて一定に保つことができます。

断熱工事のもう一つの大きな利点は、騒音対策にも効果がある点です。都市部に位置するU様邸では、交通騒音や近隣住宅からの音が問題になることが多いため、断熱材を使った壁や天井の補強は、防音対策にも役立ちます。これにより、室内での静かな生活環境が確保され、外部の騒音が大幅に軽減されました。

このように、U様邸の断熱工事では、エネルギー効率の向上と共に、快適で静かな住環境を実現しました。

東京都新宿区U様邸 断熱工事
東京都新宿区U様邸 断熱工事
東京都新宿区U様邸 断熱工事
2-5 バルコニー

ポリウレア樹脂を用いたベランダ防水は、耐久性や防水性能に優れた工法として広く利用されています。特にポリウレア樹脂は、他の樹脂と比較して強固な結合を持ち、耐摩耗性・耐薬品性・耐熱性において優れた性能を発揮します。そのため、15年以上の耐久年数が期待でき、厳しい環境下でも防水効果が長持ちします。

防水効果

ポリウレア樹脂の防水膜は、非常に高い防水性を誇り、水の侵入を完全に遮断します。伸縮性があるため、下地の変化やひび割れにも追従し、防水効果を長期間維持します。これにより、ベランダの防水層が裂けたり、劣化する心配が少なくなります。

速乾性と硬化

この防水工法の特徴の一つは、超速硬化です。ポリウレア樹脂はスプレーで塗布された後、数分で硬化し、すぐに歩行できるほどの強固な膜を形成します。この速乾性により、天候に左右されず短期間で防水工事が完了し、補修作業の効率も向上します。

従来の防水工法に比べ、ポリウレア樹脂は施工がスピーディで、耐久性も高いため、特にベランダや屋上の防水に最適な選択肢と言えます。

新宿区U様邸 バルコニー
新宿区U様邸 バルコニー
新宿区U様邸 バルコニー
新宿区U様邸 バルコニー
新宿区U様邸 バルコニー
新宿区U様邸 バルコニー
2-6 屋根工事

屋根材にはさまざまな種類があります。U様邸の場合、以下のような観点からコロニアルを選定しました。

  • 遮音・断熱性
    ロフトの断熱を考慮する場合、金属屋根は雨音や日差しの熱をどう遮断するかが課題となります。遮音シートや断熱材を組み合わせることで、住まいへの影響を最小限に抑えられるかが重要なポイントです。

 

新宿区 U様 屋根工事
新宿区 U様 屋根工事
新宿区 U様 屋根工事
新宿区 U様 屋根工事
新宿区 U様 屋根工事
新宿区 U様 屋根工事
2-7 造作工事

造作工事が概ね終わると、家の間取りや使い勝手がほぼ確定し、内装の仕上げ(クロス貼りや塗装)や設備機器の最終設置に移ります。U様邸では、狭い敷地内での資材搬入や作業スペースの制約が厳しく、造作工事の段取りを誤ると工期が大幅にズレ込む恐れがありました。しかし、現場監督と各職人がしっかりコミュニケーションを取りつつ、順序と配置を工夫することでスムーズに進められたのが大きな特徴です。
最終的に、ファミリークローゼットやロフト階段、造作棚など、オーダーメイドならではの使いやすさを実現できたことで、U様ご家族は「既製品にはない、家に馴染んだ収納」と「自由に動き回れる動線」を獲得しました。今後、クロスや床材などの仕上げ段階を経ていくことで、住み心地やデザインをさらに高めていくことになります。

新宿区U様 造作工事
新宿区U様 造作工事
新宿区U様 造作工事

3 戸建てリノベーション竣工

いよいよ完成したU様邸。再建築不可、築70年という難条件を抱えながらも、耐震性・断熱性を大幅に向上させ、現代的な間取りへと生まれ変わったその姿は、長年培われてきた木造リノベーションの技術が集結した象徴といえます。


  =外観==  

Before

東京都新宿区U様邸 既存

施工前は外観も中もかなり古く、安心して住める状態ではありませんでした

After

東京都新宿U様邸 竣工

施工後はシャープでスタイリッシュな外観の住まいに生まれ変わりました

Before

東京都新宿区U様邸 既存

以前は1階店舗の作りでした

After

東京都江東区H様邸 竣工

施工後の玄関はYKKAPイノベストD50防火ドア。耐震性能も断熱性能も格段に向上した安心安全な住まいが実現しました


  == LDK ==  

Before

東京都新宿区U様邸 既存

施工前はリビングは1階にありました

After

東京都新宿区U様邸 竣工

施工後は間取り変更で2階に広々したLDKを作りました

東京都新宿区U様邸 竣工

リビングはベランダ直結で開放感があります。建材はパナソニックベリティス。床はメープル柄、室内ドアはしっくいホワイト柄。

東京都新宿区U様邸 竣工

収納式階段で小屋裏収納も作りました


  == 水まわり ==  

Before

東京都新宿区U様邸 既存

施工前はガス台別設置のキッチンでした

After

東京都新宿区U様邸 竣工キッチン

新しいキッチンはトクラスL型1800×1650 IHヒーター

東京都新宿区U様邸 竣工浴室

浴室はTOTOサザナ1616サイズ

東京都新宿区U様邸 竣工洗面

洗面化粧台はTOTOオクターブW750

東京都江東区H様邸 竣工トイレ

トイレはTOTOハイウィルオリジナルトイレ

東京都江東区H様邸 竣工トイレ

トイレ内のコンパクトな手洗いはTOTOコンフォートシリーズ


4 補助金利用

新宿区U様邸の工事では、国の補助金「こどもエコすまい支援事業」と「先進的窓リノベ事業」、東京都の「既存住宅における省エネ改修促進事業(高断熱窓・ドア)」を併用活用しました。

省エネにつながるエコ住宅設備や、断熱性能の高い断熱材・ドア・窓の設置などに対して交付される補助金です。

 

U様邸の補助金対象工事

エコ住宅設備の設置 給湯器(エコキュート)、高断熱浴槽、節水型トイレ、節湯水栓
断熱改修

外壁・床・天井の断熱材、断熱窓、断熱ドア

※断熱窓・断熱ドアは東京都補助金併用

子育て対応改修 掃除しやすいレンジフード、ビルトイン食洗器、浴室乾燥機

 

U様邸リフォーム工事に交付された補助金:1,163,000円

ハイウィル株式会社 稲葉悟

5 担当者より
(「増改築.com®」本部ハイウィル株式会社 専務取締役稲葉悟)

 

U様、この度はご依頼をいただき、誠にありがとうございました。

解体後の躯体チェックで想定を上回る梁の腐朽や基礎の劣化が確認されました。安全を最優先に考え、補強案を複数提示し、U様と相談しながら最適解を探ることになりました。特に築70年の家では図面と実際が大きく異なる部分が多く、現場での柔軟な判断力が欠かせませんでした。追加工事の費用や工期面での負担を施主様に丁寧に説明し、納得を得られるようコミュニケーションを密にとったことが、結果的にスムーズな工事進行につながったと感じています。

両側面に足場が組めず、大型クレーン車も使えない中で、梁材や断熱材、外壁材などを効率よく搬入するには段取りが重要でした。手作業で運び込む小分け搬入や、既存の開口部を活用する工夫が求められました。現場スタッフ同士が「何を、いつ搬入するか」を綿密に共有し、近隣住宅や通行人への安全にも配慮しながら進めた結果、トラブルなく完遂できました。

再建築不可物件であっても耐震・断熱改修を徹底すれば、これほどまでに安心・快適な住まいに蘇らせられるという点は、私たち施工チームの誇りです。U様からも「家が息を吹き返したみたい」と嬉しいお言葉をいただきました。使える構造材は活かしつつ、最新の金物補強や断熱技術を組み合わせることで、古き良き家の雰囲気を残しながら現代の性能を得られるのは、リノベーションの醍醐味だと改めて実感しました。

竣工したばかりとはいえ、家は年月が経つと必ずメンテナンスが必要になります。とくに木造住宅は湿気に弱いので、定期的な点検と簡易補修が建物を長持ちさせる鍵です。基礎周りや外壁シーリング、屋根の板金など、目視できる範囲は年に1回はチェックしてほしいと思います。異常があれば早めに対応し、家の寿命をさらに延ばす工夫を続けていただければと思います。

 
 

全国のフルリフォーム・リノベーション『ピックアップ事例』※プロの詳細解説付きレポート

HEAT20-G2/耐震等級3
新耐震基準の性能向上リノベーション
築30年ハウスメーカー軽量鉄骨
断熱改修&リノベーション
 
中古住宅を新築以上の耐震性能と断熱性能へ!
耐震等級3フルリフォーム
地下付き木造2階建て
自然素材をつかった性能向上リノベーション&フルリフォーム

東京都文京区 K様邸

長屋を切り離して1つの構造体へフルリフォーム&リノベーション
隣家との距離がない!
部屋から外壁を張り替えるフルリノベーション
中古住宅を耐震等級3へ!
中古住宅リノベーション
 
基礎がない??
築60年の古屋をジャッキアップで基礎新設フルリノベーション

東京都渋谷区 O様邸

戸建てリノベーション・リフォームに関するお問合せはこちら

増改築.comの一戸建てリフォーム専用ホームページに
お越しいただき、誠に有難うございます。
 
増改築.comメンバーは技術集団となり、
他社のような営業マンがおりません。
技術者が直接ご相談にのり問題解決を行います。
 
従いまして、
お客様の方である程度のご要望が整理されました段階、
お悩みが工事内容のどのようなところにあるのか?
ご予算がどの程度絞る必要があるのか?
など明確になった段階でのご相談をお願いしております。
お問合せ・ご相談はお電話・メールにて受け付けております。
メールの場合は以下のフォームに必要事項をご記入の上、
「送信する」ボタンをクリックをお願いします。

代表稲葉高志

戸建てリノベーションの専属スタッフが担当致します。
一戸建て家のリフォームに関することを
お気軽にお問合せください

よくあるご質問
  • 他社に要望を伝えたところできないといわれたのですが・・・
  • 他社で予算オーバーとなってしまい要望が叶わないのですが・・・
  • サービスについて詳しく聞きたいのですが・・・

どのようなお悩みのご相談でも結構です。

あなたの大切なお住まいに関するご相談をお待ちしております。

営業マンはおりませんので、しつこい営業等も一切ございません。

設計会社(建築家様)・同業の建築会社様のご相談につきましては、プランと共にご指定のIw値及びUa値等の性能値の目安もお願い申し上げます。

2026年の大型補助金が確定したことで現在大変込み合っております。

耐震性能と断熱性能を向上させるフルリフォームには6か月~7か月の工期がかかります。

補助金獲得には年内に報告を挙げる必要があることから、お早目にご相談をお願いいたします。(6月着工までが目安

ご提案までに大変お時間がかかっております。ご了承のほどお願い申し上げます。

(5月までの着工枠が埋まりました)・・・2026/03/01更新

※すでにプランをお持ちのお施主様・設計資料をお持ちのお施主様は内容をフォームで送信後、フォーム下のメールアドレスに資料をお送りください。対応がスムーズです。

必須

(例:増改築太郎)

必須

(例:contact@high-will.co.jp)

(例:03-5615-2826)

必須

(例:東京都荒川区西日暮里2-35-1)

(例:築40年)

(例:25坪・100㎡など)

(例:2000万程度など)

  • ※再建築不可のリフォームでは金融機関が限られます。事前審査をお勧めいたします。

    (例:2024年3月くらいに完成希望など)

    必須

    できるだけ具体的にお知らせくださいませ。既存設計資料、リフォーム後のイメージ図等をお持ちであれば下記のメールアドレスより添付をお願いします。

    ※次の画面がでるまで、4~5秒かかりますので、
    続けて2回押さないようにお願いいたします。

    ※次の画面が出るまで、4〜5秒かかりますので、
    続けて2回押さないようにお願いいたします。

    図面や写真等を送信いただく場合、また入力がうまくいかない場合は、上記内容をご確認のうえ、下記メールアドレスまでご連絡ください。

    お電話でのお問合せはこちら

    0120-246-991

    営業時間:10:00~17:00(土日祝日を除く)

    ★YouTube「増改築.comチャンネル」チャンネル登録して新動画解説をいち早くGET!!★
    「増改築.comリノベ診断」であなたに一番ふさわしいフルリフォームを診断!!(動画解説付き)
    ★Facebookページにいいね!を押して最新コンテンツ情報をいち早くGET!!★
    パソコン|モバイル
    ページトップに戻る