戸建フルリフォームなら「増改築.com」TOP > 施工事例 > 都道府県で探す > 東京都杉並区 > 施工事例 K様 基礎のない木造店舗フルリフォーム&フルリノベーション事例

都内リフォーム会社社長からの救援相談!難易度Sクラス事例!

基礎のない木造店舗フルリフォーム&フルリノベーション事例

杉並区 木造戸建て施工事例

 

人気エリアの杉並区阿佐ヶ谷での木造店舗フルリノベーション事例を公開。ご相談いただいたK様は、なんと都内リフォーム会社の社長様。社長様所有の木造店舗について、「長期間雨ざらしのまま放置していたところ、建物の腐食もひどい状態となってしまった。基礎がなく建物の傾きがいよいよ危険な状態となった為、手に負えない。至急構造体の補強をして欲しい」とのご相談でした。。JR中央線の線路沿いの立地であったことから、線路側にいまにも建物が倒れてしまいそうな建物でしたが、補強を入れながら家起こし、ジャッキアップし基礎の新設を行い、構造体の補強までを行いました。最終の仕上げ工事(表装工事)はご自分の会社でしていただきましたので、今回の事例は、構造体の補強、外部工事、造作工事、店舗内装の一部までがメインの施工事例となります。数々の高難易度の現場をこなしてきたハイウィルですが、この年、最高難易度の現場となりました。

インテリア装飾工事は、K社長様の会社で施工されたため、キレイなAfter写真はございませんが必見です。

建物概要
名前 K様
場所 東京都杉並区阿佐ヶ谷
築年数 築50年
構造種別 木造一戸建て
家族構成 店舗
対象面積 15坪
リフォーム部位

基礎新設/間取り変更/ジャッキアップ/耐震補強/フルスケルトンリフォーム

工期 6ヶ月
価格 2000万(税別)

お客様のご要望

今回のリフォームで、K様からのご要望は以下の5点です。

  • 数年間雨ざらしにしていたため躯体が心配耐震補強したい
  • 基礎が無いため自身で工事のしようがないジャッキアップによる基礎新設をお願いしたい
  • ロフトスペースを作りたい
  • ベタ基礎にしたい
  • 構造評点1.5以上

プランナー 北畠より ~プランニングのポイント~

阿佐ヶ谷駅から歩いて直ぐの空き店舗だった築50年木造2階建て。K様は、柱だけ残し1階・2階共店舗としてリフォームされたいとご要望でした。1階と2階は違う店舗として使用するので2階へ上がる階段は外から2階へ上がれる位置に設置し、その他はK様がご自身で内装等はされるとの事でしたので、窓の設置と給排水の位置だけご提案をさせて頂きました。

 

杉並区K様邸 戸建てリノベーション施工事例テーマカテゴリー

 

  • 耐震等級3相当(上部構造評点1.5以上)リフォーム(性能向上リノベーション)
  • 裏打ち工法
  • 狭小住宅リフォーム
  • 店舗リノベーション
  • 内外部スケルトンリフォーム

打ち合わせから着工、完成までの詳細施工事例紹介

1 店舗リノベーション着工前

1-1 現場調査・打合せ
杉並区 木造スケルトンリフォーム既存

数年間放置していたとのことで建物の傷みが外観よりわかります。

阿佐ヶ谷 戸建てリノベーション既存

JR中央線の高架線沿いの店舗。

K様の杉並区阿佐ヶ谷の店舗は、JR中央線の高架線沿いの商店街に建つ建物で、建物を数年間放置していたとのことで、建物が傷み建築基準法上の道路に敷地が接道しておらず、再建築不可となっておりました。

搬入経路が厳しい現場になると予測ができます。

 
阿佐ヶ谷 戸建てリノベーション 隣家との距離

建物側面の一方向は何とか足場が架けられるロケーションとなっておりました。

杉並区 戸建てリノベーション既存

屋根は一部腐ってしまったため、応急処置としてブルーシートを張っていたとのことでした。

建物の側面をみると、足場が入る側面と足場がかけられない面があることがわかりました。外壁を剥がすご要望がありましたので、”裏打ち工法”で建物内側より外壁を解体し、同じく室内より防火パネルを設置する提案をさせていただきました。


背後がJRの所有地となり、解体後に倒壊などしてしまっては大変なことになります。このようなリスクもK様にはお話をさせていただき、解体後の傷みが予想できたことから、解体には時間がかかる事と、解体をしながら仮補強が必須であることをご説明させていただきました。

建物から15㎝でJRの敷地内となります。

阿佐ヶ谷 戸建てリノベーション 足場位置

片側の建物側面は足場スペースの確保が可能と判断しました。


基礎の有無は室内からは確認できず、外部から一部解体をさせていただき判明しましたが、内部の傷みをかなり進行しておりました。

既存店舗部分

数年間放置状態となっていた店舗内部。残置物が多く調査が困難ではありましたが、柱の位置を探しつつ既存平面図を復元していきます。

店舗カウンター内部。残置物が多く土台等の調査が内部から難しい状態でした。


既存階段部分

阿佐ヶ谷 戸建てリノベーション 既存1階

すでに躯体が腐食している箇所が目視でわかりました。

阿佐ヶ谷 戸建てフルリノベーション 既存階段

階段は外からも店舗からも二階へ上がれる間取りとなっていました。


既存2階部分

二階は雨漏れ被害がひどく屋根には穴が開いている状態でした。和室には雨水が浸透しており、腐食の度合いが心配なところです。

阿佐ヶ谷 戸建てフルリノベーション 2階既存

二階の二部屋も雨漏れの浸水被害を受けており解体後の躯体状況がきになるところです。

阿佐ヶ谷 既存2階 フルリノベーション

二階和室部は洋室側以上に被害がひどいことがわかりました。


その他

阿佐ヶ谷 戸建てリノンベーション 既存天井

ブルーシートでの応急処置はしてありましたが、風で住み間が開いている状態です。

阿佐ヶ谷 戸建てフルリノベーション 既存トイレ

二階既存トイレは隅付トイレです。

1-2 東京都杉並区阿佐ヶ谷K様邸 店舗リノベーションプラン

  間取りの変更プラン  

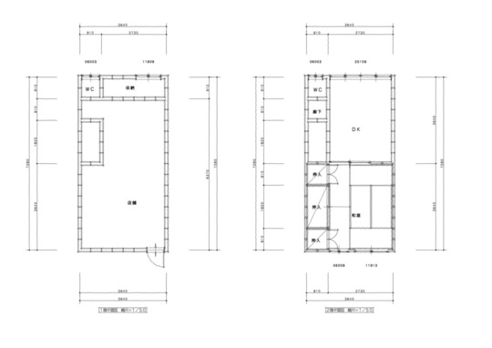
阿佐ヶ谷 戸建てリノベーション 既存図面

1階・2階 既存平面図

阿佐ヶ谷 戸建てリノベーション 新規

1階・2階 新規平面図

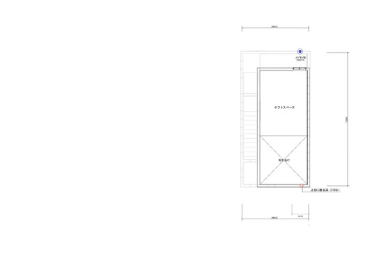
阿佐ヶ谷 新規ロフト

ロフト 新規平面図

既存建物は1階が店舗で2階が住まいとして設計されてました。階段は1階店舗内から2階の居住スペースに上がる設計でした。リフォーム後は1階2階と別店舗なので、階段位置は道路面から直接2階へ上がれる位置に設計してあります。K様より、小さくてもロフトが欲しいとご要望頂いていたので解体後現場監督と確認後可能な範囲で設置させて頂いております。

K様の店舗フルリフォーム&フルリノベーション工事はこうしてはじまりました。

2 店舗リノベーション着工

2-1 店舗リノベーション解体工事

解体は手壊し作業(人力解体)

東京都杉並区阿佐ヶ谷のリフォーム会社社長K様所有の店舗フルリノベーションでは、内部のみのスケルトン解体ではなく、外壁までを解体する内外部スケルトンリフォームとなります。その為、完全な躯体(スケルトン)残しとなります。

今回のK様のフルリフォームやフルリノベーションで、いきなり山場となると予想していたのがこの解体工事でした。

通常の内外部スケルトンリフォームのような躯体残しのリフォームでは、新築のような機械壊しが出来ないことから、解体職人による手壊し作業となります。それもリノベーション後の間取りを検討し、抜く柱や抜けない柱など細心の注意を払いながらの解体となります。通常のリノベーションであっても注意を払う工程となりますが、K様の建物は基礎がないため、まともに解体を進めてしまうと支える躯体がなく倒壊の恐れがあるからです。正面は商店街、裏手はJR所有地、側面はぴったりと建物が建っているロケーションとなり、万が一倒壊でもしてしまえば大惨事になりかねません。

阿佐ヶ谷 戸建てリノベーション 既存外観

主要構造体が見えるところまでを少しずつ剥離するように解体を進めていきます。

阿佐ヶ谷 戸建てリノベーション 解体

建物内部より、天井・壁・床の解体を進めていきます。

阿佐ヶ谷 戸建てフルリノベーション 解体

K様の建物は商店街沿いの店舗となります。内部の耐力としては弱い壁を中心に解体をすすめつつ廃棄物を何回に分けてトラックを一時的に停車しては積み荷をするなど小分けにして短時間で行う必要があります。

主要構造体が徐々にみえてきました。

杉並区 戸建てフルリノベ 解体

2階が主要構造体のみを残す状態まで解体が終わりました。

戸建てリノベーション 杉並区 解体

耐力壁となっている外壁部は残し、内部のみの解体を進めました。

阿佐ヶ谷 リノベ 解体

1階の内部もほぼ解体が終わりました。

主要構造体のみが残り、完全なスケルトン(躯体)となりました。やはり基礎が無いのがわかります。


解体後の調査フェーズ

 

解体の流れを見ていきましたが、解体を進める段階で、既存の躯体の傷み具合も判って参りますので、ここからは傷み具合も見ていきたいと思います。

大事な構造部のすべてが目視可能となるスケルトンリフォーム

内部の天井・壁・床だけでなく外壁まで解体しスケルトン状態(躯体残し)にする戸建てリノベーションの最大のメリットはこのような重要な主要構造部のすべての状態が目視でわかることになります。K様のケースもスケルトンにすることで、既存の構造躯体がどれだけ傷んでいるのかがお分かりいただけました。解体前に補強計画を立ててはいましたが、この状態でそのまま補強が出来るのかどうかを判断しなければなりません。非破壊での机上の補強計画をそのまま補強工事するためには、前提となる構造体がしっかりと利用できるものなのかどうなのかを判断しなければならないのです。

フルリノベーション後は、これらの構造上の弱点をすべて修正し補強することで新築と同水準、もくしくはそれ以上の建物性能をもつ構造躯体へ甦らせることが可能となります。

阿佐ヶ谷 戸建てリノベーション 柱腐食

基礎はなく柱も腐食が進んでいるのがわかります。

杉並区 戸建てリノベーション 柱腐食

浸水が進み指が入ってしまうほど柱が腐食していました。補強でどうかなるレベルではないことがわかります。

阿佐ヶ谷 戸建てリノベーション 梁腐食

構造体として重要な梁も腐食が見られます。

杉並区 戸建てフルリフォーム 柱腐食

柱の腐食が二階まで進んでいる箇所がありました。これは危険です。

阿佐ヶ谷 戸建てフルリノベーション 解体後腐食

初回の調査の際に、雨ざらしになっていた畳部分です。やはり腐食が進行していました。

杉並区 戸建てフルリノベーション 柱腐食

構造体として機能しない柱が多数あることがわかりました。外壁をこのまま落とすのは危険です。

杉並区 戸建てリノベーション 桁腐食

主要構造部の桁も腐食が見られます。

通し柱腐食 杉並区 戸建てリノベーション

最も重要な通し柱の腐食が。。補強の方法も検討しなければなりません。


解体後の倒壊防止対策案策定

 

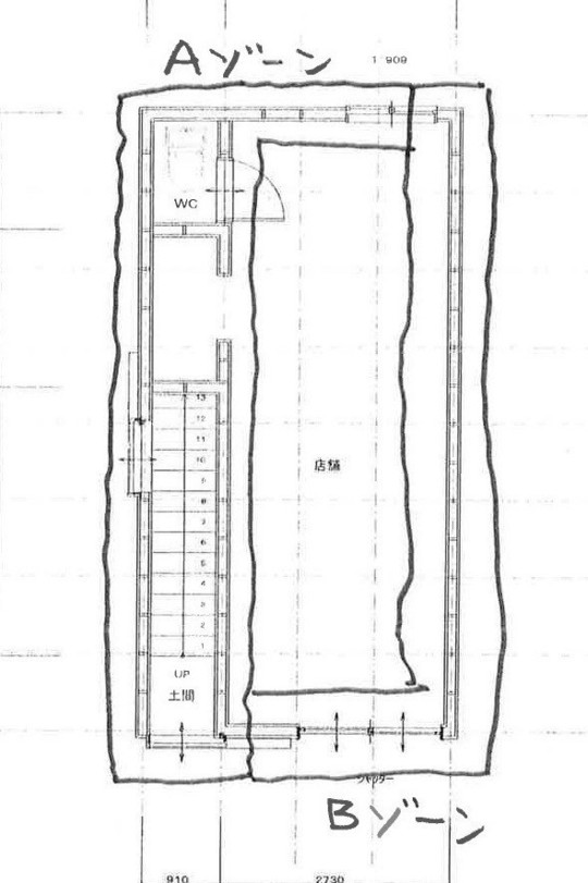
手壊しによる内部解体工事が終わり、産業廃棄物の廃棄が完了すると急ぎ行わなければならないのが倒壊防止対策となります。基礎がない状態で既存の構造体の多くが腐食、腐朽している状態であるため、このまま外壁を解体してしまうと倒壊してしまいます。ここからは仮補強をいれながら外壁も剥離を進めていくことになります。今回は構造体の補強や基礎の補強以前に、倒壊しないための仮補強計画を作成しました。まさに工事に入るための補強です。解体が進む過程で傷みが発覚した時点で、この後の工程で担当する大工を集め、仮補強の方法を検討する会議を行いました。今回の仮補強の要点は6つです。

① まず、基礎がないため、柱がそのまま土に埋まっており、柱が立つ土台自体が腐っている為、解体後は柱が土に刺さっている状態となります。その為、建物が構造体ごと沈下してしまう可能性があることと、柱同士が土台で結合していない状況であったため、いつ倒壊してもおかしくない状態となってしまいます。そのため柱の株を仮固定する必要がありました。(構造躯体を仮で一体化させる)

② 柱が建物正面となる商店街沿いに1メートルあたり22㎜倒れている為、建物奥側へ家起こしする。(家起こし)

③ 建物の手前と奥の柱を仮筋交いで固定しねじれ対策をする。

④ 梁が足りない状態の為、室内側の梁にサポートを架ける

⑤ 敷地に余裕がない面(Aゾーン)は外周の桁まわりにまくらをかませて梁でサポートする

⑥ 敷地に余裕がある面(Bゾーン)は、サポートを立てて梁、桁をサポートする

 

戸建てリノベ ラフスケッチ

職人との現場打合せに使用した手書きメモ

阿佐ヶ谷 リノベ ラフスケッチ

現場用の手書きメモ

戸建てフルリノベ ラフスケッチ 杉並区
阿佐ヶ谷 飛散防止壁

JR敷地内に飛散防止用に仮で壁を建てました。

阿佐ヶ谷 戸建てリノベーション 仮囲い

一日を通して人通りが激しい商店街面となる建物正面にも板で仮囲いをします。

杉並区 戸建てフルリノベーション 仮囲い

足場の設置が可能な側面へも板で仮囲いをしていきます。

阿佐ヶ谷 戸建てリノベーション 室内仮筋交い

打ち合わせに基づき本格解体前の仮補強(仮筋交い)を入れていきます。

基礎がないため土台も腐食しており柱が埋まっている状態になっています。柱同士を下部で固定していきます。

耐力壁がない状態、かつ基礎、土台がない状態の為、仮筋交いを入れ倒壊防止をします。

既存の桁周りが躯体の自重で沈下してしまうため、室内側に梁を架けます。梁下にはサポートをかけます。

基梁を桁の下へ架け、梁は桁が落ちないようにサポートをかけていきます。これで自重では沈下しない状態となります。

さらに既存構造体の全体に仮筋交いをかけていきます。

杉並区 戸建てフルリノベーション 仮筋交い

仮筋交いが完成したところで、外壁部の耐力壁等をすべて解体できます。まさにサポートのみで躯体が持っている状態となります。

阿佐ヶ谷 仮筋交い 戸建てリノベ

解体の廃棄物処理が終わり、大工が入り仮筋交いの設置をします。解体職人では抜けない柱などは大工が抜き仮での補強を入れます。

杉並区 戸建てリノベーション 仮筋交い

主要構造体の使えるもののみが残っている状態です。仮筋交いが終わり完全なスケルトン(躯体)となりました。ここまでを行い、はじめて基礎工程へと移行できます。

2-2 基礎補強工事
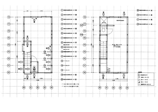
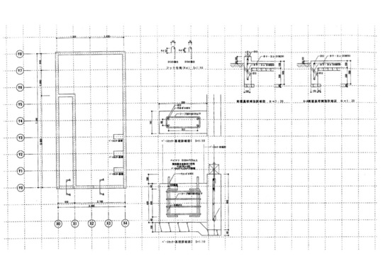
阿佐ヶ谷 戸建てリノベーション 基礎伏図

<基礎伏せ図>

阿佐ヶ谷 戸建てフルリノベ 基礎詳細
阿佐ヶ谷 戸建てフルリノベーション ベースセッター

今回構造計算上必要となったカネシンの「ベースセッター」

杉並区 戸建てフルリフォーム 基礎詳細
阿佐ヶ谷 戸建てフルリノベーション 基礎詳細

構造上のチェックが終わると、フルスケルトンリフォームでは、基礎工事へと移行していきます。

今回の杉並区阿佐ヶ谷の店舗リノベーションでのキモとなるのが基礎新設工事となります。K様の店舗は基礎がありませんでしたので、既存の構造躯体を持ち上げ基礎を新設する工事となります。しかしながら基礎を新設しても、K様の要望されている間取りでは、上部構造評点(Iw値)は、1.5を超えることはできません。K様は、国基準(Iw値1.0)の1.5倍以上の耐力にして欲しいとの強いご要望がありました。ご要望のリノベーション後の間取りでは横方向の耐力がなくどうしても1.5を超える計画にはなりません。そこで今回ご提案させていただいたのが、カネシン社の「ベースセッター」という耐震金物の採用でした。この金物を使用し構造計算することで1.5を超える計画が可能である旨をK様にお伝えし、採用を決定していただきました。

基礎が無い 阿佐ヶ谷 戸建てリノベーション

建物に基礎がないことがわかります。

基礎工事 阿佐ヶ谷 戸建てフルリノベーション

ベースとなる耐圧盤は150㎜としました。防湿シート施工後に配筋していきます。

阿佐ヶ谷 戸建てフルリノベーション コンクリ打設

隣地との距離がない側面は1部の基礎ベース部にコンクリート打設が化膿しました。このあとは立上り部です。

基礎補強 戸建てフルリフォーム 阿佐ヶ谷

基礎がない部分へは新規で立上り配筋(D13)をしていきます。

ベース配筋 戸建てフルリフォーム 阿佐ヶ谷

隣地との距離がある側面部。ベース配筋と立上り配筋を同様にしていきます。

ベースセッター 阿佐ヶ谷 戸建てリノベ

この際に、今回採用するベースセッター配置の為の配筋を行います。今回は3か所の設置です。

ベースセッター固定 阿佐ヶ谷 基礎工事

ベースセッターを基礎と固定する最も大切な工程。

基礎補強 戸建てリノベ 阿佐ヶ谷

基礎ベース部分(耐圧盤)の施工が完了すると、立上り基礎へのコンクリート打設となります。型枠(立上り枠工)を設置していきます。

戸建てリノベーション 基礎型枠 阿佐ヶ谷

既存の柱はすべて切断し既存の躯体はサポートで宙に浮いている状態となります。側面の立上り枠工も完了しました。

杉並区 ベース基礎 戸建てフルリフォーム

ベース基礎部分(耐圧盤)に続き、二度打ち目のコンクリート打設です。

コンクリート打設 阿佐ヶ谷 リノベ

コンクリート打設後。

型枠外し 阿佐ヶ谷 戸建てリノベーション

2週間経過後に型枠を取りはらいました。新設基礎の完成です。

アンカー固定 阿佐ヶ谷 戸建てリノベーション

基礎に土台を設置。アンカーボルトで固定。

新設基礎 阿佐ヶ谷 戸建てリノベーション

階段部側面の新設基礎。難所の1つを乗り越えました。

土台設置 阿佐ヶ谷 戸建てフルリノベーション

土台を設置していきます。

阿佐ヶ谷 戸建てリノベーション 柱設置

土台設置後に柱を配置していきます。

K様邸では地盤が良好であることからベタ基礎を採用しました。

すべてがベタ基礎が良いというわけではありません。

ベタ基礎は建物全体と同程度の荷重となりますので、建物の重さとのバランスもかかわってきます。足元だけ固めていても屋根を含めた建物とのバランスが悪いと大地震が起きた際にせん断力が働き、ホールダウン金物が抜けるような事態になるケースもあるからです。

大規模な戸建てリノベーションをされる際には、木造を熟知し、実績が豊富な会社へ相談することをお勧めする理由でもあります。

ベースセッター 阿佐ヶ谷 戸建てリノベ

ベースセッターとは?

ベースセッターは、高強度の耐力壁を狭小幅で可能にした柱脚金物です。基礎と450mm幅の耐力壁柱が一体となった耐力壁は、壁倍率5倍の耐震性を確保できます。狭小スペースで高い耐震性能を発揮できるため、今回のような横方向の耐力壁が取れない店舗などではこの商品がなければ上部構造評点(Iw値)は1.5以上を取ることは難しく偏心率を下げることはできませんでした。通常時では狭小地での開口の確保や圧迫感が少なく見通しのきくリビング・ダイニング、ゆとりあるガレージなどに使用します。

ベースセッターは基礎一体型の金物となりリフォームで採用する会社は少ないです。そもそも正しい基礎補強方法を知らず、基礎補補修程度しか行わないリフォーム会社が多くを占めている現状ですが、

戸建て一軒家のリノベーションで、基礎補強をする際は、このような知識のある会社に相談することが必要です。

2-3 木工事(木構造補強工事)
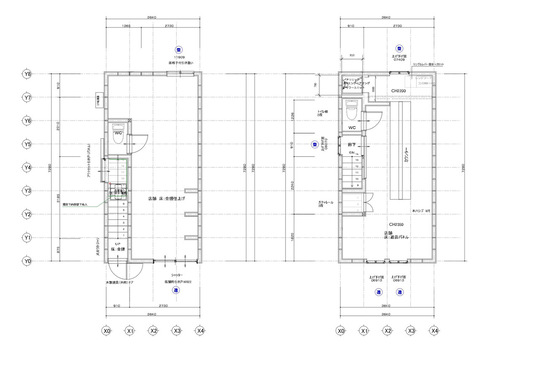
補強後図面 杉並区 戸建てフルリノベーション

<1階・2階平面図(補強後)>

基礎が終わり大工工事へと移行しますが、K様の店舗リノベーションでは柱を全て切断し構造躯体をサポートした状態、躯体が宙に浮いている状態で、基礎を新設しました。基礎を新設した後は土台を配置し、宙に浮いている桁や梁といった横架材(構造体)と柱を固定する作業から始まります。構造躯体の強度を担保するためのいわばメイン工事となります。

阿佐ヶ谷 戸建てリノベーション ジャッキアップ

水平レベルに合わせ、桁をジャッキアップさせ柱を一本ずつ設置していきます。

大工工事 杉並区 戸建てフルリノベ

腐食した桁の一部取り直しをしていきます。このあたりの継手や仕口はすべて手刻みとなります。戸建てリノベーションが新築大工ではできない理由です。

阿佐ヶ谷 戸建てフルリフォーム 桁設置

外周周りの桁のレベルにあわせ、柱を外回りから配置していきます。

柱配置 戸建てリノベ 阿佐ヶ谷

隣家との距離のない側面へも柱を配置していきます。

阿佐ヶ谷 戸建てフルリノベーション 柱配置

柱外周の桁まわりへの柱配置が完了するといよいよ内部の構造体を組んでいく工程へと移行していきます。

戸建てリノベーション 腐食箇所修正 阿佐ヶ谷

雨水による被害で腐食していた側面の桁ほぼ新設となりました。

新規構造 戸建てフルリノベーション 阿佐ヶ谷

K様邸は躯体の傷みが激しく、残せる構造体は梁の一部と桁の一部のみとなり既存の構造躯体はほぼない事がわかります。

剛床工法 阿佐ヶ谷 戸建てリノベーション

二階は剛床工法とし水平耐力を満たす施工で対応させていただきました。

新規通し柱 阿佐ヶ谷 戸建てリノベ

既存和室部で浸水被害がひどかった通し柱部分も新規で柱を設置し柱脚部へは耐震金物で固定していきます。

柱頭金物 阿佐ヶ谷 戸建てリノベーション

柱頭金物も配置。構造補強を進めていきます。

阿佐ヶ谷 戸建てリフォーム 剛床工法

構造体が組みあがって参りました。新築とほぼ同量の材木量です。残せる躯体はあまりなくあたらな構造材で旧構造体を補強して組み上げを行いました。二階床は水平剛性硬化の為に剛床としました。
→剛床工法についてはこちらをご覧ください。剛床工法について

外壁下地 戸建てフルリフォーム 杉並区

外周周りへの柱の新設が完了すると、外周周りへの壁補強工事をおこないます。ここでもさまざまなご提案をさせていただき、外周周りへは壁倍率に加え湿気対策にもなる「モイス」等もございましたが、この時点でご予算もオーバーしている現状もありましたため、構造用合板を足場の入らない1面以外に張り込んでいきます。

金物補強 戸建てリノベーション 阿佐ヶ谷

柱頭部への金物補強。

阿佐ヶ谷 戸建てリノベーション 柱脚金物

柱脚部への金物補強。

同じく柱脚部への金物補強。そしてアンカーボルト。

阿佐ヶ谷 戸建てフルリノベ 新規構造

外周への構造用合板張りが完了し天井の野縁組みを行っていきます。

野縁組 阿佐ヶ谷 戸建てフルリノベーション

1階も天井野縁組をしていきます。

阿佐ヶ谷 新規ロフト 戸建てリノベ

K様はロフトもご要望でしたのロフトも作業を進めていきます。

阿佐ヶ谷 戸建てリフォーム 新規階段

階段室の木組みが終わりました。鉄骨会社と鉄骨階段の打ち合わせも同時に行っていきます。

基礎工事 阿佐ヶ谷 戸建てリノベーション

基礎工事で埋め込んだアンカーにいよいよベースセッターを設置するタイミングです。

杉並区 ベースセッター 戸建てフルリノベーション

ベースセッターが到着しました。

基礎補強 戸建てリノベーション 杉並区

あらかじめ埋め込んだボルトにベースセッターを緊結していきます。

ベースセッター固定 阿佐ヶ谷 戸建てフルリノベーション

ベースセッターの固定が完了しました。

阿佐ヶ谷 戸建てリノベーション 耐力

K様邸では、構造計算上、足場が入らない面への壁補強が出来ない点や横耐力不足、偏心率の問題から、手前に3か所のベースセッターの設置で構造評点1.5以上なおかつ偏心率0.15以内での耐震改修となりました。

杉並区阿佐ヶ谷のリフォーム会社社長K様の所有店舗のフルリノベーションの解体から仮補強、基礎新設、木部補強までを見ていきました。社長様が弊社にご要望していた構造補強の工程はすべて完了しました。ここからは断熱パート、造作パートとなります。当初はここまでのご依頼であったのですが、すべてやって欲しいとのことで引き続き工事を続行致しました。

2-4 断熱工事

杉並区阿佐ヶ谷のリフォーム会社社長のK様の店舗リノベーションでの断熱材は、高性能グラスウールを採用しました。当初はセルロースファイバーを採用する予定でしたが、構造部の施工費用で予算を大幅に超えてしまったこともあり、見合わせました。グラスウールを充填していきます。

断熱工事 阿佐ヶ谷 戸建てフルリフォーム

K様邸の店舗フルリノベーションでは断熱材はグラスウールを採用しました。

セルロースファイバー 杉並区 戸建てフルリノベーション

二階の階段部の壁へのグラスウール充填セルロースファイバー充填

断熱工事 杉並区 戸建てリノベーション

壁を先行して充填していきます。

阿佐ヶ谷 断熱工事 戸建てリノベーション

グラスウール充填の難しさは隙間なく充填することに尽きます。

2-5 外壁リノベーション工事
裏打工法 阿佐ヶ谷 戸建てフルリノベーション

足場が入らない側面へは部屋内から防火パネルをくみ上げていく「裏打ち工法」での施工。狭小地や下町等では多く採用される工法となります。
→裏打ち工法の詳しい解説はこちら「裏打ち工法とは?」

外壁 戸建てフルリフォーム 阿佐ヶ谷

正面と裏面、足場が入る側面の3方へはサイディング張りとなりました。

阿佐ヶ谷 外壁 戸建てフルリフォーム

足場設置が可能であった側面

杉並区 外壁 戸建てフルリノベーション

足場設置が不可能であった側面へは部屋内より防火パネルの配置を行いました。

2-6 屋根工事
屋根下地 阿佐ヶ谷 戸建てフルリノベーション

防水透湿シート貼り

阿佐ヶ谷 戸建てフルリノベーション 屋根工事

ケラバ部の施工

ガルバリウム鋼板 阿佐ヶ谷 戸建てフルリフォーム

ガルバリウム鋼板葺き

戸建てリノベーション ガルバリウム鋼板

ガルバリウム鋼板葺き

2-7 造作工事

構造部の構造補強が終わると、造作工事に入ります。

強化ボード 阿佐ヶ谷 戸建てフルリノベーション

内壁は強化ボードを張っていきます。

新設ロフト 阿佐ヶ谷 戸建てフルリノベーション

二階はロフトを設置し断熱サッシを配置しています。

断熱防火サッシ 阿佐ヶ谷 戸建てフルリノベーション

断熱防火サッシの設置

ボード15mm貼り 阿佐ヶ谷 戸建てリノベーション

梁周りへも防火のためのボード15㎜張り

内装仕上げ 阿佐ヶ谷 戸建てリノベーション

ボート梁完了後は、パテを工事をしていきます。

阿佐ヶ谷 造作カウンター フルリフォーム

店舗部のカウンターも造作で作って欲しいとのご要望で制作させていただきました。

杉並区阿佐ヶ谷のK様店舗リノベーションでは、内装工事は当初ご依頼はなく構造補強までの施工でした。その後造作までお願いしたいとのご要望をいただきましたため、工程は一旦空いてしまい、しばらくお待ちいただいての工事再開となりました。

3 戸建てリノベーション竣工

店舗部のカウンターやバックカウンター、内装の一部まではお願いしたいとのご用命があり、ご要望をヒアリングさせていただき造作工事を行いました。

造作家具 戸建てリノベーション 阿佐ヶ谷

カウンターの造作家具工事

内装工事 阿佐ヶ谷 戸建リノベーション

ランバー材でのバックカウンター工事

阿佐ヶ谷 戸建てリノベーション 内装仕上げ

下部には扉を設置しました。

戸建てリノベーション 杉並区 内装仕上げ

カウンター内部


4 担当者より
(「増改築.com®」本部ハイウィル株式会社四代目代表稲葉高志)

K様の出会いは、メールでのご相談で、「築50年の木造2階建約10坪の店舗です。基礎がなく、すでに雨漏れをしている状態で数年間放置している状態です。骨組み残しで全て解体リノベーションし、構造評点は1.5以上にしたいです。一階、二階とも店舗にしたいのですが、いくらぐらいかかりますか?」とのお問い合わせでした。現地に行って調査をさせていただきますと、都内のリフォーム会社の社長様でした。弊社では、1級建築士や職人の家を新築したりリノベーションしたりは大変多いのですが、リフォーム会社の社長さまは初めてでしたので、まずお聞きしたのが、御社で工事をされないのですか?とお聞きいたしました。K様のリフォーム会社では、マンションリノベーションや水周りリフォームを主体としている為、木造のリノベーションは畑違いとのことで相談したとのことでした。当初は、内装工事はK様の会社で行う想定でお話を進めさせていただき、ご契約をさせていただきました。工事が着工し、解体が終わると現状確認された際に既存の構造躯体をご覧いただき愕然とされておられました。弊社もここまでの傷みを想像しておらず、少なくとも通し柱は利用できるだろうと予測していました。結果として通し柱も抜き替えとなり、追加の費用も出てしまう結果になりました。K様は業界の方であったため、現地を確認していただきすべてご納得の上で工事を進めさせていただきました。構造補強が完了し、お引渡しの予定で動いておりましたが、「ここでお世話になったので仕上げまでお願いします。」というお言葉を頂き、店舗のインテリア装飾工事は行いませんでしたが内装工事までを担当させていただきました。お引渡しが終わり大変お喜びいただけありがたいと思います。その後も、難易度の高い工事をご紹介いただくなどお世話になっております。

K様、この度はご依頼をいただき、誠にありがとうございました。

他のリフォーム事例を見る

基礎屋さんのお宅の基礎補強
二世帯住宅フルリフォーム

リノベーション
隣家との距離がない!
部屋から外壁を張り替えるフルリノベーション
中古住宅を耐震等級3へ!
中古住宅リノベーション
基礎がない??
築60年の古屋をジャッキアップで基礎新設フルリノベーション

東京都渋谷区 O様邸

全国のフルリフォーム・リノベーション『ピックアップ事例』※プロの詳細解説付きレポート

HEAT20-G2/耐震等級3
新耐震基準の性能向上リノベーション
築30年ハウスメーカー軽量鉄骨
断熱改修&リノベーション
 
中古住宅を新築以上の耐震性能と断熱性能へ!
耐震等級3フルリフォーム
地下付き木造2階建て
自然素材をつかった性能向上リノベーション&フルリフォーム

東京都文京区 K様邸

長屋を切り離して1つの構造体へフルリフォーム&リノベーション
隣家との距離がない!
部屋から外壁を張り替えるフルリノベーション
中古住宅を耐震等級3へ!
中古住宅リノベーション
 
基礎がない??
築60年の古屋をジャッキアップで基礎新設フルリノベーション

東京都渋谷区 O様邸

戸建てリノベーション・リフォームに関するお問合せはこちら

増改築.comの一戸建てリフォーム専用ホームページに
お越しいただき、誠に有難うございます。
 
増改築.comメンバーは技術集団となり、
他社のような営業マンがおりません。
技術者が直接ご相談にのり問題解決を行います。
 
従いまして、
お客様の方である程度のご要望が整理されました段階、
お悩みが工事内容のどのようなところにあるのか?
ご予算がどの程度絞る必要があるのか?
など明確になった段階でのご相談をお願いしております。
お問合せ・ご相談はお電話・メールにて受け付けております。
メールの場合は以下のフォームに必要事項をご記入の上、
「送信する」ボタンをクリックをお願いします。

代表稲葉高志

戸建てリノベーションの専属スタッフが担当致します。
一戸建て家のリフォームに関することを
お気軽にお問合せください

よくあるご質問
  • 他社に要望を伝えたところできないといわれたのですが・・・
  • 他社で予算オーバーとなってしまい要望が叶わないのですが・・・
  • サービスについて詳しく聞きたいのですが・・・

どのようなお悩みのご相談でも結構です。

あなたの大切なお住まいに関するご相談をお待ちしております。

営業マンはおりませんので、しつこい営業等も一切ございません。

設計会社(建築家様)・同業の建築会社様のご相談につきましては、プランと共にご指定のIw値及びUa値等の性能値の目安もお願い申し上げます。

2026年の大型補助金が確定したことで現在大変込み合っております。

耐震性能と断熱性能を向上させるフルリフォームには6か月~7か月の工期がかかります。

補助金獲得には年内に報告を挙げる必要があることから、お早目にご相談をお願いいたします。(6月着工までが目安

ご提案までに大変お時間がかかっております。ご了承のほどお願い申し上げます。

(5月までの着工枠が埋まりました)・・・2026/03/01更新

※すでにプランをお持ちのお施主様・設計資料をお持ちのお施主様は内容をフォームで送信後、フォーム下のメールアドレスに資料をお送りください。対応がスムーズです。

必須

(例:増改築太郎)

必須

(例:contact@high-will.co.jp)

(例:03-5615-2826)

必須

(例:東京都荒川区西日暮里2-35-1)

(例:築40年)

(例:25坪・100㎡など)

(例:2000万程度など)

  • ※再建築不可のリフォームでは金融機関が限られます。事前審査をお勧めいたします。

    (例:2024年3月くらいに完成希望など)

    必須

    できるだけ具体的にお知らせくださいませ。既存設計資料、リフォーム後のイメージ図等をお持ちであれば下記のメールアドレスより添付をお願いします。

    ※次の画面がでるまで、4~5秒かかりますので、
    続けて2回押さないようにお願いいたします。

    ※次の画面が出るまで、4〜5秒かかりますので、
    続けて2回押さないようにお願いいたします。

    図面や写真等を送信いただく場合、また入力がうまくいかない場合は、上記内容をご確認のうえ、下記メールアドレスまでご連絡ください。

    お電話でのお問合せはこちら

    0120-246-991

    営業時間:10:00~17:00(土日祝日を除く)

    ★YouTube「増改築.comチャンネル」チャンネル登録して新動画解説をいち早くGET!!★
    「増改築.comリノベ診断」であなたに一番ふさわしいフルリフォームを診断!!(動画解説付き)
    ★Facebookページにいいね!を押して最新コンテンツ情報をいち早くGET!!★
    パソコン|モバイル
    ページトップに戻る