戸建フルリフォームなら「増改築.com®」TOP > 施工事例 > 都道府県で探す > 東京都豊島 > 施工事例 O様 再建築不可の実家を二世帯住宅へフルリフォーム&フルリノベーション

再建築不可でも新築以上の耐震性能と断熱性能に生まれ変わる!

再建築不可の実家を二世帯住宅へのフルリフォーム&フルリノベーション事例

豊島区 戸建リノベ before after


「おばあちゃんの原宿」として、テレビ番組などで取り上げられることが多い巣鴨のまち。巣鴨地蔵通り商店街のなかに「とげぬき地蔵」で有名な高岩寺があります。とげぬき地蔵より徒歩5分圏内にO様宅はございます。

O様は、築60年の木造2階建てで老朽化が激し い為、全面的なリフォームを希望 ・可能であれば間取りの変更も行いたい 。水道管の交換したい。予算は2300万円 (解体費や諸費用含む) 着工、完了を急いでいる訳ではないのですが、老朽化が激し い為、少しずつでも進めていきたいとご要望を頂きました。

(建物概要)
名前 O様
場所 東京都豊島区
築年数 築60年
構造種別 木造一戸建て
家族構成 大人3人
対象面積 31.1坪
リフォーム部位 ベタ基礎/基礎補強/間取変更/断熱サッシ取替/外壁サイディング/断熱工事/耐震等級3/外構
工期 7ヶ月
価格

2700万(税別)※外構別途

お客様のご要望

今回のリフォームで、O様からのご要望は以下の6点です。

  • 老朽化が激しい為、全体的なリフォームを希望
  • 可能ならば間取りの変更をしたい。
  • 水道管(宅内)交換したい。
  • 1階は母、2階は子世帯の2世帯で暮らす
  • 小屋裏収納が出来るなら造りたい。
  • 既存が窓が多いので極力少なくしたい。

 ~プランニングのポイント~

お母様が住まわれている家に、息子さんご夫婦の同居を機に耐震・断熱を見直し、性能向上リノベーション(フルリフォーム)のご要望を頂き、1階に家族が集まるLDK配置し、その他お母様の寝室・浴室・トイレをプランしています。2階は息子さんご夫婦スペースとして3部屋造らさせて頂きました。

解体後、屋根裏の構造を確認し小屋裏収納を造らさせて頂きました。

O様は完全同居(共有)型の二世帯住宅になります。

豊島区O様邸 戸建てリノベーション施工事例テーマカテゴリー

  • 耐震等級3相当(上部構造評点1.5以上)リフォーム(性能向上リノベーション)
  • 二世帯住宅リフォーム
  • 再建築不可リフォーム
  • 内外部スケルトンリフォーム

打ち合わせから着工、完成までの詳細施工事例紹介

1 着工前

1-1 現場調査・打合せ
豊島区 実家フルリフォーム

再建築不可のため、建物のロケーションをよく調査し搬入搬出経路を検討します。

豊島区 戸建リノベーション既存写真

奥まったところに玄関がありました。

再建築不可の建物は建物だけでなく現場を取り巻くローケーションの調査が大切になります。足場が架けられる状態かどうか、資材の搬入搬出はスムーズかどうか、車両はどこまでの大きさの車両が進入できるのか?

基礎補強を行う現場では、コンクリートミキサー車が停められるのかどうかなど調査する項目はたくさんあります。

 

豊島区 戸建既存外観 フルリフォーム

再建築不可の建物では足場が入らない建物も多く存在しますがOさまの建物の廻りに十分なスペースが有るので、足場を掛けるのも心配がいりませんでした。

豊島区 再建築不可 リフォーム

外壁はモルタルとトタンでは分かれている状態です。

ロケーションのほかには、外壁や屋根の痛みを外から目視できるので、このまま使用に耐えられるのかどうか、剥離解体が必要かなどをチェックしていきます。


1階お施主様既存玄関

1階既存玄関は広々とした玄関です。

豊島区 既存玄関 再建築不可

既存玄関スペースはたっぷり1坪ありました。

豊島区 戸建リノベ 既存玄関

既存玄関にはガラスが多く採光がありますが断熱で見ると欠損している状態です。


豊島区 既存キッチン 再建築不可

既存キッチン

既存キッチンはブロックキッチンです。

豊島区 二世帯リフォーム 既存

各居室は片引き戸で間仕切られています。


和室に広縁

既存1階は主に和室造りです。広いお庭に面してたっぷりの広縁があります。

 

豊島区 既存 広縁
豊島区 既存和室

日差しがたっぷり入る広縁


1-2 東京都豊島区O様邸 戸建リノベーションプラン

  間取りの変更プラン  

豊島区 既存1階平面図

1階 既存平面図

豊島区 既存2階平面図

2階 既存平面図

豊島区 新規平面図

1階 新規平面図

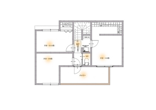
豊島区 新規2階平面図

2階 新規平面図

 

O様の同居型2世帯フルリフォーム工事はこうしてはじまりました。

2 着工

2-1 解体・撤去

解体は手壊し作業

O様邸の延べ床面積30坪と豊島区内では広い建物となります。今回のフルリフォームでは外壁までの解体となり手壊し解体となります。フルリフォーム後の間取りを考慮しながら慎重に進めていきます。

豊島区 解体作業
豊島区 戸建リノベーション 解体
戸建リノベーション 解体作業
再建築不可 解体作業

解体後の躯体チェック

解体後には、構造担当の設計士と施工管理者、大工での精密調査を行い、机上での耐震補強計画が可能なのか、図面と適合している箇所、適合していない解体後に判明する躯体状態などしっかりと調査を行います。構造計画では構造計算と同時にN値計算を行うことから、柱が想定した箇所にそもそも入っているのか(大壁となっており柱が見えない箇所などは柱が想定した位置に入っていないこともしばしば)入念にチェックを行います。主要構造部の痛みや腐食している箇所の特定などもここで行い、一部計画変更があれば、変更等も行います。

豊島区 解体写真 再建築不可
豊島区 既存解体
豊島区 戸建 内部スケルトンリフォーム
豊島区 二世帯 内部スケルトン
豊島区 二世帯 解体内部
豊島区 再建築不可 解体
豊島区 解体後 腐食ヵ所
豊島区 戸建解体後 腐食ヵ所

解体後の躯体チェック

解体後には、腐食部のチェックを行いますが、O様の建物では、土台の腐食は想定していたものの二階バルコニーとの取り合いの桁部分が腐食しており横架材の入れ替えが必要になりました。一般的な耐震補強のみのリフォームではこのようなことは築かずにそのまま施工されていたはずです。スケルトンリフォームをしていなければ、このような状態を知ることもできなかったため大変良かったです。

大事な構造部のすべてが目視可能となるスケルトンリフォーム

内外部のスケルトンリフォームの最大のメリットはこのような重要な主要構造部のすべての状態が目視でわかることになります。

フルリノベーション後は、これらの構造上の弱点をすべて修正し補強することで新築以上の建物性能をもつ構造躯体へ甦らせることが可能となります。同時に全体の断熱改修が可能となるため、断熱性能も格段に向上させることが可能となります。

2-2 ベタ基礎補強工事

構造上のチェックが終わると、フルスケルトンリフォームでは、基礎工事へと移行していきます。

O様はベタ基礎への基礎補強をご希望されておられました。地盤調査の上、安全であることを確かめてからベタ基礎をご提案させていただきました。

豊島区 スケルトンリフォーム

ベタ基礎への補強で大切なのは、立ち上がり基礎をしっかりと既存の布基礎に緊結させることです。ケミカルアンカーで施工します。

豊島区 戸建フルリノベ

D13のアンカー筋を刺していきます。

豊島区 戸建 解体後基礎

D13のアンカー筋は150㎜ピッチで2段設置し底面のスラブ筋と継手筋・補強筋をしっかりと定着させます。

豊島区 戸建リノベーション 既存基礎

間取り変更により新たな間仕切壁が設置される位置へは新たに布基礎が新設させるため、立ち上がり基礎の配筋をします。

豊島区 戸建 基礎補強

ベタ基礎への補強で大切なのは、立ち上がり基礎をしっかりと既存の布基礎に緊結させることです。ケミカルアンカーで施工します。配筋が完了しました。

豊島区 戸建リノベ 基礎配筋

コンクリートミキサー車によるコンクリート打設。

豊島区 戸建リノベ 基礎工事

底面基礎よりコンクリートを打設していきます。

豊島区 再建不可 基礎補強

ミキサー車で圧送後は慣らしていきます。

豊島区 戸建リノベ ミキサー車

コンクリートミキサー車によるコンクリート打設。

豊島区 戸建リノベ 道狭い

Oさまの建物は密集地のためミキサー車が建物に横付けできず、ギリギリの場所まで進入し、道路は許可証を警察署にあらかじめ申請しました。

豊島区 基礎工事 コンクリ流し

職人が慣らしながら圧送していきます。

豊島区 基礎補強 型枠

Oさまの建物は密集地のためミキサー車が建物に横付けできず手運びとなるため大変手間がかかる工事となります。

豊島区 基礎補強 フルリノベ

立ち上がり基礎への枠工が完了しました。

豊島区 基礎補強 二世帯戸建

新築では基礎の打設は一回で行うこともありますが、リフォームでは底面と立ち上がりで2回打ちとなります。

豊島区 戸建 基礎補強

まずは底面(ベース)から打設していきます。

豊島区 戸建リノベ 基礎工事

底面ベース基礎の打設が完了しました。

豊島区 型枠 基礎補強

立ち上がり基礎まで打設が完了しました。

豊島区 基礎補強工事

間取り変更により新たな耐力壁となる位置には、基礎を新設します。

豊島区 再建不可 基礎補強

手前は立ち上がり基礎の添え基礎、間取り変更により新たな耐力壁となる位置には、基礎を新設します。

豊島区 戸建フルリノベ 基礎補強

アンカーボルトも等間隔であらかじめ仕込みます。

豊島区 戸建 型枠外し

湿潤期間を置き、枠を外していきます。既存基礎の内側に添え基礎(ツイン基礎)補強されているのがわかります。

豊島区 戸建リノベ 型枠外し

脱型後

豊島区 再建不可 型枠外し

脱型後、補強の利かない柱はすべて取りました。

豊島区 フルリノベ 基礎型枠外し

脱型後の土台敷き

O様邸では地盤が良好であることからベタ基礎を採用しました。

すべてがベタ基礎が良いというわけではありません。

ベタ基礎は建物全体と同程度の荷重となりますので、通常の布基礎の建物であった場合は2棟分の荷重が地盤にかかります。建物の重さとのバランスもかかわってきます。足元だけ固めていても屋根を含めた建物とのバランスが悪いと大地震が起きた際にせん断力が働き、ホールダウン金物が抜けるような事態になるケースもあるからです。

大規模な戸建てリノベーションをされる際には、木造を熟知し、実績が豊富な会社へ相談することをお勧めする理由でもあります。

ベタ基礎って?

布基礎が立ち上がりとフーチングで持たせる基礎に対して、ベタ基礎は、立上りだけでなく、底板一面も耐圧盤を設け、立ち上がりと底面が一体化された鉄筋コンクリートになっている基礎をいいます。

建物の荷重を底板全体の面で受け止めるため、ベタ基礎は不同沈下を起こさない。といわれますが、それは良好な地盤での話です。

基礎の下の地盤面の地耐力が均一でない場合は、不同沈下が起こる可能性が充分あるのです。

耐震の世界では、重い瓦屋根は外して、軽いものに変えましょうと言われておりますが、それ自体は間違っていませんが、この理屈でいくと。屋根の瓦を外して、基礎はベタ基礎にしても、地盤に与える荷重は、瓦屋根以上の荷重がベタ基礎の荷重により地盤面にかかることになります。

地盤が軟弱な場合、基礎補強は布基礎への添え基礎(ツイン基礎補強)を採用した方が有利な場合も出てきます。

戸建てフルリフォームやリノベーションで、基礎補強をする際は、このような知識のある会社に相談することが必要です。

2-3 バルコニー
豊島区 造作ベランダ フルリノベ

ベランダ下地へは構造用合板を互い違いに2重張りし、補強を入れます。

豊島区 ベランダ フルリノベ

バルコニー部の防水が完了しました。

豊島区 再建不可 ベランダ

O様邸のバルコニーは大工の造作バルコニーとなります。

2-4 木工事

基礎が終わり大工工事へと移行します。構造躯体の強度を担保するためのメイン工事となります。

車を横付けできない為、建材の搬入には大変苦労するのが再建築不可リフォームでの悩みとなります。

豊島区 戸建リノベ 材木搬入

搬入は人海戦術で手運びです。

豊島区 再建不可 搬入
豊島区 戸建リノベ 材木置き場

都内では一度に建材を搬入しても置き場がない事も多いため、何回にも分けて資材を搬入します。

豊島区 フルリノベ 大工工事

仮筋交いを外しながら補強をしていきます。

豊島区 戸建リノベ 構造補強梁

どこから構造体を組み上げていくかなど、建物の傷み具合で千差万別となるので大工の技術が問われるのが木造リノベーションです。

豊島区 フルリノベ 梁補強

O様邸では使える柱は少なく、現場で確認を頂き、新設する構造材を追加させていただく事になりました。

豊島区 戸建リノベ 補強計画
補強計画 豊島区 リノベ
豊島区 再建不可 補強計画

柱頭・脚接合金物配置図(N値計算書)

豊島区 戸建リノベ 金物補強
金物設置位置 戸建リノベ
豊島区 戸建リノベ 金物
豊島区 フルリノベ 金物設置
豊島区 戸建リノベ 金物補強計画
豊島区 金物設置写真

基礎・柱の緊結に欠かせないホールダウン金物び設置

豊島区 金物設置 補強計画

N値計算書に基づき柱と横架材に金物補強

豊島区 金物補強 再建不可

補強梁と既存桁部への補強

豊島区 戸建リノベ 金物補強

新設柱と筋交いへの金物補強

豊島区 梁 戸建リノベ

二階を背負う1階の構造は梁補強を入れて構造補強をします。

豊島区 剛床 補強

一階の梁は二階の床板(24㎜)と緊結し水平耐力を持たせます。

豊島区 剛床 耐震計画

井桁状に梁を組み二階の床と緊結する工法を剛床工法と言います。

豊島区 耐震計画 金物

既存利用の躯体は一部となりました。ほぼ新しい構造体です。

豊島区 構造補強 フルリノベ

既存屋根荷重に耐えうる梁補強も構造計算の上で飛ばすスパン、梁背(高さ)が決まります。しっかりと補強していきます。

再建不可リノベ 補強計画

外壁面は既存躯体とモイスを全面張りすることで補強していきます。

豊島区 再建不可 モイス

モイス全面張り

戸建フルリノベ モイス仕様

モイスは大変優れた耐力面材ですが、重いのが施工する側にとっての悩みでもあります。特にロケーションが悪い建物のケースでは苦労します。

2-5 断熱工事

豊島区O様の戸建てリノベーションでの断熱材は設計に基づき、アクリアマットを採用。
1階床下断熱材は、アクリアUボードピンレス32を採用しました。

充填断熱材には、グラスウール・セルロースファイバー、軟質ウレタン、硬質ウレタン等様々な素材、工法がありますが、

最も施工法に気を払うのがグラスウールとなります。断熱工事の基本は、隙間を作らないこと。

隙間を作ったまま、後の工程である造作で塞がれてしまうと、断熱欠損となり、無意味なものとなってしまうからです。

外周面には充填後に気密シートを貼ります。

豊島区 床断熱
豊島区 壁面断熱 戸建リノベ
豊島区 フルリノベ 断熱工事
豊島区 再建不可 断熱
2-6 屋根工事

今回の二世帯住宅フルリフォームでは、屋根は葺き替えでしたが完成後の写真は取り忘れてしまいました。

豊島区 フルリノベ 既存屋根
豊島区 二世帯リノベ 既存屋根
豊島区 屋根解体 戸建リノベ
豊島区 屋根解体 フルリノベ
2-7 外壁工事
豊島区 外壁工事 フルリノベ

O様邸の外周面はモイス全面張りです。

再建築不可 外壁工事 フルリノベ

外周面はモイスを全面張りとなり壁補強していきます。

戸建スケルトンリフォーム 外壁工事

モイスを張り終えると防水シート張りとなります。

外壁下地工事 豊島区 再建不可

防湿シートを全面に張っていきます

豊島区 二世帯 外壁工事

防湿シートを張り終えました。

豊島区 二世帯フルリノベ 外壁

防水防湿シートは下から張り上げていきます。

豊島区 再建築不可 外壁

サイディングが建張りのため、通気胴縁は横に施工していきます。

再建不可 豊島区 外壁工事

サイディングが張り終わりました。

2-8 内装仕上げ工事

構造部の構造補強が終わると、造作工事に入ります。

豊島区 内装仕上げ フルリノベ

大工工事が終わりボードを貼り、仕上げ工事です

豊島区 二世帯フルリノベ 内装

クロス下地

豊島区 再建不可リノベ 内装

クロスが貼り終わるとクリーニングが入るので養生を剥がしていきます。

豊島区 内装仕上げ 戸建リノベ

剥がせる箇所から養生を剥がしています。

豊島区 外構工事 フルリノベ

外構も同時に進めていきます。

豊島区 外構工事 二世帯リノベ

玄関ポーチにはタイルを貼ります。

3 竣工

約7か月の工事を経て、いよいよ竣工です。
O様邸の様子をご紹介します。


  =外観==  

豊島区 竣工写真 フルリノベーション

外壁はサイディング仕上げです。

外観竣工 豊島区 戸建リノベ


  == 1F エントランス・玄関 ==  

豊島区 戸建リノベ 玄関竣工

玄関

豊島区 再建不可 玄関竣工

玄関


  == 1F LDK ==  

戸建リノベ 豊島区 キッチン竣工
豊島区 戸建フルリノベ LDK竣工

LDK(1階)高所用窓+掃き出し窓

豊島区 実家リノベ 竣工

LDK(1階)

Before
実家リノベ 既存台所 豊島区

既存建物はキッチンはブロックキッチンです。


  == 階段 ==  

 before
豊島区 実家をリノベ 既存階段

既存階段です。(急勾配)

豊島区 戸建リノベ 新規階段
豊島区 新規階段 戸建リノベ

  == 2F 洋室 ==  

豊島区 2階既存和室
豊島区 戸建リノベ ウォークインクローゼット

2階に大きめのWIC

豊島区 戸建リノベ 2階竣工

親世帯和室(1階)


  == 1F 水まわり ==  

豊島区 戸建リノベ 既存キッチンスペース

Before

豊島区 既存トイレ

既存和便トイレ

豊島区 既存トイレ 2階

既存和便トイレ

豊島区 既存浴室

既存浴室

豊島区 既存浴室 段差

既存浴室段差

キッチン
豊島区 戸建リノベ 竣工キッチン

TOTO ザ・クラッソ 

浴室
豊島区 戸建リノベ ユニットバス

TOTO サザナ1616サイズ

洗面室
豊島区 戸建リノベ 洗面化粧台

TOTO オクターブ

トイレ
豊島区 トイレ 戸建フルリノベ

TOTO ネオレスト



  == 2F 小屋裏収納==  

O様邸は屋根工事をしていないので、屋根勾配は既存ままでその中で小屋裏収納を作っています。

豊島区 小屋裏収納 戸建リノベ
豊島区 戸建フルリフォーム 小屋裏

小屋裏収納

豊島区 戸建フルリノベーション 小屋裏収納

収納力は十分な広さです


  == ルーフバルコニー ==  

実家リノベ バルコニー 豊島区

新規バルコニーです。バルコニー屋根も設置しました。

豊島区 実家リノベ 新規ベランダ

新規バルコニーは壁面と一体型の造作です。

4 担当者より(ハイウィル株式会社・大谷正浩)

O様のご実家への二世帯住宅リフォームを担当させていただきました大谷です。解体後に使用に耐える構造材が少なく、ほぼ新しい構造材にて組み上げ補強をさせて頂きました。上部構造評点は1.7となり、大幅な性能向上が出来たと思います。予定よりも工期が延びてしまったことでご迷惑をお掛けしてしまいましたが、その分しっかりと工事をさせていただく事ができました。大変お喜びいただきましてうれしい限りです。工事完了後にご夫婦で弊社までお礼の挨拶までお越しいただき誠にありがとうございました。

画像をクリックすると解説ページにジャンプします。

全国のフルリフォーム・リノベーション『ピックアップ事例』※プロの詳細解説付きレポート

HEAT20-G2/耐震等級3
新耐震基準の性能向上リノベーション
築30年ハウスメーカー軽量鉄骨
断熱改修&リノベーション
 
中古住宅を新築以上の耐震性能と断熱性能へ!
耐震等級3フルリフォーム
地下付き木造2階建て
自然素材をつかった性能向上リノベーション&フルリフォーム

東京都文京区 K様邸

長屋を切り離して1つの構造体へフルリフォーム&リノベーション
隣家との距離がない!
部屋から外壁を張り替えるフルリノベーション
中古住宅を耐震等級3へ!
中古住宅リノベーション
 
基礎がない??
築60年の古屋をジャッキアップで基礎新設フルリノベーション

東京都渋谷区 O様邸

戸建てリノベーション・リフォームに関するお問合せはこちら

増改築.comの一戸建てリフォーム専用ホームページに
お越しいただき、誠に有難うございます。
 
増改築.comメンバーは技術集団となり、
他社のような営業マンがおりません。
技術者が直接ご相談にのり問題解決を行います。
 
従いまして、
お客様の方である程度のご要望が整理されました段階、
お悩みが工事内容のどのようなところにあるのか?
ご予算がどの程度絞る必要があるのか?
など明確になった段階でのご相談をお願いしております。
お問合せ・ご相談はお電話・メールにて受け付けております。
メールの場合は以下のフォームに必要事項をご記入の上、
「送信する」ボタンをクリックをお願いします。

代表稲葉高志

戸建てリノベーションの専属スタッフが担当致します。
一戸建て家のリフォームに関することを
お気軽にお問合せください

よくあるご質問
  • 他社に要望を伝えたところできないといわれたのですが・・・
  • 他社で予算オーバーとなってしまい要望が叶わないのですが・・・
  • サービスについて詳しく聞きたいのですが・・・

どのようなお悩みのご相談でも結構です。

あなたの大切なお住まいに関するご相談をお待ちしております。

営業マンはおりませんので、しつこい営業等も一切ございません。

設計会社(建築家様)・同業の建築会社様のご相談につきましては、プランと共にご指定のIw値及びUa値等の性能値の目安もお願い申し上げます。

2026年の大型補助金が確定したことで現在大変込み合っております。

耐震性能と断熱性能を向上させるフルリフォームには6か月~7か月の工期がかかります。

補助金獲得には年内に報告を挙げる必要があることから、お早目にご相談をお願いいたします。(6月着工までが目安

ご提案までに大変お時間がかかっております。ご了承のほどお願い申し上げます。

(5月までの着工枠が埋まりました)・・・2026/03/01更新

※すでにプランをお持ちのお施主様・設計資料をお持ちのお施主様は内容をフォームで送信後、フォーム下のメールアドレスに資料をお送りください。対応がスムーズです。

必須

(例:増改築太郎)

必須

(例:contact@high-will.co.jp)

(例:03-5615-2826)

必須

(例:東京都荒川区西日暮里2-35-1)

(例:築40年)

(例:25坪・100㎡など)

(例:2000万程度など)

  • ※再建築不可のリフォームでは金融機関が限られます。事前審査をお勧めいたします。

    (例:2024年3月くらいに完成希望など)

    必須

    できるだけ具体的にお知らせくださいませ。既存設計資料、リフォーム後のイメージ図等をお持ちであれば下記のメールアドレスより添付をお願いします。

    ※次の画面がでるまで、4~5秒かかりますので、
    続けて2回押さないようにお願いいたします。

    ※次の画面が出るまで、4〜5秒かかりますので、
    続けて2回押さないようにお願いいたします。

    図面や写真等を送信いただく場合、また入力がうまくいかない場合は、上記内容をご確認のうえ、下記メールアドレスまでご連絡ください。

    お電話でのお問合せはこちら

    0120-246-991

    営業時間:10:00~17:00(土日祝日を除く)

    ★YouTube「増改築.comチャンネル」チャンネル登録して新動画解説をいち早くGET!!★
    「増改築.comリノベ診断」であなたに一番ふさわしいフルリフォームを診断!!(動画解説付き)
    ★Facebookページにいいね!を押して最新コンテンツ情報をいち早くGET!!★
    パソコン|モバイル
    ページトップに戻る