戸建フルリフォームなら「増改築.com®」TOP > 施工事例 > 都道府県で探す鹿児島県 > 鹿児島市 > 施工事例 E様 二世帯住宅のフルリフォーム&フルリノベーション 

鹿児島県鹿児島市フルリノベーション事例

二世帯住宅のフルリフォーム&フルリノベーション事例 鹿児島市E様邸

鹿児島市E様邸

 

鹿児島県鹿児島市は、その豊かな自然と温暖な気候、歴史的な背景から、多くの人々が住みたいと考える地域の一つです。しかし、その一方で、古い家屋が多く、リノベーションやリフォームの需要が高まっているのも事実です。このような中、E様の住宅は、昭和初期に建てられた平屋で、その後二階屋にお神楽増築された状態でした。E様は家庭を持たれ別に住居を構えておられました。しかし、時代とともに生活スタイルも変わり、E様はご実家への二世帯住宅化リフォームを決意されました。住まい構成から現状の建物では手狭で、一部増築が必要となり、市役所への申請が必要となりました。増築の申請は新築とは異なり、手続きが複雑です。既存の建物の検査済証が必要ですが、昭和初期の建物には検査済証が存在しません。そのため、既存住宅の調査を行い、市役所へ報告し、手続きを進めました。このような経緯を経て、E様の二世帯住宅リフォームは始まりました。その過程で、E様の家はただの建物から、E様の思いや価値観を反映した、唯一無二の住まいへと生まれ変わりました。

建物概要
名前 E様
場所 鹿児島県鹿児島市
築年数 築50年以上
構造種別 木造一戸建て
家族構成 大人3人 子供2人
対象面積 45坪
リフォーム部位 ベタ基礎/間取り変更/断熱サッシ/耐震補強
工期 6ヶ月
価格 4000万

お客様のご要望

今回のリフォームで、E様からのご要望は以下の4点です。

  • 間取りは1階と同じにしたい。
  • 1世帯の造りの家を完全分離の2世帯にしたい。
  • 昔増築してしまった所を減築したい。
  • 基礎補強にしたい

鹿児島市E様邸 戸建てリノベーション施工事例テーマカテゴリー

  • 二世帯住宅リフォーム
  • 内外部スケルトンリフォーム

打ち合わせから着工、完成までの詳細施工事例紹介

1 戸建てリノベーション着工前

1-1 現場調査・打合せ

E様邸の現場調査は建築当時の法適合調査を踏まえた調査となりました。
まず基礎補強のための徹底的な調査現場調査を要求されましたので、通常のリノベーション以上に細かな調査が必要になります。
現場調査は、計画の精度を高め、予期せぬ問題を防ぐために重要なステップです。E様邸の現場調査では、基礎補強のために地盤調査が行われました。
地盤調査は、建物の安全性と耐久性を確保するために必要な調査で、地盤の硬さや湿度、土質などを調べます。さらに、E様邸では既存の布基礎のコア貫きをして、圧縮強度検査と中性化検査も行われました。これらの検査は、基礎の強度と耐久性を確認し、必要な補強措置を計画するために行われます。圧縮強度検査と中性化検査は、基礎がどれだけの力に耐えられるかを調べるための検査です。これにより、基礎が建物の重さを支えられるか、また補強が必要な場合はどの程度の補強が必要かを判断することができます。
一方、中性化検査は、基礎が酸化や腐食による劣化から保護されているかを調べるための検査です。これにより、基礎の寿命を延ばすための適切な保護措置を計画することができます。
現場調査は、基礎補強の計画を立てるための重要なステップでした。これにより、建物の安全性と耐久性を確保し、長期的なメンテナンス計画を立てることができました。

鹿児島市E様邸 施工前
鹿児島市E様邸 施工前
鹿児島市E様邸 施工前
鹿児島市E様邸 施工前
鹿児島市E様邸 施工前
鹿児島市E様邸 施工前
鹿児島市E様邸 施工前
鹿児島市E様邸 施工前
鹿児島市E様邸 施工前
鹿児島市E様邸 施工前
鹿児島市E様邸 施工前
鹿児島市E様邸 施工前
1-2 地盤調査
鹿児島市E様邸 施工前地盤調査
鹿児島市E様邸 施工前地盤調査
鹿児島市E様邸 施工前地盤調査
鹿児島市E様邸 施工前地盤調査
鹿児島市E様邸 施工前地盤調査
鹿児島市E様邸 施工前地盤調査

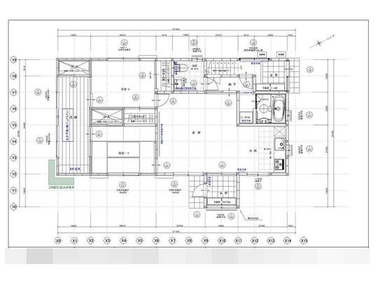
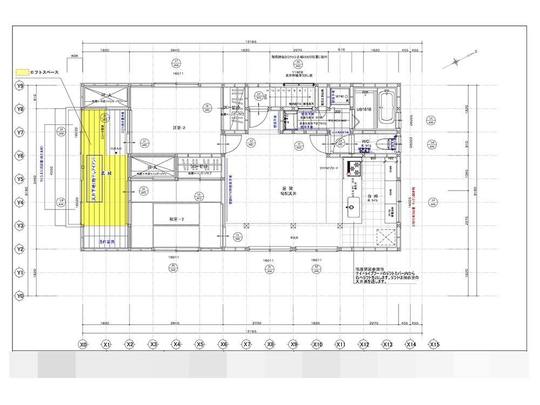
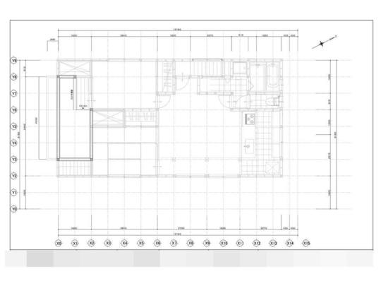
1-3 鹿児島県鹿児島市E様邸 戸建リノベーションプラン

新規平面図

鹿児島市E様邸 新規平面図
鹿児島市E様邸 新規平面図
鹿児島市E様邸 新規平面図

2 戸建てリノベーション着工

2-1 足場・解体

解体は手壊し作業

E様の戸建てフルリノベーションでは、内部のみのスケルトン解体ではなく、外壁までを解体する内外部スケルトンリフォームとなります。そのため、完全な躯体(スケルトン)残しとなります。
フルリノベーションで最も大変な工程の一つが、この解体工事となります。そもそも内外部スケルトンリフォームのような躯体残しのリフォームでは、新築のような機械壊しが出来ないことから、解体職人による手壊し作業となります。それもリノベーション後の間取りを検討し、抜く柱や抜けない柱など細心の注意を払いながらの解体となります。
このような解体工事は、一見単純な作業のように思えますが、実際には高度な技術と経験が求められます。特に、既存の建物の構造や素材を理解し、それを最大限に活かすことが求められます。また、新たに設ける間取りに合わせて、柱や壁を適切に取り扱うことも重要です。
E様の施工事例では、これらの要素が見事に組み合わさり、新たな住まいへと生まれ変わりました。その過程は、リフォームやリノベーションの真髄を体現するものと考えております。

鹿児島市E様邸 解体
鹿児島市E様邸 解体
鹿児島市E様邸 解体

解体後の躯体チェック

手壊しによる解体工事が終わり、産業廃棄物の廃棄が完了し、大工による仮補強が終わると、初めて躯体のチェックが可能となります。
E様邸は築50年を超える建物となります。使える躯体と使えない躯体を選別してく作業となります。この段階での躯体チェックは、リフォームの成功を左右する重要な工程となります。
築50年を超える建物は、時間とともに様々な変化を経験しています。そのため、どの部分が再利用可能で、どの部分が補修や交換が必要なのかを正確に判断することが求められます。この判断は、建物の安全性と耐久性、そしてリフォーム後の快適性に直結します。使える躯体を最大限に活用することで、リフォームコストを抑えることが可能です。
一方、補修や交換が必要な部分を見逃すと、後々大きな問題を引き起こす可能性があります。E様邸の場合、築50年を超える建物であるため、躯体の状態を詳細にチェックすることが重要でした。その結果、使える躯体と使えない躯体を適切に選別することができ、リフォーム工事をスムーズに進めることができました。
このように、スケルトン状態になった木造躯体のチェックは、リフォームの成功を左右する重要な工程となります。それは、建物の「健康診断」のようなもので、その結果によってリフォームの方向性が決まると言っても過言ではありません。

鹿児島市E様邸 解体
鹿児島市E様邸 解体
鹿児島市E様邸 解体
鹿児島市E様邸 解体
鹿児島市E様邸 解体
鹿児島市E様邸 解体

大事な構造部のすべてが目視可能となるスケルトンリフォーム

内部の天井・壁・床だけでなく外壁まで解体しスケルトン状態(躯体残し)にする戸建てリノベーションの最大のメリットはこのような重要な主要構造部のすべての状態が目視でわかることになります。

フルリノベーション後は、これらの構造上の弱点をすべて修正し補強することで新築と同水準、もくしくはそれ以上の建物性能をもつ構造躯体へ甦らせることが可能となります。

2-2 基礎補強工事

この工程は全体の中で最も重要な工程の一つとなります。
E様の建物は旧耐震基準に基づいて建てられており、無筋基礎という形状でした。このため、建物の安全性を確保するためには鉄筋コンクリート基礎補強が必須となります。
基礎補強とは、建物の基礎を強化する工程のことを指します。しかし、一部の会社では底面に配筋を行い、その上にコンクリートを流し込む方法を採用しています。これは一見効果的に見えますが、実際には適切な基礎補強とは言えません。
適切な基礎補強とは、立ち上がり基礎に対して配筋を行い、その上にコンクリートを流し込む方法を指します。これにより、基礎の強度が確保され、建物の安全性が向上します。
本来であれば、立ち上がりのみの増し基礎補強で十分なのですが、E様の場合は増築が計画されていました。そのため、鹿児島市との協議の結果、ベタ基礎を採用することとなりました。
ベタ基礎とは、立ち上がり基礎に加え底面(ベース)にも配筋しコンクリートを打設することで基礎全体を補強する方法を指します。これにより、建物全体の安定性が向上し、増築部分の安全性も確保されます。
このように、基礎補強は建物の安全性を確保するための重要な工程です。特に、旧耐震基準の建物や増築を考えている建物では、適切な基礎補強が必要となります。新築が多い鹿児島市では基礎補強をできる会社は少ないのが実情です。

鹿児島市E様邸 基礎工事
鹿児島市E様邸 基礎工事
鹿児島市E様邸 基礎工事
鹿児島市E様邸 基礎工事
鹿児島市E様邸 基礎工事
鹿児島市E様邸 基礎工事
鹿児島市E様邸 基礎工事
鹿児島市E様邸 基礎工事
鹿児島市E様邸 基礎工事
鹿児島市E様邸 基礎工事
鹿児島市E様邸 基礎工事
鹿児島市E様邸 基礎工事

E様邸では地盤が良好であること、鹿児島市との協議の結果ベタ基礎を採用しました。

すべてがベタ基礎が良いというわけではありません。

ベタ基礎は建物全体と同程度の荷重となりますので、建物の重さとのバランスもかかわってきます。足元だけ固めていても屋根を含めた建物とのバランスが悪いと大地震が起きた際にせん断力が働き、ホールダウン金物が抜けるような事態になるケースもあるからです。

大規模な戸建てリノベーションをされる際には、木造を熟知し、実績が豊富な会社へ相談することをお勧めする理由でもあります。

東京都

ベタ基礎って?

布基礎が立ち上がりとフーチングで持たせる基礎に対して、ベタ基礎は、立上りだけでなく、底板一面も耐圧盤を設け、立ち上がりと底面が一体化された鉄筋コンクリートになっている基礎をいいます。

建物の荷重を底板全体の面で受け止めるため、ベタ基礎は不同沈下を起こさない。といわれますが、それは良好な地盤での話です。

基礎の下の地盤面の地耐力が均一でない場合は、不同沈下が起こる可能性が充分あるのです。

 

耐震の世界では、重い瓦屋根は外して、軽いものに変えましょうと言われておりますが、それ自体は間違っていませんが、この理屈でいくと。屋根の瓦を外して、基礎はベタ基礎にしても、地盤に与える荷重は、瓦屋根以上の荷重がベタ基礎の荷重により地盤面にかかることになります。

地盤が軟弱な場合、布基礎を採用した方が有利な場合も出てきます。

そもそも正しい基礎補強方法を知らず、基礎補補修程度しか行わないリフォーム会社が多くを占めている現状ですが、

戸建て一軒家のリノベーションで、基礎補強をする際は、このような知識のある会社に相談することが必要です。

2-3 屋根工事

E様の場合、ご実家の屋根瓦に特別な思い入れがあり、その瓦を再利用したいというご要望がありました。
そのため、構造計算の際も瓦屋根の荷重を計算し、増築の申請を行いました。屋根の形状が変わり、不要になった瓦を整理しました。そして、既存の瓦を一度取り外し、再度葺き直すという屋根工事を行いました。
この工程は、瓦を再利用することでE様の思い入れを大切にしつつ、建物の安全性と耐久性を確保するために必要なものでした。屋根工事は、専門的な技術と知識を必要とする作業であり、安全に作業を行うためには適切な設備と準備が必要です。また、屋根材の種類や建物の構造によって、工事の方法や必要な材料は変わります。そのため、屋根工事を行う際には、信頼できる専門業者に依頼することが重要です。
また、屋根工事は建物の耐久性や安全性を保つだけでなく、建物の見た目や環境への影響も考慮する必要があります。例えば、瓦は自然素材であり、見た目の美しさだけでなく、耐久性や環境負荷が低いという特性を持っています。そのため、E様のように瓦を再利用することで、建物の特性を活かしつつ、環境にも配慮した工事を行うことが可能です。
以上のように、屋根工事は建物の安全性と耐久性を保つための重要な工程であり、専門的な知識と技術を必要とします。また、建物の特性や所有者の要望に応じて、最適な工事方法を選択することが求められます。

鹿児島市E様邸 屋根工事
鹿児島市E様邸 屋根工事
鹿児島市E様邸 屋根工事
鹿児島市E様邸 屋根工事
鹿児島市E様邸 屋根工事
鹿児島市E様邸 屋根工事
鹿児島市E様邸 屋根工事
鹿児島市E様邸 屋根工事
2-4 木工事

木工事は、木材を用いた建築工事の一部で、特に建物の構造体を組み立てる作業を指します。これには、梁の補強や床の設置などが含まれます。
E様の戸建てリノベーションの場合、二階の床には剛床を採用しました。剛床とは、床構造の一種で、床材を梁に直接固定することで、床全体が一体となり、建物全体の剛性を高めるものです。
また、既存の手刻みの構造材に新たな構造材を手刻みで組み上げ、金物で補強するという工程も行いました。この工程は、内装大工ではできないパートであり、最も重要な工程となります。実際、建物の価値の8割を決める工程と言っても過言ではありません。
木工事は、木材の特性を理解し、適切な加工技術と組み立て技術を用いて行う必要があります。木材は生物由来の素材であるため、湿度や温度による変形、虫害や腐朽などの問題に対応するための知識も必要です。また、木材の種類や品質、寸法精度などによっても、その使用方法や組み立て方は変わります。
さらに、木工事は、建物の安全性や耐久性、さらには快適性を確保するための重要な工程でもあります。例えば、梁の補強は、建物の構造的な強度を確保するための重要な作業です。
また、床の設置は、生活空間の快適性を直接左右します。剛床を採用することで、床の強度を確保し、歩行時の揺れや音を抑えることができます。
以上のように、木工事は、建物の価値を大きく左右する重要な工程であり、専門的な知識と技術を必要とします。また、木材の特性や建物の要求性能に応じて、最適な工事方法を選択することが求められます。

鹿児島市E様邸 大工工事
鹿児島市E様邸 大工工事
鹿児島市E様邸 大工工事
鹿児島市E様邸 大工工事
鹿児島市E様邸 大工工事
鹿児島市E様邸 大工工事
鹿児島市E様邸 大工工事
鹿児島市E様邸 大工工事
鹿児島市E様邸 大工工事
鹿児島市E様邸 大工工事
鹿児島市E様邸 大工工事
鹿児島市E様邸 大工工事
2-5 断熱工事

断熱工事は、建物の熱効率を向上させるために行われる工事の一つで、建物の外壁、天井、床などに断熱材を設置することで、室内の温度を一定に保つことを目指します。断熱工事は、エネルギーの消費を抑え、快適な居住環境を提供するための重要な工程であり、その効果は大きいと言えます。
E様の家では、高性能グラスウールを充填することで断熱工事を行いました。グラスウールは、ガラスを主成分とした繊維状の断熱材で、空気の動きを抑えることで熱の移動を防ぎます。その結果、冬季の暖房効果を高め、夏季の冷房効果を保つことが可能となります。
断熱工事は、エネルギー消費の削減と快適な居住環境の提供という、2つの大きなメリットをもたらします。そのため、新築はもちろんのこと、リフォームやリノベーションの際にも、ぜひ検討していただきたい工事の一つです。

鹿児島市E様邸 断熱工事
鹿児島市E様邸 断熱工事
鹿児島市E様邸 断熱工事
2-6 外壁工事
鹿児島市E様邸 外壁工事
鹿児島市E様邸 外壁工事
鹿児島市E様邸 外壁工事
鹿児島市E様邸 外壁工事
鹿児島市E様邸 外壁工事
2-7 造作工事

構造部の構造補強が終わると、造作工事に入ります。

鹿児島市E様邸 内装工事
鹿児島市E様邸 内装工事
鹿児島市E様邸 内装工事
鹿児島市E様邸 内装工事
鹿児島市E様邸 内装工事
鹿児島市E様邸 内装工事
鹿児島市E様邸 内装工事

3 戸建てリノベーション竣工

E様のリノベーションプロジェクトが竣工したとき、その感動は言葉にできないものでした。長い間、夢見てきた家が現実のものとなり、その美しさと機能性に圧倒されました。それは、ただ新しい家ができたというだけでなく、自分たちの生活スタイルや価値観が形になったことへの感動でした。


外観

before

鹿児島市E様邸 施工前

after

鹿児島市E様邸 施工後

外壁のサイディングは、E様のご希望で2色採用。変化のあるカッコいい外観となりました。


水回り(キッチン・浴室)

before

鹿児島市E様邸 施工前

既存キッチンはL型のブロックキッチンでした。

after

鹿児島市E様邸 施工後

新規キッチンはトクラス「ベリー」です。ガラスのパーテーションが開放的です。

before

鹿児島市E様邸 施工前

既存お風呂はタイル張りの在来工法浴室でした。

after

鹿児島市E様邸 施工後

新規浴室はTOTOサザナです。

株式会社晃栄住宅代表 仙田次雄

4 担当者より
(「増改築.com®」鹿児島加盟店 株式会社晃栄住宅代表・仙田 次雄)

E様、この度はご依頼をいただき、誠にありがとうございました。

E様の竣工後の感動は、私たちが建築業界で働く理由の一つです。それは、人々の生活をより良くするための建築という仕事の価値を再確認する瞬間でもあります。私たちは、E様のようなお客様が新しい家での生活を満喫している姿を見ることで、私たちの仕事の価値を感じています。竣工後の感動は、リノベーションプロジェクトの最終ゴールであり、その達成感は言葉にできないものです。それは、新しい家ができたというだけでなく、自分たちの生活スタイルや価値観が形になったことへの感動です。

私たちは、E様のようなお客様が新しい家での生活を満喫している姿を見ることで、私たちの仕事の価値を感じています。

この事例と似たテーマカテゴリーを見る

全国のフルリフォーム・リノベーション『ピックアップ事例』※プロの詳細解説付きレポート

HEAT20-G2/耐震等級3
新耐震基準の性能向上リノベーション
築30年ハウスメーカー軽量鉄骨
断熱改修&リノベーション
 
中古住宅を新築以上の耐震性能と断熱性能へ!
耐震等級3フルリフォーム
地下付き木造2階建て
自然素材をつかった性能向上リノベーション&フルリフォーム

東京都文京区 K様邸

長屋を切り離して1つの構造体へフルリフォーム&リノベーション
隣家との距離がない!
部屋から外壁を張り替えるフルリノベーション
中古住宅を耐震等級3へ!
中古住宅リノベーション
 
基礎がない??
築60年の古屋をジャッキアップで基礎新設フルリノベーション

東京都渋谷区 O様邸

戸建てリノベーション・リフォームに関するお問合せはこちら

増改築.comの一戸建てリフォーム専用ホームページに
お越しいただき、誠に有難うございます。
 
増改築.comメンバーは技術集団となり、
他社のような営業マンがおりません。
技術者が直接ご相談にのり問題解決を行います。
 
従いまして、
お客様の方である程度のご要望が整理されました段階、
お悩みが工事内容のどのようなところにあるのか?
ご予算がどの程度絞る必要があるのか?
など明確になった段階でのご相談をお願いしております。
お問合せ・ご相談はお電話・メールにて受け付けております。
メールの場合は以下のフォームに必要事項をご記入の上、
「送信する」ボタンをクリックをお願いします。

代表稲葉高志

戸建てリノベーションの専属スタッフが担当致します。
一戸建て家のリフォームに関することを
お気軽にお問合せください

よくあるご質問
  • 他社に要望を伝えたところできないといわれたのですが・・・
  • 他社で予算オーバーとなってしまい要望が叶わないのですが・・・
  • サービスについて詳しく聞きたいのですが・・・

どのようなお悩みのご相談でも結構です。

あなたの大切なお住まいに関するご相談をお待ちしております。

営業マンはおりませんので、しつこい営業等も一切ございません。

設計会社(建築家様)・同業の建築会社様のご相談につきましては、プランと共にご指定のIw値及びUa値等の性能値の目安もお願い申し上げます。

2026年の大型補助金が確定したことで現在大変込み合っております。

耐震性能と断熱性能を向上させるフルリフォームには6か月~7か月の工期がかかります。

補助金獲得には年内に報告を挙げる必要があることから、お早目にご相談をお願いいたします。(6月着工までが目安

ご提案までに大変お時間がかかっております。ご了承のほどお願い申し上げます。

(5月までの着工枠が埋まりました)・・・2026/03/01更新

※すでにプランをお持ちのお施主様・設計資料をお持ちのお施主様は内容をフォームで送信後、フォーム下のメールアドレスに資料をお送りください。対応がスムーズです。

必須

(例:増改築太郎)

必須

(例:contact@high-will.co.jp)

(例:03-5615-2826)

必須

(例:東京都荒川区西日暮里2-35-1)

(例:築40年)

(例:25坪・100㎡など)

(例:2000万程度など)

  • ※再建築不可のリフォームでは金融機関が限られます。事前審査をお勧めいたします。

    (例:2024年3月くらいに完成希望など)

    必須

    できるだけ具体的にお知らせくださいませ。既存設計資料、リフォーム後のイメージ図等をお持ちであれば下記のメールアドレスより添付をお願いします。

    ※次の画面がでるまで、4~5秒かかりますので、
    続けて2回押さないようにお願いいたします。

    ※次の画面が出るまで、4〜5秒かかりますので、
    続けて2回押さないようにお願いいたします。

    図面や写真等を送信いただく場合、また入力がうまくいかない場合は、上記内容をご確認のうえ、下記メールアドレスまでご連絡ください。

    お電話でのお問合せはこちら

    0120-246-991

    営業時間:10:00~17:00(土日祝日を除く)

    ★YouTube「増改築.comチャンネル」チャンネル登録して新動画解説をいち早くGET!!★
    「増改築.comリノベ診断」であなたに一番ふさわしいフルリフォームを診断!!(動画解説付き)
    ★Facebookページにいいね!を押して最新コンテンツ情報をいち早くGET!!★
    パソコン|モバイル
    ページトップに戻る