戸建フルリフォームなら「増改築.com®」TOP > 施工事例 > 都道府県で探す > 兵庫県 > 神戸市 > 中央区 > 施工事例 S様邸 中古物件を購入し耐震等級3最高等級にスケルトンリフォーム

このエントリーをはてなブックマークに追加

不動産の取引までの流れ、そして耐震等級3を取得するまでの施工工事例をご紹介

中古住宅を購入し、耐震等級3に性能向上リノベーション 神戸市中央区S様邸

耐震等級3で住宅の資産価値を高めるスケルトンリフォームを実施
神戸市中央区S様邸

 

S様は・・・

建物概要
名前 S様
場所 兵庫県神戸市中央区
築年数 築35年
構造種別 木造一戸建て
家族構成 大人2人 
対象面積 57㎡(17.24坪)
リフォーム部位 添え基礎/間取り変更/断熱サッシ交換/外壁サイディング/断熱工事/屋根葺き替え/躯体補強工事/水回り一式交換
工期 4.5ヶ月
価格

1800万円

お客様のご要望

今回S様の中古住宅を買ってリノベーションにて、S様からのご要望は以下の6点です。

  • 地震に強い耐震等級3の住宅にしたい
  • 予算は3000万円以内
  • 神戸市中央区のOO町とその周辺
  • 広さにはこだわりがないが夫婦で困らない広さ
  • 断熱はこだわりたい セルロースファイバー
  • 少し別荘的な雰囲気を入れたい

プランナー 北畠より ~プランニングのポイント~

施主さまの施主様のご要望は 断熱はセルロースファイバーを採用し耐震等級3、物件の面積が思っていたよりも小さくなってしまったので、なるべく広く感じられる間取りにして欲しい、設備関係の多くはサンワカンパニーのものを採用しました。
設備も意匠の一部と考えオシャレなもので揃えました。

 

 

神戸市中央区S様邸 戸建てリノベーション施工事例テーマカテゴリー

 

  • 耐震等級3相当(上部構造評点1.5以上)リフォーム(性能向上リノベーション)
  • 中古住宅を買ってリフォーム
  • 中古住宅を買ってリノベーション(購入からリフォームまでワンストップサービス)
  • 狭小住宅リフォーム
  • 内部スケルトンリフォーム+サッシ交換

中古住宅購入までの流れ、そしてリノベーションの着工から完成までの施工事例を紹介

1 中古住宅を購入

1-1 ファーストコンタクト

 

S様は生まれも育ちも神戸市中央区、50年間神戸暮らしでいらっしゃいます。
数十年前に奥様のご希望でマンションを購入され、住宅ローンも完済されて悠悠自適の生活をされておられる感じでした。

 

とある日そんなS様より増改築.comにご相談のご連絡をいただきました。

 

神戸市中央区三宮駅周辺で3000万円以下そして震等級3の戸建てを買いたいと思っていますとのご相談でした。

弊社よりメールで物件の希望条件をお伺いしましたところ、S様のご希望は以下の通りでした。

・地震に強い耐震等級3の住宅にしたい

・予算は3000万円以内

・神戸市中央区のOO町とその周辺

・広さにはこだわりがないが夫婦で困らない広さ

・断熱はこだわりたい セルロースファイバー

・少し別荘的な雰囲気を入れたい

 

建物に関しても何点かご要望をお伺いいたしました。
耐震等級3にするためには事前に建物の情報を取得し基準に合わせることが出来るのかどうかを確認する必要があるのですが、内装の仕様は自由にできますので、ゆっくりご検討いただけます。

 
1-2 中古住宅物件とリノベーションの概算費用のご提案

 

ご希望のエリアをピックアップして何件かメールでご提案させて頂きましたが、はじめのうちはご予算をオーバーしてしまい、ご納得いただくご提案ができませんでした。

神戸市中央区周辺は兵庫県内でも価格が高いエリアで、中古住宅であってもご予算に合わせるとなかなか条件に合う物件がありません。

エリアを広げるご提案もさせて頂きましたが、現在のお住まいもあるので、時間はかかってもよいとのことで引き続き物件をお探しすることになりました。

 

そしてしばらく時間はかかりましたが、今回の再建築の際セットバックが必要な物件を提案させて頂きました。

 
1-3 物件のご案内

 

今回は事例の物件1件だけのご案内となりました。
S様ももう少し広い方が・・・という思いもございましたが、金額と条件に合った他に物件もないこともあり、「立地条件を重視しているし場所が気に入ってしまったので、この物件にします」とこの物件にお決め頂きました。

1-4 中古住宅ご購入申し込みと事前審査

S様の中古住宅購入申込を行いました。 同時に住宅ローンの事前審査を行います。
今回の物件は建て替え時にセットバックが必要な住宅になります。そのため建築当初違法物件ではないことの確認が必要となってまいります。

通常はフラット35リノベを利用します。物件の審査が厳しいのでフラット35のリノベ基準をクリアする事が重要になってまいります。 今回は床面積の関係で通常の銀行の住宅ローンを利用致します。

 

※フラット35リノベの概要は

中古住宅を購入してリノベーションという選択肢:ローンが組めないケース 

をご覧下さい。

1-5 ご契約

増改築.comではお客様に対して、既存不適格で将来建て替え時にはセットバックが必要な物件になること、準防火地域になることなど、将来的に起こりえるマイナス点を前もってしっかりご説明させて頂いておりましたので、物件の契約をスムーズに行うことが出来ました。

その後リフォーム計画が完成したら、ローンの本申し込みを行います。

フラット35リノベを利用する場合には設計とフラット35の入念な打ち合わせを含め、通常1カ月以内ぐらいを目安に決済を行います。今回も売主様サイドのご了解を頂き少し長めにスケジュールを組みました。

 
1-6 決済

 

物件の支払いも無事に完了しました。

いよいよ工事に取り掛かります。

2 リノベーション着工前の様子

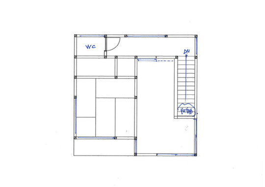
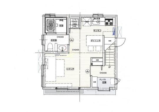
2-1 神戸市中央区S様邸 中古住宅リノベーションプラン

  間取りの変更プラン  

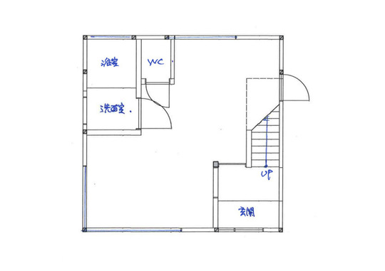
神戸市中央区S様邸_図面

1階 既存平面図

神戸市中央区S様邸_図面

2階 既存平面図

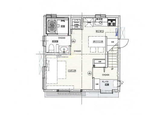
神戸市中央区S様邸_図面

1階 新規平面図

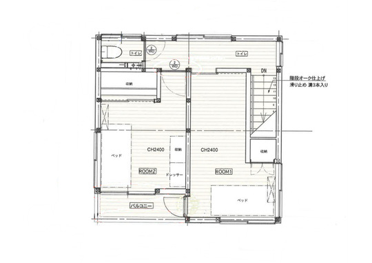
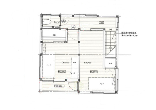
神戸市中央区S様邸_図面

2階 新規平面図

築35年の建物になります。進入路が狭く解体や材料の運搬が困難になることが予想されます。

神戸市中央区S様の中古住宅リノベーション工事はこうしてはじまりました。

3 中古住宅リノベーションの着工

3-1 解体・撤去

いよいよS様邸中古住宅リノベーションの着工となります。
S様邸は基本、内部をスケルトン状態にまで解体するリノベーションとなります。今回はサッシも交換を行いますので、一部外部も解体を行います。

解体後は木構造を裸の状態にし、想定した状況と合致しているのかを確認し、当初の提案通りに可能かどうか確認を行います。

神戸市中央区S様邸_解体

玄関

神戸市中央区S様邸_解体

玄関の位置は変わりません。基礎をどうするのか検討中

神戸市中央区S様邸_解体

道路面の基礎の状態を確認

神戸市中央区S様邸_解体

道路面基礎その2

神戸市中央区S様邸_解体

今回は基礎がしっかりあるので、不足分を補う添え基礎をします。

神戸市中央区S様邸_解体

お風呂の場所も変わりませんが高さと広さの調整が必要になります。

神戸市中央区S様邸_解体

お風呂場と、その隣はトイレ

神戸市中央区S様邸_解体

お風呂を広げるためトイレの位置は移動します

神戸市中央区S様邸_解体

キッチンの位置はそのままですが、もちろん配管関係は新設します。

神戸市中央区S様邸_解体

勝手口はなるべく既存の開口スペースを利用します。

神戸市中央区S様邸_解体

階段の予定になります。

神戸市中央区S様邸_解体

キッチン周りは水がしみ込んでいるのがわかります。

神戸市中央区S様邸_解体

補強する箇所を持ち帰って設計していきます。

神戸市中央区S様邸_解体

この年代の建物には金物が入っていません。

神戸市中央区S様邸_解体

お風呂はサイズアップするので、このままでは入りません。補強しながら解体します。

神戸市中央区S様邸_解体

解体後は梁の大きさなどもしっかりと確認します。

神戸市中央区S様邸_解体

この向きは開口が多いですね。

神戸市中央区S様邸_解体

建築当時はしっかり建てられたお家だなと印象を受けます。

神戸市中央区S様邸_解体

既存図面などがない場合は解体後に正確に把握していきます。

神戸市中央区S様邸_解体

側部はこのように柱も入っております。

神戸市中央区S様邸_解体

道路面には柱が少ないので相当数の柱を新規で入れる補強が必要になります。

神戸市中央区S様邸_解体

複雑に絡み合った梁や柱をきっちり整理して補強計画を立て直します。

神戸市中央区S様邸_解体

キッチンの壁は窓を小さくして補強になると思われます。

大事な構造部のすべてが目視可能となる中古住宅リノベーション

内部をスケルトン状態。いわゆる躯体状態まで解体するリノベーションの最大のメリットはこのような重要な主要構造部のすべての状態が目視でわかることになります。

リノベーション後は、これらの構造上の弱点をすべて修正し補強することで新築と同水準、もくしくはそれ以上の建物性能をもつ構造躯体へ甦らせることが可能となります。

3-2 基礎

解体作業が終わるとまずは基礎工事に入ります。どんなに建物を丈夫に作っても基礎がしっかりとしていないと意味がありません。
今回はベタ基礎補強ではなく添え基礎で補強していきます。

既存の基礎の状態が思っていたよりも良かったのですが、補強計画に則ってしっかり補強していきます。

神戸市中央区S様邸_基礎
神戸市中央区S様邸_基礎
神戸市中央区S様邸_基礎

お風呂の基礎配筋

神戸市中央区S様邸_基礎

ユニットバスの型枠

神戸市中央区S様邸_基礎

ユニットバス横幅を少し広げています。

神戸市中央区S様邸_基礎

基礎枠を外してユニットバスの基礎が完成

神戸市中央区S様邸_基礎

キッチンの添え基礎

神戸市中央区S様邸_基礎

基礎が足りてないところには新しく基礎を作ります。

神戸市中央区S様邸_基礎

基礎の場所ごとに図面と比較してミスが起こらないようにチェックします。

神戸市中央区S様邸_基礎

緊結部分のスパンを確認

神戸市中央区S様邸_基礎

型枠の施工風景

神戸市中央区S様邸_基礎

新しく出来上がった基礎の立ち上がり

神戸市中央区S様邸_基礎

新規基礎

神戸市中央区S様邸_基礎

配筋の緊結

神戸市中央区S様邸_基礎

土台と既存基礎ががっちり合体。

神戸市中央区S様邸_基礎

添え基礎で補強

神戸市中央区S様邸_基礎

添え基礎を行っていきます。捨てコン

神戸市中央区S様邸_基礎

添え基礎完成1

神戸市中央区S様邸_基礎

添え基礎完成2

神戸市中央区S様邸_基礎

添え基礎完成3

3-3 木工事

神戸市中央区S様は耐震等級も気になされての工事になりますので、計画に則り補強していきます。
1階部分を広いワンフロアに変更したので、邪魔な柱は撤去を行いその分以上に柱を増やします。
今回は外壁のメンテナンスをされておられることからもわかるように、木の状態が割と良い状態でしたが、築年数やメンテナンスによって状況は変わってくるので注意が必要です。

もちろん不動産を購入される場合は契約以前にお家の状態を把握して、ロスがないように進めていくのもポイントです。
(解体後に見えない部分で木が腐って使い物にならないケースも多々ありますので、注意が必要です。弊社でも考えられるリスクは事前にご説明し、ご納得いただいてからご契約をいただいております。)

神戸市中央区S様邸_木工事
神戸市中央区S様邸_木工事
神戸市中央区S様邸_木工事

新規に入った柱や配管の様子がうかがえます。

神戸市中央区S様邸_木工事

新規の窓

神戸市中央区S様邸_木工事

こちらの窓は塞ぎます。

神戸市中央区S様邸_木工事

補強計画に基づいて補強していきます。

神戸市中央区S様邸_木工事

補強写真1

神戸市中央区S様邸_木工事

補強写真2

神戸市中央区S様邸_木工事

色が変わっているのは防蟻処理

神戸市中央区S様邸_木工事

補強の様子

神戸市中央区S様邸_木工事

補強の様子2

神戸市中央区S様邸_木工事

窓枠

神戸市中央区S様邸_木工事

バルコニーにでる掃き出し窓

神戸市中央区S様邸_木工事

バルコニーに出るドアです。2WAYでバルコニーに出ることができます。

3-4 外壁・屋根工事

中古住宅の場合、屋根や外壁のメンテナンスが必要なタイミングで売り出されることが多いように思われます。築年数や物件の状況によりそのメンテナンス方法はかなり変わりますが、購入の際は目を背けることなくしっかりと見極めが必要になります。

今回屋根はガルバリウム鋼板へと変更しました。野地板を張替えルーフィングを施工後にガルバリウム鋼板で仕上げました。

弊社のルーツは大正8年創業の社寺仏閣専門の瓦葺き業者として創業したルーツがあります。最近では和瓦を新たに吹き替えるお客様も少なくなってきました。

ガルバリウム鋼板を張るのは板金職人、瓦を葺くのは瓦職人とテリトリーも変わってまいります。

 
神戸市中央区S様邸_屋根

屋根はガルバリウム鋼板

神戸市中央区S様邸_屋根

屋根の工事は防水処理が最も重要なポイントとなります。

神戸市中央区S様邸_屋根

ルーフィング施工後

神戸市中央区S様邸_屋根

しっかりとはめ込んで施工していきます。

神戸市中央区S様邸_屋根

この後バルコニーを設置します。

神戸市中央区S様邸_屋根

棟包みを行います。

神戸市中央区S様邸_屋根

屋根の張替えが無事に終わりました。

神戸市中央区S様邸_屋根

完成!

外壁は窓の変更が多かったためサイディングをご提案させて頂きましたが、以前に外壁リフォームを行ったことがあるということで、必要箇所を左官で補修するにとどめ、その後塗装を行いました。
補修した部分はどうしても既存の壁との段差ができてしまいますが、極力目立たないように既存の壁に合わせて補修を行うように職人にお願いをしました。

神戸市中央区S様邸_外壁

玄関ドアの面は元々開口も多かったのでほぼやり直しを行いました。

神戸市中央区S様邸_外壁

ノダ ラスカットを使用。長期優良住宅や45分準耐火にも対応

神戸市中央区S様邸_外壁

バルコニー用の外部ドア

神戸市中央区S様邸_外壁

大きかった窓を小さく作り直した跡があります。

神戸市中央区S様邸_外壁

勝手口のカットした外壁を補修していきます。

神戸市中央区S様邸_外壁

なるべく既存の壁と差が出ないように施工していきます。

3-5 断熱工事

神戸市中央区のS様邸、断熱材はセルロースファイバーを採用する予定でしたが、間取り変更、電気の配線が最後まで残り、セルロースファイバーを断念することになりました。高性能グラスウールに変更です。
グラスウールは優しく扱って丁寧に施工することがポイントです。
築年数の古い物件は断熱材が施行していない場合も多々ございます。しっかりと断熱材を施工することで住み心地も格段に上がります。

中古住宅を購入する場合でリノベーション済物件を購入する場合は、断熱の施工風景の写真などを見せてもらうとよいのではないでしょうか。

神戸市中央区S様邸_断熱

高性能グラスウールを壁一面に充填

神戸市中央区S様邸_断熱

勝手口

神戸市中央区S様邸_断熱

新旧の柱がある場合は断熱作業が大変です。

神戸市中央区S様邸_断熱

窓、柱が新しくなりました。

神戸市中央区S様邸_断熱

天井の断熱材が入る前に電気配線をします。

神戸市中央区S様邸_断熱

配線の本数が増えると電気屋さんは大変ですね。

神戸市中央区S様邸_断熱

配線と断熱材充填

神戸市中央区S様邸_断熱

天井にもしっかりと充填

神戸市中央区S様邸_断熱

2階の壁も高性能グラスウールで充填

神戸市中央区S様邸_断熱

断熱材が隙間なく充填されていることを確認したら施工ボードで閉じていきます。

神戸市中央区S様邸_断熱

高性能グラスウール、断熱材は隙間ができると効果が半減してしまいます。

神戸市中央区S様邸_断熱

配線と隙間なく断熱材が充填されていることを確認して閉じていきます。

3-6 内装仕上げ工事

神戸市中央区のS様邸は中古住宅リノベーションですが、内装工事の段階までくると新築なのかリフォーム住宅なのか室内からでは違いが判らなくなります。
この内装工事によって仕上がりの綺麗さが大きく変わる重要な工事ですが、通常の表層のリフォームや部分リフォームでは、重要な構造部分が隠れてしまうので、リフォーム済み物件を探される際は注意が必要です。

神戸市中央区S様邸_仕上

ボードを張り終えました。

神戸市中央区S様邸_仕上

洋室1

神戸市中央区S様邸_仕上

洋室1の収納階段の上のスペースを利用

神戸市中央区S様邸_仕上

収納と開き戸

神戸市中央区S様邸_仕上

階段

神戸市中央区S様邸_仕上

階段の袖壁

神戸市中央区S様邸_仕上

洗濯機置き場

神戸市中央区S様邸_仕上

2階廊下

神戸市中央区S様邸_仕上

壁一面窓になり明るいですね。

神戸市中央区S様邸_仕上

収納を横からみたら面白い形ですね。

神戸市中央区S様邸_仕上

勝手口と階段との取り合い、計算通りでよかったです。

神戸市中央区S様邸_仕上

トイレの換気扇がつきます

神戸市中央区S様邸_仕上

ボードのつなぎ目ねじ穴など凸凹を無くします。

神戸市中央区S様邸_仕上

クロスの仕上がりの出来は、このパテ処理によって大きく変わります。

神戸市中央区S様邸_仕上

階段横の収納の内部にもクロスを貼ります

神戸市中央区S様邸_仕上

洋室1入り口から

神戸市中央区S様邸_仕上

2下処理後クロスを張ったところ。今回はピンク系のクロスを選定。

4 リノベーション竣工

神戸市中央区S様邸の内部スケルトン状態まで解体しサッシ入れ替えた中古住宅リノベーションは4.5カ月で無事に完成いたしました。
設備や建具はサンワカンパニーを中心としたモデルハウスのようなオシャレなものをチョイス、フローリングは無垢のフローリング材を使用、壁紙はすべて施主様がお決めになりましたが、色のチョイスや張り分けも上手に考えられておられますね。
S様のセンスが光るお家へと生まれ変わりました。

S様邸の様子をご紹介します。


  =外観==  

神戸市中央区S様邸_竣工

S様邸外観

神戸市中央区S様邸_竣工

玄関ドアはYKKの引き戸を採用しています。


  == 1F エントランス・玄関 ==  

神戸市中央区S様邸_竣工

玄関前面にスペースがないためポストはお家に設置

神戸市中央区S様邸_竣工

リビングより玄関方向


  == 1F LDK ==  

神戸市中央区S様邸_図面
神戸市中央区S様邸_竣工

フローリングは無垢フローリング(e-KENZAIアカシア無垢材)です

神戸市中央区S様邸_竣工

キッチンの奥は勝手口です。手前の引戸の向こうが玄関と階段になります。建具はサンワカンパニーのノッポです。

神戸市中央区S様邸_竣工

冷蔵庫の隣は洗濯機置場。洗面所の入り口も一見分かりませんね。


  == 水回り ==  

神戸市中央区S様邸_竣工

キッチンはサンワカンパニーのプレーンK。キッチンスペースを有効に利用する為ミリ単位で調整しました。

神戸市中央区S様邸_竣工

洗面はPanasonicのCline

神戸市中央区S様邸_竣工

バリアフリーを考え1階の洗面室とトイレは同じスペースに。トイレは1F2F共にTOTOハイウィルオリジナルトイレです。

神戸市中央区S様邸_竣工

2階のトイレ室はブルー系です。爽やかな仕上がりです。

神戸市中央区S様邸_竣工

お風呂はサンワカンパニーのノウム


  == 2F ==  

神戸市中央区S様邸_図面
神戸市中央区S様邸_竣工

階段をのぼると居室が2部屋とトイレがあります。

神戸市中央区S様邸_竣工

トイレのドアとは思えない素敵なドアです。

神戸市中央区S様邸_竣工

洋室1 無垢フローリングとクロスのコーディネートがいい感じです。

神戸市中央区S様邸_竣工

洋室1の収納

神戸市中央区S様邸_竣工

収納は可動式で便利です。

神戸市中央区S様邸_竣工

洋室2も同じく無垢フローリング。ベランダがあります。

神戸市中央区S様邸_竣工

洋室2の収納は収納力抜群です。収納内のクロスにもそれぞれこだわりを感じますね。


5 担当者より(株式会社ハイウィル・刈田)

ハイウィルスタッフ

神戸市中央区のS様邸、いよいよ完成しました。お問合せから数えると約1年間のお付き合いとなりました。

S様には床面積の有効利用を考えて設計とメールで修正の打ち合わせを何度も重ねて頂きました。建物のスペックも新築の建売住宅と比較しても、高性能な住宅に生まれ変わりました。耐震等級3を取り入れた高断熱住宅として大幅な性能向上リノベーションを行うことが出来ました。

当初の物件予定金額より物件金額自体が上がってしまった為、限られた予算の中で意匠的にはすべてのご希望を取り入れたリノベーションを行えたわけではありませんでしたが、その分スペックは将来地震が起きても安心して住み続けて頂ける住宅になりましたし、高断熱で冬は暖かく夏は涼しく暮らし続けて頂けるのではないでしょうか。

築35年で解体も検討された住宅が、建物の資産性が長期に保たれる住宅として生まれ変わることができました。

 

S様、この度はご依頼をいただき、誠にありがとうございました。

 

兵庫県他のリフォーム事例を見る

兵庫県

神戸市(垂水区・須磨区・長田区・兵庫区・中央区灘区東灘区・北区・西区)

西宮市芦屋市尼崎市、宝塚市、川西市、伊丹市、三田市、明石市

全国のフルリフォーム・リノベーション『ピックアップ事例』※プロの詳細解説付きレポート

HEAT20-G2/耐震等級3
新耐震基準の性能向上リノベーション
築30年ハウスメーカー軽量鉄骨
断熱改修&リノベーション
 
中古住宅を新築以上の耐震性能と断熱性能へ!
耐震等級3フルリフォーム
地下付き木造2階建て
自然素材をつかった性能向上リノベーション&フルリフォーム

東京都文京区 K様邸

長屋を切り離して1つの構造体へフルリフォーム&リノベーション
隣家との距離がない!
部屋から外壁を張り替えるフルリノベーション
中古住宅を耐震等級3へ!
中古住宅リノベーション
 
基礎がない??
築60年の古屋をジャッキアップで基礎新設フルリノベーション

東京都渋谷区 O様邸

戸建てリノベーション・リフォームに関するお問合せはこちら

増改築.comの一戸建てリフォーム専用ホームページに
お越しいただき、誠に有難うございます。
 
増改築.comメンバーは技術集団となり、
他社のような営業マンがおりません。
技術者が直接ご相談にのり問題解決を行います。
 
従いまして、
お客様の方である程度のご要望が整理されました段階、
お悩みが工事内容のどのようなところにあるのか?
ご予算がどの程度絞る必要があるのか?
など明確になった段階でのご相談をお願いしております。
お問合せ・ご相談はお電話・メールにて受け付けております。
メールの場合は以下のフォームに必要事項をご記入の上、
「送信する」ボタンをクリックをお願いします。

代表稲葉高志

戸建てリノベーションの専属スタッフが担当致します。
一戸建て家のリフォームに関することを
お気軽にお問合せください

よくあるご質問
  • 他社に要望を伝えたところできないといわれたのですが・・・
  • 他社で予算オーバーとなってしまい要望が叶わないのですが・・・
  • サービスについて詳しく聞きたいのですが・・・

どのようなお悩みのご相談でも結構です。

あなたの大切なお住まいに関するご相談をお待ちしております。

営業マンはおりませんので、しつこい営業等も一切ございません。

設計会社(建築家様)・同業の建築会社様のご相談につきましては、プランと共にご指定のIw値及びUa値等の性能値の目安もお願い申し上げます。

2026年の大型補助金が確定したことで現在大変込み合っております。

耐震性能と断熱性能を向上させるフルリフォームには6か月~7か月の工期がかかります。

補助金獲得には年内に報告を挙げる必要があることから、お早目にご相談をお願いいたします。(6月着工までが目安

ご提案までに大変お時間がかかっております。ご了承のほどお願い申し上げます。

(5月までの着工枠が埋まりました)・・・2026/03/01更新

※すでにプランをお持ちのお施主様・設計資料をお持ちのお施主様は内容をフォームで送信後、フォーム下のメールアドレスに資料をお送りください。対応がスムーズです。

必須

(例:増改築太郎)

必須

(例:contact@high-will.co.jp)

(例:03-5615-2826)

必須

(例:東京都荒川区西日暮里2-35-1)

(例:築40年)

(例:25坪・100㎡など)

(例:2000万程度など)

  • ※再建築不可のリフォームでは金融機関が限られます。事前審査をお勧めいたします。

    (例:2024年3月くらいに完成希望など)

    必須

    できるだけ具体的にお知らせくださいませ。既存設計資料、リフォーム後のイメージ図等をお持ちであれば下記のメールアドレスより添付をお願いします。

    ※次の画面がでるまで、4~5秒かかりますので、
    続けて2回押さないようにお願いいたします。

    ※次の画面が出るまで、4〜5秒かかりますので、
    続けて2回押さないようにお願いいたします。

    図面や写真等を送信いただく場合、また入力がうまくいかない場合は、上記内容をご確認のうえ、下記メールアドレスまでご連絡ください。

    お電話でのお問合せはこちら

    0120-246-991

    営業時間:10:00~17:00(土日祝日を除く)

    ★YouTube「増改築.comチャンネル」チャンネル登録して新動画解説をいち早くGET!!★
    「増改築.comリノベ診断」であなたに一番ふさわしいフルリフォームを診断!!(動画解説付き)
    ★Facebookページにいいね!を押して最新コンテンツ情報をいち早くGET!!★
    パソコン|モバイル
    ページトップに戻る