戸建フルリフォームなら「増改築.com®」TOP > 施工事例 > 都道府県で探す石川県 > 白山市 > 施工事例 N様 軽量鉄骨の間取り変更

石川県白山市 軽量鉄骨の間取り変更リフォーム&リノベーション事例

 

建物概要
名前 N様
場所 石川県白山市
築年数  
構造種別 軽量鉄骨2階建て
家族構成 大人4人
対象面積 13坪(1階のみ)
リフォーム部位 水廻り全面改装/間取変更/住設機器交換
工期 1.5ヶ月
価格 600万

お客様のご要望

今回のリフォームで、N様からのご要望は以下の4点です。

  • 住設機器が古いので、最新の使い勝手の良い商品を入れたい
  • 動線が悪く、家事に手間取る
  • 子供が出産の為帰省するので、使い勝手を改善したい。
  • 既存のユニットバスが狭いので大きくしたい

プランナー より ~プランニングのポイント~

N様のご両親が建てられた住宅に家族4人で住み、過去に増改築をしたこともありましたが、お子さんも自立したということで今回全面リフォームをすることになりました。

2階は特に問題がないので、1階のみを対象に全面リフォームです。

まず、細かく区切られた間取りを取り払い、大きなLDKに変え、水廻りの機器を動線に合わせた、使い勝手の良い商品にすることをご提案させていただきました。

お子様が出産の為帰省するご予定ということで、それまでにリフォームを終わらせたいとのご要望です。

 

石川県白山市N様邸 施工事例テーマカテゴリー

 

  • 部分リフォーム

2 間取り変更リフォーム着工

 2-1 解体

 2-2 木工事

 2-3 設備工事

 2-4 大工工事

 2-5 内装仕上工事

3 間取り変更リフォーム竣工

 

4 担当者より

打ち合わせから着工、完成までの詳細施工事例紹介

1 間取り変更リフォーム着工前

1-1 現場調査・打合せ

石川県白山市のN様は、数十年前に母屋から繋げて増築しており、当初は母屋を解体して新築をする計画で展示場などを見て検討してましたが、折り合うプランがなかったため、家族会議の結果母屋をリフォームする事にされたそうです。

近くお子さんが出産されるため、帰省する時期に間に合わせたリフォームになりました。

 

軽量鉄骨造の為、躯体は問題ないのですが、やはり断熱等が現在と比べて劣るので出来るだけ断熱効果を上げる施工も同時にします。

和室横の洋間と台所を繋げた大きなLDKに変更し、各部屋の段差も解消します。

既存和室

既存和室からつながる台所

既存洗面脱衣場

既存浴室。ハウスメーカ規格のユニットバスが設置してありましたが、浴室が狭いので脱衣場を少し縮小してもいいので広くしたいとのご希望です。

 

既存和室横の通路兼洋間。居室である和室と増築部分を結ぶ廊下にはさまれています。

既存洋間は位置関係上どうしても通路となってしまうため全く活用されていませんでした。


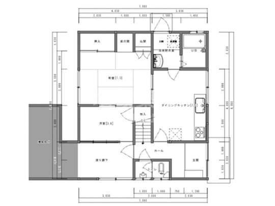
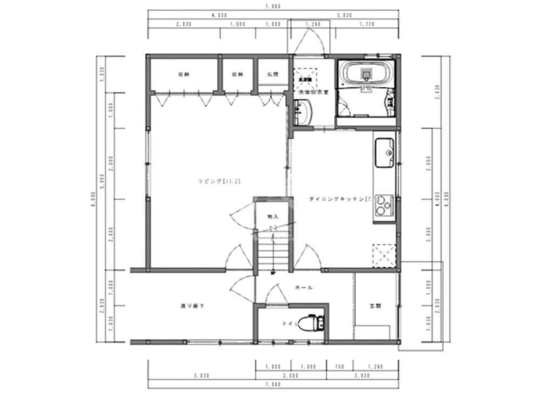
1-2 石川県白山市N様邸 間取り変更リフォームプラン

  間取りの変更プラン  

既存平面図(1階)

新規平面図(1階)

北面にある台所と南面にある和室と通路になってしまっている洋間をつなげて、明るく広々としたLDKをご提案しました。

今回は2階を既存のまま残すため、家の真ん中にある階段を移設する事が出来ず、構造を変更せずに間仕切りの変更をする事で、動線を確保したリフォームとなりました。

 

2 間取り変更リフォーム着工

2-1 足場・解体

解体工事にあたり、これから工事完了までの間ご迷惑をお掛けする近隣の方々への挨拶回りを行い、いよいよ着工となりました。

今回の石川県白山市N様邸の戸建リフォーム工事は、1階全面水廻りの改装ですが、施主様が住みながらのリフォームとなりましたので、最短工期で施工させて頂きました。

 

古い断熱材も撤去します。

流し台や畳も撤去してバリアフリーにします。

天井・壁解体後。床断熱を施工するため、コンパネを撤去します。解体直後に新たな床組みをした時点で、防蟻処理を行います。

2-2 木工事

壁に断熱を入れてから構造用合板を貼り、耐震性を高めました。

床は全く断熱されていなかったので、新たに断熱材を施工。

2-3 設備工事

お湯・水は鉄管でしたので、今回全て給排水をやり直し、今後の心配事を解消しました。

2-4 大工工事

床組を全てやり替え、床下には断熱材を入れ全室バリアフリーにしました。

2-5 内装仕上工事

内装業者さんによるクロス工事が始まります。

下地の石膏ボードとクロスの目地は重ねないのが常識です。建物の動きにより石膏ボードが動いた場合、クロスの目地が石膏ボードの目地と揃っていると目地が割れやすいため、パテ処理を行い作業を進めて行きます。

クロスが貼り終わると養生を捲り、クリーニングを行います。ここで一気に完成形に近付きます。

衛生設備や照明器具、設置されていきます。水廻りのシーリング工事が終わりクリーニングして完成です。

3 間取り変更リフォーム竣工

約1ヶ月半の工事を経て、いよいよ竣工です。
石川県白山市N様邸の様子をご紹介します。


  == リビング ==  

戸建てリノベーション(リフォーム)前

リフォーム前は和室と廊下の間の洋間は通路になっていました。

戸建てリノベーション(リフォーム)後

リフォーム後は2部屋をつなげてひと部屋のリビングに。(写真は旧和室側から旧洋間に向かっています)

以前の増築で通路と化してしまった洋間をリビングに取り込み解放感のあるLDKにする事で、大人数が集まっても十分なスペースを確保しました。

細かく区切られた部屋をフルオープンで使えるようにしましたが、光熱費を抑えるために、あえて2枚引込戸を入れて不要時には閉めて使えるようにしました。

リビングとキッチンの間の引戸は普段はフルオープンで使用

急な来客時でも戸を閉めればスッキリ

床・建具色を合わせる事でモダンな感じに


  == キッチン ==  

間取り変更リフォーム前

リフォーム前は動線が悪くなにかと使い勝手の悪いキッチン。

間取り変更リフォーム後

キッチンの位置を窓のある左側へ変更する事で、動線を確保しながらムダなスペースを排除しました。

新しいキッチンはLIXILのASシリーズ。あえて吊戸棚を省いてスッキリと!

キッチンの隣は洗面室です。


  == 洗面室・浴室・トイレ ==  

戸建てリノベーション(リフォーム)前

リフォーム前は既存ハウスメーカオリジナルで、特寸なため既製品寸法(1616サイズ)が入りませんでした。

間取り変更リフォーム後

洗面所の間仕切り壁を薄壁にする事で洗面脱衣場スペースを確保しつつユニットバスを設置しました。

リクシル アライズ 1616サイズ

新しい洗面所。奥の勝手口は全く利用していなかったため、土間部分の高さを上げて床にすることで使い勝手が格段に良くなりました。

リクシル オフト

トイレは既存は和式でしたが洋式トイレへ。リクシル ベーシアシャワートイレ(フチなし)。手摺も取り付け安心です。


4 担当者より
(「増改築.com®」石川支部・株式会社さくら 代表 湯浅 利昭)

 

白山市N邸様の建物は軽量鉄骨造です。

家の真ん中に階段が配置されており、その周りに居室、キッチン・浴室があり動線が悪かったので、今回のリフォームでは階段移設費は高額になるため階段位置を変えずに間取り変更を行いました。

小分けされた部屋は、フルオープンにすると暑い・寒いの部屋でしたので、今回天壁床を全て解体し、既存断熱にプラスして断熱材を施工し、フルオープンにしても快適に過ごせる空間を作りました。

最新式の住設や動線を配慮した事で使い勝手も良くなり、大変満足して頂けました。

冬場に完工したのですがエアコン1台で今回の施工箇所は十分な暖かさを確保でき、浴室も安心して使いう事が出来ます。

又家族全員が集まっても余るぐらいのスペースが確保できました。

N様、この度はご依頼をいただき、誠にありがとうございました。

石川県の他のリフォーム事例を見る

石川県

金沢市・野々市・能美市白山市・小松市・加賀市・かほく市・羽昨市

この事例と似たテーマカテゴリーを見る

全国のフルリフォーム・リノベーション『ピックアップ事例』※プロの詳細解説付きレポート

HEAT20-G2/耐震等級3
新耐震基準の性能向上リノベーション
築30年ハウスメーカー軽量鉄骨
断熱改修&リノベーション
 
中古住宅を新築以上の耐震性能と断熱性能へ!
耐震等級3フルリフォーム
地下付き木造2階建て
自然素材をつかった性能向上リノベーション&フルリフォーム

東京都文京区 K様邸

長屋を切り離して1つの構造体へフルリフォーム&リノベーション
隣家との距離がない!
部屋から外壁を張り替えるフルリノベーション
中古住宅を耐震等級3へ!
中古住宅リノベーション
 
基礎がない??
築60年の古屋をジャッキアップで基礎新設フルリノベーション

東京都渋谷区 O様邸

戸建てリノベーション・リフォームに関するお問合せはこちら

増改築.comの一戸建てリフォーム専用ホームページに
お越しいただき、誠に有難うございます。
 
増改築.comメンバーは技術集団となり、
他社のような営業マンがおりません。
技術者が直接ご相談にのり問題解決を行います。
 
従いまして、
お客様の方である程度のご要望が整理されました段階、
お悩みが工事内容のどのようなところにあるのか?
ご予算がどの程度絞る必要があるのか?
など明確になった段階でのご相談をお願いしております。
お問合せ・ご相談はお電話・メールにて受け付けております。
メールの場合は以下のフォームに必要事項をご記入の上、
「送信する」ボタンをクリックをお願いします。

代表稲葉高志

戸建てリノベーションの専属スタッフが担当致します。
一戸建て家のリフォームに関することを
お気軽にお問合せください

よくあるご質問
  • 他社に要望を伝えたところできないといわれたのですが・・・
  • 他社で予算オーバーとなってしまい要望が叶わないのですが・・・
  • サービスについて詳しく聞きたいのですが・・・

どのようなお悩みのご相談でも結構です。

あなたの大切なお住まいに関するご相談をお待ちしております。

営業マンはおりませんので、しつこい営業等も一切ございません。

設計会社(建築家様)・同業の建築会社様のご相談につきましては、プランと共にご指定のIw値及びUa値等の性能値の目安もお願い申し上げます。

2026年の大型補助金が確定したことで現在大変込み合っております。

耐震性能と断熱性能を向上させるフルリフォームには6か月~7か月の工期がかかります。

補助金獲得には年内に報告を挙げる必要があることから、お早目にご相談をお願いいたします。(6月着工までが目安

ご提案までに大変お時間がかかっております。ご了承のほどお願い申し上げます。

(5月までの着工枠が埋まりました)・・・2026/03/01更新

※すでにプランをお持ちのお施主様・設計資料をお持ちのお施主様は内容をフォームで送信後、フォーム下のメールアドレスに資料をお送りください。対応がスムーズです。

必須

(例:増改築太郎)

必須

(例:contact@high-will.co.jp)

(例:03-5615-2826)

必須

(例:東京都荒川区西日暮里2-35-1)

(例:築40年)

(例:25坪・100㎡など)

(例:2000万程度など)

  • ※再建築不可のリフォームでは金融機関が限られます。事前審査をお勧めいたします。

    (例:2024年3月くらいに完成希望など)

    必須

    できるだけ具体的にお知らせくださいませ。既存設計資料、リフォーム後のイメージ図等をお持ちであれば下記のメールアドレスより添付をお願いします。

    ※次の画面がでるまで、4~5秒かかりますので、
    続けて2回押さないようにお願いいたします。

    ※次の画面が出るまで、4〜5秒かかりますので、
    続けて2回押さないようにお願いいたします。

    図面や写真等を送信いただく場合、また入力がうまくいかない場合は、上記内容をご確認のうえ、下記メールアドレスまでご連絡ください。

    お電話でのお問合せはこちら

    0120-246-991

    営業時間:10:00~17:00(土日祝日を除く)

    ★YouTube「増改築.comチャンネル」チャンネル登録して新動画解説をいち早くGET!!★
    「増改築.comリノベ診断」であなたに一番ふさわしいフルリフォームを診断!!(動画解説付き)
    ★Facebookページにいいね!を押して最新コンテンツ情報をいち早くGET!!★
    パソコン|モバイル
    ページトップに戻る