戸建フルリフォームなら「増改築.com®」TOP > 施工事例 > 都道府県で探す石川県 > 能美市 > 施工事例 T様 LDKリフォーム事例

台所・和室で区切られた部屋をLDKへ段差もバリアフリーへ

石川県能美市のLDKリフォーム事例

 

築50年以上の家屋でこの数十年で数回に渡りリフォームをして来ましたが、断熱などの施工が出来ていなかった事や、タイルの浴室など寒くて使い勝手が悪かったので、今回水廻りを全体的に取り込んだプランで提案しました。

建物概要
名前 T様
場所 石川県能美市
築年数 築50年以上
構造種別 木造一戸建て(2階建ての1階部分)
家族構成 大人3人 子供1人
対象面積 9坪
リフォーム部位 LDKリフォーム/間取り変更/住設機器交換
工期 1.5ヶ月
価格 500万

お客様のご要望

今回のリフォームで、T様からのご要望は以下の5点です。

  • 住設機器が古いので、最新の使い勝手の良い商品を入れたい
  • 動線が悪く、家事に手間取る
  • 親の為バリアフリーにしたい。
  • オール電化に変更(エコキュート井戸水対応型)
  • 浴室が寒いので暖かくしたい。

石川県でT様の建物には家族4人で住んでましたが、昔からの建て方で丸太梁や泥壁で部屋も多くあり、細かく区切られているので、今回水廻りをメインに収納部屋などを取り込んだプランでご提案させて頂きました。

~プランニングのポイント~

流し台・和室で区切られた部屋をLDKにして、洗面脱衣場も和室から直接入るので違う動線を確保しました。

又出入口に段差がありましたのでバリアフリーにして、各所に手摺を設置して安心して動けるようにしました。

今後の光熱費も考えてオール電化に!!

石川県能美市T様邸 施工事例テーマカテゴリー

 

  • 部分リフォーム

打ち合わせから着工、完成までの詳細施工事例紹介

1 LDKリフォーム着工前

1-1 現場調査・打合せ

石川県能美市T様のお宅は、メインとなる和室が家の真ん中にあり、昼間でも照明が必要なほど暗いので、少しでも明るくしたいとご希望でした。

また、直接和室から洗面脱衣場に出入りする間取りになっている為、動線を変更して気遣い不要にしたいとのことでした。

和室と流し台。食器棚を間仕切り代わりにしていました。

和室から入る脱衣所。部屋を通らないとお風呂に行けません。


浴室と脱衣場

浴室は数十年前にリフォームをしていますが、在来のタイル工法の為やはり寒いです。

お風呂はユニットバスに変更、脱衣場も狭いので広く使えるようにしたいと思います。

 

既存脱衣所。狭いです。

既存浴室。タイル張りで寒いです。


洗面所とボイラー室

洗面所とボイラー・収納が同じ場所にあるため収納が上手くいってないような状況でした。

ボイラーは外に設置、収納も多く確保して部屋を有効活用できるようにします。

出来るだけ断熱効果を上げる施工も同時にします。

 

既存水回りホール。ここに洗濯機もありますが、脱衣所と離れている為使い勝手が悪くなっていました。

既存洗面台。


1-2 石川県能美市 T様邸 LDKリフォームプラン

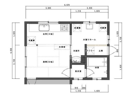
  間取りの変更プラン  

既存平面図

新規平面図

今回南面にある台所の窓の明かりをより多くLDKに取り入れるために、収納関係の高さや位置を考えてプラン提案しました。

T様の間取り変更LDKリフォーム工事はこうしてはじまりました。

2 LDKリフォーム着工

2-1 解体

解体工事にあたり、これから工事完了までの間ご迷惑をお掛けする近隣の方々への挨拶回りを行い、いよいよ着工となりました。

今回のT様邸の戸建リフォーム工事は、LDKをメインに水廻りの改装です。
施主様が住みながらのリフォームとなりましたので、浴室に一日でも早く入れるように最短工期で施工させて頂きました。

 

解体初日です。施主様に部屋の中に有るもの全て移動していただきました。

昔の束石や泥壁が年代を感じさせます。

黒くすすこけた大きな丸太梁

古い給排水は全てやり替えます

浴室を解体したら白アリの被害がありましたので、そこはしっかり取り換えしてから防蟻処理を行います。

天・壁・床も全て解体して全体の把握した後、次の作業に進みます。

2-2 木工事

レベルをみて基準点を決めてから床組へ

2-3 設備工事

古い給排水は全て交換、大工の床組と一緒に進行するこで確実に経路を確保します。

2-4 大工工事

床組を全てやり替え、床下には断熱材を入れ全室バリアフリーにしました。

新しい柱を入れて壁の作成に

2-5 内装仕上工事

内装業者さんによるクロス工事が始まります。床養生しっかりして工具落下傷やクロスパテなどから床を守ります。

クロスを貼るまえに、電源部の開口をして最終確認をします。

クロスが貼り終わると養生を捲り、クリーニングを行います。ここで一気に完成形に近付きます。

衛生設備や照明器具、設置されていきます。

水廻りのシーリング工事が終わりクリーニングして完成です。

3 LDKリフォーム竣工

石川県能美市の住みながらの戸建てリノベーション工事、竣工です。
T様邸の様子をご紹介します。


  == LDK==  

戸建てリノベーション(リフォーム)前

リフォーム前は収納棚を間仕切り代わりに設置されていました。

戸建てリノベーション(リフォーム)後

リフォーム後はキッチンの後ろに可動棚を設置して食器棚に。同じく家電収納スペースとカウンターも設置しました。

全室バリアフリーになり、最新型の住設を入れて楽々な家事の動線を確保しつつ、会話が広がるLDKになりました。

細かく区切られた部屋をフルオープンで使えるようにし、部屋の真ん中に明かりが入るよう、家電造作棚を作成

LDKから一旦収納及び洗濯場に入る動線で浴室へも

収納部屋には野菜などを洗うちょっとした流し台を設置

半透明の建具を入れる事で、多少でもLDKに自然光を取り入れる工夫をしました。

キッチン横の可動棚は食品庫としても利用可能です。


  == キッチン ==  

戸建てリノベーション(リフォーム)前

大きな流し台、冷蔵庫も横に設置出来ず無駄なスペースがありました。

戸建てリノベーション(リフォーム)後

キッチンはLIXILのASシリーズ。キッチンの位置を変更する事で冷蔵庫横に置き無駄なスペースを排除しました。


  == 浴室 ==  

戸建てリノベーション(リフォーム)前

在来工法のタイルの浴室。浴室暖房を設置していましたが、底冷えがあり寒い浴室でした。

戸建てリノベーション(リフォーム)後

LIXILのシステムバスルーム「アライズ」。システムバスにすることで断熱性がアップしました。


  == 洗面所 ==  

戸建てリノベーション(リフォーム)前

リフォーム前は洗面所と脱衣場、洗濯機が離れた場所にありました

戸建てリノベーション(リフォーム)後

リフォーム後は1カ所にまとめる事でお悩みを解決しました。スペースも広くなり、手摺も付けて安全に入れるように対応しました。洗面化粧台はLIXILの「オフト」

 

4 担当者より
(「増改築.com®」石川支部・株式会社さくら 代表 湯浅 利昭)

 

能美市T様邸は築50年以上の古家建築で、この数十年で何度かリフォームをされていました。

その年代の技術でリフォームされており、一部は改善はされていますが根本的な所が改善されていなかったので、今回一番長い時間を過ごすLDKと水廻りを中心にリフォームさせて頂きました。

天井・壁・床にはしっかり断熱材を入れ、壁の隙間風も一切入らないように施工を施し、LDKから浴室に入るまでは室内の温度差を極力なくし、安心して使えるようにしました。

とても大きな家なのでフルリノベーションは金額的にも難しいですが、今回はLDK・浴室をメインに心地良い居住空間を作る事が出来ました。

T様、この度はご依頼をいただき、誠にありがとうございました。

石川県の他のリフォーム事例を見る

石川県

金沢市・野々市・能美市白山市・小松市・加賀市・かほく市・羽昨市

この事例と似たテーマカテゴリーを見る

全国のフルリフォーム・リノベーション『ピックアップ事例』※プロの詳細解説付きレポート

HEAT20-G2/耐震等級3
新耐震基準の性能向上リノベーション
築30年ハウスメーカー軽量鉄骨
断熱改修&リノベーション
 
中古住宅を新築以上の耐震性能と断熱性能へ!
耐震等級3フルリフォーム
地下付き木造2階建て
自然素材をつかった性能向上リノベーション&フルリフォーム

東京都文京区 K様邸

長屋を切り離して1つの構造体へフルリフォーム&リノベーション
隣家との距離がない!
部屋から外壁を張り替えるフルリノベーション
中古住宅を耐震等級3へ!
中古住宅リノベーション
 
基礎がない??
築60年の古屋をジャッキアップで基礎新設フルリノベーション

東京都渋谷区 O様邸

戸建てリノベーション・リフォームに関するお問合せはこちら

増改築.comの一戸建てリフォーム専用ホームページに
お越しいただき、誠に有難うございます。
 
増改築.comメンバーは技術集団となり、
他社のような営業マンがおりません。
技術者が直接ご相談にのり問題解決を行います。
 
従いまして、
お客様の方である程度のご要望が整理されました段階、
お悩みが工事内容のどのようなところにあるのか?
ご予算がどの程度絞る必要があるのか?
など明確になった段階でのご相談をお願いしております。
お問合せ・ご相談はお電話・メールにて受け付けております。
メールの場合は以下のフォームに必要事項をご記入の上、
「送信する」ボタンをクリックをお願いします。

代表稲葉高志

戸建てリノベーションの専属スタッフが担当致します。
一戸建て家のリフォームに関することを
お気軽にお問合せください

よくあるご質問
  • 他社に要望を伝えたところできないといわれたのですが・・・
  • 他社で予算オーバーとなってしまい要望が叶わないのですが・・・
  • サービスについて詳しく聞きたいのですが・・・

どのようなお悩みのご相談でも結構です。

あなたの大切なお住まいに関するご相談をお待ちしております。

営業マンはおりませんので、しつこい営業等も一切ございません。

設計会社(建築家様)・同業の建築会社様のご相談につきましては、プランと共にご指定のIw値及びUa値等の性能値の目安もお願い申し上げます。

2026年の大型補助金が確定したことで現在大変込み合っております。

耐震性能と断熱性能を向上させるフルリフォームには6か月~7か月の工期がかかります。

補助金獲得には年内に報告を挙げる必要があることから、お早目にご相談をお願いいたします。(6月着工までが目安

ご提案までに大変お時間がかかっております。ご了承のほどお願い申し上げます。

(5月までの着工枠が埋まりました)・・・2026/03/01更新

※すでにプランをお持ちのお施主様・設計資料をお持ちのお施主様は内容をフォームで送信後、フォーム下のメールアドレスに資料をお送りください。対応がスムーズです。

必須

(例:増改築太郎)

必須

(例:contact@high-will.co.jp)

(例:03-5615-2826)

必須

(例:東京都荒川区西日暮里2-35-1)

(例:築40年)

(例:25坪・100㎡など)

(例:2000万程度など)

  • ※再建築不可のリフォームでは金融機関が限られます。事前審査をお勧めいたします。

    (例:2024年3月くらいに完成希望など)

    必須

    できるだけ具体的にお知らせくださいませ。既存設計資料、リフォーム後のイメージ図等をお持ちであれば下記のメールアドレスより添付をお願いします。

    ※次の画面がでるまで、4~5秒かかりますので、
    続けて2回押さないようにお願いいたします。

    ※次の画面が出るまで、4〜5秒かかりますので、
    続けて2回押さないようにお願いいたします。

    図面や写真等を送信いただく場合、また入力がうまくいかない場合は、上記内容をご確認のうえ、下記メールアドレスまでご連絡ください。

    お電話でのお問合せはこちら

    0120-246-991

    営業時間:10:00~17:00(土日祝日を除く)

    ★YouTube「増改築.comチャンネル」チャンネル登録して新動画解説をいち早くGET!!★
    「増改築.comリノベ診断」であなたに一番ふさわしいフルリフォームを診断!!(動画解説付き)
    ★Facebookページにいいね!を押して最新コンテンツ情報をいち早くGET!!★
    パソコン|モバイル
    ページトップに戻る