戸建フルリフォームなら「増改築.com®」TOP > 施工事例 > 都道府県で探す静岡県 > 掛川市 > 施工事例 A様 二世帯住宅(平屋)フルリフォーム&リノベーション

二世帯住宅(平屋)フルリフォーム&リノベーション事例 静岡県掛川市

静岡県掛川市A様邸

 

建物概要
名前 A様
場所 静岡県掛川市
築年数 築20年
構造種別 木造、ガレージRC造 平屋建て
家族構成 大人4人 子供1人
対象面積 122.55㎡、36.7坪
リフォーム部位 内装改修(間取り変更有り)、水周り改修(浴室、洗面台、トイレ、キッチン)、玄関ドア、一部サッシ
工期 約40日
価格 約1100万

お客様のご要望

今回のリフォームで、A様からのご要望は以下の8点です。

  • 長男夫婦との同居の為の間取り変更
  • 使い勝手の良い収納
  • 両世帯との防音対策
  • 玄関ドアを引き戸に変更したい
  • 水周りを一新したい、特にキッチンはこだわりたい
  • 浴室内にTVが欲しい
  • 若夫婦のリビングは南面なので暑さ対策でサッシ交換
  • 廊下が暗いので明るくしたい

~プランニングのポイント~

平屋建て住宅を長男夫婦との同居により2世帯住宅にリフォームする為、お互いのプライバシーを確保しながら快適に住まえる住空間の提案をしました。

具体的には、若夫婦のLDK天井は勾配天井とし、新たに構造梁を新設し露出させ解放感を演出。更に南面に面している為、夏場の暑さ対策等に窓ガラスを遮熱・高断熱・遮音・防露に有効な「真空ガラス」を採用していただきました。

既存玄関ドアから使い勝手の良い引戸に変更。更に開口面積の広い3本引き戸を採用していただきました。

収納については、場所ごとの収納機能を考慮し奥行や棚板の高さ、間口等を検討し十分な収納スペースを確保しました。

水周り機器については、ショールームに同行いただき何度も変更を重ねて納得のいく機器を選択していただきました。

 

静岡県掛川市S様邸 施工事例テーマカテゴリー

 

  • 平屋リフォーム
  • 二世帯住宅リフォーム
  • 内部スケルトンリフォーム+サッシ交換

打ち合わせから着工、完成までの詳細施工事例紹介

1 戸建てリノベーション着工前

1-1 現場調査・打合せ
静岡県掛川市A様邸_既存

既存玄関は親子ドア

静岡県掛川市A様邸_既存

既存玄関

静岡県掛川市A様邸_既存

既存玄関ホール

静岡県掛川市A様邸_既存

既存勝手口

静岡県掛川市A様邸_既存

既存LDK

静岡県掛川市A様邸_既存

既存LDK

静岡県掛川市A様邸_既存

既存LDKとキッチン

静岡県掛川市A様邸_既存

既存キッチン

静岡県掛川市A様邸_既存

既存キッチン

静岡県掛川市A様邸_既存

既存浴室

静岡県掛川市A様邸_既存

既存洗面所

静岡県掛川市A様邸_既存

既存トイレ

静岡県掛川市A様邸_既存

既存和室

静岡県掛川市A様邸_既存

既存子供室

静岡県掛川市A様邸_既存

既存子供室

静岡県掛川市A様邸_既存

既存洋室
 

静岡県掛川市A様邸_既存

既存洋室

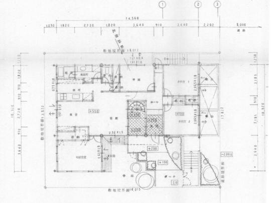
1-2 静岡県掛川市 A様邸 戸建リノベーションプラン

  間取りの変更プラン  

静岡県掛川市A様邸_既存

既存図面

静岡県掛川市A様邸

新規図面

2 戸建てリノベーション着工

2-1 解体
静岡県掛川市A様邸_解体

LDK解体中

静岡県掛川市A様邸_解体

LDK解体中

静岡県掛川市A様邸_解体

解体

静岡県掛川市A様邸_解体

解体

静岡県掛川市A様邸_解体

解体

静岡県掛川市A様邸_解体

解体

2-2 木工事
静岡県掛川市A様邸_木工事

若夫婦のLDKは構造梁を露出して開放感を演出

静岡県掛川市A様邸_木工事

勾配天井となります

静岡県掛川市A様邸_木工事

ユニットバス施工中

写真はありませんが、両世帯の防音のため、間仕切壁内にロックウール厚100を充填+遮音シート+石膏ボード2枚張りで対策しました。

3 戸建てリノベーション竣工

  == LDK ==  

戸建てリノベーション前

静岡県掛川市A様邸

既存LDKはキッチンとの間に壁がありました

戸建てリノベーション後

静岡県掛川市A様邸

改修後はオープンにして広さを実感できるLDKに

静岡県掛川市A様邸
静岡県掛川市A様邸

キッチンはLIXIL「リシェル SI」


  == キッチン ==  

戸建てリノベーション前

静岡県掛川市A様邸

壁で仕切られていたため少し暗かった既存キッチン

戸建てリノベーション後

静岡県掛川市A様邸

吊戸棚もなくし開放的で家族が誰でも使いやすくなりました

静岡県掛川市A様邸

機能的な収納

静岡県掛川市A様邸

ゴミ箱も収納してしまいました


  == 浴室・洗面・トイレ ==  

戸建てリノベーション前

静岡県掛川市A様邸

戸建てリノベーション後

静岡県掛川市A様邸

システムバス:LIXIL「アライズ」

戸建てリノベーション前

静岡県掛川市A様邸

戸建てリノベーション後

静岡県掛川市A様邸

洗面化粧台:LIXIL「エルシイ」

戸建てリノベーション前

静岡県掛川市A様邸

戸建てリノベーション後

静岡県掛川市A様邸

トイレ:LIXIL「アステオ」


  == 若夫婦LDK ==  

戸建てリノベーション前

静岡県掛川市A様邸
静岡県掛川市A様邸

改修前は2部屋の子供室でした

戸建てリノベーション後

静岡県掛川市A様邸

1つのLDKにして天井を高く、梁を露出させて開放感のある間取りに。

静岡県掛川市A様邸
静岡県掛川市A様邸

夏場の暑さ対策のため真空サッシ:日本板硝子㈱のスペーシアを採用しました

静岡県掛川市A様邸

LDKに隣接した収納

静岡県掛川市A様邸

洗面所から離れているので、ここに洗面台だけ設置しました。LIXIL「ミズリア」です。

真空ガラス「スペーシア」

夏の日差しをカットします

 

スペーシアは断熱・遮熱性に優れた真空ガラスです。

 

お部屋の厚さの原因となる太陽熱を51%カット。1枚ガラスの約4倍の遮熱性能で冷房の効果を高め、いつでもお部屋は快適です。

 

紫外線の侵入も約60%カットしてくれます。

 

効率が上がるので省エネ。1枚ガラスと比べて約45%、一般的な複層ガラスと比べても約30%のエネルギーを削減してくれます。

 

取り換えは簡単。もともとのサッシを生かしてガラスを取り換えるだけなので、手間もかからずとても簡単です。

(今回のA様邸では新規サッシで入れています)


  == その他 ==  

静岡県掛川市A様邸

玄関を入ると印象的な引戸。親世帯のシューズボックスに続いています

静岡県掛川市A様邸

親世帯のシューズボックスと収納

静岡県掛川市A様邸

こちらは若夫婦のシューズボックス

静岡県掛川市A様邸

若夫婦のウォークインクローゼット

静岡県掛川市A様邸

中央廊下

静岡県掛川市A様邸

廊下収納


住まい工房オアシス 代表

4 担当者より
(「増改築.com®」掛川支部・住まい工房オアシス 代表 平尾真志)

 

築20年余りとそれほど経過していない建物でしたが、ご長男家族との同居を期に大規模リノベーションの計画となりました。

工事にあたり一番気を配った点は、ご両親世帯との生活スタイルの違いにおいて「音」にストレスを感じないようお互いの生活空間との間仕切に防音対策を施しました。

若夫婦家族のLDKは南面に面しており、バルコニーに向かって大きな面積のサッシがありました。夏の酷暑や冬の寒さ対策として「真空ガラス」を採用いただきました。

 

A様には大変ご満足をいただきました。ありがとうございました。

静岡県の他のリフォーム事例を見る

○静岡県

掛川市・袋井市・菊川市・磐田市・浜松市・森町・御前崎市・牧之原市・島田市・藤枝市

全国のフルリフォーム・リノベーション『ピックアップ事例』※プロの詳細解説付きレポート

HEAT20-G2/耐震等級3
新耐震基準の性能向上リノベーション
築30年ハウスメーカー軽量鉄骨
断熱改修&リノベーション
 
中古住宅を新築以上の耐震性能と断熱性能へ!
耐震等級3フルリフォーム
地下付き木造2階建て
自然素材をつかった性能向上リノベーション&フルリフォーム

東京都文京区 K様邸

長屋を切り離して1つの構造体へフルリフォーム&リノベーション
隣家との距離がない!
部屋から外壁を張り替えるフルリノベーション
中古住宅を耐震等級3へ!
中古住宅リノベーション
 
基礎がない??
築60年の古屋をジャッキアップで基礎新設フルリノベーション

東京都渋谷区 O様邸

戸建てリノベーション・リフォームに関するお問合せはこちら

増改築.comの一戸建てリフォーム専用ホームページに
お越しいただき、誠に有難うございます。
 
増改築.comメンバーは技術集団となり、
他社のような営業マンがおりません。
技術者が直接ご相談にのり問題解決を行います。
 
従いまして、
お客様の方である程度のご要望が整理されました段階、
お悩みが工事内容のどのようなところにあるのか?
ご予算がどの程度絞る必要があるのか?
など明確になった段階でのご相談をお願いしております。
お問合せ・ご相談はお電話・メールにて受け付けております。
メールの場合は以下のフォームに必要事項をご記入の上、
「送信する」ボタンをクリックをお願いします。

代表稲葉高志

戸建てリノベーションの専属スタッフが担当致します。
一戸建て家のリフォームに関することを
お気軽にお問合せください

よくあるご質問
  • 他社に要望を伝えたところできないといわれたのですが・・・
  • 他社で予算オーバーとなってしまい要望が叶わないのですが・・・
  • サービスについて詳しく聞きたいのですが・・・

どのようなお悩みのご相談でも結構です。

あなたの大切なお住まいに関するご相談をお待ちしております。

営業マンはおりませんので、しつこい営業等も一切ございません。

設計会社(建築家様)・同業の建築会社様のご相談につきましては、プランと共にご指定のIw値及びUa値等の性能値の目安もお願い申し上げます。

2026年の大型補助金が確定したことで現在大変込み合っております。

耐震性能と断熱性能を向上させるフルリフォームには6か月~7か月の工期がかかります。

補助金獲得には年内に報告を挙げる必要があることから、お早目にご相談をお願いいたします。(6月着工までが目安

ご提案までに大変お時間がかかっております。ご了承のほどお願い申し上げます。

(5月までの着工枠が埋まりました)・・・2026/03/01更新

※すでにプランをお持ちのお施主様・設計資料をお持ちのお施主様は内容をフォームで送信後、フォーム下のメールアドレスに資料をお送りください。対応がスムーズです。

必須

(例:増改築太郎)

必須

(例:contact@high-will.co.jp)

(例:03-5615-2826)

必須

(例:東京都荒川区西日暮里2-35-1)

(例:築40年)

(例:25坪・100㎡など)

(例:2000万程度など)

  • ※再建築不可のリフォームでは金融機関が限られます。事前審査をお勧めいたします。

    (例:2024年3月くらいに完成希望など)

    必須

    できるだけ具体的にお知らせくださいませ。既存設計資料、リフォーム後のイメージ図等をお持ちであれば下記のメールアドレスより添付をお願いします。

    ※次の画面がでるまで、4~5秒かかりますので、
    続けて2回押さないようにお願いいたします。

    ※次の画面が出るまで、4〜5秒かかりますので、
    続けて2回押さないようにお願いいたします。

    図面や写真等を送信いただく場合、また入力がうまくいかない場合は、上記内容をご確認のうえ、下記メールアドレスまでご連絡ください。

    お電話でのお問合せはこちら

    0120-246-991

    営業時間:10:00~17:00(土日祝日を除く)

    ★YouTube「増改築.comチャンネル」チャンネル登録して新動画解説をいち早くGET!!★
    「増改築.comリノベ診断」であなたに一番ふさわしいフルリフォームを診断!!(動画解説付き)
    ★Facebookページにいいね!を押して最新コンテンツ情報をいち早くGET!!★
    パソコン|モバイル
    ページトップに戻る