戸建フルリフォームなら「増改築.com®」TOP > 施工事例 > 都道府県で探す静岡県 > 掛川市 > 施工事例 S様 築40年農家脇屋 耐震補強&増築リノベーション

築40年農家脇屋 耐震補強&増築リノベーション事例 静岡県掛川市

静岡県掛川市S様邸

 

建物概要
名前 S様
場所 静岡県掛川市
築年数 築40年
構造種別 1階部分鉄骨造、2階部分木造
家族構成 大人2人 子供2人
対象面積 1階既存部分37.539㎡、2階既存部分33.124㎡、1階増築部分15.183㎡、2階増築部分8.281㎡、ベランダ部分6.90㎡
リフォーム部位 内装改修(間取り変更有り)一部増築、2階キッチン新設、1階トイレ洗面所新設、玄関引戸、サッシ
工期 約3.5ヶ月
価格 約1,500万

お客様のご要望

今回のリフォームで、S様からのご要望は以下の7点です。

  • 両親世帯と同一敷地同居の為、古い脇屋を増改築したい
  • 希望の間取りと予算との融合
  • 玄関ドアは引き戸希望
  • キッチンはこだわりたい
  • 玄関ホールには帰宅直後に手洗い可能に洗面台を希望
  • 気密性の高いサッシ交換
  • 屋根・外壁の改修

~プランニングのポイント~

◆改修前の脇屋1階は、農家を営むご両親の農作物の荷造り部屋スペースがあり、そこを残しつつの限られたスペースの中での増改築プランの提案

◆耐震性能を高める為、2階床には28㎜合板を施工し剛床とし、梁・筋違い等の補強と耐震金物設置

◆1階増築部分は、ご主人のプライベートルームとなりました

静岡県掛川市S様邸 施工事例テーマカテゴリー

 

  • 平屋リフォーム
  • 二世帯住宅リフォーム
  • 内部スケルトンリフォーム+サッシ交換

打ち合わせから着工、完成までの詳細施工事例紹介

1 戸建てリノベーション着工前

1-1 現場調査・打合せ
静岡県掛川市S様邸_既存

既存施工前の脇屋です

静岡県掛川市S様邸_既存
静岡県掛川市S様邸_既存
静岡県掛川市S様邸_既存
静岡県掛川市S様邸_既存
静岡県掛川市S様邸_既存
静岡県掛川市S様邸_既存
静岡県掛川市S様邸_既存
静岡県掛川市S様邸_既存
静岡県掛川市S様邸_既存
静岡県掛川市S様邸_既存
静岡県掛川市S様邸_既存
静岡県掛川市S様邸_既存
静岡県掛川市S様邸_既存
静岡県掛川市S様邸_既存
静岡県掛川市S様邸_既存
静岡県掛川市S様邸_既存
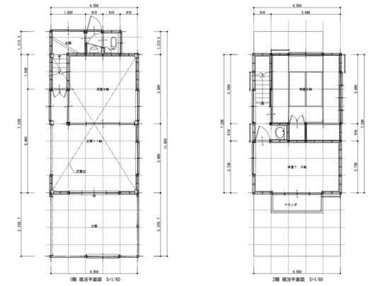
1-2 静岡県掛川市 S様邸 戸建リノベーションプラン

  間取りの変更プラン  

静岡県掛川市S様邸_既存

既存図面

静岡県掛川市S様邸

新規図面

2 戸建てリノベーション着工

2-1 解体
静岡県掛川市S様邸_解体
静岡県掛川市S様邸_解体
静岡県掛川市S様邸_解体
静岡県掛川市S様邸_解体

もとは簡易的に増築してあった土間を解体

静岡県掛川市S様邸_解体
静岡県掛川市S様邸_解体
2-2 増築工事
静岡県掛川市S様邸_増築工事
静岡県掛川市S様邸_増築工事
2-3 耐震補強
静岡県掛川市S様邸_耐震補強
静岡県掛川市S様邸_耐震補強
静岡県掛川市S様邸_耐震補強
静岡県掛川市S様邸_耐震補強
静岡県掛川市S様邸_耐震補強
2-4 大工工事
静岡県掛川市S様邸_木工事
静岡県掛川市S様邸_木工事
静岡県掛川市S様邸_木工事
静岡県掛川市S様邸_木工事
静岡県掛川市S様邸_木工事
静岡県掛川市S様邸_木工事
静岡県掛川市S様邸_木工事
2-5 屋根工事
静岡県掛川市S様邸_屋根工事
静岡県掛川市S様邸_屋根工事
静岡県掛川市S様邸_屋根工事
2-6 断熱工事
静岡県掛川市S様邸_断熱工事
静岡県掛川市S様邸_断熱工事
静岡県掛川市S様邸_断熱工事
2-7 外壁工事
静岡県掛川市S様邸_外壁工事
静岡県掛川市S様邸_外壁工事
静岡県掛川市S様邸_外壁工事
静岡県掛川市S様邸_外壁工事
2-8 内装工事
静岡県掛川市S様邸_内装工事

3 戸建てリノベーション竣工

  == 外観 ==  

戸建てリノベーション前

静岡県掛川市S様邸_既存

既存では簡易的に土間が増築されていました

戸建てリノベーション後

静岡県掛川市S様邸_竣工

改築後は2階も広げて増築しました

戸建てリノベーション前

静岡県掛川市S様邸_既存

戸建てリノベーション後

静岡県掛川市S様邸_竣工

屋根と外壁も新しくしました

戸建てリノベーション前

静岡県掛川市S様邸_既存

戸建てリノベーション後

静岡県掛川市S様邸_竣工

玄関は2枚建てから1枚建引戸へ


  == 玄関 ==  

戸建てリノベーション前

静岡県掛川市S様邸_既存

戸建てリノベーション後

静岡県掛川市S様邸_竣工

玄関を入ってすぐ手を洗えるように洗面台を設けました


  == 1階 トイレ・洗面台 ==  

静岡県掛川市S様邸_竣工

LIXIL サティスSタイプ

静岡県掛川市S様邸_竣工

LIXIL サティス コンパクト洗面器555タイプ

静岡県掛川市S様邸_竣工

  == 1階 新洋室 ==  

戸建てリノベーション前

静岡県掛川市S様邸_既存

戸建てリノベーション後

静岡県掛川市S様邸_竣工

1階増築部分はご主人のプライベートルームに


  == 2階 LDK ==  

戸建てリノベーション前

静岡県掛川市S様邸_既存

戸建てリノベーション後

静岡県掛川市S様邸_竣工

2階の増築部分はLDKとバルコニーになりました

静岡県掛川市S様邸_竣工
静岡県掛川市S様邸_竣工

フローリング:(株)ノダ製 Jネクシオ(しずおか木の家推進事業、補助金対象床材 施主様に\140,000支給)

静岡県掛川市S様邸_竣工

クリナップ製「ラクエラ」コンフォート 扉カラー(ズラチナオーク)I型間口2,550 食洗器付き

静岡県掛川市S様邸_竣工

レンジフードは(フラットスリムレンジフード)。家電収納も付けました。


  == 2階 寝室 ==  

戸建てリノベーション前

静岡県掛川市S様邸_既存

戸建てリノベーション後

静岡県掛川市S様邸_竣工
静岡県掛川市S様邸_竣工

内装建具:「ビノイエ」シリーズ

静岡県掛川市S様邸_竣工
静岡県掛川市S様邸_竣工
静岡県掛川市S様邸_竣工

住まい工房オアシス 代表

4 担当者より
(「増改築.com®」掛川支部・住まい工房オアシス 代表 平尾真志)

 

17年程前に主屋新築を施工させていただき、今回は娘様ご家族が居住用に同一敷地内の既存脇屋を増改築するご相談を受けました。

築40年程経過した1階部分鉄骨造で2階部分木造の構造の脇屋でした。ご相談を受けてから度重なるプラン変更打合せを約1年間経て着工となりました。間取りについては、既存2階部分は洋室・和室の2部屋の個室でしたので、増改築後はLDKと大きめのベランダ及び寝室で構成された間取りに変更しました。特に耐震性能を高める為の補強には配慮しています。

屋根・外壁・サッシ等の改修も合せて行いました。

使用した床フローリング材は、静岡県の独自事業で優良木材使用の補助金対象の仕上げ材を使用させていただきました。

 

S様には大変ご満足をいただきました。ありがとうございました。

静岡県の他のリフォーム事例を見る

○静岡県

掛川市・袋井市・菊川市・磐田市・浜松市・森町・御前崎市・牧之原市・島田市・藤枝市

この事例と似たテーマカテゴリーを見る

全国のフルリフォーム・リノベーション『ピックアップ事例』※プロの詳細解説付きレポート

HEAT20-G2/耐震等級3
新耐震基準の性能向上リノベーション
築30年ハウスメーカー軽量鉄骨
断熱改修&リノベーション
 
中古住宅を新築以上の耐震性能と断熱性能へ!
耐震等級3フルリフォーム
地下付き木造2階建て
自然素材をつかった性能向上リノベーション&フルリフォーム

東京都文京区 K様邸

長屋を切り離して1つの構造体へフルリフォーム&リノベーション
隣家との距離がない!
部屋から外壁を張り替えるフルリノベーション
中古住宅を耐震等級3へ!
中古住宅リノベーション
 
基礎がない??
築60年の古屋をジャッキアップで基礎新設フルリノベーション

東京都渋谷区 O様邸

戸建てリノベーション・リフォームに関するお問合せはこちら

増改築.comの一戸建てリフォーム専用ホームページに
お越しいただき、誠に有難うございます。
 
増改築.comメンバーは技術集団となり、
他社のような営業マンがおりません。
技術者が直接ご相談にのり問題解決を行います。
 
従いまして、
お客様の方である程度のご要望が整理されました段階、
お悩みが工事内容のどのようなところにあるのか?
ご予算がどの程度絞る必要があるのか?
など明確になった段階でのご相談をお願いしております。
お問合せ・ご相談はお電話・メールにて受け付けております。
メールの場合は以下のフォームに必要事項をご記入の上、
「送信する」ボタンをクリックをお願いします。

代表稲葉高志

戸建てリノベーションの専属スタッフが担当致します。
一戸建て家のリフォームに関することを
お気軽にお問合せください

よくあるご質問
  • 他社に要望を伝えたところできないといわれたのですが・・・
  • 他社で予算オーバーとなってしまい要望が叶わないのですが・・・
  • サービスについて詳しく聞きたいのですが・・・

どのようなお悩みのご相談でも結構です。

あなたの大切なお住まいに関するご相談をお待ちしております。

営業マンはおりませんので、しつこい営業等も一切ございません。

設計会社(建築家様)・同業の建築会社様のご相談につきましては、プランと共にご指定のIw値及びUa値等の性能値の目安もお願い申し上げます。

2026年の大型補助金が確定したことで現在大変込み合っております。

耐震性能と断熱性能を向上させるフルリフォームには6か月~7か月の工期がかかります。

補助金獲得には年内に報告を挙げる必要があることから、お早目にご相談をお願いいたします。(6月着工までが目安

ご提案までに大変お時間がかかっております。ご了承のほどお願い申し上げます。

(5月までの着工枠が埋まりました)・・・2026/03/01更新

※すでにプランをお持ちのお施主様・設計資料をお持ちのお施主様は内容をフォームで送信後、フォーム下のメールアドレスに資料をお送りください。対応がスムーズです。

必須

(例:増改築太郎)

必須

(例:contact@high-will.co.jp)

(例:03-5615-2826)

必須

(例:東京都荒川区西日暮里2-35-1)

(例:築40年)

(例:25坪・100㎡など)

(例:2000万程度など)

  • ※再建築不可のリフォームでは金融機関が限られます。事前審査をお勧めいたします。

    (例:2024年3月くらいに完成希望など)

    必須

    できるだけ具体的にお知らせくださいませ。既存設計資料、リフォーム後のイメージ図等をお持ちであれば下記のメールアドレスより添付をお願いします。

    ※次の画面がでるまで、4~5秒かかりますので、
    続けて2回押さないようにお願いいたします。

    ※次の画面が出るまで、4〜5秒かかりますので、
    続けて2回押さないようにお願いいたします。

    図面や写真等を送信いただく場合、また入力がうまくいかない場合は、上記内容をご確認のうえ、下記メールアドレスまでご連絡ください。

    お電話でのお問合せはこちら

    0120-246-991

    営業時間:10:00~17:00(土日祝日を除く)

    ★YouTube「増改築.comチャンネル」チャンネル登録して新動画解説をいち早くGET!!★
    「増改築.comリノベ診断」であなたに一番ふさわしいフルリフォームを診断!!(動画解説付き)
    ★Facebookページにいいね!を押して最新コンテンツ情報をいち早くGET!!★
    パソコン|モバイル
    ページトップに戻る