戸建フルリフォームなら「増改築.com®」TOP > 施工事例 > 都道府県で探す静岡県 > 掛川市 > 施工事例 K様 築30年増築して開放的なLDK&薪ストーブのある家

築30年 開放的なLDKと薪ストーブのある家リノベーション事例 静岡県掛川市

静岡県掛川市K様邸

 

建物概要
名前 K様
場所 静岡県掛川市倉真地内
築年数 約30年
構造種別 2階建て在来工法木造
家族構成 大人4人
対象面積 47.87㎡、14.45坪
リフォーム部位 LDK内装改修(一部増築有り)、水周り改修(キッチン)、薪ストーブ設置
工期 約45日
価格 約650万

お客様のご要望

今回のリフォームで、K様からのご要望は以下の6点です。

  • 狭くて暗いキッチンを明るく機能的にしたい
  • 使い勝手の良い大収納をつけたい
  • 独立していたキッチンを開放的なLDKにしたい
  • 増築をしてLDKと続き間として広くしたい
  • キッチンはこだわりたい
  • 薪ストーブをつけたい

~プランニングのポイント~

◆築30年程経過した住まいはキッチンがダイニングとリビングから独立しており、暗く狭い印象でした。今回のリフォームではLDKを一体化し、開放的で明るい空間の提案をしました。

◆これまでは全体的に収納が少なかったので、大容量の収納を各所に設けました。

◆システムキッチンや内装建材には白を基調とし、さわやかな印象の空間を演出しています。

◆システムキッチンは、ショールームに同行いただき変更を重ねて納得のいく機器を選択していただきました。

◆ご主人の要望で「薪ストーブ」設置の為の、耐熱・耐火の下地構造や排煙処理を気配りしました。

静岡県掛川市K様邸 施工事例テーマカテゴリー

 

  • 増築リフォーム
  • 内部スケルトンリフォーム+サッシ交換

打ち合わせから着工、完成までの詳細施工事例紹介

1 戸建てリノベーション着工前

1-1 現場調査
静岡県掛川市K様邸_既存

既存 玄関ホール

静岡県掛川市K様邸_既存

既存 リビング

静岡県掛川市K様邸_既存

既存 ダイニング

静岡県掛川市K様邸_既存

既存 キッチン

静岡県掛川市K様邸_既存
静岡県掛川市K様邸_既存
静岡県掛川市K様邸_既存

施工前の増築部分

静岡県掛川市K様邸_既存
静岡県掛川市K様邸_既存
静岡県掛川市K様邸_既存
1-2 静岡県掛川市 K様邸 戸建リノベーションプラン

  間取りの変更プラン  

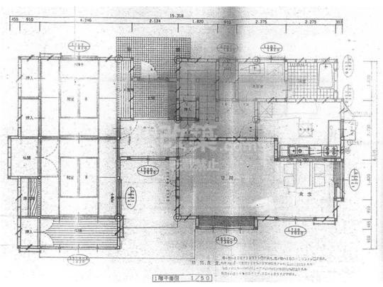
静岡県掛川市K様邸_既存図面

既存図面(1階)

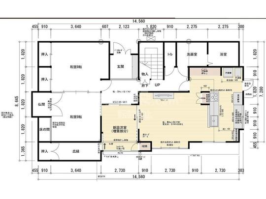
静岡県掛川市K様邸_新規図面

新規図面(1階)

2 戸建てリノベーション着工

静岡県掛川市K様邸_施工中
静岡県掛川市K様邸_施工中
静岡県掛川市K様邸_施工中

3 戸建てリノベーション竣工

  == 増築部分 ==  

戸建てリノベーション前

静岡県掛川市K様邸_既存

玄関ホールより増築部分を見たところ

戸建てリノベーション後

静岡県掛川市K様邸_竣工

ひと部屋増築して仕切ドアも一新しました

戸建てリノベーション前

静岡県掛川市K様邸_既存

増築前はリビングのドアと縦長の窓がありました(テレビで隠れています)

戸建てリノベーション後

静岡県掛川市K様邸_竣工

増築後は壁に格納できる引戸で空間がつながりました

戸建てリノベーション前

静岡県掛川市K様邸_既存

増築前

戸建てリノベーション後

静岡県掛川市K様邸_竣工

増築後


  == LDK ==  

戸建てリノベーション前

静岡県掛川市K様邸_既存

施工前はキッチンとダイニングが壁で仕切られていました

戸建てリノベーション後

静岡県掛川市K様邸_竣工

キッチンの位置を変えて広々LDKに。薪ストーブの存在が光ります

静岡県掛川市K様邸_竣工

光を取り入れた引戸

静岡県掛川市K様邸_竣工

薪ストーブの煙突


  == キッチン・収納 ==  

戸建てリノベーション前

静岡県掛川市K様邸_既存

施工前はL型のキッチンで暗い印象がありました

戸建てリノベーション後

静岡県掛川市K様邸_竣工

新しいキッチンは明るく開放的な場所に移動。リビングを見ながら洗い物ができます。

静岡県掛川市K様邸_竣工

パントリーは収納力抜群です

静岡県掛川市K様邸_竣工
静岡県掛川市K様邸_竣工
静岡県掛川市K様邸_竣工
静岡県掛川市K様邸_竣工

住まい工房オアシス 代表

4 担当者より
(「増改築.com®」掛川支部・住まい工房オアシス 代表 平尾真志)

 

今回のリフォームは、以前より「水周りリフォーム館」サイトからお問合せいただきトイレ等の改修の工事を施工させていただいていましたが、長年にわたり不満のあったキッチン改修にあわせてLDKの全面改修と一部増築のご相談を受けました。

K様の要望に沿って具体化していき、構造的に無理にならないよう工夫して提案を重ね着手を迎えました。

住みながらのリフォームでしたので、なるべくK様ご家族のご負担を少なく配慮しての進捗を心掛けました。

想像以上の出来栄えにK様ご夫妻が大変喜んでいただきました事に感謝いたします。

ご主人、たっての希望の「薪ストーブ」もうまく納まり、良かったと思います。

今後共、末永いお付合いを宜しくお願いいたします。

 

K様には大変ご満足をいただきました。ありがとうございました。

静岡県の他のリフォーム事例を見る

○静岡県

掛川市・袋井市・菊川市・磐田市・浜松市・森町・御前崎市・牧之原市・島田市・藤枝市

この事例と似たテーマカテゴリーを見る

全国のフルリフォーム・リノベーション『ピックアップ事例』※プロの詳細解説付きレポート

HEAT20-G2/耐震等級3
新耐震基準の性能向上リノベーション
築30年ハウスメーカー軽量鉄骨
断熱改修&リノベーション
 
中古住宅を新築以上の耐震性能と断熱性能へ!
耐震等級3フルリフォーム
地下付き木造2階建て
自然素材をつかった性能向上リノベーション&フルリフォーム

東京都文京区 K様邸

長屋を切り離して1つの構造体へフルリフォーム&リノベーション
隣家との距離がない!
部屋から外壁を張り替えるフルリノベーション
中古住宅を耐震等級3へ!
中古住宅リノベーション
 
基礎がない??
築60年の古屋をジャッキアップで基礎新設フルリノベーション

東京都渋谷区 O様邸

戸建てリノベーション・リフォームに関するお問合せはこちら

増改築.comの一戸建てリフォーム専用ホームページに
お越しいただき、誠に有難うございます。
 
増改築.comメンバーは技術集団となり、
他社のような営業マンがおりません。
技術者が直接ご相談にのり問題解決を行います。
 
従いまして、
お客様の方である程度のご要望が整理されました段階、
お悩みが工事内容のどのようなところにあるのか?
ご予算がどの程度絞る必要があるのか?
など明確になった段階でのご相談をお願いしております。
お問合せ・ご相談はお電話・メールにて受け付けております。
メールの場合は以下のフォームに必要事項をご記入の上、
「送信する」ボタンをクリックをお願いします。

代表稲葉高志

戸建てリノベーションの専属スタッフが担当致します。
一戸建て家のリフォームに関することを
お気軽にお問合せください

よくあるご質問
  • 他社に要望を伝えたところできないといわれたのですが・・・
  • 他社で予算オーバーとなってしまい要望が叶わないのですが・・・
  • サービスについて詳しく聞きたいのですが・・・

どのようなお悩みのご相談でも結構です。

あなたの大切なお住まいに関するご相談をお待ちしております。

営業マンはおりませんので、しつこい営業等も一切ございません。

設計会社(建築家様)・同業の建築会社様のご相談につきましては、プランと共にご指定のIw値及びUa値等の性能値の目安もお願い申し上げます。

2026年の大型補助金が確定したことで現在大変込み合っております。

耐震性能と断熱性能を向上させるフルリフォームには6か月~7か月の工期がかかります。

補助金獲得には年内に報告を挙げる必要があることから、お早目にご相談をお願いいたします。(6月着工までが目安

ご提案までに大変お時間がかかっております。ご了承のほどお願い申し上げます。

(5月までの着工枠が埋まりました)・・・2026/03/01更新

※すでにプランをお持ちのお施主様・設計資料をお持ちのお施主様は内容をフォームで送信後、フォーム下のメールアドレスに資料をお送りください。対応がスムーズです。

必須

(例:増改築太郎)

必須

(例:contact@high-will.co.jp)

(例:03-5615-2826)

必須

(例:東京都荒川区西日暮里2-35-1)

(例:築40年)

(例:25坪・100㎡など)

(例:2000万程度など)

  • ※再建築不可のリフォームでは金融機関が限られます。事前審査をお勧めいたします。

    (例:2024年3月くらいに完成希望など)

    必須

    できるだけ具体的にお知らせくださいませ。既存設計資料、リフォーム後のイメージ図等をお持ちであれば下記のメールアドレスより添付をお願いします。

    ※次の画面がでるまで、4~5秒かかりますので、
    続けて2回押さないようにお願いいたします。

    ※次の画面が出るまで、4〜5秒かかりますので、
    続けて2回押さないようにお願いいたします。

    図面や写真等を送信いただく場合、また入力がうまくいかない場合は、上記内容をご確認のうえ、下記メールアドレスまでご連絡ください。

    お電話でのお問合せはこちら

    0120-246-991

    営業時間:10:00~17:00(土日祝日を除く)

    ★YouTube「増改築.comチャンネル」チャンネル登録して新動画解説をいち早くGET!!★
    「増改築.comリノベ診断」であなたに一番ふさわしいフルリフォームを診断!!(動画解説付き)
    ★Facebookページにいいね!を押して最新コンテンツ情報をいち早くGET!!★
    パソコン|モバイル
    ページトップに戻る