このエントリーをはてなブックマークに追加

戸建フルリフォームなら「増改築.com®」TOP施工事例東京都文京区>S様 賃貸用木造戸建てリノベーション

築40年木造中古アパート購入+リフォーム&リノベーション

アパートリフォーム&リノベーション 施工事例(実例)

賃貸用木造戸建てリノベーション 文京区S様 施工事例

文京区S様邸_TOP
文京区S様邸_竣工
文京区S様邸_竣工
文京区S様邸_竣工
建物概要
名前 S様
場所 東京都文京区
築年数 築40年
構造種別 木造戸建
家族構成 賃貸用戸建
対象面積 20.9坪
リフォーム部位 間取変更/断熱サッシ取替/外壁塗装/断熱/外構
工期 3ヶ月
価格 1450万※洗面器・アクセサリー・建具はお客様支給品

お客様のご要望

・中古戸建を購入して賃貸用にリフォームしたい。

・日当たりの良い2階をワンルームのLDKにしたい。

・2階には床暖房(電気)を入れたい。

・収納は多めに取りたい。

・窓は通りに面している所は変えたい。

・外壁は既存を残して塗装仕上げ

プランニングのポイント

S様のお隣の家が売りに出てご購入された築40年木造中古アパートのリフォーム&リノベーション

賃貸用のリフォームだが、借りて頂く方が使いやすく快適に過ごせる空間にしたい。

建具や細かいアクセサリーはS様に準備をして頂いて設置させて頂きました。

 

文京区S様邸 戸建てリノベーション施工事例テーマカテゴリー

 

  • 中古住宅購入+リフォーム
  • アパートリフォーム
  • 内部スケルトンリフォーム+サッシ交換

打合せから完成まで

1 着工前

1-1 打合せ

築40年位の木造戸建て。

もともと賃貸用に建っていた物件だが、1階と2階と2世帯に貸せる造りになっていた。

 

文京区S様邸_施工前

文京区S様邸_施工前

リーフォーム後は1世帯の方に貸す予定なので、外階段や2階玄関は必要無くなるので撤去します。

文京区S様邸_施工前
文京区S様邸_施工前

水周りは昔ながらの、ブロックキッチンとハーフユニットです。

文京区S様邸_施工前
文京区S様邸_施工前

既存のお部屋は和室になっています。

文京区S様邸_施工前
文京区S様邸_施工前
文京区S様邸_施工前
文京区S様邸_施工前

窓は通りに面している個所は交換、既存窓を活かす所はインナーサッシを入れさせて頂きます。

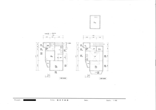
1-2 提案
文京区S様邸_既存平面図

■ 既存図面 ■

文京区S様邸_新規平面図

■ 新規 図面 ■

 

 

 

2 着工

2-1 解体

今回は外壁は既存を活かして塗り替えなので

内側を手壊しで解体をしていきます。

文京区S様邸_解体
文京区S様邸_解体

まずは内部(室内)天井、壁、床を剥がしていきます。

文京区S様邸_解体
文京区S様邸_解体
文京区S様邸_解体
文京区S様邸_解体

2階の天井、壁を解体し、2階部の床は最後に行います。階段は最後に解体します。

文京区S様邸_解体
文京区S様邸_解体

 

2-2 大工工事
文京区S様邸_大工工事
文京区S様邸_大工工事

新しい間取りに構造を造っていきます。

文京区S様邸_大工工事

文京区S様邸_大工工事

構造躯体の補強が終わるまでは、仮の筋交いを入れ万が一に備えます。

文京区S様邸_大工工事

1階から見た2階の床です。青く見えているのは、2階の床断熱です。

文京区S様邸_大工工事

文京区S様邸_大工工事

天井にも新たに断熱材を入れていきます。

文京区S様邸_大工工事

 

2-3 仕上げ工事

ボードを貼って仕上げ工事です。

 

床は傷が付かない様、養生を貼っていきます。

青いシートは電気の床暖です。

玄関手摺を設置する為に下地を入れてあります。

2-4 外構工事

外壁は既存を活かして塗装仕上げになります。

文京区S様邸_外構工事
文京区S様邸_外構工事

新しくサッシが入る所はカッターで切らないといけません。

文京区S様邸_外構工事

新しいサッシを設置していきます。

文京区S様邸_外構工事

。​

文京区S様邸_外構工事

文京区S様邸_外構工事

既存外階段があった場所にサイクルポートを設置です。お隣様がお施主様なのでサイクルポート少しフェンスから出てます。

文京区S様邸_外構工事
エントランスは既存の塀を壊してオープンにスッキリした仕上がりです。

3 竣工

 

文京区S様邸_竣工
文京区S様邸_竣工

▲ 玄関入って正面に埋め込みの飾り棚です。

文京区S様邸_竣工
文京区S様邸_竣工

▲ 1階洋室は1面壁のクロスの色を変えてご選定を頂きました。変形している個所を収納とし利用しています。

文京区S様邸_竣工
文京区S様邸_竣工

▲階段ホールの天井を柄を入れた鮮やかなクロスをご選定頂きました。洗面化粧台はお客様支給の商品です。

文京区S様邸_竣工
文京区S様邸_竣工

▲2階をワンフロアのLDKにしました。こちらも1階同様変形箇所は収納スペースにさせて頂いております。

文京区S様邸_竣工
文京区S様邸_竣工

▲キッチンはLIXILシエラのⅡ型式です。開放感のあるLDKになりました。

 LDKの余ったスペースには可動棚を設置させて頂きました。

文京区S様邸_竣工

▲ 1階のご両親様の寝室は畳で納めさせて頂きました。少しでも収納力をとご要望を頂きましたので畳の床下収納を入れさせて頂いております。

 

3-1 外壁 Before → After
文京区S様邸_施工前

リフォーム前

既存建物も2世帯用の賃貸物件をお施主様が購入され、1世帯向けの賃貸へリフォームを致しました。

文京区S様邸_竣工

道路に面したサッシは取り替えをさせて頂いてます。外壁は既存を利用し、外壁塗装仕上げです。

3-2 キッチン Before → After
文京区S様邸_施工前

リフォーム前

既存間取りでのキッチン。リフォーム後は玄関となっていますが、リフォーム前は旧型の流し台が設置しておりました。

文京区S様邸_竣工

リフォーム後のキッチンは2階にレイアウトしました。LIXILシエラのⅡ型キッチンです。

3-3 バス Before → After
文京区S様邸_施工前

リフォーム前

既存浴室も古いユニットバスです。

文京区S様邸_竣工

LIXILのアライズ1216サイズです。シンプルな標準セットです。

3-4 洗面 Before → After
文京区S様邸_施工前

リフォーム前

2階の既存ユニットバスはトイレ・洗面が付いた3点式ユニットバスでした。

文京区S様邸_竣工

洗面化粧台はPanasonicシーラインです。洗面化粧台は2階脱衣室に設置しました。

3-5 トイレ Before → After
文京区S様邸_施工前

リフォーム前

既存トイレ。tく40年を超える建物のため、和式のトイレでした。

文京区S様邸_竣工

トイレはハイウィルオリジナルトイレです。壁紙は1面S様がご選定されたかわいらしいふくろうのクロスです。

3-6 リビング Before → After
文京区S様邸_施工前

リフォーム前

既存各居室和室でした。

文京区S様邸_竣工

リフォーム後は2階に大きくワンフロア取りLDKへ、キッチンはⅡ型式のLIXIL シエラです。窓も真ん中がFIXになっている腰窓を使用しております。

全国のフルリフォーム・リノベーション『ピックアップ事例』※プロの詳細解説付きレポート

HEAT20-G2/耐震等級3
新耐震基準の性能向上リノベーション
築30年ハウスメーカー軽量鉄骨
断熱改修&リノベーション
 
中古住宅を新築以上の耐震性能と断熱性能へ!
耐震等級3フルリフォーム
地下付き木造2階建て
自然素材をつかった性能向上リノベーション&フルリフォーム

東京都文京区 K様邸

長屋を切り離して1つの構造体へフルリフォーム&リノベーション
隣家との距離がない!
部屋から外壁を張り替えるフルリノベーション
中古住宅を耐震等級3へ!
中古住宅リノベーション
 
基礎がない??
築60年の古屋をジャッキアップで基礎新設フルリノベーション

東京都渋谷区 O様邸

戸建てリノベーション・リフォームに関するお問合せはこちら

増改築.comの一戸建てリフォーム専用ホームページに
お越しいただき、誠に有難うございます。
 
増改築.comメンバーは技術集団となり、
他社のような営業マンがおりません。
技術者が直接ご相談にのり問題解決を行います。
 
従いまして、
お客様の方である程度のご要望が整理されました段階、
お悩みが工事内容のどのようなところにあるのか?
ご予算がどの程度絞る必要があるのか?
など明確になった段階でのご相談をお願いしております。
お問合せ・ご相談はお電話・メールにて受け付けております。
メールの場合は以下のフォームに必要事項をご記入の上、
「送信する」ボタンをクリックをお願いします。

代表稲葉高志

戸建てリノベーションの専属スタッフが担当致します。
一戸建て家のリフォームに関することを
お気軽にお問合せください

よくあるご質問
  • 他社に要望を伝えたところできないといわれたのですが・・・
  • 他社で予算オーバーとなってしまい要望が叶わないのですが・・・
  • サービスについて詳しく聞きたいのですが・・・

どのようなお悩みのご相談でも結構です。

あなたの大切なお住まいに関するご相談をお待ちしております。

営業マンはおりませんので、しつこい営業等も一切ございません。

設計会社(建築家様)・同業の建築会社様のご相談につきましては、プランと共にご指定のIw値及びUa値等の性能値の目安もお願い申し上げます。

2026年の大型補助金が確定したことで現在大変込み合っております。

耐震性能と断熱性能を向上させるフルリフォームには6か月~7か月の工期がかかります。

補助金獲得には年内に報告を挙げる必要があることから、お早目にご相談をお願いいたします。(6月着工までが目安

ご提案までに大変お時間がかかっております。ご了承のほどお願い申し上げます。

(5月までの着工枠が埋まりました)・・・2026/03/01更新

※すでにプランをお持ちのお施主様・設計資料をお持ちのお施主様は内容をフォームで送信後、フォーム下のメールアドレスに資料をお送りください。対応がスムーズです。

必須

(例:増改築太郎)

必須

(例:contact@high-will.co.jp)

(例:03-5615-2826)

必須

(例:東京都荒川区西日暮里2-35-1)

(例:築40年)

(例:25坪・100㎡など)

(例:2000万程度など)

  • ※再建築不可のリフォームでは金融機関が限られます。事前審査をお勧めいたします。

    (例:2024年3月くらいに完成希望など)

    必須

    できるだけ具体的にお知らせくださいませ。既存設計資料、リフォーム後のイメージ図等をお持ちであれば下記のメールアドレスより添付をお願いします。

    ※次の画面がでるまで、4~5秒かかりますので、
    続けて2回押さないようにお願いいたします。

    ※次の画面が出るまで、4〜5秒かかりますので、
    続けて2回押さないようにお願いいたします。

    図面や写真等を送信いただく場合、また入力がうまくいかない場合は、上記内容をご確認のうえ、下記メールアドレスまでご連絡ください。

    お電話でのお問合せはこちら

    0120-246-991

    営業時間:10:00~17:00(土日祝日を除く)

    ★YouTube「増改築.comチャンネル」チャンネル登録して新動画解説をいち早くGET!!★
    「増改築.comリノベ診断」であなたに一番ふさわしいフルリフォームを診断!!(動画解説付き)
    ★Facebookページにいいね!を押して最新コンテンツ情報をいち早くGET!!★
    パソコン|モバイル
    ページトップに戻る