戸建フルリフォームなら「増改築.com®」TOP施工事例東京都板橋区>O様 地盤沈下(家の傾き)補正の戸建リノベーション

板橋区O様 地盤沈下(家の傾き)補正の戸建てリノベーション

20cm近い家の傾きは直りませんか??

リフォーム会社では提案できないといわれ・・・・

 

地盤沈下が原因で、家がかなり傾き、現場調査の段階でも24センチ程度、なんとか直してほしいというご要望がありましたO様。布基礎を固める工法で他社が提案されていましたが、杭工事までしてしまうと費用信じられないほど高額となるため、杭を打たない方法で傾きを補正できないか弊社へ相談がございました。弊社では、外壁まで解体後、躯体の状態(スケルトン状態)にし、荷重を軽くしてから土台からのジャッキアップで躯体のレベルを合わせなおかつ布基礎からベタ基礎への緊結する方法でののアプローチを提案させていただきました。

板橋区O様邸 戸建てリノベーション施工事例テーマカテゴリー

  • 再建築不可リフォーム
  • 内外部スケルトンリフォーム

家の傾き補正(フルスケルトンリフォーム) 既存

外壁塗装をしてまだ1年程度と大変キレイいな状態となっておりました。

玄関の裏は擁壁にかこまれており、玄関から奥に向かって家が沈んている状態です。

既存玄関部
そこまで老朽化している状態ではないですが、玄関から奥に向かって歩くとめまいがするほどの傾きが体感できるほどです。

2階部へ上がる階段も違和感を感じる状態でした

写真でみると建物は右に倒れているイメージ、こちらは台所になります。

壁、床のタイルにヒビが入っている箇所が多数見受けられた浴室。ここの土台・柱の腐食を疑いました。

一階台所奥にある和室。
スケルトンリフォーム後は洋間へ。

微妙に右に傾いています。中の工事が悪いというわけではなく傾きが原因でところどころに支障をきたしているのがわかりました。

既存2階のベランダにつながる洋間。このお部屋が一番傾きを感じることができるお部屋でした。写真上で左に傾いています。

2階の洋間から玄関側の既存和室、こちらもスケルトンリフォーム後は洋間になります。

既存2階和室

既存2階洋室

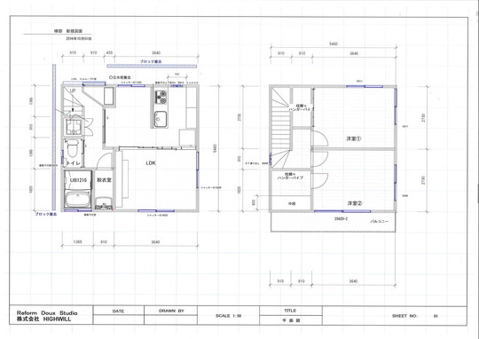
ご提案プラン(リフォーム後の間取り)

■ 新規図面 ■
 

補強計画

■ 補強計画 ■
 

 地盤沈下(家の傾き)補正の戸建リノベーション 〜 解体 〜

解体撤去が始まります。今回のO様邸、地盤沈下(家の傾き)補正の戸建リノベーションでは、建物自体をジャッキアップにより持ち上げて補正を行うため、外壁まで解体をするスケルトンリフォームとなります。 写真上の階段上が公道となっており、解体時の廃棄物搬出にはかなりの手間がかかります。

公道から階段を降り奥にO様邸はあります。
施工業者としては最悪のロケーションにはなります。(資材の搬入、搬出に通常の倍以上の手間がかかるからです。)

内部から解体を始めていきます。解体の廃棄物をストックしておくスペースがないため、少しずつ解体をしては搬出をするため、通常の手壊し解体の倍の労力がかかります。

最初に内部の解体を勧め、すべての廃棄物を搬出後に外壁モルタルを剥がしていきます。

内部スケルトン解体では内部の天井壁床を剥がしたのち、サッシを取り外していきます。
 

サッシは、モルタルにカッターを入れ、外壁を剥がす前に外しておきます。

O様邸は階段上の公道が4トン車がはいらないロケーションとなっておりましたので、2トン車を何回にもわけ、少しゴミがまとまると搬出といった具合に、何度も分けてやりました。解体した廃棄物は解体工事のやりやすいように一箇所にまとめておきます。

外壁の解体が終わり骨の残し(スケルトン)となりました。

屋根下地は上部であれば利用するケースもありますがO様邸ではすべて外しました。

リフォームに構造上重要になる柱は新設します

O様邸の構造では2階部に問題はまったくなく、むしろ問題なのは1階部の構造部になっていました。

O様がスケルトンリフォームに踏み切った経緯は家の傾きにありました。解体で明らかになる一階部の構造をチェックしていきます。

傾きを確認後各構造体をチェックしていきます。

地盤沈下(写真右側へ倒れている)により布基礎が引っ張られせん断されてしまっているのがわかります。

こちらも同様、土台の継手部分下の布が地盤沈下によりせん断されてしまっているのがわかります。

こちらも基礎が裂けてしまっています。かなりの地盤沈下がしていることがわかります。

土台も一部腐食がありました。こちらも差し替えになります。

こちらも腐食しており、指を入れるとズブッと入ってしまうほど腐食していました。

想定していた浴室部は通し柱が腐食しております。
ここは差し替え後の補強が必須になります。

浴室と脱衣所間の管柱も腐食しております。
こちらも腐食しておりました。

ベタ基礎工事まえに先行配管をしていきます。

右に向かって地盤が沈下しているのが、中央部の亀裂をみてもわかります。

写真右の布基礎にも亀裂が入ってることがわかります。

 地盤沈下(家の傾き)補正の戸建リノベーション       〜 ジャッキアップ 〜

耐圧盤工事完了後、いよいよジャッキアップに備え、レーザーにてすべての基礎、土台の水平を取ります。

水平レベルにあわせ、すべての土台の高さを統一調整をジャッキアップにて施工していきます。

土台の位置によって隙間の大きさ(沈下のレベル)の違いがお分かりいただけるかと思います。写真上手前に行くに従いより沈下していることがわかり、写真上右にいくに従い沈下がなだらかなものになっていることがみてとれます。

水平レベルまでジャッキアップを終えると、一旦金物で固定していきます。

レーザーで水平をとりジャッキアップ後、本来の水平位置へと土台の高さを合わせたわけですが、写真奥へ行くほど傾いているのがわかります。写真右奥で14㎝、手前の土台が7㎝、そのまた手前が5㎝と奥に行くほど傾いていたことがわかります。写真に納まらなかった左奥の通し柱部分は実に17cmの隙間がありました。

せん断部位の既存にも補強が必要となります。

ジャッキで持ち上げた土台のこの隙間を見てください。基礎パッキンがこれだけ入るほど建物が沈下していたということです。この隙間にあらたにコンクリートを打設するのですが、打設までパッキンで仮押さえをしておきます。

すべての土台がジャッキで調整されましたので、すべての土台を固定していきます。

これだけ建物の傾きがあれば、生活をしていても大変なストレスであったことが理解できます。

最も傾きがひどかった箇所のレベル調整が完了しました。

基礎のせん断部に鉄板を加工しあと施工アンカーでの固定補強を行います。

 地盤沈下(家の傾き)補正の戸建リノベーション       〜 木部補強 〜

玄関からの搬入が困難を極めたため、裏の擁壁より足場を架けて搬出を行いました。近隣にお住まいの方にもご挨拶に回り説明をさせて頂きました。

スケルトン時の写真を見ていただければおわかりかりのとおり大半の構造材は再利用に耐えられる状態ではないことから、柱、梁、土台等の構造材の多くを新規で設置しました。

屋根下地となる野地板も構造用合板で張り替えをしています。

新たな柱、梁などで補強を入れ、あらゆる仕口を金物で補強していきます。

既存で使用できる構造体と新たに新設された構造体をうまく木組みしていかなければなりません。このあたりの木工事が新築のようにいかないのが、改築の難しさではあります。図面通りにプレカットで刻まれた木材をはめ込むだけの工事にはならないため、既存の仕口や継手に合わせ手刻みで加工するケースが大半となってきます。

既存のモルタル壁を手壊しで解体後、外周部の構造体の補強をすませたら、外壁面には構造用合板を全面に張って壁倍率を上げていきます。

構造計算の上で急所となりうる壁には、制震仕口ダンパーを設置しています。

制震仕口ダンパーの設置

既存の状態を見てお分かりの通り、筋交いが全く入っていない状態であったため筋交いを入れ、そのすべての筋交いに、筋交いプレートを設置します。こちらは既存の土台と新たに設置した柱間に筋交いをいれています。

既存柱に筋交いを入れ筋交いプレートで固定、外部は構造用合板で補強。建物の剛性を高めていきます。

こちらも既存柱への筋交い補強に筋交いプレートによる固定。外周面の構造用合板補強。

柱、筋交いには筋交いプレート、柱と梁にも仕口制震ダンパーを設置します

通し柱への筋交い入れプレート補強

主要構造部の補強が終わると、工程は床下地組、壁下地組、造作工事へと移行していきます。ここまでの構造補強の出来で8割は決まってしまうと言っても過言ではありません。ハイウィルでは、ここまでの構造補強に最も時間をかけます。

 地盤沈下(家の傾き)補正の戸建リノベーション       〜 外部工事・造作工事 〜

下屋部分へのルーフィング工事。木造で一番気を付けなくてはいけないのが雨仕舞となりますので、屋根の下地の雨仕舞、窓周りの雨仕舞へは最も注意を払っていきます。

外周面はすべて壁倍率2倍を取れる構造用合板を既存躯体へ固定張りして壁剛性を高めます

構造用合板を外周部に張り終えたら、すぐに防水シートを張っていきます。

サイディングを張る前に外周部の壁には防水シートを張ります。

住宅設備機器が設置される位置へ承認図をもとに排水管の立ち上げと給水給湯管の立ち上げをします。床にはスタイロにて断熱対策をします。

根太間にスタイロを敷き込み、敷き込み後構造用合板で捨て貼りを行います。

床下地の捨て貼りが終わりました。

床下地が完了しましたので、壁断熱、壁下地、天井断熱、天井下地の工程へ入っていきます。

階段の設置にあたり墨付けをおこなっていきます。

天井壁はグラスウールによる断熱になりますので隙間なく敷き詰めていきます。

グラウウール施工の注意点は隙間なく敷きこむことにありますので、隙間がないかをボードを張る前にチェックしていきます。

階段の設置が終わり、ボードも張り終わりました。

室内木製建具(ドア)の枠設置が完了し、扉のつり込みを待つのみとなりました。

 地盤沈下(家の傾き)補正の戸建リノベーション       〜 完成 〜

密集地で材料の搬入に大変苦労しましたが、外壁のサイディングも張り終わり大変きれいな仕上がりとなっています。

基礎が断裂していた補強部

土台を最大20cm近くジャッキアップした布基礎部はコンクリートを打設し基礎高を調整しました。

一階LDKもかなり開放的になりました。お施主様も大変喜んでいただきました。

システムキッチンはトクラスでカップボードも同色で揃えました。商品はショールームで選定されました。

システムバスルームはTOTOのサザナを採用。こちらもお施主様がショールームで選定された仕様で納めさせていただきました。

階段下スペースを有効活用したトイレはパナソニックのアラウーノVを採用

一番現場で苦労したのがこちらの洗濯機置き場の確保。階段との取り合いもあありギリギリで納めさせていただきました。

住宅建材はパナソニックに統一しました。暗かった階段も明るくなりました。

既存和室であった玄関上の居室。洋室となっています。

収納スペースは奥様のご要望でしたので、ウォークインクローゼットも大変喜んでいただけました。

ベランダも新規で設置をしました。奥行がとれない分、幅を広げたいとのご要望でしたので、幅を最大限にとり設置しております。

 

 

ハイウィルスタッフ

担当者より ハイウィル株式会社四代目代表 稲葉高志

今回のO様は20cm近くの傾きがある建物で、普段の生活にも大変なストレスを抱えておられました。地盤工事が難しい立地条件であったことから、布基礎からベタ基礎への耐圧盤工事を勧めさせていただき今以上に建物が傾かないよう補強させていただきました。

日々さまざまな案件相談を受けて傾いている建物の調査を数多く行っておりますが、工事ができない密集地であったりすることが多く、施工することが難しいロケーションもございます。傾きの理由もさまざまで、地震による傾き、地盤沈下による建物の傾き、地盤沈下でも隣のマンションを建てたら傾いてしまったなど、理由はさまざまです。

その建物のおかれている状況と状態によって工事の方針も変わって参ります。

O様においては、当初はリフォーム会社が提案しており、建物は傾いたまま、室内で水平にするという提案をされておりました。室内でレベルを合わせてリフォームをしてしまいますと外部が傾いている状態のため窓が傾いていることになり不自然な印象になってしまいます。工事的には難易度は下がりますが、お施主様にとっては満足いく提案ではなかったのだと思います。傾きも全体が傾いている場合、ある部屋だけが傾いている構造上の問題の場合などさまざまであります。 このような難易度の高い工事を相談する際は、木造を熟知している施工会社に相談することを強くお勧め致します。

パターン別『再建築不可リフォーム施工事例6選』これさえ読めば再建築不可のポイントがわかる!

この事例と似たテーマカテゴリーを見る

全国のフルリフォーム・リノベーション『ピックアップ事例』※プロの詳細解説付きレポート

HEAT20-G2/耐震等級3
新耐震基準の性能向上リノベーション
築30年ハウスメーカー軽量鉄骨
断熱改修&リノベーション
 
中古住宅を新築以上の耐震性能と断熱性能へ!
耐震等級3フルリフォーム
地下付き木造2階建て
自然素材をつかった性能向上リノベーション&フルリフォーム

東京都文京区 K様邸

長屋を切り離して1つの構造体へフルリフォーム&リノベーション
隣家との距離がない!
部屋から外壁を張り替えるフルリノベーション
中古住宅を耐震等級3へ!
中古住宅リノベーション
 
基礎がない??
築60年の古屋をジャッキアップで基礎新設フルリノベーション

東京都渋谷区 O様邸

 

戸建てリノベーション・リフォームに関するお問合せはこちら

増改築.comの一戸建てリフォーム専用ホームページに
お越しいただき、誠に有難うございます。
 
増改築.comメンバーは技術集団となり、
他社のような営業マンがおりません。
技術者が直接ご相談にのり問題解決を行います。
 
従いまして、
お客様の方である程度のご要望が整理されました段階、
お悩みが工事内容のどのようなところにあるのか?
ご予算がどの程度絞る必要があるのか?
など明確になった段階でのご相談をお願いしております。
お問合せ・ご相談はお電話・メールにて受け付けております。
メールの場合は以下のフォームに必要事項をご記入の上、
「送信する」ボタンをクリックをお願いします。

代表稲葉高志

戸建てリノベーションの専属スタッフが担当致します。
一戸建て家のリフォームに関することを
お気軽にお問合せください

よくあるご質問
  • 他社に要望を伝えたところできないといわれたのですが・・・
  • 他社で予算オーバーとなってしまい要望が叶わないのですが・・・
  • サービスについて詳しく聞きたいのですが・・・

どのようなお悩みのご相談でも結構です。

あなたの大切なお住まいに関するご相談をお待ちしております。

営業マンはおりませんので、しつこい営業等も一切ございません。

設計会社(建築家様)・同業の建築会社様のご相談につきましては、プランと共にご指定のIw値及びUa値等の性能値の目安もお願い申し上げます。

2026年の大型補助金が確定したことで現在大変込み合っております。

耐震性能と断熱性能を向上させるフルリフォームには6か月~7か月の工期がかかります。

補助金獲得には年内に報告を挙げる必要があることから、お早目にご相談をお願いいたします。(6月着工までが目安

ご提案までに大変お時間がかかっております。ご了承のほどお願い申し上げます。

(5月までの着工枠が埋まりました)・・・2026/03/01更新

※すでにプランをお持ちのお施主様・設計資料をお持ちのお施主様は内容をフォームで送信後、フォーム下のメールアドレスに資料をお送りください。対応がスムーズです。

必須

(例:増改築太郎)

必須

(例:contact@high-will.co.jp)

(例:03-5615-2826)

必須

(例:東京都荒川区西日暮里2-35-1)

(例:築40年)

(例:25坪・100㎡など)

(例:2000万程度など)

  • ※再建築不可のリフォームでは金融機関が限られます。事前審査をお勧めいたします。

    (例:2024年3月くらいに完成希望など)

    必須

    できるだけ具体的にお知らせくださいませ。既存設計資料、リフォーム後のイメージ図等をお持ちであれば下記のメールアドレスより添付をお願いします。

    ※次の画面がでるまで、4~5秒かかりますので、
    続けて2回押さないようにお願いいたします。

    ※次の画面が出るまで、4〜5秒かかりますので、
    続けて2回押さないようにお願いいたします。

    図面や写真等を送信いただく場合、また入力がうまくいかない場合は、上記内容をご確認のうえ、下記メールアドレスまでご連絡ください。

    お電話でのお問合せはこちら

    0120-246-991

    営業時間:10:00~17:00(土日祝日を除く)

    ★YouTube「増改築.comチャンネル」チャンネル登録して新動画解説をいち早くGET!!★
    「増改築.comリノベ診断」であなたに一番ふさわしいフルリフォームを診断!!(動画解説付き)
    ★Facebookページにいいね!を押して最新コンテンツ情報をいち早くGET!!★
    パソコン|モバイル
    ページトップに戻る