このエントリーをはてなブックマークに追加

中野区M様 狭小中古住宅フルリフォーム

中野区M様邸_TOP
中野区M様邸_竣工
中野区M様邸_竣工
中野区M様邸_竣工
建物概要
名前 M様
場所 東京都中野区
築年数 築50年
構造種別 木造戸建
家族構成 大人2人 子供1人
対象面積 16.85坪
リフォーム部位 ベタ基礎/間取変更/断熱サッシ取替/外壁サイディング/屋上庭園
工期 4.5ヶ月
価格 1700万

お客様のご要望

・空家になっている戸建をフルスケルトンにして住みたい。

・屋上に小さくても良いので庭園が欲しい。

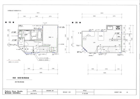
・2階の日当たりの良いスペースにLDKをワンフロアで持ってきたい。

・手造りのステンド硝子を玄関スペースへ設置したい。

・床下はべた基礎へ

・外壁は全て剥がしてサイディングへ

 

プランニングのポイント

M様の祖父様所有の築古賃貸アパートをお孫様夫婦で改築し住みたいとお話がありました。狭小住宅となる建物のため、間取りの工夫が必要で、屋上を設置すること、2FにLDKを配置することが最優先のご要望でしたので、この点を検討しプランニングをさせていただきました。M様は新築されるか改築されるかで悩んでおられましたが、ご予算的に改築を選択されました。

中野区M様邸 戸建てリノベーション施工事例テーマカテゴリー

 

  • 狭小住宅リフォーム
  • 屋根を屋上へリフォーム
  • 内外部スケルトンリフォーム

打合せから完成まで

1 着工前

1-1 打合せ

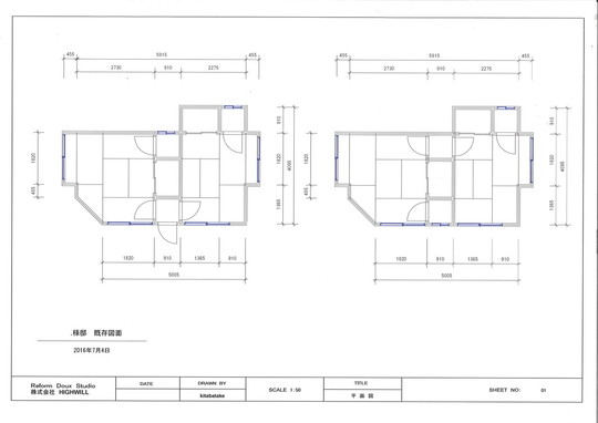
昭和40年代築の築50年を超える建物になります。

空き家である期間が長く、建物は蔦に覆われている状態でしたので解体後の傷みも気になるところです。M様の今回の狭小住宅へのスケルトンリフォームですが、外壁まで解体する躯体残しの内外部スケルトンリフォームでの施工をさせていただきました。

中野区M様邸_施工前

中野区M様邸_施工前

屋内まで蔦が入り込んでいる状態でした。

中野区M様邸_施工前
中野区M様邸_施工前

 

中野区M様邸_施工前
中野区M様邸_施工前

 

1-2 提案

一階にバストイレ洗面等の水周りと寝室を配置し、2階はLDKを配置しました。通り沿いの角地の立地であったため、道路側へ階段を配置し高窓としてプライバシーにも配慮致しました。

2 着工

2-1 解体

内部の解体を先に行い、外周部の蔦を剥がしの段階で足場を架けました。

中野区M様邸_解体
中野区M様邸_解体

道路沿い、角地ということで工事ロケーションとしては大変有難い現場です。

中野区M様邸_解体
中野区M様邸_解体
中野区M様邸_解体
中野区M様邸_解体

外壁解体前にシートを張っておきます。

外部のモルタル解体は、騒音も出ますし、解体する外壁のモルタルの破片が隣家に飛んでしまう事のないようにしっかりと養生をしてから行っていきます。

中野区M様邸_解体
中野区M様邸_解体

内部及び外部の解体が終わり、基礎工事の準備に入っていきます。台風の予報があったため、シートを一度外しています。

中野区M様邸_解体
中野区M様邸_解体

スケルトンにするメリットとして最も大きいのが、既存の構造体の状態をすべてチェックできるという点になります。手壊しによる外壁解体は大変費用がかかる工事となりますが、建物をスケルトンにした際に、痛んでいる構造体は手直しをしていくことになります。

中野区M様邸_解体
中野区M様邸_解体

多くの建物をスケルトンにする改築をしている中で、築40年を超える建物になりますと、メンテナンスをお施主様がどこまで行っていたかが大変重要になりますが、多くの建物で躯体の損傷を見受けることになります。M様邸においても例外ではありませんでした。賃貸としてお貸ししていたMさまの祖父様が長年空き家となっていたとのことでしたので痛みを多く発見しました。

通し柱と通し柱を支える土台がまるごと腐食していました。

中野区M様邸_解体
中野区M様邸_解体

建物がスケルトンになった状態で、現況の構造体の状態をM様を現場にお呼びして確認していただきました。補修が必要なところ、補強が必要なところなどです。今回は通し柱を入れ直す工事が必要となりました。

2-2 基礎

新たに間仕切り壁が出来るところに、布基礎を新設していきます。

M様邸も布基礎からベタ基礎への変更、基礎補強工事をいたしました。鋤取りをした後、砕石・鉄筋を差筋してからコンクリートを打設しています。

中野区M様邸_基礎工事
中野区M様邸_基礎工事

 

ところどころに構造腐食部があったため、解体時に棟梁が取り除いているため、木工事に入る前に一部サポートをかけているのがお分かりいただけると思います。宅内の排水は新しく配管工事をするため、基礎工事が入る前に先行配管をしておきます。

中野区M様邸_基礎工事
中野区M様邸_基礎工事

この段階で、明らかに腐食していて差し替えが必要な土台などは外し、木工事に備えます。

 

2-3 大工工事
中野区M様邸_大工工事
中野区M様邸_大工工事

基礎を補強後はいよいよ大工工事となります。間取りが大幅に変更されるため軸組を再構築する必要があります。抜いた柱にはサポートをかけつつ新たな構造材を木組みしていきます。スケルトン状態をみてわかりますが、柱の数が圧倒的に少ないのがわかります。使える構造材を補強しつつ使用しながら新たな構造補強を加えていきます。

 

中野区M様邸_大工工事

中野区M様邸_大工工事

外部は構造用合板を全面張りし壁倍率を上げ、既存の構造材に張りつけ、サイディングの下地とします。築年数が経過した建物にこのような補強法ができるのも外部を剥がしているからといえます。

中野区M様邸_大工工事

M様邸の狭小住宅リフォームにおいても二階の床組は剛床を採用しました。梁を縦横3尺の千鳥状に組んでいき、24ミリの構造用合板で固定することで風荷重・地震荷重といった水平荷重に対しての剛性と耐力を持たせ水平方向に変形することのない構造体とします。

中野区M様邸_大工工事

剛床は、既存の構造躯体を一部バラシ、新たな梁をキザミ千鳥状の下地を組まねばなりません。そのため、剛床はリフォームでは棟梁のみが出来る工法となります。新築の場合はプレカットされてくるため、刻みの出来ない大工であっても組み立てることが可能です。

中野区M様邸_大工工事

床下地、天井野縁を組んでいきます。

中野区M様邸_大工工事

2階リビングとなる空間の下地が組み上がってきました。

中野区M様邸_大工工事

3階部は屋上を設置するため、剛床工法で下地を組みつつも下地の構造用合板は2重に張っています。新旧の材木を比較すると一目瞭然ですが既存の構造材以上に新たな構造材で組まれているのがお分かりいただけると思います。新築とかわらない材木量になるのはこのような工事になるからになります。

中野区M様邸_大工工事

1階天井より2階の剛床の仕掛けがわかります。梁には金物補強を加えていきます。

2-4 断熱工事

M様邸狭小住宅スケルトンリフォームでの断熱材は外周面の壁、2階天井、1階天井をグラスウール、1階床をスタイロフォームにて断熱工事を施工しました。

中野区M様邸_断熱工事

1階床下と2階の床下に充填するスタイロフォーム

中野区M様邸_断熱工事

グラスウールを内壁に充填していきます。

中野区M様邸_断熱工事

グラスウール施工での注意点は、隙間なく充填することになります。
 

中野区M様邸_断熱工事

グラスウール充填時のポイントは、天井と壁、床と壁などの断熱の切れ目となる部分です。切れ目をつくらないよう充填することが大切です。

2-5 外壁工事

外壁までを解体する内外部のスケルトンリフォームだけの特権のような工事になりますが、M様邸狭小住宅リフォームは躯体残しのスケルトンリフォームとなったため、外部は構造用合板で全面を張っていきます。ここで壁倍率が倍に上がります。

 

中野区M様邸_外壁工事

構造用合板で既存躯体部との接合をします。全面張りです。

中野区M様邸_外壁工事

構造用合板全面張り後は、すぐさま防水透湿シートを全面に張り込んでいきます。

中野区M様邸_外壁工事

外壁の構造用合板張りが終わると、大工は造作工事に移行していきますので、造作部材が続々と搬入され、現場は佳境に入っていきます。

中野区M様邸_外壁工事

透湿防水シートを施工する際はかぶせが必須です。下から上へとかぶせをとりながら張り込んでいきます。これを逆に張り込んでしますと隙間から雨水が浸入してしまいますので防水は絵に描いた餅となりますので注意が必要です。。

中野区M様邸_外壁工事

防水透湿シートが下から張られていきます。

中野区M様邸_外壁工事

防水透湿シートを張り終え、サイディング張りへ移行します。

 

 

2-6 屋上庭園工事

中野区M様邸狭小住宅リフォームでは、奥様が小さくても良いから屋上で菜園がしたいとのご要望がお打ち合わせの初期の段階よりありました。その為、木造で屋上施工が可能な専門の防水工法にて、屋上工事をしております。

中野区M様邸_屋上庭園工事
中野区M様邸_屋上庭園工事

屋上への材料搬入はハシゴで行いました。 木造のために生まれた柔構造の金属防水です。

等間隔で水路を作り排水口へ流し込む設計となっております。防水層設置後、仕上げとなるデッキ材を設置していきます。↑の右の写真は家庭菜園をするスペースになります。

防水層の水路より流れた水がコーナーのドブに沿って排水溝より流れる設計となっています。

仕上材はデッキ材、タイル、芝生等選択が可能です。


家庭菜園スペースを設置しました。鉢ではなく土いじりが可能です。

コーナーの水路には和歌山産の白玉石を敷きました。

2-7 内装仕上げ
中野区M様邸_内装仕上げ

外部も仕上がり、現場は佳境に入っていきます。大工、内装職人、電気職人など詰め作業へと移行していきます。

中野区M様邸_内装仕上げ

ここから現場の景色は一気に変わっていきます。解体〜セルロースファイバー充填までに大半の時間を要するのが木造改築工事の特長でもあります。

中野区M様邸_内装仕上げ

システムキッチンの設置直後

中野区M様邸_内装仕上げ

養生を剥がしました、ここからクリーニングに入ります。

中野区M様邸_内装仕上げ

M様ご夫婦のお母様が手作りされたステンドグラスを玄関に設置しました。

中野区M様邸_内装仕上げ

狭小住宅であることとロケーションから居室部を最大化するプランニングをしているため、道路面に階段を配置しております。採光を居室側へ取り込むため壁を開口しています。

中野区M様邸_内装仕上げ
中野区M様邸_内装仕上げ

 

作業も大詰め、最終チェックを夜間に行いました。

3 竣工

 

 

既存は賃貸4世帯の木造で使用しておりましたので、今回のリフォームで1世帯用に全て変えさせて頂きました。

中野区M様邸_竣工
中野区M様邸_竣工

玄関は通りに面した場所に設置させて頂きました。1階にトイレ・ユニットバス・洗面所・洋室を持ってきております。

中野区M様邸_竣工
中野区M様邸_竣工

1階寝室・トイレ・洗面所には可動棚を設置させて頂きました。

中野区M様邸_竣工
中野区M様邸_竣工

洗面化粧台はクリナップファンシオ 間口600です。洗濯機の上に可動棚+洗面化粧台上に固定棚を設置させて

頂きました。

中野区M様邸_竣工
中野区M様邸_竣工

1階の玄関の脇には、お施主様のお母様の手作りのステンド硝子を壁面に埋め込みました。玄関からの光が入ってとても綺麗です。

中野区M様邸_竣工
中野区M様邸_竣工

2階にワンフロアにLDKを持ってきております。こちらにも可動棚を設置させて頂きました。

 

中野区M様邸_竣工
中野区M様邸_竣工

キッチンは2m10cmのサイズのクリナップクリンレディです。

3階の屋上庭園に上がる階段になります。

中野区M様邸_竣工
中野区M様邸_竣工

3階の屋上庭園になります。庭園の前に小さな洋室を作りました。1間のクローゼットも設置してあります。

中野区M様邸_竣工
中野区M様邸_竣工
3-1 外壁 Before → After
中野区M様邸_施工前

リフォーム前

既存建物は長い間空家になっていた4世帯賃貸物件です。

蔦がお部屋の中まで入ってしまっていました。

中野区M様邸_竣工

新規外壁はサイディングです。エクセレージ・親水14「スレッドストーン」 QWマーチブラック

3-2 キッチン Before → After
中野区M様邸_施工前

リフォーム前

4世帯各居室、小さなキッチンと和式のトイレが付いている6畳間です。

中野区M様邸_竣工

システムキッチはクリナップ クリンレディです。I型2100サイズになります。レンジフードはクリナップの洗エールレンジフードです。
 シンクは流レールシンク・引き出しはステンレス底板をご選定頂きました。

3-3 バス Before → After
中野区M様邸_施工前

リフォーム前

4世帯各居室、小さなキッチンと和式のトイレが付いている6畳間です。お風呂は付いていませんでした。

中野区M様邸_竣工

ユニットバスはお客様のご要望で1416サイズを入れたいと言われましたので、TOTOマンションリモデルバスルーム WTシリーズ Nタイプ 1416を
入れさせて頂きました。マンション用なので天井高の高さはオプションで高く設定いたしました。

3-4 洗面 Before → After
中野区M様邸_施工前

リフォーム前

4世帯各居室、小さなキッチンと和式のトイレが付いている6畳間です。

中野区M様邸_竣工

洗面化粧台はクリナップ ファンシオ間口600隣に250サイズの収納を設置致しました。洗面室はとても限られた空間でしたので洗濯機置き場に設置する場合は洗面化粧台のカウンター上にあげないと洗濯機は設置出来ない旨は初めにお伝えさせて頂きました。

3-5 トイレ Before → After
中野区M様邸_施工前

リフォーム前

4世帯各居室、小さなキッチンと和式のトイレが付いている6畳間です。

既存トイレは畳半畳の和式トイレです。

中野区M様邸_竣工

トイレはPanasonicアラウーノVになります。紙巻き器はお客様が支給して頂いた物を設置させて頂きました。

3-6 リビング Before → After
中野区M様邸_施工前

リフォーム前

4世帯各居室、小さなキッチンと和式のトイレが付いている6畳間です。

中野区M様邸_竣工

2階をワンフロアにしてLDKを造らさせて頂きました。階段は3階の屋上庭園に上がる階段になります。

ハイウィルスタッフ

4 担当者より(ハイウィル株式会社 四代目代表 稲葉高志)

当社にご相談が来たのは、大手リフォーム会社での見積もりが大幅に予算をオーバーしていたことでした。工事半年前より、何度もプランニングをさせていただき、ご要望の優先順位を決めて頂き、実現可能な範囲でご予算に収める提案をさせていただきました。M様はこだわりが強く、細かな建材の仕様までご契約の段階で決定をしていましたので工事側と致しましては大変スムーズでした。狭小住宅リフォームはいかに無駄なスペースを無くすか、そのプランにかかっていると思います。

理想の間取りをヒアリングさせていただき、構造的に無理なご要望もございました。それらを何度も話し合いをさせていただき工事をスタートすることができました。M様(奥様)のご実家は群馬で材木会社をされているため、一部の銘木と呼ばれる高級材木を群馬まで取りに行き、設置させていただいております。奥様のご両親には弊社にも一枚板の無垢テーブルを頂くなどこちらも大変お世話になってしまいました。

全国のフルリフォーム・リノベーション『ピックアップ事例』※プロの詳細解説付きレポート

HEAT20-G2/耐震等級3
新耐震基準の性能向上リノベーション
築30年ハウスメーカー軽量鉄骨
断熱改修&リノベーション
 
中古住宅を新築以上の耐震性能と断熱性能へ!
耐震等級3フルリフォーム
地下付き木造2階建て
自然素材をつかった性能向上リノベーション&フルリフォーム

東京都文京区 K様邸

長屋を切り離して1つの構造体へフルリフォーム&リノベーション
隣家との距離がない!
部屋から外壁を張り替えるフルリノベーション
中古住宅を耐震等級3へ!
中古住宅リノベーション
 
基礎がない??
築60年の古屋をジャッキアップで基礎新設フルリノベーション

東京都渋谷区 O様邸

戸建てリノベーション・リフォームに関するお問合せはこちら

増改築.comの一戸建てリフォーム専用ホームページに
お越しいただき、誠に有難うございます。
 
増改築.comメンバーは技術集団となり、
他社のような営業マンがおりません。
技術者が直接ご相談にのり問題解決を行います。
 
従いまして、
お客様の方である程度のご要望が整理されました段階、
お悩みが工事内容のどのようなところにあるのか?
ご予算がどの程度絞る必要があるのか?
など明確になった段階でのご相談をお願いしております。
お問合せ・ご相談はお電話・メールにて受け付けております。
メールの場合は以下のフォームに必要事項をご記入の上、
「送信する」ボタンをクリックをお願いします。

代表稲葉高志

戸建てリノベーションの専属スタッフが担当致します。
一戸建て家のリフォームに関することを
お気軽にお問合せください

よくあるご質問
  • 他社に要望を伝えたところできないといわれたのですが・・・
  • 他社で予算オーバーとなってしまい要望が叶わないのですが・・・
  • サービスについて詳しく聞きたいのですが・・・

どのようなお悩みのご相談でも結構です。

あなたの大切なお住まいに関するご相談をお待ちしております。

営業マンはおりませんので、しつこい営業等も一切ございません。

設計会社(建築家様)・同業の建築会社様のご相談につきましては、プランと共にご指定のIw値及びUa値等の性能値の目安もお願い申し上げます。

2026年の大型補助金が確定したことで現在大変込み合っております。

耐震性能と断熱性能を向上させるフルリフォームには6か月~7か月の工期がかかります。

補助金獲得には年内に報告を挙げる必要があることから、お早目にご相談をお願いいたします。(6月着工までが目安

ご提案までに大変お時間がかかっております。ご了承のほどお願い申し上げます。

(5月までの着工枠が埋まりました)・・・2026/03/01更新

※すでにプランをお持ちのお施主様・設計資料をお持ちのお施主様は内容をフォームで送信後、フォーム下のメールアドレスに資料をお送りください。対応がスムーズです。

必須

(例:増改築太郎)

必須

(例:contact@high-will.co.jp)

(例:03-5615-2826)

必須

(例:東京都荒川区西日暮里2-35-1)

(例:築40年)

(例:25坪・100㎡など)

(例:2000万程度など)

  • ※再建築不可のリフォームでは金融機関が限られます。事前審査をお勧めいたします。

    (例:2024年3月くらいに完成希望など)

    必須

    できるだけ具体的にお知らせくださいませ。既存設計資料、リフォーム後のイメージ図等をお持ちであれば下記のメールアドレスより添付をお願いします。

    ※次の画面がでるまで、4~5秒かかりますので、
    続けて2回押さないようにお願いいたします。

    ※次の画面が出るまで、4〜5秒かかりますので、
    続けて2回押さないようにお願いいたします。

    図面や写真等を送信いただく場合、また入力がうまくいかない場合は、上記内容をご確認のうえ、下記メールアドレスまでご連絡ください。

    お電話でのお問合せはこちら

    0120-246-991

    営業時間:10:00~17:00(土日祝日を除く)

    ★YouTube「増改築.comチャンネル」チャンネル登録して新動画解説をいち早くGET!!★
    「増改築.comリノベ診断」であなたに一番ふさわしいフルリフォームを診断!!(動画解説付き)
    ★Facebookページにいいね!を押して最新コンテンツ情報をいち早くGET!!★
    パソコン|モバイル
    ページトップに戻る