戸建フルリフォームなら「増改築.com®」TOP > 施工事例 > 都道府県で探す > 兵庫県西宮市 > 施工事例 B様邸 築35年の建物を内部スケルトンリフォーム・外壁塗装工事

このエントリーをはてなブックマークに追加
大工さんの家をスケルトンリフォーム

スケルトンリフォーム(内部スケルトン)兵庫県西宮市 施工事例

西宮市B様邸

 

阪神タイガースで有名な甲子園球場よりほど近い甲子園にお住まいのB様。
元々建築関係にお勤めでしたので、お知り合いの工務店にお願いするつもりでしたが、ご事情があり,別でお探しの際に増改築.comをご覧いただき、お問い合わせを頂きました。

建物概要
名前 B様
場所 兵庫県西宮市甲子園
築年数 築35年
構造種別 木造一戸建て
家族構成 大人3人
対象面積 28.67坪
リフォーム部位 基礎補強/間取り変更/玄関ドア/サッシ取替/外壁塗装工事/グラスウール充填/屋根葺き替え/給湯器交換/水回り一式
工期 4ヶ月
価格 1750万

お客様のご要望

今回のリフォームで、B様からのご要望は以下の3点です。

  • 断熱効果の向上
  • 設備等の入れ替え
  • 間取り変更

もともと大工の棟梁だったB様は、ご自身も携わって建てたこのお家に自信を持たれていました。
ですので、この機会に経年劣化による傷み具合の確認を楽しみにされておられました。

B様のご希望は、息子様がご自宅を継いだ後も将来的にも安心して暮らしていける建物に補修・補強をして欲しい。自身の目が黒いうちにその工事を見届けたいという希望を強くお持ちでした。

そこで今回は表層リフォームを一歩踏み込んでのスケルトンリフォーム工事となりました。
間取りに関してもかなり具体的に考えられておりましたので、図面を作成し詳細打ち合わせにスムーズに進むことができました。

プランナー 北畠より ~プランニングのポイント~

B様邸は、基本和室が多かったのでリフォーム後は洋室をメインでお部屋を造りたいとご要望を頂いておりました。

1階に大きめのLDKを持ってきて、浴室は今まで小さなバランス窯だったので浴槽を大きく取りたいと頂いていたので1620サイズと

1坪より少し大きな浴室にワイド浴槽でプランをさせて頂きました。

まったく和室が無くなるのは寂しいので、家族が集まるLDKの1角に4.5畳位の和室を設置させて頂きました。

2階は大きめの収納WICを2箇所プランさせて頂きました。

 

 

兵庫県西宮市B様邸 戸建てリノベーション施工事例テーマカテゴリー

 

  • 2世帯住宅リフォーム
  • 内外部スケルトンリフォーム

スケルトンリフォーム打ち合わせから着工、完成までの詳細施工事例紹介

1 スケルトンリフォーム着工前

1-1 現場調査・打合せ

定期的に外壁塗装をしたり、クロスの張替え工事をしたりと、メンテナンスはされておられたのですが、それ以上の工事(躯体チェックなど)はなく、元大工のB様ですら躯体の状態を見てはいないとのことでした。なかなか構造躯体を検査する機会というのはないものです。

西宮市B様邸_施工前

外観写真

西宮市B様邸_施工前

写真ではクラックなど確認できないぐらい手入れが行われておりました。

外部からの調査では、クラック等も見受けられませんでしたし、内部でも、雨水侵入などの問題はないと現地調査では判断しました。ここまではB様も既に確認済みでした。

 

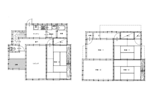
間取りに関しては、スケルトンリフォーム前の間取りでは昔の間取りで二間がふすまで仕切られているそんな間取りでした。
間取り変更後はいかに廊下面積を増やさずにプライバシーを守った居住スペースを作るのかという課題はありましたが、大工の棟梁もされていたB様だけに、図面を書き起こして、修正を入れて頂くといった具合にスムーズに打ち合わせは進みました。

西宮市B様邸_施工前

玄関

西宮市B様邸_施工前

お部屋もかなりものがあふれた状態です。

西宮市B様邸_施工前

これから仮住まいの為お引越しをしていただくことになりました。

西宮市B様邸_施工前

給湯器こちらも同型と交換

 

関西を代表する住宅地神戸では御影、芦屋市では六麓荘町、西宮では西宮七園があります。
西宮七園とは昭和園(北昭和町・南昭和町)甲風園、甲東園、甲陽園、苦楽園、香露園、そして今回ご依頼いただいたB様邸のある甲子園の七つの「園」のつく高級住宅地の総称で、いずれも大正から昭和初期にかけて、交通・環境とも恵まれた場所に開発された町になります。
一部のエリアには最低敷地面積等が規定された市指定建築協定が存在し、豪邸が軒を連ねるエリアとなっております。
近年よく目にする関西住みたいまちランキングでは西宮北口駅周辺が人気になっておりますが、こうした昔からある西宮七園も変わらず人気の高いエリアです。

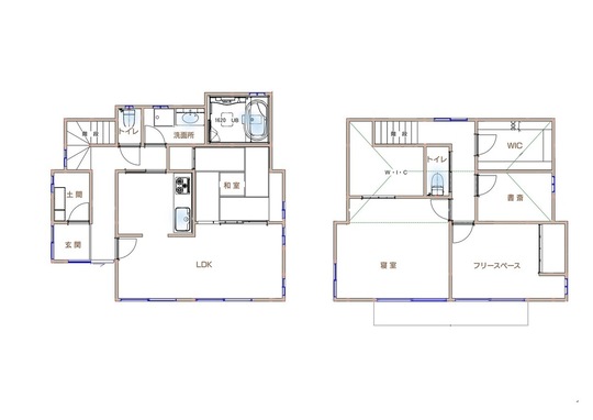
1-2 兵庫県西宮市B様邸 戸建スケルトンリフォームプラン

  間取りの変更プラン  

西宮市B様邸_施工前図面

既存平面図

西宮市B様邸_新規図面

新規平面図

既存は昔ながらの間取りでしたので、スケルトンリフォームでのスタンダードなプランへと変更しました。

1階はキッチンとリビング・ダイニングが分かれている間取りでしたので、LDKを一つにまとめ、大きな空間にしました。
逆に2階は昔ながらの襖で仕切られている形なので、各部屋を分離させました。
建築関係の資料、本などが多いので、書庫を作りたい。脱衣室、お風呂のサイズアップをご希望。趣味の釣り道具や仕事道具を入れる土間内の収納庫を併設させたい。奥様からのご要望はウォークインクローゼットとキッチンを独立させて欲しいとのご要望でした。

また、カラーは一階は明るい色でまとめ、2階はシックな色で落ち着いた空間を演出するなど、B様のセンスが光るお家となりました。

 

B様の内部スケルトンリフォーム・外壁塗装工事はこうしてはじまりました。

2 スケルトンリフォーム着工

2-1 足場・解体
西宮市B様邸_解体

残置物は廃棄物として処分

西宮市B様邸_解体

間取りを変えるお部屋に関してはさらに解体を進めます。

西宮市B様邸_解体

ガラ袋も山のように積みあがっていきました。

西宮市B様邸_解体

手壊しにより解体していきます。

西宮市B様邸_解体

収納の柱も除去していきます。

西宮市B様邸_解体

壁を抜いて補強していきます。

断捨離として使っていない家具等も産業廃棄物として処分していきます。どのご家庭もそうですが、想定した量の倍は覚悟が必要です。

作業スペースができると、天井、壁、床をすべて撤去していきます。手壊しによる解体になりますので、ここまでの工程で2日ほどかかりました。
これにより既存の構造躯体への影響を最小限にでき、この際に、補強を入れながら解体を行っていきますので、熟練の大工の腕が必要になってきます。

余談ですが、弊社の大工と施主のB様は、ほんとうに仲良くなりまして、平気で1時間おしゃべりを繰り広げておりました。そして、現場にはかなりの頻度でB様も登場されることになります。

西宮市B様邸_解体

元キッチンです。

西宮市B様邸_解体

ユニットバスを入れるため解体していきます。

西宮市B様邸_解体

トイレも撤去

西宮市B様邸_解体

屋根が見えてきました。

2-2 基礎

既存の基礎は布基礎です、今回はB様の意向で補強工事をさせて頂くこともほとんどなくそのまま再利用の方針で進めさせて頂きました。計測の結果、35年前のレベルからずれがほとんど生じてないことを確認。

劣化が見られたお風呂、玄関回りや水の侵入が見られた箇所の土台は新しい土台へと入れ替えました。

西宮市B様邸_基礎

床下

西宮市B様邸_基礎

土台を新しいものに取り換え

西宮市B様邸_基礎

床をすべて解体、給水管、排水管も新しいものと取り替えます。

西宮市B様邸_基礎

基礎も一部補強しております。

2-3 大工工事

B様邸は主要構造躯体も損傷か少なくほとんどの柱が再利用可能でした。
但し補強は必要になります。耐震の補強として充腹梁、耐震金具、制震ダンパーなどの提案をさせて頂きました。

制震ダンパーは診断結果に基づき、設置位置が決定されます。既存の構造計算書とともにダンパー設置後の構造耐力がわかります。

2階床に構造用合板を利用するなどB様からの補強のポイントがご提案されましたが、耐震等級3を採用されるか方が多い昨今設計サイドからの意見も入れさせて頂き補強させて頂きました。

西宮市B様邸_大工工事

充腹梁

西宮市B様邸_大工工事

梁補強

西宮市B様邸_大工工事

梁補強拡大

西宮市B様邸_大工工事

梁補強、サッシ

西宮市B様邸_大工工事

耐震補強

西宮市B様邸_大工工事

制震ダンパー

西宮市B様邸_大工工事

制震ダンパー拡大

西宮市B様邸_大工工事

玄関ドア

  

2-4 屋根工事

今回は屋根を構造用合板で増し打ちし、ルーフィング施工後、カラーベストで仕上げました。

西宮市B様邸_屋根

屋根施工後

西宮市B様邸_屋根

屋根施工後

2-5 断熱工事

今回はB様も使い慣れているというグラスウールを採用させていただきました。採用隙間が空かないように充填していきます。

西宮市B様邸_断熱工事
西宮市B様邸_断熱工事
西宮市B様邸_断熱工事

写真はありませんが、サッシもLow-Eペアガラスに変更しました。

西宮市B様邸_断熱工事

Low-Eガラス

Low-Eガラス(Low Emissivity = 低放射)とは板ガラスの表面に酸化スズや銀などの特殊金属膜をコーディングしたもので、このLow-E膜が遠赤外線の反射率を高めています。

室内に入り込む日射熱を50%以上カット紫外線を76%カットします。

Low-Eガラスを複層ガラスに使用することで、中空層の放射による熱伝達を低減し、高断熱性能が実現されました。 

 

簡単に言えば、外からの熱を強力にカットし、室内の涼しさや温かさは外に逃がしにくい構造になっております。

2-6 外壁塗装

外壁塗装はまずは高圧洗浄などで汚れ、異物、カビなどを落とします。この作業を疎かにすると、仕上がりにも影響してきますので、丁寧な仕事が求められる重要な作業になります。
続いて、ひび割れや、シーリング切れを補修していきます。この作業をしないと、構造体を外壁が十分に守り切れません。
そして塗装工事に入っていきます。塗装作業も、下塗り、中塗り、上塗りと3回塗ります。
最後に木部や鉄部、破風塗装をして完了です。

西宮市B様邸_外壁塗装

シール打ち

西宮市B様邸_外壁塗装

外壁トップ3回目

西宮市B様邸_外壁塗装

3回目外壁トップ塗装中

西宮市B様邸_外壁塗装

外壁トップ完了

西宮市B様邸_外壁塗装

塩ビパイプ塗装1回目

西宮市B様邸_外壁塗装

塩ビ2回目

西宮市B様邸_外壁塗装

塩ビパイプ完了

西宮市B様邸_外壁塗装

鉄部上塗り

西宮市B様邸_外壁塗装

破風塗装完了

西宮市B様邸_外壁塗装

木部塗装完了

西宮市B様邸_外壁塗装

木部等引き

2-7 内装仕上げ工事

ほぼ毎日現場に来られていたB様この頃には石膏ボートの運びまで手伝って頂きました。若い頃は5・6枚一度に運んでいたらしいのですが、今は3枚でやっとみたいです。70近いご年齢を考えるとすごいですよね。

西宮市B様邸_内装仕上げ

キッチン

西宮市B様邸_内装仕上げ

トイレ

西宮市B様邸_内装仕上げ

ユニットバス

西宮市B様邸_内装仕上げ

リビング・和室

西宮市B様邸_内装仕上げ

書庫

西宮市B様邸_内装仕上げ

書斎

西宮市B様邸_内装仕上げ

土間収納

西宮市B様邸_内装仕上げ

和室

外部も仕上がりつつある中、工事も仕上げの段階に入っていきます。大工さん、内装職人、電気屋さんなど、詰めの作業を行っていきます。
どんどん出来上がりが見えていきます。

3 スケルトンリフォーム竣工

約4か月の工事を経て、いよいよ竣工です。
築35年の建物は、外壁塗装も施して見違えるようになりました。
B様邸の様子をご紹介します。


  =外観==  

西宮市B様邸_竣工

外壁塗装、サッシの交換も終わり綺麗な外観に生まれ変わりました。

西宮市B様邸_竣工

玄関ドアはリクシル スライディングドアエルムーブをチョイス将来車いすやベビーカーなどを利用する際に安心して生活できます。

西宮市B様邸_竣工

こだわりの150角mmタイル

西宮市B様邸_竣工

給湯器も新しいものに交換。


  == 水まわり ==  

Before

西宮市B様邸_施工前

既存キッチン

西宮市B様邸_施工前

既存浴室

西宮市B様邸_施工前

既存洗面室

西宮市B様邸_施工前

既存トイレ

西宮市B様邸_竣工

キッチンはPanasonic「ラクシーナ」を採用。人造大理石のワークトップは高級感に溢れ、お掃除に優れています。

西宮市B様邸_竣工

浴室はPanasonicのユニットバス「ココチーノ」を採用。浴槽は「スゴピカ素材」通常のFRP素材の3倍なめらか表面。汚れをはじく撥水素材で、防汚性能、傷もつきにくくきれいな状態で長持ちします。

西宮市B様邸_竣工

洗面はPanasonic「ウツクシーズ」です。「スゴピカカウンター」をはじめお掃除しやすく、使いやすくなっております。

西宮市B様邸_竣工

トイレはPanasonic「アラウーノ」です。最新のトイレはお掃除がラクラクになっています。


  == その他のお部屋・階段 ==  

西宮市B様邸_竣工

1階の和室は畳の廻りをオシャレにアレンジしています

西宮市B様邸_竣工

アレンジされた和室はリビングに馴染みます。

西宮市B様邸_竣工

階段も新しくなりました。

西宮市B様邸_竣工

2階寝室の埋め込み照明(施工中)

西宮市B様邸_竣工

埋め込み照明完成

西宮市B様邸_竣工

2階の主寝室にはウォークインクローゼット完備。広々ご利用いただけます。

西宮市B様邸_竣工

書斎隣の部屋は収納をつけフリースペースとして利用

西宮市B様邸_竣工

書庫

西宮市B様邸_竣工

2階廊下

ハイウィルスタッフ

4 担当者より(ハイウィル株式会社・稲葉)

B様は、元々大工さんで数年前まで棟梁を勤めていた木造建築のスペシャリストでした。
10代の頃に関西に来られてから50年間ずっと木造の建築に携わってこられたとのことです。その為、お知り合いの大工さんにお願いすることも考えたそうです。
ただ、知っている間だけに気を使ってしまうこと、「自分の知識以上の今までしてこなかった新しい工事が見てみたい」という飽くなきプロとしての探求心が勝ったこと、遠慮せずに意見を言って貰いたいとの思いで、今回弊社に依頼頂きました。

最初はすべて任せるという話からスタートして実際にはB様もキャリア50年のプロだけあり、譲っていただけない点もございましたが、私どもも勉強させていただくことはたくさんありました。
工事中も頻繁に差し入れをお持ちいただき、お心遣い大変ありがとうございました。

B様、奥様、この度はご依頼いただきましてありがとうございました。

兵庫県他のリフォーム事例を見る

兵庫県

神戸市(垂水区・須磨区・長田区・兵庫区・中央区灘区東灘区・北区・西区)

西宮市芦屋市尼崎市、宝塚市、川西市、伊丹市、三田市、明石市

全国のフルリフォーム・リノベーション『ピックアップ事例』※プロの詳細解説付きレポート

HEAT20-G2/耐震等級3
新耐震基準の性能向上リノベーション
築30年ハウスメーカー軽量鉄骨
断熱改修&リノベーション
 
中古住宅を新築以上の耐震性能と断熱性能へ!
耐震等級3フルリフォーム
地下付き木造2階建て
自然素材をつかった性能向上リノベーション&フルリフォーム

東京都文京区 K様邸

長屋を切り離して1つの構造体へフルリフォーム&リノベーション
隣家との距離がない!
部屋から外壁を張り替えるフルリノベーション
中古住宅を耐震等級3へ!
中古住宅リノベーション
 
基礎がない??
築60年の古屋をジャッキアップで基礎新設フルリノベーション

東京都渋谷区 O様邸

戸建てリノベーション・リフォームに関するお問合せはこちら

増改築.comの一戸建てリフォーム専用ホームページに
お越しいただき、誠に有難うございます。
 
増改築.comメンバーは技術集団となり、
他社のような営業マンがおりません。
技術者が直接ご相談にのり問題解決を行います。
 
従いまして、
お客様の方である程度のご要望が整理されました段階、
お悩みが工事内容のどのようなところにあるのか?
ご予算がどの程度絞る必要があるのか?
など明確になった段階でのご相談をお願いしております。
お問合せ・ご相談はお電話・メールにて受け付けております。
メールの場合は以下のフォームに必要事項をご記入の上、
「送信する」ボタンをクリックをお願いします。

代表稲葉高志

戸建てリノベーションの専属スタッフが担当致します。
一戸建て家のリフォームに関することを
お気軽にお問合せください

よくあるご質問
  • 他社に要望を伝えたところできないといわれたのですが・・・
  • 他社で予算オーバーとなってしまい要望が叶わないのですが・・・
  • サービスについて詳しく聞きたいのですが・・・

どのようなお悩みのご相談でも結構です。

あなたの大切なお住まいに関するご相談をお待ちしております。

営業マンはおりませんので、しつこい営業等も一切ございません。

設計会社(建築家様)・同業の建築会社様のご相談につきましては、プランと共にご指定のIw値及びUa値等の性能値の目安もお願い申し上げます。

2026年の大型補助金が確定したことで現在大変込み合っております。

耐震性能と断熱性能を向上させるフルリフォームには6か月~7か月の工期がかかります。

補助金獲得には年内に報告を挙げる必要があることから、お早目にご相談をお願いいたします。(6月着工までが目安

ご提案までに大変お時間がかかっております。ご了承のほどお願い申し上げます。

(5月までの着工枠が埋まりました)・・・2026/03/01更新

※すでにプランをお持ちのお施主様・設計資料をお持ちのお施主様は内容をフォームで送信後、フォーム下のメールアドレスに資料をお送りください。対応がスムーズです。

必須

(例:増改築太郎)

必須

(例:contact@high-will.co.jp)

(例:03-5615-2826)

必須

(例:東京都荒川区西日暮里2-35-1)

(例:築40年)

(例:25坪・100㎡など)

(例:2000万程度など)

  • ※再建築不可のリフォームでは金融機関が限られます。事前審査をお勧めいたします。

    (例:2024年3月くらいに完成希望など)

    必須

    できるだけ具体的にお知らせくださいませ。既存設計資料、リフォーム後のイメージ図等をお持ちであれば下記のメールアドレスより添付をお願いします。

    ※次の画面がでるまで、4~5秒かかりますので、
    続けて2回押さないようにお願いいたします。

    ※次の画面が出るまで、4〜5秒かかりますので、
    続けて2回押さないようにお願いいたします。

    図面や写真等を送信いただく場合、また入力がうまくいかない場合は、上記内容をご確認のうえ、下記メールアドレスまでご連絡ください。

    お電話でのお問合せはこちら

    0120-246-991

    営業時間:10:00~17:00(土日祝日を除く)

    ★YouTube「増改築.comチャンネル」チャンネル登録して新動画解説をいち早くGET!!★
    「増改築.comリノベ診断」であなたに一番ふさわしいフルリフォームを診断!!(動画解説付き)
    ★Facebookページにいいね!を押して最新コンテンツ情報をいち早くGET!!★
    パソコン|モバイル
    ページトップに戻る