戸建フルリフォームなら「増改築.com®」TOP施工事例東京都江戸川区>S様 一戸建て2世帯(住宅)スケルトンリフォーム・傾き補正

二世帯住宅リフォーム(部分共有型) 施工事例詳細レポート 江戸川区S様

江戸川区S様_TOP
江戸川区S様邸_竣工
江戸川区S様邸_竣工
江戸川区S様邸_竣工
江戸川区S様邸_竣工
江戸川区S様邸_竣工
江戸川区S様邸_竣工
建物概要
名前 S様
場所 東京都江戸川区
築年数 築40年
構造種別 木造戸建
家族構成 大人3人子供2人
対象面積  
工期 3ヶ月
価格 1500万

お客様のご要望

江戸川区S様のお住まいは、築40年の木造3階建てで、息子様世帯(二人のお子様含む)が現在お住まいのマンションを売却され、お母様が一人で住まわれるご主人の実家をリフォームして一戸建て2世帯住宅スケルトンリフォームするというものです。S様の一戸建て2世帯住宅スケルトンリフォームをされるまでの経緯と要望を整理しますと

・お母様が長くおひとりで暮らしており、今回息子様世帯も一緒に同居し2世帯リフォームをしたい。

・新築当初から3階の床の傾きが気になっており、構造から見直したい。

・既存一階が駐車スペースとなっており、そこを母親の居住スペースにしたい。

・外壁部分にはルーバーを設置したい。

 

というご要望をいただきました。

プランニングのポイント

一階の既存駐車スペースをお母様の居室としてゾーニングし、既存の浴室を2階へ配置。空いたスペースにお子様のお部屋を確保しました。2階はリビングと浴室を配置し、3階へ夫婦室とお子様のお部屋をプランニングしました。

江戸川区S様邸 戸建てリノベーション施工事例テーマカテゴリー

 

  • 二世帯住宅リフォーム
  • 内部スケルトンリフォーム

打合せから完成まで

1 着工前

1-1 打合せ

一戸建て2世帯スケルトンリフォーム(江戸川区S様邸施工事例 着工前〜お引渡しまでの流れ)

 

今回は、息子様世帯がお母様が一人で住まわれているご実家に2世帯住宅(お孫様もおられるので3世帯住宅)のスケルトンリフォームです。当初現場にお伺いし、ご要望をヒアリングさせていただいた際のお悩みが家が傾いている??といったお悩みでした。

 

家が傾いている? といってビックリされる方もおられるかと思いますが、実は、弊社のように改築(一戸建てスケルトンリフォーム)工事を毎日やっておりますと、その度合いに差こそありますが、かなりの頻度で「傾き」を気にされておられる方も多いのも現実です。

 

そもそも木造一戸建て(一軒家)の住まいは、基礎の上に木構造体が乗って建物を構成していますが、この「傾き」にも、基礎より下の部分、つまり地盤自体が傾いているケースと、基礎より上の木構造部分での傾いているケースがございます。地盤自体が下がってしまっているケースでは、近くに高層のマンションが建って地盤に影響が出てしまうケースやもともと地盤がゆるく、隣の家が新築をした際などに傾いてしまうなどのケースがあります。前者の地盤が問題の場合では地盤改良工事が必要になります。後者の基礎より上の木構造体部分が傾いている一戸建て(一軒家)の場合は、築年数とともに木が痩せてしまってという自然なケース(この場合度合いはひどくはないケースが多い)と一部の構造体に過度な荷重がかかってしまい傾いてしまっているケースやそもそも施工不良のケースなどさまざまです。前者の地盤が影響した施工事例は北区のY様の一戸建てスケルトンリフォーム板橋区のO様のスケルトンリフォームにて紹介しております。北区の事例では地盤自体が近隣のマンション等の建設をしていく段階で傾いていたお住まいで、なおかつ築年数の古く、無筋の基礎で、一部束がなかったりといった状態となっていたため現場調査の段階では、床板がフカフカしている状態でありお住まいの一戸建て(一軒家)の内部スケルトンリフォーム(改築)を行った現場でした。板橋区の事例は崖に建っている立地であり25センチ以上傾いている状態でした。後者の施工不良での傾きについては、小金井市の外壁リノベーション事例で紹介しています。今回ご紹介させていただく事例の一戸建て2世帯住宅スケルトンリフォームのお施主様である東京都江戸川区のS様は、後者のパターンなり、新築時から何回か手を加えていく段階で、一部の構造体に過度な荷重がかかってしまい傾いてしまっていたケースの施工事例を紹介します。

 

江戸川区S様のお住まいは、築40年の木造3階建てでご夫婦世帯がお住まいのマンションを売却され、お母様が一人で住まわれるご主人の実家をリフォームして一戸建て2世帯住宅スケルトンリフォームするというものです。S様の一戸建て2世帯住宅スケルトンリフォームをされるまでの経緯と要望を整理しますと

・お母様が長くおひとりで暮らしており、今回息子様世帯も一緒に同居し2世帯リフォームをしたい。

・新築当初から3階の床の傾きが気になっており、構造から見直したい。

・既存一階が駐車スペースとなっており、そこを居住スペースにしたい。

・外壁部分にはルーバーを設置したい。

 

というご要望をいただきました。

 

 

■既存写真

■既存建物写真
江戸川区S様邸_施工前

奥様とお母様に現場を案内していただき調査に入りました。

■既存建物写真
江戸川区S様邸_施工前

既存の駐車スペースは3本の鉄梁が2階、3階を支えているため梁せいが高く、そもそもの階高も低いことから1階を居住空間にする際にはこの梁がネックになり、かなりの圧迫感を与えることになると説明しました。

江戸川区S様邸_施工前

駐車場の真上に位置する既存の流し台。新規の一戸建て2世帯スケルトンリフォームでは、対面型を希望されておりました。このキッチンの排水管の位置も先ほど見た一階の梁に干渉しないように設計しなければならないことを予測します。

江戸川区S様邸_施工前

キッチンの隣のお母様が使われていた納戸3畳には、一戸建て2世帯スケルトンリフォーム後、既存台所スペースを拡大しLDKにする想定で、水まわりを設備を集約させるプランをご提案しました。バスルーム≪新規ユニットバス(システムバス)≫・脱衣所≪洗面化粧台・洗濯パン≫をゾーニングしました。

江戸川区S様邸_施工前

ご主人様の強いご要望で、リビングは一戸建て2世帯スケルトンリフォーム後にも和室をご希望されておりましたので道路面に面した既存の2階和室・洗面化粧台・トイレが設置されていたスペースを補強の上拡大し9畳の和室スペースのリビングルームをご提案しました。

江戸川区S様邸_施工前

2階の現場調査を終え、3階に上っていき、廊下に出た段階で、かなりの傾きがわかりました。何度かリフォームをされておられるとのことで、床を剥がして、構造体の仕掛けをみないと100%のお話はできませんが、どこかに荷重がかかりすぎていることはわかります。木が痩せて傾いているというレベルではありませんでした。3階はご主人さまのお部屋と奥様のお部屋とお子様のお部屋の3部屋が欲しいとのご要望がありましたので、そのような設計でプランをたてました。

1-2 提案

S様にご提案させていただいた一戸建て2世帯スケルトンリフォームプランです。

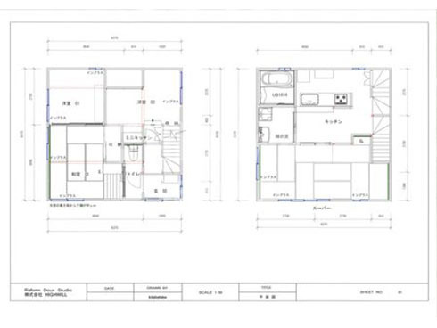
■ リフォーム後 1階2階平面図 ■
江戸川区S様邸_新規平面図
■ リフォーム後 3階平面図 ■
江戸川区S様邸_新規平面図
■ リフォーム後 外観イメージ ■
江戸川区S様邸_施工後イメージ

ご主人さまがルーバーをご要望されておりましたのでアクセントとして外部のルーバーを設置するイメージを提出させていただきました。

■リフォーム後 1階鳥瞰図■
江戸川区S様邸_施工後イメージ
■ リフォーム後 2階鳥瞰図 ■
江戸川区S様邸_施工後イメージ
■ リフォーム後 3階鳥瞰図 ■
江戸川区S様邸_施工後イメージ

プランは、最終プランをこちらでは掲載しておりますが、一戸建て2世帯スケルトンリフォーム、正確には3世帯となっており、ご家族の意見を整理しながら共有するために2回程度の打ち合わせを継続し、約3か月の打ち合わせの中で、5回程度微調整を繰り返し最終的に決定したプランとなります。お客様のご要望を聞き、工事会社として、抜けない構造上重要となる柱、耐力壁をお話させていただき、たくさんのご要望の中で構造上できる工事とできない工事のお話をさせていただき、仕様もご予算費用に合わせすり合わせを繰り返していく時間が、この一戸建て2世帯住宅スケルトンリフォームでは必要となり、お客様のご要望、イメージと我々の認識を合致させることがより良いお住まいを作る絶対条件となります。木造の一戸建て2世帯住宅スケルトンリフォームとなりますが、在来工法だからな何でもできるというわけではなくしっかりとした木構造の建築知識がないと構造を触れる以上、のちのち大変なことになりかねません。一戸建て2世帯スケルトンリフォームをされる場合はしっかりとした技術水準の高い棟梁がいて、その技術水準が高い職人をまとめられる熟練の監理者が常駐する会社へ相談することが必須となります。

 

木造の1戸建スケルトンリフォームで最も気を使う部分が、解体と木工事になります。既存の軸組を新たな軸組へ変更を伴うため、解体にも気を遣います。

 

今回の江戸川区S様邸も例外ではなく、新築され数年後に間取り変更を伴う改築をされ、幾度となく手を加えられているような、現場では、無理な改築をしているケースなことも少なくなく、一部の梁などに無理な荷重がかかっているものなど、この解体の段階であきらかになります。

 

従いまして、機械壊しではなく、S様邸の一戸建て2世帯スケルトンリフォーム工事解体作業も手壊しになります。今回は外壁を基本的には残しサッシを一部交換する内部一戸建て2世帯スケルトンリフォームプランになっていたため、内部と残すサッシ(窓)、構造上必要な構造体以外は解体をしていきます。

2 着工

2-1 解体
江戸川区S様邸_解体

一階部より解体作業スタート! 鉄骨梁があらわれてきました。

江戸川区S様邸_解体

このような大スパンで開口を取るための梁設置ケースでは鉄張りではなく、せいの高い(木製)梁を入れたほうがよかったといえます。(微妙に中央部が凹でいるのがわかります。)

江戸川区S様邸_解体

前面道路も狭いことが都心部では多く、一回に4トンロングのトラックなどで廃棄をすることができませんので、2トントラックを何回かに別けて呼び 解体作業は進められます。

江戸川区S様邸_解体

3階部分まで構造体があきらかになっていきます。

 

江戸川区S様邸_解体

鉄張りに支えられている2階の構造体。 雨で外壁の内側のザラ板が腐食しているのが目立ちます。サッシまわりからなのかエアコンのコア抜きした箇所なのかなどをみていきます。

江戸川区S様邸_解体

一階部は駐車スペースと玄関、廊下、脱衣所、浴室でした。このスペースを一戸建て2世帯スケルトンリフォーム後は居室にしていきます。

江戸川区S様邸_解体

一階駐車スペースには当然布基礎はありませんが、廊下部分は布基礎が走っています。そもそもこの梁が圧迫感があるなかで一戸建て2世帯スケルトンリフォーム後に床を上げるわけにはいきません。ここをどうやって施工するか。このようなことを考えながら解体をしていきます。

江戸川区S様邸_解体

既存サッシを撤去する箇所は大き目にカッターを入れ撤去します。

S様宅に現場調査した際にも、3階部は立っていてすぐに傾いているのがわかるぐらいの傾きがありました。ここも構造部があきらかになり原因が判明します。

江戸川区S様邸_解体

解体をしてみると既存3階洋室の床が湾曲をしており3部屋をつなぐ廊下の床下にある梁に無理な荷重がかかっていることがわかりました。

江戸川区S様邸_解体

ここまで荷重をかける場合、もっとせいの高い梁をかける必要がありますが、数十年前に改築したさいにそのまま新築時の梁に柱を乗せてしまっていたことがわかります。このようなケースを解体の段階で、ハイウィルではお客様へ現場にきていただき確認をしていただき対応策の説明をさせていただきます。

2-2 補強
江戸川区S様邸_補強

解体作業が終わると 1階が居住スペースにする為、駐車スペース部分に新たな基礎を作る作業(基礎工事)にうつります。

江戸川区S様邸_補強

道路側新規基礎配筋

江戸川区S様邸_補強

配筋を立ち上げ基礎補強緊結します。

江戸川区S様邸_補強
江戸川区S様邸_補強

型枠を固定します。

江戸川区S様邸_補強

今回のS邸のケースでは基礎を新設する箇所よりも基礎を解体しなければならないところに気を遣います。一階の廊下部分と駐車スペースとの絡みがあり、一戸建て2世帯スケルトンリフォーム後に居室として使用する際にどうしても基礎の高さをさげなければならない箇所がでてくるためです。

江戸川区S様邸_補強

解体された構造体をみて、構造上ダメージがない部位のみ解体していきます。

江戸川区S様邸_補強

耐力壁となっており、2階、3階部を背負う重要な柱が合っている土台部は解体することができません。このあたりの見極めが重要になってきます。

2-3 木工事

このように解体は、建築全体を見渡しつつ、提案された新たな間取りも考えながら解体を進めていかなければならないのが、一戸建て(2世帯)スケルトンリフォームになります。壊してよいところ、壊してはいけないところ、解体する職人にもレベルが問われることになります。一戸建て(2世帯)スケルトンリフォームは、営繕工事とは違います。もちろん、キッチンやお風呂といったリフォームも排水に気を遣わう意味で熟練を要しますが、木造の一戸建て(2世帯)スケルトンリフォームは身体でいう骨格です。骨格を矯正したり変えたりするわけですから、間違った処置をしてしまったときどうなるかを考えればお分かりいただけるかと思います。木造の一戸建て2世帯スケルトンリフォームをする際は費用価格というわかりやすい指標だけで判断するのではなく、大前提として経験値の高い会社で検討することをお勧めするのはこのような理由からです。

 

S様邸の一戸建て2世帯スケルトンリフォームでは実は追加費用が発生しました。ここで追加費用に関してお話したいと思います。一戸建てのスケルトンリフォームを専門でやっておりますとお客様に、契約前に、「これ以上の費用はかかりませんよね??」と念を押されることがあります。お客様のお気持ちを考えれば当たり前です。予算があるなかで当然一戸建てスケルトンリフォームをやっているわけです。さまざまな要望を盛り込み最終金額が出ているわけで、その際に予算費用がかなり食い込んでいる場合もございます。

これ以上費用がかかったら予算がない。工事が始まって、膨大な費用を請求されないか? などなど悪徳リフォーム騒動などがありましたので心配されるのもよくわかります。

一戸建てスケルトンリフォームをされる場合、床下と天井裏などは床下収納からの点検や天井に点検口(なければ和室の天袋の上板から覗きこむなどして)から点検が可能です。この際に基礎の状況や土台の状況、雨漏れがあったのかどうか野地板の傷み具合などを目視して調査いたします。しかし、この時見えないのが壁の裏側になります。このケースは築30年以上、特に外壁の塗り替えなどをやらず、放置していた場合などに多いケースになりますが、今回の江戸川区の一戸建て2世帯スケルトンリフォームの現場を例に説明したいと思います。解体をしてみると、ザラ板(外部に面したモルタルなど左官下地になるための板材のことで、内部からみるとザラ板(ラス板)の上には防水紙としてフェルトをはり、ラス網を張り、その上に左官をします。)が腐っていました。それもかなりの数です。一過性の雨漏りではなく、施工に問題があったのがわかります。よく見てみると、霧除け(窓の上の小さい屋根のことです)の角から防水シートがちゃんと巻き込んで無ない部分から浸水し、ザラ板を傷めてしまっているのがわかりました。サッシ(窓)も同様で、サッシ(窓)の角から納めが悪い部分から浸水をしています。これは新築時の施工不良の範疇です。その他の部分、窓がない部分からもこのようなザラ板の腐食がありました。

 

これは、壁に入ったクラックを長期間放置しておいたのが原因です。

同じようにザラ板がボロボロになっています。↓

江戸川区S様邸_補強
江戸川区S様邸_補強
江戸川区S様邸_補強
江戸川区S様邸_補強
江戸川区S様邸_補強

こちらはサッシの納め方に問題があります。雨水が浸入したあとがあります。

江戸川区S様邸_補強

下の写真はクラック放置によるザラ板腐食ですが、よくこの写真のパターンでいうと、排気ダクトを付ける際に壁に穴をあけるコア抜きがあります。この部分もしっかりと雨仕舞をしないとここから浸水しザラ板を痛めるケースも何度も見てきました。(ここの現場は違います)

江戸川区S様邸_補強
江戸川区S様邸_補強
江戸川区S様邸_補強

ここまで腐食していると外壁塗装面を固定する意味をなさなくなり内側から指で押すだけで穴が開いてしまいます。

江戸川区S様邸_補強

現場調査の段階で床下、天井からの点検をするというお話をしましたが、内壁を解体するまではこのようなことはわかりません。もちろん外部までの一戸建てスケルトンリフォームであればこのザラ板も解体するのでその心配もないのでありますが、費用もかなり変わってまいります。

上記写真を見ても、結構な箇所でザラ板が腐ってしまっていることがわかります。腐食しているザラ板箇所を解体して、そこだけ補修が出来れば良いのですが、ザラ板は外壁と一体となっているので、外壁を全て落とさなくてはなりません。そうなると、費用はかなり上がってしまいます。

江戸川区S様邸_補強

S様の今回の一戸建て2世帯スケルトンリフォームプランでは、外壁は塗装仕上げ、サッシ(窓)も既存の活かせるサッシ(窓)は残してという工事プランでございましたので、S様には現場に足を運んで頂きまして腐食箇所を見て頂いて、補修方法を説明をさせて頂きました。どのような施工をするかというと内部と外部両方で対策が必要になります。

江戸川区S様邸_補強

まず、直接水が入る箇所を特定(雨の日に行って調査をし、原因となる部位を特定)して室内からは発泡ウレタンを充填します。

次に強度を失い痛んだザラ板部位に補強を加えます。

垂木に合板で補強をしていきます。

 

ここで中からの対策は終了します。

次は外部対策です。

外壁からは、クラックが直接の原因のため、クラックが入っている外壁面の補修をします。この時に注意するのは、クラックに、普通のコーキング(防水材)を塗っても薄付になってしまうため、防水効果があまり得られないということです。Vカット補修が必要になります。まずクラックにサンダーをあてV字型の溝を作ります。Vカットするのは、コーキングの打ちシロが多くなるため、防水効果が高くなるからです。

 

 

クラックに対してV型の歯を取り付けたサンダーで削っていきます。

 

 

削った後の写真です。奥にクラックがみえます。

Vカット後プライマーを塗布し、ウレタンコーキングをします。

シールの特性上、一段へこんだ状態になります。

 

 

このように、中からの処置、そして外部からの処置がともに必要になります。内部の費用については、当然追加費用という形になってしまいます。しかしながら、追加をいわず、このような処理も見逃してしまうリフォーム会社もかなり多いため、注意が必要であると言わざるをえないのが正直な感想です。壁を作ってしまえば、仕上がりは同じですが、はたしてこの先何年、住まいが維持できるでしょうか?一戸建てのスケルトンリフォームをする際は、木造の改築実績が多い会社に相談をすることをお勧めしているのはこのような点からもいえます。とても小さな事かもしれませんが、このような小さなことから欠陥につながっていくのです。一戸建てはマンションとは違います。その点を注意する必要があります。

 

解体後のザラ板補修も終わり、S様邸一戸建て2世帯スケルトンリフォームも本格的な木工事に入っていきます。家がゆがんでいる原因は過度な荷重が一部の構造材にかかっているためであり、今回の工事では、荷重の分散が大事になってきます。

江戸川区S様邸_補強

まずは材木搬入です。

江戸川区S様邸_補強

このように一階が駐車スペースであったため材木を置く場所の確保には助かりました。しばらくはこちらが加工場になります。

江戸川区S様邸一戸建て2世帯スケルトンリフォームでの木工事のポイントは2か所になります。

① 既存駐車スペースの天井高が2500しかない空間を居住スペースにしなければならない。

② 3階床の歪みを矯正する

江戸川区S様邸_補強

3階床から撮影。2階天井の梁が数回のリフォームで、荷重がかかる設計になっている。。)ここを補強します。

江戸川区S様邸_補強

この2点が要件となります。まずは3階建ての住まいに最も大事な一階の構造部であるこのわずかに中央が落ちている鉄柱に柱を立てていきます。

江戸川区S様邸_補強

1階の既存車庫スペースは、天井高が2500しか無いうえに鉄梁が横に3本走っています。この鉄梁は2階3階を支えている大切な構造材のため撤去は出来ません。そのため、一戸建て2世帯スケルトンリフォームでは居住空間としての天井高を確保しつつ梁を活かしながらのプランが必要なのはいうまでもありません。天井高を取る為に、1階の床はマンションでの床の施工方法と同じ方法を選択しました。既存の土間を活かしてフリーフロアで床を造作していきます。

江戸川区S様邸_補強

駐車スペースと廊下部分の間には布基礎がありますので、高低差を考えた柔軟なプランの作成が今回のS様の一戸建て2世帯スケルトンリフォームでは必須になります。

そして、問題の歪み補正工事に入ります。

3階の床の歪みは2階の梁を補強して矯正をかけていきます。

江戸川区S様邸_補強

荷重集中の為、沈んでしまった歪んでいる2階の梁を直すのに、2階の床よりジャッキアップをかけ、飛ばし過ぎていた2階の梁の中央(3階では最も沈んでいた部分)に新しい柱を建てて荷を分散をします。同時に側面に力板で補強もします。

江戸川区S様邸_補強

その他荷重が分散されていない箇所も間取り方で柱を立てられる部分がありましたので、S様にお話をして補強をしました。上の写真は力板を裏から見たところです。

江戸川区S様邸_補強

その他も構造上の弱い部分には新たに柱・梁を組んで補強していきます。耐力が必要なところには筋違を入れて補強していきます。

江戸川区S様邸_補強

S様邸は新築で建てられてから改築を何度かして、間取り変更していたため、部屋を広げる=柱を抜くという箇所が多かったため、随所に柱を入れていきます。

歪んでいた2階部の梁は上の写真のように荷重を分散することで、今後歪みのない住まいへと変えていきます。

江戸川区S様邸一戸建て2世帯スケルトンリフォームでは、先ほどのように、大工も1階の天井高を確保する為にかなり工夫をし構造を考えながら組んでいきましたが、設備工事でも苦労した箇所があります。最近多くなっていますが、もともと1階にあった風呂などを2階に持っていくスケルトンリフォームが非常に多いです。こちらのS様ももともと1階にお風呂がありましたが、今回の一戸建て2世帯スケルトンリフォームによりお母様が一階で生活をされるため、2階にバスルームを移設しました。通常の在来工法であれば配管等設備工事もあまり苦労することはないのですが、今回は一階に鉄梁が入り、配管経路を計画するのに大変苦労しました。同様に、駐車スペースからフリーフロアを造作したところへミニキッチンを設置するためその排水をどうとるのかなどです。電気配線も同様、1階にミニキッチンを設置の際、天井高を限界までとっているため、天井の懐が最小限になっており換気ダクトの逃げ道を鉄梁を避けて設計しなければなりません。

江戸川区S様邸_補強

上のように鉄梁に這わせて逃がす設計としました。

江戸川区S様邸_補強
2-4 耐震工事
2-5 断熱工事

構造の補修・補強が終わり、断熱材を入れる工程へ入っていきます。

ここからは内装工事になります。

江戸川区S様邸_断熱工事
江戸川区S様邸_断熱工事
江戸川区S様邸_断熱工事
江戸川区S様邸_断熱工事
2-6 外壁工事

一戸建て2世帯スケルトンリフォームも内部の大工工事を進めつつ、外部との絡みがあるサッシまわりの工事がおわると、外部の塗装工事も工程に組み込んでいきます。

江戸川区S様邸_外壁工事
江戸川区S様邸_外壁工事

1箇所1箇所養生をしていきます。塗装工事の仕上がりは、養生にも左右されますので、細部では養生の技術も要求されます。養生作業はとても大切な作業になります。

S様と外壁の色味を打ち合わせさせていただきましたが、黒っぽい色ということは漠然と決められていたのですが、当然黒系の色味もたくさんございます。

色見本帖を見て頂いておりましたが、なかなかイメージがわきづらいこともあり、さまざまな住宅の色をみていただいておりましたところ現場近くのお住まいで、『コレだ!』という色味があり、S様と一緒に監督と塗装屋を連れて実際の建物を見て調合をさせて頂きました。

 

以下がその色味を加えて再現した3Dパースのイメージです。

< 3Dイメージ >
江戸川区S様邸_施工後イメージ
< 竣工後の外観 >
江戸川区S様邸_竣工

上記木製ルーバーは、予め塗装職人に塗装をさせ、大工が加工設置します 設置後に細かい箇所を再度塗装する流れとなります。

木製ルーバーは1本4m20cmのヒバ材を防腐剤入りの色付き塗料で仕上げています。

既製品での採用も検討しましたが、住宅用ではないことと、これだけの高さになると荷重がかなりかかること、さらに費用的な問題から、弊社の大工で加工設置の案が今回のS様一戸建て2世帯スケルトンリフォームでは採用されました。

 

さて中に戻ると棟梁が構造を組み直し、補強した後は、断熱、そして内装工事に入っていきます。

ボード張り工事とクロス張り工事がメインになっていきます。

2-7 内装工事 
江戸川区S様邸_内装工事
江戸川区S様邸_内装工事

システムキッチンとカップボードは先に設置します。

江戸川区S様邸_内装工事

S様邸では対面型への変更工事となっておりましたのでシステムキッチンは対面型となっております。

江戸川区S様邸_内装工事

浴室は1階から2階への移設で、リビングから脱衣所を経由して入るプランとなり、浴室も設置されました。

江戸川区S様邸_内装工事

内装屋が入りクロスを貼る前のパテによる下地処理をしていきます。

江戸川区S様邸_内装工事
江戸川区S様邸_内装工事
江戸川区S様邸_内装工事

S様邸は既存の窓を活かす一戸建て2世帯スケルトンリフォームプランとなっており、サッシはインナーサッシで断熱性を高める提案をさせていただきました。

一戸建てのスケルトンリフォームで、一番お客様が悩まれるのが、サッシです。

サッシを変えたい。

当然誰もがそう考えます。

しかし、費用が結構掛かります。

というのも外部との絡みが発生して、外部までのスケルトンリフォームまではいかなくても、すべての壁にカッターを入れて、大工が窓枠を再度設置、そして、サッシを入れ替え、さらには外部の補修と1か所の窓でこれだけの工程が必要になります。

すべての窓をやり替えるとなると、費用も当然掛かってしまうわけです。

ここで、建物のポイントとなる箇所だけ入れ替えるお客様もいらっしゃいますし、もちろんご予算費用とのからみで、すべてを取り換えるお客様、既存サッシを残すお客様いらっしゃいます。

S様邸では、3階建てのすべてのサッシを入れ替えるとなるとかなりの費用がかさむこと、ガレージを部屋にしているため、そもそもサッシを新規で入れる箇所が発生していることから間取り上の制約のないサッシは既存を残す方針で決定。

断熱の機能は欲しいとのことで、機能重視となるインナーサッシを提案させていただきました。

江戸川区S様邸_内装工事

梱包をあけます。

江戸川区S様邸_内装工事

入っている中身を確認。必要な部材をすべて確認します

江戸川区S様邸_内装工事

実際に取り付ける場所の清掃をし汚れを徹底的に除去します。特に窓周りは砂埃が多い場所でもあります。

江戸川区S様邸_内装工事

設置に当たり、事前に採寸はしていますが、再度取り付け位置のシミレーションをします。

江戸川区S様邸_内装工事

各部材を所定の位置に仮止めしていきます。

江戸川区S様邸_内装工事

続いて縦の枠も仮に設置していきます。

江戸川区S様邸_内装工事

決まりがついた段階で、4方の枠をビスで固定していきます。

江戸川区S様邸_内装工事

枠の固定が完了した段階で、サッシをいよいよ設置します。

江戸川区S様邸_内装工事

梱包をとき、設置していきます。

江戸川区S様邸_内装工事

2枚設置します。

江戸川区S様邸_内装工事

最後に微調整を行いこれで1枚分の作業が完成します。S様邸では、このインナーサッシが10枚以上設置されました。

3 竣工

インナーサッシを設置後、いよいよ江戸川区S様の一戸建て2世帯スケルトンリフォームも完成を迎えました。

江戸川区S様邸_竣工

ガレージとして使用していたスペースを居住スペースに改築、お母様がお住まいになるお部屋です。手前6畳のお部屋と奥の4.5畳にセパレートし、奥にはベッドがおけるようにとフローリング張りの洋室4.5畳のスペースとしました。2階にメインのキッチンがあるので、お母様のお友達のご来客の際や、ちょっとしたお料理等が出来る様ミニキッチンを設置しました。

江戸川区S様邸_竣工

奥の洋間は足の調子があまりよくないお母様がベッドをご使用とのことで、畳ではなく板張りにさせていただきました。

江戸川区S様邸_竣工

2階にあがりキッチンスペース。ガスコンロの前壁の中に、3階を背負っている抜けない柱が有りキッチンは柱の位置に合わせての設置になりました。

江戸川区S様邸_竣工

キッチンはハイウィルオリジナルのトクラスのBb I型2550サイズです。商品はすべてショールームでお客様ご自身が仕様を決定されております。

江戸川区S様邸_竣工
江戸川区S様邸_竣工

キッチンの前を通り抜けていくスペースに脱衣室とバスルームになります。洗面化粧台はLIXIL エスタ 間口750サイズです。

江戸川区S様邸_竣工

ユニットバスはLIXIL キレイユ階上用 1616サイズです。主にオプションは換気乾燥暖房器です。

江戸川区S様邸_竣工

家族みんなが集まるリビングは、和室が良いとご家族の皆様の要望で、落ち着く雰囲気の和室を造りました。

江戸川区S様邸_竣工
江戸川区S様邸_竣工

サッシを変更していないので、インナーサッシも和風の商品を設置し雰囲気を合わせています。

江戸川区S様邸_竣工

3階にあがり、もともと床が沈んでいたスペースです。構造を補強、補正し、しっかりとした下地となっていますので安心してお住まいいただけます。

江戸川区S様邸_竣工

ご夫婦、お子様のお部屋2部屋はそれぞれお好きな壁紙を選んでいただきました。

江戸川区S様邸_竣工
江戸川区S様邸_竣工
江戸川区S様邸_竣工

S様一戸建て2世帯スケルトンリフォームの現場は、3階建てということで、工期も3か月以上かかっています。(ザラ板の補修で想定よりもかかりました)サッシを入れ替えていたら4か月はかかっていたボリュームの工事でした。一戸建て2世帯スケルトンリフォームということで、それぞれご家族のご要望を何度も整理し、動線計画をたてプランを作成しました。構造上での制約が当然出て参りますので、その制約を守りながら自由にプランニングすることで安心して暮らせる住まいは成り立ちます。何でもできるというのは大間違いで、一戸建てのスケルトンリフォームをする際には、1に構造、2に構造と必ず構造をしっかりと見れる工務店へ相談が必要です。構造を見れるのは、一人で家一棟を建てられる棟梁です。現在の新築の建物はプレカットですべてが刻まれて機械加工されておりますので仕口や継手を手刻みする大工はほとんどいなくなっています。しかしながら、築30年を超えるような建物は、手刻みで建てられている家が大半になってきます。このような建物を分解し、新たに補強する場合、プレカットというわけにはいかないわけです。同様に加工、補強していく技能が必要不可欠になってきます。これらに対応できる職人を組織している工務店に相談をするのがベストとなります。

S様ご家族には大変喜んでいただきました。

3 竣工

3-1 外壁 Before → After
江戸川区S様邸_施工前

サービス提供前

 

江戸川区S様邸_竣工
3-2 キッチン Before → After
江戸川区S様邸_施工前

サービス提供前

 

江戸川区S様邸_竣工

キッチンはハイウィルオリジナルのトクラスのBb I型2550サイズです。商品はすべてショールームでお客様ご自身が仕様を決定されております。

江戸川区S様邸_竣工
江戸川区S様邸_竣工
3-3 浴室 Before → After
江戸川区S様邸_施工前

サービス提供前

 

江戸川区S様邸_竣工

キッチンはハイウィルオリジナルのトクラスのBb I型2550サイズです。商品はすべてショールームでお客様ご自身が仕様を決定されております。

3-4 洗面 Before → After
江戸川区S様邸_施工前

サービス提供前

 

江戸川区S様邸_竣工

キッチンはハイウィルオリジナルのトクラスのBb I型2550サイズです。商品はすべてショールームでお客様ご自身が仕様を決定されております。

3-5 トイレ Before → After
江戸川区S様邸_施工前

サービス提供前

 

江戸川区S様邸_竣工

キッチンはハイウィルオリジナルのトクラスのBb I型2550サイズです。商品はすべてショールームでお客様ご自身が仕様を決定されております。

3-6 1階和室 Before(倉庫) → After(和室+キッチン)
江戸川区S様邸_施工前

サービス提供前

 

江戸川区S様邸_竣工
江戸川区S様邸_竣工
3-7 2階リビング Before → After
江戸川区S様邸_施工前

サービス提供前

 

江戸川区S様邸_竣工
江戸川区S様邸_竣工
江戸川区S様邸_竣工
3-8 3階 洋室 Before → After
江戸川区S様邸_施工前

サービス提供前

 

江戸川区S様邸_竣工
江戸川区S様邸_竣工
江戸川区S様邸_竣工
ハイウィルスタッフ

 担当者より ハイウィル株式会社四代目代表 稲葉高志

木造在来工法だから何でもできるというのは大間違いでして、一戸建てのスケルトンリフォームをする際には、1に構造、2に構造と必ず構造をしっかりと見れる工務店へ相談が必要です。構造を見れるのは、一人で家一棟を建てられる棟梁です。

現在の新築の建物はプレカットですべてが刻まれて機械加工されておりますので仕口や継手を手刻みする大工はほとんどいなくなっています。

しかしながら、築30年を超えるような建物は、手刻みで建てられている家が大半になってきます。

このような建物を分解し、新たに補強する場合、プレカットというわけにはいかないわけです。

同様に加工、補強していく技能が必要不可欠になってきます。これらに対応できる職人を組織している工務店に相談をするのがベストとなります。

S様ご家族には大変喜んでいただきました。

画像をクリックすると解説ページにジャンプします。

この事例と似たテーマカテゴリーを見る

全国のフルリフォーム・リノベーション『ピックアップ事例』※プロの詳細解説付きレポート

HEAT20-G2/耐震等級3
新耐震基準の性能向上リノベーション
築30年ハウスメーカー軽量鉄骨
断熱改修&リノベーション
 
中古住宅を新築以上の耐震性能と断熱性能へ!
耐震等級3フルリフォーム
地下付き木造2階建て
自然素材をつかった性能向上リノベーション&フルリフォーム

東京都文京区 K様邸

長屋を切り離して1つの構造体へフルリフォーム&リノベーション
隣家との距離がない!
部屋から外壁を張り替えるフルリノベーション
中古住宅を耐震等級3へ!
中古住宅リノベーション
 
基礎がない??
築60年の古屋をジャッキアップで基礎新設フルリノベーション

東京都渋谷区 O様邸

戸建てリノベーション・リフォームに関するお問合せはこちら

増改築.comの一戸建てリフォーム専用ホームページに
お越しいただき、誠に有難うございます。
 
増改築.comメンバーは技術集団となり、
他社のような営業マンがおりません。
技術者が直接ご相談にのり問題解決を行います。
 
従いまして、
お客様の方である程度のご要望が整理されました段階、
お悩みが工事内容のどのようなところにあるのか?
ご予算がどの程度絞る必要があるのか?
など明確になった段階でのご相談をお願いしております。
お問合せ・ご相談はお電話・メールにて受け付けております。
メールの場合は以下のフォームに必要事項をご記入の上、
「送信する」ボタンをクリックをお願いします。

代表稲葉高志

戸建てリノベーションの専属スタッフが担当致します。
一戸建て家のリフォームに関することを
お気軽にお問合せください

よくあるご質問
  • 他社に要望を伝えたところできないといわれたのですが・・・
  • 他社で予算オーバーとなってしまい要望が叶わないのですが・・・
  • サービスについて詳しく聞きたいのですが・・・

どのようなお悩みのご相談でも結構です。

あなたの大切なお住まいに関するご相談をお待ちしております。

営業マンはおりませんので、しつこい営業等も一切ございません。

設計会社(建築家様)・同業の建築会社様のご相談につきましては、プランと共にご指定のIw値及びUa値等の性能値の目安もお願い申し上げます。

2026年の大型補助金が確定したことで現在大変込み合っております。

耐震性能と断熱性能を向上させるフルリフォームには6か月~7か月の工期がかかります。

補助金獲得には年内に報告を挙げる必要があることから、お早目にご相談をお願いいたします。(6月着工までが目安

ご提案までに大変お時間がかかっております。ご了承のほどお願い申し上げます。

(5月までの着工枠が埋まりました)・・・2026/03/01更新

※すでにプランをお持ちのお施主様・設計資料をお持ちのお施主様は内容をフォームで送信後、フォーム下のメールアドレスに資料をお送りください。対応がスムーズです。

必須

(例:増改築太郎)

必須

(例:contact@high-will.co.jp)

(例:03-5615-2826)

必須

(例:東京都荒川区西日暮里2-35-1)

(例:築40年)

(例:25坪・100㎡など)

(例:2000万程度など)

  • ※再建築不可のリフォームでは金融機関が限られます。事前審査をお勧めいたします。

    (例:2024年3月くらいに完成希望など)

    必須

    できるだけ具体的にお知らせくださいませ。既存設計資料、リフォーム後のイメージ図等をお持ちであれば下記のメールアドレスより添付をお願いします。

    ※次の画面がでるまで、4~5秒かかりますので、
    続けて2回押さないようにお願いいたします。

    ※次の画面が出るまで、4〜5秒かかりますので、
    続けて2回押さないようにお願いいたします。

    図面や写真等を送信いただく場合、また入力がうまくいかない場合は、上記内容をご確認のうえ、下記メールアドレスまでご連絡ください。

    お電話でのお問合せはこちら

    0120-246-991

    営業時間:10:00~17:00(土日祝日を除く)

    ★YouTube「増改築.comチャンネル」チャンネル登録して新動画解説をいち早くGET!!★
    「増改築.comリノベ診断」であなたに一番ふさわしいフルリフォームを診断!!(動画解説付き)
    ★Facebookページにいいね!を押して最新コンテンツ情報をいち早くGET!!★
    パソコン|モバイル
    ページトップに戻る