戸建フルリフォームなら「増改築.com®」TOP > 施工事例 > 都道府県で探す > 東京都武蔵野市 > 武蔵野市・築浅2階建て|解体後に発覚した「バルコニー腐食」と、こだわりの「サウナ」設置。「制震ダンパー」×「最強断熱」で叶えた、二世帯同居の理想形(内部スケルトン)

武蔵野市・築浅小屋裏付き2階建て|解体後に発覚した「バルコニー腐食」と、こだわりの「サウナ」設置。「制震ダンパー」×「最強断熱」で叶えた、二世帯同居の理想形(内部スケルトン)

武蔵野市 H様邸

 

本プロジェクトは、武蔵野市の木造3階建て住宅(築浅)に対し、解体後に発覚した「バルコニー内部の深刻な腐食」を根本治療すると同時に、高度な「限界耐力計算」に基づく制震ダンパーの導入と、素材を使い分ける「ハイブリッド断熱」により、安心と快適を極限まで高めた二世帯住宅への再生事例です。

東京都武蔵野市。都心へのアクセスと豊かな自然が調和し、住みたい街として常に名の挙がる人気のエリア。 お施主様のH様は、将来的なご両親との「二世帯同居」を見据え、この地に建つ比較的築年数の浅い2階建て住宅をご購入されました。

一般的に、築浅の物件であれば「表層のリフォーム(クロスの張り替えや設備の交換)」で済ませるケースが多いのが実情です。 しかし、H様には妥協できない、そして決して譲れない強い想いがありました。 それは、「見た目だけの綺麗さではなく、家族の命を守り抜く『構造』と、毎日を健康かつ快適に過ごすための『断熱』を、新築の最高等級以上のレベルで実現したい」ということ。

H様ご自身も建築への関心が高く、さらにご友人の建築家の方をアドバイザーとして迎えられ、増改築.com®にご相談いただいた当初から、そのプロジェクトにかける熱量は並々ならぬものがありました。 「中途半端な工事ならやる意味がない」。その共通認識のもと始まったプロジェクト。 しかし、壁を剥がした現場には、平和な武蔵野の住宅街とは思えない、築浅物件特有の「見えない腐食」という魔物が潜んでいました。

これは、H様の理想を叶えるために、予期せぬトラブルと格闘し、ご友人の建築家の知見と、私たちの施工技術(現場力)を結集して乗り越えた、約1年にわたる再生の記録です。

建物概要
名前 H様
場所 東京都武蔵野市
築年数 築18年
構造種別 木造一戸建て2階建て
家族構成 親世帯(1人)+子世帯(大人2人 子供2人)
対象面積 35坪
リフォーム部位 内部スケルトン/耐震補強(限界耐力計算+制震ダンパー)/断熱改修(セルロースファイバー・硬質ウレタン)/バルコニー腐食是正/サウナ新設/サッシ全交換/給排水管更新
工期 10ヶ月
価格 3900万

お客様のご要望

H様からいただいたご要望は、具体的かつプロフェッショナルな視点に基づいたものでした。

  • 構造への不安解消(制震への昇華): 3階建て特有の「揺れやすさ」を懸念されており、単に壁を固めるだけでなく、揺れそのものを制御する「制震」技術を取り入れたい。

  • 二世帯同居を見据えた環境設計: 親世帯と子世帯がストレスなく暮らせるよう、上下階の生活音を遮断する「防音性」と、ヒートショックのない「温熱環境」を完備したい。
  • こだわりの設備と空間: 自宅で本格的な“ととのい”体験ができる「プライベートサウナ」の設置、デッドスペースを活かした「ロフト」、そして使い勝手を追求した造作家具。
  • 瑕疵(かし)の徹底是正: 万が一、雨漏りや腐食などの見えない欠陥があれば、費用がかかっても徹底的に直したい。

プランナー 北畠より ~プランニングのポイント~

一般的な壁量計算よりも高度な「限界耐力計算」を採用し、地震エネルギーを吸収する「制震ダンパー」を配置。さらに、天井高と断熱性能を両立させるため、屋根には「硬質ウレタン(ピンク)」、壁と階間には「セルロースファイバー」を使い分ける、適材適所のハイブリッド断熱を計画しました。

H様とご友人の建築家からのハイレベルな要求に応えるため、私たちは以下の3つの柱で戦略を立てました。

  1. 「限界耐力計算」による構造の数値化と制震: 通常のリフォームで行われる「壁量計算(壁の量だけで判断する方法)」では不十分と判断しました。 建物の変形能力までを考慮する「限界耐力計算」を実施し、地震の力をしなやかに受け流す設計を採用。これにより、最適な位置に制震ダンパーを配置し、繰り返す余震にもダメージを受けない強靭な構造体を目指しました。

  2. 断熱材の「適材適所」ハイブリッド施工: 「3階の天井を可能な限り高くし、開放感を出したい」というご要望と、「断熱等級6レベルの性能」を両立させるのは至難の業です。 そこで、屋根(天井)には薄くても圧倒的な断熱性能を持つ「アキレス・硬質30倍発泡ウレタン(ピンク)」を選定。 一方で、防音性能が求められる外壁と1階天井(2階床下)には、質量の重い「セルロースファイバー」を充填。素材の特性を使い分けることで、空間の広さと性能を最大化しました。

  3. 内部スケルトンによる「完全な可視化」: 構造と断熱を隙間なく完璧に施工するため、既存の内装・設備・断熱材を全て撤去する「内部スケルトン」方式を採用。 「そこまでやる必要があるのか?」という問いに対し、私たちは「そこまでやらなければ、本当の安心は手に入らない」と答えました。この判断が、結果としてバルコニーの腐食発見に繋がり、建物の寿命を救うことになります。

武蔵野市H様邸 戸建てリノベーション施工事例テーマカテゴリー

 

  • 二世帯住宅リフォーム
  • 中古(住宅)を買ってリフォーム&リノベーション 
  • 耐震等級3相当(上部構造評点1.5以上)リフォーム(性能向上リノベーション)
  • HEAT20-G2リフォーム(性能向上リノベーション)
  • セルロースファイバー仕様
  • 硬質ウレタン吹付断熱
  • 補助金活用リフォーム

打ち合わせから着工、完成までの詳細施工事例紹介

1 戸建てリノベーション着工前

1-1 現場調査・打合せ

最初の出会いは、まだ寒さの残る2月でした。 武蔵野市の現地でお会いしたH様は、非常に勉強熱心な方でした。そして、そのお隣にはご友人の建築家の方が同席されていました。 通常、リフォーム会社にとって「同業者の同席」は緊張するものですが、今回は違いました。 「Hさんの理想を叶えるために、専門的なサポートをしたい」という建築家の方の真摯な姿勢と、H様の「良い家を作りたい」という純粋な情熱に触れ、私たちはすぐに一つのチームになりました。

打ち合わせでは、次々と具体的なキーワードが飛び交いました。 「キッチンはTOTOのザ・クラッソか、ウッドワンのスイージーか」「リビングには床暖房を敷設したい」 そして、最大のトピックとなったのが「サウナ」です。

「自宅にサウナを置きたいんです。簡易的なものではなく、しっかりと熱くなる本格的なものを」 サウナを設置するということは、単に箱を置くわけではありません。200kg近い重量への床補強、大量の湿気に対する換気計画、そして電気容量の確保。 私たちはその場で構造図を確認し、「土間置きにするか、床を上げて補強するか」といった詳細な納まりの検討を開始しました。

また、構造についても深い議論が交わされました。 H様は当初から耐震性への不安をお持ちでした。

そこで私は提案しました。 「H様、今回は簡易的な計算ではなく、『限界耐力計算』で行きましょう。壁を固めるだけでなく、制震ダンパーを使って地震のエネルギーそのものを吸収する、最新の設計にします」 この提案にH様と建築家の方も強く賛同くださり、プロジェクトの方向性が「最高性能への挑戦」へと定まりました。

武蔵野市H様邸 既存
武蔵野市H様邸 既存
武蔵野市H様邸 既存
武蔵野市H様邸 既存
武蔵野市H様邸 既存
武蔵野市H様邸 既存

施工前の水回り

武蔵野市H様邸 既存
武蔵野市H様邸 既存
武蔵野市H様邸 既存
武蔵野市H様邸 既存

1-2. 提案:1ミリ単位の調整と「見えないインフラ」への投資

設計が進むにつれ、議論はより具体的でシビアな内容へと移行していきました。

特に頭を悩ませたのが、2階洗面室の窓の高さです。 図面上では高い位置に窓を設置したいのですが、小屋裏付きの2階建て特有の屋根形状(母屋下がり)の影響で、構造上どうしても窓の上端が制限されてしまいます。「FL(床面)+1470mmが限界です」。 これでは少し低く感じてしまうかもしれない。しかし、構造材(母屋)を削ることはできない。 そこで、H様と建築家の方と協議を重ね、電動シャッター(スマートホーム対応JEM-A端子付き)を導入することで、操作性の悪さをカバーしつつ、採光を確保する現実的な最適解を導き出しました。

さらに、私たちが強く推奨したのが「インフラの増強」です。 将来的に二世帯住宅として機能し、さらにサウナや大型食洗機を使用することを想定すると、既存の水道引き込み管(口径13mm)では、同時使用した際に水圧が弱まるリスクがありました。 「壁の中や床下は、後からいじることができません。今のうちに給水管を20mmに増径しておきましょう」

これは決して安くない追加費用がかかりますが、日々の快適性に直結する部分です。 H様は「長く住む家だからこそ、見えない部分にお金をかけるべきだ」と、この提案を即決してくださいました。

武蔵野市H様邸 リノベーション後プラン

武蔵野市H様邸 リノベーション後平面図1階

1階 リノベーション後プラン

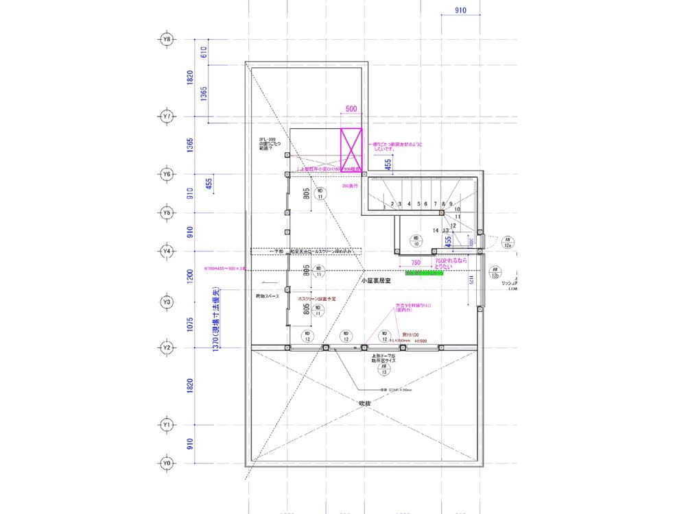
武蔵野市H様邸 リノベーション後平面図2階

2階 リノベーション後プラン

武蔵野市H様邸 リノベーション後平面図ロフト

ロフト リノベーション後プラン

こうして、お互いの信頼関係が強固に構築され、設計図面は完成しました。

しかし、いざ解体が始まり、壁の中が露わになった時、私たちの想定を超える「現実」が待ち受けていたのです。

 

2 戸建てリノベーション着工

2-1. 足場・解体:パンドラの箱が開く

近隣への挨拶を済ませ、いよいよ解体工事が始まりました。 今回は「内部スケルトン」のため、柱と梁、そして外壁を残して、内装材・設備・断熱材を全て撤去します。埃まみれになりながら進む作業の中、築18年の建物の「素顔」が徐々に露わになっていきました。

順調に進んでいたかのように見えた現場でしたが、外壁工事と並行してバルコニーの解体に着手した10月12日、現場に緊張が走りました。

▼ 解体後の衝撃:「バルコニーの腐食」

現場監督から送られてきた、解体中のバルコニー軒天(のきてん)の写真。

それを見た瞬間、私の視線は一点に釘付けになりました。

「……おかしい。補修前と後の写真を比較すると、軒天下地が黒ずんでいる。これは単なる経年の汚れや雨染みではない。木材そのものが腐っている色だ」

築浅の物件であっても、バルコニーの防水切れや施工不良による雨水の浸入は、木造住宅にとって致命傷となり得ます。

しかし、多くの現場では「予算がないから」と、腐った部分に蓋をして見なかったことにするケースも少なくありません。

私は即座に現場へ指示を飛ばしました。

「作業ストップ。これではダメだ。表面の補修で済ませたら、数年後に必ず落ちるぞ。根本的なやり替えが必要だ」

H様にもすぐに現場へ来ていただき、惨状をご確認いただきました。

腐食してボロボロになった下地木材。

「これを見て見ぬふりはできません。費用はかかりますが、下地を全て撤去し、新しい合板で作り直して、防水もやり直しましょう」 私の提案に対し、H様は不安な表情を浮かべながらも、力強く頷いてくださいました。

「徹底的にやってください。見えない爆弾を抱えたまま住むのは嫌ですから」 この英断により、H様邸は倒壊のリスクから救われました。バルコニーは下地から新設され、完全な止水ラインを取り戻したのです。

大事な構造部のすべてが目視可能となるスケルトンリフォーム

内部の天井・壁・床だけでなく外壁まで解体しスケルトン状態(躯体残し)にする戸建てリノベーションの最大のメリットはこのような重要な主要構造部のすべての状態が目視でわかることになります。

フルリノベーション後は、これらの構造上の弱点をすべて修正し補強することで新築と同水準、もくしくはそれ以上の建物性能をもつ構造躯体へ甦らせることが可能となります。

2-2 基礎

腐食の問題を解決し、次は建物の足元、基礎の補強です。 解体後の調査で、既存の布基礎の一部に強度が不足している箇所が見つかりました。 また、今回のリノベーションでは間取りを大きく変更するため、新たな「耐力壁(たいりょくへき)」が必要になりますが、その壁の下に基礎がない箇所がありました。

  • 添え基礎(抱き合わせ補強): 既存の基礎に寄り添わせるように、鉄筋を組んでコンクリートを打設。一体化させることで強度を回復させました。

  • 基礎新設: 新たな耐力壁の下には、その荷重を支えるための基礎を新設。 これにより、上部構造の重さと地震の力を、確実に地面へと逃がす盤石な土台が完成しました。

武蔵野市H様邸 基礎
武蔵野市H様邸 基礎
武蔵野市H様邸 基礎
武蔵野市H様邸 基礎
武蔵野市H様邸 基礎
武蔵野市H様邸 基礎
武蔵野市H様邸 基礎
武蔵野市H様邸 基礎
武蔵野市H様邸 基礎
2-3. 木工事(構造補強):「限界耐力計算」と「制震」の融合

ここからが、大工の腕の見せ所であり、今回のプロジェクトの技術的なハイライトです。 H様邸の構造補強は、一般的なリフォームとは次元が異なります。

  • 限界耐力計算による「制震」設計 今回は、高度な構造計算手法である「限界耐力計算」を採用しています。これは、建物が地震で「どれくらい変形するか」までをシミュレーションする手法です。 この計算に基づき、私たちは鮮やかなオレンジ色の「制震ダンパー」を構造躯体内の最適な位置に設置しました。 ただ硬く固める「耐震」に加え、ダンパーが地震のエネルギーを熱に変えて吸収する「制震」機能を付加することで、繰り返す余震にもダメージを蓄積しない、しなやかで強い構造体を実現しました。

  • 金物の全数是正とノボパン施工 さらに、柱と土台を繋ぐ「柱頭柱脚金物(ちゅうとうちゅうきゃくかなもの)」も、計算結果に基づいて高強度のものへ全数交換。 壁には、構造用パーティクルボード**「ノボパンSTP II」**を施工。筋交いだけでなく、壁全体で力を受け止める「面構造」とすることで、耐震等級3相当以上の強度を確保しました。

 

腐食というマイナスからのスタートでしたが、それを補って余りある最先端の補強により、H様邸の骨格は新築時以上に生まれ変わりました。

武蔵野市H様邸 木工事
武蔵野市H様邸 木工事
武蔵野市H様邸 木工事
武蔵野市H様邸 木工事
武蔵野市H様邸 木工事
武蔵野市H様邸 木工事
武蔵野市H様邸 木工事
武蔵野市H様邸 木工事
武蔵野市H様邸 木工事
2-4. 断熱工事:天井高と性能を両立させる「ピンク」の正体

「3階の天井高を確保したい」というご要望と「断熱等級6」を両立させるため、屋根断熱には薄くても高性能な「硬質30倍発泡ウレタン(ピンク)」を、壁と階間には防音性に優れた「セルロースファイバー」を使い分ける、究極のハイブリッド断熱を実行しました。

構造の強さを確保した後は、住み心地を左右する「温熱環境」の構築です。

ここで私たちは、断熱材の選定において「ある重要な決断」を行いました。

  1. 屋根断熱:なぜ「黄色」ではなく「ピンク」なのか?                                                                                                      H様の強いご要望は「3階の天井を高くし、開放的な空間にしたい」ということ。 通常、私たちが標準採用している「セルロースファイバー」で最高等級の断熱性能を出そうとすると、天井裏に250mm以上の厚みが必要となり、その分、天井高が下がってしまいます。 そこで採用したのが、「硬質30倍発泡ウレタンフォーム(通称:ピンク)」です。

    • 【プロの視点】ここが違います: 建売住宅などで安価に使われる「100倍発泡ウレタン(黄色)」は、柔らかく、湿気を通しやすい性質があります。屋根断熱でこれを使うと、内部結露のリスクが高まります。 対して今回採用した「30倍発泡」は、プラスチックのように硬く、湿気を通しにくいうえ、断熱性能が圧倒的に高いため、薄い厚みでも必要な性能を確保できます。 コストは上がりますが、天井高を犠牲にせず、夏場の焼け込み(輻射熱)を防ぐには、この「ピンク」一択でした。

  2. 壁・階間:セルロースファイバーによる「静寂」 一方、壁と1階天井(2階床下)には、新聞紙をリサイクルした木質繊維断熱材「セルロースファイバー」を採用しました。

    • 壁(120mm): 柱の厚み一杯までパンパンに充填し、断熱欠損をゼロに。

    • 階間(250mm): 二世帯住宅の課題である「上下階の音」を消すため、2階床下に異例の厚さである250mmを充填。断熱材としてだけでなく、強力な「吸音材」として機能させました。

  3. 床:ミラネクストラムダ 75mm 1階の床下には、フェノールフォーム断熱材の最高峰「ミラネクストラムダ」を75mm厚で施工。さらに気密テープと防湿シートで処理し、地面からの冷気を物理的にシャットアウトしました。

【屋根断熱】

武蔵野市H様邸 断熱工事
武蔵野市H様邸 断熱工事
武蔵野市H様邸 断熱工事
武蔵野市H様邸 断熱工事
武蔵野市H様邸 断熱工事
武蔵野市H様邸 断熱工事

【壁断熱】

武蔵野市H様邸 断熱工事
武蔵野市H様邸 断熱工事
武蔵野市H様邸 断熱工事

【床断熱】

武蔵野市H様邸 断熱工事
武蔵野市H様邸 断熱工事
武蔵野市H様邸 断熱工事
2-5. 外壁・サッシ工事:機能美とインテリジェンス

全ての窓を最新の「断熱サッシ」へ交換し、塗り壁「ジョリパット」で意匠を一新。さらに、構造上の制約があった窓には「IoT対応電動シャッター」を導入し、不便さをテクノロジーで解決しました。

  • サッシ全交換と電動化の工夫 既存のアルミサッシは全て撤去し、高断熱サッシへ交換しました。 設計段階で課題となっていた「2階洗面室の窓」は、屋根勾配の影響で高い位置に設置できませんでしたが、スマートホーム対応(JEM-A端子付)の電動シャッターを採用することで、スイッチ一つ(またはスマホ)で開閉可能に。手が届きにくいストレスを解消しました。

  • 外壁ジョリパット仕上げ 外装は、意匠性の高い塗り壁材「ジョリパット」で仕上げました。 職人の手仕事による独特のテクスチャが、光の当たり方で様々な表情を見せ、武蔵野の街並みに調和する上品な佇まいを実現しました。

武蔵野市H様邸 外壁工事
武蔵野市H様邸 外壁工事
武蔵野市H様邸 外壁工事

武蔵野市H様邸 断熱データ

場所 製品 断熱グレード
床断熱材 押出法ポリスチレンフォーム ミラフォームラムダ F(熱伝導率0.022W/(m・K))

壁断熱材

天然木質繊維系セルロースファイバー ファイバーエース C(熱伝導率0.040W/(m・K))
天井断熱材

発泡硬質ウレタンフォーム アキレスエアロンFR-FO

F(熱伝導率0.026W/(m・K))
玄関ドア YKKAP イノベストD50 防火 A(ZEHレベル)
サッシ

YKKAP APW330 防火 樹脂窓

S~A(ZEHレベル)

HEAT20-G2リフォームとは?

<HEAT20とは?>

HEAT20とは、「2020年を見据えた住宅の高断熱化技術開発委員会」という団体名です。

その団体が設定しているのが、屋根や外壁、床、窓などの「外皮」と呼ばれる部位の断熱や遮熱などといった性能の評価基準であり、G1とG2の2段階あります。G2の方がより高性能な性能を有する外皮となっています。

<省エネ基準の家とHEAT20の家の違い>
省エネ基準の家とHEAT20の家の違い

HEAT20-G2の家は、省エネ基準の家の30~50%の暖房費を削減できる

 

「増改築.com®」によると、断熱リフォームの基準として、平成28年の建築物省エネ法基準に相当するUa値0.87が等級4(最高等級)とされています。しかし、この基準だけでは、真の省エネ住宅とは言えません。実際に、日本の断熱等級4は、2020年の建築基準法で努力義務とされているに過ぎません。しかし、2022年4月には断熱等級5が新設され、さらに2022年10月には断熱等級6・7が新設されました。断熱等級6・7は、これまでの断熱等級4と比べて、はるかに高いレベルの断熱性能が求められます。 HEAT20の計画においては、ZEH基準のUa値0.6を基準としています。これは、外壁105mm、U値2.33の樹脂アルミ複合サッシ窓で、天井の断熱材は105mmあれば実現できるとされています。さらに上位の「HEAT20 G1」グレードでは、6地域でUa値0.56となり、このレベルでは断熱環境を体感できるとされています。

最上位の「HEAT20G2」グレードでは、5地域でUa値0.46となっています。

断熱改修(温熱改修)リフォームを成功させるためには、これらの基準や計画をしっかりと理解し、適切な施工方法を選択することが重要となります。

2-6. 造作工事:夢の「サウナ」と、現場対応の「ロフト」

H様悲願の「プライベートサウナ」を構造補強の上で設置。また、ロフトのカウンターは既製品のコスト高を回避するため、現場造作へ切り替える柔軟な対応で、予算内で理想を実現しました。

  • プライベートサウナの設置 H様が最も楽しみにされていたサウナ。これは単なる家具ではありません。総重量200kg近い設備を置くため、設置場所の床下には追加の補強を行いました。 電気配線、換気計画もサウナメーカーの仕様に合わせて完璧に準備。自宅にいながら本格的な“ととのい”体験ができる、贅沢な空間が完成しました。

  • ロフトカウンターのコストダウン作戦 工事終盤、ロフトに設置する大型カウンターと掘りごたつ。 当初予定していたパナソニックのオーダー家具で見積もりを取ったところ、想定以上に高額になってしまいました。 そこで、H様、建築家、そして現場監督による緊急作戦会議が開かれました(12月18日)。 「オーダーはやめましょう。現場で作りましょう」 大工がシナランバーと白ポリランバーを加工し、奥行き700mm×幅1100mmの特大カウンターを現場造作。 結果、見た目も機能も遜色なく、コストを大幅に圧縮することに成功しました。これは、既製品に頼らない高い技術力を持つ職人がいるからこそできる「技」です。

武蔵野市H様邸 造作工事
武蔵野市H様邸 造作工事
2-7 板金工事:機能美と「職人技」の結晶

玄関周りには板金職人の手仕事による「オリジナル庇(ひさし)」を回し、既製品にはない唯一無二の品格を与えました。

 

  • 【特注】玄関を囲う「板金オリジナル庇」 建物の顔となる玄関周りには、既製品の庇(ひさし)をポン付けするのではなく、板金工事による「完全オリジナルの庇」を製作しました。 板金職人が現場で寸法を測り、金属をミリ単位で加工して、玄関周りをぐるりと一周囲うようにデザイン。 シャープな金属のラインが、温かみのあるジョリパットの壁面にモダンなアクセントを加え、H様邸だけの特別な「顔」を創り出しました。

Before

武蔵野市H様邸 板金工事前

After

武蔵野市H様邸 板金工後

3 戸建てリノベーション竣工

完成した住まいは、単に設備が新しくなっただけでなく、「限界耐力計算」と「ハイブリッド断熱」によって裏付けされた絶対的な『安全性』と『快適性』を手に入れ、ご家族の新しい物語を紡ぐ最高の舞台となりました。

幾多の困難を乗り越え、足場が外れた時、そこには武蔵野の街並みに映える、生まれ変わったH様邸の姿がありました。


  =外観==  

塗り壁「ジョリパット」の上品な質感が、建物の品格を高めています。 かつて内部腐食が発覚し、私たちを震撼させたバルコニーは、下地から完全に作り直されました。見た目の美しさ以上に、「中身が新品である」という事実が、H様に何よりの安心感を与えています。

Before

武蔵野市H様邸 既存外観

After

武蔵野市H様邸 竣工外観

家の形は変えずに外壁と特注の庇で現代的な外観に生まれ変わりました

武蔵野市H様邸 竣工
武蔵野市H様邸 竣工

外壁はジョリパット左官仕上げ

武蔵野市H様邸 既存

玄関ドアはYKKAPイノベストD50防火ドア


  == LDK・サウナ ==  

玄関ドアを開けた瞬間、外の喧騒がふっと消える静寂。セルロースファイバーによる高い防音効果です。 広々としたLDKは、床暖房と断熱材の相乗効果で、足元からじんわりと暖かい空間に。 そして、H様こだわりの「プライベートサウナ」。 自宅の一角に設けられたその空間は、日々の疲れを癒やす極上のサンクチュアリとなりました。構造計算済みの床が、重量級の設備をしっかりと支えています。

Before

施工前は壁ありの対面キッチンLDKでした

After

武蔵野市H様邸 竣工

施工後はオープンなⅡ型キッチンLDKに変更

武蔵野市H様邸 竣工

キッチンの上にはロフト

武蔵野市H様邸 竣工

LDKの一角には小上がりの畳スペース

武蔵野市H様邸 竣工

H様こだわりのサウナ

武蔵野市H様邸 竣工

  == 構造・断熱(見えない部分) ==  

壁の中にはオレンジ色の「制震ダンパー」が、天井裏には「ピンクの硬質ウレタン」が、そして床下には「最強の断熱材」が潜んでいます。 これらはもう目に見えませんが、地震が来た時、猛暑の日、極寒の夜に、その真価を静かに発揮し続けます。

武蔵野市H様邸 竣工

LDKの半分は吹き抜け。勾配天井に発泡硬質ウレタン吹付断熱を施しました

武蔵野市H様邸 竣工

外壁面には吸音・調湿効果のあるセルロース断熱

武蔵野市H様邸 竣工

床下は高性能な押出法ポリスチレンフォーム断熱材


  == 水まわり ==  

Before

武蔵野市H様邸 既存

施工前はタイル張りの在来工法浴室でした

After

武蔵野市H様邸 竣工

新しいお風呂はTOTOサザナ

武蔵野市H様邸 竣工

Ⅱ型キッチンはウッドワンのフレームキッチン

武蔵野市H様邸 竣工

キッチンタイルは平田タイルの「セドル」

武蔵野市H様邸 竣工

洗面台はTOTOオクターブライト

武蔵野市H様邸 竣工

トイレはTOTOハイウィルオリジナルトイレ

4 補助金利用

武蔵野市H邸の工事では、国の補助金「子育てエコホーム支援事業」と「先進的窓リノベ事業」、東京都補助金「既存住宅における省エネ改修促進事業」を併用活用しました。

どちらも省エネにつながるエコ住宅設備や、断熱性能の高い断熱材・ドア・窓の設置などに対して交付される補助金です。

 

H様邸の補助金対象工事

エコ住宅設備の設置 給湯器(エコジョーズ)、高断熱浴槽、節水型トイレ、節湯水栓
断熱改修 外壁・床・天井の断熱材、断熱窓、断熱ドア ※東京都補助金併用箇所
子育て対応改修 ビルトイン自動調理対応コンロ、掃除しやすいレンジフード、ビルトイン食洗器、浴室乾燥機

 

武蔵野市H様邸工事で交付された補助金額:2,307,000円(国+東京都)

5 担当者より
(「増改築.com®」本部ハイウィル株式会社四代目代表稲葉高志)

今回の成功は、H様の「本物を求める情熱」と、ご友人の建築家の「的確な監理」、そして私たちの「現場力」が三位一体となって初めて成し遂げられた、リノベーションの理想形です。

H様、この度は大切な住まいの再生を私たちにお任せいただき、本当にありがとうございました。

振り返れば、約1年にわたる長い道のりでした。 最初の出会いから、H様とご友人の建築家の方の熱量の高さに、「これは生半可な気持ちでは取り組めない」と身が引き締まる思いでした。

特に印象に残っているのは、やはり「バルコニー腐食」が見つかった時のことです。 現場監督から写真が送られてきた時、私は迷わず「やり直しましょう」と言いましたが、それは工期の遅れや費用の増額を意味します。 しかし、H様は私の提案を信じ、即座に決断してくださいました。

あの瞬間のH様の勇気が、この家の未来を救ったのです。

また、屋根断熱における「ピンクのウレタン」の採用や、ロフトカウンターの現場造作変更など、現場で膝を突き合わせて解決策を練り上げた日々は、私にとっても建築屋冥利に尽きる時間でした。

完成したサウナで、H様が至福の時を過ごされている姿を想像すると、私も嬉しくなります。 「限界耐力計算」で守られたこの家で、ご両親様、ご家族皆様と、末永く、健やかに、そして暖かくお過ごしください。

他のリフォーム事例を見る

基礎屋さんのお宅の基礎補強
二世帯住宅フルリフォーム

リノベーション
隣家との距離がない!
部屋から外壁を張り替えるフルリノベーション
中古住宅を耐震等級3へ!
中古住宅リノベーション
基礎がない??
築60年の古屋をジャッキアップで基礎新設フルリノベーション

東京都渋谷区 O様邸

戸建てリノベーション・リフォームに関するお問合せはこちら

増改築.comの一戸建てリフォーム専用ホームページに
お越しいただき、誠に有難うございます。
 
増改築.comメンバーは技術集団となり、
他社のような営業マンがおりません。
技術者が直接ご相談にのり問題解決を行います。
 
従いまして、
お客様の方である程度のご要望が整理されました段階、
お悩みが工事内容のどのようなところにあるのか?
ご予算がどの程度絞る必要があるのか?
など明確になった段階でのご相談をお願いしております。
お問合せ・ご相談はお電話・メールにて受け付けております。
メールの場合は以下のフォームに必要事項をご記入の上、
「送信する」ボタンをクリックをお願いします。

代表稲葉高志

戸建てリノベーションの専属スタッフが担当致します。
一戸建て家のリフォームに関することを
お気軽にお問合せください

よくあるご質問
  • 他社に要望を伝えたところできないといわれたのですが・・・
  • 他社で予算オーバーとなってしまい要望が叶わないのですが・・・
  • サービスについて詳しく聞きたいのですが・・・

どのようなお悩みのご相談でも結構です。

あなたの大切なお住まいに関するご相談をお待ちしております。

営業マンはおりませんので、しつこい営業等も一切ございません。

設計会社(建築家様)・同業の建築会社様のご相談につきましては、プランと共にご指定のIw値及びUa値等の性能値の目安もお願い申し上げます。

2026年の大型補助金が確定したことで現在大変込み合っております。

耐震性能と断熱性能を向上させるフルリフォームには6か月~7か月の工期がかかります。

補助金獲得には年内に報告を挙げる必要があることから、お早目にご相談をお願いいたします。(6月着工までが目安

ご提案までに大変お時間がかかっております。ご了承のほどお願い申し上げます。

(5月までの着工枠が埋まりました)・・・2026/03/01更新

※すでにプランをお持ちのお施主様・設計資料をお持ちのお施主様は内容をフォームで送信後、フォーム下のメールアドレスに資料をお送りください。対応がスムーズです。

必須

(例:増改築太郎)

必須

(例:contact@high-will.co.jp)

(例:03-5615-2826)

必須

(例:東京都荒川区西日暮里2-35-1)

(例:築40年)

(例:25坪・100㎡など)

(例:2000万程度など)

  • ※再建築不可のリフォームでは金融機関が限られます。事前審査をお勧めいたします。

    (例:2024年3月くらいに完成希望など)

    必須

    できるだけ具体的にお知らせくださいませ。既存設計資料、リフォーム後のイメージ図等をお持ちであれば下記のメールアドレスより添付をお願いします。

    ※次の画面がでるまで、4~5秒かかりますので、
    続けて2回押さないようにお願いいたします。

    ※次の画面が出るまで、4〜5秒かかりますので、
    続けて2回押さないようにお願いいたします。

    図面や写真等を送信いただく場合、また入力がうまくいかない場合は、上記内容をご確認のうえ、下記メールアドレスまでご連絡ください。

    お電話でのお問合せはこちら

    0120-246-991

    営業時間:10:00~17:00(土日祝日を除く)

    ★YouTube「増改築.comチャンネル」チャンネル登録して新動画解説をいち早くGET!!★
    「増改築.comリノベ診断」であなたに一番ふさわしいフルリフォームを診断!!(動画解説付き)