戸建フルリフォームなら「増改築.com®」TOP > 施工事例 > 都道府県で探す東京都 > 台東区 >  施工事例 N様 再建築不可のフルリフォーム&リノベーション

再建築不可のフルリフォーム(スケルトンリフォーム)耐震等級3相当 施工事例

神戸市N様邸_TOP

 

N様は、1年前から1人暮らしだった旦那様のお母様との同居を決められ、ご実家である東京都台東区の木造戸建物件のフルリフォームをご検討されました。

再建築不可エリアのお家のため建替えはできず、また昔からの不満であったお日様の光で洗濯物が干せる屋上スペースをこの機会にカタチにして欲しい。。。この一年間インターネットで情報を集める中で増改築.comを参考にしており、正式にご相談いただくことになりました。

建物概要
名前 N様
場所 東京都台東区
築年数 築46年
構造種別 木造戸建
家族構成 ご夫婦とおばあちゃんの3人家族
対象面積 28.5坪
リフォーム部位 ベタ基礎/防蟻・防腐自然木炭コーティング/間取変更/断熱サッシ取替/外壁サイディング/屋上防水/屋根葺き替え
工期 5ヶ月
価格 2600万(税別)※施工当時の金額です

お客様のご要望

今回のリフォームで、N様からのご要望は以下の3点です。

  • 二世帯が使いやすい間取りにしてほしい。
  • 住宅密集地のため、屋上に洗濯物を干せるスペースを作りたい
  • 以前近隣でシロアリ被害があったので、しっかりとした防蟻対策をしてほしい

お母様と仲良しのご近所のご親戚のお宅が3年前に新築されたそうですが、その時に主要構造部の柱が悉く白蟻被害にあっていたそうです。同じくらいの築年数の木造戸建てだったので、フルリフォームするなら白蟻対策をしっかり整えて欲しいとのご要望をいただきました。

プランナー 北畠より ~プランニングのポイント~

N様は、1年以上前から増改築.comをご覧いただき、お問合せをいただきました。台東区の寺町周辺では住宅が密集している傾向があります。そのため、再建築不可物件が多く、建替えしたくてもできない等ご要望がたくさん寄せられています。

解体後に分かりましたが、N様邸はもともと建てた大工さんが丁寧な施工をしており、築30年以上の物件にありがちな家の傾きが少なく、当時としては珍しいベタ基礎工法のため、主要構造部の腐食が少ないお家であったといえます。

ただ、一方でこれから長くお住まいされることを想定されおり、今回スケルトンにまで解体するこのタイミングにしかできない白蟻対策を施して欲しいというご要望にお応えする必要がございました。

住宅密集地であることから、お隣との間隔が狭く、壁面に窓があっても十分に採光がとれておらず、この点がポイントでした。

以前から当サイトの埼玉県新座市O様邸の事例に注目しておられ、金属防水工法による3階屋上化の可否をお考えになられていました。

 

東京都台東区N様邸 戸建てリノベーション施工事例テーマカテゴリー

 

  • 2世帯住宅リフォーム
  • 内外部スケルトンリフォーム

打ち合わせから着工、完成までの詳細施工事例紹介

  ▼  CONTENTS  ▼  

2 着工

 2-1 足場・解体

 2-2 基礎

 2-3 大工工事

 2-4 屋根

3 竣工

 

4 担当者より

1 着工前

1-1 現場調査・打合せ
神戸市N様邸_既存

既存外観

神戸市N様邸_既存

東京都台東区でも築50年前後の物件がところ狭しとひしめくエリアです。物件と前面道路の接道が2mしかとれていないことから、再建築不可物件に該当しました。

 

当初から目安の工期は5カ月を要することをご提案。

お母様も一度旦那様が現在お住まいのマンションにお引越しいただきました。


神戸市N様邸_既存

既存リビング

神戸市N様邸_既存

各部屋に窓はあるものの室内の陽当たりは全体的に悪い物件でした。湿気がこもることで、お母様が懸念されている白蟻増殖が予想されることもあり、この陽当たり確保については、ご提案のしどころと考えました。

神戸市N様邸_既存

既存階段


神戸市N様邸_既存

既存の在来浴室

神戸市N様邸_既存

既存洗面室

神戸市N様邸_既存

築45年でトイレのリフォームは一度もしていないとのこと。ただ、お母様のお手入れが素晴らしく、築45年とは思えない状態をキープされていました。リノベーション後も大切にお住まいいただけると思い、嬉しくなりました。


神戸市N様邸_既存

既存キッチン

神戸市N様邸_既存

屋根も45年前の金属屋根のままです。これまで雨漏りも確認されていませんが、ベランダスペースが狭く、洗濯物やお布団を思うように干せないのが、長年のお悩みでした。

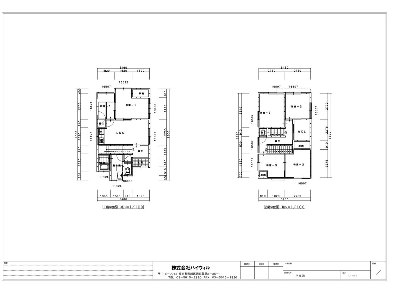
1-2 東京都台東区N様邸 戸建リノベーションプラン
神戸市N様邸_既存平面図

 既存平面図(1階と2階)

神戸市N様邸_既存平面図

▲ 既存平面図(屋上)

矢印
神戸市N様邸_新規平面図

新規平面図(1階と2階)

神戸市N様邸_新規平面図

新規平面図(屋上)

神戸市N様邸_シロアリ被害

台東区の別の物件でのシロアリ被害

シロアリ対策に「炭」の効果

写真は同じく東京都台東区の物件での柱です。

白蟻被害でここまでボロボロの状態に。耐震性も全くない危険な状態です。
現状に問題がなくても、しっかりとした対策を整えましょう。

N様からの懸念事項として挙がっていました白蟻対策として、弊社では「防蟻・防腐木炭コーティング」をご提案させていただきました。
従来まで主流であった毒性の強い白蟻防腐剤を使用すると、白蟻には対策にはなるかもしれませんが、小さなお子様やペットに健康被害がでることもり、本末転倒となってしまいます。

木炭コーティングは、元々、抵抗力の弱いお子様達が通う幼稚園や保育園、ご老人の介護施設や老人ホームで採用されている工法を木造戸建に応用した工法であり、優れた防蟻・防腐効果を持ちながら、公的機関にて人や環境に対する高い安全性も確認されています。

2 着工

2-1 足場・解体
神戸市N様邸_解体

仮設足場を架けていきます。

 

お家の四方全ては、お隣さんとのスペースが狭く、設置できませんでしたが、一面だけは足場スペースを確保。基本的に足場は境界スペースに45㎝のスペース以上が必要となります。高所作業はこちらの足場面を起点に行うことになります。

神戸市N様邸_解体

着工から2週間をかけて建具⇀水まわり⇀壁⇀床と解体し、産業廃棄物として搬出。スケルトンリフォームのファーストステップです。

神戸市N様邸_解体

驚きだったのは築45年であまり主要構造部である柱や土台部分が腐食していなかったこと。この要因としては、当時としては珍しい、基礎部分全体をコンクリート打ちするベタ基礎工法を採用しており、湿気対策がなされていたことが考えられます。通常のこの年代の物件の基礎は柱や土台面のみ基礎打ちする布基礎仕様が一般的であり、地面からの湿気で経年劣化による腐食、あるいは白蟻被害が起きやすくなります。

神戸市N様邸_解体

2階部分の梁や柱もスケルトンに。新築された折の大工さんは亡くなったお父様のご友人だったとのこと。基礎部分もそうですが、高い技術力で丁寧さが見て取れると共に、40年先、50年先を見越した仕事をされておられました。その想いを引き継げるように、我々も最善を尽くさせていただきます。

2-2 基礎
神戸市N様邸_基礎

基礎工事の様子です。コンクリート打設前の配筋をしていきます。

神戸市N様邸_基礎

排水の逃げ配管を行います。

神戸市N様邸_基礎

コンクリート打設完了。

シロアリ対策の炭コーティング

神戸市N様邸_基礎

基礎工事の段階で「防蟻・防腐木炭コーティング」を施します。

神戸市N様邸_基礎

神戸市N様邸_基礎

木炭コーティングはベタ基礎部分に広範囲に施すことで白蟻の侵入はもちろん、生息をブロックし、基礎の上に乗せる土台と柱の連結部にも念を入れて施します。これによって、万全な白蟻・防腐対策を整えます。

2-3 大工工事
神戸市N様邸_大工工事

既存の柱の中でも状態の良いものを残しつつ、新しい柱や梁を入れて耐震性を高めます。大工さんの中でも20代30代の若手は基本的に新築しか経験しておらず、スケルトンのフルリフォームの経験に乏しい傾向があります。N様邸を担当いただいた大工さんは、寺社仏閣の伝統的日本建築造作の経験もある50代と60代の一流大工さんチームで進めさせていただきました。

神戸市N様邸_大工工事

外壁の下地となる大工造作工事はもちろんのこと、給水・給湯・排水の配管工事も同時進行で必要箇所に収めていきます。

神戸市N様邸_大工工事

足場が入った一面は外壁の下地造作もこの通り。足場が入らなかった面は内側からの補強で進めさせていただきました。

神戸市N様邸_大工工事

大工工事と並行して壁面の窓サッシの取付も行います。基本的には柱と柱のピッチを1.8m以上にならない範囲で、採光と通気を確保します。

神戸市N様邸_大工工事

当社のおすすめは断熱性はもちろんのこと、フレームの施工に汎用性が高いYKK.APのサッシを採用させていただいております。

神戸市N様邸_大工工事

屋上に上がるための塔屋ももちろん大工工事の中で新設させていただきました。但し、低層が義務付けられているエリアで、規定の高さを超えてしまうと違法建築となるので注意が必要です。N様邸は第二種中高層エリアに該当していたため、問題なく進めさせていただきました。

2-4 屋根
神戸市N様邸_屋根工事

屋根はおすすめの断熱材付きガルバニウム鋼板屋根です。近年の夏の酷暑はもはや毎年のことになりそうですね。そういう意味でも断熱性の高い屋根材をご選択いただくことは定番になっています。瓦に比べ、施工もスピーディです。

神戸市N様邸_屋根工事

洗濯物スペースの確保のために、屋根にフラット防水を施した屋上防水をご提案させていただきました。

神戸市N様邸_屋根工事

外部からだけでの補強を目指しましたが、玄関の突き当り部分、階段の上がり面に、構造計算上どうしても6.3倍の耐力壁が必要であることから、室内への設置もしていきます。

地震にも強い特殊金属防水加工

当社が推奨している屋上防水工法が、特殊金属防水工法です。

例えば地震が起こった場合、従来工法では防水が割れて雨漏りの原因となります。一方、特殊金属防水工法は、防水のまわりだけでなく、一定のピッチで排水路を確保しており、地震が起きても、防水が一緒に動くことで、圧倒的な耐久性を実現しています。

神戸市N様邸_屋根工事

この屋上防水工事を利用して、天井からダイレクトに採光がとれる天窓を設置させていただきました。

神戸市N様邸_屋根工事

よく天窓だけのリフォームをご要望いただくことがありますが、こちらは防水工事が密接に関係しており、N様のようなスケルトン状態からのフルリフォームでこそおすすめのオプションです。完成後この天窓からどのような室内空間が演出できるか、楽しみにしていただきました。

3 竣工

約5か月の工事を経て、いよいよ竣工です。

生まれ変わったN様邸の様子をご紹介します。


  =外壁 ==  

神戸市N様邸_竣工

新規外壁はサイディング仕上げです。

神戸市N様邸_竣工

玄関扉は落ち着いた木調テデザインを採用。開け閉めが比較的軽いYKKの開き戸を採用させていただきました。

Before
神戸市N様邸_既存

 

サイディング外壁は耐久性と断熱性を高レベルで実現するKMEWさんの長石Ⅱを採用させていただきました。

コストを抑える場合、あるいは外壁を残した内部スケルトンの場合は、塗装のモルタル仕上げをご提案させていただきますが、塗り替えの頻度がモルタルの場合は10年~15年目安になるところ、サイディングであれば、20年~25年目安となります。これから50年以上住むことを想定されるのであれば、サイディングがおすすめです。


  == 1F 玄関 ==  

神戸市N様邸_竣工

あかり取り兼用のステンドグラスが素敵ですね。

神戸市N様邸_竣工

玄関には収納力豊富なシューズボックスを設置。姿見付きでお出かけ前のファッションチェックも完璧です。


  == 1F LDK ==  

神戸市N様邸_竣工

リビングの奥はお母様の和室です。

神戸市N様邸_竣工

和室の建具は襖ではなく片引き半透明デザインをご提案。圧迫感が少なく、現代和風のイメージで完成するため、人気の商品です。もちろん段差のないバリアフリーとなっています。

神戸市N様邸_竣工

お母様のご希望で和室もリフォームさせていただきました。

神戸市N様邸_新規平面図
Before
神戸市N様邸_既存

既存リビング

Before
神戸市N様邸_既存

リビングの奥のダイニング


  == 1F 水まわり ==  

神戸市N様邸_新規平面図

Before

神戸市N様邸_既存

既存キッチン

神戸市N様邸_既存

既存浴室

神戸市N様邸_既存

既存洗面室

神戸市N様邸_既存

既存トイレ

キッチン
神戸市N様邸_竣工

リクシルのシステムキッチン「シエラ」をお選びいただきました。空間を有効活用できるL型タイプでご提案させていただきました。お母様と奥様で楽しく使っていただければと思います。

浴室
神戸市N様邸_竣工

リクシルの戸建用ユニットバスルーム「アライズ」をご選定。くるりんポイ排水口はお掃除が簡単で奥様方に人気の標準仕様です。

洗面室
神戸市N様邸_竣工

リクシルのシステム洗面化粧台「ピアラ」です。壁面に蛇口がついているため、シンクを広く使え、お掃除もラクラクです。洗濯機上のデットスペースを想定して、収納棚も設置させていただきました。洗剤や洗濯籠を置いてくださいね。

トイレ
神戸市N様邸_竣工

トイレはリクシル「アメージュ」をチョイス。節水タイプでお財布にも優しいトイレです。


  == 階段・廊下 ==  

神戸市N様邸_新規平面図
神戸市N様邸_竣工

階段や廊下はパナソニックのベリティスシリーズでカラーを統一。手摺は1.5mピッチの丸形を採用。木製ではなくステンレスのため、耐久性も抜群です。

神戸市N様邸_竣工

2階廊下には、圧迫感がで出ないように壁面ではなく縦格子を採用させていただきました。かわいらしさを意識しています。

神戸市N様邸_竣工

お母様が生活しやすいように、曲がりを少なく、ストレートを意識しました。部屋に入る段差もないバリアフリー仕様です。

神戸市N様邸_竣工

室内ドアはパナソニックのベリティスシリーズからチョイスさせていただきました。奥様のリクエストで優しい色合いのオーク柄をお選びいただきました。


  == 収納 ==  

神戸市N様邸_新規平面図
神戸市N様邸_竣工

収納場所が少なく、タンスがたくさんありましたが、大容量のウォークインクローゼットによって、衣類だけではなく、置き場に困っておられた季節の冷暖房機器や新たに増える、旅行が趣味のご夫婦愛用のキャリーバック等の収納もOKです。

神戸市N様邸_竣工

居室のクローゼット建具は3枚引戸タイプをチョイスいただきました。2枚引違いタイプよりも開口を大きくできるため出し入れしやすく、折れ戸のように室内側に折れることもないので、スペースも有効にお使いいただけます。


  == 屋上==  

神戸市N様邸_新規平面図
神戸市N様邸_竣工

屋上に上がるための塔屋も完成。

神戸市N様邸_竣工

屋上まわりには転落防止のための腰壁を建てさせていただきました。建築基準法に則り、高さは1.5mで施工させていただきました。

神戸市N様邸_竣工

塔屋の天井からの排水も樋から排水口に流し込みます。そして今回のN様邸の目玉工事のひとつである天窓もこの通り完成しました。

神戸市N様邸_竣工

屋内から。住宅密集エリアのため行き届かなかった採光を天窓によって確保。明るくさわやかな空間づくりを実現することができました。吹き抜け仕様にすることで解放感も大幅アップ。リフォーム前とは全く印象が違う空間ができあがりました。

ハイウィルスタッフ

4 担当者より(ハイウィル株式会社・稲葉)

木造戸建のスケルトンからのフルリフォーム工事が徐々に定着してきていると実感しています。それは住み替えるにしても立地の良い建売住宅やマンションの供給が減っていること。慣れ親しんだ土地で親から引き継がれたお家を甦らせたい、というニーズが増えているからだと思います。

ただ、このスケルトンリフォーム、リノベーションを本当の意味カタチにするには、コスト重視の中途半端なリフォームでは、現在、私達がおかれている自然環境に対応できるものにはなり得ません。例えば夏の異常な酷暑。断熱性を考慮した商材や工法を選ばなければ、せっかくの新生活も快適なものにはなりえません。例えば、日本全国頻発する大地震。主要構造部に手を加えない表層替えのリフォームでは、いくらキレイになっても安心と安全を得るリノベーションにはならないでしょう。はたまた巨大台風では?瓦屋根では飛ばされてしまうような時代が訪れています。

今回、ご依頼いただきましたN様はそのような外部環境も踏まえられ、ご予算をできるだけ効率的に投資いただけるお客様でした。ハイウィルは、お客様のニーズやウォンツはもちろんのこと、木造一戸建のスケルトンリノベーションのエキスパートとして、これからも時代を見越した最先端工法や商材を、お客様のために磨きながら、安心、安全なお住まいづくりをカタチにしていければと思っています。

N様、この度はご依頼をいただき、誠にありがとうございました。

この事例と似たテーマカテゴリーを見る

全国のフルリフォーム・リノベーション『ピックアップ事例』※プロの詳細解説付きレポート

HEAT20-G2/耐震等級3
新耐震基準の性能向上リノベーション
築30年ハウスメーカー軽量鉄骨
断熱改修&リノベーション
 
中古住宅を新築以上の耐震性能と断熱性能へ!
耐震等級3フルリフォーム
地下付き木造2階建て
自然素材をつかった性能向上リノベーション&フルリフォーム

東京都文京区 K様邸

長屋を切り離して1つの構造体へフルリフォーム&リノベーション
隣家との距離がない!
部屋から外壁を張り替えるフルリノベーション
中古住宅を耐震等級3へ!
中古住宅リノベーション
 
基礎がない??
築60年の古屋をジャッキアップで基礎新設フルリノベーション

東京都渋谷区 O様邸

戸建てリノベーション・リフォームに関するお問合せはこちら

増改築.comの一戸建てリフォーム専用ホームページに
お越しいただき、誠に有難うございます。
 
増改築.comメンバーは技術集団となり、
他社のような営業マンがおりません。
技術者が直接ご相談にのり問題解決を行います。
 
従いまして、
お客様の方である程度のご要望が整理されました段階、
お悩みが工事内容のどのようなところにあるのか?
ご予算がどの程度絞る必要があるのか?
など明確になった段階でのご相談をお願いしております。
お問合せ・ご相談はお電話・メールにて受け付けております。
メールの場合は以下のフォームに必要事項をご記入の上、
「送信する」ボタンをクリックをお願いします。

代表稲葉高志

戸建てリノベーションの専属スタッフが担当致します。
一戸建て家のリフォームに関することを
お気軽にお問合せください

よくあるご質問
  • 他社に要望を伝えたところできないといわれたのですが・・・
  • 他社で予算オーバーとなってしまい要望が叶わないのですが・・・
  • サービスについて詳しく聞きたいのですが・・・

どのようなお悩みのご相談でも結構です。

あなたの大切なお住まいに関するご相談をお待ちしております。

営業マンはおりませんので、しつこい営業等も一切ございません。

設計会社(建築家様)・同業の建築会社様のご相談につきましては、プランと共にご指定のIw値及びUa値等の性能値の目安もお願い申し上げます。

2026年の大型補助金が確定したことで現在大変込み合っております。

耐震性能と断熱性能を向上させるフルリフォームには6か月~7か月の工期がかかります。

補助金獲得には年内に報告を挙げる必要があることから、お早目にご相談をお願いいたします。(6月着工までが目安

ご提案までに大変お時間がかかっております。ご了承のほどお願い申し上げます。

(5月までの着工枠が埋まりました)・・・2026/03/01更新

※すでにプランをお持ちのお施主様・設計資料をお持ちのお施主様は内容をフォームで送信後、フォーム下のメールアドレスに資料をお送りください。対応がスムーズです。

必須

(例:増改築太郎)

必須

(例:contact@high-will.co.jp)

(例:03-5615-2826)

必須

(例:東京都荒川区西日暮里2-35-1)

(例:築40年)

(例:25坪・100㎡など)

(例:2000万程度など)

  • ※再建築不可のリフォームでは金融機関が限られます。事前審査をお勧めいたします。

    (例:2024年3月くらいに完成希望など)

    必須

    できるだけ具体的にお知らせくださいませ。既存設計資料、リフォーム後のイメージ図等をお持ちであれば下記のメールアドレスより添付をお願いします。

    ※次の画面がでるまで、4~5秒かかりますので、
    続けて2回押さないようにお願いいたします。

    ※次の画面が出るまで、4〜5秒かかりますので、
    続けて2回押さないようにお願いいたします。

    図面や写真等を送信いただく場合、また入力がうまくいかない場合は、上記内容をご確認のうえ、下記メールアドレスまでご連絡ください。

    お電話でのお問合せはこちら

    0120-246-991

    営業時間:10:00~17:00(土日祝日を除く)

    ★YouTube「増改築.comチャンネル」チャンネル登録して新動画解説をいち早くGET!!★
    「増改築.comリノベ診断」であなたに一番ふさわしいフルリフォームを診断!!(動画解説付き)
    ★Facebookページにいいね!を押して最新コンテンツ情報をいち早くGET!!★

    4代目代表よりご挨拶

    稲葉高志

    親切・丁寧な対応をモットーとしておりますのでお気軽にご相談ください。