戸建てフルリフォームなら「増改築.com®」TOP施工事例都道府県で探す東京都葛飾区> 減築フルリノベーションK様(裏打ち工法) 

市区町村の道路拡幅整備事業による減築(セットバック)

減築フルリノベーション事例(セットバック)

 

K様は、葛飾区の細街路拡幅整備事業によりセットバックを要請されておられました。『増改築.com®』に数多く寄せられるご相談では、新築に建て替えをしてしまうとセットバックの規制を受ける為、フルリフォームをして現状の建築面積を維持したいというものが多いのですが、K様は葛飾区の拡幅整備事業により土地を市区町村に販売する形での減築フルリノベーションとなりました。

建物概要
名前 K様
場所 東京都葛飾区
築年数 築59年
構造種別 木造一戸建て
家族構成 大人2人 
対象面積 17.3坪
リフォーム部位 減築/間取り変更/断熱サッシ取替/裏打ち工法/グラスウール/水まわり一式/屋根葺き替え
工期 6ヶ月
価格

1530万

お客様のご要望

今回のリフォームで、K様からのご要望は以下の8点です。

  • 葛飾区役所から言われていた部分をセットバック、減築したい。
  • 隣家とは15センチ程の離隔距離しかないが、ここはセットバックしたくない。
  • 隣家との離隔距離15センチの外壁面を改修して防火対策をしたい。
  • 間取りは基本今のままで良いが、階段勾配を緩くしたい。
  • キッチンと脱衣室を行き来できる様にしたい。
  • 電気配線を見直して欲しい
  • 2階に出来たらトイレを新設したい。
  • 2階洋室に収納スペースは欲しい。

プランナー 北畠より ~プランニングのポイント~

既存間取りをいかしつつ、K様のご要望をヒヤリングさせて頂いてプランニングをさせて頂きました。フルリフォームなので、段差は全て無くし、階段も緩やかな勾配にさせて頂いたので毎日の生活動線にストレス無くさせて頂いてます。

 

 

葛飾区K様邸 戸建てリノベーション施工事例テーマカテゴリー

 

  • 減築リフォーム
  • 狭小住宅リフォーム
  • 再建築不可リフォーム
  • 内外部スケルトンリフォーム

1 着工前

 1-1 現場調査・打合せ

 1-2 提案

2 着工

 2-1 解体・撤去

 2-2 基礎

 2-3 木工事

 2-4 屋根工事

 2-5 外壁工事

 

3 竣工

 

4 担当者より

打ち合わせから着工、完成までの詳細施工事例紹介

1 着工前

1-1 現場調査・打合せ

既存外壁は昔のサイデイングです。

葛飾区 戸建スケルトンリフォーム 既存

サッシも全て取替なので外壁も新しくなります。

K様邸は向かって右側の家との間がほぼ無く、人が入れないすき間なので普通にサイディングを貼る事はできません。

 

葛飾区 戸建スケルトンリフォーム 既存

1階のリビングから水周りへ行くプランです

葛飾区 戸建スケルトンリフォーム 既存

とても綺麗に使われていた既存キッチン

リビングの隣にキッチンスペースがあり、間取りがそのままですがリフォーム後はキッチンの向きが変わります。


既存階段

お母様が二階に上がる時、とても勾配が有り登り難いとおっしゃてました。リフォームの際は、2階への登り降りが少しでも負担にならない様設置させて頂きます。

葛飾区 戸建スケルトンリフォーム 既存

横から見て解る様にとても急勾配です。

葛飾区 戸建スケルトンリフォーム 既存

危なく手摺は後から設置した物です。


1階リビングと間仕切りで仕切られたキッチンスペースです。

既存水周りスペース

1階に、キッチン・浴室・トイレが設置されています。リフォーム後は2階にトイレを1つ追加します。

昔のユニットバスです。寒くて段差があります。


既存居室

K様の既存居室は、基本和室で納められていました。リフォーム後は全て洋室へ変更です。

葛飾区 戸建スケルトンリフォーム 既存

既存天井は目透かし天井です。

葛飾区 戸建スケルトンリフォーム 既存

和室の上にカーペットを敷いて生活されていました。


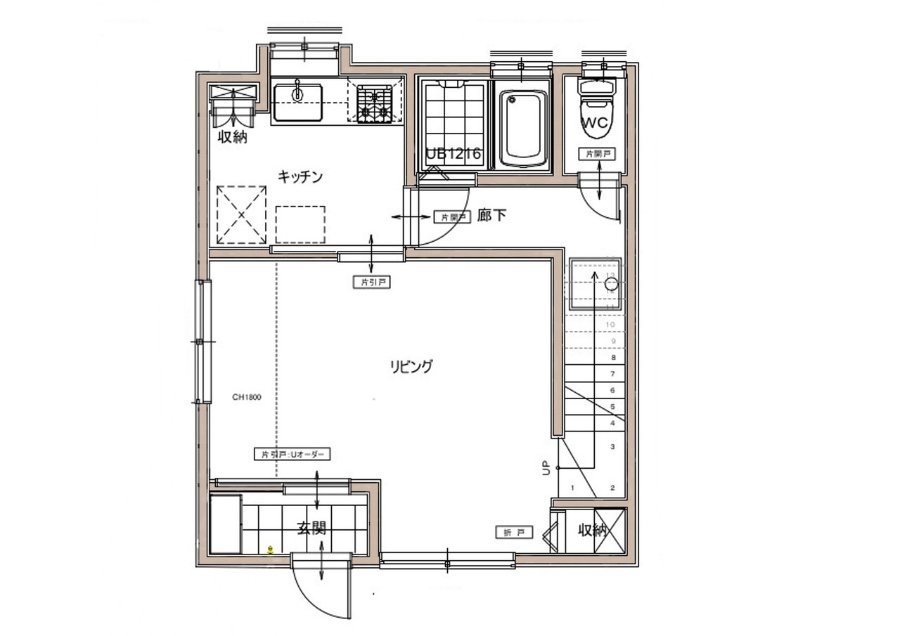
1-2 東京都葛飾区K様邸 戸建リノベーションプラン

  間取りの変更プラン  

1階 既存平面図

2階 既存平面図

1階 新規平面図

2階 新規平面図

既存の建物より、新規建物を約90cm程セットバックにより減築をしています。1階はリビングと水周りを持ってきて既存であった洋室

(3畳)を無くしてその分リビングを大きくとってます。

2階は、配置はそのままで階段を緩やかにし2階に新規でトイレを設置しています。

K様の減築フルリノベーションはこうしてはじまりました。

2 着工

2-1 解体・撤去

解体は手壊し作業

今回のK様邸減築リノベーションにおける解体で最も注意を払わなければならなかったのが、隣家と密接している外壁面の外壁剥離です。

【隣家との距離がない(足場が入らない)外壁剥離の手順】

1.二階床下地外壁から300mm 程度を撤去し、その他はほぼ全体は残します。 残す理由は、隣接側の外壁はラス板共室内に引き込むため作業床が必要であること。 床 300mmの切断は、間柱下と桁を現しの状態で、間柱下部に鋸を入れるためです。もうひとつの理由は、二階隣接側外壁は階段を避けて撤去し階段部は一番最後に解体する為です。この際、一階に産業廃棄物処理車を待機させ、トラックに撤去材を積んでいきます。

2.隣接側外壁を引き込むため作業はラス板切断後チルホールで室内に引張込みます。

一階から作業を行い、一階処分材を片付けてから、隣接建物外壁に合板を立てかけて、養生後に2階の作業を行います。(モルタル落下を受ける為の養生)今回のK様邸減築リノベーションでは当てはまらないケースですが、注意しなければならないのが、隣地建物に窓が有るようなケースでは窓の無い外壁を撤去後に隣接窓を養生してから再度残りを撤去する方法を取ります。

3.外壁引き込み

柱境のラス板を切断 間柱中間を横切断して柱間の1/4から1/2程度の外壁面積 を引き込みます。 台付けは番線#12、もしくは足場番線でも可能です。

室内の間仕切り壁より手壊しにて解体を進めていきます。

撤去材は1か所へまとめ、搬出しやすいように解体を進めていきます。

階段は残し他の解体を進めるのがポイントになります。

隣家側の外壁面は最後に解体をします。シートで養生されているのがわかります。

腐食が進んでいる柱は差し替え、仮筋交いを入れながら躯体残しの状態まで解体を進めていきます。

区の道路拡幅整備事業での減築(セットバック)

K様の減築フルリノベーションは、区の道路拡幅整備との絡みがあり、役所との調整が必要でした。区の職員立会いのもと、どこまでのラインまでセットバックが必要なのか、綿密な打ち合わせを何度も行い減築を行いました。

2-2 基礎

構造上のチェックが終わると、戸建てリノベーションは、基礎工事へと移行していきます。

K様邸は無筋基礎となっておりました。『増改築.com』のホームページに掲載されている事例を数多く拝見くださっていたようで、ベタ基礎補強をご希望でした。

セットバック部は基礎の新設となりました。

既存の布基礎は無筋基礎となっていた為、立ち上がり部分は、鉄筋コンクリート基礎での添え基礎となります。

既存布基礎部分へは、立ち上がり基礎を増し打ちしていきます。

セットバック面の新設基礎。

K様邸では地盤が良好であることからベタ基礎を採用しました。

すべてがベタ基礎が良いというわけではありません。

ベタ基礎は建物全体と同程度の荷重となりますので、建物の重さとのバランスもかかわってきます。足元だけ固めていても屋根を含めた建物とのバランスが悪いと大地震が起きた際にせん断力が働き、ホールダウン金物が抜けるような事態になるケースもあるからです。

大規模な戸建てリノベーションをされる際には、木造を熟知し、実績が豊富な会社へ相談することをお勧めする理由でもあります。

ベタ基礎って?

布基礎が立ち上がりとフーチングで持たせる基礎に対して、ベタ基礎は、立上りだけでなく、底板一面も耐圧盤を設け、立ち上がりと底面が一体化された鉄筋コンクリートになっている基礎をいいます。

建物の荷重を底板全体の面で受け止めるため、ベタ基礎は不同沈下を起こさない。といわれますが、それは良好な地盤での話です。

基礎の下の地盤面の地耐力が均一でない場合は、不同沈下が起こる可能性が充分あるのです。

耐震の世界では、重い瓦屋根は外して、軽いものに変えましょうと言われておりますが、それ自体は間違っていませんが、この理屈でいくと。屋根の瓦を外して、基礎はベタ基礎にしても、地盤に与える荷重は、瓦屋根以上の荷重がベタ基礎の荷重により地盤面にかかることになります。

地盤が軟弱な場合、布基礎を採用した方が有利な場合も出てきます。

戸建てフルリフォームやリノベーションで、基礎補強をする際は、このような知識のある会社に相談することが必要です。

2-3 木工事

基礎が終わり大工工事へと移行します。構造躯体の強度を担保するためのメイン工事となります。

通し柱に絡む桁は、減築により差し替えとなり、構造体の組みかえとなり、大掛かりな工事となります。

セットバックし減築となる為、既存の通し柱を撤去となります。そのため通し柱に絡む桁まわりもやり直しとなり、主要構造体はほぼ新規となります。

再利用可能な梁を一部活かし、構造体を組んでいきます。

隣家との距離は一番近いところで5㎝と腕も入らない程密着しています。

建物臆面の構造補強

桁行方向の構造体は新たに組みなおす箇所が多数でました。

隣家側にはシートを張り解体から養生をし続けます。

2階床は強床仕様とし、水平耐力を床でとるため下地を組み替えていきます。

隣家側の外壁は、外部工事と同時に施工となります。

隣家側を除く外周面には構造用合板を下地として張り、隣家側は内側より張り、偏心率を下げました。

2-4 屋根工事

建物裏手にはスペースに余裕があり工事はスムーズとなりますが、、

隣家側の軒先はほとんどくっついているといっていい状態です。シートを屋根から巻き込んでいるのは、外壁解体を内側より施工するための養生です。

建物奥より玄関側へ向かい撮影した写真。建物の密着度合いがわかります。

仕上げ工事が完了しました。

2-5 外壁工事

K様邸は区からの道路拡幅整備事業の一環から、セットバックが必要になりましたが、一部の土地を区が買い取る形で減築リノベーションとなっています。ここまでの話を聞くと、ではなぜ新築にしなかったのか?という疑問が生まれます。K様宅の建物のロケーションをみると、写真上の右隣りの隣家との離隔距離がほぼない事がわかります。つまり、新築をしてしまうと、離隔距離までも確保が必要になり、希望されておられる空間が確保できない問題がございました。隣家との離隔距離は15㎝弱という通常では外壁工事ができない状態です。ここで『裏打ち工法』を採用させていただきました。

裏打ち工法の工事の流れは、解体前に隣家との間に屋根からシートを架け、養生をします。その後、室内側から外壁を剥離し、室内から廃棄物を搬出していきます。その後、45分耐火のコンクリートボードサイディングを室内側より張り込んでいく工法です。

K様の減築リノベーションを着工した際には、隣家の建物もスケルトン状態になっておりました。こちらの建物も減築リノベーションのようでした。施工中に隣家のお施主様とお話しする機会がございましたので、ご挨拶させていただいたところ、K様と接する外壁面をセットバックするお話を施工会社からお話をされたとのことでした。大手リフォーム会社さんでの現場でしたが、『裏打ち工法』の技術がないとのお話でした。弊社で裏打ち工法での施工をご覧いただいたお施主様は、施工会社さんに裏打ちで施工をしてほしいとお話をされたそうです。

後日、大手リフォーム会社様より連絡が入り、裏打ち工事のみを御社で施工いただくことは可能でしょうか?というお話になりました。

結果として、隣家のお住まいの『裏打ち工法』による外壁工事を施工させていただく形となりました。このような事は滅多にないことですが、お施主様、他社様との協議をした上で施工させていただきました。 

隣との隙間

このように身体は入れるスペースがありません。水切りを室内側より設置後下から張り上げていきます。

1階部分より室内から張り上げていきます。

2階まで張り上がりました。

K様建物部の『裏打ち工法』外壁サイディング工事が完了しました。

隣家の工事は減築部の解体及び建物の解体のみで工事中断していたため、工事はスピーディーに進行が出来ました。

足場を払えば外壁は完成です。

外壁工事が完了しました。

外壁が完了する段階では、室内は仕上げの造作工事の佳境となっています。

クロスを貼る為に下地処理をします。

内装が終わると器具関係の取り付けとなります。最も傷をつけたりしやすい時期になりますので養生を徹底していきます。

3 竣工

約5か月の工事を経て、いよいよ竣工です。
K様邸の様子をご紹介します。


  =外観==  

3面は窯業サイディングです。デューネベージュです。

セットバックされているラインがわかります。隣家側の1面は、コンクリートボードサイディングです。


Before

既存外観


  == 階段 ==  

Before

既存階段はかなりの急勾配でした。新規階段はゆったりと登れる様に設計しています。

新規階段はゆるやかな14段で登る階段です。

リビングから登る階段です。脇にスペースがあったので特注の建具に可動棚を設置した収納です。


  == 1F 洋室・LDK ==  

Before

1階リビングから階段を上るスタイルです。

1階キッチンスペースから脱衣室へ入ります。


  == 1F 水まわり ==  

画像の説明を入力してください

Before

既存キッチン

既存浴室

既存トイレ

キッチン

LIXLI シエラI型1650

浴室

LIXIL アライズ 1216サイズ

1階トイレ

ハイウィルオリジナル

2階トイレ

ハイウィルオリジナル


  == 2F 洋室 ==  

Before

2階洋室です。フローリングで隣の部屋とは扉で分けています

階段スペースの上のに収納スペースを持ってきているので、小さな段差がクローゼット内に出来ています。

2階洋室は階段上がってすぐトイレと廊下があります。


4 担当者より(ハイウィル株式会社・稲葉)

 

区の道路拡幅整備事業の一環で、セットバック要請があり土地を一部売却し、減築リノベーションとなったK様ですが、当初は新築でのご検討もされておられました。しかしながら、建て替えとなりますと隣家との離隔距離の問題から、ご希望されておられる間取りが成立せず、リノベーションの選択をされた事例となります。『裏打ち工法』を得意とする弊社ではございますが、5㎝ほどの離隔距離という過去に類をみない悪環境での施工となり施工は苦労しました。隣家側の施工を担当されていたリフォーム会社さんも頭を抱えておられました。整備事業との絡みがあり、役所との現地打ち合わせを何度も重ね、役所での打ち合わせも何度もさせていただきました。リノベーションではありますが、仕様内容としましては、基礎も新設となりましたし、材木も新築とほぼ同程度の材木量になるほど新築仕様となっております。K様には弊社の何度も足をお運びいただき、お打合せをさせていただきました。結果として、K様には大変お喜び頂くことができましたので、私どもと致しましても施工冥利につきる現場となりました。

K様、この度はご依頼をいただき、誠にありがとうございました。

全国のフルリフォーム・リノベーション『ピックアップ事例』※プロの詳細解説付きレポート

HEAT20-G2/耐震等級3
新耐震基準の性能向上リノベーション
築30年ハウスメーカー軽量鉄骨
断熱改修&リノベーション
 
中古住宅を新築以上の耐震性能と断熱性能へ!
耐震等級3フルリフォーム
地下付き木造2階建て
自然素材をつかった性能向上リノベーション&フルリフォーム

東京都文京区 K様邸

長屋を切り離して1つの構造体へフルリフォーム&リノベーション
隣家との距離がない!
部屋から外壁を張り替えるフルリノベーション
中古住宅を耐震等級3へ!
中古住宅リノベーション
 
基礎がない??
築60年の古屋をジャッキアップで基礎新設フルリノベーション

東京都渋谷区 O様邸

全国のフルリフォーム・リノベーション『ピックアップ事例』※プロの詳細解説付きレポート

HEAT20-G2/耐震等級3
新耐震基準の性能向上リノベーション
築30年ハウスメーカー軽量鉄骨
断熱改修&リノベーション
 
中古住宅を新築以上の耐震性能と断熱性能へ!
耐震等級3フルリフォーム
地下付き木造2階建て
自然素材をつかった性能向上リノベーション&フルリフォーム

東京都文京区 K様邸

長屋を切り離して1つの構造体へフルリフォーム&リノベーション
隣家との距離がない!
部屋から外壁を張り替えるフルリノベーション
中古住宅を耐震等級3へ!
中古住宅リノベーション
 
基礎がない??
築60年の古屋をジャッキアップで基礎新設フルリノベーション

東京都渋谷区 O様邸

戸建てリノベーション・リフォームに関するお問合せはこちら

増改築.comの一戸建てリフォーム専用ホームページに
お越しいただき、誠に有難うございます。
 
増改築.comメンバーは技術集団となり、
他社のような営業マンがおりません。
技術者が直接ご相談にのり問題解決を行います。
 
従いまして、
お客様の方である程度のご要望が整理されました段階、
お悩みが工事内容のどのようなところにあるのか?
ご予算がどの程度絞る必要があるのか?
など明確になった段階でのご相談をお願いしております。
お問合せ・ご相談はお電話・メールにて受け付けております。
メールの場合は以下のフォームに必要事項をご記入の上、
「送信する」ボタンをクリックをお願いします。

代表稲葉高志

戸建てリノベーションの専属スタッフが担当致します。
一戸建て家のリフォームに関することを
お気軽にお問合せください

よくあるご質問
  • 他社に要望を伝えたところできないといわれたのですが・・・
  • 他社で予算オーバーとなってしまい要望が叶わないのですが・・・
  • サービスについて詳しく聞きたいのですが・・・

どのようなお悩みのご相談でも結構です。

あなたの大切なお住まいに関するご相談をお待ちしております。

営業マンはおりませんので、しつこい営業等も一切ございません。

設計会社(建築家様)・同業の建築会社様のご相談につきましては、プランと共にご指定のIw値及びUa値等の性能値の目安もお願い申し上げます。

2026年の大型補助金が確定したことで現在大変込み合っております。

耐震性能と断熱性能を向上させるフルリフォームには6か月~7か月の工期がかかります。

補助金獲得には年内に報告を挙げる必要があることから、お早目にご相談をお願いいたします。(6月着工までが目安

ご提案までに大変お時間がかかっております。ご了承のほどお願い申し上げます。

(5月までの着工枠が埋まりました)・・・2026/03/01更新

※すでにプランをお持ちのお施主様・設計資料をお持ちのお施主様は内容をフォームで送信後、フォーム下のメールアドレスに資料をお送りください。対応がスムーズです。

必須

(例:増改築太郎)

必須

(例:contact@high-will.co.jp)

(例:03-5615-2826)

必須

(例:東京都荒川区西日暮里2-35-1)

(例:築40年)

(例:25坪・100㎡など)

(例:2000万程度など)

  • ※再建築不可のリフォームでは金融機関が限られます。事前審査をお勧めいたします。

    (例:2024年3月くらいに完成希望など)

    必須

    できるだけ具体的にお知らせくださいませ。既存設計資料、リフォーム後のイメージ図等をお持ちであれば下記のメールアドレスより添付をお願いします。

    ※次の画面がでるまで、4~5秒かかりますので、
    続けて2回押さないようにお願いいたします。

    ※次の画面が出るまで、4〜5秒かかりますので、
    続けて2回押さないようにお願いいたします。

    図面や写真等を送信いただく場合、また入力がうまくいかない場合は、上記内容をご確認のうえ、下記メールアドレスまでご連絡ください。

    お電話でのお問合せはこちら

    0120-246-991

    営業時間:10:00~17:00(土日祝日を除く)

    ★YouTube「増改築.comチャンネル」チャンネル登録して新動画解説をいち早くGET!!★
    「増改築.comリノベ診断」であなたに一番ふさわしいフルリフォームを診断!!(動画解説付き)
    ★Facebookページにいいね!を押して最新コンテンツ情報をいち早くGET!!★

    4代目代表よりご挨拶

    稲葉高志

    親切・丁寧な対応をモットーとしておりますのでお気軽にご相談ください。