戸建フルリフォームなら「増改築.com®」TOP施工事例東京都世田谷区>S様 2世帯住宅(完全分離)リフォーム

完全分離型の二世帯住宅リフォーム事例

二世帯住宅リフォーム(完全分離型)事例

世田谷区S様邸_TOP
世田谷区S様邸_竣工
世田谷区S様邸_竣工
世田谷区S様邸_竣工
建物概要
名前 S様
場所 東京都世田谷区
築年数 築50年
構造種別 木造戸建
家族構成 大人4人
対象面積 25.47坪
リフォーム部位 ベタ基礎/間取変更/断熱サッシ取替/外壁サイディング/断熱セルローズ/制震ダンパー/チャコールペイント/外構
工期 4.5ヶ月
価格(建築費用) 2900万

お客様のご要望


・耐震ダンパーを設置したい。

・防音の為、断熱材はセルロースファイバーを使用したい。

・2世帯住宅にリフォーム(完全分離型)

・サッシは全て断熱仕様のサッシへ取替

・床下を布基礎からべた基礎へ

・外壁は全て剥がしてサイディングへ

S様ご主人が所有しておりました家をフルスケルトンにして2世帯住宅へリノベーションをしたい

完全分離型2世帯住宅プランニングのポイント


東京都世田谷区S様ご主人様の所有する空き家を

奥様のお母様と一緒に暮らしたい、

同居するための2世帯住宅をご希望。

間取りは、各世帯がプライバシーを確保できるよう

水周り設備等もすべて分けたい。

各世帯の生活リズム(生活スタイル)が違う為、

部分共有はなく、玄関から完全分離で分けるプランを

ご希望されておりました。

 

大手リフォーム会社での

2世帯住宅リフォーム相談後、

提案間取りと費用金額で

お話が進まず、弊社にご相談が参りました。

S様は大変お急ぎで、

引っ越ししたい時期が予め決まっておりましたので、

2世帯住宅リフォームの仕様を

急ピッチで決めて頂くなど、

S様にもかなりのご協力をいただき

工事を開始することができました。

世田谷区S様邸 戸建てリノベーション施工事例テーマカテゴリー

 

  • 二世帯住宅リフォーム
  • セルロースファイバー仕様
  • 内外部スケルトンリフォーム

打合せから完成まで


1 着工前

1-1 打合せ


昭和40年代築の築50年を超える東京都世田谷区の建物になります。

足の不自由なS様奥様のご両親が、

2世帯住宅リフォーム後に住まわれるため、

外構門扉からの階段半分をスロープにしたいご要望がありました。

世田谷区S様邸_施工前

世田谷区S様邸_施工前

2世帯住宅リフォーム後は、

2階ベランダを外壁と同化させたいとのご要望が。

隣家とすれすれの1階の庇の出を無くし

フラットにするプランとなりました。

世田谷区S様邸_施工前
世田谷区S様邸_施工前

脚の不自由な奥様のお父様がいらっしゃるため、

2世帯住宅リフォーム後は

階段の半分をスロープに中央に手すりをたてるイメージでおります。

世田谷区S様邸_施工前
世田谷区S様邸_施工前

既存浴室まわり。

築年数が経過しているため、

解体後は土台がどうなっているのかが気になります。

既存の台所スペースは、

2世帯住宅リフォーム後は完全分離のS様世帯の玄関となります。

世田谷区S様邸_施工前
世田谷区S様邸_施工前
世田谷区S様邸_施工前

2世帯住宅リフォーム後にS様ご夫婦の寝室となるお部屋です。

世田谷区S様邸_施工前

既存1階洋室、ご主人のご要望で、

完全分離2世帯住宅リフォーム後には

一部増築の寝室となります。

既存の1階ダイニングスペースは

2世帯住宅リフォーム後は完全分離のS様世帯の玄関となります。

世田谷区S様邸_施工前
世田谷区S様邸_施工前

こちらは既存の玄関スペースです。

完全分離2世帯住宅リフォーム後は

奥様のご両親の世帯の玄関となります。

世田谷区S様邸_施工前
世田谷区S様邸_施工前

既存1階和室、日当たりの良い南側です。

既存縁側の下は既存駐車スペースになっております。

新規プランは、ご両親様LDKになります。

縁側はウッドデッキになります。

世田谷区S様邸_施工前
世田谷区S様邸_施工前

2階の南側和室。日当たりもよく桧をしようしていることがわかります。

こちらのお部屋は2世帯住宅リフォーム後には

S様世帯のリビングルームとなります。

リフォーム後をお楽しみにどうぞ。

世田谷区S様邸_施工前
世田谷区S様邸_施工前

既存2階北側和室と廊下です。

新規は階段スペース、

子世帯浴室・脱衣室・トイレスペースになります。

世田谷区S様邸_施工前
世田谷区S様邸_施工前

既存外構です。新規は玄関ドアは2セットになり、

アプローチは土間仕上げ/タイル仕上げ/泣き砂利仕上げで

場所場所で変えて納めさせて頂きます。

1-2 提案

世田谷区S様邸_既存平面図

■施工前の1階平面図■

世田谷区S様邸_既存平面図

■施工前の2階平面図■

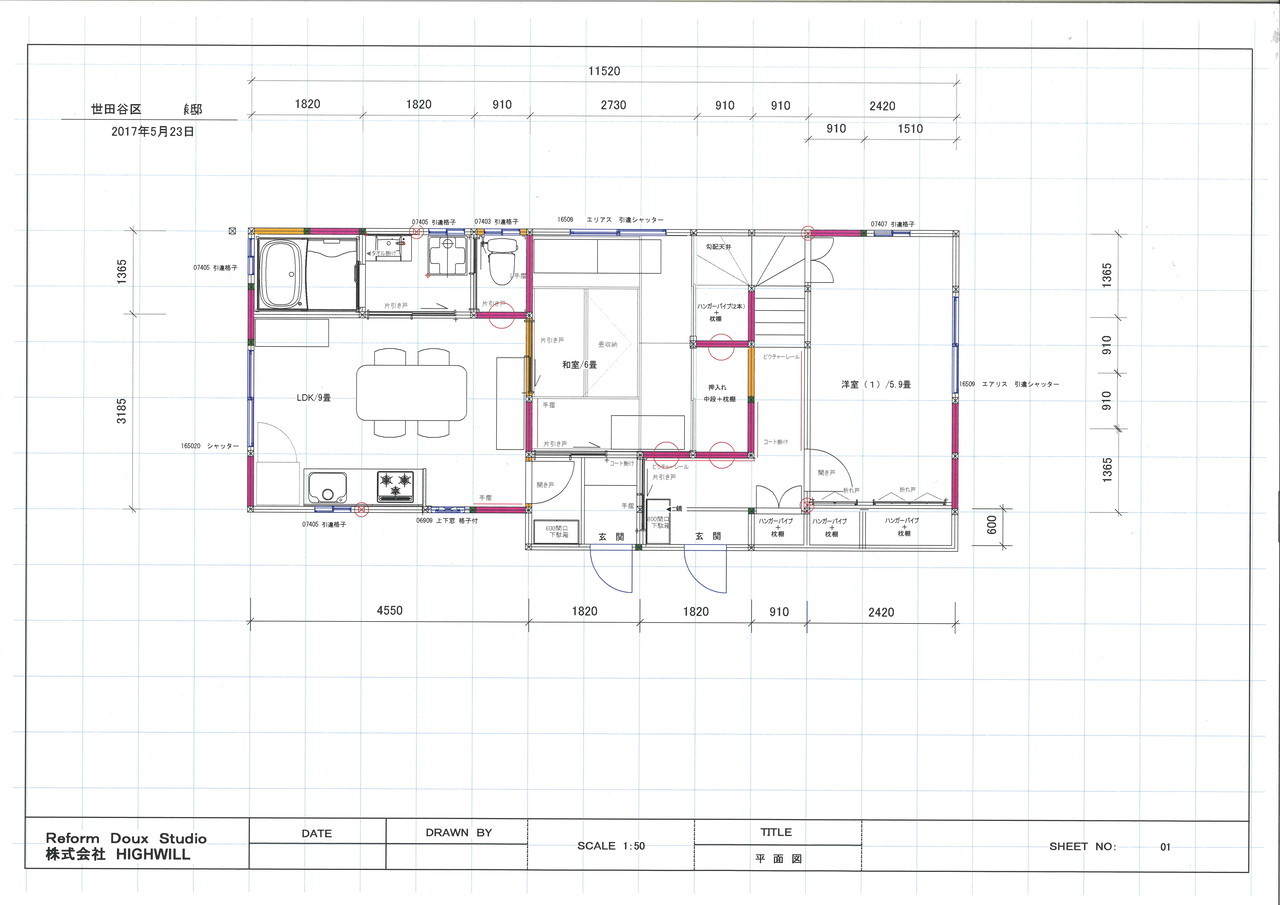
世田谷区S様邸_新規平面図

■施工後の1階平面図■

世田谷区S様邸_新規平面図

■施工後の2階平面図■

S様の建物は1階に車庫があり、

平面図の1階も、

階段を上がった実質2階の高さにあります。

玄関を平面図上の1階でわけ、

親世帯を1階部分にゾーニングしております。

S様ご夫婦は同じく1階に玄関を設置し、

寝室のみ1階に間取ります。

1階寝室部は一部増築をしています。

2階の間取りは、

S様ご夫婦のリビングスペースと、

水周りを配置する間取りとなっております。

図面上に赤くマーカーしている箇所が

筋交いをダブルで入れる耐力壁、

黄色で示した箇所が制震ダンパーを設置する箇所となります。

2 着工

2-1 解体


今回のS様邸完全分離型2世帯住宅リフォームは、

間取りも大きく変わることや、

何よりも築年数が50年以上経過していることから、

耐震面でも補強が必要と判断し、

外壁までを剥がすスケルトンリフォームで

ご提案させていただきました。

外壁を落とすことで、

費用コストはかなり上がってしまいますが、

外部からの全面補強が可能になることで、

内部の耐震補強に加え、

外周部全面を構造用合板で補強までができますので、

長期で建物を検討する際、

こちらの方法が望ましいとお話させていただきました。

新築ではありませんので、

機械壊しはできないことから、

手壊しでの解体となります。

内部の解体から進行していきます。

世田谷区S様邸_解体
世田谷区S様邸_解体

まずは内部(室内)天井、壁、床を剥がしていきます。

世田谷区S様邸_解体
世田谷区S様邸_解体
世田谷区S様邸_解体
世田谷区S様邸_解体

2階の天井、壁を解体し、

2階部の床は最後に行います。階段は最後に解体します。

世田谷区S様邸_解体
世田谷区S様邸_解体

2階北部の内部解体がほぼ完了してきました。

既存の構造体の骨格が見えてきます。

世田谷区S様邸_解体
世田谷区S様邸_解体

S様邸は道路面の1階車庫上がベランダとなっておりましたので、

廃棄物を一旦こちらへ搬出し、

下に横付けした運搬車へ積むことが可能でした。

都内の改築現場ではなかなかこのように

恵まれた環境は少なく、大変有難い現場です。

世田谷区S様邸_解体
世田谷区S様邸_解体

築年数50年経過していたこともあり、

水まわりは最も気になるところ。

一番気になっていた浴室お風呂まわりも

慎重に解体を進めていきます。

こちらは分離型二世帯住宅リフォーム後には、

S様ご両親の寝室となるスペースになります。

右側写真の壁に見えるザラ板は壁ではなく

急勾配の屋根下地となっています。

北側斜線ギリギリで建てていることがわかります。

 

世田谷区S様邸_解体
世田谷区S様邸_解体

S様邸2世帯住宅スケルトンリフォームの解体も終わり、

外壁も剥がしが終わったスケルトン(構造躯体)残し

の状態となりました。

ここから既存の木構造の痛みを調査していきます。

1階部の車庫の上に布基礎が

乗っている状態のS様邸、

基礎の高さはかなり高く、

基礎自体に大きな欠損はありませんでした。

 

50年程度前の建物ですので、構造体は桧を使用しておりますが、補強観点でみると、補強が必要な構造となっています

2-2 基礎


打合せの中、基礎工事が進んでおります。

K様邸も布基礎からベタ基礎への変更、

基礎補強工事をいたします。

鋤取りをした後、砕石・鉄筋を敷いていきます。

世田谷区S様邸_基礎
世田谷区S様邸_基礎

 

ここから、構造の痛みをじっくりみて、

果たしてご提案している

完全分離型の二世帯住宅リフォームの間取りプランが

可能かどうかの検証をしていくことになります。

解体後通常の建物で

基礎工事と構造チェックに1か月をかけてハイウィルでは進めていきます。

世田谷区S様邸_基礎
世田谷区S様邸_基礎

最も気になっていた水回り、浴室まわりの土台です。

想定はしておりましたが、

ここまで腐食が進んでいるとは思いませんでした。

4方すべての土台が腐っておりました。

4方すべての土台を差し替える必要があります。

 

世田谷区S様邸_基礎
シロアリに食べられてしまっている柱も出てきました。S様にお伺いするとシロアリが以前出たことがあったようです。このあたりの柱は使えませんので差し替えが必要となります。
世田谷区S様邸_基礎
浴室脱所の間仕切りとなっていた柱です。土台の腐食から柱まで水を吸ってしまっている状態です。このような柱は使えませんので差し替えとなります。
世田谷区S様邸_基礎
北側の通し柱がシロアリの被害で完全になくなっていました。室内にいた際にはまったくわからない状態でした。ここは重要な躯体となります。お施主様であるS様へは現場に足を運んでいただき現地をみて頂き、使えない構造部の説明をさせて頂きました。費用のご相談もさせていただきました。
世田谷区S様邸_基礎
接写してみるとかなり被害に合っていたことがわかります。
世田谷区S様邸_基礎

耐圧盤工事をする際は、既存の土の部分に砕石を入れランマ―で転圧してレベルを合わせ平らにしていきます。

世田谷区S様邸_基礎

防湿シートを砕石の上に敷き込み、配筋をしてきます。この際既存の布基礎とアンカーで緊結していきます。

世田谷区S様邸_基礎

先ほどの図面上の赤い丸の箇所になりますが、こちらは新たに布を型枠で作り、新たに基礎を作ります。

世田谷区S様邸_基礎

S様宅は基礎高は高いもののやはり布の数は築年数が古いこともあり少ないので、フルスケルトンでの2世帯リフォームを期に基礎をしっかりと補強しておくことはとても良いことだと思います。

世田谷区S様邸_基礎

新たな布部分にはアンカーボルトを等間隔で設置します。

世田谷区S様邸_基礎

こちら玄関部分になりますが、既存の布基礎がなかったため、新たに新設しました。

世田谷区S様邸_基礎
世田谷区S様邸_基礎
世田谷区S様邸_基礎

基礎打設後に、チャコール(備長炭)ペイントを塗っていきます。
チャコールペイントは純度の高い備長炭になります。シロアリは木は食べますが備長炭は食べません。主要柱と基礎部分にチャコールペイントも塗り込みシロアリ対策を施します。もちろん吸放湿効果が高いため、湿度が高い時は水分を吸着し、乾燥しているときは水分を放出する効果がありますので床下の湿度調整の作用もあります。同時に吸着(脱臭)作用も強いことからホルムアルデヒド等有害ガスの吸着にも効果がのぞめる優れた素材になります。
最近では、電磁波の遮蔽効果もあることから電磁波対策で塗るケースも増えてきております。

世田谷区S様邸_基礎

チャコールペイントは基礎のコンクリート面に加え、土台まで塗っていきます。

 

世田谷区S様邸_基礎

防蟻の対策として柱の立ち上がり1メートルまで備長炭を塗ります。基準線を出し、塗っていきます。こちらのS様邸では、工程は前後しておりますが、外周面の壁が仕上がり後に備長炭を塗りました。

世田谷区S様邸_基礎

コンクリート面と土台を塗り、柱も1メートルまで防蟻を兼ね塗っていきます。

2-3 大工工事


世田谷区S様邸_大工工事
世田谷区S様邸_大工工事

基礎を補強後はいよいよ大工工事となります。

ご覧の通り新旧の材木を比較してみてください。

茶色い構造体が既存を活かす構造体になります。

新しい材木量を見て頂ければわかりますが、

ほぼ新築と変わらない材木量であることが

おわかりいただけるはずです。

 

ここから構造体を組んでいきます。

S様邸では、2階床組を根太工法ではなく

剛床工法にて施工しました。

 

根太を設置せず横からの水平力に抵抗させる工法で

24ミリ以上の構造用合板をはり、

水平耐力を持たせる工法です。

 

構造材を千鳥状に組み、

構造用合板で固定していきます。

世田谷区S様邸_大工工事

構造計算結果に基づき、耐力壁となる箇所へはたすき掛けの筋交いをしていきます。

世田谷区S様邸_大工工事

構造躯体の補強が終わるまでは、仮の筋交いを入れ万が一に備えます。

世田谷区S様邸_大工工事

梁の間隔は縦横3尺の千鳥状に組み、24ミリの構造用合板で固定していきます。構造体と構造用合板を固定することで風荷重・地震荷重といった水平荷重に対しての剛性と耐力を持たせ水平方向に変形することのない構造体とします。

世田谷区S様邸_大工工事

2階も構造計算にて指示がでた箇所へは耐力壁とし、筋交いをダブルで入れています。

世田谷区S様邸_大工工事

2階構造部、既存の柱梁の一部を残し新たに組み替えを行いました。

世田谷区S様邸_大工工事

一階は二階を背負う形になるため、どうしても耐力壁が多くなります。S邸2世帯住宅リフォームでは残した柱は、構造上抜けない柱を残す形で、ほぼ新たに構造体設置されました。

世田谷区S様邸_大工工事

2階に娘様世帯のリビングルームが配置される計画となっておりますので、空間が広めに設計されております。そのため、梁を設置し開放感がある空間を作れる構造としています。

世田谷区S様邸_大工工事

2階バルコニー側。梁掛けと耐力壁の設置。

世田谷区S様邸_大工工事
世田谷区S様邸_大工工事

一階部は筋交いがかなり多くなりました。既存の状態の耐力がなかったため、ここでしっかりと耐震補強をしておくことが大切です。

世田谷区S様邸_大工工事
世田谷区S様邸_大工工事

柱頭、柱脚部へは必ず金物で補強し抜け対策をします。

世田谷区S様邸_大工工事

2階バルコニーを2階フロアとフラットにしたいご要望をいただいておりましたが、防水層を設置するのに懐が必要になります。一階部の天井が下げることでフラットにすることは可能ではありましたが、親御様世帯のリビングになることもありこちらの段差を許容していただきました。

世田谷区S様邸_大工工事

サッシを入れていきます。YKK社のエピソードを採用致しました。

 

2-4 耐震工事(制震ダンパー設置)


上記図面の赤く表記されている部分が

耐力壁となる箇所となります。

S様邸では通常の耐震補強に加え、

制震ダンパーの設置もさせていただきました。

筋交いへの中東柱脚金物を設置の上、

制震仕口ダンパーも所定の位置に設置していきます。

こちらの制震ダンパーは、

特殊ゴムが金物にサンドイッチ状に挟まっており

地震の際に、ブレーキの役割をする、

地震のエネルギーを熱エネルギーに変える役割を果たしてくれます。

S様邸では制震仕口ダンパーを18面(左右仕口合わせ36カ所)へ設置いたしました。

制震仕口ダンパーの良いところの一つに開口部上にも設置が可能という点が挙げられます。

S様邸2世帯住宅リフォームでは、玄関部にも制震仕口ダンパーの設置指示が構造計算により出ており玄関部にも設置を致しました。

2-5 断熱工事(セルロースファイバー充填)


S様邸2世帯住宅リフォームでは、

2世帯であるという点と、

ご主人様が大音量で音楽を楽しみたいという

ご要望から、

断熱材を吸音効果の高いセルロースファイバー

にて提案させていただきました。

土台から桁までを面で隙間なく充填していくため、

断熱性能も高く、圧縮グラスウールなどによる

気流止めの必要がない点も良いところです。

世田谷区S様邸_断熱

相当の圧力で充填するため、充填するとわかりますが、間柱から盛り上がっているのがお分かりいただけると思います。この上にボードを張っていきます。

世田谷区S様邸_断熱

セルロースファイバーは、断熱性能、吸音効果だけでなく、害虫を寄せ付けない効果もあります。それはホウ酸が入っているからです。昔ゴキブリ団子ってホウ酸の玉があったのを知っている方もおられるかと思います。ホウ酸って大丈夫??と言われることもありますが、ホウ酸は目薬にも使われるほど安全なものです。この害虫予防の効果も人気の一つでしょう。

世田谷区S様邸_断熱

セルロースファイバーには、延焼を防ぐ性能を持っている特徴があります。セルロースファイバーは新聞紙です。普通に考えれば
燃えるのでは??と考えます。しかしセルロースファイバーにはホウ酸を混ぜています。そのため、一度燃えても消火作用があり消えてしまいます。

世田谷区S様邸_断熱

セルロースファイバーは目に見える、体感できる効果として吸音は確かにわかりやすい性能になりこの効果で採用を決める方もおられます。しかし、木造住宅に最もセルロースファイバーがマッチする理由として、壁内結露を防止する役割があります。湿気があるときは湿気を吸い、乾くと放出します。木造で一番怖いのが壁内結露になります。​

セルロースファイバーの唯一のデメリットとも言えるのが、外周部の壁全面に目いっぱい充填するわけですが原材料は新聞紙です。これを細かく粉砕して充填しています。したがって、コンセントや電気配線などを一度設置してしまうとその後の移動ができないという点が挙げられます。このデメリットと断熱・吸音・防虫・防炎のメリットを比較して採用されるかを決定していただきたいと思います。

2-6 外壁工事


モルタル外壁を手壊して解体する、

躯体残しのスケルトンリフォームでは、

外壁は構造用合板を4方全面に張り壁強度を高めます。

S様邸二世帯住宅リフォームでは

外壁仕上げがサイディングでしたので、

外周面の構造用合板全面張り後、

防水シートを張り、通気胴縁を打ち、

サイディングを張っていく工程となります。

 

世田谷区S様邸_外壁工事

構造用合板を全面張ることで、壁倍率が2倍になります。外壁を剥がすスケルトンリフォームは解体費用が手壊しで高くなりますが、長期で建物のことを考えた際、このような補強は、有効です。新築ではあたりまえの工事となっていますが、築40年の建物ではこのような構造にはなっていません。2世帯住宅への大規模リフォームであれば、このように長期的に安心できる構造にしておくのが良いと考えています。

世田谷区S様邸_外壁工事

一階、依頼主である子世帯のS様居住スペース(寝室)面の壁となっていますが、窓をつけなかったのは、構造計算上どうしても耐力壁にしたかったからです。そのためこちら面にクローゼットを配置し、窓の位置は違う面で開口をしました。

世田谷区S様邸_外壁工事

構造用合板全面張りが終わると、防水透湿シートを同じく全面に張っていきます。

世田谷区S様邸_外壁工事

2階バルコニーの内側です。

世田谷区S様邸_外壁工事

サイディングが納品されました。

世田谷区S様邸_外壁工事

採用されたサイディングはケイミュー社の15mm厚ランブル EW4262です。重厚感がありとても上品なサイディングです。

世田谷区S様邸_外壁工事

先ほど説明いたしました一階、S様寝室の違う面です。こちらに窓を設置しました。

世田谷区S様邸_外壁工事

寝室側から見た玄関です。外壁がかわるとイメージがガラリとかわります。

 

2-7 内装仕上げ


世田谷区S様邸_内装仕上げ

躯体補強後、セルロースファイバーの充填が終わると内装段階に入ります。ボードを張りフロアも張っていきます。

世田谷区S様邸_内装仕上げ

ここから現場の景色は一気に変わっていきます。解体〜セルロースファイバー充填までに大半の時間を要するのが木造改築工事の特長でもあります。

 

 

3 二世帯住宅リフォーム完成 (竣工)

長かった東京都世田谷区の

S様邸2世帯住宅リフォーム工事も

いよいよお引渡しを迎えました。

室内は明るく開放感をだすために、

白を基調とした仕上材を採用しました。

一番日当たりの良い旧和室部分を

2世帯住宅の子世帯リビングに配置し、

バルコニーへの開口は大きく取っています。

 

限られたスペースで開放感がある空間が出来、

S様ご夫婦にも大変お喜び頂けました。

施工冥利に尽きる瞬間でもあります。

 

世田谷区S様邸_竣工
世田谷区S様邸_竣工

▲ 壁面はLIXILエコカラット VIT1NNを使用しております。下の収納はPanasonicキュビオスです。

  壁面の棚・建具もPanasonicで統一させて頂いております。

  ダウンライトもPanasonic LGB7224 昼白色~電球色 までの色を変えられ向きも変える事を可能な物を付けさせて頂いております。

世田谷区S様邸_竣工
世田谷区S様邸_竣工

▲ キッチンはI型を対面の様にし、カウンターを造作で設置させて頂きました。

世田谷区S様邸_竣工
世田谷区S様邸_竣工

▲ 洋室に1面収納スペースにさせて頂いております。

世田谷区S様邸_竣工
世田谷区S様邸_竣工

▲ 2階バルコニーは大きめに5畳分のスペースを取っております。

世田谷区S様邸_竣工
世田谷区S様邸_竣工

▲ 1階のご両親様の寝室は畳で納めさせて頂きました。

少しでも収納力をとご要望を頂きましたので

畳の床下収納を入れさせて頂いております。

 

世田谷区S様邸_竣工
世田谷区S様邸_竣工
世田谷区S様邸_竣工
世田谷区S様邸_竣工
世田谷区S様邸_竣工
世田谷区S様邸_竣工

 

3-1 外壁 Before → After


世田谷区S様邸_施工前

リフォーム前

東京都世田谷区にあるS様ご主人のご兄弟の建物を相続され築40年数年誰も住んでいなかった建物。こちらをS様ご夫婦とS様の奥様のご両親との2世帯住宅を計画されたのが今回の2世帯住宅リフォームの動機です。外観も古く、外壁までを解体する躯体残しのスケルトンリフォームを提案しました。

世田谷区S様邸_竣工

S様邸はガレージの上に建つ建物となっております。高級感を出すために、ガレージ周りをタイル張りとし、外壁と同系色でまとめ、一体感を出しました。

3-2 キッチン Before → After


世田谷区S様邸_施工前

リフォーム前

既存間取りでのキッチン。リフォーム後は玄関となっていますが、リフォーム前は旧型の流し台が設置しておりました。

世田谷区S様邸_竣工

システムキッチンはトクラスのBbでご選定を頂きました。人工大理石の天板とシンクが特徴的です。オプションで追加されたのはレンジフードをサイクロンフードへ、水栓を浄水器内蔵型へ、ガスコンロのグリルを両面焼きの物へ変更されております。1階と2階は同じ仕様となっております。

3-3 バス Before → After


世田谷区S様邸_施工前

リフォーム前

解体後にわかった最も被害の大きかった既存浴室。こちらの浴室の土台、柱はすべて腐っていました。

世田谷区S様邸_竣工

ユニットバスはTOTOサザナの1612タイプの HSシリーズ Sタイプです。ユニットバスでオプションに付けたのは、換気乾燥暖房機と断熱材パックです。断熱材パックはお風呂全体を断熱材で包み込むイメージの商品です。

3-4 洗面 Befoer → After


世田谷区S様邸_施工前

リフォーム前

既存の浴室につながる脱衣所。こちらも浴室との境界となる間仕切り壁下の土台、柱は腐っており、リフォーム後には新しい柱、土台を設置しています。

世田谷区S様邸_竣工

洗面化粧台はPanasonicシーラインです。当初は、引き出しタイプのプランだったのですが、工事が進むにつれ洗面化粧台の下の位置に大きな梁が通っており、配管の切り回しの関係で引き出し+開き戸のプランにご変更をさせて頂きました。

3-5 トイレ Before → After

世田谷区S様邸_施工前

リフォーム前

既存トイレ。tく40年を超える建物のため、和式のトイレでした。

世田谷区S様邸_竣工

トイレはハイウィルオリジナルトイレです。ウォシュレット紙巻き器がセットになった商品になります。

3-6 リビング Before → After


世田谷区S様邸_施工前

リフォーム前

2階の和室は、こちらの住宅で最も陽当たりも良いスペースとなりますため、まるごとリフォーム後はLDKにてご提案させていただきました。こちらの壁面収納はオーダー収納扉で造作しています。

世田谷区S様邸_竣工

2階のLDKです。フローリング、建具はPanasonicベリティスからご選定を頂いております。建具はホワイトアッシュ柄、床はホワイトオーク柄をご選定頂いております。ご両親様のお部屋は床・建具Panasonicベリティスのオーク柄をご選定頂きました。

ハイウィルスタッフ

4 担当者より ハイウィル株式会社四代目代表 稲葉高志

S様よりご相談を頂きましたのは、大手リフォーム会社での2世帯住宅リフォーム計画が進んでいる段階でのご相談でした。大手リフォーム会社で提案された間取りと工事内容、そして費用面でどうしても納得ができないといった相談でした。しかも工事自体を急がれており入居されたい日程が決まっておりましたので、1か月後には解体をしなければとても間に合わないとお話させていただきました。通常、ご契約までに平均的に2か月から3か月をお打ち合わせ期間となっていますが、S様にもご協力を頂き、2世帯分の間取り、補強案、できることとできないことなど擦り合わせをさせていただきました。おかげさまで、予定通りに工事を進めることができました。長期間の工事にもかかわらず毎日奥様が、弊社の職人へお手紙と一緒にお茶とお菓子の差し入れを頂くなど職人も感謝しております。長期で安心できる建物になったと自信をもってお引渡しをさせて頂きました。

5 雑誌掲載(新建ハウジング プラスワンvol.796)

新建新聞社発行 「新建ハウジング プラスワン」vol.796 にS様の二世帯住宅リフォームに関して取材を受けました。

世田谷区S様邸_雑誌掲載
世田谷区S様邸_雑誌掲載

「住まい手に聞くリフォームの本音」第55回都心における二世帯住宅リフォームコーナー にて取材をS様が受けました。

世田谷区S様邸_雑誌掲載
世田谷区S様邸_雑誌掲載

画像をクリックすると解説ページにジャンプします。

全国のフルリフォーム・リノベーション『ピックアップ事例』※プロの詳細解説付きレポート

HEAT20-G2/耐震等級3
新耐震基準の性能向上リノベーション
築30年ハウスメーカー軽量鉄骨
断熱改修&リノベーション
 
中古住宅を新築以上の耐震性能と断熱性能へ!
耐震等級3フルリフォーム
地下付き木造2階建て
自然素材をつかった性能向上リノベーション&フルリフォーム

東京都文京区 K様邸

長屋を切り離して1つの構造体へフルリフォーム&リノベーション
隣家との距離がない!
部屋から外壁を張り替えるフルリノベーション
中古住宅を耐震等級3へ!
中古住宅リノベーション
 
基礎がない??
築60年の古屋をジャッキアップで基礎新設フルリノベーション

東京都渋谷区 O様邸

戸建てリノベーション・リフォームに関するお問合せはこちら

増改築.comの一戸建てリフォーム専用ホームページに
お越しいただき、誠に有難うございます。
 
増改築.comメンバーは技術集団となり、
他社のような営業マンがおりません。
技術者が直接ご相談にのり問題解決を行います。
 
従いまして、
お客様の方である程度のご要望が整理されました段階、
お悩みが工事内容のどのようなところにあるのか?
ご予算がどの程度絞る必要があるのか?
など明確になった段階でのご相談をお願いしております。
お問合せ・ご相談はお電話・メールにて受け付けております。
メールの場合は以下のフォームに必要事項をご記入の上、
「送信する」ボタンをクリックをお願いします。

代表稲葉高志

戸建てリノベーションの専属スタッフが担当致します。
一戸建て家のリフォームに関することを
お気軽にお問合せください

よくあるご質問
  • 他社に要望を伝えたところできないといわれたのですが・・・
  • 他社で予算オーバーとなってしまい要望が叶わないのですが・・・
  • サービスについて詳しく聞きたいのですが・・・

どのようなお悩みのご相談でも結構です。

あなたの大切なお住まいに関するご相談をお待ちしております。

営業マンはおりませんので、しつこい営業等も一切ございません。

設計会社(建築家様)・同業の建築会社様のご相談につきましては、プランと共にご指定のIw値及びUa値等の性能値の目安もお願い申し上げます。

2026年の大型補助金が確定したことで現在大変込み合っております。

耐震性能と断熱性能を向上させるフルリフォームには6か月~7か月の工期がかかります。

補助金獲得には年内に報告を挙げる必要があることから、お早目にご相談をお願いいたします。(6月着工までが目安

ご提案までに大変お時間がかかっております。ご了承のほどお願い申し上げます。

(5月までの着工枠が埋まりました)・・・2026/03/01更新

※すでにプランをお持ちのお施主様・設計資料をお持ちのお施主様は内容をフォームで送信後、フォーム下のメールアドレスに資料をお送りください。対応がスムーズです。

必須

(例:増改築太郎)

必須

(例:contact@high-will.co.jp)

(例:03-5615-2826)

必須

(例:東京都荒川区西日暮里2-35-1)

(例:築40年)

(例:25坪・100㎡など)

(例:2000万程度など)

  • ※再建築不可のリフォームでは金融機関が限られます。事前審査をお勧めいたします。

    (例:2024年3月くらいに完成希望など)

    必須

    できるだけ具体的にお知らせくださいませ。既存設計資料、リフォーム後のイメージ図等をお持ちであれば下記のメールアドレスより添付をお願いします。

    ※次の画面がでるまで、4~5秒かかりますので、
    続けて2回押さないようにお願いいたします。

    ※次の画面が出るまで、4〜5秒かかりますので、
    続けて2回押さないようにお願いいたします。

    図面や写真等を送信いただく場合、また入力がうまくいかない場合は、上記内容をご確認のうえ、下記メールアドレスまでご連絡ください。

    お電話でのお問合せはこちら

    0120-246-991

    営業時間:10:00~17:00(土日祝日を除く)

    ★YouTube「増改築.comチャンネル」チャンネル登録して新動画解説をいち早くGET!!★
    「増改築.comリノベ診断」であなたに一番ふさわしいフルリフォームを診断!!(動画解説付き)
    ★Facebookページにいいね!を押して最新コンテンツ情報をいち早くGET!!★

    4代目代表よりご挨拶

    稲葉高志

    親切・丁寧な対応をモットーとしておりますのでお気軽にご相談ください。