戸建フルリフォームなら「増改築.com®」TOP > 施工事例 > 都道府県で探す > 東京都大田区 > 施工事例 A様 二棟連結戸建をフルリフォーム&フルリノベーション

再建築不可でも新築以上の耐震性能と断熱性能に生まれ変わる!

大田区|二棟連結の迷宮を「理想の1邸」へ。耐震等級3相当・断熱等級6を叶えた統合リノベーション

大田区A様邸 外観ビフォーアフター

 

本プロジェクトの舞台は、大田区東馬込。築40年、124.83㎡のこの建物は、かつて隣り合っていた2軒の家を物理的に繋げた「連結住宅(ニコイチ)」です。 最大の課題は、1フロアに階段が2つ、トイレも各階に2つ存在するなどの「重複」による面積のロス。さらに、バラバラな形状の屋根は雨漏りのリスクを抱えていました。 通常、屋根の形状を根本から変える(棟を架け替える)には「確認申請」が必要となり、現行法への完全適合(セットバック等)という高いハードルが生じます。そこで今回は、「確認申請を必要としない範囲(修繕・模様替え)」に留めつつ、内部構造の統合と屋根の抜本的なメンテナンス、そしてお子様の個室増設を同時に叶える、緻密な計算に基づいたリノベーションを敢行しました。

建物概要
名前 A様
場所 東京都大田区東馬込
築年数 築40年
構造種別 木造2階建て(2棟連結構造
家族構成 大人2人 子供2人
対象面積 37.8坪
リフォーム部位 ベタ基礎/間取り変更/断熱サッシ/セルロースファイバー/屋上テラス/耐震補強/
工期 5ヶ月
価格 3400万

お客様のご要望

今回のリフォームで、A様からのご要望は以下の5点です。

  • 重複機能の整理: 2つある階段とトイレを1つに集約し、生まれた余白でお子様それぞれの個室を確保したい。

  • 屋根の形状整理と修繕: 確認申請を伴わない範囲で、雨漏りリスクの高い「谷」を解消し、将来のメンテナンス負担を減らしたい。

  • 構造的補強: 連結部分の不確かさを解消し、1つの建物として確かな耐震性能を与えたい。

  • スムーズな資産継承: ご両親名義からA様ご夫婦への贈与にあわせ、リフォームによって「長く住める家」としての確固たる価値を持たせたい。

  • 生活動線の刷新: 迷路のような廊下を廃し、家族が自然に顔を合わせられる現代的なレイアウトへ変更したい。

プランナー 北畠より ~プランニングのポイント~

A様邸のプランニングの鍵は「法規の枠組みの中で、最大限の自由を勝ち取ること」でした。 棟(屋根の最上部)を動かさず、既存の屋根形状を活かしながら雨水の流れを最適化する。そして、内部では「余分な階段」を抜き、その跡地を構造的に補強した上で、お子様の夢だった「自分の部屋」へと転換する。 これは、足し算ではなく、徹底的な「整理と引き算」の設計です。2棟を繋ぐ連結部を、建物の「弱点」ではなく「家族を繋ぐ強固な結び目」へと変えるため、N値計算に基づく精密な補強計画を策定。確認申請を行わないからこそ、社内の施工基準は「新築同等以上」の厳しさで挑む。それが私たちのプライドです。

大田区A様邸 戸建てリノベーション施工事例テーマカテゴリー

 

  • 耐震等級3相当(上部構造評点1.5以上)リフォーム(性能向上リノベーション)
  • HEAT20-G2リフォーム(性能向上リノベーション)
  • 補助金活用リフォーム

打ち合わせから着工、完成までの詳細施工事例解説

1 戸建てリノベーション着工前

1-1 現場調査・打合せ

初回訪問時、最も時間を割いたのは、2棟が接合されている「壁の裏側」の調査でした。

別々に建てられた2つの基礎、2つの構造体がどのように繋がっているのか。

レーザーレベルを当てると、連結部分を境に微妙な傾きの差が確認できました。

A様は「階段が2つあるせいで、掃除も大変だし、何より子供たちの個室が作れないのが悩みで……」と仰っていました。 調査では、屋根裏にも入り、複雑に入り組んだ「屋根の谷」の腐食状態を確認。

棟の架け替えを行わず、既存の形状を活かしつつ雨漏りを止めるための「板金処理の最適解」を模索しました。

また、贈与を控えた新井様のために、リフォーム後の建物の「資産価値の根拠」となる耐震・断熱の数値化についても、深い打ち合わせを重ねました。

大田区A様邸 既存
大田区A様邸 既存
大田区A様邸 既存
大田区A様邸 既存
大田区A様邸 既存
大田区A様邸 既存

施工前の水回り

大田区A様邸 既存
大田区A様邸 既存
大田区A様邸 既存
大田区A様邸 既存

1-2 東京都大田区A様邸 戸建リノベーションプラン

私たちが提示したのは、確認申請を伴わずに性能と居住性を最大化する「内部スケルトン・統合プラン」です。

  • 階段・水回りの1系統化: 北側の階段を撤去し、生まれたスペースでお子様の個室2室をゆったりと確保。

  • 屋根のハイブリッド修繕: 構造(棟)には触れず、屋根材の全面葺き替え(ガルバリウム鋼板等)と、接合部の板金による完璧な止水処置。

  • 2棟連結部の構造緊結: 既存の2つの構造体を、強力な梁と金物で「一体の箱」として機能させる補強設計。

A様は「無理だと思っていた個室が、階段をなくすだけでこんなに綺麗に配置できるなんて」と、私たちの図面の中に、ご家族の新しい未来を見出してくださいました。

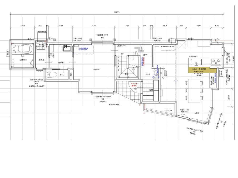
大田区A様邸 1階平面図リノベーション後

1階 戸建てリノベーション後プラン

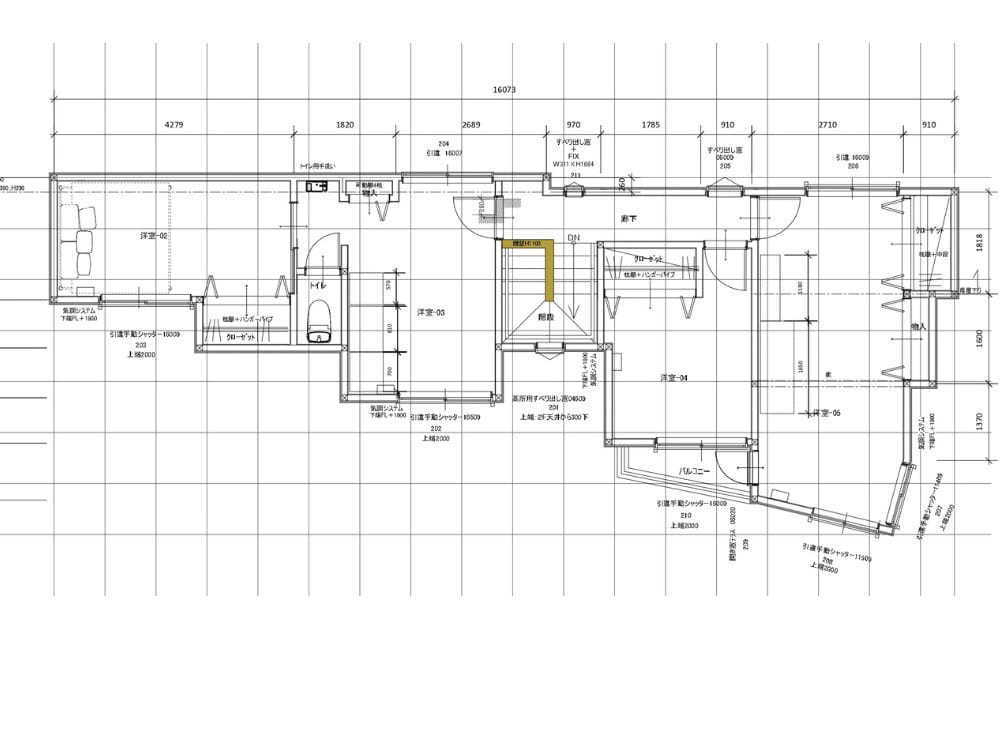
大田区A様邸 2階平面図リノベーション後

2階 戸建てリノベーション後プラン

2 戸建てリノベーション着工

2-1 解体工事

A様邸の解体現場は、まるでパズルを分解していくような独特の光景でした。確認申請を行わない範囲でのリノベーションであるため、主要な構造(棟や柱)を維持しつつ、不要な要素を削ぎ落とす「引き算の解体」を徹底しました。

●解体後の躯体チェック

壁を剥がした瞬間、私たちは2つの棟が接合されている「背骨」の部分と対峙しました。

そこには、元々別々だった2つの構造体が、力技で繋ぎ合わされた痕跡がありました。柱と柱の間にわずかな隙間があったり、梁の高さが微妙に異なっていたりと、40年前の増築の苦労が伺えます。

しかし、この「接合部の甘さ」こそが、これまでA様が感じていた「家全体のわずかな揺れ」の正体でした。私たちはこの解体により、どこを繋ぎ、どこを補強すべきか、手術の執刀医のように正確な「患部」を特定しました。

 

■ 階段の撤去:空間が「呼吸」を始めた瞬間

今回のリノベーションの最大のハイライトである「北側階段の撤去」。 古い階段を解体し、1階から2階まで突き抜ける大きな空間(空洞)が現れた瞬間、現場の空気が一変しました。 「ここに階段がなくなっただけで、こんなに広くなるのか……」 立ち会った新井様も、その広がりを実感され、驚きの声を漏らされました。この約4.5畳分の垂直空間が、お子様たちの新しい個室や収納へと姿を変える「魔法の種」になります。

 

■ 屋根裏の真実:棟を変えずに「谷」を直すための調査

棟(屋根の最上部)に触れないという法的制約がある中で、雨漏りを止めるための精密な調査を行いました。 剥き出しになった屋根の裏側には、2棟の屋根が重なり合う「谷」の部分に、過去の浸水の痕。しかし、幸いにも主要な梁は腐朽まで至っておらず、健全な状態でした。 「棟を動かさなくても、板金と防水紙の適切な処理で、この『谷』は完全に封じ込める」 現場監督のこの確信が、今回の「形状を変えない屋根修繕」の成功を決定づけました。

大田区A様邸 解体工事
大田区A様邸 解体工事
大田区A様邸 解体工事

■ スケルトンが教える「次の一手」

解体により、以下の3点が明確になりました。

  1. 連結部の補強点: 2棟を「1つの箱」にするための緊結ポイントの特定。

  2. 断熱欠損の場所: 以前の家がいかに「隙間だらけ」だったかを示す、断熱材のズレ。

  3. 新たな動線の可能性: 階段がなくなったことで、1階と2階の「繋がり」がよりスムーズに構築できるという確信。

40年間の垢を落とし、純粋な「骨組み」に戻ったA様邸。ここからは、この骨格を鍛え直し、家族の新しい物語を詰め込んでいく「基礎・構造補強」へと進みます。

 

大事な構造部のすべてが目視可能となるスケルトンリフォーム

内部の天井・壁・床だけでなく外壁まで解体しスケルトン状態(躯体残し)にする戸建てリノベーションの最大のメリットはこのような重要な主要構造部のすべての状態が目視でわかることになります。

フルリノベーション後は、これらの構造上の弱点をすべて修正し補強することで新築と同水準、もくしくはそれ以上の建物性能をもつ構造躯体へ甦らせることが可能となります。

2-2 基礎補強工事

築40年前後の住宅によく見られる「無筋基礎」は、現代の耐震基準(上部構造評点1.5以上)を支えるにはあまりに脆弱です。

特にA様邸は2棟を連結しているため、地震の際に2つの基礎がバラバラに動くことが最大の懸念でした。

これを解消するための「外科手術」が始まります。

 

① 配筋(Haiking):既存基礎との「血の通った」結束

単に新しい鉄筋を並べるだけでは、古い基礎と新しい基礎は一体化しません。

  • ケミカルアンカーの打設: 既存の無筋基礎に対し、一定の間隔で精密に穴を開け、高強度のケミカルアンカーを打ち込みます。これが「古い骨」と「新しい肉(コンクリート)」を繋ぐ強力な楔(くさび)となります。

  • D13異形鉄筋の密な組み上げ: 主筋・縦筋には太さ13mmの鉄筋を採用。連結部にはさらに密なピッチで配筋を施しました。まるで籠を編むかのようなこの密度こそが、巨大な地震エネルギーを受け止める「しなり」と「強さ」を生み出します。

大田区A様邸 基礎工事
大田区A様邸 基礎工事
大田区A様邸 基礎工事

【コンクリート打設】

型枠を組み上げ、いよいよコンクリートを流し込みます。

  • 高強度コンクリートの採用: 住宅用としては最高クラスの強度を持つ生コンクリートを選択。

  • バイブレーターによる入念な空気抜き: 密集した鉄筋の隅々までコンクリートを行き渡らせるため、バイブレーター(振動機)を用いて気泡を徹底的に排除します。この「密度の高さ」が、40年前の無筋基礎にはなかった「圧倒的な質量感」を建物に与えます。

  • 連結部の重点打設: 2棟が接する境界部分には特に厚みを持たせ、2つの足元が「一つの巨大な盤石」となるよう一体化させました。

脱型(完成)

数日間の養生期間を経て、型枠を外す(脱型)瞬間。

  • 美しいコンクリート肌の出現: 姿を現したのは、気泡ひとつない滑らかで力強い新しい基礎です。

  • 構造の一体化完了: 既存の基礎を包み込むように新設された添え基礎は、もはや別々の2棟のものではありません。A様邸全体を「一つの面」で支える、文字通りの「要塞の礎」がここに完成しました。

大田区A様邸 基礎工事
大田区A様邸 基礎工事

この工程の意義

無筋基礎への補強は、リフォームにおける「目に見えない最大級の投資」です。しかし、この足元が固まって初めて、次に続く「階段撤去」や「木工事」による大胆な間取り変更が、安全性の裏付けを持って可能になります。

A様がこれから数十年、ご家族と安心して暮らすための「根拠」が、このコンクリートの塊の中にしっかりと詰まっています。

基礎という盤石な「礎」が固まったところで、いよいよリノベーションの真骨頂である「木工事(構造再定義)」へと突入します。

A様邸の最大の特徴は、別々の2棟が連結された「ニコイチ住宅」であること。そして、1系統の階段を撤去したことで生まれた「構造的な空白」があることです。これらをいかにして解消し、令和の耐震基準(評点1.5)を達成したのか。増改築.com®が現場に注ぎ込んだ「構造の狂気」を3つの視点で詳述します。

【構造補強】

木工事は、単に部屋を区切る作業ではありません。それは、40年間の経年劣化と「ニコイチ」という不安定な成り立ちを、最新の構造工学によって「強靭な一つの箱(剛体)」へと書き換えるプロセスです。

 

1. 構造補強のロジック:連結部の「脆弱」を「最強」へ

A様邸において、最も構造的なリスクが潜んでいたのは「2棟の接合部」と「階段撤去跡」でした。

  • 連結部の「カップリング補強」: 40年前は物理的に接していただけだった2棟の柱と梁を、今回は高強度の平金物やボルトを用いて、あたかも最初から1本の太い木材であったかのように緊結しました。これにより、地震時に2棟が別々の周期で揺れて衝突し合う「離散現象」を防ぎます。

  • 階段跡の「構造補強」: 階段を撤去した約4.5畳分の吹き抜け状の空間は、建物にとっては大きな「傷口(欠損)」です。私たちはこの穴をただ塞ぐのではなく、周囲の柱を新設・増設した上で、通常より太い「合わせ梁(2本の梁を一体化させたもの)」を投入。2階の床荷重を支えるだけでなく、建物全体の歪みを抑止する「水平構面(床の強さ)」を大幅に強化しました。

大田区A様邸 木工事
大田区A様邸 木工事
大田区A様邸 木工事
大田区A様邸 木工事
大田区A様邸 木工事
大田区A様邸 木工事

【N値計算書に基づく柱頭柱脚金物の設置】

耐震性能を高めるために「強い壁(耐力壁)」を増やすと、実は地震の際に柱が土台から引き抜かれようとする力が強くなります。この「引き抜き力」を数値化し、最適な金物を選定するのが「N値計算」です。

  • 理詰めのハードウェア選定: 「なんとなく頑丈そうな金物」を使う時代は終わりました。A様邸では、全100箇所以上の接合部に対し、一本一本の柱にかかる引き抜き力を計算。

    • ホールダウン金物(15kN〜25kN): 巨大な力(1.5トン〜2.5トン)で引き抜かれようとする柱を、基礎と直結して封じ込めます。

    • 柱頭柱脚金物: 壁の強さに合わせ、計算上導き出された最適な耐力を持つプレートを配置。

  • 「面」の力を「点」で逃がさない: 耐力壁で受け止めた地震のエネルギーを、この金物たちが確実に基礎へと受け流す。この連動こそが、評点1.5(耐震等級3相当)の科学的根拠です。

大田区A様邸 木工事(耐震改修)
大田区A様邸 木工事(耐震改修)
大田区A様邸 木工事(耐震改修)
大田区A様邸 木工事(耐震改修)
大田区A様邸 木工事(耐震改修)

【耐力壁:ノボパン】

建物の「粘り」と「強さ」を決定づけるのが、構造用パーティクルボード「ノボパンSTP II」を用いた耐力壁の施工です。

  • なぜ「ノボパン」なのか: 従来の「筋交い(すじかい)」は、ある一定以上の力がかかると折れたり外れたりするリスクがありました。一方、ノボパンは壁全体を「面」で支えるため、地震の力を壁全体に分散させ、建物がバラバラになるのを防ぎます。

  • 「重心」と「剛心」の追求: ただ壁を強くするだけでは不十分です。建物の重さの中心(重心)と、強さの中心(剛心)が離れていると、地震時に建物が「ねじれ」を起こします。 A様邸では、2棟の連結部を中心に、1階と2階の壁の位置を揃える(直下率の向上)とともに、東西南北の壁量バランスをミリ単位で調整。階段を撤去したことで生まれた自由な空間設計を活かし、最も効率的に建物を支えるポイントにノボパンを集中的に、かつバランス良く配置しました。

大田区A様邸 木工事(耐震改修)
大田区A様邸 木工事(耐震改修)
大田区A様邸 木工事(耐震改修)

木工事が完了したとき、そこにはかつての「ニコイチ」の不安は微塵もありませんでした。

N値計算に基づき、適材適所に配置された鈍く光る金物たち。

そして、整然と打ち付けられたノボパンの壁。これらは仕上げ材(クロス)を貼れば二度と見ることができません。

しかし、この壁の裏側に宿った「構造の狂気」こそが、A様ご家族が30年後の大地震の際、笑顔でリビングに立っていられるための唯一の保証書なのです。

階段というデッドスペースを「最強の構造体」へと変え、2棟を1つの「剛体」へと昇華させた木工事。家は今、40年前の新築時を遥かに凌ぐ強度を持って、次の工程を待ち構えています。

2-4 断熱工事【断熱改修】

断熱工事の本質は、単に断熱材を詰め込むことではありません。どれほど高性能な素材を使っても、そこに「隙間」があれば熱は逃げ、湿気が入り込み、結露による構造の腐朽を招きます。A様邸では、断熱性能だけでなく「気密性能」を極限まで高めるため、職人がミリ単位のテープ処理を重ねる「精密施工」を行いました。

【床断熱・気密シート・浴室基礎断熱】

冬の不快な「底冷え」を根絶するため、床下には最高クラスの断熱性能を持つフェノールフォーム断熱材(75mm厚)を投入しました。

  • 床断熱の精密充填: 根太(ねだ)の間に断熱材を隙間なくはめ込みます。ここで重要なのは、木材と断熱材のわずかな隙間です。私たちはその全ての接合部に「気密テープ」を貼り、床下からの冷気の侵入を物理的にシャットアウトしました。

  • 気密シートの敷設: 断熱材の上からさらに気密シートを被せ、構造体との取り合いをシールします。これにより、床下から壁体内へ空気が流れる「煙突効果」を防ぎます。

  • 浴室の基礎断熱: 従来、最も冷え込みやすかった浴室周りには、床断熱ではなく「基礎断熱」を採用。基礎の内側に断熱材を張り巡らせ、さらに床下点検口周りには高気密タイプを使用することで、冬場のヒートショックのリスクを最小限まで抑え込みました。

大田区A様邸 断熱工事
大田区A様邸 断熱工事
大田区A様邸 断熱工事

【壁断熱・気密シート・気密テープ処理・コンセントボックス】

壁は家の中で最も大きな面積を占める熱の出入り口です。ここでは断熱材の「充填」と、気密シートによる「防湿」の徹底が求められます。

  • 高性能グラスウールの充填: 壁体内には高性能グラスウールを隙間なく充填。ハーフスケルトンゆえに残した既存の柱や、新設したノボパンの壁の間に、断熱材が「自立」する絶妙な密度で収めていきます。

  • 気密・防湿シートの連続性: 断熱材の室内側には、厚さ0.1mmの防湿気密シートを隙間なく貼ります。このシートが1ミリでも途切れると、そこから室内の湿気が壁内に入り込み、内部結露の原因となります。シートの重なり部分(ラップ)には全て気密テープを施し、家中を「ビニールの膜」で包むような連続性を確保しました。

  • コンセントボックスの気密処理: 壁の断熱における最大の弱点は「スイッチやコンセント」です。ここから漏れる「コンセント風」を防ぐため、全てのボックスに専用の「気密カバー」を被せ、配線の出口まで防湿シールで封鎖しました。この「目立たない箇所の執念」が、A様邸のQ値を劇的に向上させます。

大田区A様邸 断熱工事
大田区A様邸 断熱工事
大田区A様邸 断熱工事

【天井断熱】

A様邸は2棟連結の影響で、屋根の形状が複雑でした。その屋根裏から降り注ぐ夏の熱気を遮るのが天井断熱の役割です。

  • アクリア3層の圧倒的ボリューム: 天井裏には高性能グラスウール(アクリア等)を3層、合計240mm以上の厚みで敷き詰めました。まるで分厚い雲で家を覆うように施工することで、最上階の室温上昇を劇的に抑えます。

  • 2棟連結部の隙間充填: 「ニコイチ」特有の、2棟が重なり合う複雑な梁周りや小屋組みの隙間は、定型の断熱材では埋めきれません。こうした箇所には、現場で「一液性発泡ウレタン」をスプレー状に吹き付け、複雑な形状に合わせて隙間を完全に埋め尽くしました。

大田区A様邸 断熱工事
大田区A様邸 断熱工事
大田区A様邸 断熱工事

大田区A様邸 断熱データ

場所 製品 断熱グレード
床断熱材 押出法ポリスチレンフォーム ミラフォームラムダ F(熱伝導率0.022W/(m・K))

壁断熱材

高性能グラスウール 太陽SUNR C(熱伝導率0.035W/(m・K))
天井断熱材

高性能グラスウール アクリア

C(熱伝導率0.037W/(m・K))
玄関ドア YKKAP ヴェナートD30 防火 C
サッシ

YKKAP APW330 防火 樹脂窓

S~A(ZEHレベル)

HEAT20-G2リフォームとは?

<HEAT20とは?>

HEAT20とは、「2020年を見据えた住宅の高断熱化技術開発委員会」という団体名です。

その団体が設定しているのが、屋根や外壁、床、窓などの「外皮」と呼ばれる部位の断熱や遮熱などといった性能の評価基準であり、G1とG2の2段階あります。G2の方がより高性能な性能を有する外皮となっています。

<省エネ基準の家とHEAT20の家の違い>
省エネ基準の家とHEAT20の家の違い

HEAT20-G2の家は、省エネ基準の家の30~50%の暖房費を削減できる

 

「増改築.com®」によると、断熱リフォームの基準として、平成28年の建築物省エネ法基準に相当するUa値0.87が等級4(最高等級)とされています。しかし、この基準だけでは、真の省エネ住宅とは言えません。実際に、日本の断熱等級4は、2020年の建築基準法で努力義務とされているに過ぎません。しかし、2022年4月には断熱等級5が新設され、さらに2022年10月には断熱等級6・7が新設されました。断熱等級6・7は、これまでの断熱等級4と比べて、はるかに高いレベルの断熱性能が求められます。 HEAT20の計画においては、ZEH基準のUa値0.6を基準としています。これは、外壁105mm、U値2.33の樹脂アルミ複合サッシ窓で、天井の断熱材は105mmあれば実現できるとされています。さらに上位のHEAT20 G1グレードでは、6地域でUa値0.56となり、このレベルでは断熱環境を体感できるとされています。

最上位のHEAT20G2グレードでは、5地域でUa値0.46となっています。

断熱改修(温熱改修)リフォームを成功させるためには、これらの基準や計画をしっかりと理解し、適切な施工方法を選択することが重要となります。

2-5 外壁工事

A様邸の外壁工事において、私たちが最も心血を注いだのは「目に見える美しさ」の裏側にある「止水への執着」です。

2棟を連結しているこの家には、通常の家にはない「継ぎ目」が存在します。この急所をいかに処理し、建物の寿命を延ばすかが、今回の外装改修の真のテーマでした。

 

1. ニコイチの弱点を克服する「多重防水」と「裏打ち工法」

築40年の連結住宅において、最も雨漏りリスクが高いのは、2つの棟が接する垂直の境界線と、新しく入れ替えた高性能サッシ(APW330)の周囲です。

  • サッシ周りの「裏打ち工法」: 一般的には防水テープを貼るだけで済ませるサッシ周りですが、増改築.com®ではさらに一歩踏み込んだ「裏打ち」を施します。防水シート(透湿防水シート)をサッシ枠の裏側まで巻き込み、さらに専用の防水部材とブチルテープで二重、三重の防水ラインを形成。万が一、外壁のジョリパットにクラックが入っても、構造体には一滴の雨水も通さない「多層防御」を完遂しました。

  • 連結部の特殊止水処理: 2棟の接合部分は、地震や風でわずかに挙動が異なります。この「動き」を許容しつつ水を止めるため、特殊な伸縮性のある防水部材とシーリング材を組み合わせ、連結部専用の止水ラインを構築しました。

 

 

2. 外壁通気工法:構造を腐らせない「空気の道」

断熱等級5の「魔法瓶」のような住まいに不可欠なのが、壁の中の湿気を逃がすシステムです。

  • 通気胴縁の施工: 防水シートの上に、一定の間隔で「胴縁(どうぶち)」と呼ばれる木材を打ち付け、外壁材(下地)との間に15mm〜18mmの空気層を作ります。

  • 煙突効果による排湿: 土台付近から空気を取り込み、軒先から逃がす。この空気の流れ(煙突効果)により、壁体内にこもった湿気を常に排出し続けます。これにより、せっかく補強した「ノボパン(構造用面材)」や柱が、結露で腐るリスクを物理的に根絶しました。

 

3. 仕上げ:職人の感性が光る「ジョリパット」のコテ塗り

最終的な化粧材には、アイカ工業の「ジョリパット」を採用しました。量産型のサイディング(板材)を貼り合わせるのではなく、あえて手間のかかる「塗り壁」を選んだのには、A様邸ならではの理由があります。

  • ニコイチの「境界」を消す意匠性: サイディングではどうしても目地(継ぎ目)が出てしまいますが、ジョリパットは職人が現場で一塗りずつ仕上げるため、かつて別々だった2棟をひとつのシームレスな「邸宅」として統合することができます。

  • 柔軟性と耐久性の両立: ジョリパットは塗膜に柔軟性があるため、木造住宅の微細な動きに追従し、ひび割れが起きにくいのが特徴です。

  • コテ塗りの深い表情: 太陽の当たり方によって刻々と表情を変える塗り壁の質感は、既製品では決して出せない品格をA様邸に与えました。足場が外れ、生まれ変わった外観が現れたとき、そこにはかつての「継ぎ接ぎの家」の面影はどこにもありませんでした。

大田区A様邸 外壁工事
大田区A様邸 外壁工事
大田区A様邸 外壁工事
2-6 造作工事

構造部の構造補強が終わると、造作工事に入ります。

大田区A様邸 造作工事
大田区A様邸 造作工事
大田区A様邸 造作工事

3 戸建てリノベーション竣工

約5か月の工事を経て、いよいよ竣工です。

築40年の2棟連結戸建てがどのように生まれ変わったのか。

A様邸の様子をご紹介します。


  =外観==  

Before

大田区A様邸 既存外観

施工前は外壁の汚れやヒビも目立っていました

After

大田区A様邸 竣工外観

施工後の外壁はAICAジョリパッド左官仕上げです

大田区A様邸 竣工

玄関ドアはYKKAPヴェナートD30防火ドア

大田区A様邸 竣工

  == 1F LDK ==  

Before

大田区A様邸 既存

施工前も対面キッチンでしたが設備の更新を希望されました

After

大田区A様邸 竣工

施工後の床材・室内建材はパナソニックのベリティスシリーズ

大田区A様邸 竣工
大田区A様邸 竣工

リビング側に棚の造作


  == 1F 水まわり ==  

Before

大田区A様邸 既存

After

大田区A様邸 竣工

施工後のキッチンはトクラス「Bb」

大田区A様邸 竣工

浴室はTOTOサザナ

大田区A様邸 竣工

洗面台はTOTOエスクアLS

大田区A様邸 竣工

トイレはTOTOネオレストRS1


  == 居室ほか ==  

大田区A様邸 竣工
大田区A様邸 竣工
大田区A様邸 竣工
大田区A様邸 竣工

4 補助金利用

大田区A様邸の工事では、国の補助金「子育てエコホーム支援事業」と「先進的窓リノベ事業」、東京都の「既存住宅における省エネ改修促進事業」を併用活用しました。

省エネにつながるエコ住宅設備や、断熱性能の高い断熱材・ドア・窓の設置などに対して交付される補助金です。

 

A様邸の補助金対象工事

エコ住宅設備の設置 給湯器(エコジョーズ)、高断熱浴槽、節水型トイレ、節湯水栓
断熱改修 外壁・床・天井の断熱材、断熱窓、断熱ドア ※東京都補助金併用
子育て対応改修 ビルトイン自動調理対応コンロ、掃除しやすいレンジフード、ビルトイン食洗器、浴室乾燥機

 

A様邸工事の補助金交付額(総額):195万円

5 担当者より
(「増改築.com®」本部ハイウィル株式会社四代目代表稲葉高志)

A様、本当にお疲れ様でした。そして、大切なご両親から受け継ぐこの場所の再生を、に増改築コムに託してくださったこと、心より感謝申し上げます。

初めて大田区東馬込の現場を訪れた日のことを、今でも鮮明に覚えています。「どこを歩いても階段やトイレに突き当たる」という、文字通り迷宮のような間取り。A様が「子供たちの部屋を作ってあげたいけれど、どこをどう触ればいいのか……」と、図面を前に途方に暮れていらっしゃった姿が印象的でした。

 

■ 「攻め」と「守り」の設計判断

今回のプロジェクトで最も難しかったのは、「何をやらないか」を決めることでした。 屋根の棟を架け替えれば見た目はスッキリしますが、それでは「確認申請」という高いハードルが立ちはだかり、工期も予算も、そして法的な制約も膨れ上がってしまいます。

私たちはプロとして、あえて「棟(構造)を動かさない」という守りの戦略をとりつつ、内部では「階段を抜く」という攻めの外科手術を提案しました。このバランスを信じて任せてくださったことが、限られた予算内で、耐震評点1.5と断熱等級5を両立させる「賢いリノベーション」の成功に繋がりました。

 

■ 現場で見た「家族の物語」の統合

解体後、剥き出しになった連結部の柱を見たとき、私はこの家が歩んできた40年の歴史を感じました。別々に建てられた2つの家が、家族の成長に合わせて必死に寄り添ってきた跡。それを今回、N値計算に基づいた金物と基礎補強によって、物理的にも「一つの命」として繋ぎ直すことができました。

特に、不要だった北側の階段を撤去した跡に、お子様たちの新しい個室が組み上がっていく様子は、まさに「古い記憶が新しい希望に置き換わる」瞬間でした。A様が現場で「こんなに広くなるんですね」と驚かれたあの笑顔が、私たち職人チームにとって最大の活力となりました。

 

ご両親が大切にされてきた場所を、贈与という形で受け継ぎ、そこに現代の科学(耐震・断熱)を注ぎ込む。これは単なるリフォームではなく、「資産の正当な継承」です。

A様、工事は終わりましたが、家は生きています。無垢の木が呼吸し、季節とともに家が馴染んでいく過程で、何かあればいつでもお声がけください。品川・大田の街を熟知する「家守り」として、私たちはこれからもA様ご家族の傍にあり続けます。

この「新しく、懐かしい家」が、お子様たちの成長を優しく見守り、笑顔の絶えない場所であり続けることを切に願っております。

他のリフォーム事例を見る

再建築不可のフルリフォーム&リノベーション

兵庫県神戸市 N様邸

再建築不可リノベーション

東京都杉並区 M様邸

再建築不可 中古住宅リフォーム&リノベーション

東京都目黒区 A様邸

地盤沈下(家の傾き)補正の戸建リノベーション

東京都板橋区 O様邸

戸建てリノベーション・リフォームに関するお問合せはこちら

増改築.comの一戸建てリフォーム専用ホームページに
お越しいただき、誠に有難うございます。
 
増改築.comメンバーは技術集団となり、
他社のような営業マンがおりません。
技術者が直接ご相談にのり問題解決を行います。
 
従いまして、
お客様の方である程度のご要望が整理されました段階、
お悩みが工事内容のどのようなところにあるのか?
ご予算がどの程度絞る必要があるのか?
など明確になった段階でのご相談をお願いしております。
お問合せ・ご相談はお電話・メールにて受け付けております。
メールの場合は以下のフォームに必要事項をご記入の上、
「送信する」ボタンをクリックをお願いします。

代表稲葉高志

戸建てリノベーションの専属スタッフが担当致します。
一戸建て家のリフォームに関することを
お気軽にお問合せください

よくあるご質問
  • 他社に要望を伝えたところできないといわれたのですが・・・
  • 他社で予算オーバーとなってしまい要望が叶わないのですが・・・
  • サービスについて詳しく聞きたいのですが・・・

どのようなお悩みのご相談でも結構です。

あなたの大切なお住まいに関するご相談をお待ちしております。

営業マンはおりませんので、しつこい営業等も一切ございません。

設計会社(建築家様)・同業の建築会社様のご相談につきましては、プランと共にご指定のIw値及びUa値等の性能値の目安もお願い申し上げます。

2026年の大型補助金が確定したことで現在大変込み合っております。

耐震性能と断熱性能を向上させるフルリフォームには6か月~7か月の工期がかかります。

補助金獲得には年内に報告を挙げる必要があることから、お早目にご相談をお願いいたします。(6月着工までが目安

ご提案までに大変お時間がかかっております。ご了承のほどお願い申し上げます。

(5月までの着工枠が埋まりました)・・・2026/03/01更新

※すでにプランをお持ちのお施主様・設計資料をお持ちのお施主様は内容をフォームで送信後、フォーム下のメールアドレスに資料をお送りください。対応がスムーズです。

必須

(例:増改築太郎)

必須

(例:contact@high-will.co.jp)

(例:03-5615-2826)

必須

(例:東京都荒川区西日暮里2-35-1)

(例:築40年)

(例:25坪・100㎡など)

(例:2000万程度など)

  • ※再建築不可のリフォームでは金融機関が限られます。事前審査をお勧めいたします。

    (例:2024年3月くらいに完成希望など)

    必須

    できるだけ具体的にお知らせくださいませ。既存設計資料、リフォーム後のイメージ図等をお持ちであれば下記のメールアドレスより添付をお願いします。

    ※次の画面がでるまで、4~5秒かかりますので、
    続けて2回押さないようにお願いいたします。

    ※次の画面が出るまで、4〜5秒かかりますので、
    続けて2回押さないようにお願いいたします。

    図面や写真等を送信いただく場合、また入力がうまくいかない場合は、上記内容をご確認のうえ、下記メールアドレスまでご連絡ください。

    お電話でのお問合せはこちら

    0120-246-991

    営業時間:10:00~17:00(土日祝日を除く)

    ★YouTube「増改築.comチャンネル」チャンネル登録して新動画解説をいち早くGET!!★
    「増改築.comリノベ診断」であなたに一番ふさわしいフルリフォームを診断!!(動画解説付き)
    ★Facebookページにいいね!を押して最新コンテンツ情報をいち早くGET!!★

    4代目代表よりご挨拶

    稲葉高志

    親切・丁寧な対応をモットーとしておりますのでお気軽にご相談ください。