このエントリーをはてなブックマークに追加

戸建てフルリフォームなら「増改築.com®」TOP施工事例都道府県で探す東京都杉並区> 再建築不可の賃貸併用住宅フルリフォーム&フルリノベーションK様 事例

築60年再建築不可の建物が新築以上の耐震等級3相当に生まれ変わる!

再建築不可の賃貸併用住宅フルリフォーム&フルリノベーション事例

 

K様はJR中央線高円寺駅徒歩3分と絶好の好立地に住まわれながらも、住宅が密集した再建築不可の立地に建物が建てられていました。しかも築年数は60年と老朽化が進んでおりました。お一人住まいのK様の今回の建物は延べ床面積20坪を超える建物ですが、使用しているスペースは半分以下の状態となっており、好立地なロケーションを活かし2階スペースを賃貸にアパートにして賃貸アパート併用住宅へとフルリフォーム・フルリノベーションされたいというご要望がございました。K様の祖父のお爺様が大工であった為、60年の間に何度も増築を繰り返し、2階の一部をお神楽増築、1階も半分近くのスペースが敷地一杯に増築されている状態でした。現場調査時にも柱間のピッチが変則的な寸法になっているなど、ギリギリまで増築されているのを伺い知ることができました。確認申請が必要となる新築、改築は再建築不可の為できないことから、耐震等級3の耐震性を持たせながら賃貸併用のアパートへとフルリフォームをご提案させていただきました。また、既存の住宅をアパートへとリノベーションされるため、木造アパートで最も弱点となる階下への遮音については、2階の床にコンクリートスラブを打つ工事を提案させていただきました。日本ではほとんど見ませんが、アメリカなどではよく採用される工法となっております。しかしながら、コンクリートを2階の床に入れる以上、かなりの荷重がかかるわけです。そのため、構造計算は必須となります。K様の今回のアパートリノベーションでは、耐震と階下への遮音、密集地であることから防火に配慮した計画となりました。

建物概要
名前 K様
場所 東京都杉並区高円寺
築年数 築60年
構造種別 木造一戸建て
家族構成 大人1人 賃貸併用
対象面積 20.8坪
リフォーム部位 内外部スケルトンリフォーム/耐震等級3/賃貸併用住宅
工期 7ヶ月
価格

2500万

お客様のご要望

今回の賃貸併用住宅フルリフォーム&リノベーションで、K様からのご要望は以下の6点です。

  • 祖父のお爺様が大工さんで増築を幾度となくしており、構造が心配。
  • 1人では広すぎるので、半分は賃貸で貸したい。
  • 構造を見直して耐震構造をしっかりしたい。(耐震等級3)
  • 木造アパートの為、階下への音の問題が心配。
  • 密集地に建っている建物の為、防火にも配慮したい。
  • 基礎が心配。補強はできるのですか?

プランナー 北畠より ~プランニングのポイント~

K様のおじい様が大工さんで昔に少しずつ増築や改築をご自身でやられていて出来た家で、図面が無く寸法も規定の尺では無かったので解体後柱位置の確認が必須でした。ちょこちょこ手を加えられてた様で、柱の形状もまちまちな個所・基礎も有る場所とない場所が何カ所かあったので構造計算の後基礎・柱は殆どがやり替えとなりました。

プランニングは1階はお施主様住居スペースで2階を賃貸にとご要望を頂きました。1階・2階共1LDKの造りでご提案をさせて頂きました。住宅設備機器に関しては、弊社で特価でご提案できる商品を入れさせて頂きました。

 

 

杉並区K様邸 戸建てリノベーション施工事例テーマカテゴリー

 

  • 耐震等級3相当(上部構造評点1.5以上)リフォーム(性能向上リノベーション)
  • 再建築不可リフォーム
  • アパートリフォーム
  • 賃貸併用住宅リフォーム
  • 二世帯住宅リフォーム
  • 内部スケルトンリフォーム+サッシ交換

打ち合わせから着工、完成までの詳細施工事例紹介

1 着工前

1-1 現場調査・打合せ
杉並区 戸建スケルトンリフォーム

建物4面が住宅に囲まれ密集しているロケーション

杉並区 戸建スケルトンリフォーム

接道が1.5mとなり再建築不可となっている状態

K様のお住まいは、JR中央線「高円寺駅」徒歩3分圏内と絶好の立地でありながら、私道の奥に位置し接道1.5mの地型に建つ建物となっており、再建築不可となっていることから築60年を超える建物でありましたが、新築が建てられない状態となっておりました。工事をする側にとっても、私道に車両が入れない状態、かつ4方が建物に囲まれているロケーションであることから、すべての搬出入が困難を極める事が予想出来ました。


杉並区 戸建スケルトンリフォーム

左側は本宅、右側は倉庫です。

杉並区 戸建スケルトンリフォーム

建物の2面は足場の設営が難しいロケーション

大工だったおじい様が継ぎ足し継ぎ足しで造っているので敷地一杯に建物があります。


広々した既存玄関、窓が多くとても寒い造りでした。

杉並区 戸建スケルトンリフォーム

昔ながらの引違の玄関ドアに土間仕様

杉並区 戸建スケルトンリフォーム

K様玄関脇スペースを寝室に使用しておりました。


杉並区 戸建スケルトンリフォーム

襖で仕切られているので耐力壁などはありません。

基本お部屋の間仕切りは襖で間仕切りが

されています。

 

杉並区 戸建スケルトンリフォーム

断熱が入ってないので窓が多くどのお部屋もとても夏は暑く、冬は寒い造りになっています。


水まわり

杉並区 戸建スケルトンリフォーム

1階のキッチンはブロックキッチンでした。

杉並区 戸建スケルトンリフォーム

在来の浴室は広くて冬はとても寒い空間になります。

杉並区 戸建スケルトンリフォーム

急こう配な1間階段

杉並区 戸建スケルトンリフォーム

リフォームされている洋風トイレです。

断熱も無く、各場所窓が大きいので水周り箇所はとても寒く、お湯が出るのがバランス窯なので不便さもありました。

杉並区 戸建スケルトンリフォーム
杉並区 戸建スケルトンリフォーム

2階広縁になぜかキッチンが有りました。

2階は殆ど使用していなかった空間です。

 

危険な既存バルコニー

お施主様がほぼ2階は使用していなかったのでバルコニーは使われていなかった状態です。

杉並区 戸建スケルトンリフォーム

日当たりの良い場所に広々とバルコニーがあるのですがメンテナンスをしていなかったので、かなり危険な状態です。

杉並区 戸建スケルトンリフォーム

家の側面にもバルコニーがあります。

1-2 東京都杉並区高円寺K様邸 戸建リノベーションプラン

  間取りの変更プラン  

1階 既存平面図

2階 既存平面図

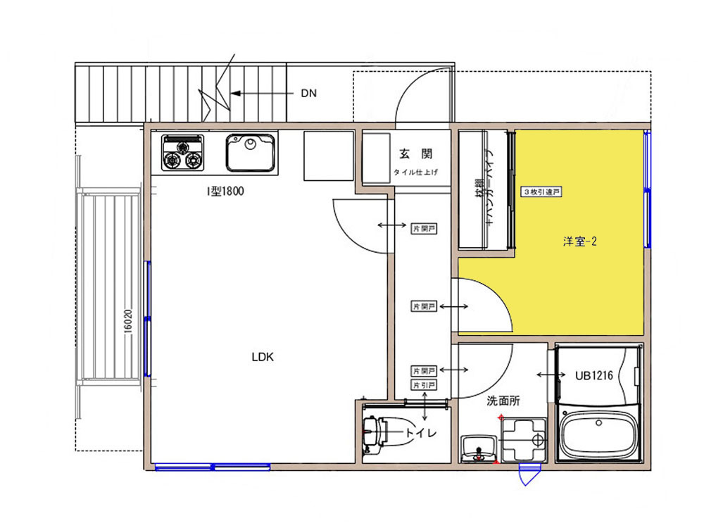
1階 新規平面図

2階 新規平面図

 

K様の再建築不可の賃貸併用住宅フルリフォーム&フルリノベーション工事はこうしてはじまりました。

2 着工

2-1 解体・撤去

解体は手壊し作業

築60年かつ、増築を繰り返した建物となりますので、解体は手壊しで慎重に行っていきます。

構造体が見えないため慎重に内壁を剥がしていきます。

断熱材も入っていない状態でした。

内部の解体が進み構造体が見えてきました。

ここまで解体を進めていくと予測以上に傷んでいる箇所、構造上の弱点が見えてきます。

解体後の躯体チェック

外壁までの解体が完了すると既存の躯体構造がはっきりと見えてきます。この段階で構造の専門家や設計士を交え構造のチェックを行っていきます。

二階が増築されていますが構造体として一階と緊結されておらずかなり危険な状態でした。

束石に土台が乗っているだけの状態

石に乗っているだけの状態

一階の上にお神楽増築をしておりましたが、一階の外側に独立して建てられている状態でした。後から継ぎ足した建物(奥の建物) 側につきましては、既存の構造体に 緊結されておらず、非常に危ない状態 となっておりましたので、 新規で作り直しとなる箇所などが 出て参りました。

木組みの構造が不完全のため組み直しが必要な個所

基礎が無い状態

大事な構造部のすべてが目視可能となるスケルトンリフォーム

内外部のスケルトンリフォームの最大のメリットはこのような重要な主要構造部のすべての状態が目視でわかることになります。今回のK様邸はその良い例と言っても良いでしょう。解体しなければわからなかった軸組の状態を見る事が出来ました。机上での構造計算はありましたが、再度計算をやり直すことになります。K様邸の賃貸併用アパートフルリフォーム・フルリノベーションでは、これらの構造上の弱点をすべて修正補強することで「耐震等級3」の性能をもつ構造躯体へと甦らせることが可能となります。

2-2 基礎

解体が終わると設計・木構造の専門の設計士、施工管理者で、建物の入念なチェックを行います。ここで机上の構造計算から、既存の建物に準拠した精密な構造計算に入っていきます。構造計算が終わり、補強計画が策定されると基礎補強から工事は進んでいきます。

杉並区 戸建スケルトンリフォーム 基礎伏図
戸建スケルトンリフォーム 基礎補強

K邸には既存の布基礎があるところと基礎が無いところ、さらには石の上に載っている箇所がありました。既存の布基礎があるところへの対処として添え基礎補強を行いますが、ハンマードリルで150㎜ピッチで既存の布基礎へ孔をあけていきます。

戸建スケルトンリフォーム 基礎補強

等間隔で孔をあけました。このあとブロアーでしっかりと中の埃をはきだしていきます。

戸建スケルトンリフォーム 基礎補強

しっかりと粉塵を取り除き、エポキシモルタルを注入していきます。

戸建スケルトンリフォーム 基礎補強

ハンマーでアンカー筋を打ち込んでいきます。

戸建スケルトンリフォーム 基礎補強

アンカー筋が打ち込み完了しました

戸建スケルトンリフォーム 基礎補強

こちらの外周面も玉石基礎を解体しあらたに布を新設です。

戸建スケルトンリフォーム 基礎補強

立ち上がり基礎(添え基礎)部の主筋、あばら筋を配筋していきます。

戸建スケルトンリフォーム 基礎補強

底面の配筋は適宜重ねを設けて結束線で結束をしていきます。

戸建スケルトンリフォーム 基礎補強

底面にも配筋をしますが、立ち上がり配筋との緊結(補強筋)をしっかりと配筋することが大切です。

戸建スケルトンリフォーム 基礎補強

配筋工事完了

戸建スケルトンリフォーム 基礎補強

既存の玉石基礎となっていた部分は解体し新たに布基礎を新設するため立ち上がり部に配筋をしていきます。

戸建スケルトンリフォーム 基礎補強

玉石基礎撤去部への新規布基礎新設部型枠設置

戸建スケルトンリフォーム 基礎補強

基礎がなかった箇所へは新たな新設基礎、既存の布基礎箇所へは立ち上がり部分を添え基礎補強となります。

戸建スケルトンリフォーム 基礎補強

基礎がなく土台自体が沈んでいた箇所はジャッキアップを行い新たに布基礎を新設

既存の布基礎に内側から抱き合わせる形で鉄筋コンクリート基礎を一体化させるのが正しい基礎補強となります。

K様邸では地盤が良好であることからベタ基礎を採用しました。

すべてがベタ基礎が良いというわけではありません。

ベタ基礎は建物全体と同程度の荷重となりますので、建物の重さとのバランスもかかわってきます。足元だけ固めていても屋根を含めた建物とのバランスが悪いと大地震が起きた際にせん断力が働き、ホールダウン金物が抜けるような事態になるケースもあるからです。

大規模な戸建てリノベーションをされる際には、木造を熟知し、実績が豊富な会社へ相談することをお勧めする理由でもあります。

ベタ基礎って?

布基礎が立ち上がりとフーチングで持たせる基礎に対して、ベタ基礎は、立上りだけでなく、底板一面も耐圧盤を設け、立ち上がりと底面が一体化された鉄筋コンクリートになっている基礎をいいます。

建物の荷重を底板全体の面で受け止めるため、ベタ基礎は不同沈下を起こさない。といわれますが、それは良好な地盤での話です。

基礎の下の地盤面の地耐力が均一でない場合は、不同沈下が起こる可能性が充分あるのです。

耐震の世界では、重い瓦屋根は外して、軽いものに変えましょうと言われておりますが、それ自体は間違っていませんが、この理屈でいくと。屋根の瓦を外して、基礎はベタ基礎にしても、地盤に与える荷重は、瓦屋根以上の荷重がベタ基礎の荷重により地盤面にかかることになります。

地盤が軟弱な場合、布基礎を採用した方が有利な場合も出てきます。

戸建てフルリフォームやリノベーションで、基礎補強をする際は、このような知識のある会社に相談することが必要です。

2-3 2階床スラブ工事

K様邸は築50年を超える再建築不可の建物を賃貸併用住宅へリノベーション(フルリフォーム)する工事です。木造の賃貸アパートでの一番のボトルネックとなるのは、階下への遮音の問題です。今回は木造二階屋の2階床にコンクリートスラブを打つ仕様としました。アメリカの住宅では見かけますが日本ではほぼ見ない工法となります。当然コンクリートの荷重計算が必要になりますのでリフォームであっても構造計算が必須となってきます。K様邸では約1.5倍の積載荷重となりました。基礎補強から下地となる梁補強などすべて耐荷重を計算して補強となります。

戸建スケルトンリフォーム 防音
戸建スケルトンリフォーム 防音
戸建スケルトンリフォーム 防音
v戸建スケルトンリフォーム 防音
2-4 木工事(木部補強)

基礎が終わり大工工事へと移行します。構造躯体の強度を担保するためのメイン工事となります。

杉並区 戸建フルリノベーション 大工工事

解体後、脆弱な躯体部へは仮筋交いを入れ仮補強していきます。

杉並区 戸建フルリノベーション 大工工事

既存の主要構造部も外壁からの浸水が多く管柱は腐食している箇所が多数ありました。柱を一本ずつ新設していきます。

杉並区 戸建フルリノベーション 大工工事

ほぼ新設柱となりました。桁が腐食していなかったことが救いとなりました。

杉並区 戸建フルリノベーション 大工工事

一階の構造補強。二階にはコンクリートスラブを打設することから梁補強での梁背も高くなります。

二階の主要構造部の多くは新たに差し替え、新設となりました。木部補強を進めていきます。二階は賃貸スペースとなります。

二階床組は強床工法にて床張りに直接28㎜の構造用合板をうち水平耐力を担保させます。

外周面の構造躯体の補強が出来上がってきました。新たな柱を新設した箇所が圧倒的に多いことがわかります。新築とほぼ変わらない材木量となります。

外周面は構造用合板で柱・土台・桁までを固定します。基礎新設部にホールダウン金物を配置することで、基礎と耐力壁を一体化させます。

二階の剛床を一階から見ると井桁状の床梁に構造用合板が打ち込まれ金物で補強されているのがわかります。

二階の屋根は野地板の増し打ち後、木部の構造補強を進めていきます。
 

通常の住まいであった間取りを一世帯の賃貸空間へとリノベーションするため、必然的に間取りが大きく変わって参ります。柱を抜く箇所も多く、梁補強の数を多くなります。

耐震等級3の軸組補強が完成しました。

2-5 給排水配管工事

洗面室給排水工事

1世帯の建物から、賃貸併用住宅リフォームとなる今回は。水道メーターも分岐が必要となり、給排水もすべて新たに設計のし直しとなります。

通常のリフォームでの既存の配管を利用した切り回し配管ではなく、宅内の給排水は新設となります。

リビング内の排水経路

2-6 外壁工事

K様邸は、外周面をすべて構造用合板張りとなっていますので、サイディング下地となる構造用合板を張ります。

構造用合板を張り終えたら、防水シートを全面に張っていきます。

サイディングを張り、シーリング打ちの為の養生をします。

シーリング打ちが完了し外壁工事が完了します。

3 竣工

約6か月の工事を経て、いよいよ竣工です。
再建築不可の建物の実績が多い弊社でも大変苦労をした現場となりました。高円寺駅徒歩数分と好立地、賃貸併用二世帯住宅リフォームを行ったK様邸の様子をご紹介します。


  =外観==  

Before

既存建物は築60年の板張りとトタン張りで施工されていた旧外観

奥に外階段を配置し、賃貸併用住宅へ。外壁まで解体をするフルスケルトン(躯体残し)にすることで、築60年の建物が耐震等級3の建物へと生まれ変わります。

外壁は重厚感のある窯業サイディングを選定されました。


  == 1F ・2階エントランス・玄関 ==  

1階
2階

1階玄関

2階玄関(階段塗装前)


  == 1F LDK ==  

Before

既存建物は広い敷地に関わらず、K様は限られたスペースでしか生活をされてませんでした。広すぎてしまっているのと動線が不便だったからだと思います。

 


  == 階段 ==  

Before

既存階段室内階段、新規階段は外階段になります。

外階段は縞鋼階段ではなくステップにコンクリートを打ち遮音性が高い鉄骨階段で設計しました。


  == 1F 水まわり ==  

Before

既存キッチン

既存浴室

既存洗面室

既存トイレ

キッチン

LIXILティオ1800間口

浴室

LIXIL アライズ1616サイズ

洗面室

LIXIL ピアラ500間口

トイレ

ハイウィルオリジナルトイレ


  == 2F LDK ==  

2階賃貸スペースキッチンです。1階とお揃いのLIXILの商品になります。

今まで使っていなかった2階を賃貸スペースにし、K様も出来上がった2階を見ていただいて日当たりの良さに感動しておりました。


  == 2F 洋室 ==  

賃貸として貸す予定のお部屋が二階になります。入り組んだロケーションで既存の建物では採光が採れておりませんでしたので、杉並区高円寺のK様賃貸併用二世帯住宅リフォームでは、採光計画を見直し明るいお部屋を計画しました。

限られた空間なのでクローゼット扉は折戸ではなく引違戸

窓はH2000の引き通しで設置し高さ90cm幅1m60cmの窓です。


  == バルコニー ==  

Before

バルコニーは同じ位置に屋根置き式の既製品を設置しました。

4 担当者より(ハイウィル株式会社・大谷)

中央線高円寺駅より数分という好立地にお住まいのK様は、ご祖父の代から受け継がれた建物。お爺様が大工であったということから、何度も増築を繰り返されておりました。また、再建築不可となっていた為、建て替えが出来ず、築60年を超える古屋を立地と利便性を活かした形で、賃貸併用住宅へのフルリフォーム&リノベーションをされたいというご要望を頂きました。基礎が無いところなど、現場調査段階ではわからなかった問題が多数出てきた事例でもあります。耐震等級3での構造計画にて、構造計算をし耐震改修を行いました。また木造アパートの悩みである遮音性については二階の床にコンクリートスラブを打つことで鉄筋コンクリート並みの遮音性を実現。工期は大変長くなりましたが、K様には大変お喜び頂き、Googleでの口コミもいただきました。我々施工会社に取っても大変学びのある難易度の高い現場となりました。

K様、この度はご依頼をいただき、誠にありがとうございました。

画像をクリックすると解説ページにジャンプします。

パターン別『再建築不可リフォーム施工事例6選』これさえ読めば再建築不可のポイントがわかる!

全国のフルリフォーム・リノベーション『ピックアップ事例』※プロの詳細解説付きレポート

HEAT20-G2/耐震等級3
新耐震基準の性能向上リノベーション
築30年ハウスメーカー軽量鉄骨
断熱改修&リノベーション
 
中古住宅を新築以上の耐震性能と断熱性能へ!
耐震等級3フルリフォーム
地下付き木造2階建て
自然素材をつかった性能向上リノベーション&フルリフォーム

東京都文京区 K様邸

長屋を切り離して1つの構造体へフルリフォーム&リノベーション
隣家との距離がない!
部屋から外壁を張り替えるフルリノベーション
中古住宅を耐震等級3へ!
中古住宅リノベーション
 
基礎がない??
築60年の古屋をジャッキアップで基礎新設フルリノベーション

東京都渋谷区 O様邸

戸建てリノベーション・リフォームに関するお問合せはこちら

増改築.comの一戸建てリフォーム専用ホームページに
お越しいただき、誠に有難うございます。
 
増改築.comメンバーは技術集団となり、
他社のような営業マンがおりません。
技術者が直接ご相談にのり問題解決を行います。
 
従いまして、
お客様の方である程度のご要望が整理されました段階、
お悩みが工事内容のどのようなところにあるのか?
ご予算がどの程度絞る必要があるのか?
など明確になった段階でのご相談をお願いしております。
お問合せ・ご相談はお電話・メールにて受け付けております。
メールの場合は以下のフォームに必要事項をご記入の上、
「送信する」ボタンをクリックをお願いします。

代表稲葉高志

戸建てリノベーションの専属スタッフが担当致します。
一戸建て家のリフォームに関することを
お気軽にお問合せください

よくあるご質問
  • 他社に要望を伝えたところできないといわれたのですが・・・
  • 他社で予算オーバーとなってしまい要望が叶わないのですが・・・
  • サービスについて詳しく聞きたいのですが・・・

どのようなお悩みのご相談でも結構です。

あなたの大切なお住まいに関するご相談をお待ちしております。

営業マンはおりませんので、しつこい営業等も一切ございません。

設計会社(建築家様)・同業の建築会社様のご相談につきましては、プランと共にご指定のIw値及びUa値等の性能値の目安もお願い申し上げます。

2026年の大型補助金が確定したことで現在大変込み合っております。

耐震性能と断熱性能を向上させるフルリフォームには6か月~7か月の工期がかかります。

補助金獲得には年内に報告を挙げる必要があることから、お早目にご相談をお願いいたします。(5月着工までが目安

ご提案までに大変お時間がかかっております。ご了承のほどお願い申し上げます。

(3月までの着工枠が埋まりました)・・・2026/02/01更新

※すでにプランをお持ちのお施主様・設計資料をお持ちのお施主様は内容をフォームで送信後、フォーム下のメールアドレスに資料をお送りください。対応がスムーズです。

必須

(例:増改築太郎)

必須

(例:contact@high-will.co.jp)

(例:03-5615-2826)

必須

(例:東京都荒川区西日暮里2-35-1)

(例:築40年)

(例:25坪・100㎡など)

(例:2000万程度など)

  • ※再建築不可のリフォームでは金融機関が限られます。事前審査をお勧めいたします。

    (例:2024年3月くらいに完成希望など)

    必須

    できるだけ具体的にお知らせくださいませ。既存設計資料、リフォーム後のイメージ図等をお持ちであれば下記のメールアドレスより添付をお願いします。

    ※次の画面がでるまで、4~5秒かかりますので、
    続けて2回押さないようにお願いいたします。

    ※次の画面が出るまで、4〜5秒かかりますので、
    続けて2回押さないようにお願いいたします。

    図面や写真等を送信いただく場合、また入力がうまくいかない場合は、上記内容をご確認のうえ、下記メールアドレスまでご連絡ください。

    お電話でのお問合せはこちら

    0120-246-991

    営業時間:10:00~17:00(土日祝日を除く)

    ★YouTube「増改築.comチャンネル」チャンネル登録して新動画解説をいち早くGET!!★
    「増改築.comリノベ診断」であなたに一番ふさわしいフルリフォームを診断!!(動画解説付き)
    ★Facebookページにいいね!を押して最新コンテンツ情報をいち早くGET!!★

    4代目代表よりご挨拶

    稲葉高志

    親切・丁寧な対応をモットーとしておりますのでお気軽にご相談ください。