戸建フルリフォームなら「増改築.com®」TOP > 施工事例 > 都道府県で探す > 東京都品川区 > 施工事例 M様 築70年再建築不可をハーフスケルトンリフォーム

再建築不可でも新築以上の耐震性能と断熱性能に生まれ変わる!

築70年再建築不可をハーフスケルトンリフォームで耐震等級3相当・断熱等級6へ

品川区M様邸 ビフォーアフター外観

本プロジェクトの舞台は、品川区荏原の情緒ある密集地。

M様が義理のお母様から受け継いだのは、築約70年の歴史を刻んだ木造住宅でした。

最大の問題は、接道条件により法的に建て替えが認められない「再建築不可物件」であること。

さらに、平屋から2階建てへの無理な増改築を繰り返した痕跡があり、建物の重心バランスは崩れ、構造の歪みは深刻でした。 「壊して新しくできないのなら、既存の骨組みを限界まで活かし、新築以上の性能を流し込む」。

法規制を逆手に取り、階段や2階床下地をあえて残す「ハーフスケルトン・リフォーム」を採択。

確認申請という壁を回避しながら、住宅のポテンシャルを「要塞」レベルまで引き上げる、

極めて技術的な難易度の高い挑戦が始まりました。

建物概要
名前 M様
場所 東京都品川区荏原
築年数 築70年
構造種別 木造一戸建て
家族構成 大人2人
対象面積 18.5坪
リフォーム部位 ハーフスケルトン・リノベーション(階段・2階床下地維持、それ以外を全面刷新)
工期 6ヶ月
価格 2400万

お客様のご要望

今回のリフォームで、M様からのご要望は以下の5点です。

  • 「再建築不可」という不安の払拭: 建て替えができないからこそ、次の70年を安心して過ごせる「永久欠番」の住まいにしたい。

  • 構造の「狂い」の根治: 現場調査で発覚した建物の「傾き」や「シロアリ被害」、古い鉄製バルコニーからの雨漏りを完全に修復したい。

  • 密集地特有の「暗さと寒さ」の解消: 隣家が迫り、昼間でも照明が必要な1階LDKを、光と風が抜ける明るい空間に変えたい。

  • 断熱等級5への到達: エアコン1台で家中が安定した室温に保たれる「魔法瓶」のような温熱環境。

  • 資産価値の保全: 家族の居住だけでなく、将来的な賃貸(定期借家)運用も視野に入れた、最高スペックのインフィル(内部)構築。

プランナー 北畠より ~プランニングのポイント~

M様邸の設計思想は、「法規制という枠の中で、技術の狂気を解き放つ」ことにありました。

通常のリフォームでは見逃されがちな「建物の水平・垂直」を正すため、家全体を持ち上げて歪みを直す「ジャッキアップ(揚げ前)」をプランの前提としました。

ハーフスケルトンという手法を選んだのは、階段や2階床下地をあえて残すことで「大規模な模様替え(確認申請が必要な工事)」に該当させず、それでいて構造と断熱をフルスケルトンと同等レベルまでアップデートするためです。

狭小地ゆえの暗さに対しては、2階の光を階下に落とす「光の井戸(吹き抜け構造)」を設計。物理的な床面積以上に「光の体積」を感じられるプランニングを完遂しました。

品川区M様邸 戸建てリノベーション施工事例テーマカテゴリー

 

  • 再建築不可リフォーム
  • 耐震等級3相当(上部構造評点1.5以上)リフォーム(性能向上リノベーション)
  • HEAT20-G2リフォーム(性能向上リノベーション)
  • 補助金活用リフォーム

打ち合わせから着工、完成までの詳細施工事例解説

1 戸建てリノベーション着工前

1-1 現場調査・打合せ

調査初日、M様邸の1階に足を踏み入れた瞬間に感じたのは、独特の「平衡感覚の狂い」でした。

レーザーを立てると、建物の長辺方向に無視できないレベルの沈み込みを確認。

M様も「どこか落ち着かない気がしていたのは、この歪みのせいだったのですね」と納得されました。

さらに、和室の床下からは過去のシロアリ被害の痕跡が、古いサッシ周りからは雨水の侵入による腐朽が見つかりました。築70年。平屋を2階建てにし、水回りを増設し……その場しのぎの増改築が、建物の神経をバラバラにしていたのです。打ち合わせでは、これら「見えない病根」をすべて洗い出し、ハーフスケルトンでどこを「残し」、どこを「新しく作るか」の仕分けを緻密に行いました。

品川区M様邸 既存 
品川区M様邸 既存
品川区M様邸 既存
品川区M様邸 既存
品川区M様邸 既存
品川区M様邸 既存

施工前の水回り

品川区M様邸 既存
品川区M様邸 既存
品川区M様邸 既存
品川区M様邸 既存

1-2 東京都品川区M様邸 戸建リノベーションプラン

私たちが提示したのは、法律を遵守しながらも性能を極限まで高める「ハーフスケルトン・ハイパフォーマンス案」です。

  1. ジャッキアップによる躯体の矯正: 構造を傷めず、ミリ単位で建物の水平を出す「揚げ前」の実施。

  2. 耐震評点1.5(耐震等級3相当): 2階床下地を残した状態で、1階と2階の接合部、および耐力壁をN値計算に基づき最強レベルへ補強。

  3. 断熱等級5の鉄壁ガード: 階段周りや床下地の隙間を狙い撃つ「発泡ウレタン」と、高性能フェノールフォーム「ラムダ」の組み合わせ。

  4. APW330の全面採用: 密集地における熱の出入り口である窓を、高性能樹脂サッシへ一新。

「ここまでやって、初めて『再建築不可』という呪縛から解き放たれます」。 私たちの言葉に、水埜様は強く頷かれました。それは、受け継いだ家を「負債」ではなく、最高の「資産」へと変える決意の瞬間でした。

  間取りの変更プラン  

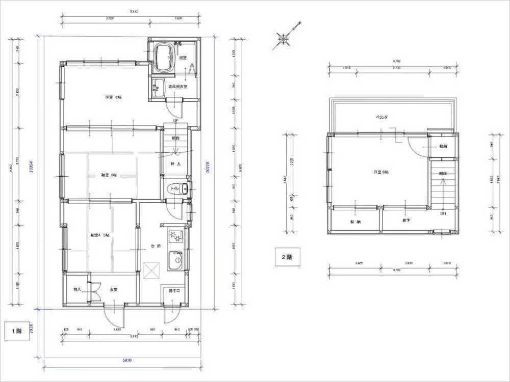
品川区M様邸 既存平面図

リノベーション前平面図

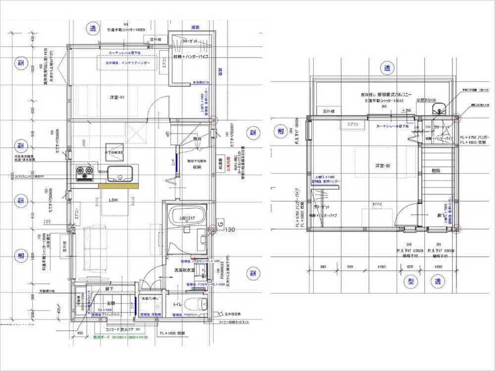
品川区M様邸 平面図 リノベーション後プラン

リノベーション後プラン

2 戸建てリノベーション着工

2-1 解体工事

ハーフスケルトン・リフォームにおいて、解体は単なる「破壊」ではありません。

それは、70年という歳月が積み重ねてきた建物の履歴を紐解き、残すべき健全な組織と、取り除くべき病巣を仕分ける「精密な外科手術」の第一段階です。

特にM様邸のような「再建築不可」の物件では、建築基準法上の「大規模な模様替え」に該当させないための法的な境界線を厳守しつつ、いかにして新築同等の性能を宿らせるかが問われます。

今回のミッションは、「階段と2階床下地を維持したまま、それ以外のすべてを剥き出しにする」こと。

この制約が、現場に独特の緊張感をもたらしました。

 

■ 密集地の静かなる闘い:重機を使わない「全手壊し」の流儀

品川区荏原の密集地、隣家との隙間が数センチという環境下では、豪快に重機を回すことは不可能です。

職人たちはバールとハンマーを手に、一枚一枚の壁板、一本一回の釘を丁寧に抜いていく「手壊し」を徹底しました。

ハーフスケルトン特有の難しさは、その「残し方」にあります。

「ここを壊しすぎると、階段の支持がなくなる」 「この梁は2階の床を支えているから、仮設の支柱(サポート)を入れるまで手をつけるな」

現場監督の鋭い指示が飛び交います。

家の中央に鎮座する「心臓部」である階段を傷つけず、まるで宙に浮いたような状態で保持しながら周囲を解体していく作業は、熟練の職人でなければ成し得ない職人芸です。

品川区M様邸 解体工事
品川区M様邸 解体工事
品川区M様邸 解体工事
品川区M様邸 解体工事
品川区M様邸 解体工事
品川区M様邸 解体工事

■ 剥き出しになった「70年の悲鳴」

内装材が取り払われ、建物の骨組みが露わになった瞬間、私たちはこの家の本当の姿を目の当たりにしました。

それは、図面だけでは決して予見できなかった、古家特有の「満身創痍」の状態でした。

  • シロアリの食痕(蟻道)の発見: 1階の旧和室付近の土台。一見しっかりしているように見えた木材を叩くと、軽い音が響きます。慎重に削り込むと、かつてこの家を襲ったシロアリたちの通り道が、網の目のように広がっていました。幸い現在は活動していませんでしたが、建物の重みを支えるべき土台が、実質的には「中空」の状態だったのです。

  • 鉄製バルコニーからの「静かな侵食」: かつての増改築で取り付けられた古い鉄製バルコニー。その接合部から長年雨水が侵入し続けていました。外からは見えなかった通し柱の継ぎ目が真っ黒に腐朽し、手で触れるとボロボロと崩れ落ちる。この柱が、2階の重みを支え続けていたかと思うと、現場にはゾッとするような緊張感が走りました。

  • 「つぎはぎ」の構造履歴: 平屋を2階建てにし、水回りを移動させ……過去の増改築で「とりあえず」付け足されたであろう、不自然な位置の梁や、途中で切断されたままの柱が次々と現れました。それは、この家が家族の成長に合わせて必死に姿を変えてきた証であると同時に、構造的なバランスが極めて危うい状態にあることを示していました。

■ 絶望を「希望」に変えるためのリセット

M様も現場を訪れ、その剥き出しになった惨状を前に言葉を失っていらっしゃいました。

「ここまで酷かったのですね……」 しかし、増改築コムの考え方は違います。解体で悪い部分がすべて見つかったこと。それこそが、再生への第一歩であり、最大の「収穫」なのです。

「M様、ご安心ください。これで見なくてはいけない『敵』の正体はすべて判明しました。隠れた腐朽をそのままにして上から綺麗にするのが一番恐ろしいリフォームです。今、私たちは最高のスタートラインに立っています」

 

■ 2階床下地という「宙に浮く足場」の管理

解体中、2階の床下地は残っています。

しかし、その下を支える壁や柱は一部撤去・補強されるため、建物全体は非常にデリケートな状態になります。

私たちは鋼製サポートを何本も入れ、レーザーレベルでミリ単位の沈み込みを監視しながら作業を進めました。

古い埃が舞い、廃材が運び出された後には、築70年の逞しい「欅(けやき)」や「松」の古材と、私たちの手によって救い出された階段だけが、静かに佇んでいました。

こうして、M様邸は「過去の因縁」をすべて削ぎ落とし、現代の科学(耐震・断熱)を受け入れるための純粋な骨格(ハーフスケルトン)へとリセットされたのです。

品川区M様邸 解体工事
品川区M様邸 解体工事
品川区M様邸 解体工事

大事な構造部のすべてが目視可能となるスケルトンリフォーム

内部の天井・壁・床だけでなく外壁まで解体しスケルトン状態(躯体残し)にする戸建てリノベーションの最大のメリットはこのような重要な主要構造部のすべての状態が目視でわかることになります。

フルリノベーション後は、これらの構造上の弱点をすべて修正し補強することで新築と同水準、もくしくはそれ以上の建物性能をもつ構造躯体へ甦らせることが可能となります。

2-2 基礎補強工事

「木造住宅の寿命は、土台の下にあるもので決まる」――。

解体工事を終えたM様邸の足元には、築70年という歳月を物語る「無筋コンクリート」の基礎が姿を現していました。

当時の建築基準では当たり前だったこの構造は、現代の「上部構造評点1.5(耐震等級3相当)」という巨大なエネルギーを受け止めるには、あまりに脆弱です。

鉄筋が入っていないコンクリートは、圧縮には強いものの、地震の「引き抜き」や「ゆさぶり」による引張力には脆く、大きな揺れで容易に破断してしまいます。

私たちは、この脆い足元を、最新の土木技術を応用した「添え基礎(増し打ち基礎)」によって、強固な要塞の礎へと生まれ変わらせる決断をしました。

 

■ 既存基礎との「結婚」:ケミカルアンカーによる一体化

単に古い基礎の横に新しいコンクリートを流し込むだけでは、地震の際に「剥離」してしまい、補強としての意味をなしません。

増改築コムが誇る技術のキモは、新旧の基礎を物理的に「一つのブロック」へと融合させることにあります。

 

  1. 高圧洗浄と下地処理: 数十年の汚れを落とし、古いコンクリートの表面を研磨します。

  2. ケミカルアンカーの打設: 既存の無筋基礎に対し、一定の間隔で精密に穴を開け、高強度の化学樹脂(ケミカルアンカー)を用いて鉄筋を直接打ち込みます。

この一本一本の鉄筋が、古い基礎とこれから造る新しい基礎を繋ぐ「血管」となります。

M様が現場で見つめる中、基礎一面に等間隔で突き出た鉄筋の列は、

まさに建物が再生へと向かう力強い意志の現れのように見えました。

 

■ 密集地の限界に挑む:鉄筋の「過密」な編み込み

品川区荏原の密集地。重機が入れない狭小な床下空間での作業は、困難を極めました。

しかし、私たちは一切の手抜きを許しません。D13と呼ばれる太い異形鉄筋を、まるで籠を編むような緻密さで配置していきます。

特に、柱直下の荷重がかかるポイントには、通常の住宅基礎を遥かに超える密度の配筋を施しました。

これは、後に導入する「評点1.5」を支えるための金物補強(ホールダウン金物)が、基礎から抜けることを物理的に防ぐための「根拠」となります。

 

品川区M様邸 基礎工事
品川区M様邸 基礎工事
品川区M様邸 基礎工事

【コンクリート打設】

配筋が完了し、型枠が組まれると、いよいよコンクリートの打設です。

M様邸のようなハーフスケルトン工事では、2階の床や階段が残っているため、コンクリートを流し込むスペースも限られています。私たちは小型のポンプ車を手配し、熟練の職人が狭い隙間からコンクリートを流し込み、バイブレーター(振動機)で空気を抜きながら、隅々まで充填していきました。

採用したのは、一般的な住宅よりも強度の高い「高強度コンクリート」。

これが硬化することで、築70年の脆い基礎は、厚みと強さを増した「令和基準の耐震基礎」へと統合されました。

品川区M様邸 基礎工事
品川区M様邸 基礎工事
品川区M様邸 基礎工事

脱型(完成)

コンクリートが固まり、型枠を外した瞬間の美しさは、職人たちの誇りです。

滑らかで力強いグレーの壁が、家全体を力強く支えている。

M様は、新しくなった基礎を指でなぞりながら、

「あんなに頼りなかった足元が、こんなにがっしりするなんて……。これで、やっと一安心です」 と、

深く安堵の息を漏らされました。

ハーフスケルトンという手法は、触れない場所(階段や2階床)があるからこそ、触れる場所(1階基礎)に過剰なまでの強度を求める必要があります。

私たちは、この基礎工事によって、M様邸に「この先70年、揺るがない自信」を流し込んだのです。

品川区M様邸 基礎工事
品川区M様邸 基礎工事
品川区M様邸 基礎工事

K様邸では地盤が良好であることからベタ基礎を採用しました。

すべてがベタ基礎が良いというわけではありません。

ベタ基礎は建物全体と同程度の荷重となりますので、建物の重さとのバランスもかかわってきます。足元だけ固めていても屋根を含めた建物とのバランスが悪いと大地震が起きた際にせん断力が働き、ホールダウン金物が抜けるような事態になるケースもあるからです。

大規模な戸建てリノベーションをされる際には、木造を熟知し、実績が豊富な会社へ相談することをお勧めする理由でもあります。

東京都

ベタ基礎って?

布基礎が立ち上がりとフーチングで持たせる基礎に対して、ベタ基礎は、立上りだけでなく、底板一面も耐圧盤を設け、立ち上がりと底面が一体化された鉄筋コンクリートになっている基礎をいいます。

建物の荷重を底板全体の面で受け止めるため、ベタ基礎は不同沈下を起こさない。といわれますが、それは良好な地盤での話です。

基礎の下の地盤面の地耐力が均一でない場合は、不同沈下が起こる可能性が充分あるのです。

 

耐震の世界では、重い瓦屋根は外して、軽いものに変えましょうと言われておりますが、それ自体は間違っていませんが、この理屈でいくと。屋根の瓦を外して、基礎はベタ基礎にしても、地盤に与える荷重は、瓦屋根以上の荷重がベタ基礎の荷重により地盤面にかかることになります。

地盤が軟弱な場合、布基礎を採用した方が有利な場合も出てきます。

そもそも正しい基礎補強方法を知らず、基礎補補修程度しか行わないリフォーム会社が多くを占めている現状ですが、

戸建て一軒家のリノベーションで、基礎補強をする際は、このような知識のある会社に相談することが必要です。

【構造補強】

基礎が「地面との絆」なら、木工事は「空に向かう骨格」の再生です。

M様邸の木工事において、私たちがまず直面したのは、築70年の歳月がもたらした「建物の歪み」でした。

解体後の現場調査で判明した数センチの傾き。

これを無視して新しい壁を貼ることは、増改築.com®のプライドが許しません。

 

■ 「揚げ前(ジャッキアップ)」:建物の背筋を伸ばす外科手術

ハーフスケルトンゆえに「階段」と「2階の床」が残っています。

この重みを支えながら、ミリ単位で建物を持ち上げ、水平を出す。

まさに建物の「整体」とも言える難工事です。

数台の油圧ジャッキを主要な柱の下に据え、現場監督の合図とともに慎重に圧力をかけていきます。

「ギギッ」と古材が鳴る音は、家が本来の姿勢を取り戻そうとする産声のようでした。

水平器のレーザーがピタリと中心を指した瞬間。

それまでどこか「平衡感覚」を狂わせていた空間が、一瞬にして凛とした空気に変わりました。

M様がその場に立ち、「……空気が変わりましたね」と呟かれた一言が、この工程の重要性を物語っていました。

品川区M様邸 木工事
品川区M様邸 木工事
品川区M様邸 木工事
品川区M様邸 木工事
品川区M様邸 木工事
品川区M様邸 木工事

【N値計算書に基づく柱頭柱脚金物の設置】

骨組みがまっすぐになったところで、次は「接合部」の強化です。

これまでのM様邸は、柱と梁がただ組まれているだけの「点」の構造でした。

大地震が来た際、最も恐ろしいのは柱が土台から「引き抜かれる」ことです。

私たちは、全100箇所以上の接合部に対し、個別に「N値計算(柱の引き抜き力の算出)」を実施しました。

  • ホールダウン金物の設置: 巨大な地震力で柱が浮き上がろうとする力を、基礎と直結した金物で力ずくで抑え込みます。

  • 柱頭柱脚金物: 柱の上下を鋼製のプレートで拘束。これにより、築70年の古材が現代の強靭なフレームへと統合されました。

現場の至る所で鈍い金色に光る重厚な金物たち。それは、M様ご家族の命を守るための「約束」の証です。

品川区M様邸 木工事
品川区M様邸 木工事
品川区M様邸 木工事
品川区M様邸 木工事
品川区M様邸 木工事

【耐力壁:ノボパン】

ハーフスケルトンの制約上、2階の床下地や階段は触れません。

そのため、補強の主体は1階の壁と、2階の触れる範囲の壁に集中します。

私たちは、従来の「筋交い(すじかい)」だけに頼る補強を捨て、建物全体を「高倍率の耐力面材」で包み込む手法を採りました。 柱と梁に対して、規定の間隔で釘を打ち込み、一枚の強固なボード(面材)を一体化させる。

これにより、家全体が「歪まない箱」へと進化します。

階段周りの既存構造と、この新しい「箱」をいかに強固に連結させるか。

大工職人は、1ミリの隙間も許さない精度で材を刻み、接合部を固めていきました。

 

■ シロアリ被害への最終アンサー:根継ぎと防腐

解体時に見つかったシロアリの食痕。

M様が最も心を痛められていたこの場所に対し、私たちは「根継ぎ」という伝統技法で応えました。

食害に遭った土台や柱の根元を大胆に切除し、新しく強固な「檜(ひのき)」の材を継ぐ。接合部には複雑な仕口を施し、かつての強度を遥かに凌ぐ状態へと再生。

その上で、最新の防蟻・防腐剤を深層まで浸透させ、二度と害虫を寄せ付けない「不落の柱」を完成させました。

品川区M様邸 木工事 耐力壁
品川区M様邸 木工事 耐力壁
品川区M様邸 木工事 耐力壁
2-4 断熱工事【断熱改修】

木工事によって「命を守る強さ」が宿った後は、「暮らしを守る快適さ」を流し込む工程です。

M様が熱望された目標は「断熱等級5」。これは、ZEH(ネット・ゼロ・エネルギー・ハウス)基準を軽々とクリアする、現代における最高峰の温熱スペックです。

しかし、ハーフスケルトンという制約下(2階の床下地や階段が残る状態)での断熱施工は、フルスケルトン以上に高度な技術を要します。

なぜなら、古い構造と新しい断熱材の「境界線」にこそ、熱の逃げ道である「隙間」が生じやすいからです。

私たちは、部位ごとに異なる4種類の素材を使い分けるハイブリッド施工で、この難題に挑みました。

【床断熱・気密シート・浴室基礎断熱】

M様邸の1階床には、最高クラスの断熱性能を誇るフェノールフォーム断熱材「ミラネクストラムダ」を、75mmという圧倒的な厚さで敷き詰めました。

特筆すべきは、その「気密」へのこだわりです。断熱材をただ並べるだけでは不十分です。

私たちは、大引(おおびき)と断熱材の間にわずかな隙間も許さないよう、ミリ単位でカット。さらに接合部を気密テープで完全にシールしました。

これにより、床下から這い上がる冬の不快な底冷えを物理的に遮断。エアコンの暖気が足元から逃げない「熱の貯金箱」を構築しました。

品川区M様邸 断熱工事
品川区M様邸 断熱工事
品川区M様邸 断熱工事

【壁断熱・気密シート・気密テープ処理・コンセントボックス】

壁体内には、湿気に強く、高い断熱・吸音性能を併せ持つ高性能グラスウール「太陽SUN」を充填。

隣家との距離が近い密集地において、断熱は「遮音」の役割も果たします。

ここで重要なのは、「断熱の連続性」です。

ハーフスケルトンで残した2階床下地の周りや、階段との接合部。

こうした「手の届きにくい場所」にこそ熱橋(ヒートブリッジ)が潜んでいます。

私たちは現場監督の厳しい管理のもと、断熱材をパンパンに詰め込むのではなく、ふんわりと、かつ隙間なく配置。窓周りには、最高水準の樹脂サッシ「APW330」を配し、開口部からの熱損失を最小限に抑えました。

品川区M様邸 断熱工事
品川区M様邸 断熱工事
品川区M様邸 断熱工事

【天井断熱】

屋根裏(または2階天井)には、高性能グラスウール「アクリア」を3層、合計240mm超の厚みで施工しました。

屋根からの強力な輻射熱をシャットアウトするこの「分厚い毛布」が、夏場の最上階で感じる不快な熱気を無効化します。冬は暖気を逃がさず、夏は外熱を入れない。まさに家全体が魔法瓶のような環境へと生まれ変わります。

 

■ 境界の魔術:発泡ウレタンによる「隙間」の完全封鎖

ハーフスケルトン工事における最大の急所は、既存の階段や2階床下地との「接点」です。定型の断熱材ではどうしても埋めきれない複雑な形状の隙間に対し、私たちは「現場発泡ウレタン」を局所的に注入しました。 モコモコと膨らむウレタンが、目に見えない隙間を自ら探して埋め尽くす。この「ひと手間」が、断熱等級5という数値を裏付ける、圧倒的な気密性能を生み出すのです。

品川区M様邸 断熱工事
品川区M様邸 断熱工事
品川区M様邸 断熱工事

品川区M様邸 断熱データ

場所 製品 断熱グレード
床断熱材 硬質ウレタンフォーム アキレス キューワンボード 50mm F(熱伝導率0.021W/(m・K))

壁断熱材

高性能グラスウール マグ・イゾベール スタンダード 105mm C(熱伝導率0.038W/(m・K))
天井断熱材

高性能グラスウール アクリア 300mm

C(熱伝導率0.035W/(m・K))
玄関ドア YKKAP 玄関引戸コンコードS30防火 採光付 C(熱貫流率2.40W/(m2・K))
サッシ

YKKAP APW330 防火 樹脂窓

S~A(熱貫流率1.9W/(m2・K)以下)

HEAT20-G2リフォームとは?

<HEAT20とは?>

HEAT20とは、「2020年を見据えた住宅の高断熱化技術開発委員会」という団体名です。

その団体が設定しているのが、屋根や外壁、床、窓などの「外皮」と呼ばれる部位の断熱や遮熱などといった性能の評価基準であり、G1とG2の2段階あります。G2の方がより高性能な性能を有する外皮となっています。

<省エネ基準の家とHEAT20の家の違い>
省エネ基準の家とHEAT20の家の違い

HEAT20-G2の家は、省エネ基準の家の30~50%の暖房費を削減できる

 

「増改築.com®」によると、断熱リフォームの基準として、平成28年の建築物省エネ法基準に相当するUa値0.87が等級4(最高等級)とされています。しかし、この基準だけでは、真の省エネ住宅とは言えません。実際に、日本の断熱等級4は、2020年の建築基準法で努力義務とされているに過ぎません。しかし、2022年4月には断熱等級5が新設され、さらに2022年10月には断熱等級6・7が新設されました。断熱等級6・7は、これまでの断熱等級4と比べて、はるかに高いレベルの断熱性能が求められます。 HEAT20の計画においては、ZEH基準のUa値0.6を基準としています。これは、外壁105mm、U値2.33の樹脂アルミ複合サッシ窓で、天井の断熱材は105mmあれば実現できるとされています。さらに上位のHEAT20 G1グレードでは、6地域でUa値0.56となり、このレベルでは断熱環境を体感できるとされています。

最上位のHEAT20G2グレードでは、5地域でUa値0.46となっています。

断熱改修(温熱改修)リフォームを成功させるためには、これらの基準や計画をしっかりと理解し、適切な施工方法を選択することが重要となります。

2-5 外壁工事

M様邸の外壁工事は、単なる「化粧」ではありません。

ハーフスケルトンで再生した構造材が、二度と腐ることのないよう守り抜く「防衛線の構築」と、M様の美意識を形にする「意匠の完成」という二つの重要な任務がありました。

 

■ 構造を守り抜く「外壁通気工法」の徹底

断熱等級5を実現した魔法瓶のような住まいにおいて、最も恐ろしいのは「壁体内結露」です。

外気と室温の差が大きくなるため、壁の中の空気をいかに滞留させず、湿気を逃がすかが建物の寿命を左右します。

私たちは、ジョリパットを塗る前の下地工程として「外壁通気工法」を完璧に施工しました。

  • 通気胴縁の配置: 構造体と外壁材の間に「空気の通り道」を確保。

  • 水の侵入を許さない「裏打ち工法」: サッシ(APW330)周りには、防水テープに加え、さらに特殊な防水部材を用いた「先付け施工」を実施。万が一、外壁のクラックから水が入っても、構造体には一滴も触れさせない多重の防水ラインを構築しました。

 

■ アイカ工業「ジョリパット」:伝統と現代が交差する質感

外装仕上げに採用したのは、アイカ工業の「ジョリパット」です。量産型のサイディング(板材)を貼り合わせるのではなく、職人が現場で一塗りずつコテで仕上げる湿式工法を選んだのには理由があります。

  1. 圧倒的な耐久性と柔軟性: ジョリパットは塗膜が硬すぎず、木造住宅の微細な動きに追従する柔軟性を持っています。これにより、ひび割れのリスクを軽減します。

  2. 街並みへの調和: 密集地である荏原の街並みに、無機質な板材は似合いません。手仕事特有の柔らかな陰影と質感が、築70年の歴史を継承するM様邸にふさわしい落ち着きを与えます。

  3. 優れた防火性能: 準防火地域である都心の密集地において、ジョリパットの不燃性は「家族を守る」ための重要なスペックとなります。

 

■ 職人魂が宿る「コテ塗り」の最終仕上げ

ジョリパットの施工当日、現場にはピンと張り詰めた空気が流れていました。

気温、湿度、そしてコテを動かす速度。そのすべてが仕上がりの表情を左右します。

M様が見守る中、熟練の左官職人がリズムよく壁を塗り進めていきました。

選んだパターン(模様)は、光の当たり方で表情を変える繊細なもの。

足場が外れ、太陽の光を浴びた外壁は、かつての古びたモルタル壁とは全く別の、凛とした品格を放っていました。

「この質感が欲しかったんです。新築のような派手さではなく、この街にずっとあったような、でも確実に新しくなったという確信が持てる外観ですね」

M様がそう仰った瞬間、この「鎧」は完成しました。見た目の美しさ以上に、その裏側に潜ませた「通気」と「防水」という技術の狂気が、M様邸をこれから先、何十年も守り続けることになります。

品川区M様邸 外壁工事
品川区M様邸 外壁工事
品川区M様邸 外壁工事
品川区M様邸 外壁工事
品川区M様邸 外壁工事
品川区M様邸 外壁工事
品川区M様邸 外壁工事
品川区M様邸 外壁工事
品川区M様邸 外壁工事
2-6 造作工事
品川区M様邸 造作工事
品川区M様邸 造作工事
品川区M様邸 造作工事
品川区M様邸 造作工事
品川区M様邸 造作工事

3 戸建てリノベーション竣工

約8か月の工事を経て、いよいよ竣工です。

築70年の再建築不可戸建てがどのように生まれ変わったのか。

M様邸の様子をご紹介します。


  =外観==  

Before

品川区M様邸 既存外観

施工前は唯一開けた正面に開口部が集中していました

After

品川区M様邸 竣工外観

施工後はすっきりとした外観になりました

品川区M様邸 竣工外観

外壁はAICAのジョリパッド左官仕上げ

品川区M様邸 竣工外観

玄関はYKKAP玄関引戸コンコードS30防火 落ち着いたマキアートパイン柄


  == 1F LDK ==  

Before

品川区M様邸 既存

施工前は和室が2間つながった間取りでした

After

品川区M様邸 竣工

施工後はLDKとし、キッチンも対面型に移動

品川区M様邸 竣工
品川区M様邸 竣工

  == 1F 水まわり ==  

Before

品川区M様邸 既存

施工前は和室の隣の勝手口側にあったキッチン

After

品川区M様邸 竣工

施工後はLDKに移動して使いやすくなりました。タカラスタンダードのリフィット

品川区M様邸 竣工

浴室はTOTOサザナ1318サイズ

品川区M様邸 竣工
品川区M様邸 竣工

洗面化粧台はTOTOオクターブスリム

品川区M様邸 竣工

トイレはTOTOハイウィルオリジナル


  == その他居室 ==  

品川区M様邸 竣工
品川区M様邸 竣工
品川区M様邸 竣工

バルコニーで便利に使えるマルチシンク(TOTO)

4 補助金利用

品川区M様邸の工事では、国の補助金「子育てグリーン住宅支援事業」と「先進的窓リノベ事業」、東京都補助金「既存住宅における省エネ改修促進事業」を活用予定です。(申請中)

省エネにつながるエコ住宅設備や、断熱性能の高い断熱材・ドア・窓の設置などに対して交付される補助金です。

 

M様邸の補助金対象工事

エコ住宅設備の設置 給湯器(エコジョーズ)、節水型トイレ、節湯水栓
断熱改修 外壁・床・天井の断熱材、断熱窓、断熱ドア ※東京都補助金併用
子育て対応改修 ビルトイン自動調理対応コンロ、掃除しやすいレンジフード、ビルトイン食洗器、浴室乾燥機

 

M様邸工事の補助金交付(予定)額:合計 約170万円

5 担当者より
(「増改築.com®」本部ハイウィル株式会社四代目代表稲葉高志)

M様、長いようで短かったこの大規模プロジェクト、本当にお疲れ様でした。そして、大切なご家族の記憶が詰まったこの家を、増改築コムに託してくださったこと、改めて心より感謝申し上げます。

今だから打ち明けますが、品川区荏原のあの細い路地で初めてM様とお会いした際、私はこのプロジェクトの重圧をひしひしと感じていました。「再建築不可」という法的な呪縛、そして築70年という歳月が刻んだ構造の歪み。普通のリフォーム会社であれば「そこそこ綺麗にする」程度で済ませてしまうような難題ばかりでした。しかし、M様の「義母から受け継いだこの場所を、絶対に守り抜きたい」という強い決意に触れたとき、私のスイッチが入りました。

「法律に縛られて新築できないのなら、法律を超えた性能の『要塞』を造ればいい」

その一心で、私たちはハーフスケルトンという、フルスケルトン以上に神経を使う「精密な外科手術」を計画しました。

 

■ 忘れられない「解体の静寂」

忘れもしない解体工事のあの日。壁を剥がし、隠れていたシロアリの食痕や腐朽した通し柱が露わになった瞬間、現場には冷たい静寂が流れました。M様がその無惨な「家の悲鳴」を目の当たりにして、言葉を失っていらっしゃった姿が今でも目に焼き付いています。

あの時、私はこう思いました。「ここからが、私たちの見せ場だ」と。 シロアリに食われた土台を檜の材で根継ぎし、ジャッキで建物を持ち上げて数ミリの歪みを正していく。N値計算に基づいた無数の金物が、鈍い光を放ちながら古い骨格に吸い込まれていく様子は、まさに建物が新しい命を吹き込まれていく神聖な儀式のようでもありました。

 

■ 「技術の狂気」を信じてくれたこと

M様には、私たちの「技術的な狂気」とも言えるこだわりを、最後まで信じていただきました。

「リフォームで断熱等級5なんて、本当に可能なんですか?」

当初そう仰っていたM様が、床にラムダが敷き詰められ、天井にアクリアが3層に重ねられていく様子を見て、

「……これは、もう別の建物ですね」と確信に変わった表情を見せてくださったとき、私は心の中で小さくガッツポーズをしました。

 

■ 「家守り(いえもり)」としての約束

M様、工事は終わりましたが、私たちの関係はここからが本当のスタートです。

ハーフスケルトンという手法で再生したこの家は、いわば「新旧の細胞が融合した生命体」です。

これから季節が巡り、木が呼吸し、家が馴染んでいく過程で、何かあればいつでも駆けつけます。

品川の密集地で、築70年の歴史を背負いながら、令和の最新スペックを纏ったこの「不滅の棲家」。これがM様ご家族を、そして次の世代を、100年先まで守り続けてくれることを私は確信しています。

この家が、M様のこれからの人生を照らす、最高に温かな「灯台」となりますように。

他のリフォーム事例を見る

再建築不可のフルリフォーム&リノベーション

兵庫県神戸市 N様邸

再建築不可リノベーション

東京都杉並区 M様邸

再建築不可 中古住宅リフォーム&リノベーション

東京都目黒区 A様邸

地盤沈下(家の傾き)補正の戸建リノベーション

東京都板橋区 O様邸

戸建てリノベーション・リフォームに関するお問合せはこちら

増改築.comの一戸建てリフォーム専用ホームページに
お越しいただき、誠に有難うございます。
 
増改築.comメンバーは技術集団となり、
他社のような営業マンがおりません。
技術者が直接ご相談にのり問題解決を行います。
 
従いまして、
お客様の方である程度のご要望が整理されました段階、
お悩みが工事内容のどのようなところにあるのか?
ご予算がどの程度絞る必要があるのか?
など明確になった段階でのご相談をお願いしております。
お問合せ・ご相談はお電話・メールにて受け付けております。
メールの場合は以下のフォームに必要事項をご記入の上、
「送信する」ボタンをクリックをお願いします。

代表稲葉高志

戸建てリノベーションの専属スタッフが担当致します。
一戸建て家のリフォームに関することを
お気軽にお問合せください

よくあるご質問
  • 他社に要望を伝えたところできないといわれたのですが・・・
  • 他社で予算オーバーとなってしまい要望が叶わないのですが・・・
  • サービスについて詳しく聞きたいのですが・・・

どのようなお悩みのご相談でも結構です。

あなたの大切なお住まいに関するご相談をお待ちしております。

営業マンはおりませんので、しつこい営業等も一切ございません。

設計会社(建築家様)・同業の建築会社様のご相談につきましては、プランと共にご指定のIw値及びUa値等の性能値の目安もお願い申し上げます。

2026年の大型補助金が確定したことで現在大変込み合っております。

耐震性能と断熱性能を向上させるフルリフォームには6か月~7か月の工期がかかります。

補助金獲得には年内に報告を挙げる必要があることから、お早目にご相談をお願いいたします。(6月着工までが目安

ご提案までに大変お時間がかかっております。ご了承のほどお願い申し上げます。

(5月までの着工枠が埋まりました)・・・2026/03/01更新

※すでにプランをお持ちのお施主様・設計資料をお持ちのお施主様は内容をフォームで送信後、フォーム下のメールアドレスに資料をお送りください。対応がスムーズです。

必須

(例:増改築太郎)

必須

(例:contact@high-will.co.jp)

(例:03-5615-2826)

必須

(例:東京都荒川区西日暮里2-35-1)

(例:築40年)

(例:25坪・100㎡など)

(例:2000万程度など)

  • ※再建築不可のリフォームでは金融機関が限られます。事前審査をお勧めいたします。

    (例:2024年3月くらいに完成希望など)

    必須

    できるだけ具体的にお知らせくださいませ。既存設計資料、リフォーム後のイメージ図等をお持ちであれば下記のメールアドレスより添付をお願いします。

    ※次の画面がでるまで、4~5秒かかりますので、
    続けて2回押さないようにお願いいたします。

    ※次の画面が出るまで、4〜5秒かかりますので、
    続けて2回押さないようにお願いいたします。

    図面や写真等を送信いただく場合、また入力がうまくいかない場合は、上記内容をご確認のうえ、下記メールアドレスまでご連絡ください。

    お電話でのお問合せはこちら

    0120-246-991

    営業時間:10:00~17:00(土日祝日を除く)

    ★YouTube「増改築.comチャンネル」チャンネル登録して新動画解説をいち早くGET!!★
    「増改築.comリノベ診断」であなたに一番ふさわしいフルリフォームを診断!!(動画解説付き)
    ★Facebookページにいいね!を押して最新コンテンツ情報をいち早くGET!!★

    4代目代表よりご挨拶

    稲葉高志

    親切・丁寧な対応をモットーとしておりますのでお気軽にご相談ください。