戸建フルリフォームなら「増改築.com®」TOP > 施工事例 > 都道府県で探す > 東京都杉並区 > 施工事例 【杉並区】再建築不可の木造住宅をスケルトンリフォームで再生|耐震+制震、HEAT20 G2の高断熱住宅へ

再建築不可でも新築以上の耐震性能と断熱性能に生まれ変わる!

【杉並区】再建築不可の木造住宅をスケルトンリフォームで再生|耐震+制震、HEAT20 G2の高断熱住宅へ

杉並区H様 外観 ビフォーアフター
建物概要
名前 H様
場所 東京都杉並区
築年数 築45年
構造種別 木造一戸建て
家族構成 大人2人 子供2人
対象面積 26.3坪
リフォーム部位 ベタ基礎/間取り変更/断熱サッシ/セルロースファイバー/屋上テラス/耐震補強/太陽光発電/外構
工期 5ヶ月
価格 3400万

お客様のご要望

今回のリフォームで、H様からのご要望は以下の3点です。

 

  • 地震が不安なので耐震補強はしっかりとやりたい
  • 断熱材にはこだわりたい。
  • 基礎補強したい

プランナー 北畠より ~プランニングのポイント~

ポイント1:家族の繋がりを育む「LDK中心」の空間構成

 

  • 【Before】 以前の間取りは、北側に独立したキッチン、そしてダイニング、和室が細かく仕切られていました。光が入りにくく、家族がそれぞれ別の部屋にこもりがちで、コミュニケーションが取りにくいのが課題でした。

  • 【After】 1階の中心にあった和室とダイニングの壁を、構造補強を前提にすべて撤去。家全体の中央に、光と風が通り抜ける広大なLDKを配置しました。キッチンもリビング全体を見渡せる対面式にすることで、どこにいても家族の気配を感じられる、一体感のある空間を創出しました。

  • 【狙い】 LDKを単なる食事や寛ぎの場ではなく、家族が自然と集まり、日々のコミュニケーションが生まれる「家の心臓部」と位置づけました。料理をしながら子供の宿題を見たり、リビングで遊ぶ様子を見守ったりと、日々の暮らしの中で家族の繋がりが深まることを意図しています。

 

ポイント2:「耐震性最優先」から導き出す、合理的で開放的な間取り

 

  • 【課題】 開放的な大空間LDKの実現と、地震に耐えるための「耐力壁」の確保は、時に相反する要素です。デザインを優先して壁を減らしすぎると、耐震性が損なわれてしまいます。

  • 【プラン】 私たちはまず、綿密な構造計算によって「どこに、どれだけの強度の耐力壁が必要か」を確定させることから始めました。建物の四隅や中心部など、構造的に最も効果的な場所に耐力壁を集中配置。その上で、取り払っても問題ない壁を見極め、LDKの広さを最大限に確保するプランを策定しました。

  • 【狙い】 見た目のデザインから入るのではなく、「家族の命を守る構造」を最優先に考える。これが私たちのプランニングの絶対的なルールです。安全性が確保された骨格の中に、お客様の理想の暮らしをパズルのように当てはめていく。この手順を踏むことで、デザイン性と安全性を最高レベルで両立させています。

 

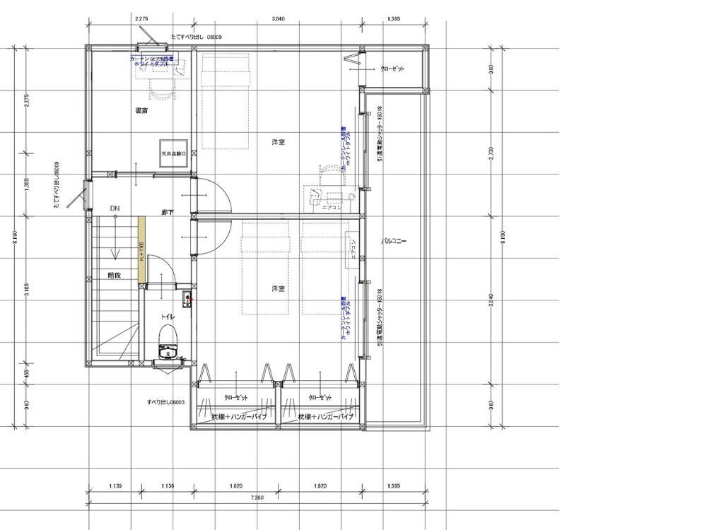
ポイント3:将来を見据えた「可変性」のある子供部屋

 

  • 【課題】 お子様はまだ小さいですが、いずれ成長すればそれぞれのプライベートな空間が必要になります。しかし、最初から部屋を細かく区切ってしまうと、幼少期にのびのびと遊べるスペースがなくなってしまいます。

  • 【プラン】 2階の子供部屋は、最初は間仕切りのない一つの大きな空間として計画。ただし、将来的に2部屋に分けられるよう、ドア、窓、照明スイッチ、コンセント、エアコンの設置箇所を、あらかじめ左右対称に2つずつ設けておきました。

  • 【狙い】 お子様の成長段階という「時間の変化」に柔軟に対応できる設計です。数年後、個室が必要になった際には、簡単な間仕切り壁を設置するだけで、最小限のコストと工期で2つの子供部屋が完成します。長期的な視点でご家族のライフステージの変化を見据えることも、重要なプランニングの一部です。

 

ポイント4:「減築」という選択による、駐車スペースと採光の確保

 

  • 【課題】 既存の建物は敷地に対して比較的大きく、駐車スペースが手狭でした。また、建物の配置上、北側の部屋への採光が難しい状況でした。

  • 【狙い】 この「減築」によって、駐車スペースをストレスなく使える広さに拡張できました。さらに、建物と敷地境界の間にスペースが生まれたことで、これまで光が届きにくかった1階北側にも安定した光を取り込めるようになり、家全体の快適性が向上しました。増やせない「再建築不可物件」において、減らすことで価値を高める逆転の発想です。

 

ポイント5:家事動線と生活インフラのアップデート

 

  • 【課題】 以前の住まいは、洗濯、料理、掃除といった家事動線に無駄が多く、日々の負担になっていました。また、水道管の細さによる水圧の低さも悩みの種でした。

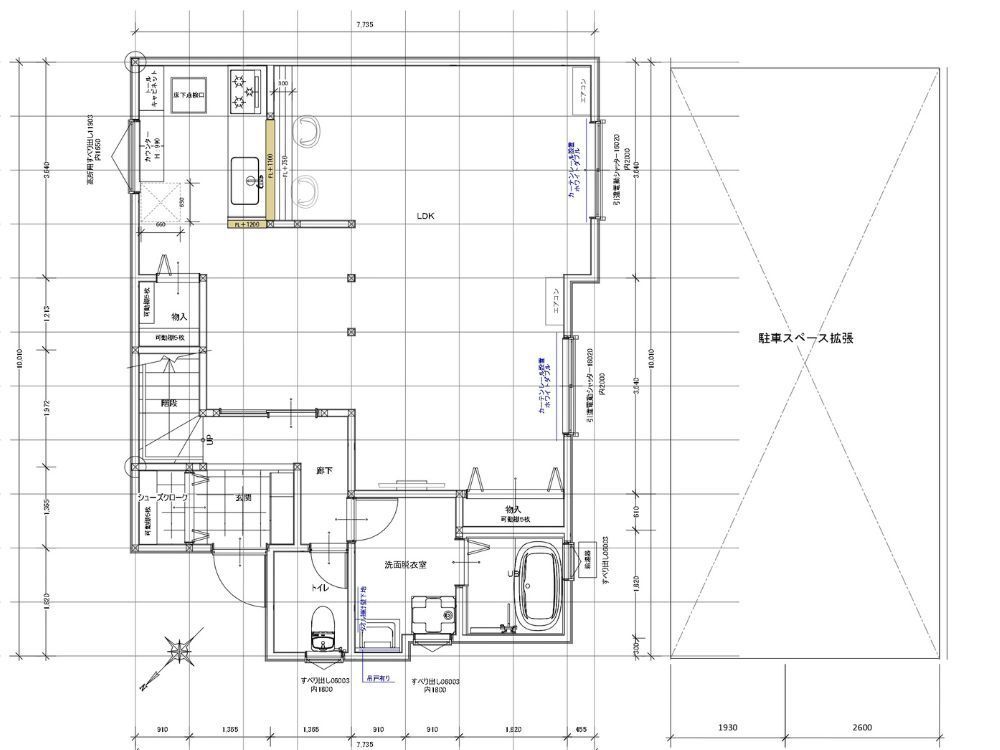
  • 【プラン】 キッチン、洗面脱衣室、浴室といった水まわりを隣接させて集中配置。料理をしながら洗濯機の様子を見に行く、といった「ながら家事」がスムーズにできる、回遊性の高い動線を計画しました。同時に、敷地内の水道管を13mmから20mmに引き直す工事も行いました。

  • 【狙い】 日々の家事という「見えない負担」を軽減することは、暮らしの質を大きく向上させます。また、水道管のようなインフラを更新することは、住宅の性能を根本から改善し、将来にわたる安心に繋がります。目に見える部分だけでなく、生活の基盤そのものをアップデートする視点も、私たちのプランニングでは欠かせません。


これらのポイントはすべて、お客様が抱える課題と真摯に向き合い、専門的な知見をもって一つひとつ解決策を導き出した結果です。私たちのプランニングは、単なる設計図を描く作業ではなく、お客様の未来の暮らしをデザインする対話のプロセスであると考えています。

 

 

杉並区H様邸 戸建てリノベーション施工事例テーマカテゴリー

  • 再建築不可リフォーム
  • 耐震等級3相当(上部構造評点1.5以上)リフォーム(性能向上リノベーション)
  • HEAT20-G2リフォーム(性能向上リノベーション
  • セルロースファイバー仕様
  • 補助金活用リフォーム

打ち合わせから着工、完成までの詳細施工事例紹介

1 戸建てリノベーション着工前

1-1 現場調査・打合せ

「建て替えができないこの家を、地震に強く、快適な終の棲家にしたい」。お客様の切実な願いから、このリノベーションは始まりました。最初の現地調査で私たちが確認したのは、築45年という歳月が刻んだ、いくつかの懸念点でした。壁の数カ所には、過去の雨水侵入によって放置された痕跡があり、壁内での結露の可能性も疑われました。

私たちは、表面的な修繕では根本的な解決にならないこと、そして本当の安心を手に入れるためには、一度建物を骨組みまで解体し、構造体の隅々まで健全な状態に戻す「スケルトンリフォーム」が不可欠であることをご説明しました。見えない部分の問題にまで目を向け、すべてを明らかにした上で再生させる。その覚悟をお客様と共有し、プロジェクトはスタートしました。

杉並区H様 既存外観
杉並区H様 既存
杉並区H様 既存
杉並区H様 既存
杉並区H様 既存
杉並区H様 既存

施工前の水回り

杉並区H様 既存
杉並区H様 既存
杉並区H様 既存

1-2 東京都杉並区H様邸 戸建リノベーションプラン

ご家族4人がこれからも快適に暮らせるよう、性能向上と暮らしやすさを両立させるプランをご提案しました。

  • 間取り: 1階は壁で仕切られていた和室と台所を一体化させ、光と風が通り抜ける広々としたLDKへと刷新。キッチンは、料理をしながらでも家族の様子が見渡せる対面式とし、コミュニケーションの中心となる空間を計画しました。

  • 性能目標:

    • 耐震性: 建築基準法の1.5倍の強度を持つ「耐震等級3」相当の耐力に加え、揺れを吸収する**「制震ダンパー」**を設置し、繰り返す地震にも備える最高レベルの安全性を目指します。

    • 断熱性: 国の定める省エネ基準を大きく上回る「HEAT20 G2グレード」を目標に設定。一年を通して最小限のエネルギーで快適に過ごせる住環境を計画しました。

  • ライフラインと外構: 水圧の改善と将来の安心のため、敷地内の水道管を13mmから20mmへと交換。また、日々の使い勝手を向上させるため、駐車場の拡張も計画に盛り込みました。

  間取りの変更プラン  

杉並区H様 新規平面図

1階 戸建てリノベーション後平面図

杉並区H様 新規平面図

2階 戸建てリノベーション後平面図

2 戸建てリノベーション着工

2-1 足場・解体

●解体は手壊し作業

いよいよ工事が始まり、建物を構造躯体だけの状態にするスケルトン解体が進められます。壁紙、石膏ボード、断熱材…一枚一枚内装が剥がされていくたびに、建物の素顔が現れます。このプロセスは、人間で言えば精密な健康診断のようなもの。設計図だけではわからない、この家の本当の状態を明らかにするための、最も重要な工程です。そして私たちは、事前調査で予測していた以上の厳しい現実に直面することになります。

杉並区H様 解体
杉並区H様 解体
杉並区H様 解体
杉並区H様 解体
杉並区H様 解体
杉並区H様 解体

●解体後の躯体チェック

壁や天井がすべて取り払われたとき、息をのむ光景が広がっていました。長年の雨漏りは私たちが想定していた以上に深刻で、柱や下地であるザラ板の一部が黒く変色し、腐食していたのです。手で触れると木材が崩れ落ちる部分もあり、このままでは建物の耐力を十分に支えられない、危険な状態でした。

もし、この事実を知らずに表面的なリフォームで済ませていたら、いずれ大きな地震が来たときに取り返しのつかない事態になっていたかもしれません。「スケルトンにしたからこそ、この問題を発見できた」。これこそが、このリフォームの最大の価値でした。

私たちは直ちに計画を修正。腐食した柱や下地材はすべて撤去し、健全で強度の高い新しい木材へと交換しました。そして、雨水の侵入経路となっていた部分を徹底的に特定し、二度と雨漏りが起きないよう、入念な防水処理を施しました。建物の”病巣”を完全に取り除き、健康な身体へと再生させる。まさしく、住宅の外科手術とも言える作業でした。

杉並区H様 解体
杉並区H様 解体
杉並区H様 解体
杉並区H様 解体
杉並区H様 解体

大事な構造部のすべてが目視可能となるスケルトンリフォーム

内部の天井・壁・床だけでなく外壁まで解体しスケルトン状態(躯体残し)にする戸建てリノベーションの最大のメリットはこのような重要な主要構造部のすべての状態が目視でわかることになります。

フルリノベーション後は、これらの構造上の弱点をすべて修正し補強することで新築と同水準、もくしくはそれ以上の建物性能をもつ構造躯体へ甦らせることが可能となります。

2-2 基礎

建物を支える足元、基礎の補強も重要な工程です。既存の基礎は、コンクリートが連続していない「布基礎」でした。このままでは新たに造る強い骨格を十分に支えきれません。そこで、既存の布基礎の内側に鉄筋を組み、コンクリートを流し込む「増し打ち補強」を実施。これにより、基礎全体が一体化し、地震の力を地面へスムーズに逃がす、強固な盤面が完成しました。

杉並区H様 基礎
杉並区H様 基礎
杉並区H様 基礎
杉並区H様 基礎
杉並区H様 基礎
杉並区H様 基礎
杉並区H様 基礎
杉並区H様 基礎
杉並区H様 基礎
杉並区H様 基礎
杉並区H様 基礎
杉並区H様 基礎
2-3 木工事

盤石な基礎の上に、強靭な骨格を再構築していきます。

  • 耐震補強: 構造計算に基づき、建物のバランスを見ながら構造用パーティクルボード「ノボパン」を用いて耐力壁を適切な位置に新設。地震の水平力に粘り強く抵抗する壁を増やします。また、柱の抜けを防ぐため、N値計算によって導き出された最適な耐震金物を柱頭柱脚に設置し、骨格を強固に一体化させました。

  • 制震ダンパーの設置: さらに、今回は「耐震」に加えて「制震」という考え方を導入。特殊なゴムで地震の揺れのエネルギーを吸収する制震ダンパーを壁内に設置しました。これにより、震度6強クラスの大きな地震の揺れを最大で70%も低減。建物の損傷を防ぐだけでなく、家具の転倒リスクを減らし、何よりもご家族の恐怖心を和らげる、ワンランク上の安心を実現しました。

杉並区H様 木工事
杉並区H様 木工事
杉並区H様 木工事
杉並区H様 木工事
杉並区H様 木工事
杉並区H様 木工事

耐震補強工事

杉並区H様 耐震補強
杉並区H様 耐震補強
杉並区H様 耐震補強
杉並区H様 耐震補強
杉並区H様 耐震補強
杉並区H様 耐震補強
2-4 断熱工事

以前の住まいの課題であった「壁内結露」と決別し、快適な温熱環境を実現するため、断熱工事も一切の妥協なく行いました。

  • 床: 床下からの冷気をシャットアウトするため、高性能断熱材「ミラネクストラムダ」を75mm敷き込み、防湿シートと気密テープで隙間なく施工します。

  • 壁・天井: 壁には120mm、最も熱の出入りが激しい天井には300mmもの厚さで、断熱・防音・調湿性に優れたエコ断熱材「セルロースファイバー」を専門の職人が隙間なく吹き込みます。

この徹底した断熱施工により、目標としていた「HEAT20 G2グレード」を達成。家全体がまるで魔法瓶のように包まれ、真冬でもエアコン一台で家中が暖かい、健康で快適な省エネ住宅が完成しました。

杉並区H様 断熱工事
杉並区H様 断熱工事
杉並区H様 断熱工事
杉並区H様 断熱工事
杉並区H様 断熱工事
杉並区H様 断熱工事

杉並区H様邸 断熱データ

場所 製品 断熱グレード
床断熱材 押出法ポリスチレンフォーム ミラフォームラムダ F(熱伝導率0.022W/(m・K))

壁断熱材

セルロースファイバー ファイバーエース C(熱伝導率0.040W/(m・K))
天井断熱材

セルロースファイバー ファイバーエース

C(熱伝導率0.040W/(m・K))
玄関ドア YKKAP イノベストD50 防火 A(ZEHレベル)
サッシ

YKKAP APW330 防火 樹脂窓

S~A(ZEHレベル)

HEAT20-G2リフォームとは?

<HEAT20とは?>

HEAT20とは、「2020年を見据えた住宅の高断熱化技術開発委員会」という団体名です。

その団体が設定しているのが、屋根や外壁、床、窓などの「外皮」と呼ばれる部位の断熱や遮熱などといった性能の評価基準であり、G1とG2の2段階あります。G2の方がより高性能な性能を有する外皮となっています。

<省エネ基準の家とHEAT20の家の違い>

HEAT20-G2の家は、省エネ基準の家の30~50%の暖房費を削減できる

 

「増改築.com®」によると、断熱リフォームの基準として、平成28年の建築物省エネ法基準に相当するUa値0.87が等級4(最高等級)とされています。しかし、この基準だけでは、真の省エネ住宅とは言えません。実際に、日本の断熱等級4は、2020年の建築基準法で努力義務とされているに過ぎません。しかし、2022年4月には断熱等級5が新設され、さらに2022年10月には断熱等級6・7が新設されました。断熱等級6・7は、これまでの断熱等級4と比べて、はるかに高いレベルの断熱性能が求められます。 HEAT20の計画においては、ZEH基準のUa値0.6を基準としています。これは、外壁105mm、U値2.33の樹脂アルミ複合サッシ窓で、天井の断熱材は105mmあれば実現できるとされています。さらに上位の「HEAT20 G1」グレードでは、6地域でUa値0.56となり、このレベルでは断熱環境を体感できるとされています。

最上位の「HEAT20G2」グレードでは、5地域でUa値0.46となっています。

断熱改修(温熱改修)リフォームを成功させるためには、これらの基準や計画をしっかりと理解し、適切な施工方法を選択することが重要となります。

2-5 外壁工事

雨漏りによる腐食という手痛い教訓から、外壁には高い防水性と耐久性を誇るガルバリウム鋼板を採用。軽量で建物への負担が少なく、メンテナンス性にも優れています。シャープな質感の鋼板が、住まいの外観をモダンでスタイリッシュな印象へと一新させました。

杉並区H様 外壁工事
杉並区H様 外壁工事
杉並区H様 外壁工事
杉並区H様 外壁工事
杉並区H様 外壁工事
2-6 造作工事

強靭な構造と高い断熱性能に包まれた空間に、ご家族の暮らしを彩る内装を施していきます。光あふれるLDKには、家族の会話が弾む対面キッチンを設置。床には温かみのあるフローリングを、壁や天井には明るいクロスを選び、お子様たちの成長を見守る、心地よい生活空間を創り上げました。

杉並区H様 造作工事
杉並区H様 造作工事

3 戸建てリノベーション竣工

8ヶ月の工期を経て、かつての不安だらけの住まいは、安全性、快適性、そしてデザイン性のすべてを兼ね備えた、理想の我が家へと生まれ変わりました。


  =外観==  

Before

杉並区H様 既存外観 ビフォー

施工前は窓が多くありました

After

杉並区H様 新規外観 アフター

施工後は窓の数と面積を減らしたことでコストをかけずに断熱性能UP。外壁はアイジー工業の金属サイディング仕上げです。


  == 1F LDK ==  

Before

杉並区H様 既存

施工前は洋間と和室でした

After

杉並区H様 竣工

施工後洋間と和室をひと続きのLDKに。壁に仕切られ薄暗かったキッチンは、南からの光が降り注ぐLDKの中心へ。対面カウンター越しに家族の笑顔が広がる、明るく開放的な空間が実現しました。

杉並区H様 竣工

室内建材はパナソニックベリティスシリーズで統一。フローリングはホワイトオーク柄、室内ドアはしっくいホワイト色

杉並区H様 竣工

リビングが見渡せる位置にキッチンを配置。腰壁をまわすことで開放感がありながら手元は隠れるちょうどいい高さ。


  == 1F 水まわり ==  

Before

杉並区H様 既存

After

杉並区H様 竣工

水回り機器が老朽化まではしていませんでしたがすべて更新となりました。お風呂はTOTOサザナ1616サイズ

杉並区H様 竣工

キッチンはTOTOミッテ2550サイズ

杉並区H様 竣工

広い洗面脱衣室。洗面化粧台はTOTOオクターブW750

杉並区H様 竣工

トイレはハイウィルオリジナルトイレ


  == 2F 居室・バルコニー ==  

杉並区H様 竣工
杉並区H様 竣工
杉並区H様 竣工
杉並区H様 竣工
杉並区H様 竣工
杉並区H様 竣工

4 補助金利用

杉並区H様邸の工事では、国の補助金「子育てエコホーム支援事業」と「先進的窓リノベ事業」に加えて東京都の「既存住宅における省エネ改修促進事業」を活用しました。

省エネにつながるエコ住宅設備や、断熱性能の高い断熱材・ドア・窓の設置などに対して交付される補助金です。

 

H様邸の補助金対象工事

エコ住宅設備の設置 給湯器(エコジョーズ)、高断熱浴槽、節水型トイレ、節湯水栓
断熱改修 外壁・床・天井の断熱材、断熱窓、断熱ドア(東京都補助金併用)
子育て対応改修 掃除しやすいレンジフード、浴室乾燥機

 

杉並区H様邸の工事の補助金総額:2,100,000円

5 担当者より
(「増改築.com®」本部ハイウィル株式会社四代目代表稲葉高志)

この度のリノベーションをお任せいただき、誠にありがとうございました。「再建築不可」という制約の中で、お客様が私たちに託してくださった「この家で永く安心して暮らしたい」という想いの重さを、ひしひしと感じるプロジェクトでした。

最も印象に残っているのは、やはり解体後に目の当たりにした柱の腐食です。あの光景を見たとき、「このご決断をいただいて本当に良かった」と心から思いました。もしスケルトンにしていなければ、この深刻な問題は見過ごされ、本当の意味での安心をお届けすることはできなかったでしょう。見えない部分に隠された課題に真摯に向き合い、根本から解決することこそが、私たちの使命だと改めて確信しました。

耐震と制震、そして高い断熱性能。私たちが持つ技術のすべてを注ぎ込み、再生されたこのお住まいが、これから先何十年と、ご家族の笑顔と幸せな毎日を守り続けてくれることを、心より願っております。

他のリフォーム事例を見る

再建築不可のフルリフォーム&リノベーション

兵庫県神戸市 N様邸

再建築不可リノベーション

東京都杉並区 M様邸

再建築不可 中古住宅リフォーム&リノベーション

東京都目黒区 A様邸

地盤沈下(家の傾き)補正の戸建リノベーション

東京都板橋区 O様邸

戸建てリノベーション・リフォームに関するお問合せはこちら

増改築.comの一戸建てリフォーム専用ホームページに
お越しいただき、誠に有難うございます。
 
増改築.comメンバーは技術集団となり、
他社のような営業マンがおりません。
技術者が直接ご相談にのり問題解決を行います。
 
従いまして、
お客様の方である程度のご要望が整理されました段階、
お悩みが工事内容のどのようなところにあるのか?
ご予算がどの程度絞る必要があるのか?
など明確になった段階でのご相談をお願いしております。
お問合せ・ご相談はお電話・メールにて受け付けております。
メールの場合は以下のフォームに必要事項をご記入の上、
「送信する」ボタンをクリックをお願いします。

代表稲葉高志

戸建てリノベーションの専属スタッフが担当致します。
一戸建て家のリフォームに関することを
お気軽にお問合せください

よくあるご質問
  • 他社に要望を伝えたところできないといわれたのですが・・・
  • 他社で予算オーバーとなってしまい要望が叶わないのですが・・・
  • サービスについて詳しく聞きたいのですが・・・

どのようなお悩みのご相談でも結構です。

あなたの大切なお住まいに関するご相談をお待ちしております。

営業マンはおりませんので、しつこい営業等も一切ございません。

設計会社(建築家様)・同業の建築会社様のご相談につきましては、プランと共にご指定のIw値及びUa値等の性能値の目安もお願い申し上げます。

2026年の大型補助金が確定したことで現在大変込み合っております。

耐震性能と断熱性能を向上させるフルリフォームには6か月~7か月の工期がかかります。

補助金獲得には年内に報告を挙げる必要があることから、お早目にご相談をお願いいたします。(6月着工までが目安

ご提案までに大変お時間がかかっております。ご了承のほどお願い申し上げます。

(5月までの着工枠が埋まりました)・・・2026/03/01更新

※すでにプランをお持ちのお施主様・設計資料をお持ちのお施主様は内容をフォームで送信後、フォーム下のメールアドレスに資料をお送りください。対応がスムーズです。

必須

(例:増改築太郎)

必須

(例:contact@high-will.co.jp)

(例:03-5615-2826)

必須

(例:東京都荒川区西日暮里2-35-1)

(例:築40年)

(例:25坪・100㎡など)

(例:2000万程度など)

  • ※再建築不可のリフォームでは金融機関が限られます。事前審査をお勧めいたします。

    (例:2024年3月くらいに完成希望など)

    必須

    できるだけ具体的にお知らせくださいませ。既存設計資料、リフォーム後のイメージ図等をお持ちであれば下記のメールアドレスより添付をお願いします。

    ※次の画面がでるまで、4~5秒かかりますので、
    続けて2回押さないようにお願いいたします。

    ※次の画面が出るまで、4〜5秒かかりますので、
    続けて2回押さないようにお願いいたします。

    図面や写真等を送信いただく場合、また入力がうまくいかない場合は、上記内容をご確認のうえ、下記メールアドレスまでご連絡ください。

    お電話でのお問合せはこちら

    0120-246-991

    営業時間:10:00~17:00(土日祝日を除く)

    ★YouTube「増改築.comチャンネル」チャンネル登録して新動画解説をいち早くGET!!★
    「増改築.comリノベ診断」であなたに一番ふさわしいフルリフォームを診断!!(動画解説付き)
    ★Facebookページにいいね!を押して最新コンテンツ情報をいち早くGET!!★

    4代目代表よりご挨拶

    稲葉高志

    親切・丁寧な対応をモットーとしておりますのでお気軽にご相談ください。