戸建フルリフォームなら「増改築.com®」TOP > 施工事例 > 都道府県で探す > 東京都台東区> 施工事例 東京都台東区一軒家リノベーション

東京都台東区築52年の古家(再建築不可)が新築最高耐震基準相当の躯体に生まれ変わる!

一軒家戸建てリノベーション施工事例

東京都台東区 施工事例
構造評点1.5以上で新築の最高基準相当の躯体強度へ

 

N様からの最初のお問い合わせは、

「現在大手リフォーム会社での現地調査が完了し、プランと見積もりを出していただいたのですが、一連のコンタクトの中で、調査手法や施工方法に疑問を感じる場面もあります。」

というものでした。 それは

「基礎は補修すれば大丈夫ですと言われ、基礎補強をお願いしても提案をしてくれなく困っていた。そんな折、『増改築com』で三鷹市の再建築不可の施工事例を拝見致し、まさにこういったリノベーションをしたいと考えております。また再建築不可での一軒家リノベーションの実績が豊富であったので、ぜひ一度現地を確認のうえご提案を頂きたくご連絡申し上げました。」「S56年頃に増築しており、トタン屋根の上に金属屋根を被せる形での改装をしています(記録なく時期不明)」

こんなお問い合わせから調査が始まり、弊社ハイウィル株式会社にて施工させていただいた現場となります。

建物概要
名前 N様
場所 東京都台東区根岸
築年数 築52年
構造種別 木造一戸建て(在来工法2階建て)
家族構成 大人3人
対象面積 22.4坪
リフォーム部位 ベタ基礎/間取り変更/断熱サッシ/耐震補強 ※内外部スケルトンリフォーム
工期 5ヶ月
価格 1850万(税別)

お客様のご要望

今回のリフォームで、N様からのご要望は以下の4点です。

  • 大手リフォーム会社が提案してくれなかった基礎は補修ではなく基礎補強してほしい
  • 地震が不安なので躯体の耐震補強はしっかりとやりたい
  • 断熱材もしっかりしてほしい。
  • ベタ基礎にしたい

プランナー 北畠より ~プランニングのポイント~

N様はスケルトンにし新築に近い形でリフォームをしたいとご要望頂きました。間取りは既存とほぼ変えずに、和室を無くし全て洋室にしバリアフリー設計にしました。

台東区N様邸 戸建てリノベーション施工事例テーマカテゴリー

  • 再建築不可リフォーム
  • 耐震等級3相当(上部構造評点1.5以上)リフォーム(性能向上リノベーション)
  • 内外部スケルトンリフォーム

打ち合わせから着工、完成までの詳細施工事例紹介

1 戸建てリノベーション着工前

1-1 現場調査・打合せ
東京都台東区 既存外観

建築基準法上の道路に接していない再建築不可の建物

東京都台東区 ロケーション

足場が建たないロケーションが多い中N様の建物は足場については問題がなさそうです。

 私道(幅2660mm)の一番奥の立地。再建築不可物件は、建築基準法上の道路に敷地が接道しておらず、再建築不可となっておりました。

搬入経路が厳しい現場になると予測ができます。

 
東京都台東区 既存2階ベランダから

路地の奥に建っている建物の為、基礎でのコンクリートミキサー車の搬入等を事前に計画します。

東京tp

水道メーターは13㎜

敷地と通路の接道も1.8m未満となっており、通路が指定道路であったとしても再建築不可となることがわかります。

N様の現場では通路から出てほど近い場所にコインパーキングがあったことは救いとなりました。

このようなロケーションでの長期間のリノベーションの場合、付近の月極駐車場を探すことが多いのですが、N様の現場の近くでは、土地柄もありますが、月極の駐車場自体が少なくコインパーキングを利用する方向で計画を立てます。


既存1階部分

東京都台東区 既存廊下

築52年の真壁造り

東京都台東区 既存1階和室

広縁からは中庭の採光が入り、リフォーム後は明るいリビングになると思います。


既存2階部分

 

東京都台東区 既存ダイニング

二階は和室が三部屋。リノベーション後は洋室2部屋とWICでプランしました。

台東区既存 ダイニング収納

外壁を解体する一軒家リノベーションのケースでは既存の窓位置は解体前提のため見ずにプランニングが可能です。


既存水周り

東京都台東区 既存トイレ

汽車便の和式トイレ

東京都台東区 既存浴室

下昭和20年代から30年代はこのような浴室が主流でした。脱衣所はありません。

1-2 東京都台東区N様邸 一軒家リノベーションプラン

  間取りの変更プラン  

東京都台東区 既存1階間取り

1階 戸建てリノベーション前平面図

東京都台東区 2階既存図面

2階 戸建てリノベーション前平面図

東京都台東区 新規1階間取り

1階 戸建てリノベーション後プラン

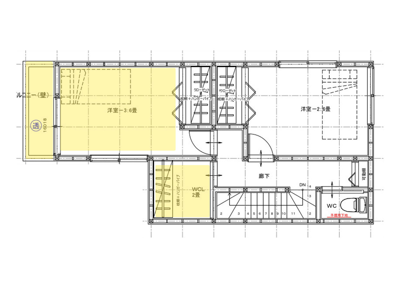
東京都台東区 2階新規図面

2階 戸建てリノベーション後プラン

東京都台東区 外観イメージパース
東京都台東区 外観イメージパース
東京都台東区 1階DKイメージパース
東京都台東区 キッチンダイニングイメージ

既存図面は昔ながらの間取りで3部屋で区切られた作りになっていました。一軒家リノベーション後はLDKを大きく取り、残りのスペースで洋室を造りました。N様は既存にはない脱衣所は広めにしたいご要望がありましたので、広めのプランを提案させていただきました。

N様の再建築不可戸建て一軒家フルリノベーション工事はこうしてはじまりました。

2 一軒家リノベーション着工

2-1 一軒家リノベーション解体工事

解体は手壊し作業(人力解体)

台東区のN様の戸建て一軒家フルリノベーションでは、内部のみのスケルトン解体ではなく、外壁までを解体する内外部スケルトンリフォームとなります。その為、完全な躯体(スケルトン)残しとなります。

再建築不可の建物のフルリフォームやフルリノベーションで最も大変工程の一つが、この解体工事となります。

そもそも内外部スケルトンリフォームのような躯体残しのリフォームでは、新築のような機械壊しが出来ないことから、解体職人による手壊し作業となります。それもリノベーション後の間取りを検討し、抜く柱や抜けない柱など細心の注意を払いながらの解体となります。再建築不可の多くのケースは、解体した廃棄物を搬送する際に、トラックなどを現場に横付けすることはほぼできず、時には、数百メートル先のトラックまで手運びになる現場もあります。N様邸の一軒家リノベーションでは幸いトラックが横付けできる工事環境であったことは救いとなりました。

東京都台東区 戸建てリノベーション解体

解体は二段階に分けて行います。まずは、内部の天井・床・間仕切り壁を解体していきます。内部スケルトンでのリノベーションの解体はここまでですが、今回は外壁までを解体するリノベーションの為、二回にわけます。

東京都台東区 戸建てリノベーション 解体ゴミ車

最も助かったのが、N様宅玄関近くまで産業廃棄物処理車がほぼ横付け状態で入れたことです。解体初期は廃棄物がかなり出ますので、二台ずつ搬出を行いました。

東京都台東区 解体後搬入

外壁の剥離も手壊しです。

外壁材のモルタルが大量に搬出されます。

内部スケルトン解体後(一次解体完了)

築52年の一軒家リノベーション、内部の天井、壁の解体が終わり、産業廃棄物の廃棄が完了しました。

東京都台東区 内部スケルトン

内部が解体され既存の構造体が現れました。

東京都台東区 戸建てリノベーション解体後

二階の床と階段は最後に解体します。

東京都台東区 戸建てスケルトン 解体後

内部スケルトンリフォームという工事では、この状態(窓位置を基本的には変えずに)から間取りを変更してリフォームを行います。

東京都台東区 解体後 スケルトンリフォーム

今回の一軒家リノベーションでは、外壁までを解体する内外部スケルトンリフォームになるため、内部解体完了時に、既存の構造体のチェックを構造専門のスタッフが調査します。

東京都台東区 リノベーション 解体後

想定よりも既存の構造体は傷みは少なく、築年数にしてはN様の建物は健全な造りとなっており、お施主様とともにチェックを致しました。

東京都台東区 戸建てリノベーション 解体後

屋根の下地となる野地も傷みが少なく、増し打ちでの葺き替えが可能と判断いたしました。

外壁部スケルトン解体後(二次解体完了)

解体の二期工事、外壁の剥離解体工事が終わり、産業廃棄物の廃棄が完了。

既存の間柱までは解体し、既存の基礎と木構造体のみの躯体残しの状態となりました。

東京都台東区 スケルトン解体後

土台の腐食などは想定していたよりは、健全な状態でした。

東京都台東区 スケルトンリフォーム

お施主様と現場管理者、大工、構造担当にて、補強計画に当たり、抜く柱や使えない柱などを現場で検証します。

東京都台東区 戸建てスケルトン解体後

基礎は無筋基礎であることを改めて確認し、ベタ基礎補強でのご要望がありましたので、ベタ基礎補強の計画をたてます。

東京都台東区 戸建てリノベーション解体後

一軒家リノベーション後の間取りを検討すると梁の背が足りない箇所が数か所あります。この辺りを補強計画に盛り込んでいきます。

水平構面の剛性を確保するために二階床は剛床工法での計画としました。

東京都台東区 一戸建てスケルトンリフォーム

築52年を経過している建物では、腐食が進んでいる建物が多い中N様の建物は主要構造体の傷みは少ない方だといえます。

大事な構造部のすべてが目視可能となるスケルトンリフォーム

内部の天井・壁・床だけでなく外壁まで解体しスケルトン状態(躯体残し)にする一軒家リノベーションの最大のメリットはこのような重要な主要構造部のすべての状態が目視でわかることになります。

フルリノベーション後は、これらの構造上の弱点をすべて修正し補強することで新築と同水準、もくしくはそれ以上の建物性能をもつ構造躯体へ甦らせることが可能となります。今回のN様邸は、国の推奨基準である上部構造評点1.0の1.5倍の耐力となる評点1.5で計画を立てました。

2-2 基礎補強工事(ベタ基礎補強)

構造上のチェック、耐震補強計画が終わると、一軒家リノベーションは、基礎工事へと移行していきます。多くのリフォーム会社がやらないのが、この基礎補強工事です。旧耐震基準の建物の多くは、鉄筋が入っていない無筋基礎となり、基礎補強が必要です。基礎補強をするしないでは、構造耐力上30%相当の耐力が変わってきますので、一軒家リノベーションをされる場合は最優先の工事となります。

N様はベタ基礎がご希望でした。

東京都台東区 基礎工事

現場にて基礎職人と綿密な打ち合わせを行っていきます。

東京都台東区 基礎配筋

N様邸はベタ基礎への基礎補強工事となりますので、耐圧版の厚さ、配筋の方法を基礎伏図で指示します。

東京都台東区 戸建てリノベーション 基礎

鋤取り、転圧後にポリフィルム張りをした後は、配筋です。千鳥状に配筋をしていきます。D13を200mm間隔で配筋していきます。

東京都台東区 一戸建てリノベーション 基礎工事

新たな間仕切り壁が新設される箇所へは、新規での基礎を立ち上げなければなりません。ベース配筋と立ち上がりもしっかりと緊結していきます。

砕石→転圧後に、防湿シート張りをして、配筋工事となります。ベタ基礎の為、コンクリートは耐圧盤と立上がり基礎の2度打ちとなります。

東京都台東区 戸建てリノベーション 基礎

ベタ基礎補強が完了しました。ポイントはベースだけでなく、既存の立ち上がり基礎まで抱き合わせ増し打ちすることになります。

東京都台東区 基礎完成

ベースのみで差し筋を行う補強は正しい基礎補強ではありませんので注意が必要です。

東京都台東区 戸建てリノベーション 基礎工事

使えない土台と柱は差し替えを行います。

N様邸では地盤が良好であることからベタ基礎を採用しました。

すべてがベタ基礎が良いというわけではありません。

ベタ基礎は建物全体と同程度の荷重となりますので、建物の重さとのバランスもかかわってきます。足元だけ固めていても屋根を含めた建物とのバランスが悪いと大地震が起きた際にせん断力が働き、ホールダウン金物が抜けるような事態になるケースもあるからです。

大規模な戸建て一軒家のリノベーションをされる際には、木造を熟知し、実績が豊富な会社へ相談することをお勧めする理由でもあります。

東京都

ベタ基礎って?

布基礎が立ち上がりとフーチングで持たせる基礎に対して、ベタ基礎は、立上りだけでなく、底板一面も耐圧盤を設け、立ち上がりと底面が一体化された鉄筋コンクリートになっている基礎をいいます。

建物の荷重を底板全体の面で受け止めるため、ベタ基礎は不同沈下を起こさない。といわれますが、それは良好な地盤での話です。

基礎の下の地盤面の地耐力が均一でない場合は、不同沈下が起こる可能性が充分あるのです。

 

耐震の世界では、重い瓦屋根は外して、軽いものに変えましょうと言われておりますが、それ自体は間違っていませんが、この理屈でいくと。屋根の瓦を外して、基礎はベタ基礎にしても、地盤に与える荷重は、瓦屋根以上の荷重がベタ基礎の荷重により地盤面にかかることになります。

地盤が軟弱な場合、布基礎を採用した方が有利な場合も出てきます。

そもそも正しい基礎補強方法を知らず、基礎補補修程度しか行わないリフォーム会社が多くを占めている現状ですが、

戸建て一軒家のリノベーションで、基礎補強をする際は、このような知識のある会社に相談することが必要です。

2-3 耐震金物補強工事

基礎補強が終わると、やっと木工事となります。まずは、耐震補強金物の設置工事です。2000年以降はこの金物の配置方法が義務付けられました。構造計算の世界では、国で認められた耐震金物が決まっていますので、これらを決められた位置へと配置していきます。

ホールダウン金物を取り付けます。木造住宅で使用する特別なボルトで、地震力の強い衝撃で、柱が土台から抜けないようにするために取り付ける金具です。

東京都台東区 基礎工事

N様の戸建てフルリノベーションでは木造屋上ルーフバルコニーが広く、水勾配をしっかりとらなければなりません。その為、大工工事の防水下地が重要になります。

東京都台東区 戸建てリノベ 基礎

2000年の「建設省告示1460号」において、ホールダウン金物の取り付けが義務化されています。配置方法は、構造計算の中で柱にかかる引き抜き力と重力を計算し配置計画が立てられます。

東京都台東区 戸建てスケルトン 基礎補強

柱の「柱脚」部にホールダウン金物を取り付け土台から引き抜けを防ぎ筋交い金物で筋交いも補強。

東京都台東区 戸建てリノベ 金物補強

ホールダウン金物を柱脚ではなく「柱頭」部に取り付けるパターンです。この場合も専用のボルトを使い梁と柱頭をしっかりと固定します。

東京都台東区 戸建てリフォーム 補強

新設柱が設置される部分へは仮でサポートを架けながら補強を行います。新築のようにはいかないのがリノベーションの難しさでもあります。

東京都台東区 一戸建てリノベ 補強

桁まわりも補強へボルトや金物で連結し構造補強していきます。

縦方向の補強と同時に、水平構面の補強、ここでは剛床も同時にすすめていきます。

2-4 木工事(木構造補強工事)

基礎が終わり大工工事へと移行します。構造躯体の強度を担保するためのメイン工事となります。

 

東京都台東区 仮筋交い

補強金物を配置する前に、既存の構造体が倒壊しないよう、仮筋交いをたて補強を入れます。

東京都台東区 大工工事

新たな間取りに合わせ補強計画を立てておりますので、新設する構造体が増えます。

東京都台東区 戸建てスケルトンリフォーム

二階の床です。剛床で造っていきます。
 

水平構面の剛性を強化するために、2階床は剛床工法を採用。水平構面が弱いと耐力壁への過度な地震力が働くことを防ぎます。

東京都台東区 戸建てフルリノベ 2階床

24㎜の構造用合板で一階の横架材(梁)と固定することで水平構面の剛性を高めます。

東京都台東区 戸建てフルリノベ 外壁補強

減外壁を解体するリノベーションでは、外部からも補強をすることが可能になります。今回のN様邸では構造評点1.5を超えるご提案となっておりましたので外周面の補強も必須事項となりました。

東京都台東区 戸建てリノベ 構造補強

二階は強床工法とし水平耐力を満たす施工で対応させていただきました。

東京都台東区 戸建てフルリノベ 構造材

既存の構造躯体と新たな構造材とをくみ上げていくのが戸建てフルリフォームでの大工の技量の問われるところになってきます。

東京都台東区 戸建てリノベ 構造

使える構造躯体は多くはなく、しかしながら新築ではありませんので、頑丈な構造体をくみ上げていく作業となります。

東京都台東区 戸建てフルリノベ 金物補強

二階の構造補強に入ります。ここでも残せる躯体はあまりなくあたらな構造材で旧構造体を補強して組み上げを行いました。

東京都台東区 戸建てフルリノベ 梁

N様邸では、内部の壁下地の多くは全て構造用合板張りとしました。外部も構造用合板全面張りとなりますので、壁倍率5倍での補強となります。

2-5 断熱工事

台東区根岸のN様の戸建てリノベーションでの断熱材は、グラスウールを採用。グラスウールは施工技術が要求される最も難しい断熱材となります。隙間があると全く意味がなくなってしまう為、隙間なく施工するために相応の施工技術が要求されます。グラスウールを押し込みすぎただけで断熱性能が落ちてしまいます。その為施工には細心の注意を払います。

東京都台東区 戸建てフルリノ部 断熱工事

押し込みすぎないように配置

東京都台東区 戸建てフルリノベ 断熱

梁・胴差の見付け面に重ねて止めます。

東京都台東区 戸建てフルリノベ 断熱材

グラスウールを柱・間柱間に隙間なく施工し、防湿フィルムを柱・間柱の見付け面に重ねて止めます。

東京都台東区 戸建てフルリノベ 断熱

間柱間に防湿フィルムを見付け面に重ねて止めます。

2-6 外壁リノベーション工事

外周4面は構造用合板による補強し、壁倍率2.5倍を確保。

防水・防湿シートの張り込み

通気胴縁を打っていきます。

ガルバリウム鋼板を仕上げ材に使用しました。

2-7 造作工事

構造部の構造補強が終わると、造作工事に入ります。

階段の勾配は緩勾配となり新たに設置しています。

階段下スペースを有効活用

仕上げ前のプラスターボード張り

3 戸建てリノベーション竣工

約5か月の工事を経て、いよいよ竣工です。
台東区の下町の住宅密集地に佇む築50年戸建てがどのように生まれ変わったのか。
一軒やリノベーションによってどのように変わったのかN様邸の様子をご紹介します。


  =外観==  

東京都台東区 戸建てフルリノベ 竣工外観

玄関ドアの廻りは不燃のパネリングで納めて表情を作ってます。

東京都台東区 戸建てフルリノベ 竣工外壁 

玄関アプローチ部分は土間コンクリートを打ちました。

東京都台東区 戸建てフルリノベ 竣工エントランス

玄関ドアの廻りは不燃のパネリングで納めて表情を作ってます。


Before
東京都台東区 戸建てフルリノベ 既存外観

私道(幅2660mm)の一番奥の立地に佇む 再建築不可特有のロケーション。モルタル下地に塗装仕上げの既存外壁。

  == 室内 ==  

戸建てリノベーション 室内位置
東京都台東区 戸建てフルリノベ 竣工廊下

 1階の廊下です

東京都台東区 戸建てフルリノベ 2階廊下

▲ 2階の廊下です。

東京都台東区 戸建てフルリノベ LDK

1階洋室1から見たLDKです。

東京都台東区 戸建てフルリノベ キッチン

キッチンはトクラスBbです。

東京都台東区 戸建てフルリノベ アウトセット引き戸

1階洋室1は、柱設置があった為アウトセット引き戸で納めてます。

東京都台東区 戸建てフルリノベ 浴室

新規浴室はユニットバスTOTOサザナ1216サイズです。

東京都台東区 戸建てフルリノベ 脱衣室

洗濯機置き場の前には邪魔にならない大きさの窓を設置しました。

東京都台東区 戸建てフルリノベ 階段

階段は以前の勾配より緩くし上り下りし易くなってます。

東京都台東区 戸建てフルリノベ 2階洋室

サッシは基本既存と同じ位置で近いサイズの物に入れ替えています。

東京都台東区 戸建てフルリノベ ベランダ

既存ベランダは縦格子のアルミ製だったのを外壁と一体化したFRP防水のベランダに納めました。

東京都台東区 戸建てフルリノベ ウォークインクローゼット

2階にWICの大きさのファミリークローゼットを設置

Before

東京都台東区 戸建てフルリノベ 既存廊下
東京都台東区 戸建てフルリノベ 既存LDK
東京都台東区 戸建てフルリノベーション 廊下
東京都台東区 戸建てフルリノベ 既存ダイニング
東京都台東区 戸建てフルリノベ 既存和室
東京都台東区 戸建てフルリノベ 既存和室
東京都台東区 戸建てフルリノベーション 既存和室
東京都台東区 戸建てフルリフォーム 既存和室

  == 1F 水まわり ==  

戸建てスケルトンリフォーム 水回り位置

Before

東京都台東区 戸建てフルリノベ 既存キッチン

既存キッチン

東京都台東区 戸建てフルリノベ 既存浴室

既存浴室

東京都台東区 戸建てフルリノベ 既存洗面器

既存洗面室

東京都台東区 戸建てフルリノベ 既存トイレ

既存トイレ

キッチン
東京都台東区 戸建てフルリノベ 竣工キッチン

トクラスハイウィルオリジナルBb

浴室
東京都台東区 戸建てフルリノベ ユニットバス

TOTOサザナ

洗面室
東京都台東区 戸建てフルリノベ 新規洗面化粧台

TOTOオクターブ

トイレ
東京都台東区 戸建てフルリノベ 新規トイレ

TOTOハイウィルオリジナルトイレ


4 担当者より
(「増改築.com®」本部ハイウィル株式会社 本部長大谷正浩)

この度は弊社に大事なお住まいの耐震改修工事をご依頼をいただきましてありがとうございました。

施工中はご迷惑をお掛けしたと思いますが、下町の温かい目をもったご近所様に見守られ、コロナ禍という厳しい状況の中で無地に完工をすることができ、感謝いたしております。
 
大手さんと弊社と、どちらにするか十分にご検討をいただき、その結果弊社にご用命をいただきました。
耐震工事の技術力で弊社にご用命をいただきましたように、この先何年もお住まいになる建物は、ご安心をしていただきお暮し続けることができる造りになっております。
 
引き続き宜しくお願い致します。

N様、この度はご依頼をいただき、誠にありがとうございました。

全国のフルリフォーム・リノベーション『ピックアップ事例』※プロの詳細解説付きレポート

HEAT20-G2/耐震等級3
新耐震基準の性能向上リノベーション
築30年ハウスメーカー軽量鉄骨
断熱改修&リノベーション
 
中古住宅を新築以上の耐震性能と断熱性能へ!
耐震等級3フルリフォーム
地下付き木造2階建て
自然素材をつかった性能向上リノベーション&フルリフォーム

東京都文京区 K様邸

長屋を切り離して1つの構造体へフルリフォーム&リノベーション
隣家との距離がない!
部屋から外壁を張り替えるフルリノベーション
中古住宅を耐震等級3へ!
中古住宅リノベーション
 
基礎がない??
築60年の古屋をジャッキアップで基礎新設フルリノベーション

東京都渋谷区 O様邸

戸建てリノベーション・リフォームに関するお問合せはこちら

増改築.comの一戸建てリフォーム専用ホームページに
お越しいただき、誠に有難うございます。
 
増改築.comメンバーは技術集団となり、
他社のような営業マンがおりません。
技術者が直接ご相談にのり問題解決を行います。
 
従いまして、
お客様の方である程度のご要望が整理されました段階、
お悩みが工事内容のどのようなところにあるのか?
ご予算がどの程度絞る必要があるのか?
など明確になった段階でのご相談をお願いしております。
お問合せ・ご相談はお電話・メールにて受け付けております。
メールの場合は以下のフォームに必要事項をご記入の上、
「送信する」ボタンをクリックをお願いします。

代表稲葉高志

戸建てリノベーションの専属スタッフが担当致します。
一戸建て家のリフォームに関することを
お気軽にお問合せください

よくあるご質問
  • 他社に要望を伝えたところできないといわれたのですが・・・
  • 他社で予算オーバーとなってしまい要望が叶わないのですが・・・
  • サービスについて詳しく聞きたいのですが・・・

どのようなお悩みのご相談でも結構です。

あなたの大切なお住まいに関するご相談をお待ちしております。

営業マンはおりませんので、しつこい営業等も一切ございません。

設計会社(建築家様)・同業の建築会社様のご相談につきましては、プランと共にご指定のIw値及びUa値等の性能値の目安もお願い申し上げます。

2026年の大型補助金が確定したことで現在大変込み合っております。

耐震性能と断熱性能を向上させるフルリフォームには6か月~7か月の工期がかかります。

補助金獲得には年内に報告を挙げる必要があることから、お早目にご相談をお願いいたします。(6月着工までが目安

ご提案までに大変お時間がかかっております。ご了承のほどお願い申し上げます。

(5月までの着工枠が埋まりました)・・・2026/03/01更新

※すでにプランをお持ちのお施主様・設計資料をお持ちのお施主様は内容をフォームで送信後、フォーム下のメールアドレスに資料をお送りください。対応がスムーズです。

必須

(例:増改築太郎)

必須

(例:contact@high-will.co.jp)

(例:03-5615-2826)

必須

(例:東京都荒川区西日暮里2-35-1)

(例:築40年)

(例:25坪・100㎡など)

(例:2000万程度など)

  • ※再建築不可のリフォームでは金融機関が限られます。事前審査をお勧めいたします。

    (例:2024年3月くらいに完成希望など)

    必須

    できるだけ具体的にお知らせくださいませ。既存設計資料、リフォーム後のイメージ図等をお持ちであれば下記のメールアドレスより添付をお願いします。

    ※次の画面がでるまで、4~5秒かかりますので、
    続けて2回押さないようにお願いいたします。

    ※次の画面が出るまで、4〜5秒かかりますので、
    続けて2回押さないようにお願いいたします。

    図面や写真等を送信いただく場合、また入力がうまくいかない場合は、上記内容をご確認のうえ、下記メールアドレスまでご連絡ください。

    お電話でのお問合せはこちら

    0120-246-991

    営業時間:10:00~17:00(土日祝日を除く)

    ★YouTube「増改築.comチャンネル」チャンネル登録して新動画解説をいち早くGET!!★
    「増改築.comリノベ診断」であなたに一番ふさわしいフルリフォームを診断!!(動画解説付き)
    ★Facebookページにいいね!を押して最新コンテンツ情報をいち早くGET!!★

    4代目代表よりご挨拶

    稲葉高志

    親切・丁寧な対応をモットーとしておりますのでお気軽にご相談ください。