戸建フルリフォームなら「増改築.com®」TOP > 施工事例 > 都道府県で探す > 東京都荒川区 > 施工事例 O様 再建築不可戸建てのフルリフォーム&フルリノベーション

相続した実家を「耐震等級3」「断熱等級5」へ。間取り変更と性能向上を両立したスケルトンリフォーム成功事例

荒川区O様邸 外観 ビフォーアフター

本プロジェクトは、荒川区の「木造3階建て(築23年)」をご実家として相続された大野様に対し、フルスケルトンリノベーションを実施。その過程で「JIO(日本住宅保証検査機構)」の検査により、新築当時の「構造金物の施工ミス」や「図面との不整合」が大量に発覚。これらを看過せず、構造計算をゼロからやり直して徹底的に是正することで、真の安心を手に入れた再生の物語です。

東京都荒川区東尾久。下町情緒と新しい街並みが融合するエリア。 お施主様の大野様は、ご両親が住まわれていた築23年の木造3階建て住宅を相続し、奥様とお子様2人の4人家族で住むためのリノベーションを決意されました。

当初のご希望予算は1,500万円。しかし、最終的な総工費は約2,200万円となりました。 なぜ、700万円もの増額が必要だったのか? それは、壁を剥がした瞬間に露呈した、築浅(平成12年築)だからといって決して侮れない、建物の「見えない欠陥」との戦いがあったからです。

建物概要
名前 O様
場所 東京都荒川区
築年数 築23年
構造種別 木造一戸建て
家族構成 大人2人 子供2人
対象面積 27.24坪
リフォーム部位 間取り変更/断熱サッシ/セルロースファイバー/耐震補強/
工期 5ヶ月
価格 2200万円

お客様のご要望

今回のリフォームで、O様からのご要望は以下の3点です。

  •  

    • 3階建ての温熱環境改善: 「夏はサウナのように暑く、冬は底冷えする」3階建て特有の過酷な環境をどうにかしたい。

    • 間取りの変更:

      • 3階:広い1部屋を子供部屋2つ+トイレに。

      • 2階:LDKを拡張し、家族団欒の場へ。

      • 1階:防犯性を高めつつ、寝室と収納を充実させたい。

    • 予算: できるだけ1500万円に抑えたいが、耐震や断熱など「家の性能」に関わる部分は妥協したくない。

プランナー 北畠より ~プランニングのポイント~

3階建て特有の「構造リスク」への最適解

木造3階建てにおける安易な間取り変更(壁の撤去)は倒壊リスクに直結するため、表面的なリフォームではなく、構造躯体をすべて露わにする「スケルトン解体」と、新築同様の緻密な「構造計算」を必須条件とし、見えない瑕疵をあぶり出しながら性能を再構築する計画としました。

私たちが今回のプランニングで最も重要視したのは、「2000年(平成12年)基準の3階建て」という、建築業界における“過渡期”の建物であるという事実です。 この時期の建物は、建築基準法の改正直後で、設計図面では金物が指定されていても、実際の現場では大工の勘に頼った施工が行われているケースが少なくありません。特に3階建ては、2階建てに比べて地震時の揺れや引き抜き力が格段に大きくなるため、わずかな施工不備が命取りになります。

  • 内部スケルトンによる「完全な可視化」 「予算を抑えるために既存の壁を利用する」という選択肢もありましたが、私たちはあえて「内部スケルトン(内装と断熱材の全撤去)」を推奨しました。 これは、断熱材を最新の仕様(セルロースファイバー等)に入れ替えて温熱環境を改善する目的だけでなく、壁の中に隠れているかもしれない「金物の不備」や「筋交いの欠損」を目視で確認し、是正する唯一のチャンスだからです。結果として、この判断が後のJIO検査での不備発覚と是正に繋がり、大野様の家を守ることになりました。

  • 断熱と防犯の同時解決 「夏暑く冬寒い」というお悩みを解決するため、コストのかかる外壁の張り替えは行わず、室内側からの断熱補強に特化。さらに、1階の防犯性を高めるために、掃き出し窓を「高窓」に変更する大胆な開口部改修を提案しました。 これにより、構造強度を落とすことなく、温熱環境と防犯性能を同時に向上させる、費用対効果の最大化を狙いました。

荒川区O様邸 戸建てリノベーション施工事例テーマカテゴリー

 

  • 耐震等級3相当(上部構造評点1.5以上)リフォーム(性能向上リノベーション)
  • HEAT20-G1リフォーム(性能向上リノベーション)
  • セルロースファイバー仕様
  • 補助金活用リフォーム

打ち合わせから着工、完成までの詳細施工事例紹介

3-1. 戸建てリノベーション着工前:全ての物語は、正確な「診断」から始まる

1-1 現場調査・打合せ

表層的なリフォームでは解決できない「3階建て特有の構造リスク」と「温熱環境の悪さ」に対し、私たちは外壁を残しつつ内部を解体する「内部スケルトン」を提案。コストと性能のバランスを極限まで調整しました。

 

現地調査時、建物は平成12年(2000年)築と比較的新しく、外観も綺麗な状態でした。 しかし、O様からのヒアリングで「とにかく暑くて寒い」という言葉が何度も出ました。調査の結果、断熱材の性能不足(または施工不良)が疑われました。また、3階建て特有の揺れも懸念材料でした。 「壁紙を貼り替えるだけなら予算内で収まりますが、それでは今の悩み(暑さ・寒さ・不安)は解決しません」 私たちは正直にそうお伝えし、壁の中まで手を入れる提案へと舵を切りました。

荒川区O様邸 既存
荒川区O様邸 既存
荒川区O様邸 既存
荒川区O様邸 既存
荒川区O様邸 既存
荒川区O様邸 既存

施工前の水回り

荒川区O様邸 既存
荒川区O様邸 既存
荒川区O様邸 既存

1-2 東京荒川区O様邸 戸建リノベーションプラン

 

O様ご家族との度重なる打ち合わせの結果、以下の仕様が決定しました。

  1. 断熱: 外壁を壊さずに施工できる「内張り断熱(高性能グラスウール等)」と「内窓(プラマードU)」の採用。

  2. 窓: 1階の掃き出し窓を防犯性の高い「高窓」へ変更し、玄関ドアを最高等級の断熱ドア「イノベストD50」へ。

  3. 構造: 間取り変更に伴う構造計算の実施。

 

一度は予算の壁にぶつかりましたが、奥様の「長く住む家だから、中身をしっかりしたい」という強いご意志が、プロジェクトを前へ進めました。

  間取りの変更プラン  

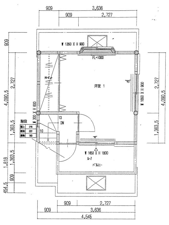
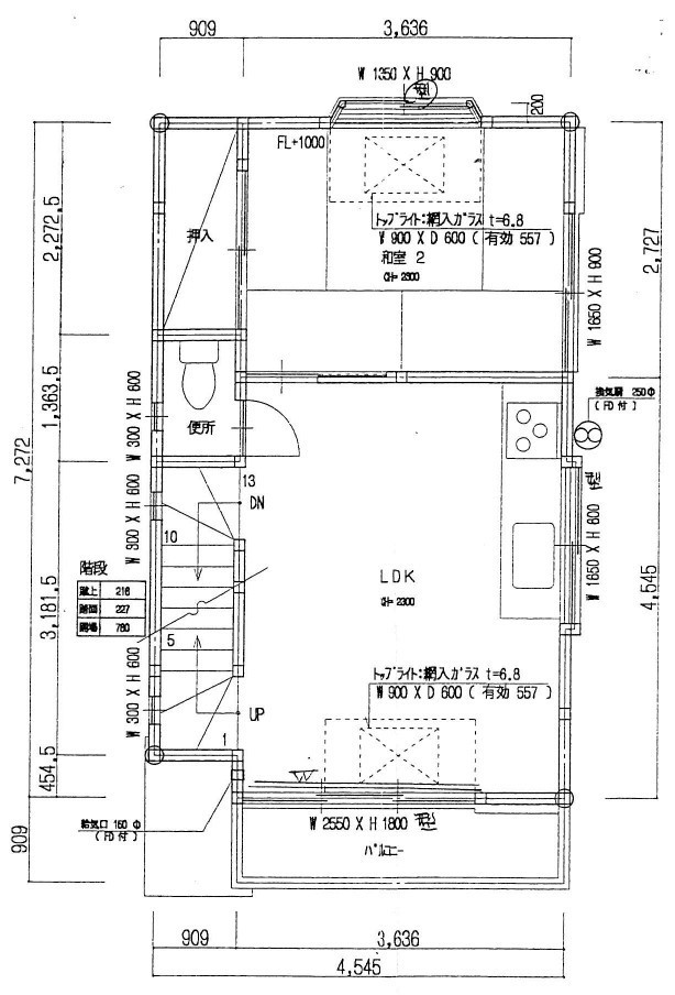
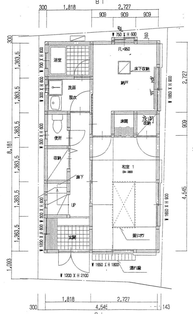
荒川区O様邸 既存図面
荒川区O様邸 既存図面
荒川区O様邸 既存図面
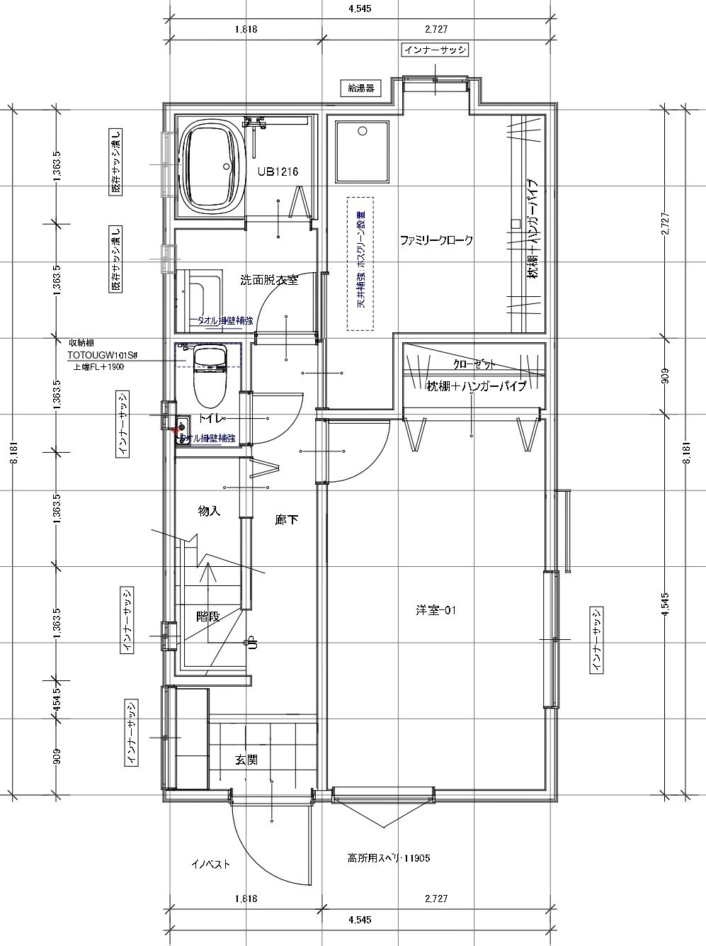
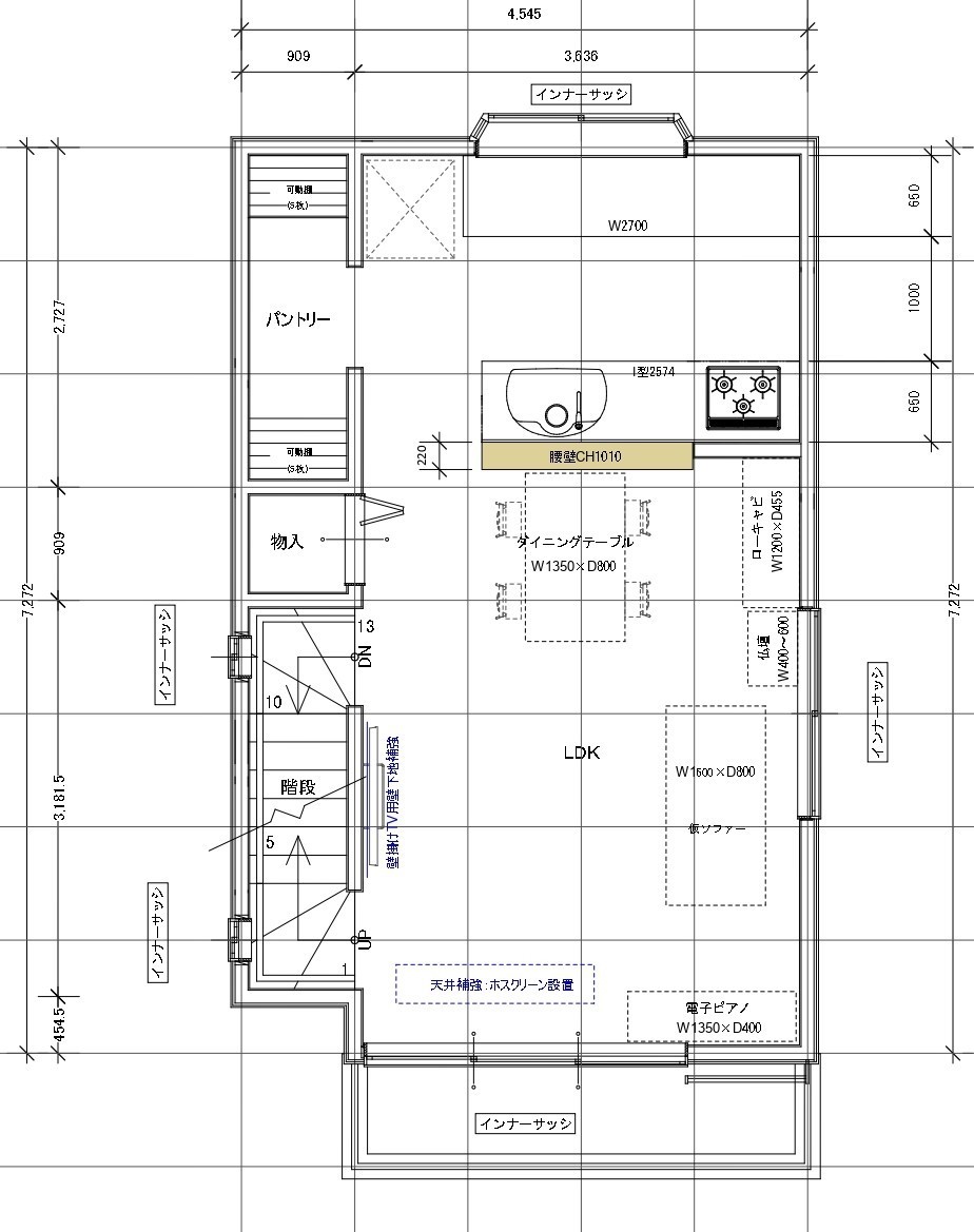
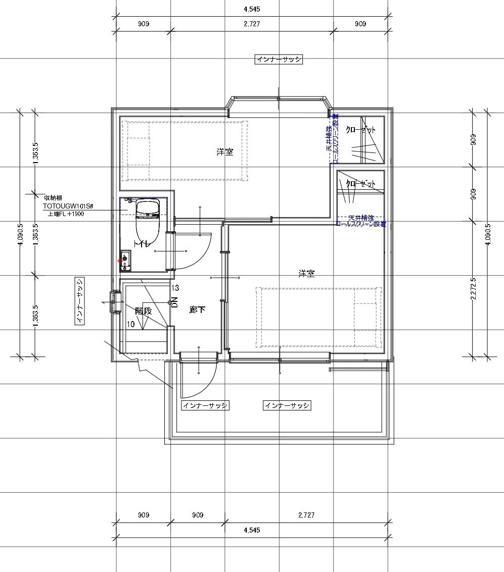
荒川区O様邸 新規図面
荒川区O様邸 新規図面
荒川区O様邸 新規図面

2 戸建てリノベーション着工

2-1 足場・解体

解体(解体と解体後):パンドラの箱が開く

近隣挨拶を終え、内部の解体がスタート。壁や天井が剥がされ、23年ぶりに構造躯体が姿を現しました。 一見すると立派な柱や梁に見えましたが、第三者機関であるJIO(日本住宅保証検査機構)の検査員が入った時、現場の空気は一変しました。

荒川区O様邸 解体
荒川区O様邸 解体
荒川区O様邸 解体
荒川区O様邸 解体
荒川区O様邸 解体
荒川区O様邸 解体

 JIO検査での指摘:「このままでは適合しません」

検査報告書に並んだのは、衝撃的な指摘事項の数々でした。

  1. 図面との不整合: 新築時の図面に記載されていた金物が付いていない、あるいは全く別の金物が付いている。

  2. 金物の向きが「逆」: 建物の揺れを抑える「筋交い(すじかい)」を固定するプレートが、裏表逆に取り付けられており、強度が発揮されない状態だった。

  3. 筋交いの断面欠損: 金物を無理やり取り付けるために、筋交い自体を削って(欠き込み)しまっており、木材が弱くなっていた。

  4. 引き抜き力不足: 地震時に柱が抜けるのを防ぐ「ホールダウン金物」のボルトの締め付けが甘く、所定の耐力が期待できない。

「平成12年築だから大丈夫」という神話が崩れた瞬間でした。

もし、壁紙の張り替えだけで済ませていたら、これらの欠陥は永遠に闇の中でした。

荒川区O様邸 解体
荒川区O様邸 解体
荒川区O様邸 解体

大事な構造部のすべてが目視可能となるスケルトンリフォーム

内部の天井・壁・床だけでなく外壁まで解体しスケルトン状態(躯体残し)にする戸建てリノベーションの最大のメリットはこのような重要な主要構造部のすべての状態が目視でわかることになります。

フルリノベーション後は、これらの構造上の弱点をすべて修正し補強することで新築と同水準、もくしくはそれ以上の建物性能をもつ構造躯体へ甦らせることが可能となります。

2-2 構造計算のやり直しと「全数是正」

発覚した不備を前提とした補強計画では意味がないため、現状の躯体データを正確に拾い直し、構造計算を再度実施。必要な金物と耐力壁を再配置しました。

O様に事実をご報告し、追加工事のご承諾をいただいた上で、是正工事に着手しました。

  • 金物の全交換: 不適切な金物を全て取り外し、認定を受けた正しい金物に交換。

  • 筋交いの入れ替え: 欠損のあった筋交いは撤去し、新しい木材で施工し直し。

  • ボルトの締め直し: ホールダウン金物等のボルトを適正トルクで締め付け。

大工の手間は膨大にかかりましたが、これにより建物は「図面通りの強さ」を取り戻しました。

2-3 木工事

JIO検査で不備が指摘された金物を全数交換した上で、面で支える高剛性パネル「ノボパン」と、揺れを吸収する「制震ダンパー」を組み合わせ、新築時の性能を遥かに凌駕する強靭な構造体を作り上げました。

解体後の検査によって露呈した構造の脆弱性を克服するため、大工チームは一度組まれた構造体に対して、緻密な「再生手術」を行いました。

  1. 柱頭柱脚金物(ちゅうとうちゅうきゃくかなもの)の全数是正                          まず着手したのは、検査で「不適合(逆向き・ビス不足など)」と判定された接合金物の交換です。 構造計算(N値計算)をやり直したデータに基づき、柱が土台や梁から抜けるのを防ぐ重要な金物を、一つひとつ正規の認定金物へ付け替えました。 既存の柱に新たなボルトを通し、適正なトルクで締め上げる。地味な作業ですが、これが地震時に家族の命を繋ぎ止める「命綱」となります。私たちは、JIOの再検査に一発で合格する品質まで精度を高めました。

  2. 構造用面材「ノボパンSTP II」による面補強                                  是正した骨組みに対し、壁の強度(壁倍率)を飛躍的に高めるため、構造用パーティクルボード「ノボパンSTP II」を施工しました。 従来の「筋交い(すじかい)」のみの補強と比較して、ノボパンは壁全体を面で固めるため、地震の力を分散させる効果に優れています。 特に、2階LDKの拡張で壁を減らしている今回のようなプランでは、残った壁をこのノボパンで「最強の耐力壁」に強化することが、大空間と安全性を両立させる鍵となりました。

  3. 揺れを熱に変える「制震ダンパー」の投入                                   さらに、3階建て特有の「揺れやすさ」への対策として、高性能な「制震ダンパー」を構造躯体内部に設置しました。 「耐震(ノボパン)」が地震の力に“耐える”のに対し、「制震(ダンパー)」は地震のエネルギーを吸収し、熱に変えて逃がす役割を果たします。 これにより、本震だけでなく、繰り返される余震による建物のダメージを軽減。2階・3階にいても揺れを感じにくい、安心の居住空間を実現しました。

荒川区O様邸 大工工事
荒川区O様邸 大工工事
荒川区O様邸 大工工事
荒川区O様邸 大工工事
荒川区O様邸 大工工事
荒川区O様邸 大工工事
荒川区O様邸 大工工事
荒川区O様邸 大工工事
荒川区O様邸 大工工事
2-5 断熱工事

夏の猛暑と冬の底冷えに悩まされていた3階建て住宅を、壁120mm・天井250mmという圧倒的な厚みの「セルロースファイバー」と、床下断熱の最高峰「ミラネクストラムダ」で包み込み、魔法瓶のような温熱環境を実現しました。

構造の安全性が確保された後は、快適性の要(かなめ)となる断熱工事です。 「夏は3階がサウナ、冬は1階が冷蔵庫」という3階建て特有の過酷な温熱環境を根本から改善するため、私たちは一切の妥協を許さないハイスペックな仕様を選定しました。

  1. 壁・天井:セルロースファイバー(壁120mm / 天井250mm)                          外気に接する壁と、太陽熱を直接受ける最上階の天井には、新聞紙をリサイクルした木質繊維断熱材「セルロースファイバー」を採用しました。

    • 天井(250mm厚): 通常の倍以上の厚みである250mmを積層。これにより、真夏の屋根からの強烈な輻射熱を断熱材の中で受け止め、室内への熱侵入を遅らせます。「3階が暑くない」という劇的な変化は、この厚みが生み出します。

    • 壁(120mm厚): 柱の厚み一杯まで、120mmの高密度で吹き込みました。コンセントボックス周りや筋交いの裏側など、板状の断熱材では隙間ができやすい場所も、繊維系断熱材ならパンパンに充填可能。断熱欠損をゼロにし、高い防音性能も付加しました。

  2. 床:ミラネクストラムダ 75mm                                        1階の床下には、JSP社の高性能フェノールフォーム断熱材「ミラネクストラムダ」を採用しました。

    • 圧倒的な断熱性能: 熱伝導率が極めて低い(0.022W/m・Kクラス)最高ランクの素材を、75mmという分厚いサイズで根太(ねだ)の間に隙間なく施工しました。

    • 底冷えの解消: これにより、地面からの冷気をシャットアウト。冬場の朝、1階の寝室で目覚めた時や、キッチンに立った時の「床が冷たくて辛い」というストレスを物理的に解消しました。

荒川区O様邸 断熱
荒川区O様邸 断熱
荒川区O様邸 断熱
荒川区O様邸 断熱
荒川区O様邸 断熱
荒川区O様邸 断熱

HEAT20-G2リフォームとは?

<HEAT20とは?>

HEAT20とは、「2020年を見据えた住宅の高断熱化技術開発委員会」という団体名です。

その団体が設定しているのが、屋根や外壁、床、窓などの「外皮」と呼ばれる部位の断熱や遮熱などといった性能の評価基準であり、G1とG2の2段階あります。G2の方がより高性能な性能を有する外皮となっています。

<省エネ基準の家とHEAT20の家の違い>
省エネ基準の家とHEAT20の家の違い

HEAT20-G2の家は、省エネ基準の家の30~50%の暖房費を削減できる

 

「増改築.com®」によると、断熱リフォームの基準として、平成28年の建築物省エネ法基準に相当するUa値0.87が等級4(最高等級)とされています。しかし、この基準だけでは、真の省エネ住宅とは言えません。実際に、日本の断熱等級4は、2020年の建築基準法で努力義務とされているに過ぎません。しかし、2022年4月には断熱等級5が新設され、さらに2022年10月には断熱等級6・7が新設されました。断熱等級6・7は、これまでの断熱等級4と比べて、はるかに高いレベルの断熱性能が求められます。 HEAT20の計画においては、ZEH基準のUa値0.6を基準としています。これは、外壁105mm、U値2.33の樹脂アルミ複合サッシ窓で、天井の断熱材は105mmあれば実現できるとされています。さらに上位の「HEAT20 G1」グレードでは、6地域でUa値0.56となり、このレベルでは断熱環境を体感できるとされています。

最上位の「HEAT20G2」グレードでは、5地域でUa値0.46となっています。

断熱改修(温熱改修)リフォームを成功させるためには、これらの基準や計画をしっかりと理解し、適切な施工方法を選択することが重要となります。

2-6 外壁工事

道路からの視線が気になっていた1階の掃き出し窓を撤去し、人の目線より高い位置にある「高窓」へ変更。これに伴い1階部分の外壁サイディングを張り替えることで、防犯性・プライバシー・断熱性を同時に向上させました。

リノベーションは、ただ綺麗にするだけでなく、暮らしの「ストレス」を解消するチャンスです。 O様が懸念されていた「1階の防犯とプライバシー」という課題に対し、私たちは外観の形状変更を伴う抜本的な解決策を講じました。

  1. 掃き出し窓から「高窓(ハイサイドライト)」へ リフォーム前、1階の道路面には大きな掃き出し窓がありました。採光は取れますが、通行人の視線が気になり、常にカーテンを閉め切った状態で、防犯面でも不安が残る形状でした。 そこで、この大きな開口部を一度壁で塞ぎ、天井近くに横長の「高窓」を新設しました。

    • 効果: 外部からの視線を物理的にカットしつつ、部屋の奥まで安定した光を採り入れることが可能になりました。もちろん、窓の面積が小さくなることで、断熱性能も飛躍的に向上します。

  2. 1階部分限定のサイディング張り替え 窓のサイズと位置が変わるため、周辺の外壁を一度解体し、下地から作り直す必要がありました。 今回はコストバランスを考慮し、全面張り替えではなく、窓変更の影響がある「1階部分のみ」のサイディングを張り替えるプランを採用しました。

    • 施工のポイント: 新しい窓周りの防水処理(透湿防水シートの施工)を徹底した上で、2階・3階の既存外壁と調和するデザインの新しいサイディングを施工。

    • デザイン: 1階部分の色味やテクスチャを変えることで、ツートンカラーのモダンな印象へと外観をリフレッシュさせました。

 

荒川区O様邸 外壁
荒川区O様邸 外壁
荒川区O様邸 外壁
2-7 造作工事

構造部の構造補強が終わると、造作工事に入ります。

荒川区O様邸 造作工事
荒川区O様邸 造作工事
荒川区O様邸 造作工事
荒川区O様邸 造作工事
荒川区O様邸 造作工事

3 戸建てリノベーション竣工

完成した住まいは、見た目の美しさだけでなく、壁の中の「見えない不安」を全て解消した、真の意味での「安全なシェルター」へと生まれ変わりました。


  =外観==  

Before

荒川区O様邸 既存

After

荒川区O様邸 竣工

玄関ドアと新規窓の面のみ外壁を新設しました。ケイミューサイディング仕上げ。

Before

荒川区O様邸 既存

After

荒川区O様邸 竣工

新しい玄関ドアはYKKAPイノベストD50防火ドア重厚な断熱ドアを開けると、外の寒騒音が嘘のように静かな空間が広がります。 防犯窓に変更した寝室は、プライバシーが守られ、安心して眠れる空間となりました。


  == 2F LDK ==  

Before

荒川区O様邸 既存

施工前は壁付けのキッチンでした

After

荒川区O様邸 竣工

施工後は対面キッチンに変更してLDKを見渡せるようにレイアウトしました。以前は狭く感じていたリビングが、壁の撤去と内装の一新により、明るく開放的な空間へ。 内窓の効果で、窓際に行ってもヒヤッとした冷気を感じることはありません。

荒川区O様邸 竣工

カップボードも新設。収納力もアップしました


  == 水まわり ==  

Before

荒川区O様邸 既存

After

荒川区O様邸 竣工

施工後のお風呂はTOTO「サザナHT」1216サイズ

荒川区O様邸 竣工

施工後のキッチンはTOTO「ザ・クラッソ」W2700

荒川区O様邸 竣工

洗面化粧台はTOTO「オクターブ」W900+トールキャビネット

荒川区O様邸 竣工

トイレはハイウィルオリジナルトイレ+トイレ内手洗いTOTO「コンフォートシリーズSサイズ」


  == 内窓設置 ==  

荒川区O様邸では、外壁解体を最小限とし、玄関横の窓以外はすべてYKKAPの内窓「プラマードU」を設置しました。

窓の改修には国の補助金「窓リノベ事業」の補助金が出ます。内窓の補助金額は新規窓よりも下がりますが、新規窓より工事代金が安いため、コストを抑えて断熱性能を上げたいという方にはピッタリです。

荒川区O様邸 内窓
荒川区O様邸 内窓
荒川区O様邸 内窓
荒川区O様邸 内窓

4 補助金利用

荒川区O様邸の工事では、国の補助金「こどもエコすまい支援事業」と「先進的窓リノベ事業」、東京都の「既存住宅における省エネ改修促進事業」を活用しました。

省エネにつながるエコ住宅設備や、断熱性能の高い断熱材・ドア・窓の設置などに対して交付される補助金です。

 

K様邸の補助金対象工事

エコ住宅設備の設置 給湯器(エコジョーズ)、高断熱浴槽、節水型トイレ、節湯水栓
断熱改修 外壁・床・天井の断熱材、断熱窓、断熱ドア(東京都補助金併用)
子育て対応改修 ビルトイン自動調理対応コンロ、掃除しやすいレンジフード、ビルトイン食洗器、浴室乾燥機

 

荒川区O様邸リノベーション工事の補助金交付額:1,800,000円

5 担当者より
(「増改築.com®」本部ハイウィル株式会社四代目代表稲葉高志)

本プロジェクトは「リノベーションにおける検査と構造計算の重要性」を再認識させられる現場でした。見えないリスクに立ち向かい、正しい選択をされたO様の決断に敬意を表します。

O様、この度は大切なご実家の再生をお任せいただき、誠にありがとうございました。

今回のプロジェクトで最も印象に残っているのは、やはり解体後のJIO検査での出来事です。 想定以上の施工不備(金物の逆向きや欠損)が発覚した際、私たちは「これを見て見ぬふりはできない」と強く思いました。 しかし、それを直すにはコストも工期もかかります。報告をする際、大野様がどう思われるか、正直不安もありました。

ですが、O様は「家族が住む家だから、徹底的に直してください」と即断してくださいました。 そのお言葉があったからこそ、私たちは構造計算をやり直し、一本一本の柱、一個一個の金物に向き合い、胸を張ってお引き渡しできる状態に仕上げることができました。

完成したお住まいで、娘様たちとキッチンに立つ奥様の笑顔を拝見した時、「正しい工事をして本当によかった」と心から思いました。 この家はもう、23年前の「金物不足の家」ではありません。新築同等、あるいはそれ以上の安心が詰まった家です。

これからも、この温かいお住まいで、ご家族皆様が末永く幸せに暮らされることを願っております。

他のリフォーム事例を見る

再建築不可のフルリフォーム&リノベーション

兵庫県神戸市 N様邸

再建築不可リノベーション

東京都杉並区 M様邸

再建築不可 中古住宅リフォーム&リノベーション

東京都目黒区 A様邸

地盤沈下(家の傾き)補正の戸建リノベーション

東京都板橋区 O様邸

戸建てリノベーション・リフォームに関するお問合せはこちら

増改築.comの一戸建てリフォーム専用ホームページに
お越しいただき、誠に有難うございます。
 
増改築.comメンバーは技術集団となり、
他社のような営業マンがおりません。
技術者が直接ご相談にのり問題解決を行います。
 
従いまして、
お客様の方である程度のご要望が整理されました段階、
お悩みが工事内容のどのようなところにあるのか?
ご予算がどの程度絞る必要があるのか?
など明確になった段階でのご相談をお願いしております。
お問合せ・ご相談はお電話・メールにて受け付けております。
メールの場合は以下のフォームに必要事項をご記入の上、
「送信する」ボタンをクリックをお願いします。

代表稲葉高志

戸建てリノベーションの専属スタッフが担当致します。
一戸建て家のリフォームに関することを
お気軽にお問合せください

よくあるご質問
  • 他社に要望を伝えたところできないといわれたのですが・・・
  • 他社で予算オーバーとなってしまい要望が叶わないのですが・・・
  • サービスについて詳しく聞きたいのですが・・・

どのようなお悩みのご相談でも結構です。

あなたの大切なお住まいに関するご相談をお待ちしております。

営業マンはおりませんので、しつこい営業等も一切ございません。

設計会社(建築家様)・同業の建築会社様のご相談につきましては、プランと共にご指定のIw値及びUa値等の性能値の目安もお願い申し上げます。

2026年の大型補助金が確定したことで現在大変込み合っております。

耐震性能と断熱性能を向上させるフルリフォームには6か月~7か月の工期がかかります。

補助金獲得には年内に報告を挙げる必要があることから、お早目にご相談をお願いいたします。(6月着工までが目安

ご提案までに大変お時間がかかっております。ご了承のほどお願い申し上げます。

(5月までの着工枠が埋まりました)・・・2026/03/01更新

※すでにプランをお持ちのお施主様・設計資料をお持ちのお施主様は内容をフォームで送信後、フォーム下のメールアドレスに資料をお送りください。対応がスムーズです。

必須

(例:増改築太郎)

必須

(例:contact@high-will.co.jp)

(例:03-5615-2826)

必須

(例:東京都荒川区西日暮里2-35-1)

(例:築40年)

(例:25坪・100㎡など)

(例:2000万程度など)

  • ※再建築不可のリフォームでは金融機関が限られます。事前審査をお勧めいたします。

    (例:2024年3月くらいに完成希望など)

    必須

    できるだけ具体的にお知らせくださいませ。既存設計資料、リフォーム後のイメージ図等をお持ちであれば下記のメールアドレスより添付をお願いします。

    ※次の画面がでるまで、4~5秒かかりますので、
    続けて2回押さないようにお願いいたします。

    ※次の画面が出るまで、4〜5秒かかりますので、
    続けて2回押さないようにお願いいたします。

    図面や写真等を送信いただく場合、また入力がうまくいかない場合は、上記内容をご確認のうえ、下記メールアドレスまでご連絡ください。

    お電話でのお問合せはこちら

    0120-246-991

    営業時間:10:00~17:00(土日祝日を除く)

    ★YouTube「増改築.comチャンネル」チャンネル登録して新動画解説をいち早くGET!!★
    「増改築.comリノベ診断」であなたに一番ふさわしいフルリフォームを診断!!(動画解説付き)
    ★Facebookページにいいね!を押して最新コンテンツ情報をいち早くGET!!★

    4代目代表よりご挨拶

    稲葉高志

    親切・丁寧な対応をモットーとしておりますのでお気軽にご相談ください。