戸建フルリフォームなら「増改築.com®」TOP > 施工事例 > 都道府県で探す > 東京都練馬区 > 施工事例 N様 店舗併用住宅を耐震・断熱フルリノベーション

練馬区|店舗併用住宅を耐震等級3・断熱5の要塞へ。フルリノベ施工事例

練馬区 N様邸

 

本プロジェクトは「伝統食品の製造現場」「店舗」「賃貸住戸」「大家族の居住スペース」という四つの機能を、一棟の建物に高次元で統合させる極めて難易度の高い挑戦です。練馬という都市部特有の法規制や構造的制約を技術で突破し、「上部構造評点1.5以上(耐震等級3相当)」と「断熱等級5(ZEHレベル)」という、大規模災害時の地域拠点に匹敵するスペックを実装した、次世代型店舗併用住宅のロールモデルを構築しました。

建物概要
名前 N様
場所 東京都練馬区
築年数 築40年
構造種別 木造一戸建て
家族構成 大人2人 子供2人
対象面積 50坪
リフォーム部位 基礎補強/間取り変更/断熱サッシ/インナーバルコニーテラス/耐震補強/
工期 8ヶ月
価格 4500万

お客様のご要望

今回のリフォームで、N様からのご要望は以下の4点です。

  • 構造不安の解消: 2階の大きなオーバーハング(跳ね出し)部分の揺れと亀裂を根本的に直したい。
  • 防災拠点化: 大地震が来ても家族と仕事を確実に守れる「評点1.5以上」の耐震性を確保したい。
  • 温熱環境の劇的改善: 製造現場の猛暑と、居住階の冬の底冷えを解消し「断熱等級5」を達成したい。
  • 生業の継続: 伝統食品の製造現場(ボイラー・井戸水利用)を、より衛生的で効率的な空間へ刷新したい。

プランナー 北畠より ~プランニングのポイント~

本プロジェクトのプランニングにおける最大のテーマは、「過酷な製造環境(水・蒸気・火気)」と「最高峰の住宅性能(高耐震・高断熱)」を、一棟の建物の中にいかに矛盾なく共存させるかにありました。

まず、1階の製造エリアについては、通常の住宅設計の常識を一度捨て、工場のプロ仕様へと振り切りました。大型ボイラーから立ち昇る大量の蒸気を効率的に排出するための大型換気扇の配置、さらには床一面に広がる排水グレーチングの設置など、清掃性と耐久性を最優先。天井には湿気に強いバスリブを採用し、壁体内への湿気侵入を許さない「防湿のバリア」を設計しました。

構造面では、N様邸のアキレス腱であった「オーバーハング(跳ね出し)構造」への外科手術を提案。木造のフレーム補強だけでは不十分と判断し、建物から独立した「新設基礎」を地上に構築。そこから鉄骨柱を建てて2階の荷重を直接支えるという、ハイブリッドな構造計画を策定しました。これにより、地震時の「ねじれ」を抑制し、評点1.5という防災拠点レベルの安全性を担保しました。

 

練馬区N様邸 戸建てリノベーション施工事例テーマカテゴリー

  • 耐震等級3相当(上部構造評点1.5以上)リフォーム(性能向上リノベーション)
  • HEAT20-G1リフォーム(性能向上リノベーション)
  • 店舗リノベーション
  • 屋根を屋上リフォーム
  • 補助金活用リフォーム

打ち合わせから着工、完成までの詳細施工事例紹介

1 戸建てリノベーション着工前

1-1 現場調査・打合せ

調査の初日、私たちはN様邸の玄関をくぐった瞬間に、このプロジェクトが「通常の改修」の域を遥かに超えるものであることを直感しました。

店舗併用住宅には、特有の「難しさ」が潜んでいます。N様邸の場合、それは長年使い込まれた井戸水の配管や、巨大なボイラーの排気筒、そして製造現場から絶えず発生する蒸気でした。それらが複雑な血管のように壁の裏を走り、湿気が構造材をじわじわと蝕んでいる気配がありました。

「どこか建物が歪んでいる気がするんです。それに、冬の寒さがもう限界で……」

N様のその言葉を受け、私たちはレーザーレベラー(水平器)を立てました。果たして、数値として現れたのは無視できないレベルの「建物の傾き」でした。さらに、床下や屋根裏の目視調査では、不適切な排気処理による結露の痕跡が散見されました。

打ち合わせの焦点は、単に綺麗にすることではなく、この「複雑に絡み合った設備の糸」を一度解き放ち、いかにして耐震壁を適切な位置に配置するかという、高度なパズルへと移っていきました。私たちは施主様の前で、既存の図面と現状の乖離を一つずつ指摘しました。それはN様にとって、愛着ある家の「病根」を突きつけられる辛い作業だったかもしれません。しかし、真実を直視することなしに、本物の再生はあり得ない。その私たちの姿勢に、N様は「すべてをさらけ出して、根本から治そう」という決意を固められたのです。

練馬区N様邸 既存
練馬区N様邸 既存
練馬区N様邸 既存
練馬区N様邸 既存
練馬区N様邸 既存
練馬区N様邸 既存

施工前の水回り

練馬区N様邸 既存
練馬区N様邸 既存
練馬区N様邸 既存
練馬区N様邸 既存

1-2 東京都区練馬区N様邸 戸建リノベーションプラン

私たちがN様に提示したプランは、周囲の住宅メーカーが二の足を踏むような、技術の粋を集めた「スケルトン・ハイパフォーマンス案」でした。

 

1. 「上部構造評点1.5」という、命を守る数値

提案の核としたのは、「耐震等級3相当(上部構造評点1.5)」の達成です。

多くのリフォーム会社が「基準の1.0を満たせば十分」と考える中、私たちは譲りませんでした。店舗併用で重機や設備が載るN様邸において、1.0は「倒壊しない」最低ラインに過ぎません。大地震の後も、翌日から店を開け、家族が避難所に行かずに済む生活。それを実現するための「1.5」です。精密な構造計算に基づき、どこに耐力壁を新設し、どこに金物を配置すべきか、その根拠をすべての図面に落とし込みました。

 

2. オーバーハングを支える「鉄骨柱」の大胆な介入

プラン提示の際、N様が最も驚かれたのは、木造の構造体の中に「独立した鉄骨柱」を一本、貫通させるという提案でした。 N様邸の2階部分は1階よりもせり出した「オーバーハング」構造。意匠性は高いものの、構造的には1階の特定の柱に過度な負担が集中する弱点となっていました。 「木造の補強だけでは、1階の店舗スペースが柱だらけになり、使い勝手を損ないます。だから、この一点にだけ、基礎から直結した鉄骨の守護神を立てさせてください」 この提案は、意匠と安全を究極の次元で両立させるための、増改築.comならではの「解」でした。

 

3. 「断熱等級5」が叶える、超高性能な仕事場

さらに、店舗の製造現場と住居部分を一体として捉えた「断熱等級5(UA値0.6相当以下)」の断熱改修を提案しました。

これまでの「蒸気がこもり、外気と同じ温度になる作業場」を、魔法瓶のような高性能な空間へ。床にはラムダ75mm、壁には高性能断熱材、天井にはアクリア3層という、徹底的な防御陣。これにより、エアコン一台で全館の温度を制御し、結露による構造劣化を永久に断つプランを構築しました。

「ここまでやるんですか……」と絶句されたN様。しかし、その表情には、長年の不安が「技術への信頼」へと変わっていく確信が満ちていました。

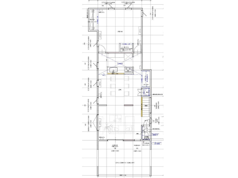
練馬区N様邸 新規平面図1階

1階 戸建てリノベーション後プラン

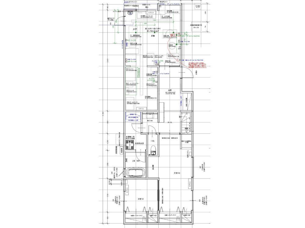
練馬区N様邸 新規平面図2階

2階 戸建てリノベーション後プラン

2 戸建てリノベーション着工

2-1 足場・解体

スケルトン・リノベーションの真の始まりは、内装材をすべて取り払い、建物の「骨」を露わにすることから始まります。N様邸の解体現場で、私たちは言葉を失う光景を目の当たりにしました。

「これは……想像以上に深刻だ」

現場監督が声を落とした先には、無残に朽ち果てた正面の主要な柱と土台がありました。長年、2階のバルコニーの防水が切れていたのでしょう。そこから侵入した雨水が数十年の歳月をかけて、建物の命綱である構造材をじわじわと腐らせていたのです。

特に、1階店舗の入り口を支える最も重要な柱は、指で押せば崩れるほどにスカスカの状態でした。店舗併用住宅として重い設備を支えていたはずのこの柱が、実は「皮一枚」で繋がっていたという事実は、立ち会ったN様にも大きな衝撃を与えました。「もし、この状態で大きな地震が来ていたら……」という仮説が、冷たい現実味を帯びて現場に重くのしかかりました。

しかし、増改築.comのプロフェッショナルたちは、ここでひるむことはありません。この腐朽は、建物を生まれ変わらせるための「洗礼」です。私たちは直ちに設計図を再検証し、腐食部分の完全な除去と、それ以上の強度を持たせるためのリカバリープランをその場で構築しました。

練馬区N様邸 解体工事
練馬区N様邸 解体工事
練馬区N様邸 解体工事
練馬区N様邸 解体工事
練馬区N様邸 解体工事
練馬区N様邸 解体工事

大事な構造部のすべてが目視可能となるスケルトンリフォーム

内部の天井・壁・床だけでなく外壁まで解体しスケルトン状態(躯体残し)にする戸建てリノベーションの最大のメリットはこのような重要な主要構造部のすべての状態が目視でわかることになります。

フルリノベーション後は、これらの構造上の弱点をすべて修正し補強することで新築と同水準、もくしくはそれ以上の建物性能をもつ構造躯体へ甦らせることが可能となります。

2-2 基礎

腐朽した柱と土台を撤去した後、最初に着手したのは「基礎」の再構築です。 築年数を経たN様邸の基礎は、鉄筋が入っていない「無筋コンクリート」の部分が多く、現代の耐震基準(上部構造評点1.5)を支えるにはあまりに脆弱でした。私たちは、既存の基礎を活かしつつ、その横に新しい鉄筋コンクリート基礎を抱き合わせる「添え基礎工事」を断行しました。

  1. 既存基礎の洗浄とケミカルアンカーの打設: 既存基礎に無数の穴を開け、新しい鉄筋と一体化させるためのアンカーを慎重に打ち込みます。

  2. 配筋の密な組み上げ: まるで高層ビルを建てるかのような密度で、太い鉄筋を編み込んでいきます。

  3. 高強度コンクリートの打設: 基礎の幅を大幅に拡張し、建物全体の荷重を面で支える強固な「ベース」を形成。

この工程は、完成後には再び土と床下に隠れて見えなくなります。しかし、この「目に見えない部分」にどれだけの手間をかけるかが、30年後の安心を左右することを私たちは知っています。新設された基礎は、まさに「要塞」の土台にふさわしい、圧倒的な質量感を持って完成しました。

練馬区N様邸 基礎
練馬区N様邸 基礎
練馬区N様邸 基礎
練馬区N様邸 基礎
練馬区N様邸 基礎
練馬区N様邸 基礎
練馬区N様邸 基礎
練馬区N様邸 基礎
練馬区N様邸 基礎
練馬区N様邸 基礎
練馬区N様邸 基礎
練馬区N様邸 基礎
2-3 木工事

基礎が固まると、いよいよ大工職人による木工事が始まります。ここでのテーマは、古い木材と新しい技術の「ハイブリッドな融合」です。

■ N値計算に基づく接合部の徹底強化 私たちはN様邸の全100箇所以上の接合部に対し、個別に「N値計算(地震時に柱が土台から引き抜かれる力を算出する計算)」を実施しました。 「ここにこの金物が必要なのは、計算上で〇〇トンの引き抜き力がかかるからです」 そんな理詰めの設計に基づき、巨大な「ホールダウン金物」や「柱頭柱脚金物」が次々と据え付けられていきました。

■ 伝統技法「根継ぎ」による再生 腐朽していた主要な柱は、すべてを安易に取り替えるのではなく、健全な部分を残し、新しい檜(ひのき)の材を継ぐ「根継ぎ」という伝統技法で再生しました。これは、既存の建物の歴史を尊重しつつ、強度を現代基準に引き上げる高度な職人技です。

■ 面材による「強固な箱」の構築 さらに、従来の「筋交い(すじかい)」による点での補強に加え、建物全体を「耐力面材」で包み込むことで、家全体を強固な「箱」へと進化させました。これにより、地震の揺れを一点に集中させず、壁全体で受け流す構造を実現。店舗部分の広い開口部も、この面材補強と前述の「鉄骨柱」の介入によって、一切の不安がない空間へと生まれ変わりました。

現場では、大工たちがミリ単位の精度で材を刻み、金物を締め上げていきます。その一つ一つの作業が、N様ご家族の命を守る「盾」になる。現場には、そんな静かな情熱と狂気的なまでのこだわりが充満していました。

練馬区N様邸 大工工事
練馬区N様邸 大工工事
練馬区N様邸 大工工事
練馬区N様邸 大工工事
練馬区N様邸 大工工事
練馬区N様邸 大工工事
練馬区N様邸 大工工事
練馬区N様邸 大工工事
練馬区N様邸 大工工事
2-4 断熱工事

リノベーションにおいて、断熱は単なる「厚着」ではありません。建物全体の熱の流れを計算し、隙間という隙間を潰す「精密な密閉作業」です。N様邸では、最高難度の**「断熱等級5」**を達成するため、部位ごとに最適な素材を使い分けるハイブリッド戦略を採用しました。

 

■ 床断熱:冷気をシャットアウトする「ラムダ75mm」の壁

冬場の底冷えの最大の原因は、床下から這い上がる冷気です。N様邸の1階床には、最高クラスの断熱性能を誇るフェノールフォーム断熱材「ラムダ」を75mmの厚さで敷き詰めました。

特筆すべきは、その施工精度です。大引(おおびき)と断熱材の間にわずかな隙間も許さないよう、ミリ単位でカットし、さらに接合部を気密テープで完全にシールしました。これにより、店舗の土間からの冷気が居住スペースに侵入するルートを完全に遮断しました。

 

■ 壁断熱:高性能グラスウール「太陽SUN」の充填

壁体内には、湿気に強く高い断熱・吸音性能を持つ「太陽SUN」を採用。店舗併用住宅では、製造現場の音が外へ漏れること、逆に外の喧騒がプライベート空間を邪魔することを防ぐ必要があります。断熱材をパンパンに詰め込むのではなく、柱の間を隙間なく埋めることで、熱の逃げ道(熱橋)を最小限に抑えました。

 

■ 天井断熱:驚異の「アクリア3層」240mmの厚み

夏場の最上階の熱気は、屋根からの輻射熱が原因です。これを防ぐため、天井裏には高性能グラスウール「アクリア」を3層、合計240mmという圧倒的な厚みで施工しました。 「ここまで厚くする必要があるのですか?」という問いに対し、私たちは「これが、夏にエアコンを止めても涼しさが持続する理由です」とお答えしました。断熱は、一度閉じたら二度と触れない場所。だからこそ、オーバークオリティと言われるほどの厚みが必要なのです。

練馬区N様邸 断熱工事
練馬区N様邸 断熱工事
練馬区N様邸 断熱工事
練馬区N様邸 断熱工事
練馬区N様邸 断熱工事
練馬区N様邸 断熱工事

練馬区N様邸 断熱データ

場所 製品 断熱グレード
床断熱材 押出法ポリスチレンフォーム ミラフォームラムダ F(熱伝導率0.022W/(m・K))

壁断熱材

高性能グラスウール パラマウント 太陽SUNR C(熱伝導率0.035W/(m・K))
天井断熱材

高性能グラスウール 旭ファイバー アクリア16K

C(熱伝導率0.037W/(m・K))
玄関ドア YKKAP イノベストD50 防火 A(開口部の熱還流率1.9W/(m2・K))以下
サッシ

YKKAP APW330 防火 樹脂窓

A(開口部の熱還流率1.9W/(m2・K))以下

HEAT20-G2リフォームとは?

<HEAT20とは?>

HEAT20とは、「2020年を見据えた住宅の高断熱化技術開発委員会」という団体名です。

その団体が設定しているのが、屋根や外壁、床、窓などの「外皮」と呼ばれる部位の断熱や遮熱などといった性能の評価基準であり、G1とG2の2段階あります。G2の方がより高性能な性能を有する外皮となっています。

<省エネ基準の家とHEAT20の家の違い>
省エネ基準の家とHEAT20の家の違い

HEAT20-G2の家は、省エネ基準の家の30~50%の暖房費を削減できる

 

「増改築.com®」によると、断熱リフォームの基準として、平成28年の建築物省エネ法基準に相当するUa値0.87が等級4(最高等級)とされています。しかし、この基準だけでは、真の省エネ住宅とは言えません。実際に、日本の断熱等級4は、2020年の建築基準法で努力義務とされているに過ぎません。しかし、2022年4月には断熱等級5が新設され、さらに2022年10月には断熱等級6・7が新設されました。断熱等級6・7は、これまでの断熱等級4と比べて、はるかに高いレベルの断熱性能が求められます。 HEAT20の計画においては、ZEH基準のUa値0.6を基準としています。これは、外壁105mm、U値2.33の樹脂アルミ複合サッシ窓で、天井の断熱材は105mmあれば実現できるとされています。さらに上位の「HEAT20 G1」グレードでは、6地域でUa値0.56となり、このレベルでは断熱環境を体感できるとされています。

最上位の「HEAT20G2」グレードでは、5地域でUa値0.46となっています。

断熱改修(温熱改修)リフォームを成功させるためには、これらの基準や計画をしっかりと理解し、適切な施工方法を選択することが重要となります。

2-5 インナーバルコニー工事

N様邸の白眉とも言えるのが、2階に設けられた12畳の広大なインナーバルコニーです。しかし、木造住宅における広大なバルコニーは、常に「雨漏り」というリスクと隣り合わせです。解体時に発覚した柱の腐朽も、以前のバルコニーの防水破綻が原因でした。

同じ過ちを繰り返さないため、私たちは「金属防水」という究極の選択をしました。

  • なぜ金属防水か?: 一般的なFRP防水やウレタン防水は、木造住宅特有の「建物の動き(しなり)」によって数年で亀裂が入るリスクがあります。一方、金属防水は鋼板を組み合わせるため、建物の動きに追従し、かつ紫外線による劣化がほぼありません。

  • スカイプロムナード工法: 排水溝の勾配を緻密に計算し、12畳もの広さにかかる雨水を瞬時に排出するルートを構築。これにより、階下の居室には一滴の雨露も通さない「不落の盾」が完成しました。

練馬区N様邸 インナーバルコニー工事
練馬区N様邸 インナーバルコニー工事
練馬区N様邸 インナーバルコニー工事
練馬区N様邸 インナーバルコニー工事
練馬区N様邸 インナーバルコニー工事
練馬区N様邸 インナーバルコニー工事
練馬区N様邸 インナーバルコニー工事
練馬区N様邸 インナーバルコニー工事
練馬区N様邸 インナーバルコニー工事
2-6 外壁工事

最後は、建物の「顔」であり、第一の防護壁となる外装工程です。

 

■ 職人の魂が宿る「コテ塗り」仕上げ

外壁材には、アイカ工業の「ジョリパット」を採用しました。量産型のサイディングボードでは決して出せない、職人の手仕事による奥行きのある質感が、N様が守り続ける「伝統の味」とリンクします。店舗部分には格式を、住居部分には温もりを感じさせるパターンを選定し、街並みに溶け込みながらも存在感を放つ佇まいを目指しました。

練馬区N様邸 外壁工事
練馬区N様邸 外壁工事
練馬区N様邸 外壁工事
練馬区N様邸 外壁工事
練馬区N様邸 外壁工事
練馬区N様邸 外壁工事
2-7 造作工事

構造部の構造補強が終わると、造作工事に入ります。

練馬区N様邸 造作工事
練馬区N様邸 造作工事
練馬区N様邸 造作工事

3 戸建てリノベーション竣工

完成したN様邸に一歩足を踏み入れると、かつての「湿気と寒さに震えていた店」の面影は微塵もありません。そこにあるのは、圧倒的な「静寂」と「安定した空気感」です。

 

■ 「魔法瓶の家」の実力:エアコン1台の衝撃

引き渡しの日、外気は真冬の冷え込みにありましたが、家中を暖めていたのはリビングに置かれた、たった1台のエアコンでした。 「店舗の奥まで、それどころか3階の寝室まで、温度差がほとんどないんですね……」 N様が驚かれたその性能こそ、私たちが「技術の狂気」を注ぎ込んだ証です。製造現場で発生する蒸気も、計算された計画換気によってスムーズに排出され、壁内結露のリスクは完全に払拭されました。


  =外観==  

Before

練馬区N様邸 既存

施工前は賃貸併用住宅でした

After

練馬区N様邸 竣工

施工後は2世帯で暮らす住居となりました

練馬区N様邸 竣工

外壁仕上げはAICAジョリパッド(左官)

練馬区N様邸 竣工

玄関ドアはYKKAPイノベストD50防火ドア


  == LDK ==  

Before

練馬区N様邸 既存

施工前は和室が中心の間取りでした

After

練馬区N様邸 竣工

施工後のリビングは2階に移動。快適なインナーバルコニーを備えた広々LDKとなりました

練馬区N様邸 竣工

室内建材はパナソニックベリティスシリーズ

練馬区N様邸 竣工

壁で仕切るのではなく壁・天井のクロスの貼り分けで空間を区切るというアイディアはお施主様のこだわりでした

練馬区N様邸 竣工

LDKから続くインナーバルコニーは雨風からも周囲の視線からも守られる快適な空間です


  == 水まわり ==  

Before

練馬区N様邸 既存

施工前は狭く使いづらいキッチンでした

After

練馬区N様邸 竣工

施工後のキッチンはオープンでリビングを見渡すことができます。TOTOシステムキッチン「ザ・クラッソ」(背面収納も)

練馬区N様邸 竣工

浴室はTOTOサザナ1620サイズ

練馬区N様邸 竣工

洗面化粧台はLIXILエスタ間口1200

練馬区N様邸 竣工

トイレはハイウィルオリジナル


  == その他居室 ==  

Before

練馬区N様邸 既存

施工前の2階は賃貸だったため外階段でした

After

練馬区N様邸 竣工

施工後の階段は室内に設置。傾斜も緩やかです

練馬区N様邸 竣工

施工後の1階は和のテイストを取り入れた居室に

練馬区N様邸 竣工

施工後の玄関ホール

4 補助金利用

練馬区N様邸の工事では、国の補助金「子育てエコホーム支援事業」と「先進的窓リノベ事業」を活用しました。さらに東京都の「既存住宅における省エネ改修促進事業」も併用することで補助金額を大幅にアップさせることができました。

どちらも省エネにつながるエコ住宅設備や、断熱性能の高い断熱材・ドア・窓の設置などに対して交付される補助金です。

 

N様邸の補助金対象工事

エコ住宅設備の設置 給湯器(エコジョーズ)、高断熱浴槽、節水型トイレ、節湯水栓
断熱改修 外壁・床・天井の断熱材、断熱窓、断熱ドア(東京都補助金併用)
子育て対応改修 ビルトイン自動調理対応コンロ、掃除しやすいレンジフード、ビルトイン食洗器、浴室乾燥機

 

練馬区N様邸工事での補助金交付額:約200万円

5 担当者より
(「増改築.com®」本部ハイウィル株式会社四代目代表稲葉高志)

N様、長いようで短かったこの大規模プロジェクト、本当にお疲れ様でした。そして、大切なご自宅とお店の未来を私たちに託してくださったこと、心より感謝申し上げます。

今でも鮮明に思い出すのは、解体工事の初日、剥き出しになった柱を二人で見上げたあの瞬間のことです。 バルコニーからの浸水で根元からボロボロになり、触れるだけで崩れ落ちる主要な柱。その惨状を目にした時、現場には一瞬、言葉を失うような重い沈黙が流れました。私はN様の横顔を見て、そこに宿った不安の大きさを痛いほど感じました。「もし、この状態で大きな地震が来ていたら……」という恐怖。しかし同時に、私の内側では「絶対に、この家を誰よりも強く、安全な場所にしてみせる」という、ある種の狂気にも似た使命感が燃え上がっていました。

店舗併用住宅という特殊な環境下で、井戸水やボイラーの複雑な配管を一つずつ解きほぐし、構造的な弱点だったオーバーハング部分に鋼鉄の柱を打ち込む。それらは決して平坦な道のりではありませんでした。

設計上の「1.5」という数値、そして「断熱等級5」という目標。これらは単なるスペックではなく、N様が守り続けてきた「伝統の味」を、そして三世代が暮らす「家族の日常」を、何があっても途絶えさせないための、私たちなりの誠実さの証でした。

 

「正直、リフォームでここまで変わるとは思っていませんでした。剥き出しの柱を見た時は絶望しましたが、鉄骨が入り、断熱材で包まれていく工程を見て、この家は『要塞』になったんだと確信しました。これで、安心して代々の味を守っていけます。」

その言葉をいただいたとき、この仕事の本当の報酬は、建物が完成することではなく、施主様の心にある「不安」を「確信」に変えることなのだと再確認しました。

N様、私たちが作り上げたのは、ただの「住居」でも「店舗」でもありません。

練馬の食卓を支える伝統の味を守り、家族が30年後も笑顔で食卓を囲めるための「強固な防波堤」です。

これから先、この家がN様ご家族、そして地域の方々に愛され続けることを、心から願っております。

他のリフォーム事例を見る

再建築不可のフルリフォーム&リノベーション

兵庫県神戸市 N様邸

再建築不可リノベーション

東京都杉並区 M様邸

再建築不可 中古住宅リフォーム&リノベーション

東京都目黒区 A様邸

地盤沈下(家の傾き)補正の戸建リノベーション

東京都板橋区 O様邸

戸建てリノベーション・リフォームに関するお問合せはこちら

増改築.comの一戸建てリフォーム専用ホームページに
お越しいただき、誠に有難うございます。
 
増改築.comメンバーは技術集団となり、
他社のような営業マンがおりません。
技術者が直接ご相談にのり問題解決を行います。
 
従いまして、
お客様の方である程度のご要望が整理されました段階、
お悩みが工事内容のどのようなところにあるのか?
ご予算がどの程度絞る必要があるのか?
など明確になった段階でのご相談をお願いしております。
お問合せ・ご相談はお電話・メールにて受け付けております。
メールの場合は以下のフォームに必要事項をご記入の上、
「送信する」ボタンをクリックをお願いします。

代表稲葉高志

戸建てリノベーションの専属スタッフが担当致します。
一戸建て家のリフォームに関することを
お気軽にお問合せください

よくあるご質問
  • 他社に要望を伝えたところできないといわれたのですが・・・
  • 他社で予算オーバーとなってしまい要望が叶わないのですが・・・
  • サービスについて詳しく聞きたいのですが・・・

どのようなお悩みのご相談でも結構です。

あなたの大切なお住まいに関するご相談をお待ちしております。

営業マンはおりませんので、しつこい営業等も一切ございません。

設計会社(建築家様)・同業の建築会社様のご相談につきましては、プランと共にご指定のIw値及びUa値等の性能値の目安もお願い申し上げます。

2026年の大型補助金が確定したことで現在大変込み合っております。

耐震性能と断熱性能を向上させるフルリフォームには6か月~7か月の工期がかかります。

補助金獲得には年内に報告を挙げる必要があることから、お早目にご相談をお願いいたします。(6月着工までが目安

ご提案までに大変お時間がかかっております。ご了承のほどお願い申し上げます。

(5月までの着工枠が埋まりました)・・・2026/03/01更新

※すでにプランをお持ちのお施主様・設計資料をお持ちのお施主様は内容をフォームで送信後、フォーム下のメールアドレスに資料をお送りください。対応がスムーズです。

必須

(例:増改築太郎)

必須

(例:contact@high-will.co.jp)

(例:03-5615-2826)

必須

(例:東京都荒川区西日暮里2-35-1)

(例:築40年)

(例:25坪・100㎡など)

(例:2000万程度など)

  • ※再建築不可のリフォームでは金融機関が限られます。事前審査をお勧めいたします。

    (例:2024年3月くらいに完成希望など)

    必須

    できるだけ具体的にお知らせくださいませ。既存設計資料、リフォーム後のイメージ図等をお持ちであれば下記のメールアドレスより添付をお願いします。

    ※次の画面がでるまで、4~5秒かかりますので、
    続けて2回押さないようにお願いいたします。

    ※次の画面が出るまで、4〜5秒かかりますので、
    続けて2回押さないようにお願いいたします。

    図面や写真等を送信いただく場合、また入力がうまくいかない場合は、上記内容をご確認のうえ、下記メールアドレスまでご連絡ください。

    お電話でのお問合せはこちら

    0120-246-991

    営業時間:10:00~17:00(土日祝日を除く)

    ★YouTube「増改築.comチャンネル」チャンネル登録して新動画解説をいち早くGET!!★
    「増改築.comリノベ診断」であなたに一番ふさわしいフルリフォームを診断!!(動画解説付き)
    ★Facebookページにいいね!を押して最新コンテンツ情報をいち早くGET!!★

    4代目代表よりご挨拶

    稲葉高志

    親切・丁寧な対応をモットーとしておりますのでお気軽にご相談ください。