戸建フルリフォームなら「増改築.com®」TOP > 施工事例 > 都道府県で探す > 東京都 > 板橋区 > 施工事例 H様 再建築不可戸建てのフルリフォーム&フルリノベーション

再建築不可でも新築以上の耐震性能と断熱性能に生まれ変わる!

板橋区・築56年|再建築不可の古家を解体して愕然。「小屋同然」の構造と「土台腐食」を乗り越え、愛犬と暮らすイヤシロチへ再生(総額2800万円)

東京都板橋区 H様邸

本プロジェクトは、板橋区の「再建築不可物件(築56年)」に対し、当初予算を大幅に超える総工費2800万円を投じて、解体後に発覚した「構造計算不能な簡易構造」や「土台の全腐食」を徹底的に是正。愛犬と暮らすための「イヤシロチ(炭埋)」化と、新築同等の「耐震・断熱性能」を同時に実現した、魂の再生リノベーションです。

東京都板橋区。都心へのアクセスも良く、古き良き街並みが残る住宅街。 お施主様のH様は、大型犬を含むワンちゃんたちと暮らすための広い土地と建物を求め、この地の「再建築不可物件」をご購入されました。

当初のリフォーム予算は1500万円。しかし、最終的な総工費は2800万円となりました。 なぜ、倍近くの費用が必要になったのか? それは、壁を剥がした瞬間に露呈した、築56年の建物の「想像を絶する実態」に対処し、ご家族と愛犬の命を守るための、避けては通れない「安全への投資」だったからです。

建物概要
名前 H様
場所 東京都板橋区
築年数 築56年
構造種別 木造一戸建て
家族構成 大人1人 
対象面積 約30坪
リフォーム部位 基礎補強/間取り変更/断熱サッシ/セルロースファイバー/耐震補強/
工期 5ヶ月
価格 2800万

お客様のご要望

今回のリフォームで、H様からのご要望は以下の6点です。

  • 再建築不可の再生: 建て替えができないため、既存躯体を活かして新築並みの性能にしたい。

    • 愛犬との共生: 滑りにくい床、大型犬も洗えるグルーミングスペースが欲しい。

    • 土地の浄化(イヤシロチ化): 敷地に炭を埋設する「炭埋(たんまい)」を行い、磁場を整えたい。

    • 予算と性能のバランス: 当初は予算重視だったが、現場の実状を見て「安心」を最優先したい。

プランナー 北畠より ~プランニングのポイント~

既存の外側(屋根・外壁)を残しつつ内部を全て解体する「内部スケルトン」手法を採用し、構造上の致命的な欠陥を全て「可視化」して根本治療しました。

特に今回は、1階と2階の壁の位置が揃っていない「直下率」の悪い建物でした。そこで、構造計算(N値計算等)を行い、必要な箇所に耐力壁と**制震ダンパー「WINダンパー」**を配置。さらに、床下には防湿コンクリートを打設し、足元からの湿気と冷気をシャットアウトする計画としました。

文京区K様邸 戸建てリノベーション施工事例テーマカテゴリー

  • 再建築不可リフォーム
  • 中古(住宅)を買ってリフォーム&リノベーション 
  • 耐震等級3相当(上部構造評点1.5以上)リフォーム(性能向上リノベーション)
  • HEAT20-G1リフォーム(性能向上リノベーション)
  • セルロースファイバー仕様
  • 炭素埋設
  • 補助金活用リフォーム

打ち合わせから着工、完成までの詳細施工事例紹介

1 戸建てリノベーション着工前

1-1 現場調査・打合せ

築56年という経年劣化に加え、「再建築不可」という法的制約が重くのしかかる本物件に対し、私たちは表面的なリフォームではなく、建物の骨格から作り直す「内部スケルトンリノベーション」こそが、唯一の解決策であると提示しました。

1-1. 現場調査・打ち合わせ:見えないリスクとの対峙

お問い合わせをいただいた際、H様は「希望の間取りにできるか」「予算感は合っているか」という点をご心配されていました。 現地調査に伺うと、建物は築56年特有の老朽化が進んでおり、床の傾きや断熱性の欠如が見受けられました。しかし、最大の問題は「壁の中」にあります。図面が存在しない古い木造住宅の場合、筋交いの有無や柱の健全性は、開けてみなければ分かりません。 私たちは、H様の「愛犬と長く安全に暮らしたい」という願いを実現するためには、見た目を綺麗にするだけの工事では不十分であることを、リスクも含めて正直にお伝えしました。

板橋区 H様邸 既存
板橋区 H様邸 既存
板橋区 H様邸 既存
板橋区 H様邸 既存
板橋区 H様邸 既存
板橋区 H様邸 既存

施工前の水回り

板橋区 H様邸 既存
板橋区 H様邸 既存
板橋区 H様邸 既存

1-2 東京都板橋区H様邸 戸建リノベーションプラン

H様からの特殊なオーダーとして、土地の磁場を整える「炭埋(たんまい)」がありました。 私たちはこれを単なるスピリチュアルな要望としてではなく、「住環境の質を高めるための重要な要素」として計画に組み込みました。 提案の核は以下の3点です。

  1. 内部スケルトン化: 外壁と屋根の形状だけを残し、内部を空洞にして構造を一から組み直す。

  2. 断熱等級6レベルへの挑戦: 隙間風だらけの古家を、魔法瓶のような高断熱住宅へ変える。

  3. 基礎からの湿気対策: 炭埋と防湿コンクリートを組み合わせ、土地と建物の湿気環境を改善する。

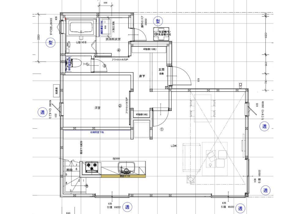
板橋区 H様邸 施工後平面図

1階 戸建てリノベーション後プラン

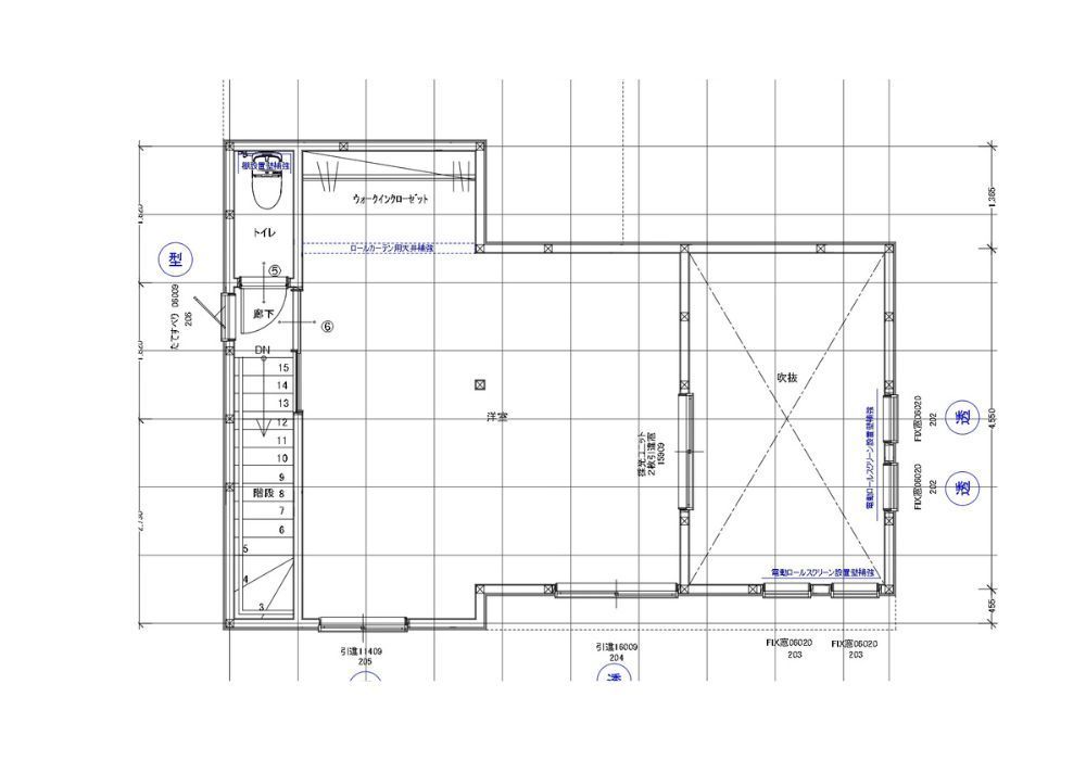
板橋区 H様邸 施工後平面図

2階 戸建てリノベーション後プラン

2 戸建てリノベーション着工

2-1 足場・解体

●解体は手壊し作業

近隣への挨拶を済ませ、いよいよ解体工事が始まりました。内装材を撤去し、構造躯体を露わにする「スケルトン解体」です。

板橋区 H様邸 足場解体
板橋区 H様邸 足場解体
板橋区 H様邸 足場解体
板橋区 H様邸 足場解体
板橋区 H様邸 足場解体
板橋区 H様邸 足場解体

解体後の衝撃①:「家」ではなく「小屋」だった平屋部分 内部の壁を解体した瞬間、現場監督と大工は目を疑いました。 増築されたと思われる平屋部分の柱が、本来あるべき角材(3.5寸や4寸)ではなく、なんと**「ツーバイフォー材(薄い板材)」**を何枚か重ねて柱に見立てただけの、極めて簡易な作りだったのです。 これでは、私たちが標準としている「許容応力度計算(構造計算)」に載せることすらできません。地震が来れば、この部分から崩壊する危険性が極めて高い状態でした。

解体後の衝撃②:地面に埋もれた土台の腐食 さらに、建物の正面部分でも深刻な問題が発覚しました。 敷地の地面(GL:グランドライン)の高さと、建物の基礎の高さがほぼ同じ設定になっていたため、長年にわたり雨水や湿気が土台に直接侵入し続けていたのです。 結果、正面側の土台はほぼ全て腐食し、ボロボロの状態でした。

対策: この時点で、当初予算内での工事は物理的に不可能となりました。H様に現状をご覧いただき、「中途半端に隠すのではなく、全て直す」という合意のもと、構造体の大規模な組み換え(総工費2800万円への増額)を決断しました。

大事な構造部のすべてが目視可能となるスケルトンリフォーム

内部の天井・壁・床だけでなく外壁まで解体しスケルトン状態(躯体残し)にする戸建てリノベーションの最大のメリットはこのような重要な主要構造部のすべての状態が目視でわかることになります。

フルリノベーション後は、これらの構造上の弱点をすべて修正し補強することで新築と同水準、もくしくはそれ以上の建物性能をもつ構造躯体へ甦らせることが可能となります。

2-1+α. 埋設炭素:土地を清める「イヤシロチ」化

建物の中央に特殊な炭を埋設し、土地の電位環境を整えることで、科学的な湿気対策と、感覚的な心地よさを両立させました。

H様こだわりの工程です。基礎工事の前に、敷地の特定箇所に穴を掘り、大量の炭を埋設する「炭埋(たんまい)」を行いました。 これにより、敷地全体をマイナスイオン優位の「イヤシロチ(弥盛地)」へと改善。これは古くからの知恵ですが、現代建築においても「地電流の調整」や「湿気吸着」といった効果が期待されており、愛犬たちの健康にも寄与する重要なプロセスです。

2-2 基礎

既存の無筋コンクリート基礎に対し、新たな鉄筋コンクリートを抱き合わせる「添え基礎補強」を行うことで強度を飛躍的に向上させ、さらに床下一面に防湿コンクリートを打設して湿気を完全に遮断しました。

解体して土台を交換した後、私たちは基礎そのものの補強に着手しました。 築56年の基礎は、現在の基準に満たない「無筋基礎(鉄筋が入っていないコンクリート)」である可能性が高く、耐震性に不安がありました。

  1. 添え基礎補強(そえきそほきょう): 既存の基礎の内側に、新たに鉄筋を組み、コンクリートを流し込んで一体化させる工法です。これにより、古い基礎を新しい鉄筋コンクリートで補強し、現在の耐震基準に適合する強度を持たせました。

板橋区 H様邸 基礎
板橋区 H様邸 基礎
板橋区 H様邸 基礎
板橋区 H様邸 基礎
板橋区 H様邸 基礎
板橋区 H様邸 基礎
板橋区 H様邸 基礎
板橋区 H様邸 基礎
2-3 屋根工事

老朽化した屋根下地(野地)の上から新しい合板を重ね張りする「増し打ち」で強度を高めた上で、大屋根には軽量な「コロニアル」、勾配の緩い下屋根には「ガルバリウム鋼板」を採用し、雨漏りリスクを盤石に封じ込めました。

築56年の屋根は、表面の劣化だけでなく、屋根材を支える下地(野地板)の劣化が懸念されました。そこで、以下の手順で屋根の長寿命化を図りました。

  1. 野地(のじ)の増し打ち補強 既存の屋根下地の上から、新しい構造用合板(12mm厚など)を重ね張りする「増し打ち」を行いました。

    • 効果: 経年劣化で強度が落ちていた屋根面が、新しい合板によって一体化され、水平構面(屋根の剛性)が強化されます。また、釘の効きも良くなるため、強風で屋根材が飛ぶリスクも低減します。

  2. 大屋根:コロニアル(スレート)葺き 増し打ちした下地の上に、防水シート(ルーフィング)を敷き込み、ケイミュー社の「コロニアル(平形屋根スレート)」を施工しました。

    • 選定理由: 非常に軽量であるため、建物頭部の重量を抑え、耐震性の向上に寄与します。また、シンプルで飽きのこないデザインが、リノベーション後の外観を引き締めます。

  3. 下屋根:鋼板(ガルバリウム)葺き 1階の屋根にあたる「下屋根」部分は、大屋根に比べて勾配(傾き)が緩やかでした。 コロニアルは緩勾配には不向き(雨水が逆流する恐れがある)なため、水はけが良く、防水性に最も優れた「ガルバリウム鋼板」による板金施工を採用しました。

板橋区 H様邸 屋根工事
板橋区 H様邸 屋根工事
板橋区 H様邸 屋根工事
板橋区 H様邸 屋根工事
板橋区 H様邸 屋根工事
板橋区 H様邸 屋根工事
2-4 木工事

精密な「N値計算」に基づいた金物の全数設置、高耐力面材「ノボパン」による壁倍率の向上、そして地震エネルギーを吸収する「制震ダンパー」を組み合わせることで、新築の耐震等級3に匹敵する強度と、繰り返す余震への耐久性を実現しました。

「小屋同然」だった躯体を組み直した後、私たちは以下の3つのステップで、建物を強靭なシェルターへと進化させました。

  1. N値計算に基づく「柱頭柱脚金物」の設置 地震時、柱には引き抜こうとする強烈な力がかかります。これを防ぐため、全ての柱に対して「N値計算(※5)」を実施。 「どこに、どのくらいの力がかかるか」を数値化し、その計算結果に基づいて、ホールダウン金物や筋交いプレートなどの「柱頭柱脚金物」を適材適所に設置しました。勘や経験ではなく、物理的な計算に基づき、柱と土台・梁をガチガチに緊結しています。

  2. 構造用面材「ノボパン」による面補強 耐力壁(地震に抵抗する壁)には、パーティクルボードの最高峰「ノボパンSTPⅡ」を採用しました。

    • 特徴: 従来の筋交い工法に加え、このノボパンを柱と梁の外側から釘打ちすることで、建物を「面」で支えるモノコック構造に近い強さを発揮します。せん断性能(横からの力に対する強さ)が非常に高く、地震の横揺れを建物全体で受け止めます。

  3. 制震装置「WINダンパー」の設置 「耐震(耐える力)」だけでは、繰り返す大地震(本震+余震)で建物が徐々にダメージを受けてしまいます。そこで、地震の揺れを制御する「制震(吸収する力)」をプラスしました。 採用したのは、油圧式制御装置「WINダンパー」です。

    • 効果: 建物の変形に合わせてダンパーが伸縮し、地震エネルギーを熱エネルギーに変換して消散させます。これにより、建物の揺れ幅を大幅に抑え、柱や梁、そしてノボパンへのダメージを軽減し、家の寿命を延ばします。

(※5)N値計算(えぬちけいさん) 地震や台風の際に、柱が土台や梁から引き抜かれないように、それぞれの柱に必要な「金物の種類と強度」を算出する計算方法です。

 

板橋区 H様邸 木工事
板橋区 H様邸 木工事
板橋区 H様邸 木工事
板橋区 H様邸 木工事
板橋区 H様邸 木工事
板橋区 H様邸 木工事

== 耐震補強工事 ==

板橋区 H様邸 耐震補強
板橋区 H様邸 耐震補強
板橋区 H様邸 耐震補強
板橋区 H様邸 耐震補強
板橋区 H様邸 耐震補強
板橋区 H様邸 耐震補強
板橋区 H様邸 耐震補強
2-5 断熱工事

床には特注厚のフェノールフォーム、壁と天井には高性能グラスウールを多重充填し、さらにドイツ製「調湿可変気密シート」で覆うことで、断熱等級6に迫る保温性能と、壁体内の結露リスクを物理的に排除した「呼吸する超高断熱住宅」を実現しました。

築56年の古家を「冬暖かく、長持ちする家」に変えるため、私たちは一般的な建売住宅ではまず採用されない、ハイエンドな断熱設計を行いました。

  1. 床:ミラネクストラムダ 75mm(特寸) 足元の冷えを遮断する床断熱には、熱伝導率0.020W/(m・K)という最高クラスの性能を誇るフェノールフォーム「ミラネクストラムダ」を採用。

    • こだわり: 既製品ではなく、この現場の根太(ねだ)の深さに合わせて「75mm厚」の特注サイズ(特寸)を手配しました。これにより、わずかな隙間もなくパズルのように床下を埋め尽くし、底冷えを完全にシャットアウトしました。

  2. 壁:太陽SUN + ウートップ®SDヴァリオツヴァイ 壁の断熱材には、パラマウント硝子工業の高性能グラスウール「太陽SUN」を充填。 そして、ここからが最も重要なポイントです。断熱材の室内側に、ドイツ・ウルト(Würth)社の「ウートップ®SDヴァリオツヴァイ(調湿可変気密シート)」を施工しました。

    • 効果: この特殊なシートは、湿度に応じて湿気を通したり止めたりする「可変透湿機能」を持っています。冬は室内の湿気を壁に入れず、夏は壁の中の湿気を室内へ逃がすことで、木造住宅の大敵である「壁体内結露」を半永久的に防ぎ、柱や土台を腐らせません。

  3. 天井:高性能グラスウール「2重」充填 熱の出入りが最も激しい天井裏には、アクリアマット14K  155mm×2層に重ねて敷き詰めました。

    • 効果: 通常の1層や2層施工を遥かに超える圧倒的な厚みを持たせることで、真夏の焼け付くような屋根からの熱気も、真冬の暖房熱の流出も、分厚い布団で包み込むように遮断します。

  4. 窓:APW330/331(樹脂サッシ) 開口部には、YKK APの「高性能樹脂窓 APW330/331」を採用し、窓からの熱損失を最小限に抑えました。

板橋区 H様邸 断熱工事
板橋区 H様邸 断熱工事
板橋区 H様邸 断熱工事
板橋区 H様邸 断熱工事
板橋区 H様邸 断熱工事
板橋区 H様邸 断熱工事

板橋区H様邸 断熱データ

場所 製品 断熱グレード
床断熱材 押出法ポリスチレンフォーム ミラフォームラムダ 75mm F(熱伝導率0.022W/(m・K))

壁断熱材

(外断熱)

高性能グラスウール パラマウント硝子 太陽SUNR 105mm C(熱伝導率0.035W/(m・K))
天井断熱材

高性能グラスウール 旭ファイバーグラス アクリアマット14K  155mm×2層

C(熱伝導率0.038W/(m・K))
玄関ドア YKKAP イノベストD50 防火 A(ZEHレベル)
サッシ

YKKAP APW330 防火 樹脂窓

S~A(ZEHレベル)

HEAT20-G2リフォームとは?

<HEAT20とは?>

HEAT20とは、「2020年を見据えた住宅の高断熱化技術開発委員会」という団体名です。

その団体が設定しているのが、屋根や外壁、床、窓などの「外皮」と呼ばれる部位の断熱や遮熱などといった性能の評価基準であり、G1とG2の2段階あります。G2の方がより高性能な性能を有する外皮となっています。

<省エネ基準の家とHEAT20の家の違い>
板橋区 H様邸 HEAT20

HEAT20-G2の家は、省エネ基準の家の30~50%の暖房費を削減できる

 

「増改築.com®」によると、断熱リフォームの基準として、平成28年の建築物省エネ法基準に相当するUa値0.87が等級4(最高等級)とされています。しかし、この基準だけでは、真の省エネ住宅とは言えません。実際に、日本の断熱等級4は、2020年の建築基準法で努力義務とされているに過ぎません。しかし、2022年4月には断熱等級5が新設され、さらに2022年10月には断熱等級6・7が新設されました。断熱等級6・7は、これまでの断熱等級4と比べて、はるかに高いレベルの断熱性能が求められます。 HEAT20の計画においては、ZEH基準のUa値0.6を基準としています。これは、外壁105mm、U値2.33の樹脂アルミ複合サッシ窓で、天井の断熱材は105mmあれば実現できるとされています。さらに上位の「HEAT20 G1」グレードでは、6地域でUa値0.56となり、このレベルでは断熱環境を体感できるとされています。

最上位の「HEAT20G2」グレードでは、5地域でUa値0.46となっています。

断熱改修(温熱改修)リフォームを成功させるためには、これらの基準や計画をしっかりと理解し、適切な施工方法を選択することが重要となります。

2-6 外壁工事

外壁にはアイカ工業の塗り壁材「ジョリパット」を採用し、既製品のサイディングにはない温かみのある質感を表現。さらに下地には「通気ラス」を用いることで、塗り壁でありながら壁体内の湿気を確実に排出する、耐久性の高い外皮を構築しました。

腐食により土台がボロボロになっていた過去の教訓から、私たちは「雨仕舞い」と「通気」に細心の注意を払いつつ、H様が求められる上質な外観デザインを実現しました。

  1. 左官仕上げ「ジョリパット」の採用 外装の仕上げには、35年以上の実績を持つ信頼の塗り壁材「ジョリパット(※6)」を採用しました。

    • 意匠性: 職人がコテで一つ一つ模様(パターン)を描くため、サイディングのような継ぎ目(シーリング)がなく、世界に一つだけの表情豊かな壁面が完成します。

    • 機能性: 柔らかな素材であるため、地震の揺れによる追従性が高く、ひび割れ(クラック)にしにくい特性を持っています。また、色褪せしにくい高耐候性タイプを選定しました。

  2. 見えない「通気層」の確保(腐食対策) 通常、モルタル等の塗り壁は湿気が抜けにくいのが弱点ですが、今回は下地に「通気ラス(通気層を確保できる特殊な金網)」と透湿防水シートを組み合わせた通気工法を採用しました。

    • 効果: これにより、壁の中に空気の通り道ができ、万が一の湿気や熱気を屋根裏から外部へ排出します。「美しい塗り壁」の内側で、「呼吸する構造」を作り込み、柱や断熱材を湿気から守り抜きます。

(※6)ジョリパット アイカ工業が製造する「壁面仕上げ塗材」。色やパターンの自由度が極めて高く、耐候性・防藻・防カビ性に優れています。職人の手仕事による温かみのある質感は、高級住宅のリノベーションで特に人気があります。

板橋区 H様邸 外壁工事
板橋区 H様邸 外壁工事
板橋区 H様邸 外壁工事
板橋区 H様邸 外壁工事
板橋区 H様邸 外壁工事
板橋区 H様邸 外壁工事
板橋区 H様邸 外壁工事
板橋区 H様邸 外壁工事
板橋区 H様邸 外壁工事
2-7 造作工事

壁面はお施主様ご自身で「珪藻土」を施工されるため、塗装下地となる石膏ボードを張り上げた状態(ボード渡し)でお引き渡し。プロによる機能的な「愛犬仕様」の造作と、施主様参加型の「家づくり」が融合しました。

仕上げ工事の一部をH様ご自身が担うことで、コストダウンだけでなく、住まいへの愛着が一層深まる工程となりました。

  1. 珪藻土DIYのための「完璧なボード施工」 「自分たちの手で、愛犬の臭い対策にもなる珪藻土(けいそうど)を塗りたい」というH様のご希望を受け、壁と天井はクロスなどを貼らず、石膏ボードを張った状態で工事を完了させる「ボード渡し」としました。

    • 大工のこだわり: DIYの仕上がりは、下地の精度で決まります。素人の方でも塗りやすいよう、大工がビス(ねじ)の打ち込み深さを均一に揃え、ボードの継ぎ目(ジョイント)をミリ単位で調整。プロとして「最高のキャンバス」を用意しました。

  2. 床材:ベリティスフロアーダブルコート DIYが難しい床部分は、プロが施工しました。ワンちゃんの足腰に負担がかからず、爪による傷や汚れにも強いパナソニックの「ベリティスフロアー(耐熱・ペット対応)」を全面採用。滑りにくい表面加工が、愛犬の関節を守ります。

  3. グルーミングスペース:実験用シンク 洗面所には、大型犬も洗いやすいよう、幅広で深型の「実験用シンク(病院用流し)」を造作カウンターに埋め込みました。 水栓は自在に動かせるグースネックタイプを選定し、飼い主様の腰に負担がかからない高さ(80cm)に調整するなど、日々のケアが楽しくなる工夫を凝らしました。

板橋区 H様邸 造作
板橋区 H様邸 造作
板橋区 H様邸 造作

3 戸建てリノベーション竣工

完成した住まいは、「再建築不可」という重い制約を感じさせない、明るく開放的な空間へと生まれ変わり、施主様が長年苦しまれた「寒さと地震への不安」からの完全な解放を実現しました。


  =外観==  

Before

板橋区 H様邸 既存

施工前は窓が多い印象でした

After

板橋区 H様邸 竣工

施工後は窓を整理し、かつ光もたっぷり取り入れられる家に

板橋区 H様邸 竣工

外壁は左官仕上げ(AICAジョリパット)

板橋区 H様邸 竣工

玄関ドアはYKKAP断熱ドア イノベストD50

板橋区 H様邸 竣工

玄関内部には可動棚を設置しました


  == 1F LDK ==  

Before

板橋区 H様邸 既存

施工前は和室が中心でした

After

板橋区 H様邸 竣工

施工後は吹抜で大胆な空間作り

板橋区 H様邸 竣工

H様邸では壁の仕上げはDIYでされたいとのご要望からボード仕上げでの引き渡しとなりました

板橋区 H様邸 竣工

吹抜の天井にはおしゃれなシーリングファンを設置


  == 1F 水まわり ==  

Before

板橋区 H様邸 既存

施工前のキッチンもきれいでしたがコンパクトすぎて使いずらかったそうです

After

板橋区 H様邸 竣工

施工後は広々ゆったりキッチン トクラスコラージアI型3000

板橋区 H様邸 竣工

浴室はTOTOリモデルバスルーム1416サイズ

板橋区 H様邸 竣工

トイレはTOTOレストパル


  == 2F 居室 ==  

板橋区 H様邸 竣工

床材などの室内建材、内装ドアはパナソニックベリティス

板橋区 H様邸 竣工

2階の室内窓から吹き抜けを見下ろせます


4 補助金利用

 

板橋区H様邸の工事では、国の補助金「子育てエコホーム支援事業」と「先進的窓リノベ事業」を活用しました。

省エネにつながるエコ住宅設備や、断熱性能の高い断熱材・ドア・窓の設置などに対して交付される補助金です。

 

H様邸の補助金対象工事

エコ住宅設備の設置 給湯器(エコジョーズ)、高断熱浴槽、節水型トイレ、節湯水栓
断熱改修 外壁・床・天井の断熱材、断熱窓、断熱ドア
子育て対応改修 ビルトイン自動調理対応コンロ、掃除しやすいレンジフード

 

H様邸リフォーム工事で交付された補助金額:約120万円

5 担当者より
(「増改築.com®」本部ハイウィル株式会社四代目代表稲葉高志)

今回のプロジェクトは「再建築不可でも諦めない」というH様の強い意志と、想定外の事態にも動じず「正しい工事」を選択された決断力こそが、この家の再生を実現させました。

H様、この度は大切な住まいの再生をお任せいただき、ありがとうございました。

当初は「予算1500万円以内で」というご相談から始まりましたが、解体直後、平屋部分の「小屋同然」の構造と、土台の腐食を見た時の衝撃は忘れられません。 これらを全て正しく直すためには、どうしても当初のご予算では収まりきらず、最終的に2800万円という費用が必要となりました。

しかし、H様は「中途半端に蓋をするのではなく、悪いところは全て直してほしい。安心して住める家にしたい」と、即決してくださいました。 そのご決断があったからこそ、私たちはプロとして一切の妥協なく、構造を組み直し、断熱を詰め込み、胸を張ってお引き渡しできる「本物の住まい」を完成させることができました。

お引渡し後、「以前とは比べ物にならないくらい暖かい」「犬たちもリラックスしている」とのお言葉をいただき、感無量です。 生まれ変わった「イヤシロチ」で、ワンちゃんたちと健やかにお過ごしください。

他のリフォーム事例を見る

再建築不可のフルリフォーム&リノベーション

東京都杉並区 O様邸

耐震等級3相当(上部構造評点1.5以上)リフォーム(性能向上リノベーション)

東京都荒川区 O様邸

HEAT20-G2リフォーム(性能向上リノベーション)

東京都豊島区   T様邸

自然素材

埼玉県川口市 K様邸

戸建てリノベーション・リフォームに関するお問合せはこちら

増改築.comの一戸建てリフォーム専用ホームページに
お越しいただき、誠に有難うございます。
 
増改築.comメンバーは技術集団となり、
他社のような営業マンがおりません。
技術者が直接ご相談にのり問題解決を行います。
 
従いまして、
お客様の方である程度のご要望が整理されました段階、
お悩みが工事内容のどのようなところにあるのか?
ご予算がどの程度絞る必要があるのか?
など明確になった段階でのご相談をお願いしております。
お問合せ・ご相談はお電話・メールにて受け付けております。
メールの場合は以下のフォームに必要事項をご記入の上、
「送信する」ボタンをクリックをお願いします。

代表稲葉高志

戸建てリノベーションの専属スタッフが担当致します。
一戸建て家のリフォームに関することを
お気軽にお問合せください

よくあるご質問
  • 他社に要望を伝えたところできないといわれたのですが・・・
  • 他社で予算オーバーとなってしまい要望が叶わないのですが・・・
  • サービスについて詳しく聞きたいのですが・・・

どのようなお悩みのご相談でも結構です。

あなたの大切なお住まいに関するご相談をお待ちしております。

営業マンはおりませんので、しつこい営業等も一切ございません。

設計会社(建築家様)・同業の建築会社様のご相談につきましては、プランと共にご指定のIw値及びUa値等の性能値の目安もお願い申し上げます。

2026年の大型補助金が確定したことで現在大変込み合っております。

耐震性能と断熱性能を向上させるフルリフォームには6か月~7か月の工期がかかります。

補助金獲得には年内に報告を挙げる必要があることから、お早目にご相談をお願いいたします。(6月着工までが目安

ご提案までに大変お時間がかかっております。ご了承のほどお願い申し上げます。

(5月までの着工枠が埋まりました)・・・2026/03/01更新

※すでにプランをお持ちのお施主様・設計資料をお持ちのお施主様は内容をフォームで送信後、フォーム下のメールアドレスに資料をお送りください。対応がスムーズです。

必須

(例:増改築太郎)

必須

(例:contact@high-will.co.jp)

(例:03-5615-2826)

必須

(例:東京都荒川区西日暮里2-35-1)

(例:築40年)

(例:25坪・100㎡など)

(例:2000万程度など)

  • ※再建築不可のリフォームでは金融機関が限られます。事前審査をお勧めいたします。

    (例:2024年3月くらいに完成希望など)

    必須

    できるだけ具体的にお知らせくださいませ。既存設計資料、リフォーム後のイメージ図等をお持ちであれば下記のメールアドレスより添付をお願いします。

    ※次の画面がでるまで、4~5秒かかりますので、
    続けて2回押さないようにお願いいたします。

    ※次の画面が出るまで、4〜5秒かかりますので、
    続けて2回押さないようにお願いいたします。

    図面や写真等を送信いただく場合、また入力がうまくいかない場合は、上記内容をご確認のうえ、下記メールアドレスまでご連絡ください。

    お電話でのお問合せはこちら

    0120-246-991

    営業時間:10:00~17:00(土日祝日を除く)

    ★YouTube「増改築.comチャンネル」チャンネル登録して新動画解説をいち早くGET!!★
    「増改築.comリノベ診断」であなたに一番ふさわしいフルリフォームを診断!!(動画解説付き)
    ★Facebookページにいいね!を押して最新コンテンツ情報をいち早くGET!!★

    4代目代表よりご挨拶

    稲葉高志

    親切・丁寧な対応をモットーとしておりますのでお気軽にご相談ください。